
Revision History
|
Rev. |
Description of Modification |
Date |
|
1. |
Awaiting for comments |
07/11/2024 |
|
2. |
Revised according to the comments |
11/11/2024 |
CONTENTS
9. Summary of Exceedance, Complaints, Notification of Summons and Prosecutions.............. 36
|
Appendix A |
Master
Programme |
|
Appendix B |
Overview of Desalination Plant
in Tseung Kwan
O |
|
Appendix C |
Summary of Implementation Status
of Environmental Mitigation |
|
Appendix D |
Event/Action
Plan |
|
Appendix E |
Landfill Gas
Equipment Calibration Certificate |
|
Appendix F |
Landfill Gas Monitoring Data |
|
Appendix G |
Waste Flow
Table |
|
Appendix H |
Site Inspection Proforma |
|
Appendix I |
Complaint Log |
|
Appendix J |
Exceedance Report |
Introduction
A1. The Project, Design, Build and Operate First Stage of Tseung Kwan O Desalination Plant (TKODP), is a Designated Project under the Environmental Impact Assessment Ordinance (Cap. 499) (EIAO) and is currently governed by a Further Environmental Permit (EP No. FEP - 01/503/2015/B) for the construction and operation of the Contract.
A2. In accordance with the Environmental Monitoring and Audit (EM&A) Manual for the Contract, EM&A works for marine water quality, noise, waste management and ecology should be carried out by Environmental Team (ET), Acuity Sustainability Consulting Limited (ASCL), during the construction phase of the Contract.
A3. This is the 56th Monthly EM&A Report, prepared by ASCL, for the Contract summarizing the monitoring results and audit findings of the EM&A programme at and around Tseung Kwan O Area 137 (TKO 137) during the reporting period from 1 October to 31 October 2024.
A4. The EM&A programme for this contract has covered environmental monitoring on construction noise level at selected NSRs and Contractor¡¦s environmental performance auditing in the aspects of construction dust, construction noise, water quality, waste management, Landscape and Visual and Ecology.
Summary of Main Works Undertaken & Key Mitigation Measures Implemented
A5. Key activities carried out in this reporting period for the Contract included the followings:
|
All Area -
Security Fence
footing construction work -
Footpath Construction -
Landscape Construction -
Irrigation System
Construction -
Water Pressure Test for FS and PL system -
Landscape planting work -
Traffic signage
work -
E&M Works
and Mechanical Installation |
|
PWST -
Water Test in Tank A -
Waterproofing work
at Roof Slab
on Tank A -
Installation of building services, electrical switchboards and cables -
Installation of mechanical equipment, steel pipe, Pressure Test |
|
Administration Building -
External wall
aluminum features installation -
Finishing works
for dog house -
Minor Installation of building services, electrical switchboards &
cables, Pressure Test,
T&C |
|
Chemical building -
Defect rectification -
Repairing the defects inside
the dangerous store |
|
Combined Shaft
& Pump House -
Internal finishing, defect rectification -
Construction of hose reel
cabinet -
T&C |
|
ActiDAFF -
Installation of access opening covers for filtered water tank -
Carrying out finishing works
for staircase no. 3. -
Minor Installation of mechanical equipment, piping system -
Minor Installation of building services, electrical switchboards and cables, Installation of FRP Enclosure System |
|
Product Water
Storage Tank Building -
Minor Installation of building services, cable laying and termination, PV Panel
Installation, Testing & Commissioning |
|
OSCG Building -
Protective Coating for DG Rooms -
Installation of Railing on Brine Maker
Tank -
Minor Installation of building services, cables and pipe
works, T&C -
Tank surface
cleaning, T&C |
|
Reverse Osmosis Building -
Installation
of Signage, AP doors, sanitary
fitting, sanitary ware in toilet, tiling
work and water meter cabinets -
Minor Installation of building services, minor cable laying
and termination, Testing & Commissioning, PV Panel Installation |
|
Post Treatment Building -
Installation of Cat Ladders
in Water Tanks -
Placing Soil
Mix at Roof -
Curb Construction for Rescue Opening at Water Tanks -
Installation of building services, piping system, mechanical equipment and piping system, Pressure Test |
|
Inspection gallery -
Construction of roof tiling
works -
Installation of steel balustrade at roof -
Installation of movement joints |
|
-
Construction of block works -
Minor Installation of building service, T&C |
|
RO and
Electrical Building -
Installation of Glass House -
Minor Installation of building services, electrical switchboards and cables -
Minor Installation of mechanical pipework and raised Floor, -
PV Panel
Installation, T&C Chiller plant & Main Electrical Building -
Minor Installation of building services, electrical switchboards and cables, Pressure Test, T&C Others -
Slope works -
Construction works
of extended access
road |
A6. The major environmental impacts brought by the above construction works include:
- Construction dust and noise generation from construction works and excavation works and slope works;
- Waste generation from the construction activities
A7. The key environmental mitigation measures implemented for the Contract in this reporting period associated with the above construction works include:
- Dust suppression by regular wetting and water spraying for construction works;
- Reduction of noise from equipment and machinery on-site and regular inspection to machinery and plants/vehicles on-site to ensure proper functioning;
- Deployment of silt curtain at the inshore water outflow;
- Sorting and storage of general refuse and construction waste; and
-
Deployment protective fencing
for trees
Summary of exceedance & investigation & follow-up
A8. No noise monitoring was conducted during the reporting period since there are no Contract -related construction activities undertaken within a radius of 300m from the monitoring locations. No exceedance of the action Level was recorded during the reporting period.
A9. The construction phase marine water quality programme was ceased from 1 September 2023 due to the completion of marine-related construction works.
A10. Water quality monitoring of the discharge of dechlorinated effluent in disinfection procedure is completed in December 2023. The hourly dechlorinated effluent monitoring during the discharge is finished.
A11. In this reporting period, 63 times of landfill gas monitoring were periodically conducted at TKO Area 137 (Ch1+120 - Ch1+800) until 31 October 2024. No exceedances of action level and limit level was observed.
A12. Joint site inspections of the construction work by ET and IEC were carried out on 28 October 2024 to audit the mitigation measures implementation status.
Complaint Handling and Prosecution
A13. No environmental complaint, notification of summons and prosecution was received in the reporting period.
Reporting Change
A14. According to the contractor¡¦s information, the TKODP commenced operation phase on 1 July 2024. The outstanding construction works were being carried out during this reporting period.
Summary of Upcoming
Key Issues and Key Mitigation Measures
A15. Key activities anticipated in the next reporting period for the Contract will include the followings:
|
All Area -
Security Fence
footing construction work -
Footpath Construction -
Landscape Construction -
Irrigation System
Construction -
Water Pressure Test for FS and PL system -
Landscape planting work -
Traffic signage
work -
E&M Works
and Mechanical Installation |
|
PWST -
Water Test in Tank A -
Waterproofing work
at Roof Slab
on Tank A -
Installation of building services, electrical switchboards and cables -
Installation of mechanical equipment, steel pipe, Pressure Test |
|
Administration Building -
External wall
aluminum features installation -
Finishing works
for dog house -
Minor Installation of building services, electrical switchboards &
cables, Pressure Test,
T&C |
|
Chemical building -
Defect rectification -
Repairing the defects inside
the dangerous store |
|
Combined Shaft
& Pump House -
Internal finishing, defect rectification -
Construction of hose reel
cabinet -
T&C |
|
ActiDAFF -
Installation of access opening covers for filtered water tank -
Carrying out finishing works
for staircase no. 3. -
Minor Installation of mechanical equipment, piping system -
Minor Installation of building services, electrical switchboards and cables, Installation of FRP Enclosure System |
|
Product Water
Storage Tank Building -
Minor Installation of building services, cable laying and termination, PV Panel
Installation, Testing & Commissioning |
|
OSCG Building -
Protective Coating for DG Rooms -
Installation of Railing on Brine Maker
Tank -
Minor Installation of building services, cables and pipe
works, T&C -
Tank surface
cleaning, T&C |
|
Reverse Osmosis Building -
Installation
of Signage, AP doors, sanitary
fitting, sanitary ware in toilet, tiling
work and water meter cabinets -
Minor Installation of building services, minor cable laying
and termination, Testing & Commissioning, PV Panel Installation |
|
Post Treatment Building -
Installation of Cat Ladders
in Water Tanks -
Placing Soil
Mix at Roof -
Curb Construction for Rescue Opening at Water Tanks -
Installation of building services, piping system, mechanical equipment and piping system, Pressure Test |
|
Inspection gallery -
Construction of roof tiling
works -
Installation of steel balustrade at roof -
Installation of movement joints -
Construction of block works -
Minor Installation of building service, T&C |
|
RO and
Electrical Building -
Installation of Glass House -
Minor Installation of building services, electrical switchboards and cables -
Minor Installation of mechanical pipework and raised Floor, -
PV Panel
Installation, T&C |
|
Chiller plant
& Main Electrical Building -
Minor Installation of building services, electrical switchboards and cables, Pressure Test, T&C Others -
Construction works
of extended access
road |
A16. The major environmental impacts brought by the above construction works will include:
- Construction dust and noise generation from excavation and construction works;
- Waste generation from construction activities.
A17. The key environmental mitigation measures for the Contract in the coming reporting period associated with the above construction works will include:
- Reduction of noise from equipment and machinery on-site;
- Dust suppression by regular wetting and water spraying for construction works and at main haul road;
- Sorting and storage of general refuse and construction waste;
- Deployment of silt curtain at the inshore water outflow;
-
Deployment protective fencing
for trees.
Background
1.1. The Acciona Agua, S.A. Trading, Jardine Engineering Corporation, Limited and China State Construction Engineering (Hong Kong) Limited as AJC Joint Venture (AJCJV) is contracted to carry out the Design, Build and Operate First Stage of Tseung Kwan O Desalination Plant (DPTKO) under Contract No. 13/WSD/17 (the Contract).
1.2. Acuity Sustainability Consulting Limited (ASCL) is commissioned by AJCJV to undertake the Environmental Team (ET) services as required and/or implied, both explicitly and implicitly, in the Environmental Permit (EP), Environmental Impact Assessment Report (EIA Report) (Register No. AEIAR-192/2015) and Environmental Monitoring and Audit Manual (EM&A Manual) for the Contract; and to carry out the Environmental Monitoring and Audit (EM&A) programme in fulfillment of the EIA Report¡¦s EM&A requirements and Contract No. 13/WSD/17 Specification requirements.
1.3. Pursuant to the Environmental Impact Assessment Ordinance (EIAO), the Director of Environmental Protection granted the Environmental Permit (No. EP-503/2015/B) to Water Supplies Department (WSD); and granted the Further Environmental Permit (No. FEP-01/503/2015/B) to AJCJV for the Contract.
1.4. According to the contractor¡¦s information, the TKODP commenced operation phase on 1 July 2024. The outstanding construction works were being carried out during this reporting period.
The Reporting Scope
1.5. This is the 56th Monthly EM&A Report for the Contract which summarizes the key findings of the EM&A programme during the reporting period from 1 October to 31 October 2024.
Contract Organization
1.6. The Contract Organization structure for Construction Phase is presented in Figure 1.1.

Figure 1.1 Contract Organization Chart
1.7. Contact details of the key personnel are presented in Table 1.1 below:
Table 1.1 Contact Details of Key Personnel
|
Party |
Position |
Name |
Telephone no. |
|
Contract Proponent (Water Supplies Department) |
SE/CM2 |
Milton Law |
2634-3573 |
|
Supervising
Officer (Binnies
Hong Kong Limited) |
Project Manager |
Augustine Li |
2608-7671 |
|
Chief Resident Engineer |
David Wong |
5229-8638 |
|
|
The
Jardine Engineering Corporation, Limited, China
State Construction Engineering (Hong Kong) Limited and Acciona Agua, S.A. Trading |
Project Manager |
Stephen
Yeung |
2807-4665 |
|
Environmental Monitoring Manager |
Brian Kam |
9456-9541 |
|
|
Operation
Manager |
Arnes
Parra, Victor |
6468-6710 |
|
|
Environmental Monitoring Manager |
Tommy Law |
6468-1782 |
|
|
Acuity Sustainability Consulting Limited |
Environmental
Team Leader |
Toby Wan |
9719-5422 |
|
Lam Environmental Services Limited |
Independent Environmental Checker (IEC) |
Serena Shek |
6149-6683 |
Summary of Construction Works
1.8. Details of the major construction activities undertaken in this reporting period are shown below. The master programme is presented in Appendix A.
1.9. Key activities carried out in this reporting period for the Contract included the followings:
|
All Area -
Security Fence
footing construction work -
Footpath Construction -
Landscape Construction -
Irrigation System
Construction -
Water Pressure Test for FS and PL system -
Landscape planting work -
Traffic signage
work |
|
-
E&M Works
and Mechanical Installation |
||
|
PWST -
Water Test in Tank A -
Waterproofing work
at Roof Slab
on Tank A -
Installation of building services, electrical switchboards and cables -
Installation of mechanical equipment, steel pipe, Pressure Test |
||
|
Administration Building -
External wall
aluminum features installation -
Finishing works
for dog house -
Minor Installation of building services, electrical switchboards &
cables, Pressure Test, T&C |
||
|
Chemical building -
Defect rectification -
Repairing the defects inside
the dangerous store |
||
|
Combined Shaft
& Pump House -
Internal finishing, defect rectification -
Construction of hose reel
cabinet -
T&C |
||
|
ActiDAFF -
Installation of access opening covers for filtered water tank -
Carrying out finishing works
for staircase no. 3. -
Minor Installation of mechanical equipment, piping system -
Minor Installation of building services, electrical switchboards and cables, Installation of FRP Enclosure System |
||
|
Product Water
Storage Tank Building -
Minor Installation of building services, cable laying and termination, PV Panel
Installation, Testing & Commissioning |
||
|
OSCG Building -
Protective Coating for DG Rooms -
Installation of Railing on Brine Maker
Tank -
Minor Installation of building services, cables and pipe
works, T&C -
Tank surface
cleaning, T&C |
||
|
Reverse Osmosis Building -
Installation
of Signage, AP doors, sanitary
fitting, sanitary ware in toilet, tiling
work and water meter cabinets -
Minor Installation of building services, minor cable laying
and termination, Testing & Commissioning, PV Panel Installation |
||
|
Post Treatment Building -
Installation of Cat Ladders
in Water Tanks -
Placing Soil
Mix at Roof |
||
|
|
-
Curb Construction for Rescue Opening at Water Tanks -
Installation of building services, piping system, mechanical equipment and piping system, Pressure Test |
|
|
|
Inspection gallery -
Construction of roof tiling
works -
Installation of steel balustrade at roof -
Installation of movement joints -
Construction of block works -
Minor Installation of building service, T&C |
|
||
|
RO and
Electrical Building -
Installation of Glass House -
Minor Installation of building services, electrical switchboards and cables -
Minor Installation of mechanical pipework and raised Floor, -
PV Panel
Installation, T&C Chiller plant & Main Electrical Building -
Minor Installation of building services, electrical switchboards and cables, Pressure Test, T&C Others -
Slope works -
Construction works
of extended access
road |
|
||
|
1.10. A summary of the valid
permits, licences, and/or notifications on environmental |
|
||
protection for this Contract is presented in Table 1.2.
Table 1.2 Summary of the Status of Valid Environmental Licence, Notification, Permit and Documentations
|
Permit/ Licences |
Valid Period |
Status |
Remark |
|
|
From |
To |
|||
|
Environmental Permit |
||||
|
EP-503/2015/B |
Throughout the Contract |
Valid |
-Issued on 3 April 2024 |
|
|
FEP - 01/503/2015/B |
Throughout the Contract |
Valid |
-Issued on 3 April 2024 |
|
|
Notification of Construction Works under the Air Pollution Control (Construction
Dust) Regulation (Form NA) |
||||
|
451539 |
Throughout the Contract |
Valid |
- |
|
|
Billing Account for Disposal of Construction Waste |
||||
|
7036276 |
Throughout the Contract |
Valid |
- |
|
|
Sludge (Special Waste)
Disposal (Admission Ticket) |
||||
|
17913 |
01/07/2024 |
31/12/2024 |
Valid |
- |
|
17372 |
12/06/2024 |
31/12/2024 |
Valid |
- |
|
Chemical Waste Producer Registration |
||||
|
5213-839-A2987- 01 |
Throughout the Contract |
Valid |
- |
|
|
Wastewater Discharge Licence (Land
and Marine works) |
||||
|
WT00035775-2020 |
23/08/2021 |
31/07/2025 |
Valid |
- |
|
WT00044188-2023 |
16/06/2023 |
30/06/2028 |
Valid |
- For Plant T&C and operation. - Variation sampling point S.P.1
is approved by the EPD on
25 June 2024 (EPD ref.: EP640/W3/D1358/46
2874). - The variation of application
of discharge license was submitted on 9 September 2024
and pending for EPD approval |
|
Construction Noise Permit |
||||
|
GW-RE0667-24 |
22/06/2024 |
20/12/2024 |
Valid |
- |
1.11. The status for all environmental aspects is presented in Table 1.3.
Table 1.3 Summary of Status for Key Environmental Aspects under the EM&A Manual
|
Parameters |
Status |
||
|
Water Quality |
|||
|
Baseline Monitoring Manual |
under |
EM&A |
The baseline water quality monitoring was conducted between 12 May 2020
to 6 Jun 2020. |
|
Construction Phase
Impact Monitoring |
Ceased from
1 September 2023 |
||
|
Operation phase Monitoring |
Marine |
Impact |
On-going |
|
Impact Monitoring of Effluent Discharge from Main Disinfection |
Completed |
||
|
Noise |
|||
|
Baseline Monitoring |
The baseline noise monitoring result
has been reported in Baseline Monitoring Report and
submitted to EPD
under EP Condition 3.4 |
||
|
Impact Monitoring |
Completed |
||
|
Waste Management |
|||
|
Mitigation Measures in Waste Management Plan |
On-going |
||
|
Landfill Gas |
|||
|
Regular Monitoring when construction
works are within the 250 m Consultation Zone |
On-going |
||
|
Ecology (Coral) |
|||
|
Operation phase Regular Coral Monitoring (Monthly) |
On-going |
||
|
Ecology (Fishery) |
|||
|
Operation phase Regular Fishery Monitoring (Seasonally) |
On-going |
||
|
Ecology (Landscape) |
|||
|
Operation phase Landscape and Visual
Site Inspection |
On-going |
||
|
Environmental Audit |
|||
|
Site Inspection covering Measures of Air
Quality, Noise Impact, Water Quality, Waste, Ecological Quality, Fisheries, Landscape and Visual |
On-going |
||
1.12. Other than the EM&A work by ET, environmental briefings, trainings, and regular environmental management meetings were conducted, in order to enhance environmental awareness and closely monitor the environmental performance of the contractors.
1.13. The EM&A programme has been implemented in accordance with the recommendations presented in the approved EIA Report and the EM&A Manual. A summary of implementation status of the environmental mitigation measures for the construction phase of the Contract during the reporting period is provided in Appendix C.
Monitoring Requirements
2.1. To ensure no adverse noise impact, noise monitoring is recommended to be carried out within 300m radius from the nearby noise sensitive receivers (NSRs), during construction phase. The NSRs selected as monitoring station are (i) NSR4 - Creative Secondary School, (ii) NSR24 - PLK Laws Foundation College, and (iii) NSR31 - School of Continuing and Professional Studies - CUHK respectively.
2.2. Construction noise level were measured in terms of the A-weighted equivalent continuous sound pressure level (LAeq). Leq 30min was used as the monitoring parameter for the time period between 0700 and 1900 on normal weekdays. Construction works would follow stipulations of the valid Construction Noise Permits if works had to be conducted during restricted hours or public holidays. Table 2.1 summarizes the monitoring parameters, frequency, and duration of the impact noise monitoring.
Table 2.1 Noise Monitoring Parameters, Time, Frequency and Duration
|
Time |
Duration |
Interval |
Parameters |
|
Daytime: 0700-1900 |
Day
time: 0700-1900 (during normal weekdays) |
Continuously in Leq
5min/Leq 30min (average of 6 consecutive
Leq 5min) |
Leq 30min L10 30min & L90
30min |
Monitoring Locations
2.3. The monitoring locations were normally made at a point 1m from the exterior of the NSRs building façade and be at a position 1.2m above the ground. A correction of +3dB(A) should be made to the free-field measurements.
2.4. According to the environmental findings detailed in the EIA report and Baseline Monitoring Report, the designated locations for the construction noise monitoring are listed in Table 2.2 below.
Table 2.2 Noise Sensitive Receivers
|
NSR ID |
Noise Sensitive Receivers |
Monitoring
Location |
Position |
|
NSR 4 |
Creative Secondary School |
Roof
Floor |
1 m from
facade |
|
NSR 24 |
PLK Laws
Foundation College |
Pedestrian Road on Ground Floor |
Free-field |
|
NSR 31 |
School
of Continuing and Professional Studies - CUHK |
Roof
Floor |
1 m from
facade |
2.5. Three noise monitoring locations for impact monitoring at the nearby sensitive receivers are shown in Figure 2.1-2.3.
|
|
|
Figure 2.1 NSR4 Creative Secondary School |
|
|
|
Figure 2.2 NSR24 PLK Laws Foundation College |
|
|
|
Figure 2.3 NSR31
School of Continuing and Professional Studies - CUHK |
Impact Monitoring Methodology
2.6. Integrated sound level meter will be used for the noise monitoring. The meter will be in compliance with the International Electrotechnical Commission Publications 651: 1979 (Type 1) and 804: 1985 (Type 1) specifications. Immediately prior to and following each noise measurement the accuracy of the sound level meter will be checked using an acoustic calibrator generating a known sound pressure level at a known frequency. Measurements will be accepted as valid only if the calibration levels before and after the noise measurements agree to within 1.0 dB(A).
2.7. Noise measurements were not made in the presence of fog, rain, wind with a steady speed exceeding 5 m/s or wind with gusts exceeding 10 m/s. The wind speed shall be checked with a portable wind speed meter capable of measuring the wind speed in m/s.
Action and Limit Levels
2.8. The Action/Limit Levels are in line with the criteria of Practice Note for Professional Persons (ProPECC PN 2/93) ¡§Noise from Construction Activities - Non-statutory Controls¡¨ and Technical Memorandum on Environmental Impact Assessment Process issued by HKSAR Environmental Protection Department [¡§EPD¡¨] under the Environmental Impact Assessment Ordinance, Cap 499, S.16 are presented in Table 2.3.
Table 2.3 Action and Limit Levels for Noise per EM&A Manual
|
Time Period |
Action |
Limit (dB(A)) |
|
0700-1900 on normal
weekdays |
When
one documented complaint is received from any one of the
noise sensitive receivers |
-
70 dB(A)
for school and -
65 dB(A)
during examination period |
Note: Limits specified in the GW-TM
and IND-TM for construction and operation noise,
respectively.
2.9.
If exceedances were found
during noise monitoring, the actions in accordance with the Event and Action
Plan shall be carried out according to Appendix
D.
Monitoring Results and Observations
2.10. Referring to EM&A Manual Section 4.1.2, the impact noise monitoring should be carried out when there are Contract-related construction activities undertaken within a radius of 300m from the monitoring stations. As no Contract-related construction activities were undertaken in the reporting month within a radius of 300m from the monitoring stations as shown in Figure 2.4, no impact noise monitoring was conducted in the reporting period.

Figure 2.4 Site Layout Plan with Noise Sensitive Receivers and Desalination Plant
3.1. In accordance with the recommendations of the EIA, water quality monitoring is required during dredging for the submarine pipelines and, during operation phase. The following Section provides details of the water quality monitoring to be undertaken by the Environmental Team (ET) to verify the distance of sediment and brine plume dispersion and to identify whether the potential exists for any indirect impacts to occur to ecological sensitive receivers.
3.2. The water quality monitoring programme was be carried out to allow any deteriorating water quality to be readily detected and timely action taken to rectify the situation.
3.3. Water quality monitoring for the Contract can be divided into the following stages:
- Dredging activities during construction phase;
- Discharge of effluent from main disinfection during construction phase; and
- Operation activities during operation phase.
Water Quality Parameters
3.4. The parameters that have been selected for measurement in situ and in the laboratory are those that were either determined in the EIA to be those with the most potential to be affected by the construction works or are a standard check on water quality conditions. Parameters to be measured in the impact monitoring are listed in Table 3.1.
Table 3.1 Parameters measured in the Impact Marine Water Quality Monitoring
|
Parameters |
Unit |
Abbreviation |
|
In-situ measurements |
||
|
Dissolved oxygen |
mg/L |
DO |
|
Temperature |
oC |
- |
|
pH |
- |
- |
|
Turbidity |
NTU |
- |
|
Salinity |
0/00 |
- |
|
Total Residual Chlorine NOTE1 |
mg/L |
TRC |
|
Laboratory measurements |
||
|
Suspended Solids |
mg/L |
SS |
|
Iron-Soluble |
mg/L |
Fe |
|
Anti-scalant as Reactive Phosphorus |
mg/L |
PO4
as P- |
NOTE 1: Monitoring of Total Residual
Chlorine will be conducted
when cleaning and sterilization of the
new freshwater main is carried out.
3.5. In addition to the water quality parameters, other relevant data were also being measured and recorded in Water Quality Monitoring Logs, including the location of the sampling stations, water depth, time, weather conditions, sea conditions, tidal stage, current direction and velocity, special phenomena and work activities undertaken around the monitoring and works area that may influence the monitoring results.
Monitoring Equipment
3.6. For water quality monitoring, the following equipment were used:
Dissolved Oxygen and Temperature Measuring Equipment - The instrument was a portable, weatherproof dissolved oxygen measuring instrument complete with cable, sensor, comprehensive operation manuals, and was operable from a DC power source. It was capable of measuring: dissolved oxygen levels in the range of 0 - 20 mg/L and 0 - 200% saturation; and a temperature of 0 - 45 degrees Celsius. It has a membrane electrode with automatic temperature compensation complete with a cable of not less than 35 m in length. Sufficient stocks of spare electrodes and cables were available for replacement where necessary (e.g. YSI model 59 DO meter, YSI 5739 probe, YSI 5795A submersible stirrer with reel and cable or an approved similar instrument).
Turbidity Measurement Equipment - The instrument was a portable, weatherproof turbidity-measuring unit complete with cable, sensor and comprehensive operation manuals. The equipment was operated from a DC power source, it has a photoelectric sensor capable of measuring turbidity between 0 - 1000 NTU and complete with a cable with at least 35 m in length (for example Hach 2100P or an approved similar instrument).
Salinity Measurement Instrument - A portable salinometer capable of measuring salinity in the range of 0 - 40 ppt was provided for measuring salinity of the water at each monitoring location.
Water Depth Gauge - A portable, battery-operated echo sounder (for example Seafarer 700 or a similar approved instrument) was used for the determination of water depth at each designated monitoring station. This unit will preferably be affixed to the bottom of the work boat if the same vessel is to be used throughout the monitoring programme. The echo sounder was suitably calibrated.
Positioning Device - A Global Positioning System (GPS) was used during monitoring to allow accurate recording of the position of the monitoring vessel before taking measurements. The Differential GPS, or equivalent instrument, was suitably calibrated at appropriate checkpoint (e.g. Quarry Bay Survey Nail) to verify that the monitoring station is at the correct position before the water quality monitoring commence.
Water Sampling Equipment - A water sampler, consisting of a PVC or glass cylinder of not less than two litres, which can be effectively sealed with cups at both ends, was used. The water sampler has a positive latching system to keep it open and prevent premature closure until released by a messenger when the sampler is at the selected water depth.
Total Residual Chlorine -Total residual chlorine (TRC) shall be measured in-situ using approved test kit.
Sampling / Testing Protocols
3.7. All in situ monitoring instruments were checked, calibrated, and certified by a laboratory accredited under HOKLAS or any other international accreditation scheme before use, and subsequently re-calibrated at monthly intervals throughout the stages of the water quality monitoring. Responses of sensors and electrodes were checked with certified standard solutions before each use.
3.8. On-site calibration of field equipment was following the ¡§Guide to On-Site Test Methods for the Analysis of Waters¡¨, BS 1427: 2009. Sufficient stocks of spare parts were maintained for replacements when necessary. Backup monitoring equipment was made available so that monitoring can proceed uninterrupted even when equipment is under maintenance, calibration etc.
Laboratory Measurement and Analysis
3.9. Sufficient volume of each water sample was collected for carrying out the laboratory analyses. Using chain of custody forms, collected water samples were transferred to a HOKLAS accredited laboratory (Acumen Laboratory and Testing Limit - HOKLAS 241) for immediate processing. The determination work was start within the next working day after collection of the water samples. Analytical methodology and sample preservation of other parameters were based on the latest edition of Standard Methods for the Examination of Waste and Wastewater published by APHA, AWWA and WPCF and methods by USEPA, or suitable method in accordance with requirements of HOKLAS or another internationally accredited scheme. The QA/QC details were in accordance with the requirements of HOKLAS or another internationally accredited scheme.
3.10. Parameters for laboratory measurements, standard methods and detection limits are presented in Table 3.2.
Table 3.2 Laboratory measurements, standard methods, and corresponding detection limits of marine water quality monitoring
|
Parameters |
Standard Methods |
Detection Limit |
Reporting Limit |
Precision |
|
Dissolved
oxygen |
Instrumental, CTD |
0.1 |
- |
+-25% |
|
Temperature |
Instrumental, CTD |
0.1 |
- |
+-25% |
|
pH |
Instrumental, CTD |
0.1 |
- |
+-25% |
|
Turbidity |
Instrumental, CTD |
0.1 |
- |
+-25% |
|
Salinity |
Instrumental, CTD |
0.1 |
- |
+-25% |
|
Suspended
Solids |
APHA 23rd Ed
2540D |
1.0 |
2.5 |
+-17% |
|
Iron |
APHA 3111 B |
0.2 |
- |
+-25% |
|
Total residual chlorine |
Test
Kit (Lovibond MD200) |
Lowest limit
= 0.01mg/L; Upper limit = 6
mg/L |
- |
+-25% |
Monitoring Location
Construction Phase
3.11. The Impact water quality monitoring was ceased from 1 September 2023 due to the completion of marine-related construction works.
Operation phase
3.12. The operation phase impact water quality monitoring locations are in accordance with the EM&A Manual and detailed in Table 3.3 below. A schedule for water quality monitoring was prepared by the ET and submitted to IEC and EPD prior to the commencement of the monitoring.
Table 3.3 Location of Impact Water Quality Monitoring Stations
|
Station |
Easting |
Northing |
Description |
|
CE |
843550 |
815243 |
Upstream
control station at ebb tide |
|
CF |
846843 |
810193 |
Upstream
control station at flood tide |
|
WSR1 |
846864 |
812014 |
Ecological
sensitive receiver at Tung Lung Chau |
|
WSR2 |
847645 |
812993 |
Fisheries
sensitive receiver at Tung Lung Chau |
|
WSR3 |
848023 |
813262 |
Ecological
sensitive receiver at Tung Lung Chau |
|
WSR4 |
847886 |
814154 |
Ecological
sensitive receiver at Tai Miu
Wan |
|
WSR16 |
845039 |
815287 |
Ecological
sensitive receiver at Fat Tong Chau |
|
WSR33 |
847159 |
814488 |
Ecological
sensitive receiver at Tai Miu
Wan |
|
WSR36 |
846878 |
814081 |
Ecological
sensitive receiver at Kwun Tsai |
|
WSR37 |
846655 |
813810 |
Ecological
sensitive receiver at Tit Cham Chau |
|
NF1 |
846542 |
813614 |
Edge of Mixing zone, ~ 200m west of outfall diffuser |
|
NF2 |
846942 |
813614 |
Edge of Mixing zone, ~ 200m east of outfall diffuser |
|
NF3 |
846742 |
813414 |
Edge of Mixing zone, ~ 200m south of outfall diffuser |
3.13. WSR1 to WSR37 were identified in accordance with Annex 14 of the EIAO-TM as well as Clause 3.4.4.2 of the Environmental Impact Assessment Study Brief for Desalination Plant at Tseung Kwan O (No. ESB-266/2013). WSR1 to WSR3 are sited near the Tung Lung Chau Fish Culture Zone; WSR16 and WSR36 are sited near the coral assemblages along the coastlines of Fat Tong Chau and Kwun Tsai respectively; WSR 4 and WSR33 are sited near the Coastal Protection Area and coral assemblages in waters of Tai Miu Wan; WSR37 is sited near the fisheries resource including spawning and nursery grounds at the coastal water of Tit Cham Chau. NF1 to NF3 are the Edge of Mixing zone.

Figure 3.1 Impact water quality monitoring locations under EM&A Manual
Sampling Frequency
Operation phase
3.14. Impact water quality monitoring were carried out three days per week during the commission phase. Monitoring at each station was undertaken once per day. The interval between two sets of monitoring was not less than 36 hours. The monitoring frequency would be increased in the case of exceedances of Action/Limit Levels if considered necessary by ET. Monitoring frequency would be maintained as far as practicable.
Sampling Depths & Replication
3.15. During impact water quality monitoring, each station was sampled, and measurements/ water samples were taken at three depths, 1 m below the sea surface, mid-depth, and 1 m above the seabed. For in situ measurements, duplicate readings were made at each water depth at each station. Duplicate water samples were collected at each water depth at each station.
Action and Limit Levels
Operation phase
3.16. The Action and Limit Levels have been set based on the derivation criteria specified in the EM&A Manual. The Action/Limit Levels have been derived and are presented in Table 3.4.
Table 3.4 Derived Action and Limit Levels for Water Quality
|
Parameters |
Action |
Limit |
|
Operation phase Impact
Monitoring |
||
|
DO
in mg/L |
Surface and Middle 7.30 mg L-1 Bottom 7.31 mg L-1 Tung Lung Chau Fish
Culture Zone 5.1
mgL-1 or
level at control station (Whichever the lower) |
Surface and Middle 4
mg L-1 Bottom 2 mg L-1 Tung Lung Chau Fish
Culture Zone 5.0 mgL-1 or level at control station (Whichever the lower) |
|
SS in mg/L
(Depth- averaged) |
5.00 mg
L-1 or 20% exceedance of value at any impact station compared with
corresponding data from
control station |
6.00 mg L-1 or 30% exceedance of value at any
impact station compared with corresponding data from control station |
|
Turbidity in NTU (Depth- averaged) |
2.41 NTU or 20% exceedance of value
at any impact station compared with corresponding data from control station |
2.84 NTU or 30% exceedance of value
at any impact station compared with corresponding data from control station |
|
Salinity in PSU (Depth- averaged) |
34.25 PSU or 9% exceedance of value
at any impact station compared with corresponding data from control station |
34.56 PSU or 10% exceedance of value
at any impact station compared with corresponding data from control station |
|
Iron in mg/L
(Depth- averaged) |
0.3 mg/L |
0.3 mg/L |
|
Total residual chlorine in mg/L |
0.01 mg/L |
0.01 mg/L |
Notes:
i.
"Depth-averaged" is calculated by taking the arithmetic means
of reading of all three
depths.
ii. For DO, non-compliance of the water
quality limits occurs
when monitoring result is lower than the limits.
iii. For Turbidity, SS,
iron and Salinity, non-compliance of the water quality limits occurs when
monitoring result is higher than the
limits.
iv. Monitoring of Total Residual
Chlorine (Disinfection) will be conducted
when cleaning and sterilization of the new freshwater
main is carried out.
Monitoring Results and Observations
Construction Phase
3.17. Referring to EM&A Manual, the general water quality monitoring should be carried out when there are marine-related construction activities undertaken. General water quality monitoring at the ten monitoring stations (CE, CF, WSR1, WSR2, WSR3, WSR4, WSR16, WSR33, WSR36 and WSR37) was ceased from 1 September 2023 due to the completion of marine-related construction works.
Operation phase
3.18. According to the contractor¡¦s information, the operation phase of TKODP commenced on
1 July 2024. Details of the operation phase marine water quality monitoring and continuous monitoring of effluent quality will be presented in the Operation Monthly EM&A Report.
4.1. The waste generated from this Contract includes inert construction and demolition (C&D) materials, and non-inert C&D materials. Non-inert C&D materials are made up of general refuse, vegetative wastes and recyclable wastes such as plastics and paper/cardboard packaging waste. Steel materials generated from the Contract are also grouped into non-inert C&D materials as the materials were not disposed of with other inert C&D materials. With reference to relevant handling records and trip tickets of this Contract, the quantities of different types of waste generated in the reporting month are summarized in Table 4.1. Details of cumulative waste management data are presented as a waste flow table in Appendix G.
Table 4.1 Quantities of Waste Generated from the Contract during the reporting period
|
Reporting Month |
Actual Quantities of Inert C&D Materials Generated Monthly |
Actual Quantities of C&D Wastes
Generated Monthly |
|||||||||
|
Total Quantity Generated |
Hard Rock and Large Broken Concrete |
Reused in the Contract |
Reused in other
Projects |
Disposed as Public Fill |
Imported
Fill |
Metals |
Paper / cardboard
packaging |
Plastics (1) |
Chemical
Waste |
Others, e.g., general refuse |
|
|
(in ¡¦000kg) |
(in ¡¦000kg) |
(in ¡¦000kg) |
(in ¡¦000kg) |
(in ¡¦000kg) |
(in ¡¦000kg) |
(in ¡¦000kg) |
(in ¡¦000kg) |
(in ¡¦000kg) |
(in ¡¦000kg) |
(in ¡¦000kg) |
|
|
Oct 2024 |
78.140 |
0.000 |
0.000 |
0.000 |
78.140 |
0.000 |
0.000 |
0.000 |
0.000 |
0.000 |
71.810 |
Notes: (1) Plastics
refer to plastic
bottles / containers, plastic sheets / foam from packaging material
Monitoring Requirement
5.1. In accordance with Section 11 of the EM&A Manual, monitoring of landfill gas is required for construction works within the 250m Consultation Zone. Part of the desalination plant and the indicative area of natural slope mitigation works fall within the SENT Landfill Extension Consultation Zone; and part of the 1,200 mm diameter fresh water mains along Wan Po Road falls within the SENT Landfill and SENT Landfill Extension Consultation Zones, TKO Stage II/III Restored Landfill and TKO Stage I Restored Landfill Consultation Zones.
Monitoring Programme
5.2. Since part of the desalination plant (Wan Po Road and MIC compound/Basketball Court) and the indicative area of natural slope mitigation works fall within the SENT Landfill Extension Consultation Zone in this contract (Figure 5.1), landfill gas monitoring would be required for Wan Po Road and MIC compound/Basketball Court (Figure 5.2) if excavations were conducted at more than 300mm deep. Although SENT Landfill Extension has commenced operation since November 2021, no excavation works were conducted at MIC compound/Basketball Court. Hence no landfill gas monitoring would be scheduled for MIC compound/Basketball Court at the current stage.
Monitoring Location
5.3. Monitoring of oxygen, methane, carbon dioxide and barometric pressure would be performed for excavations at 1m depth or more within the consultation Zone.
5.4. During construction of works within the consultation zones, excavations of 1m depth or more was monitored:
- At the ground surface before excavation commences;
- Immediately before any worker enters the excavation;
- At the beginning of each working day for the entire period the excavation remains open; and
- Periodically through the working day whilst workers are in the excavation.
5.5. For excavations between 300mm and 1m deep, measurements were carried out:
- Directly after the excavation has been completed; and
- Periodically whilst the excavation remains open.
5.6. The area required to be monitored for landfill gas in the reporting period is shown in Figure 5.1.
Figure 5.1 Overview
of the SENT Extension Consultation Zone and the Contract Site Area
MONITORING PARAMETERS
5.7. The landfill gas monitoring parameters and the action and limit level are summarized in Table 5.1.
Table 5.1 Action and Limit Level
for Landfill Gas Monitoring Equipment
|
Parameters |
Action Level |
Limit Level |
|
Oxygen (O2) |
<19% O2 |
<19% O2 |
|
Methane (CH4) |
>10%
LEL |
>20%
LEL |
|
Carbon Dioxide (CO2) |
>0.5% CO2 |
>1.5% CO2 |
MONITORING EQUIPMENT
5.8. Landfill Gas monitoring was carried out using intrinsically-safe, portable multi-gas monitoring instruments. The gas monitoring equipment is:
- Complying with the Landfill Gas Hazard Assessment Guidance Note as intrinsically safe;
- Capable of continuous barometric pressure and gas pressure measurements;
- Normally operated in diffusion mode unless required for spot sampling, when it should be capable of operating by means of an aspirator or pump;
- Having low battery, fault and over range indication incorporated;
- Capable of storing monitoring data, and shall be capable of being downloaded directly;
- Measure in the following ranges:
|
methane |
0-100% Lower Explosion Limit (LEL) and 0-100% v/v; |
|
oxygen |
0-25% V/V; |
|
carbon dioxide |
0-5% v/v; and |
|
barometric pressure |
mBar (absolute) |
- alarm (both audibly and visually) in the event that the concentrations of the following are exceeded:
|
methane |
>10% LEL; |
|
oxygen |
<19% |
|
carbon dioxide |
>0.5% by volume |
|
barometric pressure |
mBar (absolute) |
5.9. Monitoring equipment used in the reporting period are summarized in Table 5.2. The Landfill Gas monitoring equipment calibration certificate is presented in Appendix E.
Table 5.2 Landfill Gas Monitoring Equipment
|
Equipment |
Brand and Model |
Calibration Expiry Date |
|
Portable Gas Detector |
GMI PS500 - 25492809/21 |
29 July 2025 |

Figure 5.2 Location Map for Landfill
Gas Monitoring at TKO Area 137 (-0+440
- -0+760)
Figure 5.3 Location Map for Landfill
Gas Monitoring at TKO Area 137
(-0+740 - -1+060)
MONITORING
RESULTS AND OBSERVATIONS
5.10. In this reporting period, 63 times of landfill gas monitoring were periodically conducted during excavations at 300mm to 1m depth within the consultation zone and whenever workers entered the excavation on the day at TKO Area 137 (Ch1+120 - Ch1+800) until 31 October 2024. No exceedances of action level and limit level was observed.
Monitoring Requirements
6.1. In accordance with Section 8.1 of the EM&A Manual, weekly site audit shall be carried out by the ET include checking whether good site practices are being properly implemented by the Contractor and the extent of the works area within the Clear Water Bay Country Park should be checked by the ET during the weekly site audit.
Site Inspection
6.2. Weekly site audit was carried out by the ET in the reporting month, no trespass by the Contractor outside the works area of the Project and Clear Water Bay Country Park, and no damage to the vegetation and rocky shore outside the Project area was observed in the reporting month. Retained trees was properly protected during the construction works, no unacceptable construction works was observed.
6.3.
If non-compliance were found
during the construction works, the actions in accordance with the Event and
Action Plan will be carried out according to Appendix D.
7.1. Under the approval conditions of the EIA Report for the Project, an EM&A programme on coral for the operation phase of the Project is recommended. Pursuant to these EIA approval conditions and Condition 3.1 of the EP and FEP, details of the regular coral monitoring programme have been proposed based on the baseline coral monitoring results in the Report on Pre-Operation Baseline Coral Monitoring and Regular Coral Monitoring Methodology.
Monitoring Location
7.2. In accordance with Appendix B Section 5.1 of the approved supplementary EM&A Manual, two indirect impact sites (C2 and C3) and one control site (C8) as shown in Figure 7.1 should be monitored during the operation Phase. Pre-operation coral survey should be conducted at the indirect impact and control sites. Ten selected hard coral colonies with similar species should be tagged at each of the control and indirect impact sites before commencement of the operation phase. Tagged hard coral colonies should be monitored in open waters during the pre-operation phase and operation phase.

Figure 7.1 Spot Dive Check Areas Two Proposed Indirect Impact Sites (C2 and C3) and one control site (C8) during operation Phase
Action and Limit Levels
7.3. The Action and Limit Levels have been set based on the derivation criteria specified in the EM&A Manual. The Action/Limit Levels have been derived and are presented in Table 7.1.
Table 7.1 Action and Limit Level for Coral Monitoring Equipment
|
Parameter |
Action Level Definition |
Limit Level Definition |
|
Mortality |
If during Impact Monitoring a 15% increase in the percentage of partial mortality on the corals occurs at more than 20% of the tagged indirect impact site coral colonies that is not recorded on the tagged corals at the control site, then the Action Level is exceeded |
If during Impact Monitoring a 25% increase in the percentage of partial mortality on the corals occurs at more than 20% of the tagged indirect impact site coral colonies that is not recorded on the tagged corals at the control site, then the Limit Level is exceeded |
Note: If the defined
Action Level or Limit Level for coral monitoring is exceeded, the actions as set out in Table E3 of Appendix D will be implemented.
7.4.
If non-compliance were found
during the construction works, the actions in accordance with the Event and
Action Plan will be carried out according to Appendix D.
Monitoring Frequency
7.5. Operation phase coral monitoring shall be monitored once per month as the requirement of the first year of operational phase.
Monitoring Result and Observation
7.6. According to the contractor¡¦s information, the operation phase of TKODP commenced on 1 July 2024. Details of the operation phase coral monitoring will be presented in the Operation Monthly EM&A Report.
8.1. The purpose of the operation phase regular fisheries monitoring programme is to monitor the potential impacts on fisheries resources in the vicinity of the project site. Apart from the regular fisheries monitoring programme, a water quality monitoring programme in addition to the water quality monitoring programme in the approved EM&A Manual is also described in Section 2.4 to (i) provide supplementary information in the interpretation of the findings of the fisheries monitoring and (ii) assist the monitoring of the potential impact on the Tung Lung Chau Fish Culture Zone (FCZ) in Joss House Bay.
Monitoring Location
8.2. In accordance with Section 2.3 of the approved Methodology Paper on Regular Fisheries Monitoring, it is recommended to set up six (6) fisheries monitoring locations in Joss House Bay and its vicinity to monitor the fisheries resources.
8.3. Two (2) sampling locations are set up in close proximity of the direct footprint of the proposed submarine utilities around TKO Area 137. These sampling locations represent the potential Project impact zones (i.e. areas at and in close proximity to the footprint of the proposed submarine utilities that will be directly affected by the Project works).
8.4. Two (2) gradient locations are proposed between the proposed submarine utilities and Tung Lung Chau FCZ to assist in the interpretation and identification of any potential fisheries impact in the vicinity of the FCZ.
8.5. Two (2) reference locations are proposed in the outer Joss House Bay between the waters of Tung Lung Chau and Fat Tong Mun. These reference locations are further away and will not be affected by the Project discharge (based on the EIA prediction) and will serve as control stations. Any significant fisheries impact identified at the reference locations should be caused by other natural factors or non-Project activities. The trends of fisheries conditions recorded in the reference locations will be used to assist in the interpretation of the trends of fisheries impact identified in the impact and gradient locations.
8.6.
The coordinates of the proposed monitoring locations are shown in Figure 8.1.

Figure 8.1 Monitoring location of regular fishery monitoring during pre-operation Phase
Monitoring Frequency
8.7. Operation phase fishery monitoring shall be carried out 2 times in wet season (April to October) and 2 times in dry season (November to March) to examine the following:
- Fish species composition;
- Abundance: number of fish captured;
- Diversity of fish resources: species diversity and evenness;
- Size: range of total length; Biomass in weight; and
- Values of catches of commercial species: catch per unit effort (CPUE) and yield per unit effort (YPUE).
Monitoring Result and Observation
8.8. According to the contractor¡¦s information, the operation phase of TKODP commenced on 1 July 2024. Details of the operation phase fishery monitoring will be presented in the Operation Monthly EM&A Report.
9.1. The Environmental Complaint Handling Procedure is shown in below Figure 9.1:

Figure 9.1 Environmental Complaint Handling Procedures
9.2. No noise monitoring was conducted during the reporting period since there are no Contract-related construction activities undertaken within a radius of 300m from the monitoring locations. No action Level exceedance for construction noise monitoring was recorded in the reporting month.
9.3. Construction phase general water quality monitoring at the ten monitoring stations (CE, CF, WSR1, WSR2, WSR3, WSR4, WSR16, WSR33, WSR36 and WSR37) are ceased from 1 September 2023 due to the completion of marine-related construction works.
9.4. The operation phase of TKODP commenced on 1 July 2024. Details of the operation phase marine water quality monitoring, continuous monitoring of effluent quality, coral monitoring, fishery monitoring and operation landfill gas monitoring will be presented in the Operation Monthly EM&A Report.
9.5. In this reporting period, 63 times of landfill gas monitoring were periodically conducted at TKO Area 137 (Ch1+120 - Ch1+800) until 31 October 2024. No exceedances of action level and limit level was observed.
9.6. No environmental complaint, notification of summons and prosecution Statistics on complaint and notification of summons and prosecution are summarized in Appendix I.
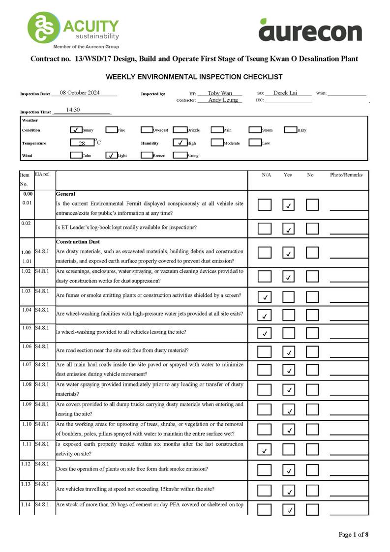
10.1. Site inspections were carried out on a weekly basis to monitor the implementation of proper environmental pollution control and mitigation measures under the Contract. In the reporting period, site inspections were carried out on 3, 8, 15, 22 and 28 October 2024 at the site portions listed in Table 10.1 below.
Table 10.1 Summaries of Site Inspection Record
|
Date |
Inspected Site Portion |
Time |
|
3 October 2024 |
TKO Area
137 |
14:30
- 15:30 |
|
8 October 2024 |
TKO Area
137 |
14:30
- 15:30 |
|
15 October 2024 |
TKO Area
137 |
14:30
- 15:30 |
|
22 October 2024 |
TKO Area
137 |
14:30
- 15:30 |
|
28 October 2024 |
TKO Area
137 |
09:15
- 12:30 |
10.2. Joint site inspection with IEC was carried out on 28 October 2024.
10.3. Environmental deficiencies were observed during weekly site inspection. Key observations during the site inspections and during the reporting period are summarized in Table 10.2.
Table 10.2 Site Observations
|
Date |
Environmental Observations |
Follow-up Status |
|
3 October 2024 |
No major
environmental deficiency
was observed. |
N/A |
|
8 October 2024 |
No major environmental deficiency was observed. |
N/A |
|
15 October 2024 |
No major
environmental deficiency
was observed. |
N/A |
|
22 October 2024 |
No major
environmental deficiency
was observed. |
N/A |
|
28 October 2024 |
No major
environmental deficiency
was observed. |
N/A |
10.4. According to the EIA Study Report, Environmental Permit, contract documents and EM&A Manual, the mitigation measures detailed in the documents should be implemented as much as practical during the reporting period. An updated Implementation Status of Environmental Mitigation Measures (EMIS) is provided in Appendix C. Site inspection proforma of the reporting period is provided in Appendix H.
11.1. Works to be undertaken in the next reporting month are:
|
All Area -
Security Fence
footing construction work -
Footpath Construction -
Landscape Construction -
Irrigation System
Construction -
Water Pressure Test for FS and PL system -
Landscape planting work -
Traffic signage
work -
E&M Works
and Mechanical Installation |
|
PWST -
Water Test in Tank A -
Waterproofing work
at Roof Slab
on Tank A -
Installation of building services, electrical switchboards and cables -
Installation of mechanical equipment, steel pipe, Pressure Test |
|
Administration Building -
External wall
aluminum features installation -
Finishing works
for dog house -
Minor Installation of building services, electrical switchboards &
cables, Pressure Test,
T&C |
|
Chemical building -
Defect rectification -
Repairing the defects inside
the dangerous store |
|
Combined Shaft
& Pump House -
Internal finishing, defect rectification -
Construction of hose reel
cabinet -
T&C |
|
ActiDAFF -
Installation of access opening covers for filtered water tank -
Carrying out finishing works
for staircase no. 3. -
Minor Installation of mechanical equipment, piping system -
Minor Installation of building services, electrical switchboards and cables, Installation of FRP Enclosure System |
|
Product Water
Storage Tank Building -
Minor Installation of building services, cable laying and termination, PV Panel
Installation, Testing & Commissioning |
|
OSCG Building -
Protective Coating for DG Rooms -
Installation of Railing on Brine Maker
Tank -
Minor Installation of building services, cables and pipe
works, T&C -
Tank surface
cleaning, T&C |
|
Reverse Osmosis Building -
Installation
of Signage, AP doors, sanitary
fitting, sanitary ware in toilet, tiling
work and water meter cabinets -
Minor Installation of building services, minor cable laying
and termination, Testing & Commissioning, PV Panel Installation |
|
Post Treatment Building -
Installation of Cat Ladders
in Water Tanks -
Placing Soil
Mix at Roof -
Curb Construction for Rescue Opening at Water Tanks -
Installation of building services, piping system, mechanical equipment and piping system, Pressure Test |
|
Inspection gallery -
Construction of roof tiling
works -
Installation of steel balustrade at roof -
Installation of movement joints -
Construction of block works -
Minor Installation of building service, T&C |
|
RO and
Electrical Building -
Installation of Glass House -
Minor Installation of building services, electrical switchboards and cables -
Minor Installation of mechanical pipework and raised Floor, -
PV Panel
Installation, T&C Chiller plant & Main Electrical Building -
Minor Installation of building services, electrical switchboards and cables, Pressure Test, T&C Others -
Construction works
of extended access
road |
11.2. The major environmental impacts brought by the above construction works will include:
- Construction dust and noise generation from excavation and construction works;
- Waste generation from construction activities.
11.3. The key environmental mitigation measures for the Project in the coming reporting period associated with the above construction works will include:
- Dust suppression by regular wetting and water spraying for construction works;
- Reduction of noise from equipment and machinery on-site by regular checking of on-site plant/vehicle to ensure proper functioning;
- Sorting and storage of general refuse and construction waste;
- Deployment of silt curtain at the inshore water outflow; and
-
Deployment protective fencing
for trees
12.1. This is the 56th Monthly EM&A Report for the Project which summarizes the key findings of the EM&A programme during the reporting period from 1 October to 31 October 2024, in accordance with the EM&A Manual and the requirement under FEP-01/503/2015/B.
12.2. No noise monitoring was conducted in the reporting period due to the construction activities not being undertaken within a radius of 300m from the monitoring locations.
12.3. The construction phase marine water quality programme was ceased from 1 September 2023 due to the completion of marine-related construction works.
12.4. The operation phase of TKODP commenced on 1 July 2024. Details of the operation phase marine water quality monitoring, continuous monitoring of effluent quality, coral monitoring, fishery monitoring and operation landfill gas monitoring will be presented in the Operation Monthly EM&A Report.
12.5. In this reporting period, 63 times of landfill gas monitoring were periodically conducted at TKO Area 137 (Ch1+120 - Ch1+800) until 31 October 2024. No exceedances of action level and limit level was observed.
12.6. Weekly environmental site inspections were conducted during the reporting period. Observations and reminders were reported during the site inspections. All items are rectified within the reporting period. The environmental performance of the project was therefore considered satisfactory.
12.7. According to the environmental site inspections performed in the reporting month, the Contractor is reminded to pay attention on chemical storage, site hygiene and dust suppression mitigation measures.
12.8. No environmental complaint, notification of summons and prosecution was received in the reporting period.
12.9. The ET will keep track on the construction works to confirm compliance of environmental requirements and the proper implementation of all necessary mitigation measures.
Appendix A
Master Programme





Appendix B
Overview of Desalination Plant in Tseung
Kwan O


Appendix C
Summary of
Implementation Status of Environmental Mitigation
|
EIA Reference |
Recommended Environmental Protection Measures/ Mitigation Measures |
Objectives of the recommended measures & main concerns to address |
Implementation Agent |
Implementation Stage |
Implementation status |
Relevant Legislation & Guidelines |
||
|
D |
C |
O |
||||||
|
Air
Quality |
|
|||||||
|
S4.8.1 |
Impervious
dust screen or sheeting will be provided to
enclose scaffolding from the ground
floor level of building for construction of superstructure of the new buildings. |
Land site/ During Construction |
Contractor(s) |
|
ü |
|
Implemented |
Air
Pollution Control (Construction Dust) |
|
S4.8.1 |
Impervious sheet will be provided for skip hoist
for material transport. |
Land
site/ During Construction, particularly dry season |
Contractor(s) |
|
ü |
|
NA |
- |
|
S4.8.1 |
The area where dusty work takes place should be sprayed
with water or a dust suppression chemical immediately prior to, during and immediately after dusty activities
as far as practicable. |
Land site/
During Construction |
Contractor(s) |
|
ü |
|
Implemented
after observation |
- |
|
S4.8.1 |
All dusty materials should be sprayed with water or a dust suppression chemical immediately prior
to any loading, unloading or
transfer operation. |
Land site/ During Construction |
Contractor(s) |
|
ü |
|
Implemented |
- |
|
S4.8.1 |
Dropping heights for excavated materials should be controlled
to a practical height to minimize the
fugitive dust arising from unloading. |
Land site/ During Construction |
Contractor(s) |
|
ü |
|
Implemented |
- |
|
S4.8.1 |
During transportation by truck, materials should not be loaded to a
level higher than the side and tail boards and should be dampened or covered before transport. |
Land site/ During Construction |
Contractor(s) |
|
ü |
|
Implemented |
- |
|
S4.8.1 |
Wheel washing
device should be provided at the exits
of the work sites. Immediately before leaving a
construction site, every vehicle shall
be washed to remove any dusty material from its body and wheels as far as practicable. |
Land site/ During Construction |
Contractor(s) |
|
ü |
|
Implemented |
- |
|
S4.8.1 |
Road sections
between vehicle-wash areas and vehicular
entrance will be paved. |
Land site/ During Construction |
Contractor(s) |
|
ü |
|
Implemented |
- |
|
S4.8.1 |
Hoarding of not less than 2.4m high from ground level
will be provided along the length of the Project
Site boundary. |
Land site/
During construction |
Contractor(s) |
ü |
ü |
|
N/A |
- |
|
S4.8.1 |
Haul roads will be kept clear
of dusty materials and will be sprayed with water so as to maintain the entire
road surface wet at all times. |
Land site/ During construction |
Contractor(s) |
|
ü |
|
Implemented |
- |
|
EIA Reference |
Recommended Environmental Protection Measures/ Mitigation Measures |
Objectives of the recommended measures & main concerns to address |
Implementation Agent |
Implementation Stage |
Implementation status |
Relevant Legislation & Guidelines |
||
|
D |
C |
O |
||||||
|
S4.8.1 |
Temporary stockpiles of dusty materials will be either
covered entirely by impervious sheets or sprayed with water to maintain the entire surface wet all the time. |
Land site/ During construction |
Contractor(s) |
|
ü |
|
Implemented |
- |
|
S4.8.1 |
Stockpiles of more than 20 bags of cement, dry pulverised fuel ash and
dusty construction materials will be covered entirely by impervious sheeting sheltered on top and
3-sides. |
Land site/ During construction |
Contractor(s) |
|
ü |
|
Implemented |
- |
|
S4.8.1 |
All
exposed areas will be kept wet always
to minimise dust emission. |
Land site/ During construction |
Contractor(s) |
|
ü |
|
Implemented |
- |
|
S4.8.1 |
Ultra-low-sulphur diesel (ULSD)
will be used for all construction plant on-site, as defined as diesel fuel
containing not more than 0.005% sulphur by weight) as stipulated in Environment, Transport and Works Bureau Technical
Circular (ETWB-TC(W)) No 19/2005
on Environmental Management on Construction Sites. |
Land
site/ During construction/ During
Operation |
Contractor(s) |
|
ü |
ü |
Implemented |
Environment, Transport and Works Bureau Technical Circular (ETWB- TC(W)) No 19/2005 on Environmental Management on Construction Sites |
|
S4.8.1 |
The
engine of the construction equipment during idling will be
switched off. |
Land site/ During construction |
Contractor(s) |
|
ü |
|
Implemented |
- |
|
S4.8.1 |
Concrete batching plant
will be required on site. control measures recommended
in the Guidance Note on a Best Practicable Means for Cement Works (Concrete
Batching Plant) (BPM
3/2 (93)) will be implemented. The control measures
recommended in the Guidance Note on
a Best Practicable Means for Cement Works (Concrete
Batching Plant) (BPM 3/2 (93)) will be implemented. |
Land site/ During construction |
Contractor(s) |
|
ü |
|
N/A |
- |
|
S4.8.1 |
Regular maintenance of construction equipment deployed on-site
will be conducted to prevent black smoke emission. |
Land site/ During construction |
Contractor(s) |
|
ü |
|
Implemented |
- |
|
S4.10 |
To ensure proper implementation of the recommended dust mitigation measures and good
construction site practices during the construction phase, environmental site audits on weekly basis
is recommended throughout the construction period. |
Land site/ During construction |
Contractor(s)/ Environmental Team (ET) &
Independent Environmental Checker
(IEC) |
|
ü |
|
Implemented |
- |
Note: D - Design stage C - Construction O - Operation
|
EIA Reference |
Recommended Environmental Protection Measures/ Mitigation Measures |
Objectives of the recommended measures & main concerns to address |
Implementation Agent |
Implementation Stage |
Implementation status |
Relevant Legislation & Guidelines |
||
|
D |
C |
O |
||||||
|
Noise |
||||||||
|
S5.7 |
Only well-maintained plant will
be operated on-site
and plant will
be serviced regularly during the construction phase. |
All
area/ During construction |
Contractor(s) |
|
ü |
|
Implemented |
A Practical Guide
for the Reduction of Noise from Construction Works |
|
S5.7 |
Silencers or mufflers on
construction equipment will be
utilised and
will be properly maintained during the construction phase. |
Noise control/ During construction |
Contractor(s) |
|
ü |
|
N/A |
A Practical Guide
for the Reduction of Noise from Construction Works |
|
S5.7 |
Mobile plant,
if
any, will be sited as far away from NSRs as possible. |
Noise control/ During construction |
Contractor(s) |
|
ü |
|
N/A |
A
Practical Guide for the Reduction of Noise from Construction Works |
|
S5.7 |
Machines and plant (such as trucks) that may be in intermittent use will be shut down between work
periods or will
be throttled down to
a minimum. |
Noise control/ During construction |
Contractor(s) |
|
ü |
|
Implemented |
A Practical Guide
for the Reduction of Noise from Construction Works |
|
S5.7 |
Plants known to emit noise strongly in one direction will, wherever possible, be orientated so that the noise is directed away from the nearby NSRs. |
Noise control/ During construction |
Contractor(s) |
|
ü |
|
N/A |
A Practical Guide
for the Reduction of Noise from Construction Works |
|
S5.7 |
Material
stockpiles and other structures will be effectively utilised, wherever
practicable, in screening noise from on-site construction activities. |
Noise control/ During construction |
Contractor(s) |
|
ü |
|
N/A |
A Practical Guide for the Reduction of Noise from Construction Works |
|
S5.7 |
Use of Quite Powered Mechanical Equipment (QPME). |
Noise control/ During construction |
Contractor(s) |
|
ü |
|
Implemented |
A Practical Guide for the Reduction of Noise from Construction Works |
|
S5.7 |
Movable noise barriers of 3m in height with
skid footing should
be used and located within a
few metres of stationary plant and mobile
plant such that
the line of sight to the NSR is blocked
by the barriers. The length of the barrier
should be at least five times greater than its height.
The noise barrier
material should have a superficial surface density of at least 7 kg m-2 and have
no o or gappeningss. |
Noise control/ During construction |
Contractor(s) |
|
ü |
|
N/A |
A Practical Guide
for the Reduction of Noise from Construction Works |
|
S5.7 |
The noise
insulating sheet should
be deployed such
that there would be no opening or gaps on the
joints. |
Noise control/ During construction |
Contractor(s) |
|
ü |
|
N/A |
A
Practical Guide for the Reduction of Noise from Construction Works |
|
S5.7 |
Construction activities (e.g. excavation/shoring,
reinstatement (asphalt), and pipe
jacking) will be planned and carried out in
sequence, such that items of PME proposed for these activities will not be
operated simultaneously. |
Noise control/ During construction |
Contractor(s) |
ü |
ü |
|
Implemented |
A Practical Guide
for the Reduction of Noise from Construction Works |
|
S5.7 |
PMEs will not be used at the works
areas near educational institutions with residual impact (ie the ¡§influence area¡¨ within a |
Noise control
/ During construction |
Contractor(s) |
|
ü |
|
N/A |
A
Practical Guide for the Reduction of Noise from |
|
EIA Reference |
Recommended Environmental Protection Measures/ Mitigation Measures |
Objectives of the recommended measures & main concerns to address |
Implementation Agent |
Implementation Stage |
Implementation status |
Relevant Legislation & Guidelines |
||
|
D |
C |
O |
||||||
|
|
radius of 40m) during school hours in order to reduce impact to the educational institutions. |
|
|
|
|
|
|
Construction Works |
|
S5.7 |
Noise enclosures or acoustic sheds would be used to cover stationary PME such as generators. Portable/Movable noise enclosure made of material with superficial surface density of at least
7 kg m-2 may be used for screening the noise from operation of the saw/groover, concrete. |
Noise
control/ Pre- construction/ During
construction |
Contractor(s) |
ü |
ü |
|
N/A |
- |
|
S5.9 |
Sawcutting pavement, breaking up of pavement, excavation /shoring, pipe laying, backfilling, reinstatement (concrete) and pipe
jacking shall be scheduled outside the examination period. |
Noise control/ Pre- construction/ During
construction |
Contractor(s) |
ü |
ü |
|
N/A |
- |
|
S5.9 |
In
view the duration of noise exceedance at Creative Secondary School,
PLK Laws Foundation College, TKO Kei Tak Primary School
and School of Continuing and Professional Studies-CUHK is limited to 8 weeks, the construction work in the
influence areas near the four
schools shall be scheduled during long school holidays (eg summer holiday, Easter holiday or
Christmas holiday, etc)
as far as practicable. Scheduling the construction work for the four schools. |
Noise control/ Pre- construction/ During construction |
Contractor(s) |
ü |
ü |
|
N/A |
- |
|
S5.10 |
A noise
monitoring programme shall be implemented for the construction phase. |
Designated monitoring stations
as defined in EM&A Manual/During construction phase |
Environmental Team |
|
ü |
|
N/A |
- |
|
S5.10 |
The
effectiveness of on-site
control measures could
also be evaluated through the regular site
audits. |
All
facilities/ During construction |
Contractor(s)/
ET & Independent Environmental Checker (IEC) |
|
ü |
|
Implemented |
- |
Note: D - Design stage C - Construction
O -
Operation
|
EIA Reference |
Recommended Environmental Protection Measures/ Mitigation Measures |
Objectives of the recommended measures & main concerns to address |
Implementation Agent |
Implementation Stage |
Implementation status |
Relevant Legislation & Guidelines |
||
|
D |
C |
O |
||||||
|
Water Quality |
||||||||
|
S6.9 |
Dredged marine sediment will be disposed of in a gazetted marine disposal area in accordance with marine
dumping permit conditions of the
Dumping at Sea Ordinance (DASO). |
Marine Dredging/ During construction |
Contractor(s) |
|
ü |
|
Implemented |
Dumping at Sea Ordinance (DASO) |
|
S6.9 |
Disposal vessels will be fitted with
tight bottom seals in order to prevent
leakage of material during transport. |
Marine Dredging/ During construction |
Contractor(s) |
|
ü |
|
Implemented |
- |
|
S6.9 |
Barges will be filled to a level, which ensures that material does not spill over during transport to the
disposal site and that adequate freeboard
is maintained to ensure that the
decks are not washed by wave
action. |
Marine Dredging/ During construction |
Contractor(s) |
|
ü |
|
Implemented |
- |
|
S6.9 |
After dredging, any excess materials will be cleaned from
decks and exposed fittings before
the vessel is moved from the dredging area. |
Marine Dredging/ During construction |
Contractor(s) |
|
ü |
|
Implemented |
- |
|
S6.9 |
All vessels
should be well maintained and inspected before
use to limit any potential discharges to the
marine environment. |
Marine Dredging/ During construction |
Contractor(s) |
|
ü |
|
Implemented |
- |
|
S6.9 |
All
vessels must have
a clean ballast
system. |
Marine Dredging/ During construction |
Contractor(s) |
|
ü |
|
Implemented |
- |
|
S6.9 |
No discharge of sewage/grey wastewater should be allowed. Wastewater from potentially contaminated
area on working vessels should be
minimized and collected. These
kinds of wastewater should be
brought back to port and discharged at appropriate
collection and treatment system. |
Marine Dredging/ During construction |
Contractor(s) |
|
ü |
|
Implemented |
- |
|
S6.9 |
No
soil waste is allowed to be disposed overboard. |
Marine Dredging/ During construction |
Contractor(s) |
|
ü |
|
N/A |
- |
|
S6.9 |
Silt removal facilities such as silt traps or sedimentation facilities will be provided to remove silt
particles from runoff to meet the requirements
of the TM standard under the WPCO. The design of silt removal
facilities will be based on the guidelines provided in ProPECC PN 1/94. All drainage facilities and erosion and sediment control structures will be inspected on
a regular basis and maintained to
confirm proper and efficient operation at all times and particularly during
rainstorms. Deposited silt and grit
will be removed
regularly. |
Land site & drainage/ During construction |
Contractor(s) |
|
ü |
|
Implemented |
ProPECC PN 1/94
TM Standard
under the WPCO |
|
S6.9 |
Earthworks to form the
final surfaces will be followed up with surface
protection and drainage works
to prevent erosion caused by rainstorms. |
Land site & drainage/ During construction |
Contractor(s) |
|
ü |
|
Implemented |
- |
|
EIA Reference |
Recommended Environmental Protection Measures/ Mitigation Measures |
Objectives of the recommended measures & main concerns to address |
Implementation Agent |
Implementation Stage |
Implementation status |
Relevant Legislation & Guidelines |
||
|
D |
C |
O |
||||||
|
S6.9 |
Appropriate surface drainage will be designed and provided where necessary. |
Land site &
drainage/ During construction |
Contractor(s) |
|
ü |
|
Implemented |
- |
|
S6.9 |
The precautions to
be taken at any time of year when rainstorms are likely together
with the actions to be taken when a rainstorm is imminent or forecasted and actions to be taken during or after rainstorms are summarized in Appendix A2 of ProPECC PN
1/94. |
Land site &
drainage/ During construction |
Contractor(s) |
ü |
ü |
|
Implemented |
ProPECC PN 1/94 |
|
S6.9 |
Oil interceptors will be provided in the drainage system
where necessary and
regularly emptied to
prevent the release of oil and grease
into the storm water drainage system after accidental spillages. |
Land site &
drainage/ During construction |
Contractor(s) |
|
ü |
|
N/A |
- |
|
S6.9 |
Temporary and permanent drainage pipes and culverts provided to facilitate runoff
discharge, if any, will be adequately designed for the controlled release of storm flows. |
Land site &
drainage/ During construction |
Contractor(s) |
|
ü |
|
Implemented |
- |
|
S6.9 |
The temporary
diverted drainage, if any, will be
reinstated to the original condition when the construction
work has finished or when the
temporary diversion is no longer required. |
Land site &
drainage/ During construction |
Contractor(s) |
|
ü |
|
N/A |
- |
|
S6.9 |
Appropriate numbers of portable toilets shall be provided by a licensed contractor to serve the construction workers
over the construction site to prevent
direct disposal of sewage into
the water environment. |
Land site &
drainage/ During construction |
Contractor(s) |
|
ü |
|
Implemented |
- |
|
S6.9 and S6.12 |
The sterilization water should be
dechlorinated with total residual chlorine (TRC) level below 1 mg/L
before discharge to public sewer.
In situ testing of TRC should also be conducted for the discharge of chlorinated water
for pipeline disinfection to ensure
sufficient dechlorination before discharge
to public sewer. |
Sterilization
of water mains prior to
commissioning |
Contractor(s) |
|
ü |
ü |
N/A |
Technical Memorandum for Effluents Discharged into
Drainage and Sewerage Systems Inland and Coastal Waters |
|
S6.9 |
The cleaning and flushing water should also be treated and desilted to the relevant
discharge requirement stipulated in TM-DSS before discharging. |
Sterilization of water mains prior to
commissioning |
Contractor(s) |
|
ü |
ü |
Implemented |
|
|
S6.9 |
Site drainage should be well maintained, and good
construction practices should be observed to ensure
that oil, fuels, solvents, and other
chemicals are managed, stored and handled
properly and do not
enter the nearby water streams. |
Land site &
drainage/ During construction/ During operation |
Contractor(s) |
|
ü |
ü |
Implemented |
- |
|
S6.12 |
Regular site
inspections will be carried out in order to confirm that regulatory requirements are being
met and that contractors are implementing the standard site
practice and mitigation measures as
proposed to reduce potential impacts to water quality. |
During construction |
Contractor(s)/ ET & IEC |
|
ü |
|
Implemented |
- |
Note: D - Design stage C
- Construction O - Operation
|
EIA Reference |
Recommended Environmental Protection Measures/ Mitigation Measures |
Objectives of the recommended measures & main concerns to address |
Implementation Agent |
Implementation Stage |
Implementation Status |
Relevant Legislation &
Guidelines |
||
|
D |
C |
O |
||||||
|
Waste Management |
||||||||
|
S8.5 |
Nomination of approved personnel to be responsible for standard site
practices, arrangements for collection and effective
disposal to an appropriate facility of all wastes generated at the site. |
Contract mobilization/ During construction |
Contractor(s) |
|
ü |
|
Implemented |
- |
|
S8.5 |
Training of site
personnel in proper waste management and chemical
handling procedures. Training will be provided to workers on the concepts of site cleanliness and appropriate waste management procedures, including
waste reduction, reuse, and recycling
at the beginning of the construction works. |
Contract mobilization/ During construction |
Contractor(s) |
|
ü |
|
Implemented |
- |
|
S8.5 |
Provision of
sufficient waste disposal points and regular
collection for disposal. |
All area/ During construction/ During operation |
Contractor(s) |
|
ü |
ü |
Implemented |
DEVB TC(W)
No. 8/2010, Enhanced Specification for Site Cleanliness and Tidiness. |
|
S8.5 |
Appropriate measures to reduce windblown litter and dust transportation of waste by either
covering trucks or by transporting
wastes in enclosed containers. |
All area/ During construction |
Contractor(s) |
|
ü |
|
Implemented |
DEVB TC(W)
No. 8/2010, Enhanced Specification for Site Cleanliness and Tidiness. |
|
S8.5 |
A waste management plan (WMP) as stated in the ¡§ETWB TC(W) No. 19/2005, Environmental Management on Construction Sites¡¨
for the amount of waste generated, recycled and disposed of (including the disposal sites)
will be established and implemented during the construction phase as part of
the Environmental Management Plan
(EMP). The Contractor will be required to prepare the EMP and submits it to the Architect/ Engineer under the Contract for approval prior to
implementation. |
All area/ During construction |
Contractor(s) |
|
ü |
|
Implemented |
ETWB TC(W)
No. 19/2005, Environmental Management on Construction Sites |
|
S8.5 |
Separation of
chemical wastes for special handling and appropriate treatment at the Chemical Waste Treatment Centre
at Tsing Yi. |
All area/ During construction |
Contractor(s) |
|
ü |
|
Implemented |
Chapters 2 & 3 Code of Practice
on the Packaging, Labelling & Storage of Chemical Wastes published under the Waste Disposal Ordinance (Cap 354), Section 35 |
|
S8.5 |
Regular cleaning and maintenance programme for drainage systems, sumps and oil interceptors. |
Land site/ During construction |
Contractor(s) |
|
ü |
|
Implemented |
Waste Disposal Ordinance (Cap 354) |
|
EIA Reference |
Recommended Environmental Protection Measures/ Mitigation Measures |
Objectives of the recommended measures & main concerns to address |
Implementation Agent |
Implementation Stage |
Implementation Status |
Relevant Legislation &
Guidelines |
||
|
D |
C |
O |
||||||
|
S8.5 |
A recording system
for the amount
of wastes generated/ recycled and disposal sites. The trip-
ticket system will
be included as one of the contractual requirements and
implemented by the contractor(s). |
Land site/ During construction |
Contractor(s) |
|
ü |
|
Implemented |
DEVB TC(W)
No. 6/2010, Trip Ticket
System for Disposal of Construction &
Demolition Materials |
|
S8.5 |
Segregation and storage of different types of waste in
different containers, skips or
stockpiles to enhance reuse or recycling of
material and their proper disposal. |
Land
site/ During construction/ During operation |
Contractor(s) |
|
ü |
|
Implemented |
WBTC 32/92,
The Use of Tropical Hard Wood on Construction Site |
|
S8.5 |
Encourage collection of aluminium
cans and wastepaper by individual
collectors during construction with separate labelled bins provided to segregate these
wastes from other
general refuse by the workforce. |
Land site/ During construction |
Contractor(s) |
|
ü |
|
Implemented |
ETWB TCW No. 33/2002, Management of Construction and Demolition Material Including Rock |
|
S8.5 |
Any
unused chemicals and those with remaining functional capacity will be recycled as far as possible. |
Land site/ During construction |
Contractor(s) |
|
ü |
|
N/A |
- |
|
S8.5 |
Use
of reusable non-timber formwork to reduce
the amount of C&D materials. |
All areas/ During construction |
Contractor(s) |
|
ü |
|
Implemented |
WBTC 32/92,
The Use of Tropical
Hard Wood on Construction Site |
|
S8.5 |
Prior
to disposal of construction waste, wood, steel, and other metals
will be separated to the extent
practical, for re-use
and/or recycling to reduce
the quantity of waste to be disposed of to
landfill. |
All areas/ During construction |
Contractor(s) |
|
ü |
|
Implemented |
DEVB TC(W)
No. 6/2010, Trip Ticket System
for Disposal of Construction & Demolition Materials |
|
S8.5 |
Proper storage and site practices to reduce the potential for damage
or contamination of construction materials. |
All areas/ During construction |
Contractor(s) |
|
ü |
|
Implemented |
- |
|
S8.5 |
Plan and stock construction materials carefully to reduce
amount of waste generated
and avoid unnecessary generation of waste. |
All areas/ During construction |
Contractor(s) |
|
ü |
|
Implemented |
- |
|
S8.5 |
A Sediment Quality Report (SQR) for sampling and chemical testing
of the sediment will be prepared and submitted to the EPD for
approval. The approved detailed
sampling and chemical testing will
be carried out prior to the commencement of the dredging activities to confirm the sediment disposal method. |
Marine works/ During construction |
Contractor(s) |
|
ü |
|
N/A |
ETWB TC(W)
No. 34/2002 and Dumping
at Sea Ordinance (DASO) |
|
EIA Reference |
Recommended Environmental Protection Measures/ Mitigation Measures |
Objectives of the recommended measures & main concerns to address |
Implementation Agent |
Implementation Stage |
Implementation Status |
Relevant Legislation &
Guidelines |
||
|
D |
C |
O |
||||||
|
S8.5 |
The management of dredged/ excavated sediment management requirement from ETWB TC(W)
No. 34/2002 will be incorporated in the Specification of the Contract Documents. |
Marine works/ During construction |
WSD/ Contractor(s) |
|
ü |
|
Implemented |
ETWB TC(W)
No. 34/2002 and Dumping at Sea Ordinance (DASO) |
|
S8.5 |
The contractor will open a billing account with EPD in accordance with the Waste Disposal (Charges for
Disposal of Construction Waste)
Regulation for the payment of disposal charges. |
Contract mobilization/ During construction |
Contractor(s) |
|
ü |
|
Implemented |
Cap 354N Waste Disposal (Charges for Disposal of Construction Waste) Regulation |
|
S8.5 |
A trip-ticket system will be established in accordance
with DEVB TC(W) No. 6/2010 to
monitor the reuse of surplus excavated materials
off-site and disposal of construction waste and general refuse at transfer facilities/
landfills, and to control fly-tipping. |
Contract mobilization/ During construction |
Contractor(s) |
|
ü |
|
Implemented |
DEVB TC(W)
No. 6/2010, Trip Ticket System
for Disposal of Construction & Demolition Materials |
|
S8.5 |
The project
proponent will also conduct regular inspection of the waste
management measures implemented on site as described in the
Waste Management Plan. |
All area/ During construction |
Contractor(s)/ Environmental Team (ET) & Independent Environmental Checker (IEC) |
|
ü |
|
Implemented |
ETWB TC(W)
No. 19/2005, Environmental Management on Construction Sites |
|
S8.5 |
A recording
system (similar to summary table
as shown in Annex 5 and Annex
6 of Appendix G of ETWB TC(W)
No. 19/2005) for the amount of waste generated, recycled and
disposed of (including the disposal
sites) will be established during the construction phase. |
All area/ During construction |
Contractor(s) |
|
ü |
|
Implemented |
Annex 5 and Annex 6 of
Appendix G of ETWB TC(W) No. 19/2005 |
|
S8.5 |
Inert C&D materials (public
fill) will be reused within the Project as
far as practicable. |
All area/ During construction |
Contractor(s) |
|
ü |
|
Implemented |
- |
|
S8.5 |
Public fill and
construction waste shall be segregated and stored in different containers or skips to
facilitate reuse or recycling of materials
and their proper disposal. |
All area/ During construction |
Contractor(s) |
|
ü |
|
Implemented |
- |
|
S8.5 |
Specific areas of the work site will be designated for such segregation and storage if immediate use
is not practicable. |
All area/ During construction |
Contractor(s) |
|
ü |
|
Implemented |
- |
|
S8.5 |
To reduce the potential dust and water quality impacts of
site formation works, C&D
materials will be wetted as quickly as possible
to the extent practice after filling. |
All area/ During construction |
Contractor(s) |
|
ü |
|
Implemented |
Air Pollution Control (Construction Dust) Regulation (Cap 311R); WPCO (Cap 358) |
|
EIA Reference |
Recommended Environmental Protection Measures/ Mitigation Measures |
Objectives of the recommended measures & main concerns to address |
Implementation Agent |
Implementation Stage |
Implementation Status |
Relevant Legislation &
Guidelines |
||
|
D |
C |
O |
||||||
|
S8.5 |
Open stockpiles
of excavated/ fill materials or construction
wastes on-site should be covered with tarpaulin or similar
fabric. |
Land site/ During Construction, particularly dry season |
Contractor(s) |
|
ü |
|
Implemented |
Air Pollution Control (Construction Dust) Regulation (Cap 311R) |
|
S8.5 |
Chemical waste
container shall be suitable for the substance
they are holding, resistant to corrosion, maintained in a good
condition, and securely
closed. |
All area/ During construction/ During
operation |
Contractor(s)/ WSD |
|
ü |
ü |
Implemented |
Waste Disposal (Chemical Waste) (General) Regulation; Code of
Practice on the Packaging, Handling and Storage of Chemical Wastes |
|
S8.5 |
Chemical waste container shall have a capacity of less than 450 L unless the
specifications have been approved by the EPD. |
All area/ During construction/ During operation |
Contractor(s)/ WSD |
|
ü |
ü |
Implemented |
|
|
S8.5 |
A
label in English and Chinese shall
be displayed on the chemical container in accordance with instructions prescribed in Schedule 2 of the Regulations. |
All area/ During construction/ During operation |
Contractor(s)/ WSD |
|
ü |
ü |
Implemented |
|
|
S8.5 |
Storage areas for chemical waste shall be enclosed on at least 3 sides. |
All area/ During construction/ During
operation |
Contractor(s)/ WSD |
|
ü |
ü |
Implemented |
|
|
S8.5 |
Storage areas for chemical waste shall have
an impermeable floor
and bunding, of capacity to accommodate 110% of the volume
of the
largest container or 20% by volume of the chemical waste stored in that
area, whichever is the greatest. |
All area/ During construction/ During
operation |
Contractor(s)/ WSD |
|
ü |
ü |
Implemented |
|
|
S8.5 |
Storage areas for chemical waste shall have
adequate ventilation. |
All area/ During construction/ During
operation |
Contractor(s)/ WSD |
|
ü |
ü |
Implemented |
|
|
S8.5 |
Storage areas for chemical waste shall be covered to
prevent rainfall entering (water collected within the bund must be tested and disposed of as chemical waste, if
necessary). |
All area/ During construction/ During
operation |
Contractor(s)/ WSD |
|
ü |
ü |
Implemented |
|
|
S8.5 |
Storage areas for chemical waste shall be arranged so that incompatible materials are appropriately
separated. |
All area/ During construction/ During operation |
Contractor(s)/ WSD |
|
ü |
ü |
Implemented |
|
|
S8.5 |
General refuse will be stored in enclosed bins
or compaction units
separately from construction and chemical wastes. |
All area/ During construction/ During
operation |
Contractor(s)/ WSD |
|
ü |
ü |
Implemented
after reminder |
|
|
S8.5 |
Adequate number of waste containers
will be provided to avoid over-spillage
of waste. |
All area/ During construction/ During
operation |
Contractor(s)/ WSD |
|
ü |
ü |
Implemented |
DEVB TC(W)
No. 8/2010 Enhanced Specification for Site Cleanliness and Tidiness. |
|
EIA Reference |
Recommended Environmental Protection Measures/ Mitigation Measures |
Objectives of the recommended measures & main concerns to address |
Implementation Agent |
Implementation Stage |
Implementation Status |
Relevant Legislation &
Guidelines |
||
|
D |
C |
O |
||||||
|
S8.5 |
A reputable waste
collector will be employed by the Contractor to remove general
refuse from the site, separately from construction and chemical wastes, on a daily
basis to minimize odour, pest and litter
impacts. |
All area/ During construction/ During
operation |
Contractor(s)/ WSD |
|
ü |
ü |
Implemented |
- |
|
S8.5 |
Recycling bins will be provided at strategic locations
within the Site to facilitate
recovery of recyclable materials (including
aluminum can, wastepaper, glass bottles and
plastic bottles) from the
Site. Materials recovered will be sold
for recycling. |
All area/ During construction/ During
operation |
Contractor(s)/ WSD |
|
ü |
ü |
Implemented |
- |
|
S8.5 |
To
avoid any odour and litter impact,
accurate number of portable toilets will be provided for workers on-site. |
All area/ During construction |
Contractor(s) |
|
ü |
|
Implemented |
- |
|
S8.5 |
The
burning of refuse
on construction sites
is prohibited by law. |
All area/ During construction |
Contractor(s) |
|
ü |
|
Implemented |
Air
Pollution Control Ordinance (Cap
311) |
|
S8.7 |
To facilitate monitoring and control over
the contractors¡¦ performance on waste management, a waste inspection and audit programme will
be implemented throughout the construction phase. |
All facilities/ During construction |
ET/ IEC |
|
ü |
|
Implemented |
- |
Note: D - Design stage C
- Construction O - Operation
|
EIA Reference |
Recommended Environmental Protection Measures/ Mitigation Measures |
Objectives of the recommended measures & main concerns to address |
Implementation Agent |
Implementation Stage |
Implementation Status |
Relevant Legislation &
Guidelines |
||
|
D |
C |
O |
||||||
|
Ecology |
||||||||
|
S9.7 |
For slope mitigation works within the Clear Water Bay Country
Park, to avoid
tree felling and damages to trees, the exact locations of the flexible barrier foundation plates,
soil nails and rock dowels
can be adjusted during
detailed design, and a setback distance from existing trees is recommended to be maintained as far as practical. A detailed specification describing the exact
locations of the flexible
barrier foundation plates, soil nails and rock dowels will be prepared to illustrate how the
setback distance from existing trees would be implemented for tree avoidance. |
Slope mitigation works area/ During detailed design/
During construction |
Contractor(s) |
ü |
ü |
|
Implemented |
- |
|
S9.7 |
Pruning of tree canopies along the alignment of the flexible barriers shall be limited to a minimum. |
Slope mitigation works area/ During construction |
Contractor(s) |
|
ü |
|
Implemented |
|
|
S9.7 |
The alignment of flexible barriers shall be optimized to preserve all species of conservation interest and minimize the impact to the existing vegetation as far as
practicable. All individuals of Marsdenia lachnostoma within the slope mitigation areas shall be retained in- situ, by positioning the alignment of flexible barrier
at a minimum 1.5m in a
radius away from these individuals. |
Slope mitigation works area/ During detailed design/
During construction |
Contractor(s) |
ü |
ü |
|
Implemented |
- |
|
S9.7 and 9.10 |
At
the detailed design stage prior to the commencement
of the slope mitigation works, a vegetation survey
shall be carried
out at the slope mitigation areas within the Clear Water Bay Country Park to assess the condition and
identify the location of each individual of Marsdenia lachnostoma and other flora species of conservation interest that
may be directly affected by the construction works. |
Slope mitigation works area/ During detailed design/
During construction |
Contractor(s) |
ü |
|
|
Implemented |
- |
|
S9.7 |
Temporary fencing will be installed to fence off the concerned species either in groups of individually within
the works area and in the close proximity to prevent from being damaged and disturbed during construction. A sign identifying the site shall
be attached to the fence and flagging
tape shall be attached to the individuals to visualize their locations. |
Slope mitigation works area/ During construction |
Contractor(s) |
|
ü |
|
Implemented |
- |
|
S9.7 and S9.10 |
A specification for fencing and demarcating individuals of Marsdenai lachnostoma (or
other flora species of conservation interest, if found) adjacent to the proposed alignment of the flexible barriers will be prepared to protect the species. |
Slope mitigation works area/ During construction |
Contractor(s) |
|
ü |
|
Implemented |
- |
|
S9.7 |
Induction training shall
also be provided to all
site personnel in order to brief them on this flora of conservation interest including the
locations and their importance. |
Slope mitigation works area/ During construction |
Contractor(s) |
|
ü |
|
Implemented |
- |
|
EIA Reference |
Recommended Environmental Protection Measures/ Mitigation Measures |
Objectives of the recommended measures & main concerns to address |
Implementation Agent |
Implementation Stage |
Implementation Status |
Relevant Legislation &
Guidelines |
||
|
D |
C |
O |
||||||
|
S9.7 |
The
resident site supervisory staff will closely
monitor the conditions of concerned individuals during construction of flexible barriers in the close
proximity. |
Slope mitigation works area/ During construction |
Contractor(s) |
|
ü |
|
Implemented |
- |
|
S9.7 |
Erect fences along the boundary of the works area before the commencement of works to prevent vehicle movements and encroachment of personnel onto adjacent areas. |
All area/
During construction |
Contractor(s) |
|
ü |
|
Implemented |
- |
|
S9.7 |
Regularly check the work
site boundaries to ensure that they are not
breached, and that damage
does not occur to surrounding areas. |
All area/
During construction |
Contractor(s)/ ET |
|
ü |
|
Implemented |
- |
|
S9.7 |
Avoid any damage and disturbance, particularly those
caused by filling and illegal
dumping, to the surrounding
habitats through proper management
of waste disposal. |
All area/
During construction |
Contractor(s) |
|
ü |
|
Implemented |
- |
|
S9.7 |
Reinstate temporarily affected areas,
particularly the habitats of plantation and
shrubland-grassland immediately after completion
of construction works, through
on-site tree/shrub planting. The tree/shrub species will be chosen
with reference to those in the surrounding area. |
All area/
During construction |
Contractor(s) |
|
ü |
|
To be implemented |
- |
|
S9.7 |
Affected habitats within the Clear Water
Bay Country Bay shall be reinstated by hydro-seeding and
planting of climbers and native shrub seedlings where practical upon completion of the slope
mitigation works. |
All area/
During construction |
Contractor(s) |
|
ü |
|
To be implemented |
- |
Note: D - Design stage
C - Construction O - Operation
|
EIA Reference |
Recommended Environmental Protection Measures/ Mitigation Measures |
Objectives of the recommended measures & main concerns to address |
Implementation Agent |
Implementation Stage |
Implementation Status |
Relevant Legislation &
Guidelines |
||
|
D |
C |
O |
||||||
|
Landscape & Visual |
||||||||
|
S11.10 &
11.11 |
The construction area and area allowed for temporary structures, such as the contractor¡¦s
office, will be minimized to a practical minimum. (MM1) |
All area/
Detailed design/ During construction/ During operation |
WSD/ Contractor(s) |
ü |
ü |
ü |
Implemented |
- |
|
S11.10 &
11.11 |
At the detailed design stage, the design team will seek to minimize
the landscape footprint of the Project and
above ground facilities, while satisfying all other requirements. (MM2) |
All area/ Detailed design/ During construction/ During operation |
WSD/ Contractor(s) |
ü |
ü |
ü |
Implemented |
- |
|
S11.10 &
11.11 |
Design principles will be adopted to take into account the surrounding
area, particularly Clear Water Bay Country
Park behind and the nearby
waterfront, with due consideration given
to: -
green
roofs where practical (i.e. without equipment on the roof); -
roadside planting; -
aesthetic
treatment of all structures; - vertical
greening; - screen
planting along application site;
and -
landscape enhancement with amenity planting where practical including planting along the edge (site boundary) fence with native
shrubs where feasible, to reduce their visual impact
and blend them into the surrounding landscape. (MM3) |
All area/ Detailed design/ During construction/ During operation |
WSD/ Contractor(s) |
ü |
ü |
ü |
Implemented |
- |
|
S11.10 & 11.11 |
All trees within
the Project Site
or the potential slope mitigation works area will be carefully protected during construction according to
DEVB TCW No. 10/2013 - Tree Preservation (MM4) |
All area/ Detailed design/ During construction/ During operation |
WSD/ Contractor(s) |
ü |
ü |
ü |
Implemented |
ETWB TCW No. 3/2006 -
Tree Preservation. |
|
S11.10 &
11.11 |
No tree within the
Country Park will be felled. Trees within the Site
unavoidably affected by the works will be
transplanted where necessary and
practical. For trees that need to
be felled, compensatory planting
will be provided to the
satisfaction of relevant Government departments. A compensatory tree planting proposal
including locations of tree compensation will be submitted to seek relevant government department¡¦s approval, in accordance with DEVB TC(W) No. 10/2013. (MM5) |
All area/ Detailed design/ During construction/ During operation |
WSD/ Contractor(s) |
ü |
ü |
ü |
Implemented |
DEVB TC(W)
No. 10/2013 |
|
S11.10 &
11.11 |
Any slope mitigation works necessary to address natural
terrain hazards, will be
minimized to minimize any potential environmental
impact to the Country Park e.g.
soil nailing and rock stabilization will aim to avoid existing trees e.g. should
any restoration of vegetation
be necessary, the
best planting matrix with native species will be established, with the aim of resembling the existing vegetation.
(MM6) |
All area/ Detailed design/ During construction/ During operation |
WSD/ Contractor(s) |
ü |
ü |
ü |
Implemented |
|
|
EIA Reference |
Recommended Environmental Protection Measures/ Mitigation Measures |
Objectives of the recommended measures & main concerns to address |
Implementation Agent |
Implementation Stage |
Implementation Status |
Relevant Legislation &
Guidelines |
||
|
D |
C |
O |
||||||
|
S11.10 &
11.11 |
Dredging works for the installation of intake structures and outfall diffusers should be minimized to avoid
or reduce any potential environmental impacts to as low as reasonably practicable (ALARP). The intake and outfall structures (e.g. intake openings and diffuser heads)
will be prefabricated and transferred to site for
installation. (MM7) |
All area/ Detailed design/ During construction/ During operation |
WSD/ Contractor(s) |
ü |
ü |
ü |
Implemented |
|
|
S11.10 &
11.11 |
All night-time lighting will be reduced
to a practical minimum both in terms of number of level and
will be hooded and directional. (MM8) units and lux level
and will be hooded and directional.
(MM8) |
All area/ Detailed design/ During construction/ During operation |
WSD/ Contractor(s) |
ü |
ü |
ü |
Implemented |
- |
Note: D - Design stage C
- Construction O - Operation
|
EIA Reference |
Recommended Environmental Protection Measures/ Mitigation Measures |
Objectives
of the recommended measures & main concerns
to address |
Implementation Agent |
Implementation Stage |
Implementation Status |
Relevant Legislation & Guidelines |
||
|
D |
C |
O |
||||||
|
Landfill Gas Hazard |
||||||||
|
S12.7 |
During all works, safety
procedures should be implemented to minimize the risks of fires and explosions, asphyxiation of workers and toxicity effects
resulting from contact
with contaminated soil and
groundwater. |
All
area/ Detailed design/ During
construction/operation |
Contractor(s) |
ü |
ü |
ü |
Implemented |
- |
|
S12.7 |
During trenching and excavation as well as creation of
confined spaces at near to or below
ground level, precautions should be clearly laid
down and rigidly
Gas detection equipment and appropriate breathing apparatus should be available and
used when entering confined spaces or trenches deeper than 1 meter. |
All
area/ Detailed design/ During
construction/operation |
Contractor(s) |
ü |
ü |
ü |
Implemented |
|
|
S12.7 |
The Contractor should make the workers are aware of
potential hazards of working in confined spaces
(any chamber, manhole
or culvert which
is large enough
to permit access
to personnel). Such work
in confined spaces is controlled by the Factories and Industrial Undertakings (Confined Spaces) Regulations of the Factories and Industrial Undertakings
Ordinance. Following the Safety Guide to Working in Confined Spaces ensures compliance with the above
regulations. |
All
area/ Detailed design/ During
construction/operation |
Contractor(s) |
ü |
ü |
ü |
Implemented |
|
|
S12.7 |
Safety officers,
specifically trained with
regard to landfill gas and leachate
related hazards and the appropriate actions to take in adverse circumstances, should
be present on the site
throughout the works, in particular, when works are undertaken below grade. |
All
area/ Detailed design/ During
construction/operation |
Contractor(s) |
ü |
ü |
ü |
Implemented |
|
|
S12.7 |
All personnel who work on site and all visitors to the site should be made aware of the possibility of ignition of gas in the
vicinity of the works, the possible
presence of contaminated water and the
need to avoid physical contact with it. |
All
area/ Detailed design/ During
construction/operation |
Contractor(s) |
ü |
ü |
ü |
Implemented |
|
|
S12.7 |
Monitoring for landfill gas should be undertaken in all excavations, manholes, chambers
(particularly during pipe jacking)
and any confined spaces through the use of an intrinsically safe portable instrument, appropriately
calibrated and capable of measuring the concentrations of methane. carbon dioxide and oxygen. |
All
area/ Detailed design/ During
construction/operation |
Contractor(s) |
ü |
ü |
ü |
Implemented |
|
|
S12.7 |
Monitoring frequency and areas to be monitored should be specified prior to commencement of
groundwork, either by the Safety Officer, or by an appropriately qualified person. All measurements should be recorded and documented. |
All
area/ Detailed design/ During
construction/operation |
Contractor(s) |
ü |
ü |
ü |
Implemented |
|
|
S12.7 |
Proceed drilling with adequate care
and precautions against the potential
hazards which may be encountered. |
All area/ Detailed design/ During construction/operation |
Contractor(s) |
ü |
ü |
ü |
Implemented |
|
|
EIA Reference |
Recommended Environmental Protection Measures/ Mitigation Measures |
Objectives
of the recommended measures & main concerns
to address |
Implementation Agent |
Implementation Stage |
Implementation Status |
Relevant Legislation & Guidelines |
||
|
D |
C |
O |
||||||
|
S12.7 |
Prior to the commencement of the site works, the drilling contractor should devise a 'method-of-
working' statement covering all normal and emergency procedures (including but not limited
to number of operatives, experience and special skills of operatives, normal method of operations, emergency procedures, supervisors responsibilities, storage
and use of safety equipment, safety procedures and signs, barriers and guarding). The site supervisor and all operatives must be familiar with this statement. |
All
area/ During construction/operation |
Contractor(s) |
ü |
ü |
ü |
Implemented |
|
|
S12.7 |
Where below ground service entries are necessary to the Incoming Switchgear Room, 132 kV
Substation and Chlorine Store (I) and (II), the entry
point should be sealed to prevent gas entry. In addition, any below grade cable trenches entering the Incoming Switchgear Room and 132 kV Substation can become the pathway for landfill gas
and hence grilled
metal covers should
be used. |
All
area/ Detailed design/ During
construction/operation |
Contractor(s) |
ü |
ü |
ü |
N/A |
|
|
S12.7 |
It is recommended regular landfill gas monitoring should
be carried out at the Incoming Switchgear Room,
132 kV Substation and Chlorine Store (I) and (II). The monitoring frequency will be monthly for the first year of operation. If the monitoring
results show no sign of landfill gas migration, reduce
the monitoring frequency to once every six months. |
All
area/ Detailed design/ During
construction/operation |
Contractor(s) |
ü |
ü |
ü |
N/A |
|
|
S12.7 |
The manholes and utility pits within the Project Site and along
the fresh water
mains. Each manhole/ utility pit should
be monitored with two measurements (at mid depth and
base). Each measurement should
be monitored for a minimum
of 10 minutes. A steady
reading and peak reading should be recorded at each manhole/ utility pit and for each measurement. The need for venting the manhole/ utility pit and further monitoring will be reviewed after the initial monitoring. |
All
area/ Detailed design/ During
construction/operation |
Contractor(s) |
ü |
ü |
ü |
Implemented |
|
|
S12.7 |
All construction, operation and maintenance personnel
working on-site as well as visitors should
be made aware
of the hazards of landfill gas and
its possible presence on-site. This should be achieved through a combination of posting warning signs in prominent places and also by access
to detailed information on landfill gas hazards and the designs and procedural means
by which these hazards are being
minimized on-site. |
All
area/ Detailed design/ During
construction/operation |
Contractor(s) |
ü |
ü |
ü |
Implemented |
|
Note: D - Design stage C
- Construction O - Operation
Appendix D
Event / Action
Plan
Table D1 Event and Action Plan for Construction Noise Monitoring
![]()
Table D2 Event and Action Plan for Water Quality Monitoring
![]()
Table D3 Event and Action Plan for Ecology during Construction Phase
![]()
Table D4 Event and Action Plan for Pre-Operation Phase Coral Monitoring
![]()
Appendix E
Landfill Gas Equipment Calibration Certification

Appendix F
Landfill Gas Monitoring Data



Appendix G
Waste Flow Table
Environmental
Management Plan for Design,
Build and Operate First Stage
of Tseung Kwan O Desalination Plant Appendix F - Monthly Summary Waste Flow Table
Name of Department: WSD Contract No.: 13/WSD/17
w
|
Month |
Actual Quantities of Inert C&D
Materials Generated Monthly |
Actual Quantities of C&D Wastes
Generated Monthly |
|||||||||
|
Total Quantity
Generated |
Hard Rock and Large Broken Concrete |
Reused in the Contract |
Reused in other Projects |
Disposed as Public Fill |
Imported Fill |
Metals |
Paper/ cardboard
packaging |
Plastics (see Note
3) |
Chemical Waste |
Others, e.g. general refuse |
|
|
(in '000kg) |
(in '000kg) |
(in '000kg) |
(in '000kg) |
(in '000kg) |
(in '000kg) |
(in '000 kg) |
(in '000kg) |
(in '000kg) |
(in '000kg) |
(in '000kg) |
|
|
Jan |
4978.345 |
0.000 |
0.000 |
4667.745 |
310.600 |
0.000 |
0.000 |
0.000 |
0.000 |
0.000 |
77.800 |
|
Feb |
22561.796 |
0.000 |
0.000 |
21883.006 |
678.790 |
0.000 |
0.000 |
0.000 |
0.000 |
0.000 |
53.480 |
|
Mar |
81.140 |
0.000 |
0.000 |
0.000 |
81.140 |
0.000 |
0.000 |
0.000 |
0.000 |
0.000 |
52.260 |
|
Apr |
57.130 |
0.000 |
0.000 |
0.000 |
57.130 |
0.000 |
0.000 |
0.000 |
0.000 |
0.000 |
47.390 |
|
May |
91.370 |
0.000 |
0.000 |
0.000 |
91.370 |
0.000 |
0.000 |
0.000 |
0.000 |
0.000 |
77.260 |
|
Jun |
61.590 |
0.000 |
0.000 |
0.000 |
61.590 |
0.000 |
0.000 |
0.000 |
0.002 |
0.000 |
59.320 |
|
Sub-total |
27831.371 |
0.000 |
0.000 |
26550.751 |
1280.620 |
0.000 |
0.000 |
0.000 |
0.002 |
0.000 |
367.510 |
|
Jul |
60378.440 |
0.000 |
0.000 |
0.000 |
60378.440 |
0.000 |
0.000 |
0.000 |
0.000 |
0.000 |
66.800 |
|
Aug |
163.330 |
0.000 |
0.000 |
0.000 |
163.330 |
0.000 |
0.000 |
0.000 |
0.000 |
2.460 |
42.260 |
|
Sep |
834.890 |
0.000 |
0.000 |
0.000 |
834.890 |
0.000 |
0.000 |
0.000 |
0.000 |
0.805 |
27.020 |
|
Oct |
78.140 |
0.000 |
0.000 |
0.000 |
78.140 |
0.000 |
0.000 |
0.000 |
0.000 |
0.000 |
71.810 |
|
Nov |
|
|
|
|
|
|
|
|
|
|
|
|
Dec |
|
|
|
|
|
|
|
|
|
|
|
|
Total |
89286.171 |
0.000 |
0.000 |
26550.751 |
62735.420 |
0.000 |
0.000 |
0.000 |
0.002 |
3.265 |
575.400 |
Notes: (1) The performance targets
are given in Section 1.69 of Specification B
(1) The waste flow table shall also include C&D
materials that are specified
in the Contract to be imported
for use at the Site.
(2) Plastics refer to
plastic bottles/containers, plastic
sheets/ foam from packaging
material
Appendix H
Site Inspection Proforma








































Appendix I
Complaint Log
Statistical Summary
of Environmental Complaints
|
Reporting
Period |
Environmental
Complaint Statistics |
||
|
Frequency |
Cumulative |
Complaint Nature |
|
|
1 - 31
Oct 2024 |
0 |
2 |
N/A |
Statistical Summary
of Environmental Summons
|
Reporting
Period |
Environmental
Summons Statistics |
||
|
Frequency |
Cumulative |
Details |
|
|
1 - 31 Oct 2024 |
0 |
0 |
N/A |
Statistical Summary
of Environmental Prosecution
|
Reporting
Period |
Environmental
Prosecution Statistics |
||
|
Frequency |
Cumulative |
Details |
|
|
1 - 31 Oct 2024 |
0 |
0 |
N/A |