Revision History
|
Rev. |
Description of Modification |
Date |
|
1. |
First Issue for Comments |
05/06/2024 |
|
2. |
Revised According to Comments |
12/06/2024 |
|
3. |
Revised According to Comments |
12/06/2024 |
CONTENTS
9. Summary of Exceedance, Complaints, Notification of Summons and Prosecutions.............. 40
Appendix A Master Programme
Appendix B Overview of Desalination Plant in Tseung Kwan O
Appendix C Summary of Implementation Status of Environmental Mitigation
Appendix D Impact Monitoring Schedule
Appendix E Event/Action Plan
Appendix F Water Quality Monitoring Equipment and Landfill Gas Equipment Calibration Certificate
Appendix G Water Quality Monitoring Data and Landfill Gas Monitoring Data
Appendix H Waste Flow Table
Appendix I Ecology (Coral & Fishery) Survey Report
Appendix J Site Inspection Proforma
Appendix K Complaint Log
Appendix L Exceedance
Report
Executive Summary
Introduction
A1. The Project, Design, Build and Operate First Stage of Tseung Kwan O Desalination Plant (TKODP), is a Designated Project under the Environmental Impact Assessment Ordinance (Cap. 499) (EIAO) and is currently governed by a Further Environmental Permit (EP No. FEP - 01/503/2015/B) for the construction and operation of the Contract.
A2. In accordance with the Environmental Monitoring and Audit (EM&A) Manual for the Contract, EM&A works for marine water quality, noise, waste management and ecology should be carried out by Environmental Team (ET), Acuity Sustainability Consulting Limited (ASCL), during the construction phase of the Contract.
A3. This is the 51st Monthly EM&A Report, prepared by ASCL, for the Contract summarizing the monitoring results and audit findings of the EM&A programme at and around Tseung Kwan O Area 137 (TKO 137) during the reporting period from 1 May to 31 May 2024.
A4. The EM&A programme for this contract has covered environmental monitoring on construction noise level at selected NSRs and Contractor¡¦s environmental performance auditing in the aspects of construction dust, construction noise, water quality, waste management, Landscape and Visual and Ecology.
Summary of Main Works Undertaken & Key Mitigation Measures Implemented
A5. Key activities carried out in this reporting period for the Contract included the followings:
|
Administration Building - Installation of ceiling - Painting works - Installation of sanitary fitting - Installation of vinyl flooring - Installation of Aluminium Fins - Installation of Internal partition wall and ceiling - External wall finishing works - Installation of AP doors and cat ladders - Installation of wood decking - Minor Installation of building services, cable laying and termination, Photovoltaic Panel Installation, Testing & Commissioning |
|
Chemical building - External wall painting works - Defect rectification |
|
Main Electrical & Central Chiller Plant Building - Minor Installation of building services, electrical switchboard, cable laying, pressure test - Ladder and Cover installation at Roof |
|
ActiDAFF - Sealing gap and wall openings - Installation of signage - Minor Installation of mechanical equipment, building services, minor cable laying and termination, Installation of Fibre Reinforced Polymer Cover, Testing & Commissioning |
|
Product Water Storage Tank Building - Installation of signage - Installation of cladding works - Tiling work at Roof Slab on Tank A - Ladder and Cover installation at Roof - Roof Tiles installation - Minor Installation of building services, cable laying and termination, Testing & Commissioning |
|
OSCG Building - Core Opening at Cladding - Installation of cladding works - Installation of Railing on Brine Maker Tank - Installation of building services, mechanical equipment and cable laying and termination, testing and commissioning and pressure test |
|
Reverse Osmosis Building - Installation of AP doors - Installation of sanitary fitting - Sanitary Ware Installation in Toilet - Tiling Work in Toilet - Installation of Water Meter Cabinets - Installation of building services, electrical switchboard of cable laying and termination, Minor Installation of mechanical equipment and raised floor, testing and commissioning, Photovoltaic Panel Installation |
|
Post Treatment Building - DFMA Gap Seal Up - Minor Installation of building services, Minor Installation of mechanical equipment, Cable laying and termination, Pressure Test |
|
Inspection corridor - Interior painting works - Interior fitting out works |
|
Combined Shaft and Pump room - Installation of outfall grating and defect rectification . - Minor cable laying and termination, testing and commissioning Guard House - Guard house A defect rectification - Guard house B defect rectification - Minor Cable laying and Termination Slope
Work (Suspended due to landslides occurred during the rainstorm since
4 May 2024) - Rock Dowel Installation - Buttress Construction - Wire Mesh Laying - Drilling; Rock anchors installation, Rock break, Concreting Other - Watermain installation works at CLP 132 Kv Substation - Underground utility rectification work for Manhole and Draw pit - Underground utility Construction Work for Watermain water - Underground utility repair Work for Sewerage, Watermains work - Security Fence footing construction work - Light Pole installation work - Road Construction - Footpath Construction - Landscape Construction - Irrigation System installation - Landscape planting work - Traffic signage work - Workshop construction work, Tiling work, green roof and irrigation pipe - Workshop Building Services Installation, cable laying and termination - Tiling work and cladding installation for Elevated Walkway - Master meter defect rectification - Wave deflector Wall |
A6. The major environmental impacts brought by the above construction works include:
- Construction dust and noise generation from construction works, excavation works and slope works;
- Waste generation from the construction activities
A7. The key environmental mitigation measures implemented for the Contract in this reporting period associated with the above construction works include:
- Dust suppression by regular wetting and water spraying for construction works;
- Reduction of noise from equipment and machinery on-site and regular inspection to machinery and plants/vehicles on-site to ensure proper functioning;
- Deployment of silt curtain at the inshore water outflow;
- Sorting and storage of general refuse and construction waste; and
-
Deployment protective fencing
for trees
Summary of exceedance & investigation &
follow-up
A8. No noise monitoring was conducted during the reporting period since there are no Contract -related construction activities undertaken within a radius of 300m from the monitoring locations. No exceedance of the action Level was recorded during the reporting period.
A9. The construction phase marine water quality programme was ceased from 1 September 2023 due to the completion of marine-related construction works.
A10. The EM&A works for Pre-operation phase marine water quality were conducted during the reporting period in accordance with the EM&A Manual. Sixteen (16) of the pre- operation phase water quality monitoring results of SS obtained had exceeded the Action Level. Nine (9) of the pre-operation phase water quality monitoring results of SS obtained during the reporting period had exceeded the Limit Level.
A11. Water quality monitoring of the discharge of dechlorinated effluent in disinfection procedure is completed in December 2023. The hourly dechlorinated effluent monitoring during the discharge is finished.
A12. Pre-operation phase coral monitoring works
was conducted on 17 May 2024. There is no AL/LL
exceedance during the monitoring period. The detail of the monitoring is
presented in Appendix I
A13. Pre-operation phase fishery monitoring for dry season 2024 was carried out on 17 and 24 February 2024. The detail of the monitoring is presented in the 50th Monthly EM&A Report.
A14. In this reporting period, 96 times of landfill gas monitoring were periodically conducted at TKO Area 137 (Ch1+120 - Ch1+800). No exceedances of action level and limit level was observed.
A15. Joint site inspections of the construction work by ET and IEC were carried out on 28 May 2024 to audit the mitigation measures implementation status. Reminders were recorded in the site inspection checklists and provided to the contractors together with the appropriate follow-up actions where necessary.
Complaint Handling and Prosecution
A16. No environmental complaint, notification of summons and prosecution was received in the reporting period.
Reporting Change
A17. There was no change to be reported that may affect the on-going EM&A programme.
Summary of Upcoming
Key Issues and Key Mitigation Measures
A18. Key activities anticipated in the next reporting period for the Contract will include the followings:
|
Administration Building - Installation of ceiling, door - Painting works - Tiling works - Wall finishing works - External wall finishing works - Installation of AP doors and cat ladders - Installation of Internal partition wall and ceiling - Installation of wood decking - Minor Installation of building services, cable laying and termination, Photovoltaic Panel Installation, Testing & Commissioning |
|
Chemical building - External wall painting works - Defect rectification |
|
Main Electrical & Central Chiller Plant Building - Installation of signage - Minor Installation of building services, electrical switchboard, cable laying, pressure test |
|
ActiDAFF - Sealing gap and wall openings - Installation of signage - Minor Installation of mechanical equipment, building services, minor cable laying and termination, Installation of Fibre Reinforced Polymer Cover, Testing & Commissioning |
|
Product Water Storage Tank Building - Installation of signage - Opening Seal Up - Tiling work at Roof Slab on Tank A - Minor Installation of building services, cable laying and termination, Testing & Commissioning |
|
OSCG Building - Installation of Railing on Brine Maker Tank - Core Opening at DFMA - Minor Installation of building services and pipework, cable laying and termination, and commissioning and pressure test |
|
Reverse Osmosis Building - Sanitary Ware Installation in Toilet - Opening Seal Up - Installation of Water Meter Cabinets - Installation of signage - Minor Installation of building services, cable laying and termination , testing and commissioning, Photovoltaic Panel Installation |
|
Post Treatment Building - Installation of signage - DFMA Gap Seal Up - Installation of Railing near Staircase - Minor Installation of building services, Minor Installation of pipework, Cable laying and termination |
|
Inspection corridor - Interior painting works - Interior fitting out works |
|
Combined Shaft and Pump room - Installation of outfall grating and defect rectification . - Testing and commissioning Guard House - Guard house A defect rectification - Guard house B defect rectification - Building Services Installation, cable laying and termination Other - Watermain installation works at CLP 132 Kv Substation - Underground utility rectification work for Manhole and Draw pit - Underground utility Construction Work for Watermain water - Underground utility repair Work for Sewerage, Watermains work - Underground utility repair work (sampling pipe) - Security Fence footing construction work - Light Pole installation work - Road Construction - Footpath Construction - Landscape Construction - Irrigation System installation - Landscape planting work |
|
- Workshop construction work, Tiling work, green roof and irrigation pipe - Workshop Building Services Installation, cable laying and termination - Tiling work, glass balustrade and cladding installation for Elevated Walkway - Master meter defect rectification - Wave deflector Wall |
A19. The major environmental impacts brought by the above construction works will include:
- Construction dust and noise generation from excavation, construction works and slope works; and
- Waste generation from construction activities.
A20. The key environmental mitigation measures for the Contract in the coming reporting period associated with the above construction works will include:
- Reduction of noise from equipment and machinery on-site;
- Dust suppression by regular wetting and water spraying for construction works and at main haul road;
- Sorting and storage of general refuse and construction waste;
- Deployment of silt curtain at the inshore water outflow; and
-
Deployment protective fencing
for trees.
Background
1.1. The Acciona Agua, S.A. Trading, Jardine Engineering Corporation, Limited and China State Construction Engineering (Hong Kong) Limited as AJC Joint Venture (AJCJV) is contracted to carry out the Design, Build and Operate First Stage of Tseung Kwan O Desalination Plant (DPTKO) under Contract No. 13/WSD/17 (the Contract).
1.2. Acuity Sustainability Consulting Limited (ASCL) is commissioned by AJCJV to undertake the Environmental Team (ET) services as required and/or implied, both explicitly and implicitly, in the Environmental Permit (EP), Environmental Impact Assessment Report (EIA Report) (Register No. AEIAR-192/2015) and Environmental Monitoring and Audit Manual (EM&A Manual) for the Contract; and to carry out the Environmental Monitoring and Audit (EM&A) programme in fulfillment of the EIA Report¡¦s EM&A requirements and Contract No. 13/WSD/17 Specification requirements.
1.3. Pursuant to the Environmental Impact Assessment Ordinance (EIAO), the Director of Environmental Protection granted the Environmental Permit (No. EP-503/2015/B) to Water Supplies Department (WSD); and granted the Further Environmental Permit (No. FEP-01/503/2015/B) to AJCJV for the Contract.
The Reporting Scope
1.4. This is the 51st Monthly EM&A Report for the Contract which summarizes the key findings of the EM&A programme during the reporting period from 1 May to 31 May 2024.
Contract Organization
1.5. The Contract Organization structure for Construction Phase is presented in Figure 1.1.

Figure 1.1 Contract Organization Chart
1.6. Contact details of the key personnel are presented in Table 1.1 below:
Table 1.1 Contact Details
of Key Personnel
|
Party |
Position |
Name |
Telephone no. |
|
Contract Proponent (Water Supplies Department) |
SE/CM2 |
Milton Law |
2634-3573 |
|
Supervising Officer (Binnies Hong Kong Limited) |
Project Manager |
Christina Ko |
2608-7302 |
|
Chief Resident
Engineer |
Roger Wu |
6343-1002 |
|
|
The Jardine
Engineering Corporation, Limited, China
State Construction Engineering (Hong Kong) Limited and Acciona Agua, S.A. Trading |
Project Manager |
Stephen Yeung |
2807-4665 |
|
Environmental
Monitoring Manager |
Brian Kam |
9456-9541 |
|
|
Environmental
Monitoring Manager |
Tommy Law |
6468-1782 |
|
|
Acuity Sustainability Consulting Limited |
Environmental Team Leader |
Toby Wan |
9719-5422 |
|
Lam Environmental Services Limited |
Independent Environmental Checker
(IEC) |
Serena Shek |
6149-6683 |
Summary of Construction Works
1.7. Details of the major construction activities undertaken in this reporting period are shown below. The master programme is presented in Appendix A.
1.8. Key activities carried out in this reporting period for the Contract included the followings:
|
Administration Building - Installation of ceiling - Painting works - Installation of sanitary fitting - Installation of vinyl flooring - Installation of Aluminium Fins - Installation of Internal partition wall and ceiling - External wall finishing works - Installation of AP doors and cat ladders - Installation of wood decking - Minor Installation of building services, cable laying and termination, Photovoltaic Panel Installation, Testing & Commissioning |
|
Chemical building - External wall painting works - Defect rectification |
|
Main Electrical & Central Chiller Plant Building - Minor Installation of building services, electrical switchboard, cable laying, pressure test - Ladder and Cover installation at Roof |
|
ActiDAFF - Sealing gap and wall openings - Installation of signage - Minor Installation of mechanical equipment, building services, minor cable laying and termination, Installation of Fibre Reinforced Polymer Cover, Testing & Commissioning |
|
Product Water Storage Tank Building - Installation of signage - Installation of cladding works - Tiling work at Roof Slab on Tank A - Ladder and Cover installation at Roof - Roof Tiles installation - Minor Installation of building services, cable laying and termination, Testing & Commissioning |
|
OSCG Building - Core Opening at Cladding - Installation of cladding works - Installation of Railing on Brine Maker Tank - Installation of building services, mechanical equipment and cable laying and termination, testing and commissioning and pressure test |
|
Reverse Osmosis Building - Installation of AP doors - Installation of sanitary fitting - Sanitary Ware Installation in Toilet - Tiling Work in Toilet - Installation of Water Meter Cabinets - Installation of building services, electrical switchboard of cable laying and termination, Minor Installation of mechanical equipment and raised floor, testing and commissioning, Photovoltaic Panel Installation |
|
Post Treatment Building - DFMA Gap Seal Up - Minor Installation of building services, Minor Installation of mechanical equipment, Cable laying and termination, Pressure Test |
|
Inspection corridor - Interior painting works - Interior fitting out works |
|
Combined Shaft and Pump room - Installation of outfall grating and defect rectification . - Minor cable laying and termination, testing and commissioning Guard House - Guard house A defect rectification - Guard house B defect rectification - Minor Cable laying and Termination Slope
Work (Suspended due to landslides occurred during the rainstorm since
4 May 2024) - Rock Dowel Installation - Buttress Construction - Wire Mesh Laying - Drilling; Rock anchors installation, Rock break, Concreting Other - Watermain installation works at CLP 132 Kv Substation - Underground utility rectification work for Manhole and Draw pit - Underground utility Construction Work for Watermain water - Underground utility repair Work for Sewerage, Watermains work - Security Fence footing construction work - Light Pole installation work - Road Construction - Footpath Construction - Landscape Construction - Irrigation System installation - Landscape planting work - Traffic signage work - Workshop construction work, Tiling work, green roof and irrigation pipe - Workshop Building Services Installation, cable laying and termination - Tiling work and cladding installation for Elevated Walkway - Master meter defect rectification - Wave deflector Wall |
1.9. A summary of the valid permits, licences, and/or notifications on environmental protection for this Contract is presented in Table 1.2.
Table 1.2 Summary
of the Status of Valid Environmental Licence,
Notification, Permit and Documentations
|
Permit/ Licences |
Valid Period |
Status |
Remark |
|
|
From |
To |
|||
|
Environmental Permit |
||||
|
EP-503/2015/B |
Throughout the Contract |
Valid |
|
|
|
FEP - 01/503/2015/B |
Throughout the Contract |
Valid |
|
|
|
Notification of Construction Works
under the Air Pollution Control
(Construction Dust) Regulation (Form NA) |
||||
|
451539 |
Throughout the Contract |
Valid |
- |
|
|
Billing Account
for Disposal of Construction Waste |
||||
|
7036276 |
Throughout the Contract |
Valid |
- |
|
|
Sludge (Special Waste) Disposal (Admission Ticket) |
||||
|
17674 |
04/01/2024 |
30/06/2024 |
Valid |
- The renewal application of ¡§Sludge (Special Waste) Disposal (Admission Ticket)¡¨ was submitted. |
|
Chemical Waste
Producer Registration |
||||
|
5213-839-A2987-01 |
Throughout the Contract |
Valid |
- |
|
|
Wastewater Discharge Licence (Land and Marine
works) |
||||
|
WT00035775-2020 |
23/08/2021 |
31/07/2025 |
Valid |
- |
|
WT00044188-2023 |
16/06/2023 |
30/06/2028 |
Valid |
- For Plant T&C and operation. - Variation of sampling point for the Discharge Licence Part 1 is in process. |
|
Construction Noise
Permit |
||||
|
GW-RE1514-23 |
22/12/2023 |
21/06/2024 |
Valid |
-Renewal of CNP is in process. |
1.10. The status for all environmental aspects is presented in Table 1.3.
Table 1.3 Summary
of Status for Key Environmental Aspects under the EM&A Manual
|
Parameters |
Status |
|
Water Quality |
|
|
Baseline Monitoring under EM&A Manual |
The baseline water quality monitoring was conducted between 12 May 2020 to 6 June 2020. |
|
Construction Phase Impact Monitoring |
Ceased from 1 September 2023 |
|
Pre-operation phase Marine Impact Monitoring |
On-going |
|
Impact Monitoring of Effluent Discharge from Main Disinfection |
Completed |
|
Noise |
|
|
Baseline Monitoring |
The baseline noise monitoring result has been reported in Baseline Monitoring Report and submitted to EPD under EP Condition 3.4 |
|
Impact Monitoring |
Completed |
|
Waste Management |
|
|
Mitigation Measures in Waste Management Plan |
On-going |
|
Landfill Gas |
|
|
Regular Monitoring when construction works are within the 250 m Consultation Zone |
On-going |
|
Ecology (Coral) |
|
|
Pre-operation phase Regular Coral Monitoring (Monthly) |
On-going |
|
Ecology (Fishery) |
|
|
Pre-operation phase Regular Fishery Monitoring (Seasonally) |
On-going |
|
Ecology (Landscape) |
|
|
Pre-operation phase Landscape and Visual Site Inspection |
On-going |
|
Environmental Audit |
|
|
Site Inspection covering Measures of Air Quality, Noise Impact, Water Quality, Waste, Ecological Quality, Fisheries, Landscape and Visual |
On-going |
1.11. Other than the EM&A work by ET, environmental briefings, trainings, and regular environmental management meetings were conducted, in order to enhance environmental awareness and closely monitor the environmental performance of the contractors.
1.12. The EM&A programme has been implemented in accordance with the recommendations presented in the approved EIA Report and the EM&A Manual. A summary of implementation status of the environmental mitigation measures for the construction phase and the Pre-operation phase of the Contract during the reporting period is provided in Appendix C.
Monitoring Requirements
2.1. To ensure no adverse noise impact, noise monitoring is recommended to be carried out within 300m radius from the nearby noise sensitive receivers (NSRs), during construction phase. The NSRs selected as monitoring station are (i) NSR4 - Creative Secondary School,
(ii) NSR24 - PLK Laws Foundation College, and (iii) NSR31 - School of Continuing and Professional Studies - CUHK respectively.
2.2. Construction noise level were measured in terms of the A-weighted equivalent continuous sound pressure level (LAeq). Leq 30min was used as the monitoring parameter for the time period between 0700 and 1900 on normal weekdays. Construction works would follow stipulations of the valid Construction Noise Permits if works had to be conducted during restricted hours or public holidays. Table 2.1 summarizes the monitoring parameters, frequency, and duration of the impact noise monitoring.
Table 2.1 Noise Monitoring Parameters, Time, Frequency and Duration
|
Time |
Duration |
Interval |
Parameters |
|
Daytime: 0700-1900 |
Day time: 0700-1900 (during normal weekdays) |
Continuously in Leq 5min/Leq 30min (average of 6 consecutive Leq 5min) |
Leq 30min L10 30min & L90 30min |
Monitoring Locations
2.3. The monitoring locations were normally made at a point 1m from the exterior of the NSRs building façade and be at a position 1.2m above the ground. A correction of +3dB(A) should be made to the free-field measurements.
2.4. According to the environmental findings detailed in the EIA report and Baseline Monitoring Report, the designated locations for the construction noise monitoring are listed in Table 2.2 below.
Table 2.2 Noise Sensitive Receivers
|
NSR ID |
Noise Sensitive Receivers |
Monitoring Location |
Position |
|
NSR 4 |
Creative Secondary School |
Roof Floor |
1 m from facade |
|
NSR 24 |
PLK Laws Foundation College |
Pedestrian Road on Ground Floor |
Free-field |
|
NSR 31 |
School of Continuing and Professional Studies - CUHK |
Roof Floor |
1 m from facade |
2.5. Three noise monitoring locations for impact monitoring at the nearby sensitive receivers are shown in Figure 2.1-2.3.
|
|
|
Figure 2.1 NSR4
Creative Secondary School |
|
|
|
Figure 2.2 NSR24
PLK Laws Foundation College |
|
|
|
Figure 2.3
NSR31 School of Continuing and Professional Studies - CUHK |
Impact Monitoring Methodology
2.6. Integrated sound level meter will be used for the noise monitoring. The meter will be in compliance with the International Electrotechnical Commission Publications 651: 1979 (Type 1) and 804: 1985 (Type 1) specifications. Immediately prior to and following each noise measurement the accuracy of the sound level meter will be checked using an acoustic calibrator generating a known sound pressure level at a known frequency. Measurements will be accepted as valid only if the calibration levels before and after the noise measurements agree to within 1.0 dB(A).
2.7. Noise measurements were not made in the presence of fog, rain, wind with a steady speed exceeding 5 m/s or wind with gusts exceeding 10 m/s. The wind speed shall be checked with a portable wind speed meter capable of measuring the wind speed in m/s.
Action and Limit Levels
2.8. The Action/Limit Levels are in line with the criteria of Practice Note for Professional Persons (ProPECC PN 2/93) ¡§Noise from Construction Activities - Non-statutory Controls¡¨ and Technical Memorandum on Environmental Impact Assessment Process issued by HKSAR Environmental Protection Department [¡§EPD¡¨] under the Environmental Impact Assessment Ordinance, Cap 499, S.16 are presented in Table 2.3.
Table 2.3 Action and Limit Levels
for Noise per EM&A Manual
|
Time Period |
Action |
Limit (dB(A)) |
|
0700-1900 on normal weekdays |
When one documented complaint is received from any one of the noise sensitive receivers |
- 70 dB(A) for school and - 65 dB(A) during examination period |
Note: Limits specified in the GW-TM and IND-TM for construction and operation noise,
respectively.
2.9.
If exceedances were found
during noise monitoring, the actions in accordance with the Event and Action
Plan shall be carried out according to Appendix
E.
Monitoring Results
and Observations
2.10. Referring to EM&A Manual Section 4.1.2, the impact noise monitoring should be carried out when there are Contract-related construction activities undertaken within a radius of 300m from the monitoring stations. As no Contract-related construction activities were undertaken in the reporting month within a radius of 300m from the monitoring stations as shown in Figure 2.4, no impact noise monitoring was conducted in the reporting period.

Figure 2.4 Site Layout Plan with Noise Sensitive Receivers and Desalination Plant
3.1. In accordance with the recommendations of the EIA, water quality monitoring is required during dredging for the submarine pipelines and, during operation phase. The following Section provides details of the water quality monitoring to be undertaken by the Environmental Team (ET) to verify the distance of sediment and brine plume dispersion and to identify whether the potential exists for any indirect impacts to occur to ecological sensitive receivers.
3.2. The water quality monitoring programme was be carried out to allow any deteriorating water quality to be readily detected and timely action taken to rectify the situation.
3.3. Water quality monitoring for the Contract can be divided into the following stages:
- Dredging activities during construction phase;
- Discharge of effluent from main disinfection during construction phase; and
- Operation activities during Pre-operation phase.
Water Quality
Parameters
3.4. The parameters that have been selected for measurement in situ and in the laboratory are those that were either determined in the EIA to be those with the most potential to be affected by the construction works or are a standard check on water quality conditions. Parameters to be measured in the impact monitoring are listed in Table 3.1.
Table 3.1 Parameters measured
in the Impact Marine Water Quality Monitoring
|
Parameters |
Unit |
Abbreviation |
|
In-situ measurements |
||
|
Dissolved oxygen |
mg/L |
DO |
|
Temperature |
oC |
- |
|
pH |
- |
- |
|
Turbidity |
NTU |
- |
|
Salinity |
0/00 |
- |
|
Total Residual Chlorine NOTE1 |
mg/L |
TRC |
|
Laboratory measurements |
||
|
Suspended Solids |
mg/L |
SS |
|
Iron-Soluble |
mg/L |
Fe |
|
Anti-scalant as Reactive Phosphorus |
mg/L |
PO4 as P- |
NOTE 1: Monitoring of Total Residual
Chlorine will be conducted when cleaning and sterilization of the new freshwater main is carried out.
3.5. In addition to the water quality parameters, other relevant data were also being measured and recorded in Water Quality Monitoring Logs, including the location of the sampling stations, water depth, time, weather conditions, sea conditions, tidal stage, current direction and velocity, special phenomena and work activities undertaken around the monitoring and works area that may influence the monitoring results.
Monitoring Equipment
3.6. For water quality monitoring, the following equipment were used:
Dissolved Oxygen and Temperature Measuring Equipment - The instrument was a portable, weatherproof dissolved oxygen measuring instrument complete with cable, sensor, comprehensive operation manuals, and was operable from a DC power source. It was capable of measuring: dissolved oxygen levels in the range of 0 - 20 mg/L and 0 - 200% saturation; and a temperature of 0 - 45 degrees Celsius. It has a membrane electrode with automatic temperature compensation complete with a cable of not less than 35 m in length. Sufficient stocks of spare electrodes and cables were available for replacement where necessary (e.g. YSI model 59 DO meter, YSI 5739 probe, YSI 5795A submersible stirrer with reel and cable or an approved similar instrument).
Turbidity Measurement Equipment - The instrument was a portable, weatherproof turbidity-measuring unit complete with cable, sensor and comprehensive operation manuals. The equipment was operated from a DC power source, it has a photoelectric sensor capable of measuring turbidity between 0 - 1000 NTU and complete with a cable with at least 35 m in length (for example Hach 2100P or an approved similar instrument).
Salinity Measurement Instrument - A portable salinometer capable of measuring salinity in the range of 0 - 40 ppt was provided for measuring salinity of the water at each monitoring location.
Water Depth Gauge - A portable, battery-operated echo sounder (for example Seafarer 700 or a similar approved instrument) was used for the determination of water depth at each designated monitoring station. This unit will preferably be affixed to the bottom of the work boat if the same vessel is to be used throughout the monitoring programme. The echo sounder was suitably calibrated.
Positioning Device - A Global Positioning System (GPS) was used during monitoring to allow accurate recording of the position of the monitoring vessel before taking measurements. The Differential GPS, or equivalent instrument, was suitably calibrated at appropriate checkpoint (e.g. Quarry Bay Survey Nail) to verify that the monitoring station is at the correct position before the water quality monitoring commence.
Water Sampling Equipment - A water sampler, consisting of a PVC or glass cylinder of not less than two litres, which can be effectively sealed with cups at both ends, was used. The water sampler has a positive latching system to keep it open and prevent premature closure until released by a messenger when the sampler is at the selected water depth.
Total Residual Chlorine -Total residual chlorine (TRC) shall be measured in-situ using approved test kit.
Sampling / Testing Protocols
3.7. All in situ monitoring instruments were checked, calibrated, and certified by a laboratory accredited under HOKLAS or any other international accreditation scheme before use, and subsequently re-calibrated at monthly intervals throughout the stages of the water quality monitoring. Responses of sensors and electrodes were checked with certified standard solutions before each use.
3.8. On-site calibration of field equipment was following the ¡§Guide to On-Site Test Methods for the Analysis of Waters¡¨, BS 1427: 2009. Sufficient stocks of spare parts were maintained for replacements when necessary. Backup monitoring equipment was made available so that monitoring can proceed uninterrupted even when equipment is under maintenance, calibration etc.
Laboratory Measurement and Analysis
3.9. Sufficient volume of each water sample was collected for carrying out the laboratory analyses. Using chain of custody forms, collected water samples were transferred to a HOKLAS accredited laboratory (Acumen Laboratory and Testing Limit - HOKLAS 241) for immediate processing. The determination work was start within the next working day after collection of the water samples. Analytical methodology and sample preservation of other parameters were based on the latest edition of Standard Methods for the Examination of Waste and Wastewater published by APHA, AWWA and WPCF and methods by USEPA, or suitable method in accordance with requirements of HOKLAS or another internationally accredited scheme. The QA/QC details were in accordance with the requirements of HOKLAS or another internationally accredited scheme.
3.10. Parameters for laboratory measurements, standard methods and detection limits are presented in Table 3.2.
Table 3.2 Laboratory measurements, standard methods, and corresponding
detection limits of marine water quality monitoring
|
Parameters |
Standard Methods |
Detection Limit |
Reporting Limit |
Precision |
|
Dissolved oxygen |
Instrumental, CTD |
0.1 |
- |
+-25% |
|
Temperature |
Instrumental, CTD |
0.1 |
- |
+-25% |
|
pH |
Instrumental, CTD |
0.1 |
- |
+-25% |
|
Turbidity |
Instrumental, CTD |
0.1 |
- |
+-25% |
|
Salinity |
Instrumental, CTD |
0.1 |
- |
+-25% |
|
Suspended Solids |
APHA 23rd Ed 2540D |
1.0 |
2.5 |
+-17% |
|
Iron |
APHA 3111 B |
0.2 |
- |
+-25% |
|
Total residual chlorine |
Test Kit (Lovibond MD200) |
Lowest limit
= 0.01mg/L; Upper limit
= 6 mg/L |
- |
+-25% |
Monitoring Location
Construction Phase
3.11. The Impact water quality monitoring was ceased from 1 September 2023 due to the completion of marine-related construction works.
Pre-operation phase
3.12. The pre-operation phase impact water quality monitoring locations are in accordance with the EM&A Manual and detailed in Table 3.3 below. A schedule for water quality monitoring was prepared by the ET and submitted to IEC and EPD prior to the commencement of the monitoring.
Table 3.3 Location
of Impact Water Quality Monitoring Stations
|
Station |
Easting |
Northing |
Description |
|
CE |
843550 |
815243 |
Upstream control station at ebb tide |
|
CF |
846843 |
810193 |
Upstream control station at flood tide |
|
WSR1 |
846864 |
812014 |
Ecological sensitive receiver at Tung Lung Chau |
|
WSR2 |
847645 |
812993 |
Fisheries sensitive receiver at Tung Lung Chau |
|
WSR3 |
848023 |
813262 |
Ecological sensitive receiver at Tung Lung Chau |
|
WSR4 |
847886 |
814154 |
Ecological sensitive receiver at Tai Miu Wan |
|
WSR16 |
845039 |
815287 |
Ecological sensitive receiver at Fat Tong Chau |
|
WSR33 |
847159 |
814488 |
Ecological sensitive receiver at Tai Miu Wan |
|
WSR36 |
846878 |
814081 |
Ecological sensitive receiver at Kwun Tsai |
|
WSR37 |
846655 |
813810 |
Ecological sensitive receiver at Tit Cham Chau |
|
NF1 |
846542 |
813614 |
Edge of Mixing zone, ~ 200m west of outfall diffuser |
|
NF2 |
846942 |
813614 |
Edge of Mixing zone, ~ 200m east of outfall diffuser |
|
NF3 |
846742 |
813414 |
Edge of Mixing zone, ~ 200m south of outfall diffuser |
3.13. WSR1 to WSR37 were identified in accordance with Annex 14 of the EIAO-TM as well as Clause 3.4.4.2 of the Environmental Impact Assessment Study Brief for Desalination Plant at Tseung Kwan O (No. ESB-266/2013). WSR1 to WSR3 are sited near the Tung Lung Chau Fish Culture Zone; WSR16 and WSR36 are sited near the coral assemblages along the coastlines of Fat Tong Chau and Kwun Tsai respectively; WSR 4 and WSR33 are sited near the Coastal Protection Area and coral assemblages in waters of Tai Miu Wan; WSR37 is sited near the fisheries resource including spawning and nursery grounds at the coastal water of Tit Cham Chau. NF1 to NF3 are the Edge of Mixing zone.

Figure 3.1 Impact water quality
monitoring locations under EM&A Manual
Sampling Frequency
Pre-operation phase
3.14. Impact water quality monitoring were carried out three days per week during the commission phase. Monitoring at each station was undertaken once per day. The interval between two sets of monitoring was not less than 36 hours. The monitoring frequency would be increased in the case of exceedances of Action/Limit Levels if considered necessary by ET. Monitoring frequency would be maintained as far as practicable.
Sampling Depths & Replication
3.15. During impact water quality monitoring, each station was sampled, and measurements/ water samples were taken at three depths, 1 m below the sea surface, mid-depth, and 1 m above the seabed. For in situ measurements, duplicate readings were made at each water depth at each station. Duplicate water samples were collected at each water depth at each station.
Action and Limit Levels
Pre-operation phase
3.16. The Action and Limit Levels have been set based on the derivation criteria specified in the EM&A Manual. The Action/Limit Levels have been derived and are presented in Table 3.4.
Table 3.4 Derived Action
and Limit Levels
for Water Quality
|
Parameters |
Action |
Limit |
|
Pre-operation phase
Impact Monitoring |
||
|
DO in mg/L |
Surface and Middle 7.30 mg L-1 Bottom 7.31 mg L-1 Tung Lung
Chau Fish Culture Zone 5.1 mgL-1 or level at
control station (Whichever the lower) |
Surface and Middle 4 mg L-1 Bottom 2 mg L-1 Tung Lung
Chau Fish Culture Zone 5.0 mgL-1 or level at control station (Whichever the lower) |
|
SS in mg/L (Depth-
averaged) |
5.00 mg L-1 or 20% exceedance of value at any impact station
compared with corresponding data from control station |
6.00 mg L-1 or 30% exceedance of value at any
impact station compared with corresponding data from control station |
|
Turbidity in NTU (Depth- averaged) |
2.41 NTU
or 20% exceedance of value at any impact station compared with corresponding data from control station |
2.84 NTU
or 30% exceedance of value at any impact station compared with corresponding
data from control station |
|
Salinity
in PSU (Depth- averaged) |
34.25 PSU
or 9% exceedance of value at any impact station compared with corresponding data from control station |
34.56 PSU or 10% exceedance of value at any impact station compared with
corresponding data from control station |
|
Iron in mg/L (Depth-
averaged) |
0.3 mg/L |
0.3 mg/L |
|
Total residual chlorine in mg/L |
0.01 mg/L |
0.01 mg/L |
Notes:
i. "Depth-averaged" is calculated by taking the arithmetic
means of reading of all three depths.
ii. For DO, non-compliance of the water
quality limits occurs
when monitoring result
is lower than the limits.
iii. For Turbidity, SS, iron and Salinity, non-compliance of the water quality limits occurs
when monitoring result is higher than
the limits.
iv.
Monitoring of Total Residual
Chlorine (Disinfection) will be conducted
when cleaning and sterilization of the new freshwater
main is carried out.
Monitoring Results and Observations
Construction Phase
3.17. Referring to EM&A Manual, the general water quality monitoring should be carried out when there are marine-related construction activities undertaken. General water quality monitoring at the ten monitoring stations (CE, CF, WSR1, WSR2, WSR3, WSR4, WSR16, WSR33, WSR36 and WSR37) was ceased from 1 September 2023 due to the completion of marine-related construction works.
Pre-operation phase
3.18. Considering the first testing and commissioning(T&C) phase of Tseung Kwan O Desalination Plant was started in the reporting period, additional marine water quality monitoring was conducted at the thirteen monitoring stations (CE, CF, WSR1, WSR2, WSR3, WSR4, WSR16, WSR33, WSR36, WSR37, NF1, NF2 and NF3) from 12 December
2023. The Action and Limit Level would be referred to the approved EM&A Manual Table
5.4 First-year Operation Phase Marine Water Monitoring
3.19. The additional marine water quality monitoring was conducted at the thirteen monitoring stations on 2, 7, 9, 11, 14, 16, 18, 21, 23, 25, 28 and 30 May 2024.
3.20. Due to the adverse weather, water monitoring on 4 May 2024 was cancelled.
3.21. Sixteen (16) of the pre-operation phase water quality monitoring results of SS obtained had exceeded the Action Level. Nine (9) of the pre-operation phase water quality monitoring results of SS obtained during the reporting period had exceeded the Limit Level. The sediment plume from the nearby land and trespassers were reported by contractor during the reporting period.
3.22. Investigation on the reason of exceedance has been carried out, where the exceedances of SS on 02, 07, 14, 16, 18, 23, 25 and 30 May 2024 were concluded to be unrelated to the Contract as detailed in the Incident Reports on Action Level or Limit Level Non- compliance along with supporting materials in Appendix L.
3.23. Monitoring results of 8 key parameters: Salinity, DO, turbidity, SS, pH, temperature, Total Residual Chlorine and Iron in this reporting, are summarized in Table 3.5, and detailed results are presented in Appendix G.
Table 3.5 Summary of Impact Water
Quality Monitoring Results
|
Locations |
Parameters |
|||||||||
|
Salinity
(ppt) |
Dissolved Oxygen (mg/L) |
pH |
Turbidity
(NTU) |
Suspended Solids (mg/L) |
Temp. (oC) |
TRC (mg/L) |
Iron (mg/L) |
|||
|
Surface & Middle |
Bottom |
|||||||||
|
CE |
Avg. |
32.50 |
8.75 |
8.75 |
8.23 |
2.03 |
2.76 |
26.31 |
<0.01 |
<0.1 |
|
Min. |
31.81 |
8.10 |
8.11 |
8.09 |
1.22 |
2.50 |
25.86 |
<0.01 |
<0.1 |
|
|
Max. |
33.18 |
9.48 |
9.54 |
8.33 |
2.51 |
5.00 |
26.71 |
<0.01 |
<0.1 |
|
|
CF |
Avg. |
32.49 |
8.79 |
8.79 |
8.22 |
2.09 |
2.85 |
26.36 |
<0.01 |
<0.1 |
|
Min. |
31.92 |
8.28 |
8.31 |
8.05 |
1.40 |
2.50 |
25.78 |
<0.01 |
<0.1 |
|
|
Max. |
33.31 |
9.45 |
9.45 |
8.35 |
2.59 |
5.00 |
26.84 |
<0.01 |
<0.1 |
|
|
WSR1 |
Avg. |
32.94 |
9.05 |
9.04 |
8.27 |
1.68 |
2.81 |
26.26 |
<0.01 |
<0.1 |
|
Min. |
31.43 |
8.43 |
8.47 |
8.11 |
1.24 |
2.50 |
25.78 |
<0.01 |
<0.1 |
|
|
Max. |
33.95 |
9.60 |
9.58 |
8.43 |
2.15 |
5.00 |
26.74 |
<0.01 |
<0.1 |
|
|
WSR2 |
Avg. |
32.64 |
8.97 |
8.94 |
8.23 |
1.71 |
2.79 |
26.29 |
<0.01 |
<0.1 |
|
Min. |
31.79 |
8.06 |
8.08 |
8.07 |
1.39 |
2.50 |
25.88 |
<0.01 |
<0.1 |
|
|
Max. |
33.87 |
9.62 |
9.64 |
8.44 |
2.20 |
6.00 |
26.91 |
<0.01 |
<0.1 |
|
|
WSR3 |
Avg. |
32.62 |
9.06 |
9.06 |
8.27 |
1.66 |
3.10 |
26.22 |
<0.01 |
<0.1 |
|
Min. |
31.39 |
8.44 |
8.55 |
8.10 |
1.21 |
2.50 |
25.70 |
<0.01 |
<0.1 |
|
|
Max. |
34.05 |
9.54 |
9.57 |
8.42 |
1.98 |
8.00 |
26.57 |
<0.01 |
<0.1 |
|
|
WSR4 |
Avg. |
32.60 |
9.11 |
9.09 |
8.25 |
1.71 |
2.91 |
26.19 |
<0.01 |
<0.1 |
|
Min. |
31.77 |
8.47 |
8.45 |
8.13 |
1.38 |
2.50 |
25.68 |
<0.01 |
<0.1 |
|
|
Max. |
33.45 |
9.65 |
9.67 |
8.38 |
2.07 |
7.00 |
26.51 |
<0.01 |
<0.1 |
|
|
WSR16 |
Avg. |
32.55 |
9.01 |
9.02 |
8.23 |
1.82 |
3.02 |
26.20 |
<0.01 |
<0.1 |
|
Min. |
31.53 |
8.53 |
8.58 |
8.08 |
1.46 |
2.50 |
25.77 |
<0.01 |
<0.1 |
|
|
Max. |
33.19 |
9.62 |
9.55 |
8.41 |
2.13 |
6.00 |
26.59 |
<0.01 |
<0.1 |
|
|
Locations |
Parameters |
|||||||||
|
Salinity
(ppt) |
Dissolved Oxygen (mg/L) |
pH |
Turbidity
(NTU) |
Suspended Solids (mg/L) |
Temp. (oC) |
TRC (mg/L) |
Iron (mg/L) |
|||
|
Surface & Middle |
Bottom |
|||||||||
|
WSR33 |
Avg. |
32.66 |
8.93 |
8.93 |
8.25 |
1.95 |
3.00 |
26.31 |
<0.01 |
<0.1 |
|
Min. |
31.42 |
8.36 |
8.40 |
8.08 |
1.60 |
2.50 |
25.69 |
<0.01 |
<0.1 |
|
|
Max. |
33.75 |
9.42 |
9.47 |
8.43 |
2.29 |
6.00 |
26.87 |
<0.01 |
<0.1 |
|
|
WSR36 |
Avg. |
32.69 |
8.95 |
8.96 |
8.22 |
1.78 |
2.90 |
26.30 |
<0.01 |
<0.1 |
|
Min. |
31.84 |
8.41 |
8.41 |
8.10 |
1.30 |
2.50 |
25.89 |
<0.01 |
<0.1 |
|
|
Max. |
33.36 |
9.28 |
9.28 |
8.42 |
2.22 |
6.00 |
26.66 |
<0.01 |
<0.1 |
|
|
WSR37 |
Avg. |
32.63 |
8.96 |
8.94 |
8.23 |
1.67 |
3.14 |
26.25 |
<0.01 |
<0.1 |
|
Min. |
31.79 |
8.00 |
8.03 |
8.09 |
1.21 |
2.50 |
25.65 |
<0.01 |
<0.1 |
|
|
Max. |
33.34 |
9.58 |
9.59 |
8.41 |
2.09 |
7.00 |
26.60 |
<0.01 |
<0.1 |
|
|
NF1 |
Avg. |
32.57 |
9.03 |
9.01 |
8.24 |
1.70 |
2.81 |
26.31 |
<0.01 |
<0.1 |
|
Min. |
31.23 |
8.51 |
8.48 |
8.11 |
1.24 |
2.50 |
25.75 |
<0.01 |
<0.1 |
|
|
Max. |
33.98 |
9.42 |
9.47 |
8.37 |
2.14 |
5.00 |
26.70 |
<0.01 |
<0.1 |
|
|
NF2 |
Avg. |
32.82 |
8.89 |
8.90 |
8.28 |
1.76 |
2.85 |
26.24 |
<0.01 |
<0.1 |
|
Min. |
31.71 |
8.14 |
8.12 |
8.09 |
1.23 |
2.50 |
25.80 |
<0.01 |
<0.1 |
|
|
Max. |
33.65 |
9.44 |
9.40 |
8.44 |
2.27 |
6.00 |
26.62 |
<0.01 |
<0.1 |
|
|
NF3 |
Avg. |
32.61 |
8.77 |
8.77 |
8.26 |
1.81 |
3.12 |
26.21 |
<0.01 |
<0.1 |
|
Min. |
31.75 |
7.88 |
7.91 |
8.16 |
1.35 |
2.50 |
25.79 |
<0.01 |
<0.1 |
|
|
Max. |
33.55 |
9.22 |
9.19 |
8.40 |
2.14 |
7.00 |
26.63 |
<0.01 |
<0.1 |
|
Notes:
i.
"Avg",
¡§Min¡¨ and ¡§Max¡¨ is the average,
minimum and maximum respectively of the data from measurements conducted under
mid-flood and mid-ebb tides at three water depths, except that of
DO where the data for ¡§Surface
& Middle¡¨ and ¡§Bottom¡¨ are calculated separately.
ii.
Measurement data of Suspending Solids
would be rounding
to 2.5mg/L if the value was less than 2.5mg/L
to facilitate data analysing.
iii.
Due to the adverse weather, water monitoring on 4 May 2024 was cancelled
4.1. The waste generated from this Contract includes inert construction and demolition (C&D) materials, and non-inert C&D materials. Non-inert C&D materials are made up of general refuse, vegetative wastes and recyclable wastes such as plastics and paper/cardboard packaging waste. Steel materials generated from the Contract are also grouped into non-inert C&D materials as the materials were not disposed of with other inert C&D materials. With reference to relevant handling records and trip tickets of this Contract, the quantities of different types of waste generated in the reporting month are summarized in Table 4.1. Details of cumulative waste management data are presented as a waste flow table in Appendix H.
Table 4.1 Quantities of Waste Generated
from the Contract
during the reporting period
|
Reporting
Month |
Actual Quantities of Inert C&D Materials Generated Monthly |
Actual Quantities of C&D Wastes
Generated Monthly |
|||||||||
|
Total Quantity Generated |
Hard Rock and Large Broken Concrete |
Reused in the
Contract |
Reused in other Projects |
Disposed as Public Fill |
Imported Fill |
Metals |
Paper / cardboard packaging |
Plastics (1) |
Chemical Waste |
Others, e.g., general refuse |
|
|
(in ¡¦000kg) |
(in ¡¦000kg) |
(in ¡¦000kg) |
(in ¡¦000kg) |
(in ¡¦000kg) |
(in ¡¦000kg) |
(in ¡¦000kg) |
(in ¡¦000kg) |
(in ¡¦000kg) |
(in ¡¦000kg) |
(in ¡¦000kg) |
|
|
May 2024 |
91.370 |
0.000 |
0.000 |
0.000 |
91.370 |
0.000 |
0.000 |
0.000 |
0.000 |
0.000 |
77.260 |
Notes: (1) Plastics refer to plastic
bottles / containers, plastic sheets / foam from packaging material
Monitoring Requirement
5.1. In accordance with Section 11 of the EM&A Manual, monitoring of landfill gas is required for construction works within the 250m Consultation Zone. Part of the desalination plant and the indicative area of natural slope mitigation works fall within the SENT Landfill Extension Consultation Zone; and part of the 1,200 mm diameter fresh water mains along Wan Po Road falls within the SENT Landfill and SENT Landfill Extension Consultation Zones, TKO Stage II/III Restored Landfill and TKO Stage I Restored Landfill Consultation Zones.
Monitoring Programme
5.2. Since part of the desalination plant (Wan Po Road and MIC compound/Basketball Court) and the indicative area of natural slope mitigation works fall within the SENT Landfill Extension Consultation Zone in this contract (Figure 5.1), landfill gas monitoring would be required for Wan Po Road and MIC compound/Basketball Court (Figure 5.2) if excavations were conducted at more than 300mm deep. Although SENT Landfill Extension has commenced operation since November 2021, no excavation works were conducted at MIC compound/Basketball Court. Hence no landfill gas monitoring would be scheduled for MIC compound/Basketball Court at the current stage.
Monitoring Location
5.3. Monitoring of oxygen, methane, carbon dioxide and barometric pressure would be performed for excavations at 1m depth or more within the consultation Zone.
5.4. During construction of works within the consultation zones, excavations of 1m depth or more was monitored:
- At the ground surface before excavation commences;
- Immediately before any worker enters the excavation;
- At the beginning of each working day for the entire period the excavation remains open; and
- Periodically through the working day whilst workers are in the excavation.
5.5. For excavations between 300mm and 1m deep, measurements were carried out:
- Directly after the excavation has been completed; and
- Periodically whilst the excavation remains open.
5.6. The area required to be monitored for landfill gas in the reporting period is shown in
Figure 5.1.

Figure 5.1 Overview
of the SENT Extension Consultation Zone and the Contract Site Area
Monitoring Parameters
5.7. The landfill gas monitoring parameters and the action and limit level are summarized in
Table 5.1.
Table 5.1 Action and Limit Level for Landfill
Gas Monitoring Equipment
|
Parameters |
Action Level |
Limit Level |
|
Oxygen (O2) |
<19% O2 |
<19% O2 |
|
Methane (CH4) |
>10% LEL |
>20% LEL |
|
Carbon Dioxide (CO2) |
>0.5% CO2 |
>1.5% CO2 |
MONITORING EQUIPMENT
5.8. Landfill Gas monitoring was carried out using intrinsically-safe, portable multi-gas monitoring instruments. The gas monitoring equipment is:
- Complying with the Landfill Gas Hazard Assessment Guidance Note as intrinsically safe;
- Capable of continuous barometric pressure and gas pressure measurements;
- Normally operated in diffusion mode unless required for spot sampling, when it should be capable of operating by means of an aspirator or pump;
- Having low battery, fault and over range indication incorporated;
- Capable of storing monitoring data, and shall be capable of being downloaded directly;
- Measure in the following ranges:
|
methane |
0-100% Lower Explosion Limit (LEL) and 0-100% v/v; |
|
oxygen |
0-25% V/V; |
|
carbon dioxide |
0-5% v/v; and |
|
barometric pressure |
mBar (absolute) |
- alarm (both audibly and visually) in the event that the concentrations of the following are exceeded:
|
methane |
>10% LEL; |
|
oxygen |
<19% |
|
carbon dioxide |
>0.5% by volume |
|
barometric pressure |
mBar (absolute) |
5.9. Monitoring equipment used in the reporting period are summarized in Table 5.2. The Landfill Gas monitoring equipment calibration certificate is presented in Appendix F.
Table 5.2 Landfill Gas Monitoring Equipment
|
Equipment |
Brand and Model |
Calibration Expiry
Date |
|
Portable Gas Detector |
GMI PS500 - 25492809/21 |
21 August 2024 |

Figure 5.2 Location Map for Landfill
Gas Monitoring at TKO Area 137 (-0+440
- -0+760)

Figure 5.3 Location Map for Landfill
Gas Monitoring at TKO Area 137 (-0+740 - -1+060)
MONITORING
RESULTS AND OBSERVATIONS
5.10. In this reporting period, 96 times of landfill gas monitoring were periodically conducted during excavations at 300mm to 1m depth within the consultation zone and whenever workers entered the excavation on the day at TKO Area 137 (Ch1+120 - Ch1+800). No exceedances of action level and limit level was observed.
Monitoring Requirements
6.1. In accordance with Section 8.1 of the EM&A Manual, weekly site audit shall be carried out by the ET include checking whether good site practices are being properly implemented by the Contractor and the extent of the works area within the Clear Water Bay Country Park should be checked by the ET during the weekly site audit.
Site Inspection
6.2. Weekly site audit was carried out by the ET in the reporting month, no trespass by the Contractor outside the works area of the Project and Clear Water Bay Country Park, and no damage to the vegetation and rocky shore outside the Project area was observed in the reporting month. Retained trees was properly protected during the construction works, no unacceptable construction works was observed.
6.3.
If non-compliance were found
during the construction works, the actions in accordance with the Event and
Action Plan will be carried out according to Appendix E.
7.1. Under the approval conditions of the EIA Report for the Project, an EM&A programme on coral for the pre-operation phase of the Project is recommended. Pursuant to these EIA approval conditions and Condition 3.1 of the EP and FEP, details of the regular coral monitoring programme have been proposed based on the baseline coral monitoring results in the Report on Pre-Operation Baseline Coral Monitoring and Regular Coral Monitoring Methodology.
Monitoring Location
7.2. In accordance with Appendix B Section 5.1 of the approved supplementary EM&A Manual, two indirect impact sites (C2 and C3) and one control site (C8) as shown in Figure 7.1 should be monitored during the pre-operation Phase. Pre- operation coral survey should be conducted at the indirect impact and control sites. Ten selected hard coral colonies with similar species should be tagged at each of the control and indirect impact sites before commencement of the operation phase. Tagged hard coral colonies should be monitored in open waters during the pre- operation phase and operation phase.

Figure 7.1 Spot Dive Check Areas
Two Proposed Indirect Impact Sites (C2 and
C3) and one control site (C8) during pre-operation Phase
Action and Limit Levels
7.3. The Action and Limit Levels have been set based on the derivation criteria specified in the EM&A Manual. The Action/Limit Levels have been derived and are presented in Table 7.1.
Table 7.1 Action and Limit Level
for Coral Monitoring Equipment
|
Parameter |
Action Level
Definition |
Limit Level Definition |
|
Mortality |
If during Impact
Monitoring a 15% increase in the percentage of partial mortality on the corals occurs at more than 20% of the
tagged indirect impact
site coral colonies that is not recorded on the tagged corals at the
control site, then the Action Level is exceeded |
If during Impact Monitoring
a 25% increase in the percentage of partial mortality on the corals occurs at more than 20% of the
tagged indirect impact
site coral colonies that is not recorded on
the tagged corals at the control site, then the Limit Level is exceeded |
Note: If the defined
Action Level or Limit Level for coral monitoring is exceeded, the actions as set out in
Table
E3 of Appendix E will be implemented.
7.4.
If non-compliance were found
during the construction works, the actions in accordance with the Event and
Action Plan will be carried out according to Appendix E.
Monitoring Frequency
7.5. Pre-operation phase coral monitoring shall be monitored once per month as the requirement of the first year of operational phase.
Monitoring Result
and Observation
7.6. Pre-operation phase coral monitoring works was conducted on 17 May 2024. No sediment, bleaching or increased mortality in the general condition of all tagged coral colonies were observed during the monthly pre-operation phase monitoring period. No deterioration of the coral community was observed in the ecological monitoring results when compared with the baseline ecological monitoring results. There is no AL/LL exceedance during the monitoring period.
7.7. The details of the monitoring carried out on 17 May 2024 is presented in Appendix I.
8.
Ecology (Fishery Monitoring)
8.1. The purpose of the pre-operation phase regular fisheries monitoring programme is to monitor the potential impacts on fisheries resources in the vicinity of the project site. Apart from the regular fisheries monitoring programme, a water quality monitoring programme in addition to the water quality monitoring programme in the approved EM&A Manual is also described in Section 2.4 to (i) provide supplementary information in the interpretation of the findings of the fisheries monitoring and (ii) assist the monitoring of the potential impact on the Tung Lung Chau Fish Culture Zone (FCZ) in Joss House Bay.
Monitoring Location
8.2. In accordance with Section 2.3 of the approved Methodology Paper on Regular Fisheries Monitoring, it is recommended to set up six (6) fisheries monitoring locations in Joss House Bay and its vicinity to monitor the fisheries resources.
8.3. Two (2) sampling locations are set up in close proximity of the direct footprint of the proposed submarine utilities around TKO Area 137. These sampling locations represent the potential Project impact zones (i.e. areas at and in close proximity to the footprint of the proposed submarine utilities that will be directly affected by the Project works).
8.4. Two (2) gradient locations are proposed between the proposed submarine utilities and Tung Lung Chau FCZ to assist in the interpretation and identification of any potential fisheries impact in the vicinity of the FCZ.
8.5. Two (2) reference locations are proposed in the outer Joss House Bay between the waters of Tung Lung Chau and Fat Tong Mun. These reference locations are further away and will not be affected by the Project discharge (based on the EIA prediction) and will serve as control stations. Any significant fisheries impact identified at the reference locations should be caused by other natural factors or non-Project activities. The trends of fisheries conditions recorded in the reference locations will be used to assist in the interpretation of the trends of fisheries impact identified in the impact and gradient locations.
8.6.
The coordinates of the proposed monitoring locations are shown in Figure 8.1.

Figure 8.1 Monitoring location
of regular fishery
monitoring during pre-operation Phase
Monitoring Frequency
8.7. Pre-operation phase fishery monitoring shall be carried out 2 times in wet season (April to October) and 2 times in dry season (November to March) to examine the following:
- Fish species composition;
- Abundance: number of fish captured;
- Diversity of fish resources: species diversity and evenness;
- Size: range of total length; Biomass in weight; and
- Values of catches of commercial species: catch per unit effort (CPUE) and yield per unit effort (YPUE).
Monitoring Result
and Observation
8.8. Pre-operation phase fishery monitoring for dry season 2024 was carried out on 17 and 24 February 2024. The detail of the monitoring was presented in the 50th EM&A Monthly Report.
9.
Summary
of Exceedance, Complaints,
Notification of Summons and Prosecutions
9.1. The Environmental Complaint Handling Procedure is shown in below Figure 9.1:

Figure 9.1 Environmental Complaint
Handling Procedures
9.2. No noise monitoring was conducted during the reporting period since there are no Contract-related construction activities undertaken within a radius of 300m from the monitoring locations. No action Level exceedance for construction noise monitoring was recorded in the reporting month.
9.3. Construction phase general water quality monitoring at the ten monitoring stations (CE, CF, WSR1, WSR2, WSR3, WSR4, WSR16, WSR33, WSR36 and WSR37) are ceased from 1
September 2023 due to the completion of marine-related construction works.
9.4. Pre-operation phase EM&A works for water quality were conducted at the thirteen monitoring stations (CE, CF, WSR1, WSR2, WSR3, WSR4, WSR16, WSR33, WSR36, WSR37
NF1, NF2 and NF3) during the reporting period in accordance with the EM&A Manual
9.5. The additional marine water quality monitoring was conducted at the thirteen monitoring stations on 2, 7, 9, 11, 14, 16, 18, 21, 23, 25, 28 and 30 May 2024.
9.6. Sixteen (16) of the pre-operation phase water quality monitoring results of SS obtained had exceeded the Action Level. Nine (9) of the pre-operation phase water quality monitoring results of SS obtained during the reporting period had exceeded the Limit Level. The sediment plume from the nearby land and trespassers were reported by contractor during the reporting period. After investigation, all exceedances were concluded unrelated to the Project.
9.7. Pre-operation phase coral monitoring works was conducted on 17 May 2024. There is no AL/LL exceedance during the monitoring period.
9.8. Pre-operation phase fishery monitoring for dry season 2024 was carried out on 17 and 24 February 2024. The detail of the monitoring was presented in the 50th EM&A Monthly Report.
9.9. In this reporting period, 96 times of landfill gas monitoring were periodically conducted at TKO Area 137 (Ch1+120 - Ch1+800). No exceedances of action level and limit level was observed.
9.10. No environmental complaint, notification of summons and prosecution Statistics on complaint and notification of summons and prosecution are summarized in Appendix K.
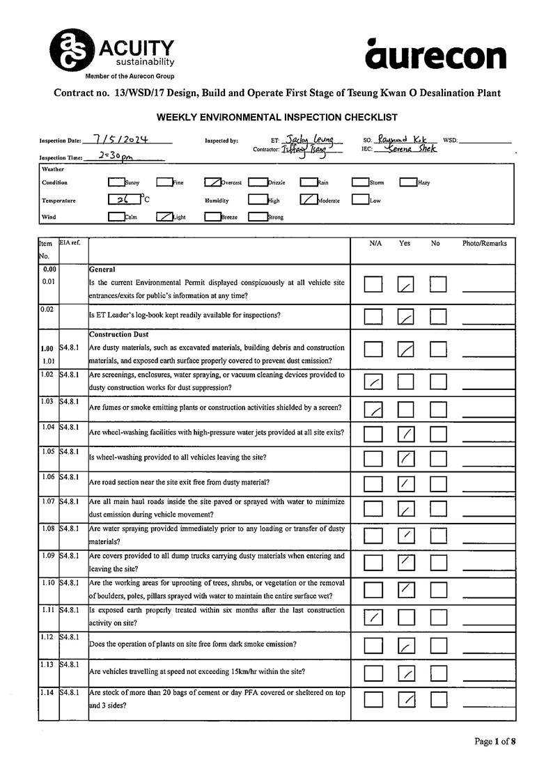
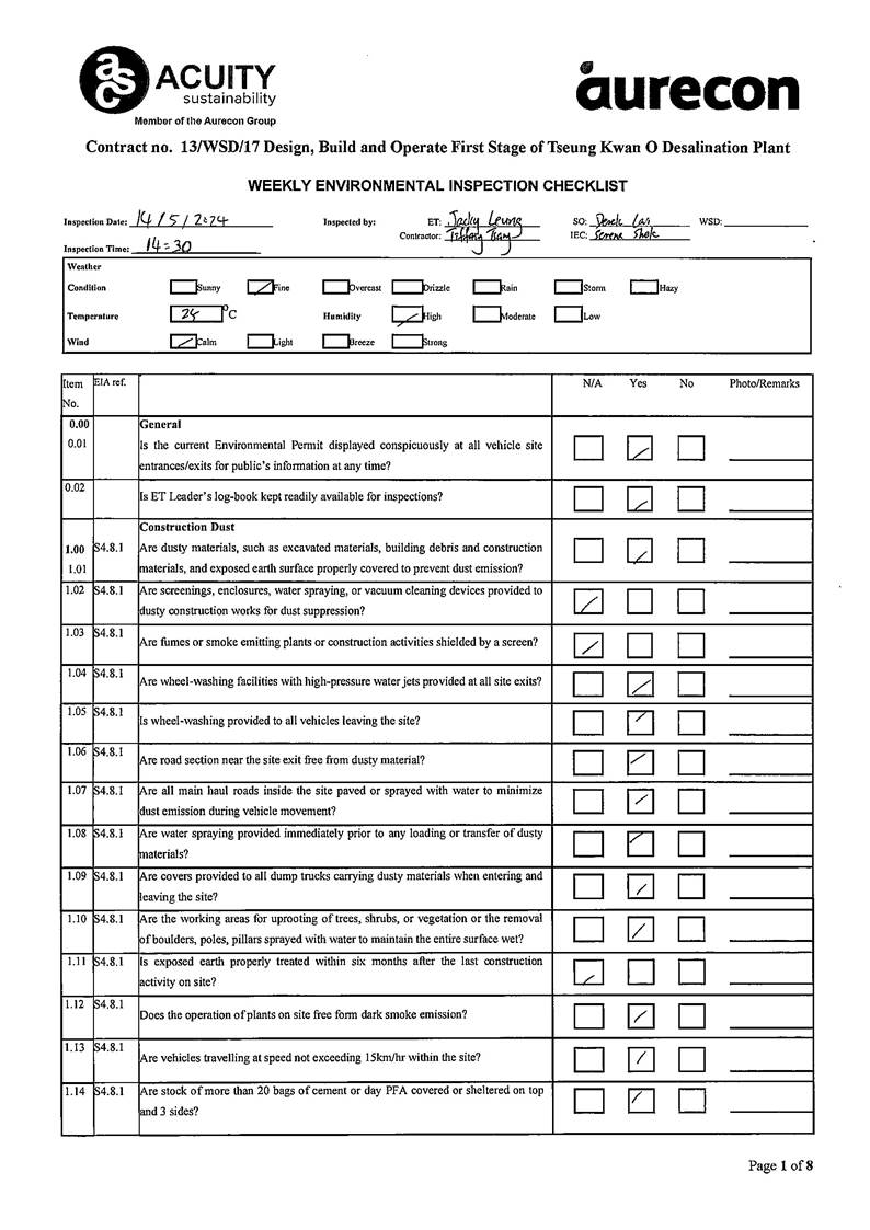
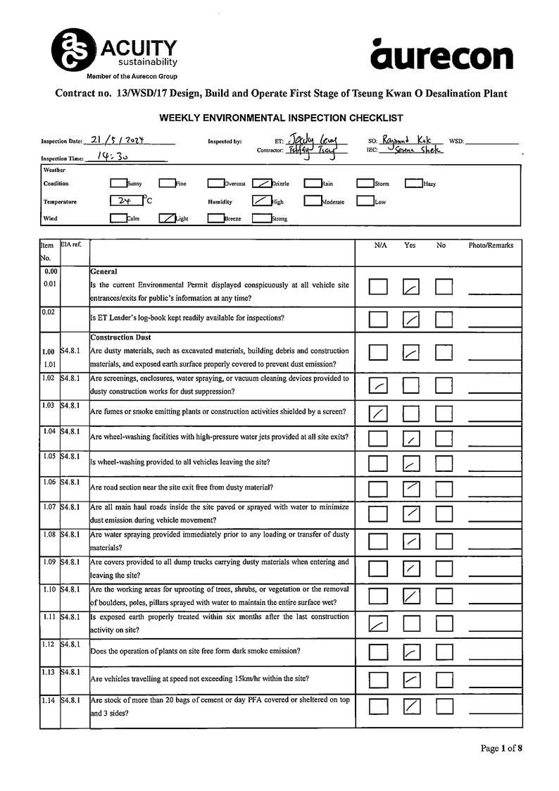
10.1. Site inspections were carried out on a weekly basis to monitor the implementation of proper environmental pollution control and mitigation measures under the Contract. In the reporting period, site inspections were carried out on 7, 14, 21 and 28 May 2024 at the site portions listed in Table 10.1 below.
Table 10.1 Summaries of Site Inspection Record
|
Date |
Inspected Site
Portion |
Time |
|
7 May 2024 |
TKO Area 137 |
14:30 - 15:30 |
|
14 May 2024 |
TKO Area 137 |
14:30 - 15:30 |
|
21 May 2024 |
TKO Area 137 |
14:30 - 15:30 |
|
28 May 2024 |
TKO Area 137 |
09:15 - 12:00 |
10.2. Joint site inspections with IEC was carried out on 28 May 2024.
10.3. Environmental deficiencies were observed during weekly site inspection. Key observations during the site inspections and during the reporting period are summarized in Table 10.2.
Table 10.2 Site Observations
|
Date |
Environmental Observations |
Follow-up Status |
|
7 May 2024 |
The contractor is reminded to maintain the landscape works after the adverse weather near RO building. |
The greening works is maintained regularly. |
|
14 May 2024 |
The contractor is reminded to maintain the landscape works (ie: vertical greening). |
The greening works is maintained regularly. |
|
21 May 2024 |
No major environmental deficiency was observed. |
N/A |
|
28 May 2024 |
No major environmental deficiency was observed. |
N/A |
10.4. According to the EIA Study Report, Environmental Permit, contract documents and EM&A Manual, the mitigation measures detailed in the documents should be implemented as much as practical during the reporting period. An updated Implementation Status of Environmental Mitigation Measures (EMIS) is provided in Appendix C. Site inspection proforma of the reporting period is provided in Appendix J.
11.1. Works to be undertaken in the next reporting month are:
|
Administration Building - Installation of ceiling, door - Painting works - Tiling works - Wall finishing works - External wall finishing works - Installation of AP doors and cat ladders - Installation of Internal partition wall and ceiling - Installation of wood decking - Minor Installation of building services, cable laying and termination, Photovoltaic Panel Installation, Testing & Commissioning |
|
Chemical building - External wall painting works - Defect rectification |
|
Main Electrical & Central Chiller Plant Building - Installation of signage - Minor Installation of building services, electrical switchboard, cable laying, pressure test |
|
ActiDAFF - Sealing gap and wall openings - Installation of signage - Minor Installation of mechanical equipment, building services, minor cable laying and termination, Installation of Fibre Reinforced Polymer Cover, Testing & Commissioning |
|
Product Water Storage Tank Building - Installation of signage - Opening Seal Up - Tiling work at Roof Slab on Tank A - Minor Installation of building services, cable laying and termination, Testing & Commissioning |
|
OSCG Building - Installation of Railing on Brine Maker Tank - Core Opening at DFMA - Minor Installation of building services and pipework, cable laying and termination, and commissioning and pressure test |
|
Reverse Osmosis Building - Sanitary Ware Installation in Toilet - Opening Seal Up - Installation of Water Meter Cabinets - Installation of signage - Minor Installation of building services, cable laying and termination , testing and commissioning, Photovoltaic Panel Installation |
|
Post Treatment Building - Installation of signage - DFMA Gap Seal Up - Installation of Railing near Staircase - Minor Installation of building services, Minor Installation of pipework, Cable laying and termination |
|
Inspection corridor - Interior painting works - Interior fitting out works |
|
Combined Shaft and Pump room - Installation of outfall grating and defect rectification . - Testing and commissioning Guard House - Guard house A defect rectification - Guard house B defect rectification - Building Services Installation, cable laying and termination Other - Watermain installation works at CLP 132 Kv Substation - Underground utility rectification work for Manhole and Draw pit - Underground utility Construction Work for Watermain water - Underground utility repair Work for Sewerage, Watermains work - Underground utility repair work (sampling pipe) - Security Fence footing construction work - Light Pole installation work - Road Construction - Footpath Construction - Landscape Construction - Irrigation System installation - Landscape planting work - Workshop construction work, Tiling work, green roof and irrigation pipe - Workshop Building Services Installation, cable laying and termination - Tiling work, glass balustrade and cladding installation for Elevated Walkway - Master meter defect rectification - Wave deflector Wall |
11.2. The major environmental impacts brought by the above construction works will include:
- Construction dust and noise generation from excavation, construction works and slope work; and
- Waste generation from construction activities.
11.3. The key environmental mitigation measures for the Project in the coming reporting period associated with the above construction works will include:
- Dust suppression by regular wetting and water spraying for construction works;
- Reduction of noise from equipment and machinery on-site by regular checking of on-site plant/vehicle to ensure proper functioning;
- Sorting and storage of general refuse and construction waste;
- Deployment of silt curtain at the inshore water outflow; and
-
Deployment protective fencing
for trees
12.
Conclusions and Recommendations
12.1. This is the 51st Monthly EM&A Report for the Project which summarizes the key findings of the EM&A programme during the reporting period from 1 May to 31 May 2024, in accordance with the EM&A Manual and the requirement under FEP-01/503/2015/B.
12.2. No noise monitoring was conducted in the reporting period due to the construction activities not being undertaken within a radius of 300m from the monitoring locations.
12.3. The construction phase marine water quality programme was ceased from 1 September 2023 due to the completion of marine-related construction works.
12.4. The EM&A works for Pre-operation phase water quality were conducted during the reporting period in accordance with the EM&A Manual. Sixteen (16) of the pre-operation phase water quality monitoring results of SS obtained had exceeded the Action Level. nine
(9) of the pre-operation phase water quality monitoring results of SS obtained during the reporting period had exceeded the Limit Level. The sediment plume from the nearby land and trespassers were reported by contractor during the reporting period. After investigation, all exceedances were concluded unrelated to the Project.
12.5. Pre-operation phase coral monitoring works was conducted on 17 May 2024. There is no AL/LL exceedance during the monitoring period.
12.6. Pre-operation phase fishery monitoring for dry season 2024 was carried out on 17 and 24 February 2024. The detailed result of the monitoring was presented in the 50th Monthly EM&A Report.
12.7. In this reporting period, 96 times of landfill gas monitoring were periodically conducted at TKO Area 137 (Ch1+120 - Ch1+800). No exceedances of action level and limit level was observed.
12.8. Weekly environmental site inspections were conducted during the reporting period. Observations and reminders were reported during the site inspections. All items are rectified within the reporting period. The environmental performance of the project was therefore considered satisfactory.
12.9. According to the environmental site inspections performed in the reporting month, the Contractor is reminded to pay attention on chemical storage, site hygiene and dust suppression mitigation measures.
12.10. No environmental complaint, notification of summons and prosecution was received in the reporting period.
12.11. The ET will keep track on the construction works to confirm compliance of environmental requirements and the proper implementation of all necessary mitigation measures.
Appendix A
Master Programme





Appendix B
Overview of Desalination Plant in Tseung
Kwan O


Appendix
C
Summary of Implementation Status of Environmental Mitigation
|
EIA Reference |
Recommended Environmental Protection Measures/ Mitigation Measures |
Objectives of the recommended measures & main concerns to address |
Implementation Agent |
Implementation Stage |
Implementation status |
Relevant Legislation & Guidelines |
||
|
D |
C |
O |
||||||
|
Air Quality |
|
|||||||
|
S4.8.1 |
Impervious dust screen or sheeting will be provided to enclose scaffolding from the ground floor level of building for construction of superstructure of the new buildings. |
Land site/ During Construction |
Contractor(s) |
|
ü |
|
Implemented |
Air Pollution Control (Construction Dust) |
|
S4.8.1 |
Impervious sheet will be provided for skip hoist for material transport. |
Land site/ During Construction, particularly dry season |
Contractor(s) |
|
ü |
|
NA |
- |
|
S4.8.1 |
The area where dusty work takes place should be sprayed with water or a dust suppression chemical immediately prior to, during and immediately after dusty activities as far as practicable. |
Land site/ During Construction |
Contractor(s) |
|
ü |
|
Implemented |
- |
|
S4.8.1 |
All dusty materials should be sprayed with water or a dust suppression chemical immediately prior to any loading, unloading or transfer operation. |
Land site/ During Construction |
Contractor(s) |
|
ü |
|
Implemented |
- |
|
S4.8.1 |
Dropping heights for excavated materials should be controlled to a practical height to minimize the fugitive dust arising from unloading. |
Land site/ During Construction |
Contractor(s) |
|
ü |
|
Implemented |
- |
|
S4.8.1 |
During transportation by truck, materials should not be loaded to a level higher than the side and tail boards and should be dampened or covered before transport. |
Land site/ During Construction |
Contractor(s) |
|
ü |
|
Implemented |
- |
|
S4.8.1 |
Wheel washing device should be provided at the exits of the work sites. Immediately before leaving a construction site, every vehicle shall be washed to remove any dusty material from its body and wheels as far as practicable. |
Land site/ During Construction |
Contractor(s) |
|
ü |
|
Implemented |
- |
|
S4.8.1 |
Road sections between vehicle-wash areas and vehicular entrance will be paved. |
Land site/ During Construction |
Contractor(s) |
|
ü |
|
Implemented |
- |
|
S4.8.1 |
Hoarding of not less than 2.4m high from ground level will be provided along the length of the Project Site boundary. |
Land site/ During construction |
Contractor(s) |
ü |
ü |
|
N/A |
- |
|
S4.8.1 |
Haul roads will be kept clear of dusty materials and will be sprayed with water so as to maintain the entire road surface wet at all times. |
Land site/ During construction |
Contractor(s) |
|
ü |
|
Implemented after reminder |
- |
|
EIA Reference |
Recommended Environmental Protection Measures/ Mitigation Measures |
Objectives of the recommended measures & main concerns to address |
Implementation Agent |
Implementation Stage |
Implementation status |
Relevant Legislation & Guidelines |
||
|
D |
C |
O |
||||||
|
S4.8.1 |
Temporary stockpiles of dusty materials will be either covered entirely by impervious sheets or sprayed with water to maintain the entire surface wet all the time. |
Land site/ During construction |
Contractor(s) |
|
ü |
|
Implemented after reminder |
- |
|
S4.8.1 |
Stockpiles of more than 20 bags of cement, dry pulverised fuel ash and dusty construction materials will be covered entirely by impervious sheeting sheltered on top and 3-sides. |
Land site/ During construction |
Contractor(s) |
|
ü |
|
Implemented |
- |
|
S4.8.1 |
All exposed areas will be kept wet always to minimise dust emission. |
Land site/ During construction |
Contractor(s) |
|
ü |
|
Implemented |
- |
|
S4.8.1 |
Ultra-low-sulphur diesel (ULSD) will be used for all construction plant on-site, as defined as diesel fuel containing not more than 0.005% sulphur by weight) as stipulated in Environment, Transport and Works Bureau Technical Circular (ETWB-TC(W)) No 19/2005 on Environmental Management on Construction Sites. |
Land site/ During construction/ During Operation |
Contractor(s) |
|
ü |
ü |
Implemented |
Environment, Transport and Works Bureau Technical Circular (ETWB- TC(W)) No 19/2005 on Environmental Management on Construction Sites |
|
S4.8.1 |
The engine of the construction equipment during idling will be switched off. |
Land site/ During construction |
Contractor(s) |
|
ü |
|
Implemented |
- |
|
S4.8.1 |
Concrete batching plant will be required on site. control measures recommended in the Guidance Note on a Best Practicable Means for Cement Works (Concrete Batching Plant) (BPM 3/2 (93)) will be implemented. The control measures recommended in the Guidance Note on a Best Practicable Means for Cement Works (Concrete Batching Plant) (BPM 3/2 (93)) will be implemented. |
Land site/ During construction |
Contractor(s) |
|
ü |
|
N/A |
- |
|
S4.8.1 |
Regular maintenance of construction equipment deployed on-site will be conducted to prevent black smoke emission. |
Land site/ During construction |
Contractor(s) |
|
ü |
|
Implemented after observation |
- |
|
S4.10 |
To ensure proper implementation of the recommended dust mitigation measures and good construction site practices during the construction phase, environmental site audits on weekly basis is recommended throughout the construction period. |
Land site/ During construction |
Contractor(s)/ Environmental Team (ET) & Independent Environmental Checker (IEC) |
|
ü |
|
Implemented |
- |
Note: D - Design stage C - Construction O - Operation
|
EIA Reference |
Recommended Environmental Protection Measures/ Mitigation Measures |
Objectives of the recommended measures & main concerns to address |
Implementation Agent |
Implementation Stage |
Implementation status |
Relevant Legislation & Guidelines |
||
|
D |
C |
O |
||||||
|
Noise |
||||||||
|
S5.7 |
Only well-maintained plant will be operated on-site and plant will be serviced regularly during the construction phase. |
All area/ During construction |
Contractor(s) |
|
ü |
|
Implemented |
A Practical Guide for the Reduction of Noise from Construction Works |
|
S5.7 |
Silencers or mufflers on construction equipment will be utilised and will be properly maintained during the construction phase. |
Noise control/ During construction |
Contractor(s) |
|
ü |
|
N/A |
A Practical Guide for the Reduction of Noise from Construction Works |
|
S5.7 |
Mobile plant, if any, will be sited as far away from NSRs as possible. |
Noise control/ During construction |
Contractor(s) |
|
ü |
|
N/A |
A Practical Guide for the Reduction of Noise from Construction Works |
|
S5.7 |
Machines and plant (such as trucks) that may be in intermittent use will be shut down between work periods or will be throttled down to a minimum. |
Noise control/ During construction |
Contractor(s) |
|
ü |
|
Implemented |
A Practical Guide for the Reduction of Noise from Construction Works |
|
S5.7 |
Plants known to emit noise strongly in one direction will, wherever possible, be orientated so that the noise is directed away from the nearby NSRs. |
Noise control/ During construction |
Contractor(s) |
|
ü |
|
N/A |
A Practical Guide for the Reduction of Noise from Construction Works |
|
S5.7 |
Material stockpiles and other structures will be effectively utilised, wherever practicable, in screening noise from on-site construction activities. |
Noise control/ During construction |
Contractor(s) |
|
ü |
|
N/A |
A Practical Guide for the Reduction of Noise from Construction Works |
|
S5.7 |
Use of Quite Powered Mechanical Equipment (QPME). |
Noise control/ During construction |
Contractor(s) |
|
ü |
|
Implemented |
A Practical Guide for the Reduction of Noise from Construction Works |
|
S5.7 |
Movable noise barriers of 3m in height with skid footing should be used and located within a few metres of stationary plant and mobile plant such that the line of sight to the NSR is blocked by the barriers. The length of the barrier should be at least five times greater than its height. The noise barrier material should have a superficial surface density of at least 7 kg m-2 and have no o or gappeningss. |
Noise control/ During construction |
Contractor(s) |
|
ü |
|
N/A |
A Practical Guide for the Reduction of Noise from Construction Works |
|
S5.7 |
The noise insulating sheet should be deployed such that there would be no opening or gaps on the joints. |
Noise control/ During construction |
Contractor(s) |
|
ü |
|
N/A |
A Practical Guide for the Reduction of Noise from Construction Works |
|
S5.7 |
Construction activities (e.g. excavation/shoring, reinstatement (asphalt), and pipe jacking) will be planned and carried out in sequence, such that items of PME proposed for these activities will not be operated simultaneously. |
Noise control/ During construction |
Contractor(s) |
ü |
ü |
|
Implemented |
A Practical Guide for the Reduction of Noise from Construction Works |
|
S5.7 |
PMEs will not be used at the works areas near educational institutions with residual impact (ie the ¡§influence
area¡¨ within a |
Noise control / During construction |
Contractor(s) |
|
ü |
|
N/A |
A Practical Guide for the Reduction of Noise from |
|
EIA Reference |
Recommended Environmental Protection Measures/ Mitigation Measures |
Objectives of the recommended measures & main concerns to address |
Implementation Agent |
Implementation Stage |
Implementation status |
Relevant Legislation & Guidelines |
||
|
D |
C |
O |
||||||
|
|
radius of 40m) during school hours in order to reduce impact to the educational institutions. |
|
|
|
|
|
|
Construction Works |
|
S5.7 |
Noise enclosures or acoustic sheds would be used to cover stationary PME such as generators. Portable/Movable noise enclosure made of material with superficial surface density of at least 7 kg m-2 may be used for screening the noise from operation of the saw/groover, concrete. |
Noise control/ Pre- construction/ During construction |
Contractor(s) |
ü |
ü |
|
N/A |
- |
|
S5.9 |
Sawcutting pavement, breaking up of pavement, excavation /shoring, pipe laying, backfilling, reinstatement (concrete) and pipe jacking shall be scheduled outside the examination period. |
Noise control/ Pre- construction/ During construction |
Contractor(s) |
ü |
ü |
|
N/A |
- |
|
S5.9 |
In view the duration of noise exceedance at Creative Secondary School, PLK Laws Foundation College, TKO Kei Tak Primary School and School of Continuing and Professional Studies-CUHK is limited to 8 weeks, the construction work in the influence areas near the four schools shall be scheduled during long school holidays (eg summer holiday, Easter holiday or Christmas holiday, etc) as far as practicable. Scheduling the construction work for the four schools. |
Noise control/ Pre- construction/ During construction |
Contractor(s) |
ü |
ü |
|
N/A |
- |
|
S5.10 |
A noise monitoring programme shall be implemented for the construction phase. |
Designated monitoring stations as defined in EM&A Manual/During construction phase |
Environmental Team |
|
ü |
|
N/A |
- |
|
S5.10 |
The effectiveness of on-site control measures could also be evaluated through the regular site audits. |
All facilities/ During construction |
Contractor(s)/ ET & Independent Environmental Checker (IEC) |
|
ü |
|
Implemented |
- |
Note: D - Design stage C - Construction O - Operation
|
EIA Reference |
Recommended Environmental Protection Measures/ Mitigation Measures |
Objectives of the recommended measures & main concerns to address |
Implementation Agent |
Implementation Stage |
Implementation status |
Relevant Legislation & Guidelines |
||
|
D |
C |
O |
||||||
|
Water Quality |
||||||||
|
S6.9 |
Dredged marine sediment will be disposed of in a gazetted marine disposal area in accordance with marine dumping permit conditions of the Dumping at Sea Ordinance (DASO). |
Marine Dredging/ During construction |
Contractor(s) |
|
ü |
|
Implemented |
Dumping at Sea Ordinance (DASO) |
|
S6.9 |
Disposal vessels will be fitted with tight bottom seals in order to prevent leakage of material during transport. |
Marine Dredging/ During construction |
Contractor(s) |
|
ü |
|
Implemented |
- |
|
S6.9 |
Barges will be filled to a level, which ensures that material does not spill over during transport to the disposal site and that adequate freeboard is maintained to ensure that the decks are not washed by wave action. |
Marine Dredging/ During construction |
Contractor(s) |
|
ü |
|
Implemented |
- |
|
S6.9 |
After dredging, any excess materials will be cleaned from decks and exposed fittings before the vessel is moved from the dredging area. |
Marine Dredging/ During construction |
Contractor(s) |
|
ü |
|
Implemented |
- |
|
S6.9 |
All vessels should be well maintained and inspected before use to limit any potential discharges to the marine environment. |
Marine Dredging/ During construction |
Contractor(s) |
|
ü |
|
Implemented |
- |
|
S6.9 |
All vessels must have a clean ballast system. |
Marine Dredging/ During construction |
Contractor(s) |
|
ü |
|
Implemented |
- |
|
S6.9 |
No discharge of sewage/grey wastewater should be allowed. Wastewater from potentially contaminated area on working vessels should be minimized and collected. These kinds of wastewater should be brought back to port and discharged at appropriate collection and treatment system. |
Marine Dredging/ During construction |
Contractor(s) |
|
ü |
|
Implemented |
- |
|
S6.9 |
No soil waste is allowed to be disposed overboard. |
Marine Dredging/ During construction |
Contractor(s) |
|
ü |
|
N/A |
- |
|
S6.9 |
Silt removal facilities such as silt traps or sedimentation facilities will be provided to remove silt particles from runoff to meet the requirements of the TM standard under the WPCO. The design of silt removal facilities will be based on the guidelines provided in ProPECC PN 1/94. All drainage facilities and erosion and sediment control structures will be inspected on a regular basis and maintained to confirm proper and efficient operation at all times and particularly during rainstorms. Deposited silt and grit will be removed regularly. |
Land site & drainage/ During construction |
Contractor(s) |
|
ü |
|
Implemented |
ProPECC PN 1/94 TM Standard under the WPCO |
|
S6.9 |
Earthworks to form the final surfaces will be followed up with surface protection and drainage works to prevent erosion caused by rainstorms. |
Land site & drainage/ During construction |
Contractor(s) |
|
ü |
|
Implemented |
- |
|
EIA Reference |
Recommended Environmental Protection Measures/ Mitigation Measures |
Objectives of the recommended measures & main concerns to address |
Implementation Agent |
Implementation Stage |
Implementation status |
Relevant Legislation & Guidelines |
||
|
D |
C |
O |
||||||
|
S6.9 |
Appropriate surface drainage will be designed and provided where necessary. |
Land site & drainage/ During construction |
Contractor(s) |
|
ü |
|
Implemented |
- |
|
S6.9 |
The precautions to be taken at any time of year when rainstorms are likely together with the actions to be taken when a rainstorm is imminent or forecasted and actions to be taken during or after rainstorms are summarized in Appendix A2 of ProPECC PN 1/94. |
Land site & drainage/ During construction |
Contractor(s) |
ü |
ü |
|
Implemented |
ProPECC PN 1/94 |
|
S6.9 |
Oil interceptors will be provided in the drainage system where necessary and regularly emptied to prevent the release of oil and grease into the storm water drainage system after accidental spillages. |
Land site & drainage/ During construction |
Contractor(s) |
|
ü |
|
N/A |
- |
|
S6.9 |
Temporary and permanent drainage pipes and culverts provided to facilitate runoff discharge, if any, will be adequately designed for the controlled release of storm flows. |
Land site & drainage/ During construction |
Contractor(s) |
|
ü |
|
Implemented |
- |
|
S6.9 |
The temporary diverted drainage, if any, will be reinstated to the original condition when the construction work has finished or when the temporary diversion is no longer required. |
Land site & drainage/ During construction |
Contractor(s) |
|
ü |
|
N/A |
- |
|
S6.9 |
Appropriate numbers of portable toilets shall be provided by a licensed contractor to serve the construction workers over the construction site to prevent direct disposal of sewage into the water environment. |
Land site & drainage/ During construction |
Contractor(s) |
|
ü |
|
Implemented |
- |
|
S6.9 and S6.12 |
The sterilization water should be dechlorinated with total residual chlorine (TRC) level below 1 mg/L before discharge to public sewer. In situ testing of TRC should also be conducted for the discharge of chlorinated water for pipeline disinfection to ensure sufficient dechlorination before discharge to public sewer. |
Sterilization of water mains prior to commissioning |
Contractor(s) |
|
ü |
ü |
N/A |
Technical Memorandum for Effluents Discharged into Drainage and Sewerage Systems Inland and Coastal Waters |
|
S6.9 |
The cleaning and flushing water should also be treated and desilted to the relevant discharge requirement stipulated in TM-DSS before discharging. |
Sterilization of water mains prior to commissioning |
Contractor(s) |
|
ü |
ü |
Implemented |
|
|
S6.9 |
Site drainage should be well maintained, and good construction practices should be observed to ensure that oil, fuels, solvents, and other chemicals are managed, stored and handled properly and do not enter the nearby water streams. |
Land site & drainage/ During construction/ During operation |
Contractor(s) |
|
ü |
ü |
Implemented |
- |
|
S6.12 |
Regular site inspections will be carried out in order to confirm that regulatory requirements are being met and that contractors are implementing the standard site practice and mitigation measures as proposed to reduce potential impacts to water quality. |
During construction |
Contractor(s)/ ET & IEC |
|
ü |
|
Implemented |
- |
Note: D - Design stage C - Construction O - Operation
|
EIA Reference |
Recommended Environmental Protection Measures/ Mitigation Measures |
Objectives of the recommended measures & main concerns to address |
Implementation Agent |
Implementation Stage |
Implementation Status |
Relevant Legislation & Guidelines |
||
|
D |
C |
O |
||||||
|
Waste Management |
||||||||
|
S8.5 |
Nomination of approved personnel to be responsible for standard site practices, arrangements for collection and effective disposal to an appropriate facility of all wastes generated at the site. |
Contract mobilization/ During construction |
Contractor(s) |
|
ü |
|
Implemented |
- |
|
S8.5 |
Training of site personnel in proper waste management and chemical handling procedures. Training will be provided to workers on the concepts of site cleanliness and appropriate waste management procedures, including waste reduction, reuse, and recycling at the beginning of the construction works. |
Contract mobilization/ During construction |
Contractor(s) |
|
ü |
|
Implemented |
- |
|
S8.5 |
Provision of sufficient waste disposal points and regular collection for disposal. |
All area/ During construction/ During operation |
Contractor(s) |
|
ü |
ü |
Implemented |
DEVB TC(W) No. 8/2010, Enhanced Specification for Site Cleanliness and Tidiness. |
|
S8.5 |
Appropriate measures to reduce windblown litter and dust transportation of waste by either covering trucks or by transporting wastes in enclosed containers. |
All area/ During construction |
Contractor(s) |
|
ü |
|
Implemented |
DEVB TC(W) No. 8/2010, Enhanced Specification for Site Cleanliness and Tidiness. |
|
S8.5 |
A waste management plan
(WMP) as stated in the ¡§ETWB TC(W) No. 19/2005, Environmental Management on Construction Sites¡¨ for the amount of waste generated, recycled and disposed of (including the disposal sites) will be established and implemented during the construction phase as part of the Environmental Management Plan (EMP). The Contractor will be required to prepare the EMP and submits it to the Architect/ Engineer under the Contract for approval prior to implementation. |
All area/ During construction |
Contractor(s) |
|
ü |
|
Implemented |
ETWB TC(W) No. 19/2005, Environmental Management on Construction Sites |
|
S8.5 |
Separation of chemical wastes for special handling and appropriate treatment at the Chemical Waste Treatment Centre at Tsing Yi. |
All area/ During construction |
Contractor(s) |
|
ü |
|
Implemented |
Chapters 2 & 3 Code of Practice on the Packaging, Labelling & Storage of Chemical Wastes published under the Waste Disposal Ordinance (Cap 354), Section 35 |
|
S8.5 |
Regular cleaning and maintenance programme for drainage systems, sumps and oil interceptors. |
Land site/ During construction |
Contractor(s) |
|
ü |
|
Implemented |
Waste Disposal Ordinance (Cap 354) |
|
EIA Reference |
Recommended Environmental Protection Measures/ Mitigation Measures |
Objectives of the recommended measures & main concerns to address |
Implementation Agent |
Implementation Stage |
Implementation Status |
Relevant Legislation & Guidelines |
||
|
D |
C |
O |
||||||
|
S8.5 |
A recording system for the amount of wastes generated/ recycled and disposal sites. The trip- ticket system will be included as one of the contractual requirements and implemented by the contractor(s). |
Land site/ During construction |
Contractor(s) |
|
ü |
|
Implemented |
DEVB TC(W) No. 6/2010, Trip Ticket System for Disposal of Construction & Demolition Materials |
|
S8.5 |
Segregation and storage of different types of waste in different containers, skips or stockpiles to enhance reuse or recycling of material and their proper disposal. |
Land site/ During construction/ During operation |
Contractor(s) |
|
ü |
|
Implemented |
WBTC 32/92, The Use of Tropical Hard Wood on Construction Site |
|
S8.5 |
Encourage collection of aluminium cans and wastepaper by individual collectors during construction with separate labelled bins provided to segregate these wastes from other general refuse by the workforce. |
Land site/ During construction |
Contractor(s) |
|
ü |
|
Implemented |
ETWB TCW No. 33/2002, Management of Construction and Demolition Material Including Rock |
|
S8.5 |
Any unused chemicals and those with remaining functional capacity will be recycled as far as possible. |
Land site/ During construction |
Contractor(s) |
|
ü |
|
N/A |
- |
|
S8.5 |
Use of reusable non-timber formwork to reduce the amount of C&D materials. |
All areas/ During construction |
Contractor(s) |
|
ü |
|
Implemented |
WBTC 32/92, The Use of Tropical Hard Wood on Construction Site |
|
S8.5 |
Prior to disposal of construction waste, wood, steel, and other metals will be separated to the extent practical, for re-use and/or recycling to reduce the quantity of waste to be disposed of to landfill. |
All areas/ During construction |
Contractor(s) |
|
ü |
|
Implemented |
DEVB TC(W) No. 6/2010, Trip Ticket System for Disposal of Construction & Demolition Materials |
|
S8.5 |
Proper storage and site practices to reduce the potential for damage or contamination of construction materials. |
All areas/ During construction |
Contractor(s) |
|
ü |
|
Implemented |
- |
|
S8.5 |
Plan and stock construction materials carefully to reduce amount of waste generated and avoid unnecessary generation of waste. |
All areas/ During construction |
Contractor(s) |
|
ü |
|
Implemented |
- |
|
S8.5 |
A Sediment Quality Report (SQR) for sampling and chemical testing of the sediment will be prepared and submitted to the EPD for approval. The approved detailed sampling and chemical testing will be carried out prior to the commencement of the dredging activities to confirm the sediment disposal method. |
Marine works/ During construction |
Contractor(s) |
|
ü |
|
N/A |
ETWB TC(W) No. 34/2002 and Dumping at Sea Ordinance (DASO) |
|
EIA Reference |
Recommended Environmental Protection Measures/ Mitigation Measures |
Objectives of the recommended measures & main concerns to address |
Implementation Agent |
Implementation Stage |
Implementation Status |
Relevant Legislation & Guidelines |
||
|
D |
C |
O |
||||||
|
S8.5 |
The management of dredged/ excavated sediment management requirement from ETWB TC(W) No. 34/2002 will be incorporated in the Specification of the Contract Documents. |
Marine works/ During construction |
WSD/ Contractor(s) |
|
ü |
|
Implemented |
ETWB TC(W) No. 34/2002 and Dumping at Sea Ordinance (DASO) |
|
S8.5 |
The contractor will open a billing account with EPD in accordance with the Waste Disposal (Charges for Disposal of Construction Waste) Regulation for the payment of disposal charges. |
Contract mobilization/ During construction |
Contractor(s) |
|
ü |
|
Implemented |
Cap 354N Waste Disposal (Charges for Disposal of Construction Waste) Regulation |
|
S8.5 |
A trip-ticket system will be established in accordance with DEVB TC(W) No. 6/2010 to monitor the reuse of surplus excavated materials off-site and disposal of construction waste and general refuse at transfer facilities/ landfills, and to control fly-tipping. |
Contract mobilization/ During construction |
Contractor(s) |
|
ü |
|
Implemented |
DEVB TC(W) No. 6/2010, Trip Ticket System for Disposal of Construction & Demolition Materials |
|
S8.5 |
The project proponent will also conduct regular inspection of the waste management measures implemented on site as described in the Waste Management Plan. |
All area/ During construction |
Contractor(s)/ Environmental Team (ET) & Independent Environmental Checker (IEC) |
|
ü |
|
Implemented |
ETWB TC(W) No. 19/2005, Environmental Management on Construction Sites |
|
S8.5 |
A recording system (similar to summary table as shown in Annex 5 and Annex 6 of Appendix G of ETWB TC(W) No. 19/2005) for the amount of waste generated, recycled and disposed of (including the disposal sites) will be established during the construction phase. |
All area/ During construction |
Contractor(s) |
|
ü |
|
Implemented |
Annex 5 and Annex 6 of Appendix G of ETWB TC(W) No. 19/2005 |
|
S8.5 |
Inert C&D materials (public fill) will be reused within the Project as far as practicable. |
All area/ During construction |
Contractor(s) |
|
ü |
|
Implemented |
- |
|
S8.5 |
Public fill and construction waste shall be segregated and stored in different containers or skips to facilitate reuse or recycling of materials and their proper disposal. |
All area/ During construction |
Contractor(s) |
|
ü |
|
Implemented |
- |
|
S8.5 |
Specific areas of the work site will be designated for such segregation and storage if immediate use is not practicable. |
All area/ During construction |
Contractor(s) |
|
ü |
|
Implemented |
- |
|
S8.5 |
To reduce the potential dust and water quality impacts of site formation works, C&D materials will be wetted as quickly as possible to the extent practice after filling. |
All area/ During construction |
Contractor(s) |
|
ü |
|
Implemented |
Air Pollution Control (Construction Dust) Regulation (Cap 311R); WPCO (Cap 358) |
|
EIA Reference |
Recommended Environmental Protection Measures/ Mitigation Measures |
Objectives of the recommended measures & main concerns to address |
Implementation Agent |
Implementation Stage |
Implementation Status |
Relevant Legislation & Guidelines |
||
|
D |
C |
O |
||||||
|
S8.5 |
Open stockpiles of excavated/ fill materials or construction wastes on-site should be covered with tarpaulin or similar fabric. |
Land site/ During Construction, particularly dry season |
Contractor(s) |
|
ü |
|
Implemented |
Air Pollution Control (Construction Dust) Regulation (Cap 311R) |
|
S8.5 |
Chemical waste container shall be suitable for the substance they are holding, resistant to corrosion, maintained in a good condition, and securely closed. |
All area/ During construction/ During operation |
Contractor(s)/ WSD |
|
ü |
ü |
Implemented |
Waste Disposal (Chemical Waste) (General) Regulation; Code of Practice on the Packaging, Handling and Storage of Chemical Wastes |
|
S8.5 |
Chemical waste container shall have a capacity of less than 450 L unless the specifications have been approved by the EPD. |
All area/ During construction/ During operation |
Contractor(s)/ WSD |
|
ü |
ü |
Implemented |
|
|
S8.5 |
A label in English and Chinese shall be displayed on the chemical container in accordance with instructions prescribed in Schedule 2 of the Regulations. |
All area/ During construction/ During operation |
Contractor(s)/ WSD |
|
ü |
ü |
Implemented |
|
|
S8.5 |
Storage areas for chemical waste shall be enclosed on at least 3 sides. |
All area/ During construction/ During operation |
Contractor(s)/ WSD |
|
ü |
ü |
Implemented |
|
|
S8.5 |
Storage areas for chemical waste shall have an impermeable floor and bunding, of capacity to accommodate 110% of the volume of the largest container or 20% by volume of the chemical waste stored in that area, whichever is the greatest. |
All area/ During construction/ During operation |
Contractor(s)/ WSD |
|
ü |
ü |
Implemented |
|
|
S8.5 |
Storage areas for chemical waste shall have adequate ventilation. |
All area/ During construction/ During operation |
Contractor(s)/ WSD |
|
ü |
ü |
Implemented |
|
|
S8.5 |
Storage areas for chemical waste shall be covered to prevent rainfall entering (water collected within the bund must be tested and disposed of as chemical waste, if necessary). |
All area/ During construction/ During operation |
Contractor(s)/ WSD |
|
ü |
ü |
Implemented |
|
|
S8.5 |
Storage areas for chemical waste shall be arranged so that incompatible materials are appropriately separated. |
All area/ During construction/ During operation |
Contractor(s)/ WSD |
|
ü |
ü |
Implemented |
|
|
S8.5 |
General refuse will be stored in enclosed bins or compaction units separately from construction and chemical wastes. |
All area/ During construction/ During operation |
Contractor(s)/ WSD |
|
ü |
ü |
Implemented after reminder |
|
|
S8.5 |
Adequate number of waste containers will be provided to avoid over-spillage of waste. |
All area/ During construction/ During operation |
Contractor(s)/ WSD |
|
ü |
ü |
Implemented |
DEVB TC(W) No. 8/2010 Enhanced Specification for Site Cleanliness and Tidiness. |
|
EIA Reference |
Recommended Environmental Protection Measures/ Mitigation Measures |
Objectives of the recommended measures & main concerns to address |
Implementation Agent |
Implementation Stage |
Implementation Status |
Relevant Legislation & Guidelines |
||
|
D |
C |
O |
||||||
|
S8.5 |
A reputable waste collector will be employed by the Contractor to remove general refuse from the site, separately from construction and chemical wastes, on a daily basis to minimize odour, pest and litter impacts. |
All area/ During construction/ During operation |
Contractor(s)/ WSD |
|
ü |
ü |
Implemented |
- |
|
S8.5 |
Recycling bins will be provided at strategic locations within the Site to facilitate recovery of recyclable materials (including aluminum can, wastepaper, glass bottles and plastic bottles) from the Site. Materials recovered will be sold for recycling. |
All area/ During construction/ During operation |
Contractor(s)/ WSD |
|
ü |
ü |
Implemented |
- |
|
S8.5 |
To avoid any odour and litter impact, accurate number of portable toilets will be provided for workers on-site. |
All area/ During construction |
Contractor(s) |
|
ü |
|
Implemented |
- |
|
S8.5 |
The burning of refuse on construction sites is prohibited by law. |
All area/ During construction |
Contractor(s) |
|
ü |
|
Implemented |
Air Pollution Control Ordinance (Cap 311) |
|
S8.7 |
To facilitate monitoring and control over the contractors¡¦ performance on waste management, a waste inspection and audit programme will be implemented throughout the construction phase. |
All facilities/ During construction |
ET/ IEC |
|
ü |
|
Implemented |
- |
Note: D - Design stage C - Construction O - Operation
|
EIA Reference |
Recommended Environmental Protection Measures/ Mitigation Measures |
Objectives of the recommended measures & main concerns to address |
Implementation Agent |
Implementation Stage |
Implementation Status |
Relevant Legislation & Guidelines |
||
|
D |
C |
O |
||||||
|
Ecology |
||||||||
|
S9.7 |
For slope mitigation works within the Clear Water Bay Country Park, to avoid tree felling and damages to trees, the exact locations of the flexible barrier foundation plates, soil nails and rock dowels can be adjusted during detailed design, and a setback distance from existing trees is recommended to be maintained as far as practical. A detailed specification describing the exact locations of the flexible barrier foundation plates, soil nails and rock dowels will be prepared to illustrate how the setback distance from existing trees would be implemented for tree avoidance. |
Slope mitigation works area/ During detailed design/ During construction |
Contractor(s) |
ü |
ü |
|
Implemented |
- |
|
S9.7 |
Pruning of tree canopies along the alignment of the flexible barriers shall be limited to a minimum. |
Slope mitigation works area/ During construction |
Contractor(s) |
|
ü |
|
Implemented |
|
|
S9.7 |
The alignment of flexible barriers shall be optimized to preserve all species of conservation interest and minimize the impact to the existing vegetation as far as practicable. All individuals of Marsdenia lachnostoma within the slope mitigation areas shall be retained in- situ, by positioning the alignment of flexible barrier at a minimum 1.5m in a radius away from these individuals. |
Slope mitigation works area/ During detailed design/ During construction |
Contractor(s) |
ü |
ü |
|
Implemented |
- |
|
S9.7 and 9.10 |
At the detailed design stage prior to the commencement of the slope mitigation works, a vegetation survey shall be carried out at the slope mitigation areas within the Clear Water Bay Country Park to assess the condition and identify the location of each individual of Marsdenia lachnostoma and other flora species of conservation interest that may be directly affected by the construction works. |
Slope mitigation works area/ During detailed design/ During construction |
Contractor(s) |
ü |
|
|
Implemented |
- |
|
S9.7 |
Temporary fencing will be installed to fence off the concerned species either in groups of individually within the works area and in the close proximity to prevent from being damaged and disturbed during construction. A sign identifying the site shall be attached to the fence and flagging tape shall be attached to the individuals to visualize their locations. |
Slope mitigation works area/ During construction |
Contractor(s) |
|
ü |
|
Implemented |
- |
|
S9.7 and S9.10 |
A specification for fencing and demarcating individuals of Marsdenai lachnostoma (or other flora species of conservation interest, if found) adjacent to the proposed alignment of the flexible barriers will be prepared to protect the species. |
Slope mitigation works area/ During construction |
Contractor(s) |
|
ü |
|
Implemented |
- |
|
S9.7 |
Induction training shall also be provided to all site personnel in order to brief them on this flora of conservation interest including the locations and their importance. |
Slope mitigation works area/ During construction |
Contractor(s) |
|
ü |
|
Implemented |
- |
|
EIA Reference |
Recommended Environmental Protection Measures/ Mitigation Measures |
Objectives of the recommended measures & main concerns to address |
Implementation Agent |
Implementation Stage |
Implementation Status |
Relevant Legislation & Guidelines |
||
|
D |
C |
O |
||||||
|
S9.7 |
The resident site supervisory staff will closely monitor the conditions of concerned individuals during construction of flexible barriers in the close proximity. |
Slope mitigation works area/ During construction |
Contractor(s) |
|
ü |
|
Implemented |
- |
|
S9.7 |
Erect fences along the boundary of the works area before the commencement of works to prevent vehicle movements and encroachment of personnel onto adjacent areas. |
All area/ During construction |
Contractor(s) |
|
ü |
|
Implemented |
- |
|
S9.7 |
Regularly check the work site boundaries to ensure that they are not breached, and that damage does not occur to surrounding areas. |
All area/ During construction |
Contractor(s)/ ET |
|
ü |
|
Implemented |
- |
|
S9.7 |
Avoid any damage and disturbance, particularly those caused by filling and illegal dumping, to the surrounding habitats through proper management of waste disposal. |
All area/ During construction |
Contractor(s) |
|
ü |
|
Implemented |
- |
|
S9.7 |
Reinstate temporarily affected areas, particularly the habitats of plantation and shrubland-grassland immediately after completion of construction works, through on-site tree/shrub planting. The tree/shrub species will be chosen with reference to those in the surrounding area. |
All area/ During construction |
Contractor(s) |
|
ü |
|
To be implemented |
- |
|
S9.7 |
Affected habitats within the Clear Water Bay Country Bay shall be reinstated by hydro-seeding and planting of climbers and native shrub seedlings where practical upon completion of the slope mitigation works. |
All area/ During construction |
Contractor(s) |
|
ü |
|
To be implemented |
- |
Note: D - Design stage C - Construction O - Operation
|
EIA Reference |
Recommended Environmental Protection Measures/ Mitigation Measures |
Objectives of the recommended measures & main concerns to address |
Implementation Agent |
Implementation Stage |
Implementation Status |
Relevant Legislation & Guidelines |
||
|
D |
C |
O |
||||||
|
Landscape & Visual |
||||||||
|
S11.10 & 11.11 |
The construction area and area allowed for temporary structures, such as the contractor¡¦s
office, will be minimized to a practical minimum. (MM1) |
All area/ Detailed design/ During construction/ During operation |
WSD/ Contractor(s) |
ü |
ü |
ü |
Implemented |
- |
|
S11.10 & 11.11 |
At the detailed design stage, the design team will seek to minimize the landscape footprint of the Project and above ground facilities, while satisfying all other requirements. (MM2) |
All area/ Detailed design/ During construction/ During operation |
WSD/ Contractor(s) |
ü |
ü |
ü |
Implemented |
- |
|
S11.10 & 11.11 |
Design principles will be adopted to take into account the surrounding area, particularly Clear Water Bay Country Park behind and the nearby waterfront, with due consideration given to: - green roofs where practical (i.e. without equipment on the roof); - roadside planting; - aesthetic treatment of all structures; - vertical greening; - screen planting along application site; and - landscape enhancement with amenity planting where practical including planting along the edge (site boundary) fence with native shrubs where feasible, to reduce their visual impact and blend them into the surrounding landscape. (MM3) |
All area/ Detailed design/ During construction/ During operation |
WSD/ Contractor(s) |
ü |
ü |
ü |
Implemented |
- |
|
S11.10 & 11.11 |
All trees within the Project Site or the potential slope mitigation works area will be carefully protected during construction according to DEVB TCW No. 10/2013 - Tree Preservation (MM4) |
All area/ Detailed design/ During construction/ During operation |
WSD/ Contractor(s) |
ü |
ü |
ü |
Implemented |
ETWB TCW No. 3/2006 - Tree Preservation. |
|
S11.10 & 11.11 |
No tree within the Country Park will be felled. Trees within the Site unavoidably affected by the works will be transplanted where necessary and practical. For trees that need to be felled, compensatory planting will be provided to the satisfaction of |
All area/ Detailed design/ During construction/ During operation |
WSD/ Contractor(s) |
ü |
ü |
ü |
Implemented |
DEVB TC(W) No. 10/2013 |
|
|
relevant Government departments. |
|
|
|
|
|
|
|
|
|
A compensatory tree planting proposal including locations of |
|
|
|
|
|
|
|
|
|
tree compensation will be submitted to seek relevant |
|
|
|
|
|
|
|
|
|
government department¡¦s approval, in accordance with DEVB |
|
|
|
|
|
|
|
|
|
TC(W) No. 10/2013. (MM5) |
|
|
|
|
|
|
|
|
S11.10 & 11.11 |
Any slope mitigation works necessary to address natural terrain hazards, will be minimized to minimize any potential environmental impact to the Country Park e.g. soil nailing and rock stabilization will aim to avoid existing trees e.g. should any restoration of vegetation be necessary, the best planting matrix with native species will be established, with the aim of resembling the existing vegetation. (MM6) |
All area/ Detailed design/ During construction/ During operation |
WSD/ Contractor(s) |
ü |
ü |
ü |
Implemented |
|
|
EIA Reference |
Recommended Environmental Protection Measures/ Mitigation Measures |
Objectives of the recommended measures & main concerns to address |
Implementation Agent |
Implementation Stage |
Implementation Status |
Relevant Legislation & Guidelines |
||
|
D |
C |
O |
||||||
|
S11.10 & 11.11 |
Dredging works for the installation of intake structures and outfall diffusers should be minimized to avoid or reduce any potential environmental impacts to as low as reasonably practicable (ALARP). The intake and outfall structures (e.g. intake openings and diffuser heads) will be prefabricated and transferred to site for installation. (MM7) |
All area/ Detailed design/ During construction/ During operation |
WSD/ Contractor(s) |
ü |
ü |
ü |
Implemented |
|
|
S11.10 & 11.11 |
All night-time lighting will be reduced to a practical minimum both in terms of number of level and will be hooded and directional. (MM8) units and lux level and will be hooded and directional. (MM8) |
All area/ Detailed design/ During construction/ During operation |
WSD/ Contractor(s) |
ü |
ü |
ü |
Implemented |
- |
Note: D - Design stage C - Construction O - Operation
|
EIA Reference |
Recommended Environmental Protection Measures/ Mitigation Measures |
Objectives of the recommended measures & main concerns to address |
Implementation Agent |
Implementation Stage |
Implementation Status |
Relevant Legislation & Guidelines |
||
|
D |
C |
O |
||||||
|
Landfill Gas Hazard |
||||||||
|
S12.7 |
During all works, safety procedures should be implemented to minimize the risks of fires and explosions, asphyxiation of workers and toxicity effects resulting from contact with contaminated soil and groundwater. |
All area/ Detailed design/ During construction/operation |
Contractor(s) |
ü |
ü |
ü |
Implemented |
- |
|
S12.7 |
During trenching and excavation as well as creation of confined spaces at near to or below ground level, precautions should be clearly laid down and rigidly Gas detection equipment and appropriate breathing apparatus should be available and used when entering confined spaces or trenches deeper than 1 meter. |
All area/ Detailed design/ During construction/operation |
Contractor(s) |
ü |
ü |
ü |
Implemented |
|
|
S12.7 |
The Contractor should make the workers are aware of potential hazards of working in confined spaces (any chamber, manhole or culvert which is large enough to permit access to personnel). Such work in confined spaces is controlled by the Factories and Industrial Undertakings (Confined Spaces) Regulations of the Factories and Industrial Undertakings Ordinance. Following the Safety Guide to Working in Confined Spaces ensures compliance with the above regulations. |
All area/ Detailed design/ During construction/operation |
Contractor(s) |
ü |
ü |
ü |
Implemented |
|
|
S12.7 |
Safety officers, specifically trained with regard to landfill gas and leachate related hazards and the appropriate actions to take in adverse circumstances, should be present on the site throughout the works, in particular, when works are undertaken below grade. |
All area/ Detailed design/ During construction/operation |
Contractor(s) |
ü |
ü |
ü |
Implemented |
|
|
S12.7 |
All personnel who work on site and all visitors to the site should be made aware of the possibility of ignition of gas in the vicinity of the works, the possible presence of contaminated water and the need to avoid physical contact with it. |
All area/ Detailed design/ During construction/operation |
Contractor(s) |
ü |
ü |
ü |
Implemented |
|
|
S12.7 |
Monitoring for landfill gas should be undertaken in all excavations, manholes, chambers (particularly during pipe jacking) and any confined spaces through the use of an intrinsically safe portable instrument, appropriately calibrated and capable of measuring the concentrations of methane. carbon dioxide and oxygen. |
All area/ Detailed design/ During construction/operation |
Contractor(s) |
ü |
ü |
ü |
Implemented |
|
|
S12.7 |
Monitoring frequency and areas to be monitored should be specified prior to commencement of groundwork, either by the Safety Officer, or by an appropriately qualified person. All measurements should be recorded and documented. |
All area/ Detailed design/ During construction/operation |
Contractor(s) |
ü |
ü |
ü |
Implemented |
|
|
S12.7 |
Proceed drilling with adequate care and precautions against the potential hazards which may be encountered. |
All area/ Detailed design/ During construction/operation |
Contractor(s) |
ü |
ü |
ü |
Implemented |
|
|
EIA Reference |
Recommended Environmental Protection Measures/ Mitigation Measures |
Objectives of the recommended measures & main concerns to address |
Implementation Agent |
Implementation Stage |
Implementation Status |
Relevant Legislation & Guidelines |
||
|
D |
C |
O |
||||||
|
S12.7 |
Prior to the commencement of the site works, the drilling contractor should devise a 'method-of- working' statement covering all normal and emergency procedures (including but not limited to number of operatives, experience and special skills of operatives, normal method of operations, emergency procedures, supervisors responsibilities, storage and use of safety equipment, safety procedures and signs, barriers and guarding). The site supervisor and all operatives must be familiar with this statement. |
All area/ During construction/operation |
Contractor(s) |
ü |
ü |
ü |
Implemented |
|
|
S12.7 |
Where below ground service entries are necessary to the Incoming Switchgear Room, 132 kV Substation and Chlorine Store (I) and (II), the entry point should be sealed to prevent gas entry. In addition, any below grade cable trenches entering the Incoming Switchgear Room and 132 kV Substation can become the pathway for landfill gas and hence grilled metal covers should be used. |
All area/ Detailed design/ During construction/operation |
Contractor(s) |
ü |
ü |
ü |
N/A |
|
|
S12.7 |
It is recommended regular landfill gas monitoring should be carried out at the Incoming Switchgear Room, 132 kV Substation and Chlorine Store (I) and (II). The monitoring frequency will be monthly for the first year of operation. If the monitoring results show no sign of landfill gas migration, reduce the monitoring frequency to once every six months. |
All area/ Detailed design/ During construction/operation |
Contractor(s) |
ü |
ü |
ü |
N/A |
|
|
S12.7 |
The manholes and utility pits within the Project Site and along the fresh water mains. Each manhole/ utility pit should be monitored with two measurements (at mid depth and base). Each measurement should be monitored for a minimum of 10 minutes. A steady reading and peak reading should be recorded at each manhole/ utility pit and for each measurement. The need for venting the manhole/ utility pit and further monitoring will be reviewed after the initial monitoring. |
All area/ Detailed design/ During construction/operation |
Contractor(s) |
ü |
ü |
ü |
Implemented |
|
|
S12.7 |
All construction, operation and maintenance personnel working on-site as well as visitors should be made aware of the hazards of landfill gas and its possible presence on-site. This should be achieved through a combination of posting warning signs in prominent places and also by access to detailed information on landfill gas hazards and the designs and procedural means by which these hazards are being minimized on-site. |
All area/ Detailed design/ During construction/operation |
Contractor(s) |
ü |
ü |
ü |
Implemented |
|
Note: D - Design stage C - Construction O - Operation
Appendix D
Impact Monitoring Schedule




Appendix E
Event / Action
Plan
Table E1 Event and Action Plan for Construction Noise Monitoring
![]()
Table E2 Event and Action Plan for Water Quality Monitoring
![]()
Table E2 Event and Action Plan for Ecology during Construction Phase
![]()
Table E3 Event and Action Plan for Pre-Operation Phase Coral Monitoring
![]()
Appendix F
Water Quality Monitoring Equipment and Landfill Gas
Equipment Calibration Certification







Appendix G
Water Quality Monitoring Data & Landfill Gas Monitoring Data
|
Location |
Date |
Weather |
Tide |
Sea Condition |
Water Level |
Depth (m) |
Time |
DO (mg/L) |
pH |
Sal (ppt) |
Temp ((¢XC) |
Turbidty (NTU) |
SS (mg/L) |
Iron (mg/L) |
Total Residual Chlorine (mg/L) |
|
CE |
2/5/2024 |
Sunny |
Mid-flood |
Moderate |
S |
1 |
2:06:00 PM |
8.23 |
8.28 |
31.84 |
26.25 |
1.50 |
2.50 |
<0.1 |
<0.01 |
|
CE |
2/5/2024 |
Sunny |
Mid-flood |
Moderate |
S |
1 |
2:06:00 PM |
8.33 |
8.26 |
31.81 |
26.29 |
1.45 |
2.50 |
<0.1 |
<0.01 |
|
CE |
2/5/2024 |
Sunny |
Mid-flood |
Moderate |
M |
12 |
2:07:00 PM |
8.36 |
8.24 |
31.88 |
26.28 |
1.54 |
2.50 |
<0.1 |
<0.01 |
|
CE |
2/5/2024 |
Sunny |
Mid-flood |
Moderate |
M |
12 |
2:07:00 PM |
8.33 |
8.26 |
31.91 |
26.24 |
1.56 |
2.50 |
<0.1 |
<0.01 |
|
CE |
2/5/2024 |
Sunny |
Mid-flood |
Moderate |
B |
23 |
2:08:00 PM |
8.27 |
8.24 |
31.95 |
26.28 |
1.54 |
3.00 |
<0.1 |
<0.01 |
|
CE |
2/5/2024 |
Sunny |
Mid-flood |
Moderate |
B |
23 |
2:08:00 PM |
8.30 |
8.30 |
31.84 |
26.25 |
1.56 |
2.50 |
<0.1 |
<0.01 |
|
CF |
2/5/2024 |
Sunny |
Mid-flood |
Moderate |
S |
1 |
11:07:00 AM |
8.63 |
8.18 |
31.92 |
26.37 |
1.74 |
3.00 |
<0.1 |
<0.01 |
|
CF |
2/5/2024 |
Sunny |
Mid-flood |
Moderate |
S |
1 |
11:07:00 AM |
8.61 |
8.19 |
31.94 |
26.36 |
1.77 |
2.50 |
<0.1 |
<0.01 |
|
CF |
2/5/2024 |
Sunny |
Mid-flood |
Moderate |
M |
10 |
11:08:00 AM |
8.64 |
8.17 |
32.00 |
26.36 |
1.72 |
2.50 |
<0.1 |
<0.01 |
|
CF |
2/5/2024 |
Sunny |
Mid-flood |
Moderate |
M |
10 |
11:08:00 AM |
8.60 |
8.23 |
31.93 |
26.34 |
1.78 |
2.50 |
<0.1 |
<0.01 |
|
CF |
2/5/2024 |
Sunny |
Mid-flood |
Moderate |
B |
19 |
11:09:00 AM |
8.60 |
8.19 |
31.97 |
26.36 |
1.70 |
2.50 |
<0.1 |
<0.01 |
|
CF |
2/5/2024 |
Sunny |
Mid-flood |
Moderate |
B |
19 |
11:09:00 AM |
8.72 |
8.16 |
31.95 |
26.35 |
1.70 |
2.50 |
<0.1 |
<0.01 |
|
WSR01 |
2/5/2024 |
Sunny |
Mid-flood |
Moderate |
S |
1 |
11:30:00 AM |
8.98 |
8.31 |
31.56 |
26.48 |
1.91 |
2.50 |
<0.1 |
<0.01 |
|
WSR01 |
2/5/2024 |
Sunny |
Mid-flood |
Moderate |
S |
1 |
11:30:00 AM |
8.98 |
8.30 |
31.43 |
26.50 |
2.01 |
2.50 |
<0.1 |
<0.01 |
|
WSR01 |
2/5/2024 |
Sunny |
Mid-flood |
Moderate |
M |
5 |
11:31:00 AM |
8.93 |
8.31 |
31.56 |
26.50 |
1.94 |
2.50 |
<0.1 |
<0.01 |
|
WSR01 |
2/5/2024 |
Sunny |
Mid-flood |
Moderate |
M |
5 |
11:31:00 AM |
8.96 |
8.27 |
31.52 |
26.48 |
1.97 |
2.50 |
<0.1 |
<0.01 |
|
WSR01 |
2/5/2024 |
Sunny |
Mid-flood |
Moderate |
B |
9 |
11:32:00 AM |
8.96 |
8.31 |
31.54 |
26.50 |
1.95 |
2.50 |
<0.1 |
<0.01 |
|
WSR01 |
2/5/2024 |
Sunny |
Mid-flood |
Moderate |
B |
9 |
11:32:00 AM |
9.00 |
8.30 |
31.45 |
26.48 |
2.01 |
2.50 |
<0.1 |
<0.01 |
|
WSR02 |
2/5/2024 |
Sunny |
Mid-flood |
Moderate |
S |
1 |
11:49:00 AM |
8.06 |
8.27 |
32.11 |
26.50 |
2.20 |
2.50 |
<0.1 |
<0.01 |
|
WSR02 |
2/5/2024 |
Sunny |
Mid-flood |
Moderate |
S |
1 |
11:49:00 AM |
8.12 |
8.27 |
32.16 |
26.51 |
1.97 |
3.00 |
<0.1 |
<0.01 |
|
WSR02 |
2/5/2024 |
Sunny |
Mid-flood |
Moderate |
M |
5 |
11:50:00 AM |
8.09 |
8.28 |
32.14 |
26.53 |
1.86 |
2.50 |
<0.1 |
<0.01 |
|
WSR02 |
2/5/2024 |
Sunny |
Mid-flood |
Moderate |
M |
5 |
11:50:00 AM |
8.09 |
8.27 |
32.09 |
26.51 |
1.98 |
3.00 |
<0.1 |
<0.01 |
|
WSR02 |
2/5/2024 |
Sunny |
Mid-flood |
Moderate |
B |
8 |
11:51:00 AM |
8.20 |
8.26 |
32.01 |
26.54 |
2.12 |
2.50 |
<0.1 |
<0.01 |
|
WSR02 |
2/5/2024 |
Sunny |
Mid-flood |
Moderate |
B |
8 |
11:51:00 AM |
8.08 |
8.25 |
32.10 |
26.55 |
2.08 |
2.50 |
<0.1 |
<0.01 |
|
WSR03 |
2/5/2024 |
Sunny |
Mid-flood |
Moderate |
S |
1 |
12:03:00 PM |
9.54 |
8.35 |
33.17 |
26.20 |
1.66 |
2.50 |
<0.1 |
<0.01 |
|
WSR03 |
2/5/2024 |
Sunny |
Mid-flood |
Moderate |
S |
1 |
12:03:00 PM |
9.54 |
8.35 |
33.22 |
26.18 |
1.69 |
2.50 |
<0.1 |
<0.01 |
|
WSR03 |
2/5/2024 |
Sunny |
Mid-flood |
Moderate |
M |
4 |
12:04:00 PM |
9.58 |
8.32 |
33.15 |
26.21 |
1.64 |
3.00 |
<0.1 |
<0.01 |
|
WSR03 |
2/5/2024 |
Sunny |
Mid-flood |
Moderate |
M |
4 |
12:04:00 PM |
9.54 |
8.32 |
33.13 |
26.19 |
1.60 |
2.50 |
<0.1 |
<0.01 |
|
WSR03 |
2/5/2024 |
Sunny |
Mid-flood |
Moderate |
B |
7 |
12:05:00 PM |
9.53 |
8.28 |
33.13 |
26.19 |
1.59 |
2.50 |
<0.1 |
<0.01 |
|
WSR03 |
2/5/2024 |
Sunny |
Mid-flood |
Moderate |
B |
7 |
12:05:00 PM |
9.57 |
8.33 |
33.20 |
26.21 |
1.58 |
2.50 |
<0.1 |
<0.01 |
|
Location |
Date |
Weather |
Tide |
Sea Condition |
Water Level |
Depth (m) |
Time |
DO (mg/L) |
pH |
Sal (ppt) |
Temp ((¢XC) |
Turbidty (NTU) |
SS (mg/L) |
Iron (mg/L) |
Total Residual Chlorine (mg/L) |
|
WSR04 |
2/5/2024 |
Sunny |
Mid-flood |
Moderate |
S |
1 |
12:18:00 PM |
9.07 |
8.31 |
31.87 |
26.29 |
1.81 |
3.00 |
<0.1 |
<0.01 |
|
WSR04 |
2/5/2024 |
Sunny |
Mid-flood |
Moderate |
S |
1 |
12:18:00 PM |
9.17 |
8.32 |
31.88 |
26.25 |
1.88 |
2.50 |
<0.1 |
<0.01 |
|
WSR04 |
2/5/2024 |
Sunny |
Mid-flood |
Moderate |
M |
4 |
12:19:00 PM |
9.15 |
8.32 |
31.89 |
26.29 |
1.85 |
3.00 |
<0.1 |
<0.01 |
|
WSR04 |
2/5/2024 |
Sunny |
Mid-flood |
Moderate |
M |
4 |
12:19:00 PM |
9.20 |
8.27 |
31.96 |
26.27 |
1.76 |
2.50 |
<0.1 |
<0.01 |
|
WSR04 |
2/5/2024 |
Sunny |
Mid-flood |
Moderate |
B |
6 |
12:20:00 PM |
9.09 |
8.26 |
31.98 |
26.30 |
1.81 |
2.50 |
<0.1 |
<0.01 |
|
WSR04 |
2/5/2024 |
Sunny |
Mid-flood |
Moderate |
B |
6 |
12:20:00 PM |
9.13 |
8.27 |
31.94 |
26.28 |
1.85 |
2.50 |
<0.1 |
<0.01 |
|
WSR16 |
2/5/2024 |
Sunny |
Mid-flood |
Moderate |
S |
1 |
1:45:00 PM |
9.31 |
8.16 |
31.65 |
26.15 |
1.88 |
2.50 |
<0.1 |
<0.01 |
|
WSR16 |
2/5/2024 |
Sunny |
Mid-flood |
Moderate |
S |
1 |
1:45:00 PM |
9.41 |
8.14 |
31.54 |
26.15 |
1.84 |
2.50 |
<0.1 |
<0.01 |
|
WSR16 |
2/5/2024 |
Sunny |
Mid-flood |
Moderate |
M |
8 |
1:46:00 PM |
9.44 |
8.15 |
31.53 |
26.16 |
1.86 |
2.50 |
<0.1 |
<0.01 |
|
WSR16 |
2/5/2024 |
Sunny |
Mid-flood |
Moderate |
M |
8 |
1:46:00 PM |
9.33 |
8.14 |
31.64 |
26.11 |
1.92 |
4.00 |
<0.1 |
<0.01 |
|
WSR16 |
2/5/2024 |
Sunny |
Mid-flood |
Moderate |
B |
15 |
1:47:00 PM |
9.36 |
8.18 |
31.53 |
26.13 |
1.90 |
2.50 |
<0.1 |
<0.01 |
|
WSR16 |
2/5/2024 |
Sunny |
Mid-flood |
Moderate |
B |
15 |
1:47:00 PM |
9.31 |
8.19 |
31.64 |
26.15 |
1.84 |
2.50 |
<0.1 |
<0.01 |
|
WSR33 |
2/5/2024 |
Sunny |
Mid-flood |
Moderate |
S |
1 |
12:34:00 PM |
8.81 |
8.28 |
32.14 |
26.13 |
1.72 |
2.50 |
<0.1 |
<0.01 |
|
WSR33 |
2/5/2024 |
Sunny |
Mid-flood |
Moderate |
S |
1 |
12:34:00 PM |
8.87 |
8.26 |
32.19 |
26.10 |
1.80 |
2.50 |
<0.1 |
<0.01 |
|
WSR33 |
2/5/2024 |
Sunny |
Mid-flood |
Moderate |
M |
4 |
12:35:00 PM |
8.95 |
8.28 |
32.15 |
26.10 |
1.75 |
2.50 |
<0.1 |
<0.01 |
|
WSR33 |
2/5/2024 |
Sunny |
Mid-flood |
Moderate |
M |
4 |
12:35:00 PM |
8.94 |
8.28 |
32.15 |
26.12 |
1.74 |
4.00 |
<0.1 |
<0.01 |
|
WSR33 |
2/5/2024 |
Sunny |
Mid-flood |
Moderate |
B |
6 |
12:36:00 PM |
8.92 |
8.27 |
32.16 |
26.12 |
1.78 |
2.50 |
<0.1 |
<0.01 |
|
WSR33 |
2/5/2024 |
Sunny |
Mid-flood |
Moderate |
B |
6 |
12:36:00 PM |
8.93 |
8.23 |
32.18 |
26.14 |
1.75 |
2.50 |
<0.1 |
<0.01 |
|
WSR36 |
2/5/2024 |
Sunny |
Mid-flood |
Moderate |
S |
1 |
12:51:00 PM |
9.23 |
8.21 |
33.14 |
26.36 |
2.22 |
2.50 |
<0.1 |
<0.01 |
|
WSR36 |
2/5/2024 |
Sunny |
Mid-flood |
Moderate |
S |
1 |
12:51:00 PM |
9.28 |
8.20 |
33.10 |
26.36 |
2.09 |
4.00 |
<0.1 |
<0.01 |
|
WSR36 |
2/5/2024 |
Sunny |
Mid-flood |
Moderate |
M |
3 |
12:52:00 PM |
9.26 |
8.21 |
33.20 |
26.36 |
1.97 |
2.50 |
<0.1 |
<0.01 |
|
WSR36 |
2/5/2024 |
Sunny |
Mid-flood |
Moderate |
M |
3 |
12:52:00 PM |
9.31 |
8.19 |
33.08 |
26.33 |
1.83 |
4.00 |
<0.1 |
<0.01 |
|
WSR36 |
2/5/2024 |
Sunny |
Mid-flood |
Moderate |
B |
6 |
12:52:00 PM |
9.26 |
8.25 |
33.09 |
26.37 |
2.14 |
2.50 |
<0.1 |
<0.01 |
|
WSR36 |
2/5/2024 |
Sunny |
Mid-flood |
Moderate |
B |
6 |
12:52:00 PM |
9.28 |
8.26 |
33.19 |
26.33 |
2.13 |
2.50 |
<0.1 |
<0.01 |
|
WSR37 |
2/5/2024 |
Sunny |
Mid-flood |
Moderate |
S |
1 |
1:08:00 PM |
9.08 |
8.20 |
32.56 |
26.30 |
1.90 |
2.50 |
<0.1 |
<0.01 |
|
WSR37 |
2/5/2024 |
Sunny |
Mid-flood |
Moderate |
S |
1 |
1:08:00 PM |
9.15 |
8.25 |
32.67 |
26.36 |
1.93 |
2.50 |
<0.1 |
<0.01 |
|
WSR37 |
2/5/2024 |
Sunny |
Mid-flood |
Moderate |
M |
4 |
1:09:00 PM |
9.21 |
8.24 |
32.63 |
26.35 |
1.91 |
2.50 |
<0.1 |
<0.01 |
|
WSR37 |
2/5/2024 |
Sunny |
Mid-flood |
Moderate |
M |
4 |
1:09:00 PM |
9.17 |
8.27 |
32.64 |
26.30 |
1.89 |
2.50 |
<0.1 |
<0.01 |
|
WSR37 |
2/5/2024 |
Sunny |
Mid-flood |
Moderate |
B |
7 |
1:10:00 PM |
9.17 |
8.23 |
32.56 |
26.31 |
1.94 |
4.00 |
<0.1 |
<0.01 |
|
WSR37 |
2/5/2024 |
Sunny |
Mid-flood |
Moderate |
B |
7 |
1:10:00 PM |
9.11 |
8.21 |
32.54 |
26.35 |
1.92 |
2.50 |
<0.1 |
<0.01 |
|
Location |
Date |
Weather |
Tide |
Sea Condition |
Water Level |
Depth (m) |
Time |
DO (mg/L) |
pH |
Sal (ppt) |
Temp ((¢XC) |
Turbidty (NTU) |
SS (mg/L) |
Iron (mg/L) |
Total Residual Chlorine (mg/L) |
|
NF1 |
2/5/2024 |
Sunny |
Mid-flood |
Moderate |
S |
1 |
1:32:00 PM |
9.14 |
8.26 |
32.01 |
26.45 |
2.05 |
2.50 |
<0.1 |
<0.01 |
|
NF1 |
2/5/2024 |
Sunny |
Mid-flood |
Moderate |
S |
1 |
1:32:00 PM |
9.20 |
8.25 |
31.99 |
26.42 |
2.01 |
3.00 |
<0.1 |
<0.01 |
|
NF1 |
2/5/2024 |
Sunny |
Mid-flood |
Moderate |
M |
7 |
1:33:00 PM |
9.18 |
8.20 |
31.96 |
26.44 |
1.98 |
3.00 |
<0.1 |
<0.01 |
|
NF1 |
2/5/2024 |
Sunny |
Mid-flood |
Moderate |
M |
7 |
1:33:00 PM |
9.22 |
8.24 |
32.11 |
26.42 |
2.08 |
2.50 |
<0.1 |
<0.01 |
|
NF1 |
2/5/2024 |
Sunny |
Mid-flood |
Moderate |
B |
12 |
1:34:00 PM |
9.18 |
8.19 |
32.02 |
26.46 |
2.03 |
2.50 |
<0.1 |
<0.01 |
|
NF1 |
2/5/2024 |
Sunny |
Mid-flood |
Moderate |
B |
12 |
1:34:00 PM |
9.18 |
8.20 |
31.99 |
26.44 |
2.07 |
2.50 |
<0.1 |
<0.01 |
|
NF2 |
2/5/2024 |
Sunny |
Mid-flood |
Moderate |
S |
1 |
1:24:00 PM |
8.78 |
8.24 |
31.72 |
26.33 |
1.77 |
2.50 |
<0.1 |
<0.01 |
|
NF2 |
2/5/2024 |
Sunny |
Mid-flood |
Moderate |
S |
1 |
1:24:00 PM |
8.77 |
8.23 |
31.73 |
26.30 |
1.80 |
2.50 |
<0.1 |
<0.01 |
|
NF2 |
2/5/2024 |
Sunny |
Mid-flood |
Moderate |
M |
5 |
1:25:00 PM |
8.82 |
8.22 |
31.86 |
26.28 |
1.80 |
3.00 |
<0.1 |
<0.01 |
|
NF2 |
2/5/2024 |
Sunny |
Mid-flood |
Moderate |
M |
5 |
1:25:00 PM |
8.83 |
8.19 |
31.86 |
26.30 |
1.77 |
4.00 |
<0.1 |
<0.01 |
|
NF2 |
2/5/2024 |
Sunny |
Mid-flood |
Moderate |
B |
9 |
1:26:00 PM |
8.84 |
8.20 |
31.75 |
26.30 |
1.76 |
3.00 |
<0.1 |
<0.01 |
|
NF2 |
2/5/2024 |
Sunny |
Mid-flood |
Moderate |
B |
9 |
1:26:00 PM |
8.73 |
8.19 |
31.71 |
26.27 |
1.80 |
4.00 |
<0.1 |
<0.01 |
|
NF3 |
2/5/2024 |
Sunny |
Mid-flood |
Moderate |
S |
1 |
1:17:00 PM |
8.95 |
8.19 |
32.25 |
26.28 |
1.94 |
2.50 |
<0.1 |
<0.01 |
|
NF3 |
2/5/2024 |
Sunny |
Mid-flood |
Moderate |
S |
1 |
1:17:00 PM |
8.96 |
8.23 |
32.14 |
26.27 |
1.90 |
4.00 |
<0.1 |
<0.01 |
|
NF3 |
2/5/2024 |
Sunny |
Mid-flood |
Moderate |
M |
6 |
1:18:00 PM |
8.95 |
8.18 |
32.23 |
26.30 |
1.86 |
2.50 |
<0.1 |
<0.01 |
|
NF3 |
2/5/2024 |
Sunny |
Mid-flood |
Moderate |
M |
6 |
1:18:00 PM |
8.96 |
8.19 |
32.25 |
26.27 |
1.92 |
3.00 |
<0.1 |
<0.01 |
|
NF3 |
2/5/2024 |
Sunny |
Mid-flood |
Moderate |
B |
11 |
1:19:00 PM |
8.95 |
8.17 |
32.18 |
26.29 |
1.90 |
3.00 |
<0.1 |
<0.01 |
|
NF3 |
2/5/2024 |
Sunny |
Mid-flood |
Moderate |
B |
11 |
1:19:00 PM |
8.99 |
8.16 |
32.15 |
26.25 |
1.90 |
3.00 |
<0.1 |
<0.01 |
|
CE |
7/5/2024 |
Sunny |
Mid-ebb |
Moderate |
S |
1 |
9:53:00 AM |
9.11 |
8.23 |
32.19 |
26.67 |
1.83 |
2.50 |
<0.1 |
<0.01 |
|
CE |
7/5/2024 |
Sunny |
Mid-ebb |
Moderate |
S |
1 |
9:53:00 AM |
9.03 |
8.24 |
32.10 |
26.71 |
1.75 |
2.50 |
<0.1 |
<0.01 |
|
CE |
7/5/2024 |
Sunny |
Mid-ebb |
Moderate |
M |
11 |
9:54:00 AM |
9.10 |
8.25 |
32.15 |
26.71 |
1.81 |
2.50 |
<0.1 |
<0.01 |
|
CE |
7/5/2024 |
Sunny |
Mid-ebb |
Moderate |
M |
11 |
9:54:00 AM |
9.02 |
8.26 |
32.05 |
26.68 |
1.79 |
2.50 |
<0.1 |
<0.01 |
|
CE |
7/5/2024 |
Sunny |
Mid-ebb |
Moderate |
B |
20 |
9:55:00 AM |
9.13 |
8.21 |
32.13 |
26.66 |
1.82 |
4.00 |
<0.1 |
<0.01 |
|
CE |
7/5/2024 |
Sunny |
Mid-ebb |
Moderate |
B |
20 |
9:55:00 AM |
9.03 |
8.23 |
32.10 |
26.66 |
1.74 |
2.50 |
<0.1 |
<0.01 |
|
CF |
7/5/2024 |
Sunny |
Mid-ebb |
Moderate |
S |
1 |
1:13:00 PM |
9.19 |
8.31 |
32.17 |
26.61 |
2.50 |
2.50 |
<0.1 |
<0.01 |
|
CF |
7/5/2024 |
Sunny |
Mid-ebb |
Moderate |
S |
1 |
1:13:00 PM |
9.21 |
8.31 |
32.21 |
26.61 |
2.52 |
2.50 |
<0.1 |
<0.01 |
|
CF |
7/5/2024 |
Sunny |
Mid-ebb |
Moderate |
M |
11 |
1:14:00 PM |
9.22 |
8.33 |
32.09 |
26.64 |
2.46 |
3.00 |
<0.1 |
<0.01 |
|
CF |
7/5/2024 |
Sunny |
Mid-ebb |
Moderate |
M |
11 |
1:14:00 PM |
9.28 |
8.32 |
32.10 |
26.65 |
2.42 |
2.50 |
<0.1 |
<0.01 |
|
CF |
7/5/2024 |
Sunny |
Mid-ebb |
Moderate |
B |
21 |
1:15:00 PM |
9.24 |
8.32 |
32.07 |
26.63 |
2.44 |
2.50 |
<0.1 |
<0.01 |
|
CF |
7/5/2024 |
Sunny |
Mid-ebb |
Moderate |
B |
21 |
1:15:00 PM |
9.26 |
8.31 |
32.06 |
26.66 |
2.53 |
2.50 |
<0.1 |
<0.01 |
|
Location |
Date |
Weather |
Tide |
Sea Condition |
Water Level |
Depth (m) |
Time |
DO (mg/L) |
pH |
Sal (ppt) |
Temp ((¢XC) |
Turbidty (NTU) |
SS (mg/L) |
Iron (mg/L) |
Total Residual Chlorine (mg/L) |
|
WSR01 |
7/5/2024 |
Sunny |
Mid-ebb |
Moderate |
S |
1 |
12:47:00 PM |
9.31 |
8.27 |
32.95 |
26.67 |
1.68 |
2.50 |
<0.1 |
<0.01 |
|
WSR01 |
7/5/2024 |
Sunny |
Mid-ebb |
Moderate |
S |
1 |
12:47:00 PM |
9.23 |
8.26 |
32.98 |
26.65 |
1.64 |
2.50 |
<0.1 |
<0.01 |
|
WSR01 |
7/5/2024 |
Sunny |
Mid-ebb |
Moderate |
M |
4 |
12:48:00 PM |
9.28 |
8.28 |
33.05 |
26.69 |
1.68 |
2.50 |
<0.1 |
<0.01 |
|
WSR01 |
7/5/2024 |
Sunny |
Mid-ebb |
Moderate |
M |
4 |
12:48:00 PM |
9.36 |
8.23 |
33.05 |
26.65 |
1.67 |
2.50 |
<0.1 |
<0.01 |
|
WSR01 |
7/5/2024 |
Sunny |
Mid-ebb |
Moderate |
B |
8 |
12:49:00 PM |
9.27 |
8.28 |
33.09 |
26.64 |
1.68 |
2.50 |
<0.1 |
<0.01 |
|
WSR01 |
7/5/2024 |
Sunny |
Mid-ebb |
Moderate |
B |
8 |
12:49:00 PM |
9.34 |
8.25 |
33.12 |
26.70 |
1.73 |
2.50 |
<0.1 |
<0.01 |
|
WSR02 |
7/5/2024 |
Sunny |
Mid-ebb |
Moderate |
S |
1 |
12:26:00 PM |
9.41 |
8.32 |
32.73 |
26.88 |
1.48 |
2.50 |
<0.1 |
<0.01 |
|
WSR02 |
7/5/2024 |
Sunny |
Mid-ebb |
Moderate |
S |
1 |
12:26:00 PM |
9.36 |
8.36 |
32.58 |
26.90 |
1.51 |
2.50 |
<0.1 |
<0.01 |
|
WSR02 |
7/5/2024 |
Sunny |
Mid-ebb |
Moderate |
M |
5 |
12:27:00 PM |
9.28 |
8.30 |
32.68 |
26.87 |
1.51 |
3.00 |
<0.1 |
<0.01 |
|
WSR02 |
7/5/2024 |
Sunny |
Mid-ebb |
Moderate |
M |
5 |
12:27:00 PM |
9.27 |
8.35 |
32.63 |
26.91 |
1.47 |
3.00 |
<0.1 |
<0.01 |
|
WSR02 |
7/5/2024 |
Sunny |
Mid-ebb |
Moderate |
B |
9 |
12:28:00 PM |
9.33 |
8.31 |
32.67 |
26.86 |
1.46 |
2.50 |
<0.1 |
<0.01 |
|
WSR02 |
7/5/2024 |
Sunny |
Mid-ebb |
Moderate |
B |
9 |
12:28:00 PM |
9.27 |
8.34 |
32.58 |
26.90 |
1.54 |
2.50 |
<0.1 |
<0.01 |
|
WSR03 |
7/5/2024 |
Sunny |
Mid-ebb |
Moderate |
S |
1 |
12:08:00 PM |
8.99 |
8.26 |
32.30 |
26.40 |
1.29 |
3.00 |
<0.1 |
<0.01 |
|
WSR03 |
7/5/2024 |
Sunny |
Mid-ebb |
Moderate |
S |
1 |
12:08:00 PM |
9.07 |
8.24 |
32.30 |
26.39 |
1.21 |
3.00 |
<0.1 |
<0.01 |
|
WSR03 |
7/5/2024 |
Sunny |
Mid-ebb |
Moderate |
M |
4 |
12:09:00 PM |
9.07 |
8.20 |
32.32 |
26.44 |
1.30 |
2.50 |
<0.1 |
<0.01 |
|
WSR03 |
7/5/2024 |
Sunny |
Mid-ebb |
Moderate |
M |
4 |
12:09:00 PM |
8.98 |
8.24 |
32.19 |
26.43 |
1.29 |
4.00 |
<0.1 |
<0.01 |
|
WSR03 |
7/5/2024 |
Sunny |
Mid-ebb |
Moderate |
B |
6 |
12:10:00 PM |
8.92 |
8.24 |
32.18 |
26.44 |
1.29 |
3.00 |
<0.1 |
<0.01 |
|
WSR03 |
7/5/2024 |
Sunny |
Mid-ebb |
Moderate |
B |
6 |
12:10:00 PM |
9.02 |
8.23 |
32.18 |
26.39 |
1.23 |
4.00 |
<0.1 |
<0.01 |
|
WSR04 |
7/5/2024 |
Sunny |
Mid-ebb |
Moderate |
S |
1 |
11:53:00 AM |
9.20 |
8.22 |
31.92 |
26.39 |
1.60 |
2.50 |
<0.1 |
<0.01 |
|
WSR04 |
7/5/2024 |
Sunny |
Mid-ebb |
Moderate |
S |
1 |
11:53:00 AM |
9.23 |
8.19 |
31.83 |
26.39 |
1.63 |
2.50 |
<0.1 |
<0.01 |
|
WSR04 |
7/5/2024 |
Sunny |
Mid-ebb |
Moderate |
M |
4 |
11:54:00 AM |
9.29 |
8.22 |
31.77 |
26.39 |
1.65 |
6.00 |
<0.1 |
<0.01 |
|
WSR04 |
7/5/2024 |
Sunny |
Mid-ebb |
Moderate |
M |
4 |
11:54:00 AM |
9.29 |
8.21 |
31.86 |
26.42 |
1.65 |
3.00 |
<0.1 |
<0.01 |
|
WSR04 |
7/5/2024 |
Sunny |
Mid-ebb |
Moderate |
B |
6 |
11:55:00 AM |
9.17 |
8.17 |
31.81 |
26.40 |
1.55 |
2.50 |
<0.1 |
<0.01 |
|
WSR04 |
7/5/2024 |
Sunny |
Mid-ebb |
Moderate |
B |
6 |
11:55:00 AM |
9.18 |
8.21 |
31.84 |
26.39 |
1.64 |
4.00 |
<0.1 |
<0.01 |
|
WSR16 |
7/5/2024 |
Sunny |
Mid-ebb |
Moderate |
S |
1 |
10:18:00 AM |
9.53 |
8.15 |
31.94 |
26.43 |
1.84 |
4.00 |
<0.1 |
<0.01 |
|
WSR16 |
7/5/2024 |
Sunny |
Mid-ebb |
Moderate |
S |
1 |
10:18:00 AM |
9.62 |
8.16 |
32.05 |
26.48 |
1.74 |
2.50 |
<0.1 |
<0.01 |
|
WSR16 |
7/5/2024 |
Sunny |
Mid-ebb |
Moderate |
M |
8 |
10:19:00 AM |
9.52 |
8.14 |
31.99 |
26.47 |
1.82 |
2.50 |
<0.1 |
<0.01 |
|
WSR16 |
7/5/2024 |
Sunny |
Mid-ebb |
Moderate |
M |
8 |
10:19:00 AM |
9.55 |
8.19 |
32.04 |
26.44 |
1.79 |
4.00 |
<0.1 |
<0.01 |
|
WSR16 |
7/5/2024 |
Sunny |
Mid-ebb |
Moderate |
B |
14 |
10:20:00 AM |
9.55 |
8.19 |
31.99 |
26.43 |
1.73 |
2.50 |
<0.1 |
<0.01 |
|
WSR16 |
7/5/2024 |
Sunny |
Mid-ebb |
Moderate |
B |
14 |
10:20:00 AM |
9.51 |
8.16 |
31.97 |
26.43 |
1.83 |
2.50 |
<0.1 |
<0.01 |
|
Location |
Date |
Weather |
Tide |
Sea Condition |
Water Level |
Depth (m) |
Time |
DO (mg/L) |
pH |
Sal (ppt) |
Temp ((¢XC) |
Turbidty (NTU) |
SS (mg/L) |
Iron (mg/L) |
Total Residual Chlorine (mg/L) |
|
WSR33 |
7/5/2024 |
Sunny |
Mid-ebb |
Moderate |
S |
1 |
11:36:00 AM |
9.10 |
8.23 |
33.24 |
26.87 |
2.08 |
2.50 |
<0.1 |
<0.01 |
|
WSR33 |
7/5/2024 |
Sunny |
Mid-ebb |
Moderate |
S |
1 |
11:36:00 AM |
9.09 |
8.24 |
33.25 |
26.82 |
2.14 |
2.50 |
<0.1 |
<0.01 |
|
WSR33 |
7/5/2024 |
Sunny |
Mid-ebb |
Moderate |
M |
4 |
11:37:00 AM |
9.07 |
8.24 |
33.27 |
26.86 |
2.16 |
2.50 |
<0.1 |
<0.01 |
|
WSR33 |
7/5/2024 |
Sunny |
Mid-ebb |
Moderate |
M |
4 |
11:37:00 AM |
9.08 |
8.25 |
33.13 |
26.82 |
2.16 |
2.50 |
<0.1 |
<0.01 |
|
WSR33 |
7/5/2024 |
Sunny |
Mid-ebb |
Moderate |
B |
6 |
11:38:00 AM |
9.04 |
8.23 |
33.14 |
26.83 |
2.06 |
3.00 |
<0.1 |
<0.01 |
|
WSR33 |
7/5/2024 |
Sunny |
Mid-ebb |
Moderate |
B |
6 |
11:38:00 AM |
8.99 |
8.28 |
33.12 |
26.83 |
2.08 |
2.50 |
<0.1 |
<0.01 |
|
WSR36 |
7/5/2024 |
Sunny |
Mid-ebb |
Moderate |
S |
1 |
11:20:00 AM |
8.87 |
8.30 |
31.93 |
26.47 |
1.94 |
2.50 |
<0.1 |
<0.01 |
|
WSR36 |
7/5/2024 |
Sunny |
Mid-ebb |
Moderate |
S |
1 |
11:20:00 AM |
8.87 |
8.30 |
31.85 |
26.49 |
1.94 |
2.50 |
<0.1 |
<0.01 |
|
WSR36 |
7/5/2024 |
Sunny |
Mid-ebb |
Moderate |
M |
3 |
11:21:00 AM |
8.82 |
8.27 |
31.86 |
26.47 |
1.92 |
2.50 |
<0.1 |
<0.01 |
|
WSR36 |
7/5/2024 |
Sunny |
Mid-ebb |
Moderate |
M |
3 |
11:21:00 AM |
8.79 |
8.32 |
31.91 |
26.45 |
1.86 |
2.50 |
<0.1 |
<0.01 |
|
WSR36 |
7/5/2024 |
Sunny |
Mid-ebb |
Moderate |
B |
6 |
11:21:00 AM |
8.92 |
8.25 |
32.00 |
26.49 |
1.97 |
2.50 |
<0.1 |
<0.01 |
|
WSR36 |
7/5/2024 |
Sunny |
Mid-ebb |
Moderate |
B |
6 |
11:21:00 AM |
8.89 |
8.25 |
31.85 |
26.46 |
1.89 |
2.50 |
<0.1 |
<0.01 |
|
WSR37 |
7/5/2024 |
Sunny |
Mid-ebb |
Moderate |
S |
1 |
11:14:00 AM |
9.30 |
8.20 |
32.50 |
26.60 |
1.61 |
2.50 |
<0.1 |
<0.01 |
|
WSR37 |
7/5/2024 |
Sunny |
Mid-ebb |
Moderate |
S |
1 |
11:14:00 AM |
9.32 |
8.18 |
32.49 |
26.58 |
1.58 |
2.50 |
<0.1 |
<0.01 |
|
WSR37 |
7/5/2024 |
Sunny |
Mid-ebb |
Moderate |
M |
4 |
11:15:00 AM |
9.21 |
8.22 |
32.44 |
26.58 |
1.56 |
2.50 |
<0.1 |
<0.01 |
|
WSR37 |
7/5/2024 |
Sunny |
Mid-ebb |
Moderate |
M |
4 |
11:15:00 AM |
9.32 |
8.19 |
32.47 |
26.60 |
1.58 |
3.00 |
<0.1 |
<0.01 |
|
WSR37 |
7/5/2024 |
Sunny |
Mid-ebb |
Moderate |
B |
7 |
11:16:00 AM |
9.24 |
8.20 |
32.38 |
26.59 |
1.61 |
4.00 |
<0.1 |
<0.01 |
|
WSR37 |
7/5/2024 |
Sunny |
Mid-ebb |
Moderate |
B |
7 |
11:16:00 AM |
9.21 |
8.22 |
32.49 |
26.60 |
1.59 |
2.50 |
<0.1 |
<0.01 |
|
NF1 |
7/5/2024 |
Sunny |
Mid-ebb |
Moderate |
S |
1 |
10:42:00 AM |
9.38 |
8.22 |
32.58 |
26.64 |
1.70 |
3.00 |
<0.1 |
<0.01 |
|
NF1 |
7/5/2024 |
Sunny |
Mid-ebb |
Moderate |
S |
1 |
10:42:00 AM |
9.31 |
8.20 |
32.51 |
26.66 |
1.74 |
2.50 |
<0.1 |
<0.01 |
|
NF1 |
7/5/2024 |
Sunny |
Mid-ebb |
Moderate |
M |
7 |
10:43:00 AM |
9.27 |
8.27 |
32.46 |
26.70 |
1.65 |
2.50 |
<0.1 |
<0.01 |
|
NF1 |
7/5/2024 |
Sunny |
Mid-ebb |
Moderate |
M |
7 |
10:43:00 AM |
9.30 |
8.24 |
32.48 |
26.68 |
1.69 |
2.50 |
<0.1 |
<0.01 |
|
NF1 |
7/5/2024 |
Sunny |
Mid-ebb |
Moderate |
B |
12 |
10:44:00 AM |
9.32 |
8.22 |
32.47 |
26.69 |
1.66 |
2.50 |
<0.1 |
<0.01 |
|
NF1 |
7/5/2024 |
Sunny |
Mid-ebb |
Moderate |
B |
12 |
10:44:00 AM |
9.25 |
8.21 |
32.51 |
26.65 |
1.73 |
2.50 |
<0.1 |
<0.01 |
|
NF2 |
7/5/2024 |
Sunny |
Mid-ebb |
Moderate |
S |
1 |
10:59:00 AM |
9.19 |
8.38 |
32.98 |
26.39 |
2.00 |
2.50 |
<0.1 |
<0.01 |
|
NF2 |
7/5/2024 |
Sunny |
Mid-ebb |
Moderate |
S |
1 |
10:59:00 AM |
9.29 |
8.40 |
32.95 |
26.43 |
1.99 |
2.50 |
<0.1 |
<0.01 |
|
NF2 |
7/5/2024 |
Sunny |
Mid-ebb |
Moderate |
M |
5 |
11:00:00 AM |
9.18 |
8.40 |
32.99 |
26.44 |
2.06 |
2.50 |
<0.1 |
<0.01 |
|
NF2 |
7/5/2024 |
Sunny |
Mid-ebb |
Moderate |
M |
5 |
11:00:00 AM |
9.24 |
8.41 |
32.99 |
26.41 |
2.06 |
2.50 |
<0.1 |
<0.01 |
|
NF2 |
7/5/2024 |
Sunny |
Mid-ebb |
Moderate |
B |
9 |
11:01:00 AM |
9.30 |
8.41 |
33.03 |
26.42 |
1.97 |
2.50 |
<0.1 |
<0.01 |
|
NF2 |
7/5/2024 |
Sunny |
Mid-ebb |
Moderate |
B |
9 |
11:01:00 AM |
9.28 |
8.44 |
33.05 |
26.39 |
1.98 |
2.50 |
<0.1 |
<0.01 |
|
Location |
Date |
Weather |
Tide |
Sea Condition |
Water Level |
Depth (m) |
Time |
DO (mg/L) |
pH |
Sal (ppt) |
Temp ((¢XC) |
Turbidty (NTU) |
SS (mg/L) |
Iron (mg/L) |
Total Residual Chlorine (mg/L) |
|
NF3 |
7/5/2024 |
Sunny |
Mid-ebb |
Moderate |
S |
1 |
11:07:00 AM |
9.11 |
8.26 |
31.96 |
26.47 |
1.97 |
2.50 |
<0.1 |
<0.01 |
|
NF3 |
7/5/2024 |
Sunny |
Mid-ebb |
Moderate |
S |
1 |
11:07:00 AM |
9.07 |
8.25 |
32.03 |
26.49 |
1.90 |
3.00 |
<0.1 |
<0.01 |
|
NF3 |
7/5/2024 |
Sunny |
Mid-ebb |
Moderate |
M |
6 |
11:08:00 AM |
9.09 |
8.25 |
31.98 |
26.44 |
1.90 |
2.50 |
<0.1 |
<0.01 |
|
NF3 |
7/5/2024 |
Sunny |
Mid-ebb |
Moderate |
M |
6 |
11:08:00 AM |
9.09 |
8.31 |
32.06 |
26.46 |
1.97 |
2.50 |
<0.1 |
<0.01 |
|
NF3 |
7/5/2024 |
Sunny |
Mid-ebb |
Moderate |
B |
11 |
11:09:00 AM |
9.15 |
8.29 |
32.05 |
26.45 |
1.85 |
2.50 |
<0.1 |
<0.01 |
|
NF3 |
7/5/2024 |
Sunny |
Mid-ebb |
Moderate |
B |
11 |
11:09:00 AM |
9.19 |
8.28 |
31.98 |
26.46 |
1.87 |
2.50 |
<0.1 |
<0.01 |
|
CE |
9/5/2024 |
Cloudy |
Mid-ebb |
Moderate |
S |
1 |
11:16:00 AM |
8.38 |
8.29 |
32.67 |
26.20 |
2.34 |
4.00 |
<0.1 |
<0.01 |
|
CE |
9/5/2024 |
Cloudy |
Mid-ebb |
Moderate |
S |
1 |
11:16:00 AM |
8.46 |
8.26 |
32.77 |
26.15 |
2.33 |
4.00 |
<0.1 |
<0.01 |
|
CE |
9/5/2024 |
Cloudy |
Mid-ebb |
Moderate |
M |
11 |
11:17:00 AM |
8.33 |
8.29 |
32.81 |
26.14 |
2.33 |
2.50 |
<0.1 |
<0.01 |
|
CE |
9/5/2024 |
Cloudy |
Mid-ebb |
Moderate |
M |
11 |
11:17:00 AM |
8.47 |
8.32 |
32.71 |
26.15 |
2.34 |
2.50 |
<0.1 |
<0.01 |
|
CE |
9/5/2024 |
Cloudy |
Mid-ebb |
Moderate |
B |
21 |
11:18:00 AM |
8.42 |
8.30 |
32.78 |
26.19 |
2.40 |
5.00 |
<0.1 |
<0.01 |
|
CE |
9/5/2024 |
Cloudy |
Mid-ebb |
Moderate |
B |
21 |
11:18:00 AM |
8.44 |
8.32 |
32.69 |
26.20 |
2.30 |
4.00 |
<0.1 |
<0.01 |
|
CF |
9/5/2024 |
Cloudy |
Mid-ebb |
Moderate |
S |
1 |
2:20:00 PM |
8.53 |
8.14 |
32.72 |
26.26 |
2.07 |
2.50 |
<0.1 |
<0.01 |
|
CF |
9/5/2024 |
Cloudy |
Mid-ebb |
Moderate |
S |
1 |
2:20:00 PM |
8.63 |
8.16 |
32.71 |
26.25 |
2.11 |
3.00 |
<0.1 |
<0.01 |
|
CF |
9/5/2024 |
Cloudy |
Mid-ebb |
Moderate |
M |
11 |
2:21:00 PM |
8.57 |
8.14 |
32.81 |
26.21 |
2.05 |
3.00 |
<0.1 |
<0.01 |
|
CF |
9/5/2024 |
Cloudy |
Mid-ebb |
Moderate |
M |
11 |
2:21:00 PM |
8.61 |
8.15 |
32.90 |
26.25 |
2.01 |
2.50 |
<0.1 |
<0.01 |
|
CF |
9/5/2024 |
Cloudy |
Mid-ebb |
Moderate |
B |
20 |
2:22:00 PM |
8.67 |
8.17 |
32.79 |
26.21 |
2.02 |
4.00 |
<0.1 |
<0.01 |
|
CF |
9/5/2024 |
Cloudy |
Mid-ebb |
Moderate |
B |
20 |
2:22:00 PM |
8.65 |
8.15 |
32.81 |
26.26 |
2.08 |
4.00 |
<0.1 |
<0.01 |
|
WSR01 |
9/5/2024 |
Cloudy |
Mid-ebb |
Moderate |
S |
1 |
1:55:00 PM |
9.41 |
8.16 |
32.08 |
26.07 |
1.92 |
2.50 |
<0.1 |
<0.01 |
|
WSR01 |
9/5/2024 |
Cloudy |
Mid-ebb |
Moderate |
S |
1 |
1:55:00 PM |
9.46 |
8.18 |
32.00 |
26.06 |
2.00 |
3.00 |
<0.1 |
<0.01 |
|
WSR01 |
9/5/2024 |
Cloudy |
Mid-ebb |
Moderate |
M |
5 |
1:56:00 PM |
9.46 |
8.16 |
32.09 |
26.01 |
1.95 |
4.00 |
<0.1 |
<0.01 |
|
WSR01 |
9/5/2024 |
Cloudy |
Mid-ebb |
Moderate |
M |
5 |
1:56:00 PM |
9.39 |
8.18 |
31.92 |
26.03 |
1.92 |
3.00 |
<0.1 |
<0.01 |
|
WSR01 |
9/5/2024 |
Cloudy |
Mid-ebb |
Moderate |
B |
8 |
1:57:00 PM |
9.45 |
8.17 |
31.98 |
26.06 |
1.97 |
3.00 |
<0.1 |
<0.01 |
|
WSR01 |
9/5/2024 |
Cloudy |
Mid-ebb |
Moderate |
B |
8 |
1:57:00 PM |
9.40 |
8.15 |
32.09 |
26.05 |
1.98 |
5.00 |
<0.1 |
<0.01 |
|
WSR02 |
9/5/2024 |
Cloudy |
Mid-ebb |
Moderate |
S |
1 |
1:35:00 PM |
8.81 |
8.26 |
32.57 |
26.20 |
1.49 |
4.00 |
<0.1 |
<0.01 |
|
WSR02 |
9/5/2024 |
Cloudy |
Mid-ebb |
Moderate |
S |
1 |
1:35:00 PM |
8.74 |
8.32 |
32.62 |
26.17 |
1.42 |
6.00 |
<0.1 |
<0.01 |
|
WSR02 |
9/5/2024 |
Cloudy |
Mid-ebb |
Moderate |
M |
5 |
1:36:00 PM |
8.75 |
8.28 |
32.50 |
26.16 |
1.41 |
2.50 |
<0.1 |
<0.01 |
|
WSR02 |
9/5/2024 |
Cloudy |
Mid-ebb |
Moderate |
M |
5 |
1:36:00 PM |
8.82 |
8.33 |
32.60 |
26.21 |
1.45 |
2.50 |
<0.1 |
<0.01 |
|
WSR02 |
9/5/2024 |
Cloudy |
Mid-ebb |
Moderate |
B |
9 |
1:37:00 PM |
8.69 |
8.32 |
32.55 |
26.20 |
1.49 |
3.00 |
<0.1 |
<0.01 |
|
WSR02 |
9/5/2024 |
Cloudy |
Mid-ebb |
Moderate |
B |
9 |
1:37:00 PM |
8.81 |
8.32 |
32.59 |
26.21 |
1.47 |
3.00 |
<0.1 |
<0.01 |
|
Location |
Date |
Weather |
Tide |
Sea Condition |
Water Level |
Depth (m) |
Time |
DO (mg/L) |
pH |
Sal (ppt) |
Temp ((¢XC) |
Turbidty (NTU) |
SS (mg/L) |
Iron (mg/L) |
Total Residual Chlorine (mg/L) |
|
WSR03 |
9/5/2024 |
Cloudy |
Mid-ebb |
Moderate |
S |
1 |
1:20:00 PM |
8.57 |
8.27 |
31.58 |
26.10 |
1.75 |
6.00 |
<0.1 |
<0.01 |
|
WSR03 |
9/5/2024 |
Cloudy |
Mid-ebb |
Moderate |
S |
1 |
1:20:00 PM |
8.44 |
8.28 |
31.39 |
26.15 |
1.80 |
3.00 |
<0.1 |
<0.01 |
|
WSR03 |
9/5/2024 |
Cloudy |
Mid-ebb |
Moderate |
M |
4 |
1:21:00 PM |
8.55 |
8.32 |
31.39 |
26.11 |
1.78 |
3.00 |
<0.1 |
<0.01 |
|
WSR03 |
9/5/2024 |
Cloudy |
Mid-ebb |
Moderate |
M |
4 |
1:21:00 PM |
8.44 |
8.32 |
31.57 |
26.09 |
1.74 |
3.00 |
<0.1 |
<0.01 |
|
WSR03 |
9/5/2024 |
Cloudy |
Mid-ebb |
Moderate |
B |
7 |
1:22:00 PM |
8.55 |
8.30 |
31.39 |
26.11 |
1.71 |
2.50 |
<0.1 |
<0.01 |
|
WSR03 |
9/5/2024 |
Cloudy |
Mid-ebb |
Moderate |
B |
7 |
1:22:00 PM |
8.59 |
8.29 |
31.55 |
26.11 |
1.72 |
2.50 |
<0.1 |
<0.01 |
|
WSR04 |
9/5/2024 |
Cloudy |
Mid-ebb |
Moderate |
S |
1 |
1:05:00 PM |
9.12 |
8.18 |
32.96 |
26.31 |
1.98 |
2.50 |
<0.1 |
<0.01 |
|
WSR04 |
9/5/2024 |
Cloudy |
Mid-ebb |
Moderate |
S |
1 |
1:05:00 PM |
9.15 |
8.19 |
32.94 |
26.29 |
1.91 |
2.50 |
<0.1 |
<0.01 |
|
WSR04 |
9/5/2024 |
Cloudy |
Mid-ebb |
Moderate |
M |
4 |
1:06:00 PM |
9.06 |
8.17 |
33.02 |
26.33 |
2.00 |
2.50 |
<0.1 |
<0.01 |
|
WSR04 |
9/5/2024 |
Cloudy |
Mid-ebb |
Moderate |
M |
4 |
1:06:00 PM |
9.12 |
8.16 |
32.99 |
26.31 |
1.88 |
3.00 |
<0.1 |
<0.01 |
|
WSR04 |
9/5/2024 |
Cloudy |
Mid-ebb |
Moderate |
B |
7 |
1:07:00 PM |
9.13 |
8.15 |
32.95 |
26.29 |
1.87 |
3.00 |
<0.1 |
<0.01 |
|
WSR04 |
9/5/2024 |
Cloudy |
Mid-ebb |
Moderate |
B |
7 |
1:07:00 PM |
8.99 |
8.16 |
32.87 |
26.31 |
1.88 |
3.00 |
<0.1 |
<0.01 |
|
WSR16 |
9/5/2024 |
Cloudy |
Mid-ebb |
Moderate |
S |
1 |
11:38:00 AM |
9.29 |
8.26 |
32.70 |
26.11 |
2.11 |
4.00 |
<0.1 |
<0.01 |
|
WSR16 |
9/5/2024 |
Cloudy |
Mid-ebb |
Moderate |
S |
1 |
11:38:00 AM |
9.33 |
8.26 |
32.64 |
26.12 |
2.13 |
5.00 |
<0.1 |
<0.01 |
|
WSR16 |
9/5/2024 |
Cloudy |
Mid-ebb |
Moderate |
M |
8 |
11:39:00 AM |
9.22 |
8.23 |
32.69 |
26.09 |
2.13 |
3.00 |
<0.1 |
<0.01 |
|
WSR16 |
9/5/2024 |
Cloudy |
Mid-ebb |
Moderate |
M |
8 |
11:39:00 AM |
9.34 |
8.24 |
32.58 |
26.10 |
2.11 |
2.50 |
<0.1 |
<0.01 |
|
WSR16 |
9/5/2024 |
Cloudy |
Mid-ebb |
Moderate |
B |
16 |
11:40:00 AM |
9.24 |
8.32 |
32.72 |
26.14 |
2.10 |
3.00 |
<0.1 |
<0.01 |
|
WSR16 |
9/5/2024 |
Cloudy |
Mid-ebb |
Moderate |
B |
16 |
11:40:00 AM |
9.23 |
8.27 |
32.74 |
26.10 |
2.10 |
2.50 |
<0.1 |
<0.01 |
|
WSR33 |
9/5/2024 |
Cloudy |
Mid-ebb |
Moderate |
S |
1 |
12:50:00 PM |
9.30 |
8.14 |
31.42 |
26.29 |
1.66 |
2.50 |
<0.1 |
<0.01 |
|
WSR33 |
9/5/2024 |
Cloudy |
Mid-ebb |
Moderate |
S |
1 |
12:50:00 PM |
9.31 |
8.15 |
31.48 |
26.28 |
1.62 |
2.50 |
<0.1 |
<0.01 |
|
WSR33 |
9/5/2024 |
Cloudy |
Mid-ebb |
Moderate |
M |
4 |
12:51:00 PM |
9.21 |
8.15 |
31.54 |
26.26 |
1.60 |
4.00 |
<0.1 |
<0.01 |
|
WSR33 |
9/5/2024 |
Cloudy |
Mid-ebb |
Moderate |
M |
4 |
12:51:00 PM |
9.27 |
8.15 |
31.56 |
26.30 |
1.62 |
3.00 |
<0.1 |
<0.01 |
|
WSR33 |
9/5/2024 |
Cloudy |
Mid-ebb |
Moderate |
B |
6 |
12:52:00 PM |
9.33 |
8.17 |
31.55 |
26.31 |
1.64 |
4.00 |
<0.1 |
<0.01 |
|
WSR33 |
9/5/2024 |
Cloudy |
Mid-ebb |
Moderate |
B |
6 |
12:52:00 PM |
9.32 |
8.18 |
31.42 |
26.30 |
1.62 |
5.00 |
<0.1 |
<0.01 |
|
WSR36 |
9/5/2024 |
Cloudy |
Mid-ebb |
Moderate |
S |
1 |
12:36:00 PM |
9.02 |
8.25 |
32.26 |
26.42 |
1.83 |
3.00 |
<0.1 |
<0.01 |
|
WSR36 |
9/5/2024 |
Cloudy |
Mid-ebb |
Moderate |
S |
1 |
12:36:00 PM |
8.95 |
8.22 |
32.23 |
26.40 |
1.74 |
2.50 |
<0.1 |
<0.01 |
|
WSR36 |
9/5/2024 |
Cloudy |
Mid-ebb |
Moderate |
M |
3 |
12:37:00 PM |
9.09 |
8.25 |
32.12 |
26.43 |
1.76 |
2.50 |
<0.1 |
<0.01 |
|
WSR36 |
9/5/2024 |
Cloudy |
Mid-ebb |
Moderate |
M |
3 |
12:37:00 PM |
9.07 |
8.19 |
32.17 |
26.44 |
1.72 |
3.00 |
<0.1 |
<0.01 |
|
WSR36 |
9/5/2024 |
Cloudy |
Mid-ebb |
Moderate |
B |
6 |
12:37:00 PM |
8.93 |
8.16 |
32.22 |
26.45 |
1.74 |
3.00 |
<0.1 |
<0.01 |
|
WSR36 |
9/5/2024 |
Cloudy |
Mid-ebb |
Moderate |
B |
6 |
12:37:00 PM |
8.98 |
8.21 |
32.27 |
26.42 |
1.73 |
3.00 |
<0.1 |
<0.01 |
|
Location |
Date |
Weather |
Tide |
Sea Condition |
Water Level |
Depth (m) |
Time |
DO (mg/L) |
pH |
Sal (ppt) |
Temp ((¢XC) |
Turbidty (NTU) |
SS (mg/L) |
Iron (mg/L) |
Total Residual Chlorine (mg/L) |
|
WSR37 |
9/5/2024 |
Cloudy |
Mid-ebb |
Moderate |
S |
1 |
12:30:00 PM |
8.57 |
8.31 |
31.80 |
26.39 |
1.48 |
3.00 |
<0.1 |
<0.01 |
|
WSR37 |
9/5/2024 |
Cloudy |
Mid-ebb |
Moderate |
S |
1 |
12:30:00 PM |
8.48 |
8.30 |
31.94 |
26.38 |
1.48 |
5.00 |
<0.1 |
<0.01 |
|
WSR37 |
9/5/2024 |
Cloudy |
Mid-ebb |
Moderate |
M |
4 |
12:31:00 PM |
8.52 |
8.30 |
31.86 |
26.36 |
1.41 |
3.00 |
<0.1 |
<0.01 |
|
WSR37 |
9/5/2024 |
Cloudy |
Mid-ebb |
Moderate |
M |
4 |
12:31:00 PM |
8.42 |
8.29 |
31.91 |
26.37 |
1.49 |
3.00 |
<0.1 |
<0.01 |
|
WSR37 |
9/5/2024 |
Cloudy |
Mid-ebb |
Moderate |
B |
7 |
12:32:00 PM |
8.49 |
8.29 |
31.81 |
26.36 |
1.50 |
3.00 |
<0.1 |
<0.01 |
|
WSR37 |
9/5/2024 |
Cloudy |
Mid-ebb |
Moderate |
B |
7 |
12:32:00 PM |
8.52 |
8.32 |
31.79 |
26.34 |
1.44 |
2.50 |
<0.1 |
<0.01 |
|
NF1 |
9/5/2024 |
Cloudy |
Mid-ebb |
Moderate |
S |
1 |
12:00:00 PM |
9.36 |
8.23 |
31.28 |
26.24 |
1.65 |
2.50 |
<0.1 |
<0.01 |
|
NF1 |
9/5/2024 |
Cloudy |
Mid-ebb |
Moderate |
S |
1 |
12:00:00 PM |
9.36 |
8.27 |
31.25 |
26.24 |
1.66 |
2.50 |
<0.1 |
<0.01 |
|
NF1 |
9/5/2024 |
Cloudy |
Mid-ebb |
Moderate |
M |
7 |
12:01:00 PM |
9.31 |
8.30 |
31.26 |
26.26 |
1.69 |
3.00 |
<0.1 |
<0.01 |
|
NF1 |
9/5/2024 |
Cloudy |
Mid-ebb |
Moderate |
M |
7 |
12:01:00 PM |
9.37 |
8.21 |
31.23 |
26.20 |
1.71 |
2.50 |
<0.1 |
<0.01 |
|
NF1 |
9/5/2024 |
Cloudy |
Mid-ebb |
Moderate |
B |
13 |
12:02:00 PM |
9.30 |
8.22 |
31.30 |
26.22 |
1.67 |
2.50 |
<0.1 |
<0.01 |
|
NF1 |
9/5/2024 |
Cloudy |
Mid-ebb |
Moderate |
B |
13 |
12:02:00 PM |
9.38 |
8.30 |
31.27 |
26.23 |
1.66 |
2.50 |
<0.1 |
<0.01 |
|
NF2 |
9/5/2024 |
Cloudy |
Mid-ebb |
Moderate |
S |
1 |
12:15:00 PM |
8.73 |
8.28 |
32.70 |
26.19 |
2.07 |
2.50 |
<0.1 |
<0.01 |
|
NF2 |
9/5/2024 |
Cloudy |
Mid-ebb |
Moderate |
S |
1 |
12:15:00 PM |
8.79 |
8.21 |
32.81 |
26.17 |
2.08 |
3.00 |
<0.1 |
<0.01 |
|
NF2 |
9/5/2024 |
Cloudy |
Mid-ebb |
Moderate |
M |
5 |
12:16:00 PM |
8.73 |
8.25 |
32.65 |
26.16 |
2.27 |
2.50 |
<0.1 |
<0.01 |
|
NF2 |
9/5/2024 |
Cloudy |
Mid-ebb |
Moderate |
M |
5 |
12:16:00 PM |
8.77 |
8.25 |
32.75 |
26.14 |
1.98 |
4.00 |
<0.1 |
<0.01 |
|
NF2 |
9/5/2024 |
Cloudy |
Mid-ebb |
Moderate |
B |
9 |
12:17:00 PM |
8.74 |
8.21 |
32.71 |
26.16 |
2.27 |
3.00 |
<0.1 |
<0.01 |
|
NF2 |
9/5/2024 |
Cloudy |
Mid-ebb |
Moderate |
B |
9 |
12:17:00 PM |
8.71 |
8.30 |
32.83 |
26.15 |
1.97 |
2.50 |
<0.1 |
<0.01 |
|
NF3 |
9/5/2024 |
Cloudy |
Mid-ebb |
Moderate |
S |
1 |
12:23:00 PM |
9.13 |
8.29 |
31.87 |
26.05 |
1.84 |
3.00 |
<0.1 |
<0.01 |
|
NF3 |
9/5/2024 |
Cloudy |
Mid-ebb |
Moderate |
S |
1 |
12:23:00 PM |
9.22 |
8.31 |
32.02 |
26.11 |
1.84 |
2.50 |
<0.1 |
<0.01 |
|
NF3 |
9/5/2024 |
Cloudy |
Mid-ebb |
Moderate |
M |
6 |
12:24:00 PM |
9.11 |
8.32 |
32.02 |
26.05 |
1.82 |
3.00 |
<0.1 |
<0.01 |
|
NF3 |
9/5/2024 |
Cloudy |
Mid-ebb |
Moderate |
M |
6 |
12:24:00 PM |
9.15 |
8.28 |
31.83 |
26.10 |
1.79 |
3.00 |
<0.1 |
<0.01 |
|
NF3 |
9/5/2024 |
Cloudy |
Mid-ebb |
Moderate |
B |
11 |
12:25:00 PM |
9.11 |
8.30 |
32.01 |
26.11 |
1.82 |
2.50 |
<0.1 |
<0.01 |
|
NF3 |
9/5/2024 |
Cloudy |
Mid-ebb |
Moderate |
B |
11 |
12:25:00 PM |
9.18 |
8.30 |
31.99 |
26.08 |
1.78 |
2.50 |
<0.1 |
<0.01 |
|
CE |
11/5/2024 |
Cloudy |
Mid-flood |
Moderate |
S |
1 |
11:00:00 AM |
9.45 |
8.09 |
33.04 |
26.25 |
2.43 |
2.50 |
<0.1 |
<0.01 |
|
CE |
11/5/2024 |
Cloudy |
Mid-flood |
Moderate |
S |
1 |
11:00:00 AM |
9.48 |
8.10 |
33.01 |
26.27 |
2.44 |
3.00 |
<0.1 |
<0.01 |
|
CE |
11/5/2024 |
Cloudy |
Mid-flood |
Moderate |
M |
10 |
11:01:00 AM |
9.42 |
8.09 |
33.08 |
26.25 |
2.39 |
2.50 |
<0.1 |
<0.01 |
|
CE |
11/5/2024 |
Cloudy |
Mid-flood |
Moderate |
M |
10 |
11:01:00 AM |
9.54 |
8.12 |
33.14 |
26.26 |
2.35 |
2.50 |
<0.1 |
<0.01 |
|
CE |
11/5/2024 |
Cloudy |
Mid-flood |
Moderate |
B |
20 |
11:02:00 AM |
9.54 |
8.09 |
33.04 |
26.24 |
2.37 |
3.00 |
<0.1 |
<0.01 |
|
CE |
11/5/2024 |
Cloudy |
Mid-flood |
Moderate |
B |
20 |
11:02:00 AM |
9.45 |
8.15 |
33.05 |
26.23 |
2.43 |
2.50 |
<0.1 |
<0.01 |
|
Location |
Date |
Weather |
Tide |
Sea Condition |
Water Level |
Depth (m) |
Time |
DO (mg/L) |
pH |
Sal (ppt) |
Temp ((¢XC) |
Turbidty (NTU) |
SS (mg/L) |
Iron (mg/L) |
Total Residual Chlorine (mg/L) |
|
CF |
11/5/2024 |
Cloudy |
Mid-flood |
Moderate |
S |
1 |
8:00:00 AM |
8.83 |
8.22 |
32.07 |
26.33 |
2.11 |
3.00 |
<0.1 |
<0.01 |
|
CF |
11/5/2024 |
Cloudy |
Mid-flood |
Moderate |
S |
1 |
8:00:00 AM |
8.82 |
8.23 |
32.01 |
26.30 |
2.03 |
2.50 |
<0.1 |
<0.01 |
|
CF |
11/5/2024 |
Cloudy |
Mid-flood |
Moderate |
M |
11 |
8:01:00 AM |
8.84 |
8.19 |
31.92 |
26.33 |
2.08 |
2.50 |
<0.1 |
<0.01 |
|
CF |
11/5/2024 |
Cloudy |
Mid-flood |
Moderate |
M |
11 |
8:01:00 AM |
8.79 |
8.24 |
32.09 |
26.34 |
2.05 |
4.00 |
<0.1 |
<0.01 |
|
CF |
11/5/2024 |
Cloudy |
Mid-flood |
Moderate |
B |
20 |
8:02:00 AM |
8.82 |
8.23 |
32.03 |
26.34 |
2.13 |
4.00 |
<0.1 |
<0.01 |
|
CF |
11/5/2024 |
Cloudy |
Mid-flood |
Moderate |
B |
20 |
8:02:00 AM |
8.78 |
8.20 |
31.94 |
26.32 |
2.10 |
3.00 |
<0.1 |
<0.01 |
|
WSR01 |
11/5/2024 |
Cloudy |
Mid-flood |
Moderate |
S |
1 |
8:23:00 AM |
9.08 |
8.34 |
32.67 |
26.14 |
1.60 |
2.50 |
<0.1 |
<0.01 |
|
WSR01 |
11/5/2024 |
Cloudy |
Mid-flood |
Moderate |
S |
1 |
8:23:00 AM |
9.10 |
8.33 |
32.62 |
26.10 |
1.54 |
4.00 |
<0.1 |
<0.01 |
|
WSR01 |
11/5/2024 |
Cloudy |
Mid-flood |
Moderate |
M |
4 |
8:24:00 AM |
8.99 |
8.34 |
32.53 |
26.12 |
1.54 |
2.50 |
<0.1 |
<0.01 |
|
WSR01 |
11/5/2024 |
Cloudy |
Mid-flood |
Moderate |
M |
4 |
8:24:00 AM |
9.07 |
8.29 |
32.54 |
26.10 |
1.54 |
4.00 |
<0.1 |
<0.01 |
|
WSR01 |
11/5/2024 |
Cloudy |
Mid-flood |
Moderate |
B |
8 |
8:25:00 AM |
9.00 |
8.31 |
32.67 |
26.16 |
1.52 |
2.50 |
<0.1 |
<0.01 |
|
WSR01 |
11/5/2024 |
Cloudy |
Mid-flood |
Moderate |
B |
8 |
8:25:00 AM |
9.12 |
8.31 |
32.66 |
26.10 |
1.58 |
4.00 |
<0.1 |
<0.01 |
|
WSR02 |
11/5/2024 |
Cloudy |
Mid-flood |
Moderate |
S |
1 |
8:41:00 AM |
9.17 |
8.24 |
32.64 |
26.30 |
2.17 |
3.00 |
<0.1 |
<0.01 |
|
WSR02 |
11/5/2024 |
Cloudy |
Mid-flood |
Moderate |
S |
1 |
8:41:00 AM |
9.24 |
8.25 |
32.60 |
26.27 |
2.14 |
2.50 |
<0.1 |
<0.01 |
|
WSR02 |
11/5/2024 |
Cloudy |
Mid-flood |
Moderate |
M |
5 |
8:42:00 AM |
9.21 |
8.22 |
32.63 |
26.28 |
2.18 |
3.00 |
<0.1 |
<0.01 |
|
WSR02 |
11/5/2024 |
Cloudy |
Mid-flood |
Moderate |
M |
5 |
8:42:00 AM |
9.16 |
8.24 |
32.73 |
26.28 |
2.17 |
2.50 |
<0.1 |
<0.01 |
|
WSR02 |
11/5/2024 |
Cloudy |
Mid-flood |
Moderate |
B |
9 |
8:43:00 AM |
9.19 |
8.24 |
32.69 |
26.30 |
2.16 |
2.50 |
<0.1 |
<0.01 |
|
WSR02 |
11/5/2024 |
Cloudy |
Mid-flood |
Moderate |
B |
9 |
8:43:00 AM |
9.15 |
8.25 |
32.73 |
26.26 |
2.17 |
2.50 |
<0.1 |
<0.01 |
|
WSR03 |
11/5/2024 |
Cloudy |
Mid-flood |
Moderate |
S |
1 |
8:55:00 AM |
9.09 |
8.15 |
31.99 |
26.04 |
1.94 |
3.00 |
<0.1 |
<0.01 |
|
WSR03 |
11/5/2024 |
Cloudy |
Mid-flood |
Moderate |
S |
1 |
8:55:00 AM |
9.12 |
8.21 |
32.01 |
26.03 |
1.96 |
2.50 |
<0.1 |
<0.01 |
|
WSR03 |
11/5/2024 |
Cloudy |
Mid-flood |
Moderate |
M |
4 |
8:56:00 AM |
9.08 |
8.19 |
32.06 |
26.05 |
1.92 |
2.50 |
<0.1 |
<0.01 |
|
WSR03 |
11/5/2024 |
Cloudy |
Mid-flood |
Moderate |
M |
4 |
8:56:00 AM |
9.08 |
8.16 |
32.05 |
26.08 |
1.96 |
3.00 |
<0.1 |
<0.01 |
|
WSR03 |
11/5/2024 |
Cloudy |
Mid-flood |
Moderate |
B |
7 |
8:57:00 AM |
9.12 |
8.21 |
31.98 |
26.07 |
1.98 |
4.00 |
<0.1 |
<0.01 |
|
WSR03 |
11/5/2024 |
Cloudy |
Mid-flood |
Moderate |
B |
7 |
8:57:00 AM |
9.02 |
8.20 |
31.97 |
26.07 |
1.95 |
2.50 |
<0.1 |
<0.01 |
|
WSR04 |
11/5/2024 |
Cloudy |
Mid-flood |
Moderate |
S |
1 |
9:09:00 AM |
9.55 |
8.29 |
32.14 |
26.20 |
1.58 |
2.50 |
<0.1 |
<0.01 |
|
WSR04 |
11/5/2024 |
Cloudy |
Mid-flood |
Moderate |
S |
1 |
9:09:00 AM |
9.63 |
8.30 |
32.13 |
26.22 |
1.61 |
2.50 |
<0.1 |
<0.01 |
|
WSR04 |
11/5/2024 |
Cloudy |
Mid-flood |
Moderate |
M |
4 |
9:10:00 AM |
9.56 |
8.29 |
32.05 |
26.20 |
1.63 |
2.50 |
<0.1 |
<0.01 |
|
WSR04 |
11/5/2024 |
Cloudy |
Mid-flood |
Moderate |
M |
4 |
9:10:00 AM |
9.62 |
8.31 |
32.00 |
26.24 |
1.56 |
2.50 |
<0.1 |
<0.01 |
|
WSR04 |
11/5/2024 |
Cloudy |
Mid-flood |
Moderate |
B |
7 |
9:11:00 AM |
9.62 |
8.28 |
32.10 |
26.22 |
1.56 |
2.50 |
<0.1 |
<0.01 |
|
WSR04 |
11/5/2024 |
Cloudy |
Mid-flood |
Moderate |
B |
7 |
9:11:00 AM |
9.67 |
8.28 |
32.14 |
26.25 |
1.58 |
2.50 |
<0.1 |
<0.01 |
|
Location |
Date |
Weather |
Tide |
Sea Condition |
Water Level |
Depth (m) |
Time |
DO (mg/L) |
pH |
Sal (ppt) |
Temp ((¢XC) |
Turbidty (NTU) |
SS (mg/L) |
Iron (mg/L) |
Total Residual Chlorine (mg/L) |
|
WSR16 |
11/5/2024 |
Cloudy |
Mid-flood |
Moderate |
S |
1 |
10:37:00 AM |
8.71 |
8.26 |
32.74 |
26.17 |
1.76 |
4.00 |
<0.1 |
<0.01 |
|
WSR16 |
11/5/2024 |
Cloudy |
Mid-flood |
Moderate |
S |
1 |
10:37:00 AM |
8.73 |
8.25 |
32.71 |
26.18 |
1.75 |
2.50 |
<0.1 |
<0.01 |
|
WSR16 |
11/5/2024 |
Cloudy |
Mid-flood |
Moderate |
M |
9 |
10:38:00 AM |
8.59 |
8.26 |
32.82 |
26.18 |
1.76 |
2.50 |
<0.1 |
<0.01 |
|
WSR16 |
11/5/2024 |
Cloudy |
Mid-flood |
Moderate |
M |
9 |
10:38:00 AM |
8.72 |
8.25 |
32.69 |
26.17 |
1.69 |
2.50 |
<0.1 |
<0.01 |
|
WSR16 |
11/5/2024 |
Cloudy |
Mid-flood |
Moderate |
B |
16 |
10:39:00 AM |
8.74 |
8.22 |
32.84 |
26.21 |
1.72 |
2.50 |
<0.1 |
<0.01 |
|
WSR16 |
11/5/2024 |
Cloudy |
Mid-flood |
Moderate |
B |
16 |
10:39:00 AM |
8.65 |
8.22 |
32.85 |
26.16 |
1.72 |
2.50 |
<0.1 |
<0.01 |
|
WSR33 |
11/5/2024 |
Cloudy |
Mid-flood |
Moderate |
S |
1 |
9:24:00 AM |
8.63 |
8.25 |
33.32 |
26.50 |
2.22 |
4.00 |
<0.1 |
<0.01 |
|
WSR33 |
11/5/2024 |
Cloudy |
Mid-flood |
Moderate |
S |
1 |
9:24:00 AM |
8.74 |
8.27 |
33.26 |
26.46 |
2.29 |
2.50 |
<0.1 |
<0.01 |
|
WSR33 |
11/5/2024 |
Cloudy |
Mid-flood |
Moderate |
M |
4 |
9:25:00 AM |
8.68 |
8.22 |
33.20 |
26.48 |
2.22 |
2.50 |
<0.1 |
<0.01 |
|
WSR33 |
11/5/2024 |
Cloudy |
Mid-flood |
Moderate |
M |
4 |
9:25:00 AM |
8.67 |
8.26 |
33.36 |
26.49 |
2.24 |
4.00 |
<0.1 |
<0.01 |
|
WSR33 |
11/5/2024 |
Cloudy |
Mid-flood |
Moderate |
B |
6 |
9:26:00 AM |
8.65 |
8.26 |
33.34 |
26.48 |
2.24 |
3.00 |
<0.1 |
<0.01 |
|
WSR33 |
11/5/2024 |
Cloudy |
Mid-flood |
Moderate |
B |
6 |
9:26:00 AM |
8.75 |
8.24 |
33.31 |
26.45 |
2.27 |
2.50 |
<0.1 |
<0.01 |
|
WSR36 |
11/5/2024 |
Cloudy |
Mid-flood |
Moderate |
S |
1 |
9:41:00 AM |
9.17 |
8.11 |
32.53 |
26.31 |
1.33 |
2.50 |
<0.1 |
<0.01 |
|
WSR36 |
11/5/2024 |
Cloudy |
Mid-flood |
Moderate |
S |
1 |
9:41:00 AM |
9.26 |
8.16 |
32.50 |
26.35 |
1.38 |
2.50 |
<0.1 |
<0.01 |
|
WSR36 |
11/5/2024 |
Cloudy |
Mid-flood |
Moderate |
M |
3 |
9:42:00 AM |
9.23 |
8.16 |
32.56 |
26.31 |
1.38 |
3.00 |
<0.1 |
<0.01 |
|
WSR36 |
11/5/2024 |
Cloudy |
Mid-flood |
Moderate |
M |
3 |
9:42:00 AM |
9.15 |
8.15 |
32.50 |
26.34 |
1.30 |
2.50 |
<0.1 |
<0.01 |
|
WSR36 |
11/5/2024 |
Cloudy |
Mid-flood |
Moderate |
B |
6 |
9:42:00 AM |
9.27 |
8.13 |
32.54 |
26.36 |
1.37 |
3.00 |
<0.1 |
<0.01 |
|
WSR36 |
11/5/2024 |
Cloudy |
Mid-flood |
Moderate |
B |
6 |
9:42:00 AM |
9.15 |
8.13 |
32.51 |
26.32 |
1.34 |
2.50 |
<0.1 |
<0.01 |
|
WSR37 |
11/5/2024 |
Cloudy |
Mid-flood |
Moderate |
S |
1 |
9:58:00 AM |
9.00 |
8.09 |
32.78 |
26.26 |
2.06 |
2.50 |
<0.1 |
<0.01 |
|
WSR37 |
11/5/2024 |
Cloudy |
Mid-flood |
Moderate |
S |
1 |
9:58:00 AM |
9.00 |
8.11 |
32.81 |
26.30 |
2.06 |
3.00 |
<0.1 |
<0.01 |
|
WSR37 |
11/5/2024 |
Cloudy |
Mid-flood |
Moderate |
M |
4 |
9:59:00 AM |
8.99 |
8.10 |
32.81 |
26.26 |
2.06 |
3.00 |
<0.1 |
<0.01 |
|
WSR37 |
11/5/2024 |
Cloudy |
Mid-flood |
Moderate |
M |
4 |
9:59:00 AM |
8.91 |
8.14 |
32.70 |
26.31 |
2.01 |
2.50 |
<0.1 |
<0.01 |
|
WSR37 |
11/5/2024 |
Cloudy |
Mid-flood |
Moderate |
B |
7 |
10:00:00 AM |
9.06 |
8.13 |
32.69 |
26.29 |
2.01 |
2.50 |
<0.1 |
<0.01 |
|
WSR37 |
11/5/2024 |
Cloudy |
Mid-flood |
Moderate |
B |
7 |
10:00:00 AM |
8.92 |
8.09 |
32.78 |
26.31 |
2.04 |
2.50 |
<0.1 |
<0.01 |
|
NF1 |
11/5/2024 |
Cloudy |
Mid-flood |
Moderate |
S |
1 |
10:22:00 AM |
9.10 |
8.20 |
33.17 |
26.54 |
1.97 |
3.00 |
<0.1 |
<0.01 |
|
NF1 |
11/5/2024 |
Cloudy |
Mid-flood |
Moderate |
S |
1 |
10:22:00 AM |
9.09 |
8.23 |
33.11 |
26.53 |
1.98 |
2.50 |
<0.1 |
<0.01 |
|
NF1 |
11/5/2024 |
Cloudy |
Mid-flood |
Moderate |
M |
7 |
10:23:00 AM |
9.09 |
8.18 |
33.06 |
26.55 |
2.00 |
2.50 |
<0.1 |
<0.01 |
|
NF1 |
11/5/2024 |
Cloudy |
Mid-flood |
Moderate |
M |
7 |
10:23:00 AM |
9.07 |
8.18 |
33.14 |
26.55 |
2.00 |
2.50 |
<0.1 |
<0.01 |
|
NF1 |
11/5/2024 |
Cloudy |
Mid-flood |
Moderate |
B |
13 |
10:24:00 AM |
9.04 |
8.17 |
33.16 |
26.52 |
2.05 |
2.50 |
<0.1 |
<0.01 |
|
NF1 |
11/5/2024 |
Cloudy |
Mid-flood |
Moderate |
B |
13 |
10:24:00 AM |
9.10 |
8.18 |
33.22 |
26.55 |
1.99 |
2.50 |
<0.1 |
<0.01 |
|
Location |
Date |
Weather |
Tide |
Sea Condition |
Water Level |
Depth (m) |
Time |
DO (mg/L) |
pH |
Sal (ppt) |
Temp ((¢XC) |
Turbidty (NTU) |
SS (mg/L) |
Iron (mg/L) |
Total Residual Chlorine (mg/L) |
|
NF2 |
11/5/2024 |
Cloudy |
Mid-flood |
Moderate |
S |
1 |
10:14:00 AM |
8.99 |
8.31 |
32.92 |
26.34 |
1.52 |
2.50 |
<0.1 |
<0.01 |
|
NF2 |
11/5/2024 |
Cloudy |
Mid-flood |
Moderate |
S |
1 |
10:14:00 AM |
9.00 |
8.32 |
33.00 |
26.34 |
1.54 |
2.50 |
<0.1 |
<0.01 |
|
NF2 |
11/5/2024 |
Cloudy |
Mid-flood |
Moderate |
M |
5 |
10:15:00 AM |
9.02 |
8.35 |
32.90 |
26.32 |
1.55 |
2.50 |
<0.1 |
<0.01 |
|
NF2 |
11/5/2024 |
Cloudy |
Mid-flood |
Moderate |
M |
5 |
10:15:00 AM |
8.90 |
8.34 |
32.92 |
26.35 |
1.60 |
3.00 |
<0.1 |
<0.01 |
|
NF2 |
11/5/2024 |
Cloudy |
Mid-flood |
Moderate |
B |
9 |
10:16:00 AM |
8.99 |
8.30 |
32.96 |
26.32 |
1.62 |
2.50 |
<0.1 |
<0.01 |
|
NF2 |
11/5/2024 |
Cloudy |
Mid-flood |
Moderate |
B |
9 |
10:16:00 AM |
8.96 |
8.32 |
32.85 |
26.30 |
1.60 |
2.50 |
<0.1 |
<0.01 |
|
NF3 |
11/5/2024 |
Cloudy |
Mid-flood |
Moderate |
S |
1 |
10:07:00 AM |
8.90 |
8.19 |
33.05 |
26.20 |
1.98 |
4.00 |
<0.1 |
<0.01 |
|
NF3 |
11/5/2024 |
Cloudy |
Mid-flood |
Moderate |
S |
1 |
10:07:00 AM |
8.86 |
8.22 |
33.12 |
26.17 |
1.97 |
3.00 |
<0.1 |
<0.01 |
|
NF3 |
11/5/2024 |
Cloudy |
Mid-flood |
Moderate |
M |
6 |
10:08:00 AM |
8.82 |
8.20 |
33.08 |
26.19 |
2.01 |
3.00 |
<0.1 |
<0.01 |
|
NF3 |
11/5/2024 |
Cloudy |
Mid-flood |
Moderate |
M |
6 |
10:08:00 AM |
8.93 |
8.20 |
33.12 |
26.16 |
1.93 |
2.50 |
<0.1 |
<0.01 |
|
NF3 |
11/5/2024 |
Cloudy |
Mid-flood |
Moderate |
B |
12 |
10:09:00 AM |
8.88 |
8.22 |
32.99 |
26.16 |
1.96 |
2.50 |
<0.1 |
<0.01 |
|
NF3 |
11/5/2024 |
Cloudy |
Mid-flood |
Moderate |
B |
12 |
10:09:00 AM |
8.89 |
8.20 |
33.06 |
26.18 |
1.92 |
3.00 |
<0.1 |
<0.01 |
|
CE |
14/5/2024 |
Cloudy |
Mid-flood |
Moderate |
S |
1 |
11:56:00 AM |
9.28 |
8.28 |
32.73 |
26.59 |
1.26 |
2.50 |
<0.1 |
<0.01 |
|
CE |
14/5/2024 |
Cloudy |
Mid-flood |
Moderate |
S |
1 |
11:56:00 AM |
9.23 |
8.32 |
32.79 |
26.55 |
1.23 |
2.50 |
<0.1 |
<0.01 |
|
CE |
14/5/2024 |
Cloudy |
Mid-flood |
Moderate |
M |
10 |
11:57:00 AM |
9.29 |
8.31 |
32.72 |
26.55 |
1.31 |
3.00 |
<0.1 |
<0.01 |
|
CE |
14/5/2024 |
Cloudy |
Mid-flood |
Moderate |
M |
10 |
11:57:00 AM |
9.36 |
8.30 |
32.76 |
26.55 |
1.28 |
2.50 |
<0.1 |
<0.01 |
|
CE |
14/5/2024 |
Cloudy |
Mid-flood |
Moderate |
B |
20 |
11:58:00 AM |
9.26 |
8.33 |
32.82 |
26.55 |
1.22 |
2.50 |
<0.1 |
<0.01 |
|
CE |
14/5/2024 |
Cloudy |
Mid-flood |
Moderate |
B |
20 |
11:58:00 AM |
9.31 |
8.27 |
32.82 |
26.55 |
1.42 |
2.50 |
<0.1 |
<0.01 |
|
CF |
14/5/2024 |
Cloudy |
Mid-flood |
Moderate |
S |
1 |
8:56:00 AM |
9.09 |
8.21 |
32.23 |
26.45 |
1.40 |
2.50 |
<0.1 |
<0.01 |
|
CF |
14/5/2024 |
Cloudy |
Mid-flood |
Moderate |
S |
1 |
8:56:00 AM |
8.99 |
8.20 |
32.24 |
26.46 |
1.45 |
2.50 |
<0.1 |
<0.01 |
|
CF |
14/5/2024 |
Cloudy |
Mid-flood |
Moderate |
M |
11 |
8:57:00 AM |
9.08 |
8.21 |
32.28 |
26.48 |
1.40 |
2.50 |
<0.1 |
<0.01 |
|
CF |
14/5/2024 |
Cloudy |
Mid-flood |
Moderate |
M |
11 |
8:57:00 AM |
9.07 |
8.20 |
32.21 |
26.45 |
1.56 |
2.50 |
<0.1 |
<0.01 |
|
CF |
14/5/2024 |
Cloudy |
Mid-flood |
Moderate |
B |
21 |
8:58:00 AM |
8.94 |
8.20 |
32.20 |
26.46 |
1.42 |
4.00 |
<0.1 |
<0.01 |
|
CF |
14/5/2024 |
Cloudy |
Mid-flood |
Moderate |
B |
21 |
8:58:00 AM |
8.96 |
8.26 |
32.27 |
26.46 |
1.61 |
4.00 |
<0.1 |
<0.01 |
|
WSR01 |
14/5/2024 |
Cloudy |
Mid-flood |
Moderate |
S |
1 |
9:20:00 AM |
9.60 |
8.43 |
33.75 |
26.44 |
1.56 |
2.50 |
<0.1 |
<0.01 |
|
WSR01 |
14/5/2024 |
Cloudy |
Mid-flood |
Moderate |
S |
1 |
9:20:00 AM |
9.59 |
8.36 |
33.75 |
26.44 |
1.61 |
4.00 |
<0.1 |
<0.01 |
|
WSR01 |
14/5/2024 |
Cloudy |
Mid-flood |
Moderate |
M |
4 |
9:21:00 AM |
9.54 |
8.37 |
33.73 |
26.39 |
1.61 |
3.00 |
<0.1 |
<0.01 |
|
WSR01 |
14/5/2024 |
Cloudy |
Mid-flood |
Moderate |
M |
4 |
9:21:00 AM |
9.63 |
8.40 |
33.69 |
26.39 |
1.55 |
2.50 |
<0.1 |
<0.01 |
|
WSR01 |
14/5/2024 |
Cloudy |
Mid-flood |
Moderate |
B |
8 |
9:22:00 AM |
9.58 |
8.42 |
33.80 |
26.40 |
1.58 |
4.00 |
<0.1 |
<0.01 |
|
WSR01 |
14/5/2024 |
Cloudy |
Mid-flood |
Moderate |
B |
8 |
9:22:00 AM |
9.56 |
8.36 |
33.80 |
26.45 |
1.60 |
3.00 |
<0.1 |
<0.01 |
|
Location |
Date |
Weather |
Tide |
Sea Condition |
Water Level |
Depth (m) |
Time |
DO (mg/L) |
pH |
Sal (ppt) |
Temp ((¢XC) |
Turbidty (NTU) |
SS (mg/L) |
Iron (mg/L) |
Total Residual Chlorine (mg/L) |
|
WSR02 |
14/5/2024 |
Cloudy |
Mid-flood |
Moderate |
S |
1 |
9:39:00 AM |
9.62 |
8.20 |
33.84 |
26.52 |
1.68 |
2.50 |
<0.1 |
<0.01 |
|
WSR02 |
14/5/2024 |
Cloudy |
Mid-flood |
Moderate |
S |
1 |
9:39:00 AM |
9.61 |
8.22 |
33.74 |
26.47 |
1.69 |
2.50 |
<0.1 |
<0.01 |
|
WSR02 |
14/5/2024 |
Cloudy |
Mid-flood |
Moderate |
M |
5 |
9:40:00 AM |
9.59 |
8.21 |
33.87 |
26.51 |
1.61 |
2.50 |
<0.1 |
<0.01 |
|
WSR02 |
14/5/2024 |
Cloudy |
Mid-flood |
Moderate |
M |
5 |
9:40:00 AM |
9.63 |
8.17 |
33.86 |
26.51 |
1.64 |
2.50 |
<0.1 |
<0.01 |
|
WSR02 |
14/5/2024 |
Cloudy |
Mid-flood |
Moderate |
B |
9 |
9:41:00 AM |
9.64 |
8.17 |
33.74 |
26.47 |
1.65 |
2.50 |
<0.1 |
<0.01 |
|
WSR02 |
14/5/2024 |
Cloudy |
Mid-flood |
Moderate |
B |
9 |
9:41:00 AM |
9.53 |
8.19 |
33.86 |
26.47 |
1.65 |
2.50 |
<0.1 |
<0.01 |
|
WSR03 |
14/5/2024 |
Cloudy |
Mid-flood |
Moderate |
S |
1 |
9:53:00 AM |
9.24 |
8.29 |
32.72 |
26.48 |
1.37 |
2.50 |
<0.1 |
<0.01 |
|
WSR03 |
14/5/2024 |
Cloudy |
Mid-flood |
Moderate |
S |
1 |
9:53:00 AM |
9.21 |
8.26 |
32.67 |
26.44 |
1.35 |
2.50 |
<0.1 |
<0.01 |
|
WSR03 |
14/5/2024 |
Cloudy |
Mid-flood |
Moderate |
M |
4 |
9:54:00 AM |
9.22 |
8.23 |
32.70 |
26.46 |
1.37 |
2.50 |
<0.1 |
<0.01 |
|
WSR03 |
14/5/2024 |
Cloudy |
Mid-flood |
Moderate |
M |
4 |
9:54:00 AM |
9.26 |
8.22 |
32.67 |
26.46 |
1.36 |
3.00 |
<0.1 |
<0.01 |
|
WSR03 |
14/5/2024 |
Cloudy |
Mid-flood |
Moderate |
B |
8 |
9:55:00 AM |
9.28 |
8.26 |
32.70 |
26.45 |
1.37 |
3.00 |
<0.1 |
<0.01 |
|
WSR03 |
14/5/2024 |
Cloudy |
Mid-flood |
Moderate |
B |
8 |
9:55:00 AM |
9.22 |
8.23 |
32.78 |
26.46 |
1.30 |
5.00 |
<0.1 |
<0.01 |
|
WSR04 |
14/5/2024 |
Cloudy |
Mid-flood |
Moderate |
S |
1 |
10:09:00 AM |
9.51 |
8.24 |
33.10 |
26.23 |
1.69 |
2.50 |
<0.1 |
<0.01 |
|
WSR04 |
14/5/2024 |
Cloudy |
Mid-flood |
Moderate |
S |
1 |
10:09:00 AM |
9.52 |
8.23 |
32.99 |
26.23 |
1.71 |
4.00 |
<0.1 |
<0.01 |
|
WSR04 |
14/5/2024 |
Cloudy |
Mid-flood |
Moderate |
M |
4 |
10:10:00 AM |
9.35 |
8.23 |
33.08 |
26.22 |
1.74 |
6.00 |
<0.1 |
<0.01 |
|
WSR04 |
14/5/2024 |
Cloudy |
Mid-flood |
Moderate |
M |
4 |
10:10:00 AM |
9.49 |
8.23 |
32.99 |
26.19 |
1.71 |
7.00 |
<0.1 |
<0.01 |
|
WSR04 |
14/5/2024 |
Cloudy |
Mid-flood |
Moderate |
B |
7 |
10:11:00 AM |
9.51 |
8.28 |
32.98 |
26.22 |
1.69 |
2.50 |
<0.1 |
<0.01 |
|
WSR04 |
14/5/2024 |
Cloudy |
Mid-flood |
Moderate |
B |
7 |
10:11:00 AM |
9.35 |
8.23 |
33.02 |
26.18 |
1.68 |
3.00 |
<0.1 |
<0.01 |
|
WSR16 |
14/5/2024 |
Cloudy |
Mid-flood |
Moderate |
S |
1 |
11:35:00 AM |
8.61 |
8.37 |
33.17 |
26.30 |
1.77 |
2.50 |
<0.1 |
<0.01 |
|
WSR16 |
14/5/2024 |
Cloudy |
Mid-flood |
Moderate |
S |
1 |
11:35:00 AM |
8.66 |
8.41 |
33.14 |
26.26 |
1.81 |
4.00 |
<0.1 |
<0.01 |
|
WSR16 |
14/5/2024 |
Cloudy |
Mid-flood |
Moderate |
M |
8 |
11:36:00 AM |
8.67 |
8.39 |
33.08 |
26.26 |
1.67 |
3.00 |
<0.1 |
<0.01 |
|
WSR16 |
14/5/2024 |
Cloudy |
Mid-flood |
Moderate |
M |
8 |
11:36:00 AM |
8.71 |
8.40 |
33.12 |
26.29 |
1.71 |
3.00 |
<0.1 |
<0.01 |
|
WSR16 |
14/5/2024 |
Cloudy |
Mid-flood |
Moderate |
B |
15 |
11:37:00 AM |
8.63 |
8.37 |
33.14 |
26.28 |
1.81 |
2.50 |
<0.1 |
<0.01 |
|
WSR16 |
14/5/2024 |
Cloudy |
Mid-flood |
Moderate |
B |
15 |
11:37:00 AM |
8.71 |
8.37 |
33.19 |
26.31 |
1.79 |
2.50 |
<0.1 |
<0.01 |
|
WSR33 |
14/5/2024 |
Cloudy |
Mid-flood |
Moderate |
S |
1 |
10:26:00 AM |
8.47 |
8.39 |
33.67 |
26.44 |
1.82 |
3.00 |
<0.1 |
<0.01 |
|
WSR33 |
14/5/2024 |
Cloudy |
Mid-flood |
Moderate |
S |
1 |
10:26:00 AM |
8.36 |
8.42 |
33.67 |
26.41 |
1.71 |
2.50 |
<0.1 |
<0.01 |
|
WSR33 |
14/5/2024 |
Cloudy |
Mid-flood |
Moderate |
M |
4 |
10:27:00 AM |
8.45 |
8.40 |
33.61 |
26.39 |
1.72 |
3.00 |
<0.1 |
<0.01 |
|
WSR33 |
14/5/2024 |
Cloudy |
Mid-flood |
Moderate |
M |
4 |
10:27:00 AM |
8.39 |
8.39 |
33.71 |
26.39 |
1.77 |
2.50 |
<0.1 |
<0.01 |
|
WSR33 |
14/5/2024 |
Cloudy |
Mid-flood |
Moderate |
B |
6 |
10:28:00 AM |
8.40 |
8.43 |
33.70 |
26.42 |
1.72 |
2.50 |
<0.1 |
<0.01 |
|
WSR33 |
14/5/2024 |
Cloudy |
Mid-flood |
Moderate |
B |
6 |
10:28:00 AM |
8.45 |
8.40 |
33.66 |
26.45 |
1.84 |
2.50 |
<0.1 |
<0.01 |
|
Location |
Date |
Weather |
Tide |
Sea Condition |
Water Level |
Depth (m) |
Time |
DO (mg/L) |
pH |
Sal (ppt) |
Temp ((¢XC) |
Turbidty (NTU) |
SS (mg/L) |
Iron (mg/L) |
Total Residual Chlorine (mg/L) |
|
WSR36 |
14/5/2024 |
Cloudy |
Mid-flood |
Moderate |
S |
1 |
10:41:00 AM |
8.72 |
8.18 |
32.97 |
26.60 |
1.76 |
2.50 |
<0.1 |
<0.01 |
|
WSR36 |
14/5/2024 |
Cloudy |
Mid-flood |
Moderate |
S |
1 |
10:41:00 AM |
8.58 |
8.17 |
32.98 |
26.60 |
1.64 |
2.50 |
<0.1 |
<0.01 |
|
WSR36 |
14/5/2024 |
Cloudy |
Mid-flood |
Moderate |
M |
4 |
10:42:00 AM |
8.62 |
8.21 |
33.07 |
26.66 |
1.80 |
2.50 |
<0.1 |
<0.01 |
|
WSR36 |
14/5/2024 |
Cloudy |
Mid-flood |
Moderate |
M |
4 |
10:42:00 AM |
8.55 |
8.21 |
33.07 |
26.61 |
1.78 |
4.00 |
<0.1 |
<0.01 |
|
WSR36 |
14/5/2024 |
Cloudy |
Mid-flood |
Moderate |
B |
6 |
10:42:00 AM |
8.67 |
8.19 |
32.99 |
26.64 |
1.74 |
4.00 |
<0.1 |
<0.01 |
|
WSR36 |
14/5/2024 |
Cloudy |
Mid-flood |
Moderate |
B |
6 |
10:42:00 AM |
8.67 |
8.18 |
33.04 |
26.65 |
1.80 |
5.00 |
<0.1 |
<0.01 |
|
WSR37 |
14/5/2024 |
Cloudy |
Mid-flood |
Moderate |
S |
1 |
10:58:00 AM |
9.26 |
8.33 |
32.70 |
26.42 |
1.77 |
3.00 |
<0.1 |
<0.01 |
|
WSR37 |
14/5/2024 |
Cloudy |
Mid-flood |
Moderate |
S |
1 |
10:58:00 AM |
9.25 |
8.35 |
32.70 |
26.42 |
1.61 |
4.00 |
<0.1 |
<0.01 |
|
WSR37 |
14/5/2024 |
Cloudy |
Mid-flood |
Moderate |
M |
4 |
10:59:00 AM |
9.26 |
8.32 |
32.77 |
26.44 |
1.68 |
2.50 |
<0.1 |
<0.01 |
|
WSR37 |
14/5/2024 |
Cloudy |
Mid-flood |
Moderate |
M |
4 |
10:59:00 AM |
9.21 |
8.30 |
32.76 |
26.47 |
1.76 |
3.00 |
<0.1 |
<0.01 |
|
WSR37 |
14/5/2024 |
Cloudy |
Mid-flood |
Moderate |
B |
8 |
11:00:00 AM |
9.16 |
8.33 |
32.82 |
26.43 |
1.78 |
4.00 |
<0.1 |
<0.01 |
|
WSR37 |
14/5/2024 |
Cloudy |
Mid-flood |
Moderate |
B |
8 |
11:00:00 AM |
9.20 |
8.29 |
32.76 |
26.47 |
1.71 |
3.00 |
<0.1 |
<0.01 |
|
NF1 |
14/5/2024 |
Cloudy |
Mid-flood |
Moderate |
S |
1 |
11:22:00 AM |
9.02 |
8.25 |
32.75 |
26.27 |
1.36 |
2.50 |
<0.1 |
<0.01 |
|
NF1 |
14/5/2024 |
Cloudy |
Mid-flood |
Moderate |
S |
1 |
11:22:00 AM |
8.95 |
8.27 |
32.83 |
26.24 |
1.35 |
2.50 |
<0.1 |
<0.01 |
|
NF1 |
14/5/2024 |
Cloudy |
Mid-flood |
Moderate |
M |
7 |
11:23:00 AM |
8.86 |
8.21 |
32.69 |
26.26 |
1.30 |
2.50 |
<0.1 |
<0.01 |
|
NF1 |
14/5/2024 |
Cloudy |
Mid-flood |
Moderate |
M |
7 |
11:23:00 AM |
8.94 |
8.23 |
32.83 |
26.22 |
1.29 |
3.00 |
<0.1 |
<0.01 |
|
NF1 |
14/5/2024 |
Cloudy |
Mid-flood |
Moderate |
B |
13 |
11:24:00 AM |
8.92 |
8.27 |
32.81 |
26.27 |
1.31 |
2.50 |
<0.1 |
<0.01 |
|
NF1 |
14/5/2024 |
Cloudy |
Mid-flood |
Moderate |
B |
13 |
11:24:00 AM |
9.02 |
8.20 |
32.73 |
26.28 |
1.33 |
2.50 |
<0.1 |
<0.01 |
|
NF2 |
14/5/2024 |
Cloudy |
Mid-flood |
Moderate |
S |
1 |
11:14:00 AM |
8.51 |
8.14 |
33.63 |
26.29 |
1.60 |
2.50 |
<0.1 |
<0.01 |
|
NF2 |
14/5/2024 |
Cloudy |
Mid-flood |
Moderate |
S |
1 |
11:14:00 AM |
8.47 |
8.14 |
33.59 |
26.23 |
1.59 |
4.00 |
<0.1 |
<0.01 |
|
NF2 |
14/5/2024 |
Cloudy |
Mid-flood |
Moderate |
M |
5 |
11:15:00 AM |
8.63 |
8.13 |
33.65 |
26.26 |
1.56 |
2.50 |
<0.1 |
<0.01 |
|
NF2 |
14/5/2024 |
Cloudy |
Mid-flood |
Moderate |
M |
5 |
11:15:00 AM |
8.59 |
8.09 |
33.57 |
26.28 |
1.54 |
4.00 |
<0.1 |
<0.01 |
|
NF2 |
14/5/2024 |
Cloudy |
Mid-flood |
Moderate |
B |
10 |
11:16:00 AM |
8.60 |
8.11 |
33.53 |
26.23 |
1.53 |
3.00 |
<0.1 |
<0.01 |
|
NF2 |
14/5/2024 |
Cloudy |
Mid-flood |
Moderate |
B |
10 |
11:16:00 AM |
8.57 |
8.11 |
33.52 |
26.29 |
1.57 |
3.00 |
<0.1 |
<0.01 |
|
NF3 |
14/5/2024 |
Cloudy |
Mid-flood |
Moderate |
S |
1 |
11:07:00 AM |
8.57 |
8.40 |
32.42 |
26.26 |
1.42 |
3.00 |
<0.1 |
<0.01 |
|
NF3 |
14/5/2024 |
Cloudy |
Mid-flood |
Moderate |
S |
1 |
11:07:00 AM |
8.42 |
8.38 |
32.35 |
26.24 |
1.35 |
2.50 |
<0.1 |
<0.01 |
|
NF3 |
14/5/2024 |
Cloudy |
Mid-flood |
Moderate |
M |
6 |
11:08:00 AM |
8.55 |
8.39 |
32.42 |
26.22 |
1.37 |
3.00 |
<0.1 |
<0.01 |
|
NF3 |
14/5/2024 |
Cloudy |
Mid-flood |
Moderate |
M |
6 |
11:08:00 AM |
8.51 |
8.36 |
32.40 |
26.22 |
1.40 |
3.00 |
<0.1 |
<0.01 |
|
NF3 |
14/5/2024 |
Cloudy |
Mid-flood |
Moderate |
B |
11 |
11:09:00 AM |
8.46 |
8.37 |
32.33 |
26.21 |
1.36 |
3.00 |
<0.1 |
<0.01 |
|
NF3 |
14/5/2024 |
Cloudy |
Mid-flood |
Moderate |
B |
11 |
11:09:00 AM |
8.41 |
8.34 |
32.38 |
26.22 |
1.40 |
4.00 |
<0.1 |
<0.01 |
|
Location |
Date |
Weather |
Tide |
Sea Condition |
Water Level |
Depth (m) |
Time |
DO (mg/L) |
pH |
Sal (ppt) |
Temp ((¢XC) |
Turbidty (NTU) |
SS (mg/L) |
Iron (mg/L) |
Total Residual Chlorine (mg/L) |
|
CE |
16/5/2024 |
Cloudy |
Mid-flood |
Moderate |
S |
1 |
2:05:00 PM |
8.37 |
8.19 |
32.98 |
26.64 |
2.34 |
3.00 |
<0.1 |
<0.01 |
|
CE |
16/5/2024 |
Cloudy |
Mid-flood |
Moderate |
S |
1 |
2:05:00 PM |
8.34 |
8.20 |
32.87 |
26.68 |
2.28 |
2.50 |
<0.1 |
<0.01 |
|
CE |
16/5/2024 |
Cloudy |
Mid-flood |
Moderate |
M |
10 |
2:06:00 PM |
8.43 |
8.16 |
33.01 |
26.59 |
2.36 |
4.00 |
<0.1 |
<0.01 |
|
CE |
16/5/2024 |
Cloudy |
Mid-flood |
Moderate |
M |
10 |
2:06:00 PM |
8.35 |
8.20 |
32.90 |
26.63 |
2.30 |
2.50 |
<0.1 |
<0.01 |
|
CE |
16/5/2024 |
Cloudy |
Mid-flood |
Moderate |
B |
19 |
2:07:00 PM |
8.37 |
8.20 |
32.86 |
26.66 |
2.30 |
2.50 |
<0.1 |
<0.01 |
|
CE |
16/5/2024 |
Cloudy |
Mid-flood |
Moderate |
B |
19 |
2:07:00 PM |
8.35 |
8.19 |
32.98 |
26.60 |
2.30 |
4.00 |
<0.1 |
<0.01 |
|
CF |
16/5/2024 |
Cloudy |
Mid-flood |
Moderate |
S |
1 |
11:04:00 AM |
8.95 |
8.18 |
32.82 |
26.78 |
2.11 |
3.00 |
<0.1 |
<0.01 |
|
CF |
16/5/2024 |
Cloudy |
Mid-flood |
Moderate |
S |
1 |
11:04:00 AM |
8.98 |
8.13 |
32.91 |
26.84 |
2.16 |
2.50 |
<0.1 |
<0.01 |
|
CF |
16/5/2024 |
Cloudy |
Mid-flood |
Moderate |
M |
10 |
11:05:00 AM |
8.95 |
8.17 |
33.00 |
26.75 |
2.09 |
2.50 |
<0.1 |
<0.01 |
|
CF |
16/5/2024 |
Cloudy |
Mid-flood |
Moderate |
M |
10 |
11:05:00 AM |
9.02 |
8.16 |
33.01 |
26.80 |
2.10 |
2.50 |
<0.1 |
<0.01 |
|
CF |
16/5/2024 |
Cloudy |
Mid-flood |
Moderate |
B |
19 |
11:06:00 AM |
8.93 |
8.14 |
32.91 |
26.82 |
2.08 |
3.00 |
<0.1 |
<0.01 |
|
CF |
16/5/2024 |
Cloudy |
Mid-flood |
Moderate |
B |
19 |
11:06:00 AM |
9.00 |
8.19 |
32.95 |
26.77 |
2.08 |
2.50 |
<0.1 |
<0.01 |
|
WSR01 |
16/5/2024 |
Cloudy |
Mid-flood |
Moderate |
S |
1 |
11:28:00 AM |
9.10 |
8.11 |
33.87 |
26.69 |
1.25 |
2.50 |
<0.1 |
<0.01 |
|
WSR01 |
16/5/2024 |
Cloudy |
Mid-flood |
Moderate |
S |
1 |
11:28:00 AM |
9.08 |
8.11 |
33.85 |
26.74 |
1.33 |
2.50 |
<0.1 |
<0.01 |
|
WSR01 |
16/5/2024 |
Cloudy |
Mid-flood |
Moderate |
M |
4 |
11:29:00 AM |
9.04 |
8.17 |
33.95 |
26.73 |
1.24 |
4.00 |
<0.1 |
<0.01 |
|
WSR01 |
16/5/2024 |
Cloudy |
Mid-flood |
Moderate |
M |
4 |
11:29:00 AM |
9.04 |
8.12 |
33.84 |
26.68 |
1.28 |
2.50 |
<0.1 |
<0.01 |
|
WSR01 |
16/5/2024 |
Cloudy |
Mid-flood |
Moderate |
B |
7 |
11:30:00 AM |
9.00 |
8.14 |
33.91 |
26.66 |
1.31 |
2.50 |
<0.1 |
<0.01 |
|
WSR01 |
16/5/2024 |
Cloudy |
Mid-flood |
Moderate |
B |
7 |
11:30:00 AM |
9.09 |
8.15 |
33.84 |
26.67 |
1.33 |
2.50 |
<0.1 |
<0.01 |
|
WSR02 |
16/5/2024 |
Cloudy |
Mid-flood |
Moderate |
S |
1 |
11:47:00 AM |
8.41 |
8.30 |
32.40 |
26.45 |
1.41 |
4.00 |
<0.1 |
<0.01 |
|
WSR02 |
16/5/2024 |
Cloudy |
Mid-flood |
Moderate |
S |
1 |
11:47:00 AM |
8.37 |
8.33 |
32.34 |
26.50 |
1.41 |
5.00 |
<0.1 |
<0.01 |
|
WSR02 |
16/5/2024 |
Cloudy |
Mid-flood |
Moderate |
M |
5 |
11:48:00 AM |
8.41 |
8.30 |
32.37 |
26.46 |
1.45 |
3.00 |
<0.1 |
<0.01 |
|
WSR02 |
16/5/2024 |
Cloudy |
Mid-flood |
Moderate |
M |
5 |
11:48:00 AM |
8.43 |
8.35 |
32.29 |
26.45 |
1.39 |
2.50 |
<0.1 |
<0.01 |
|
WSR02 |
16/5/2024 |
Cloudy |
Mid-flood |
Moderate |
B |
9 |
11:49:00 AM |
8.40 |
8.29 |
32.32 |
26.45 |
1.46 |
2.50 |
<0.1 |
<0.01 |
|
WSR02 |
16/5/2024 |
Cloudy |
Mid-flood |
Moderate |
B |
9 |
11:49:00 AM |
8.40 |
8.33 |
32.39 |
26.50 |
1.40 |
2.50 |
<0.1 |
<0.01 |
|
WSR03 |
16/5/2024 |
Cloudy |
Mid-flood |
Moderate |
S |
1 |
12:01:00 PM |
9.26 |
8.34 |
34.05 |
26.39 |
1.80 |
2.50 |
<0.1 |
<0.01 |
|
WSR03 |
16/5/2024 |
Cloudy |
Mid-flood |
Moderate |
S |
1 |
12:01:00 PM |
9.18 |
8.34 |
33.98 |
26.33 |
1.82 |
3.00 |
<0.1 |
<0.01 |
|
WSR03 |
16/5/2024 |
Cloudy |
Mid-flood |
Moderate |
M |
4 |
12:02:00 PM |
9.25 |
8.28 |
33.89 |
26.40 |
1.85 |
2.50 |
<0.1 |
<0.01 |
|
WSR03 |
16/5/2024 |
Cloudy |
Mid-flood |
Moderate |
M |
4 |
12:02:00 PM |
9.20 |
8.33 |
34.02 |
26.33 |
1.87 |
3.00 |
<0.1 |
<0.01 |
|
WSR03 |
16/5/2024 |
Cloudy |
Mid-flood |
Moderate |
B |
8 |
12:03:00 PM |
9.18 |
8.33 |
33.86 |
26.35 |
1.82 |
3.00 |
<0.1 |
<0.01 |
|
WSR03 |
16/5/2024 |
Cloudy |
Mid-flood |
Moderate |
B |
8 |
12:03:00 PM |
9.18 |
8.28 |
34.05 |
26.41 |
1.86 |
5.00 |
<0.1 |
<0.01 |
|
Location |
Date |
Weather |
Tide |
Sea Condition |
Water Level |
Depth (m) |
Time |
DO (mg/L) |
pH |
Sal (ppt) |
Temp ((¢XC) |
Turbidty (NTU) |
SS (mg/L) |
Iron (mg/L) |
Total Residual Chlorine (mg/L) |
|
WSR04 |
16/5/2024 |
Cloudy |
Mid-flood |
Moderate |
S |
1 |
12:17:00 PM |
8.54 |
8.13 |
32.82 |
26.41 |
1.62 |
2.50 |
<0.1 |
<0.01 |
|
WSR04 |
16/5/2024 |
Cloudy |
Mid-flood |
Moderate |
S |
1 |
12:17:00 PM |
8.47 |
8.17 |
32.84 |
26.49 |
1.64 |
2.50 |
<0.1 |
<0.01 |
|
WSR04 |
16/5/2024 |
Cloudy |
Mid-flood |
Moderate |
M |
3 |
12:18:00 PM |
8.45 |
8.14 |
32.80 |
26.48 |
1.66 |
2.50 |
<0.1 |
<0.01 |
|
WSR04 |
16/5/2024 |
Cloudy |
Mid-flood |
Moderate |
M |
3 |
12:18:00 PM |
8.54 |
8.17 |
32.76 |
26.41 |
1.60 |
2.50 |
<0.1 |
<0.01 |
|
WSR04 |
16/5/2024 |
Cloudy |
Mid-flood |
Moderate |
B |
6 |
12:19:00 PM |
8.45 |
8.15 |
32.87 |
26.49 |
1.59 |
2.50 |
<0.1 |
<0.01 |
|
WSR04 |
16/5/2024 |
Cloudy |
Mid-flood |
Moderate |
B |
6 |
12:19:00 PM |
8.54 |
8.13 |
32.72 |
26.49 |
1.68 |
3.00 |
<0.1 |
<0.01 |
|
WSR16 |
16/5/2024 |
Cloudy |
Mid-flood |
Moderate |
S |
1 |
1:45:00 PM |
8.57 |
8.31 |
32.89 |
26.59 |
1.51 |
5.00 |
<0.1 |
<0.01 |
|
WSR16 |
16/5/2024 |
Cloudy |
Mid-flood |
Moderate |
S |
1 |
1:45:00 PM |
8.53 |
8.28 |
32.83 |
26.54 |
1.46 |
3.00 |
<0.1 |
<0.01 |
|
WSR16 |
16/5/2024 |
Cloudy |
Mid-flood |
Moderate |
M |
8 |
1:46:00 PM |
8.51 |
8.31 |
32.85 |
26.53 |
1.54 |
5.00 |
<0.1 |
<0.01 |
|
WSR16 |
16/5/2024 |
Cloudy |
Mid-flood |
Moderate |
M |
8 |
1:46:00 PM |
8.55 |
8.29 |
32.93 |
26.55 |
1.50 |
3.00 |
<0.1 |
<0.01 |
|
WSR16 |
16/5/2024 |
Cloudy |
Mid-flood |
Moderate |
B |
14 |
1:47:00 PM |
8.58 |
8.31 |
33.02 |
26.52 |
1.47 |
2.50 |
<0.1 |
<0.01 |
|
WSR16 |
16/5/2024 |
Cloudy |
Mid-flood |
Moderate |
B |
14 |
1:47:00 PM |
8.60 |
8.29 |
32.95 |
26.54 |
1.55 |
2.50 |
<0.1 |
<0.01 |
|
WSR33 |
16/5/2024 |
Cloudy |
Mid-flood |
Moderate |
S |
1 |
12:34:00 PM |
8.76 |
8.30 |
33.67 |
26.76 |
2.19 |
2.50 |
<0.1 |
<0.01 |
|
WSR33 |
16/5/2024 |
Cloudy |
Mid-flood |
Moderate |
S |
1 |
12:34:00 PM |
8.80 |
8.29 |
33.66 |
26.75 |
2.18 |
2.50 |
<0.1 |
<0.01 |
|
WSR33 |
16/5/2024 |
Cloudy |
Mid-flood |
Moderate |
M |
4 |
12:35:00 PM |
8.82 |
8.25 |
33.61 |
26.72 |
2.24 |
2.50 |
<0.1 |
<0.01 |
|
WSR33 |
16/5/2024 |
Cloudy |
Mid-flood |
Moderate |
M |
4 |
12:35:00 PM |
8.85 |
8.29 |
33.57 |
26.80 |
2.18 |
3.00 |
<0.1 |
<0.01 |
|
WSR33 |
16/5/2024 |
Cloudy |
Mid-flood |
Moderate |
B |
6 |
12:36:00 PM |
8.82 |
8.30 |
33.72 |
26.75 |
2.21 |
2.50 |
<0.1 |
<0.01 |
|
WSR33 |
16/5/2024 |
Cloudy |
Mid-flood |
Moderate |
B |
6 |
12:36:00 PM |
8.78 |
8.30 |
33.61 |
26.76 |
2.24 |
3.00 |
<0.1 |
<0.01 |
|
WSR36 |
16/5/2024 |
Cloudy |
Mid-flood |
Moderate |
S |
1 |
12:51:00 PM |
9.11 |
8.10 |
33.17 |
26.50 |
1.72 |
3.00 |
<0.1 |
<0.01 |
|
WSR36 |
16/5/2024 |
Cloudy |
Mid-flood |
Moderate |
S |
1 |
12:51:00 PM |
9.05 |
8.10 |
33.22 |
26.51 |
1.67 |
2.50 |
<0.1 |
<0.01 |
|
WSR36 |
16/5/2024 |
Cloudy |
Mid-flood |
Moderate |
M |
4 |
12:52:00 PM |
9.10 |
8.13 |
33.12 |
26.52 |
1.74 |
2.50 |
<0.1 |
<0.01 |
|
WSR36 |
16/5/2024 |
Cloudy |
Mid-flood |
Moderate |
M |
4 |
12:52:00 PM |
9.04 |
8.13 |
33.30 |
26.56 |
1.71 |
4.00 |
<0.1 |
<0.01 |
|
WSR36 |
16/5/2024 |
Cloudy |
Mid-flood |
Moderate |
B |
6 |
12:52:00 PM |
9.10 |
8.13 |
33.25 |
26.50 |
1.69 |
3.00 |
<0.1 |
<0.01 |
|
WSR36 |
16/5/2024 |
Cloudy |
Mid-flood |
Moderate |
B |
6 |
12:52:00 PM |
9.10 |
8.14 |
33.18 |
26.50 |
1.66 |
2.50 |
<0.1 |
<0.01 |
|
WSR37 |
16/5/2024 |
Cloudy |
Mid-flood |
Moderate |
S |
1 |
1:08:00 PM |
8.02 |
8.15 |
32.37 |
26.37 |
1.83 |
3.00 |
<0.1 |
<0.01 |
|
WSR37 |
16/5/2024 |
Cloudy |
Mid-flood |
Moderate |
S |
1 |
1:08:00 PM |
8.00 |
8.16 |
32.49 |
26.42 |
1.79 |
2.50 |
<0.1 |
<0.01 |
|
WSR37 |
16/5/2024 |
Cloudy |
Mid-flood |
Moderate |
M |
4 |
1:09:00 PM |
8.06 |
8.13 |
32.32 |
26.41 |
1.78 |
2.50 |
<0.1 |
<0.01 |
|
WSR37 |
16/5/2024 |
Cloudy |
Mid-flood |
Moderate |
M |
4 |
1:09:00 PM |
8.03 |
8.14 |
32.32 |
26.43 |
1.77 |
3.00 |
<0.1 |
<0.01 |
|
WSR37 |
16/5/2024 |
Cloudy |
Mid-flood |
Moderate |
B |
7 |
1:10:00 PM |
8.03 |
8.19 |
32.43 |
26.37 |
1.85 |
2.50 |
<0.1 |
<0.01 |
|
WSR37 |
16/5/2024 |
Cloudy |
Mid-flood |
Moderate |
B |
7 |
1:10:00 PM |
8.06 |
8.17 |
32.48 |
26.35 |
1.77 |
2.50 |
<0.1 |
<0.01 |
|
Location |
Date |
Weather |
Tide |
Sea Condition |
Water Level |
Depth (m) |
Time |
DO (mg/L) |
pH |
Sal (ppt) |
Temp ((¢XC) |
Turbidty (NTU) |
SS (mg/L) |
Iron (mg/L) |
Total Residual Chlorine (mg/L) |
|
NF1 |
16/5/2024 |
Cloudy |
Mid-flood |
Moderate |
S |
1 |
1:32:00 PM |
8.93 |
8.28 |
32.86 |
26.51 |
1.44 |
2.50 |
<0.1 |
<0.01 |
|
NF1 |
16/5/2024 |
Cloudy |
Mid-flood |
Moderate |
S |
1 |
1:32:00 PM |
8.97 |
8.23 |
32.78 |
26.46 |
1.45 |
2.50 |
<0.1 |
<0.01 |
|
NF1 |
16/5/2024 |
Cloudy |
Mid-flood |
Moderate |
M |
7 |
1:33:00 PM |
8.98 |
8.24 |
32.79 |
26.47 |
1.47 |
3.00 |
<0.1 |
<0.01 |
|
NF1 |
16/5/2024 |
Cloudy |
Mid-flood |
Moderate |
M |
7 |
1:33:00 PM |
8.93 |
8.23 |
32.90 |
26.49 |
1.49 |
3.00 |
<0.1 |
<0.01 |
|
NF1 |
16/5/2024 |
Cloudy |
Mid-flood |
Moderate |
B |
12 |
1:34:00 PM |
9.00 |
8.22 |
32.83 |
26.46 |
1.44 |
3.00 |
<0.1 |
<0.01 |
|
NF1 |
16/5/2024 |
Cloudy |
Mid-flood |
Moderate |
B |
12 |
1:34:00 PM |
8.96 |
8.25 |
32.87 |
26.51 |
1.42 |
2.50 |
<0.1 |
<0.01 |
|
NF2 |
16/5/2024 |
Cloudy |
Mid-flood |
Moderate |
S |
1 |
1:24:00 PM |
8.38 |
8.33 |
32.15 |
26.62 |
1.59 |
2.50 |
<0.1 |
<0.01 |
|
NF2 |
16/5/2024 |
Cloudy |
Mid-flood |
Moderate |
S |
1 |
1:24:00 PM |
8.39 |
8.33 |
32.20 |
26.56 |
1.58 |
2.50 |
<0.1 |
<0.01 |
|
NF2 |
16/5/2024 |
Cloudy |
Mid-flood |
Moderate |
M |
5 |
1:25:00 PM |
8.36 |
8.32 |
32.25 |
26.62 |
1.55 |
3.00 |
<0.1 |
<0.01 |
|
NF2 |
16/5/2024 |
Cloudy |
Mid-flood |
Moderate |
M |
5 |
1:25:00 PM |
8.37 |
8.35 |
32.19 |
26.55 |
1.61 |
2.50 |
<0.1 |
<0.01 |
|
NF2 |
16/5/2024 |
Cloudy |
Mid-flood |
Moderate |
B |
10 |
1:26:00 PM |
8.43 |
8.34 |
32.29 |
26.56 |
1.59 |
2.50 |
<0.1 |
<0.01 |
|
NF2 |
16/5/2024 |
Cloudy |
Mid-flood |
Moderate |
B |
10 |
1:26:00 PM |
8.40 |
8.37 |
32.29 |
26.57 |
1.57 |
2.50 |
<0.1 |
<0.01 |
|
NF3 |
16/5/2024 |
Cloudy |
Mid-flood |
Moderate |
S |
1 |
1:17:00 PM |
8.34 |
8.18 |
32.81 |
26.38 |
2.14 |
2.50 |
<0.1 |
<0.01 |
|
NF3 |
16/5/2024 |
Cloudy |
Mid-flood |
Moderate |
S |
1 |
1:17:00 PM |
8.35 |
8.21 |
32.75 |
26.37 |
2.09 |
2.50 |
<0.1 |
<0.01 |
|
NF3 |
16/5/2024 |
Cloudy |
Mid-flood |
Moderate |
M |
6 |
1:18:00 PM |
8.33 |
8.18 |
32.73 |
26.39 |
2.12 |
3.00 |
<0.1 |
<0.01 |
|
NF3 |
16/5/2024 |
Cloudy |
Mid-flood |
Moderate |
M |
6 |
1:18:00 PM |
8.31 |
8.23 |
32.88 |
26.34 |
2.05 |
3.00 |
<0.1 |
<0.01 |
|
NF3 |
16/5/2024 |
Cloudy |
Mid-flood |
Moderate |
B |
11 |
1:19:00 PM |
8.36 |
8.21 |
32.70 |
26.34 |
2.12 |
3.00 |
<0.1 |
<0.01 |
|
NF3 |
16/5/2024 |
Cloudy |
Mid-flood |
Moderate |
B |
11 |
1:19:00 PM |
8.32 |
8.24 |
32.83 |
26.36 |
2.14 |
2.50 |
<0.1 |
<0.01 |
|
CE |
18/5/2024 |
Cloudy |
Mid-ebb |
Moderate |
S |
1 |
8:01:00 AM |
9.00 |
8.31 |
33.09 |
26.05 |
2.32 |
2.50 |
<0.1 |
<0.01 |
|
CE |
18/5/2024 |
Cloudy |
Mid-ebb |
Moderate |
S |
1 |
8:01:00 AM |
8.97 |
8.25 |
33.13 |
26.08 |
2.29 |
2.50 |
<0.1 |
<0.01 |
|
CE |
18/5/2024 |
Cloudy |
Mid-ebb |
Moderate |
M |
11 |
8:02:00 AM |
8.85 |
8.25 |
33.06 |
26.03 |
2.28 |
2.50 |
<0.1 |
<0.01 |
|
CE |
18/5/2024 |
Cloudy |
Mid-ebb |
Moderate |
M |
11 |
8:02:00 AM |
8.93 |
8.25 |
33.16 |
26.02 |
2.23 |
2.50 |
<0.1 |
<0.01 |
|
CE |
18/5/2024 |
Cloudy |
Mid-ebb |
Moderate |
B |
21 |
8:03:00 AM |
9.01 |
8.28 |
33.18 |
26.02 |
2.17 |
2.50 |
<0.1 |
<0.01 |
|
CE |
18/5/2024 |
Cloudy |
Mid-ebb |
Moderate |
B |
21 |
8:03:00 AM |
8.96 |
8.28 |
33.13 |
26.07 |
2.18 |
3.00 |
<0.1 |
<0.01 |
|
CF |
18/5/2024 |
Cloudy |
Mid-ebb |
Moderate |
S |
1 |
11:10:00 AM |
8.60 |
8.30 |
33.24 |
26.19 |
1.96 |
4.00 |
<0.1 |
<0.01 |
|
CF |
18/5/2024 |
Cloudy |
Mid-ebb |
Moderate |
S |
1 |
11:10:00 AM |
8.72 |
8.32 |
33.22 |
26.24 |
1.93 |
2.50 |
<0.1 |
<0.01 |
|
CF |
18/5/2024 |
Cloudy |
Mid-ebb |
Moderate |
M |
10 |
11:11:00 AM |
8.67 |
8.26 |
33.24 |
26.30 |
1.98 |
3.00 |
<0.1 |
<0.01 |
|
CF |
18/5/2024 |
Cloudy |
Mid-ebb |
Moderate |
M |
10 |
11:11:00 AM |
8.65 |
8.31 |
33.28 |
26.31 |
1.96 |
5.00 |
<0.1 |
<0.01 |
|
CF |
18/5/2024 |
Cloudy |
Mid-ebb |
Moderate |
B |
20 |
11:12:00 AM |
8.75 |
8.31 |
33.21 |
26.23 |
1.93 |
3.00 |
<0.1 |
<0.01 |
|
CF |
18/5/2024 |
Cloudy |
Mid-ebb |
Moderate |
B |
20 |
11:12:00 AM |
8.62 |
8.31 |
33.31 |
26.22 |
1.96 |
2.50 |
<0.1 |
<0.01 |
|
Location |
Date |
Weather |
Tide |
Sea Condition |
Water Level |
Depth (m) |
Time |
DO (mg/L) |
pH |
Sal (ppt) |
Temp ((¢XC) |
Turbidty (NTU) |
SS (mg/L) |
Iron (mg/L) |
Total Residual Chlorine (mg/L) |
|
WSR01 |
18/5/2024 |
Cloudy |
Mid-ebb |
Moderate |
S |
1 |
10:45:00 AM |
8.64 |
8.20 |
33.07 |
26.21 |
2.09 |
3.00 |
<0.1 |
<0.01 |
|
WSR01 |
18/5/2024 |
Cloudy |
Mid-ebb |
Moderate |
S |
1 |
10:45:00 AM |
8.69 |
8.20 |
32.99 |
26.20 |
2.15 |
3.00 |
<0.1 |
<0.01 |
|
WSR01 |
18/5/2024 |
Cloudy |
Mid-ebb |
Moderate |
M |
4 |
10:46:00 AM |
8.68 |
8.25 |
33.01 |
26.14 |
2.09 |
3.00 |
<0.1 |
<0.01 |
|
WSR01 |
18/5/2024 |
Cloudy |
Mid-ebb |
Moderate |
M |
4 |
10:46:00 AM |
8.63 |
8.23 |
32.95 |
26.22 |
2.11 |
2.50 |
<0.1 |
<0.01 |
|
WSR01 |
18/5/2024 |
Cloudy |
Mid-ebb |
Moderate |
B |
8 |
10:47:00 AM |
8.73 |
8.20 |
32.99 |
26.22 |
2.12 |
2.50 |
<0.1 |
<0.01 |
|
WSR01 |
18/5/2024 |
Cloudy |
Mid-ebb |
Moderate |
B |
8 |
10:47:00 AM |
8.61 |
8.22 |
33.06 |
26.26 |
2.15 |
2.50 |
<0.1 |
<0.01 |
|
WSR02 |
18/5/2024 |
Cloudy |
Mid-ebb |
Moderate |
S |
1 |
10:26:00 AM |
9.33 |
8.14 |
32.96 |
26.01 |
1.66 |
3.00 |
<0.1 |
<0.01 |
|
WSR02 |
18/5/2024 |
Cloudy |
Mid-ebb |
Moderate |
S |
1 |
10:26:00 AM |
9.35 |
8.15 |
33.00 |
26.11 |
1.67 |
2.50 |
<0.1 |
<0.01 |
|
WSR02 |
18/5/2024 |
Cloudy |
Mid-ebb |
Moderate |
M |
5 |
10:27:00 AM |
9.26 |
8.11 |
32.95 |
26.09 |
1.68 |
2.50 |
<0.1 |
<0.01 |
|
WSR02 |
18/5/2024 |
Cloudy |
Mid-ebb |
Moderate |
M |
5 |
10:27:00 AM |
9.35 |
8.14 |
32.97 |
26.13 |
1.63 |
2.50 |
<0.1 |
<0.01 |
|
WSR02 |
18/5/2024 |
Cloudy |
Mid-ebb |
Moderate |
B |
8 |
10:28:00 AM |
9.21 |
8.17 |
32.99 |
26.07 |
1.68 |
2.50 |
<0.1 |
<0.01 |
|
WSR02 |
18/5/2024 |
Cloudy |
Mid-ebb |
Moderate |
B |
8 |
10:28:00 AM |
9.23 |
8.12 |
32.91 |
26.09 |
1.64 |
2.50 |
<0.1 |
<0.01 |
|
WSR03 |
18/5/2024 |
Cloudy |
Mid-ebb |
Moderate |
S |
1 |
10:10:00 AM |
8.88 |
8.30 |
33.71 |
26.12 |
1.64 |
2.50 |
<0.1 |
<0.01 |
|
WSR03 |
18/5/2024 |
Cloudy |
Mid-ebb |
Moderate |
S |
1 |
10:10:00 AM |
8.98 |
8.33 |
33.71 |
26.17 |
1.62 |
2.50 |
<0.1 |
<0.01 |
|
WSR03 |
18/5/2024 |
Cloudy |
Mid-ebb |
Moderate |
M |
4 |
10:11:00 AM |
8.91 |
8.33 |
33.69 |
26.09 |
1.65 |
3.00 |
<0.1 |
<0.01 |
|
WSR03 |
18/5/2024 |
Cloudy |
Mid-ebb |
Moderate |
M |
4 |
10:11:00 AM |
8.86 |
8.29 |
33.65 |
26.09 |
1.65 |
3.00 |
<0.1 |
<0.01 |
|
WSR03 |
18/5/2024 |
Cloudy |
Mid-ebb |
Moderate |
B |
7 |
10:12:00 AM |
8.86 |
8.32 |
33.78 |
26.14 |
1.59 |
3.00 |
<0.1 |
<0.01 |
|
WSR03 |
18/5/2024 |
Cloudy |
Mid-ebb |
Moderate |
B |
7 |
10:12:00 AM |
8.83 |
8.31 |
33.72 |
26.11 |
1.61 |
2.50 |
<0.1 |
<0.01 |
|
WSR04 |
18/5/2024 |
Cloudy |
Mid-ebb |
Moderate |
S |
1 |
9:55:00 AM |
8.61 |
8.33 |
33.45 |
26.01 |
1.53 |
4.00 |
<0.1 |
<0.01 |
|
WSR04 |
18/5/2024 |
Cloudy |
Mid-ebb |
Moderate |
S |
1 |
9:55:00 AM |
8.49 |
8.37 |
33.43 |
25.96 |
1.57 |
3.00 |
<0.1 |
<0.01 |
|
WSR04 |
18/5/2024 |
Cloudy |
Mid-ebb |
Moderate |
M |
4 |
9:56:00 AM |
8.55 |
8.38 |
33.39 |
26.03 |
1.51 |
2.50 |
<0.1 |
<0.01 |
|
WSR04 |
18/5/2024 |
Cloudy |
Mid-ebb |
Moderate |
M |
4 |
9:56:00 AM |
8.61 |
8.35 |
33.39 |
26.00 |
1.57 |
2.50 |
<0.1 |
<0.01 |
|
WSR04 |
18/5/2024 |
Cloudy |
Mid-ebb |
Moderate |
B |
6 |
9:57:00 AM |
8.56 |
8.32 |
33.44 |
26.08 |
1.53 |
2.50 |
<0.1 |
<0.01 |
|
WSR04 |
18/5/2024 |
Cloudy |
Mid-ebb |
Moderate |
B |
6 |
9:57:00 AM |
8.56 |
8.33 |
33.40 |
26.03 |
1.55 |
2.50 |
<0.1 |
<0.01 |
|
WSR16 |
18/5/2024 |
Cloudy |
Mid-ebb |
Moderate |
S |
1 |
8:24:00 AM |
8.68 |
8.23 |
32.61 |
26.13 |
1.77 |
2.50 |
<0.1 |
<0.01 |
|
WSR16 |
18/5/2024 |
Cloudy |
Mid-ebb |
Moderate |
S |
1 |
8:24:00 AM |
8.79 |
8.18 |
32.60 |
26.18 |
1.79 |
2.50 |
<0.1 |
<0.01 |
|
WSR16 |
18/5/2024 |
Cloudy |
Mid-ebb |
Moderate |
M |
8 |
8:25:00 AM |
8.72 |
8.22 |
32.60 |
26.19 |
1.78 |
2.50 |
<0.1 |
<0.01 |
|
WSR16 |
18/5/2024 |
Cloudy |
Mid-ebb |
Moderate |
M |
8 |
8:25:00 AM |
8.75 |
8.21 |
32.61 |
26.25 |
1.79 |
3.00 |
<0.1 |
<0.01 |
|
WSR16 |
18/5/2024 |
Cloudy |
Mid-ebb |
Moderate |
B |
15 |
8:26:00 AM |
8.74 |
8.19 |
32.69 |
26.16 |
1.80 |
2.50 |
<0.1 |
<0.01 |
|
WSR16 |
18/5/2024 |
Cloudy |
Mid-ebb |
Moderate |
B |
15 |
8:26:00 AM |
8.75 |
8.20 |
32.61 |
26.18 |
1.82 |
2.50 |
<0.1 |
<0.01 |
|
Location |
Date |
Weather |
Tide |
Sea Condition |
Water Level |
Depth (m) |
Time |
DO (mg/L) |
pH |
Sal (ppt) |
Temp ((¢XC) |
Turbidty (NTU) |
SS (mg/L) |
Iron (mg/L) |
Total Residual Chlorine (mg/L) |
|
WSR33 |
18/5/2024 |
Cloudy |
Mid-ebb |
Moderate |
S |
1 |
9:38:00 AM |
9.30 |
8.16 |
33.64 |
26.19 |
2.04 |
2.50 |
<0.1 |
<0.01 |
|
WSR33 |
18/5/2024 |
Cloudy |
Mid-ebb |
Moderate |
S |
1 |
9:38:00 AM |
9.41 |
8.19 |
33.75 |
26.28 |
2.04 |
2.50 |
<0.1 |
<0.01 |
|
WSR33 |
18/5/2024 |
Cloudy |
Mid-ebb |
Moderate |
M |
4 |
9:39:00 AM |
9.46 |
8.13 |
33.75 |
26.30 |
2.05 |
3.00 |
<0.1 |
<0.01 |
|
WSR33 |
18/5/2024 |
Cloudy |
Mid-ebb |
Moderate |
M |
4 |
9:39:00 AM |
9.34 |
8.14 |
33.75 |
26.31 |
2.07 |
2.50 |
<0.1 |
<0.01 |
|
WSR33 |
18/5/2024 |
Cloudy |
Mid-ebb |
Moderate |
B |
7 |
9:40:00 AM |
9.46 |
8.17 |
33.70 |
26.27 |
2.07 |
2.50 |
<0.1 |
<0.01 |
|
WSR33 |
18/5/2024 |
Cloudy |
Mid-ebb |
Moderate |
B |
7 |
9:40:00 AM |
9.47 |
8.18 |
33.65 |
26.20 |
2.04 |
2.50 |
<0.1 |
<0.01 |
|
WSR36 |
18/5/2024 |
Cloudy |
Mid-ebb |
Moderate |
S |
1 |
9:22:00 AM |
8.60 |
8.17 |
33.00 |
26.25 |
1.88 |
3.00 |
<0.1 |
<0.01 |
|
WSR36 |
18/5/2024 |
Cloudy |
Mid-ebb |
Moderate |
S |
1 |
9:22:00 AM |
8.59 |
8.14 |
33.04 |
26.12 |
1.88 |
2.50 |
<0.1 |
<0.01 |
|
WSR36 |
18/5/2024 |
Cloudy |
Mid-ebb |
Moderate |
M |
4 |
9:23:00 AM |
8.63 |
8.17 |
32.97 |
26.23 |
1.92 |
2.50 |
<0.1 |
<0.01 |
|
WSR36 |
18/5/2024 |
Cloudy |
Mid-ebb |
Moderate |
M |
4 |
9:23:00 AM |
8.58 |
8.15 |
33.06 |
26.18 |
1.91 |
2.50 |
<0.1 |
<0.01 |
|
WSR36 |
18/5/2024 |
Cloudy |
Mid-ebb |
Moderate |
B |
6 |
9:23:00 AM |
8.59 |
8.18 |
32.99 |
26.24 |
1.86 |
2.50 |
<0.1 |
<0.01 |
|
WSR36 |
18/5/2024 |
Cloudy |
Mid-ebb |
Moderate |
B |
6 |
9:23:00 AM |
8.56 |
8.13 |
33.05 |
26.13 |
1.88 |
2.50 |
<0.1 |
<0.01 |
|
WSR37 |
18/5/2024 |
Cloudy |
Mid-ebb |
Moderate |
S |
1 |
9:16:00 AM |
9.28 |
8.31 |
33.27 |
26.22 |
1.57 |
2.50 |
<0.1 |
<0.01 |
|
WSR37 |
18/5/2024 |
Cloudy |
Mid-ebb |
Moderate |
S |
1 |
9:16:00 AM |
9.28 |
8.30 |
33.24 |
26.26 |
1.55 |
3.00 |
<0.1 |
<0.01 |
|
WSR37 |
18/5/2024 |
Cloudy |
Mid-ebb |
Moderate |
M |
4 |
9:17:00 AM |
9.22 |
8.29 |
33.28 |
26.34 |
1.55 |
2.50 |
<0.1 |
<0.01 |
|
WSR37 |
18/5/2024 |
Cloudy |
Mid-ebb |
Moderate |
M |
4 |
9:17:00 AM |
9.36 |
8.35 |
33.29 |
26.29 |
1.54 |
4.00 |
<0.1 |
<0.01 |
|
WSR37 |
18/5/2024 |
Cloudy |
Mid-ebb |
Moderate |
B |
8 |
9:18:00 AM |
9.32 |
8.32 |
33.32 |
26.34 |
1.51 |
2.50 |
<0.1 |
<0.01 |
|
WSR37 |
18/5/2024 |
Cloudy |
Mid-ebb |
Moderate |
B |
8 |
9:18:00 AM |
9.21 |
8.34 |
33.34 |
26.26 |
1.54 |
2.50 |
<0.1 |
<0.01 |
|
NF1 |
18/5/2024 |
Cloudy |
Mid-ebb |
Moderate |
S |
1 |
8:45:00 AM |
9.34 |
8.25 |
33.93 |
26.40 |
2.10 |
2.50 |
<0.1 |
<0.01 |
|
NF1 |
18/5/2024 |
Cloudy |
Mid-ebb |
Moderate |
S |
1 |
8:45:00 AM |
9.42 |
8.29 |
33.95 |
26.51 |
2.09 |
2.50 |
<0.1 |
<0.01 |
|
NF1 |
18/5/2024 |
Cloudy |
Mid-ebb |
Moderate |
M |
7 |
8:46:00 AM |
9.49 |
8.28 |
33.98 |
26.44 |
2.07 |
2.50 |
<0.1 |
<0.01 |
|
NF1 |
18/5/2024 |
Cloudy |
Mid-ebb |
Moderate |
M |
7 |
8:46:00 AM |
9.36 |
8.27 |
33.95 |
26.44 |
2.11 |
2.50 |
<0.1 |
<0.01 |
|
NF1 |
18/5/2024 |
Cloudy |
Mid-ebb |
Moderate |
B |
13 |
8:47:00 AM |
9.47 |
8.31 |
33.95 |
26.42 |
2.08 |
3.00 |
<0.1 |
<0.01 |
|
NF1 |
18/5/2024 |
Cloudy |
Mid-ebb |
Moderate |
B |
13 |
8:47:00 AM |
9.32 |
8.25 |
33.96 |
26.39 |
2.11 |
2.50 |
<0.1 |
<0.01 |
|
NF2 |
18/5/2024 |
Cloudy |
Mid-ebb |
Moderate |
S |
1 |
9:01:00 AM |
9.01 |
8.35 |
33.34 |
26.31 |
1.99 |
2.50 |
<0.1 |
<0.01 |
|
NF2 |
18/5/2024 |
Cloudy |
Mid-ebb |
Moderate |
S |
1 |
9:01:00 AM |
8.93 |
8.33 |
33.36 |
26.28 |
2.17 |
3.00 |
<0.1 |
<0.01 |
|
NF2 |
18/5/2024 |
Cloudy |
Mid-ebb |
Moderate |
M |
5 |
9:02:00 AM |
8.84 |
8.31 |
33.44 |
26.35 |
2.05 |
2.50 |
<0.1 |
<0.01 |
|
NF2 |
18/5/2024 |
Cloudy |
Mid-ebb |
Moderate |
M |
5 |
9:02:00 AM |
8.84 |
8.30 |
33.43 |
26.35 |
2.15 |
3.00 |
<0.1 |
<0.01 |
|
NF2 |
18/5/2024 |
Cloudy |
Mid-ebb |
Moderate |
B |
9 |
9:03:00 AM |
8.97 |
8.35 |
33.41 |
26.34 |
2.15 |
3.00 |
<0.1 |
<0.01 |
|
NF2 |
18/5/2024 |
Cloudy |
Mid-ebb |
Moderate |
B |
9 |
9:03:00 AM |
8.97 |
8.32 |
33.36 |
26.35 |
2.16 |
2.50 |
<0.1 |
<0.01 |
|
Location |
Date |
Weather |
Tide |
Sea Condition |
Water Level |
Depth (m) |
Time |
DO (mg/L) |
pH |
Sal (ppt) |
Temp ((¢XC) |
Turbidty (NTU) |
SS (mg/L) |
Iron (mg/L) |
Total Residual Chlorine (mg/L) |
|
NF3 |
18/5/2024 |
Cloudy |
Mid-ebb |
Moderate |
S |
1 |
9:09:00 AM |
8.16 |
8.29 |
33.06 |
26.16 |
2.02 |
2.50 |
<0.1 |
<0.01 |
|
NF3 |
18/5/2024 |
Cloudy |
Mid-ebb |
Moderate |
S |
1 |
9:09:00 AM |
8.11 |
8.34 |
33.08 |
26.03 |
2.11 |
4.00 |
<0.1 |
<0.01 |
|
NF3 |
18/5/2024 |
Cloudy |
Mid-ebb |
Moderate |
M |
6 |
9:10:00 AM |
8.16 |
8.34 |
33.07 |
26.13 |
2.06 |
3.00 |
<0.1 |
<0.01 |
|
NF3 |
18/5/2024 |
Cloudy |
Mid-ebb |
Moderate |
M |
6 |
9:10:00 AM |
8.16 |
8.33 |
33.06 |
26.03 |
2.08 |
4.00 |
<0.1 |
<0.01 |
|
NF3 |
18/5/2024 |
Cloudy |
Mid-ebb |
Moderate |
B |
11 |
9:11:00 AM |
8.25 |
8.31 |
33.13 |
26.09 |
2.09 |
3.00 |
<0.1 |
<0.01 |
|
NF3 |
18/5/2024 |
Cloudy |
Mid-ebb |
Moderate |
B |
11 |
9:11:00 AM |
8.17 |
8.32 |
33.01 |
26.09 |
2.11 |
2.50 |
<0.1 |
<0.01 |
|
CE |
21/5/2024 |
Cloudy |
Mid-ebb |
Moderate |
S |
1 |
9:17:00 AM |
8.84 |
8.17 |
32.78 |
25.90 |
2.45 |
3.00 |
<0.1 |
<0.01 |
|
CE |
21/5/2024 |
Cloudy |
Mid-ebb |
Moderate |
S |
1 |
9:17:00 AM |
8.85 |
8.14 |
32.80 |
25.92 |
2.46 |
3.00 |
<0.1 |
<0.01 |
|
CE |
21/5/2024 |
Cloudy |
Mid-ebb |
Moderate |
M |
12 |
9:18:00 AM |
8.88 |
8.21 |
32.72 |
25.92 |
2.37 |
2.50 |
<0.1 |
<0.01 |
|
CE |
21/5/2024 |
Cloudy |
Mid-ebb |
Moderate |
M |
12 |
9:18:00 AM |
8.86 |
8.14 |
32.80 |
25.86 |
2.51 |
2.50 |
<0.1 |
<0.01 |
|
CE |
21/5/2024 |
Cloudy |
Mid-ebb |
Moderate |
B |
22 |
9:19:00 AM |
8.83 |
8.17 |
32.85 |
25.92 |
2.49 |
4.00 |
<0.1 |
<0.01 |
|
CE |
21/5/2024 |
Cloudy |
Mid-ebb |
Moderate |
B |
22 |
9:19:00 AM |
8.84 |
8.16 |
32.87 |
25.88 |
2.44 |
2.50 |
<0.1 |
<0.01 |
|
CF |
21/5/2024 |
Cloudy |
Mid-ebb |
Moderate |
S |
1 |
12:29:00 PM |
9.41 |
8.11 |
32.59 |
25.80 |
2.13 |
2.50 |
<0.1 |
<0.01 |
|
CF |
21/5/2024 |
Cloudy |
Mid-ebb |
Moderate |
S |
1 |
12:29:00 PM |
9.45 |
8.05 |
32.62 |
25.83 |
2.16 |
2.50 |
<0.1 |
<0.01 |
|
CF |
21/5/2024 |
Cloudy |
Mid-ebb |
Moderate |
M |
10 |
12:30:00 PM |
9.40 |
8.08 |
32.63 |
25.81 |
2.18 |
2.50 |
<0.1 |
<0.01 |
|
CF |
21/5/2024 |
Cloudy |
Mid-ebb |
Moderate |
M |
10 |
12:30:00 PM |
9.43 |
8.11 |
32.50 |
25.78 |
2.18 |
2.50 |
<0.1 |
<0.01 |
|
CF |
21/5/2024 |
Cloudy |
Mid-ebb |
Moderate |
B |
20 |
12:31:00 PM |
9.45 |
8.08 |
32.63 |
25.84 |
2.14 |
2.50 |
<0.1 |
<0.01 |
|
CF |
21/5/2024 |
Cloudy |
Mid-ebb |
Moderate |
B |
20 |
12:31:00 PM |
9.40 |
8.05 |
32.54 |
25.79 |
2.13 |
2.50 |
<0.1 |
<0.01 |
|
WSR01 |
21/5/2024 |
Cloudy |
Mid-ebb |
Moderate |
S |
1 |
12:04:00 PM |
9.12 |
8.25 |
33.23 |
25.93 |
1.45 |
2.50 |
<0.1 |
<0.01 |
|
WSR01 |
21/5/2024 |
Cloudy |
Mid-ebb |
Moderate |
S |
1 |
12:04:00 PM |
9.12 |
8.25 |
33.25 |
25.90 |
1.46 |
2.50 |
<0.1 |
<0.01 |
|
WSR01 |
21/5/2024 |
Cloudy |
Mid-ebb |
Moderate |
M |
4 |
12:05:00 PM |
9.07 |
8.32 |
33.20 |
25.94 |
1.51 |
2.50 |
<0.1 |
<0.01 |
|
WSR01 |
21/5/2024 |
Cloudy |
Mid-ebb |
Moderate |
M |
4 |
12:05:00 PM |
9.12 |
8.25 |
33.18 |
25.89 |
1.47 |
2.50 |
<0.1 |
<0.01 |
|
WSR01 |
21/5/2024 |
Cloudy |
Mid-ebb |
Moderate |
B |
8 |
12:06:00 PM |
9.08 |
8.32 |
33.30 |
25.89 |
1.45 |
2.50 |
<0.1 |
<0.01 |
|
WSR01 |
21/5/2024 |
Cloudy |
Mid-ebb |
Moderate |
B |
8 |
12:06:00 PM |
9.09 |
8.26 |
33.20 |
25.94 |
1.44 |
2.50 |
<0.1 |
<0.01 |
|
WSR02 |
21/5/2024 |
Cloudy |
Mid-ebb |
Moderate |
S |
1 |
11:44:00 AM |
8.66 |
8.09 |
31.79 |
25.88 |
1.90 |
2.50 |
<0.1 |
<0.01 |
|
WSR02 |
21/5/2024 |
Cloudy |
Mid-ebb |
Moderate |
S |
1 |
11:44:00 AM |
8.67 |
8.08 |
31.94 |
25.95 |
1.91 |
2.50 |
<0.1 |
<0.01 |
|
WSR02 |
21/5/2024 |
Cloudy |
Mid-ebb |
Moderate |
M |
5 |
11:45:00 AM |
8.68 |
8.13 |
31.81 |
25.93 |
1.92 |
2.50 |
<0.1 |
<0.01 |
|
WSR02 |
21/5/2024 |
Cloudy |
Mid-ebb |
Moderate |
M |
5 |
11:45:00 AM |
8.62 |
8.09 |
31.88 |
25.92 |
1.88 |
2.50 |
<0.1 |
<0.01 |
|
WSR02 |
21/5/2024 |
Cloudy |
Mid-ebb |
Moderate |
B |
9 |
11:46:00 AM |
8.62 |
8.09 |
31.88 |
25.92 |
1.94 |
2.50 |
<0.1 |
<0.01 |
|
WSR02 |
21/5/2024 |
Cloudy |
Mid-ebb |
Moderate |
B |
9 |
11:46:00 AM |
8.61 |
8.07 |
31.82 |
25.93 |
1.89 |
2.50 |
<0.1 |
<0.01 |
|
Location |
Date |
Weather |
Tide |
Sea Condition |
Water Level |
Depth (m) |
Time |
DO (mg/L) |
pH |
Sal (ppt) |
Temp ((¢XC) |
Turbidty (NTU) |
SS (mg/L) |
Iron (mg/L) |
Total Residual Chlorine (mg/L) |
|
WSR03 |
21/5/2024 |
Cloudy |
Mid-ebb |
Moderate |
S |
1 |
11:26:00 AM |
8.73 |
8.31 |
32.09 |
25.76 |
1.49 |
2.50 |
<0.1 |
<0.01 |
|
WSR03 |
21/5/2024 |
Cloudy |
Mid-ebb |
Moderate |
S |
1 |
11:26:00 AM |
8.72 |
8.28 |
32.05 |
25.74 |
1.56 |
2.50 |
<0.1 |
<0.01 |
|
WSR03 |
21/5/2024 |
Cloudy |
Mid-ebb |
Moderate |
M |
4 |
11:27:00 AM |
8.73 |
8.34 |
32.15 |
25.73 |
1.51 |
2.50 |
<0.1 |
<0.01 |
|
WSR03 |
21/5/2024 |
Cloudy |
Mid-ebb |
Moderate |
M |
4 |
11:27:00 AM |
8.76 |
8.31 |
32.15 |
25.74 |
1.43 |
2.50 |
<0.1 |
<0.01 |
|
WSR03 |
21/5/2024 |
Cloudy |
Mid-ebb |
Moderate |
B |
7 |
11:28:00 AM |
8.75 |
8.34 |
32.08 |
25.70 |
1.45 |
2.50 |
<0.1 |
<0.01 |
|
WSR03 |
21/5/2024 |
Cloudy |
Mid-ebb |
Moderate |
B |
7 |
11:28:00 AM |
8.77 |
8.34 |
32.07 |
25.72 |
1.45 |
2.50 |
<0.1 |
<0.01 |
|
WSR04 |
21/5/2024 |
Cloudy |
Mid-ebb |
Moderate |
S |
1 |
11:13:00 AM |
9.59 |
8.38 |
32.25 |
25.81 |
1.45 |
2.50 |
<0.1 |
<0.01 |
|
WSR04 |
21/5/2024 |
Cloudy |
Mid-ebb |
Moderate |
S |
1 |
11:13:00 AM |
9.65 |
8.35 |
32.29 |
25.88 |
1.50 |
3.00 |
<0.1 |
<0.01 |
|
WSR04 |
21/5/2024 |
Cloudy |
Mid-ebb |
Moderate |
M |
3 |
11:14:00 AM |
9.62 |
8.37 |
32.29 |
25.82 |
1.46 |
2.50 |
<0.1 |
<0.01 |
|
WSR04 |
21/5/2024 |
Cloudy |
Mid-ebb |
Moderate |
M |
3 |
11:14:00 AM |
9.58 |
8.31 |
32.33 |
25.82 |
1.49 |
2.50 |
<0.1 |
<0.01 |
|
WSR04 |
21/5/2024 |
Cloudy |
Mid-ebb |
Moderate |
B |
6 |
11:15:00 AM |
9.58 |
8.34 |
32.38 |
25.83 |
1.50 |
2.50 |
<0.1 |
<0.01 |
|
WSR04 |
21/5/2024 |
Cloudy |
Mid-ebb |
Moderate |
B |
6 |
11:15:00 AM |
9.64 |
8.38 |
32.34 |
25.85 |
1.48 |
2.50 |
<0.1 |
<0.01 |
|
WSR16 |
21/5/2024 |
Cloudy |
Mid-ebb |
Moderate |
S |
1 |
9:41:00 AM |
8.65 |
8.20 |
32.86 |
25.88 |
1.93 |
2.50 |
<0.1 |
<0.01 |
|
WSR16 |
21/5/2024 |
Cloudy |
Mid-ebb |
Moderate |
S |
1 |
9:41:00 AM |
8.69 |
8.16 |
32.93 |
25.84 |
1.98 |
2.50 |
<0.1 |
<0.01 |
|
WSR16 |
21/5/2024 |
Cloudy |
Mid-ebb |
Moderate |
M |
8 |
9:42:00 AM |
8.66 |
8.18 |
32.94 |
25.85 |
1.99 |
2.50 |
<0.1 |
<0.01 |
|
WSR16 |
21/5/2024 |
Cloudy |
Mid-ebb |
Moderate |
M |
8 |
9:42:00 AM |
8.69 |
8.17 |
32.95 |
25.83 |
2.06 |
2.50 |
<0.1 |
<0.01 |
|
WSR16 |
21/5/2024 |
Cloudy |
Mid-ebb |
Moderate |
B |
16 |
9:43:00 AM |
8.68 |
8.18 |
32.99 |
25.90 |
2.01 |
2.50 |
<0.1 |
<0.01 |
|
WSR16 |
21/5/2024 |
Cloudy |
Mid-ebb |
Moderate |
B |
16 |
9:43:00 AM |
8.69 |
8.17 |
32.94 |
25.90 |
2.08 |
2.50 |
<0.1 |
<0.01 |
|
WSR33 |
21/5/2024 |
Cloudy |
Mid-ebb |
Moderate |
S |
1 |
10:57:00 AM |
8.71 |
8.31 |
31.74 |
25.87 |
1.95 |
2.50 |
<0.1 |
<0.01 |
|
WSR33 |
21/5/2024 |
Cloudy |
Mid-ebb |
Moderate |
S |
1 |
10:57:00 AM |
8.75 |
8.37 |
31.70 |
25.83 |
1.96 |
2.50 |
<0.1 |
<0.01 |
|
WSR33 |
21/5/2024 |
Cloudy |
Mid-ebb |
Moderate |
M |
4 |
10:58:00 AM |
8.73 |
8.29 |
31.82 |
25.80 |
1.94 |
2.50 |
<0.1 |
<0.01 |
|
WSR33 |
21/5/2024 |
Cloudy |
Mid-ebb |
Moderate |
M |
4 |
10:58:00 AM |
8.72 |
8.31 |
31.71 |
25.82 |
1.92 |
2.50 |
<0.1 |
<0.01 |
|
WSR33 |
21/5/2024 |
Cloudy |
Mid-ebb |
Moderate |
B |
6 |
10:59:00 AM |
8.73 |
8.37 |
31.76 |
25.82 |
1.91 |
3.00 |
<0.1 |
<0.01 |
|
WSR33 |
21/5/2024 |
Cloudy |
Mid-ebb |
Moderate |
B |
6 |
10:59:00 AM |
8.74 |
8.36 |
31.79 |
25.86 |
1.93 |
2.50 |
<0.1 |
<0.01 |
|
WSR36 |
21/5/2024 |
Cloudy |
Mid-ebb |
Moderate |
S |
1 |
10:41:00 AM |
8.92 |
8.30 |
32.54 |
25.90 |
1.63 |
2.50 |
<0.1 |
<0.01 |
|
WSR36 |
21/5/2024 |
Cloudy |
Mid-ebb |
Moderate |
S |
1 |
10:41:00 AM |
8.98 |
8.28 |
32.67 |
25.95 |
1.68 |
2.50 |
<0.1 |
<0.01 |
|
WSR36 |
21/5/2024 |
Cloudy |
Mid-ebb |
Moderate |
M |
3 |
10:42:00 AM |
8.98 |
8.25 |
32.62 |
25.92 |
1.67 |
2.50 |
<0.1 |
<0.01 |
|
WSR36 |
21/5/2024 |
Cloudy |
Mid-ebb |
Moderate |
M |
3 |
10:42:00 AM |
8.99 |
8.31 |
32.66 |
25.94 |
1.70 |
3.00 |
<0.1 |
<0.01 |
|
WSR36 |
21/5/2024 |
Cloudy |
Mid-ebb |
Moderate |
B |
5 |
10:42:00 AM |
8.98 |
8.26 |
32.57 |
25.91 |
1.68 |
2.50 |
<0.1 |
<0.01 |
|
WSR36 |
21/5/2024 |
Cloudy |
Mid-ebb |
Moderate |
B |
5 |
10:42:00 AM |
8.97 |
8.29 |
32.59 |
25.95 |
1.70 |
2.50 |
<0.1 |
<0.01 |
|
Location |
Date |
Weather |
Tide |
Sea Condition |
Water Level |
Depth (m) |
Time |
DO (mg/L) |
pH |
Sal (ppt) |
Temp ((¢XC) |
Turbidty (NTU) |
SS (mg/L) |
Iron (mg/L) |
Total Residual Chlorine (mg/L) |
|
WSR37 |
21/5/2024 |
Cloudy |
Mid-ebb |
Moderate |
S |
1 |
10:35:00 AM |
8.78 |
8.11 |
32.73 |
25.66 |
1.80 |
2.50 |
<0.1 |
<0.01 |
|
WSR37 |
21/5/2024 |
Cloudy |
Mid-ebb |
Moderate |
S |
1 |
10:35:00 AM |
8.75 |
8.11 |
32.71 |
25.72 |
1.82 |
2.50 |
<0.1 |
<0.01 |
|
WSR37 |
21/5/2024 |
Cloudy |
Mid-ebb |
Moderate |
M |
4 |
10:36:00 AM |
8.74 |
8.11 |
32.73 |
25.71 |
1.79 |
2.50 |
<0.1 |
<0.01 |
|
WSR37 |
21/5/2024 |
Cloudy |
Mid-ebb |
Moderate |
M |
4 |
10:36:00 AM |
8.81 |
8.12 |
32.70 |
25.65 |
1.82 |
2.50 |
<0.1 |
<0.01 |
|
WSR37 |
21/5/2024 |
Cloudy |
Mid-ebb |
Moderate |
B |
8 |
10:37:00 AM |
8.75 |
8.12 |
32.66 |
25.71 |
1.80 |
2.50 |
<0.1 |
<0.01 |
|
WSR37 |
21/5/2024 |
Cloudy |
Mid-ebb |
Moderate |
B |
8 |
10:37:00 AM |
8.79 |
8.12 |
32.70 |
25.70 |
1.85 |
2.50 |
<0.1 |
<0.01 |
|
NF1 |
21/5/2024 |
Cloudy |
Mid-ebb |
Moderate |
S |
1 |
10:04:00 AM |
9.04 |
8.37 |
32.26 |
25.99 |
1.83 |
2.50 |
<0.1 |
<0.01 |
|
NF1 |
21/5/2024 |
Cloudy |
Mid-ebb |
Moderate |
S |
1 |
10:04:00 AM |
9.07 |
8.34 |
32.30 |
26.01 |
1.86 |
2.50 |
<0.1 |
<0.01 |
|
NF1 |
21/5/2024 |
Cloudy |
Mid-ebb |
Moderate |
M |
7 |
10:05:00 AM |
9.01 |
8.32 |
32.26 |
25.99 |
1.81 |
3.00 |
<0.1 |
<0.01 |
|
NF1 |
21/5/2024 |
Cloudy |
Mid-ebb |
Moderate |
M |
7 |
10:05:00 AM |
9.08 |
8.35 |
32.26 |
25.98 |
1.85 |
2.50 |
<0.1 |
<0.01 |
|
NF1 |
21/5/2024 |
Cloudy |
Mid-ebb |
Moderate |
B |
13 |
10:06:00 AM |
9.05 |
8.34 |
32.23 |
25.98 |
1.87 |
2.50 |
<0.1 |
<0.01 |
|
NF1 |
21/5/2024 |
Cloudy |
Mid-ebb |
Moderate |
B |
13 |
10:06:00 AM |
9.05 |
8.36 |
32.31 |
25.97 |
1.82 |
3.00 |
<0.1 |
<0.01 |
|
NF2 |
21/5/2024 |
Cloudy |
Mid-ebb |
Moderate |
S |
1 |
10:20:00 AM |
9.25 |
8.33 |
33.18 |
25.85 |
2.03 |
2.50 |
<0.1 |
<0.01 |
|
NF2 |
21/5/2024 |
Cloudy |
Mid-ebb |
Moderate |
S |
1 |
10:20:00 AM |
9.25 |
8.31 |
33.25 |
25.85 |
2.05 |
3.00 |
<0.1 |
<0.01 |
|
NF2 |
21/5/2024 |
Cloudy |
Mid-ebb |
Moderate |
M |
5 |
10:21:00 AM |
9.23 |
8.31 |
33.23 |
25.87 |
2.10 |
2.50 |
<0.1 |
<0.01 |
|
NF2 |
21/5/2024 |
Cloudy |
Mid-ebb |
Moderate |
M |
5 |
10:21:00 AM |
9.24 |
8.31 |
33.17 |
25.85 |
2.07 |
2.50 |
<0.1 |
<0.01 |
|
NF2 |
21/5/2024 |
Cloudy |
Mid-ebb |
Moderate |
B |
9 |
10:22:00 AM |
9.20 |
8.29 |
33.20 |
25.88 |
2.10 |
2.50 |
<0.1 |
<0.01 |
|
NF2 |
21/5/2024 |
Cloudy |
Mid-ebb |
Moderate |
B |
9 |
10:22:00 AM |
9.25 |
8.34 |
33.23 |
25.84 |
2.08 |
2.50 |
<0.1 |
<0.01 |
|
NF3 |
21/5/2024 |
Cloudy |
Mid-ebb |
Moderate |
S |
1 |
10:28:00 AM |
9.15 |
8.28 |
31.77 |
25.84 |
2.00 |
5.00 |
<0.1 |
<0.01 |
|
NF3 |
21/5/2024 |
Cloudy |
Mid-ebb |
Moderate |
S |
1 |
10:28:00 AM |
9.19 |
8.27 |
31.85 |
25.83 |
1.98 |
5.00 |
<0.1 |
<0.01 |
|
NF3 |
21/5/2024 |
Cloudy |
Mid-ebb |
Moderate |
M |
6 |
10:29:00 AM |
9.16 |
8.26 |
31.75 |
25.81 |
2.02 |
2.50 |
<0.1 |
<0.01 |
|
NF3 |
21/5/2024 |
Cloudy |
Mid-ebb |
Moderate |
M |
6 |
10:29:00 AM |
9.16 |
8.22 |
31.83 |
25.79 |
1.99 |
2.50 |
<0.1 |
<0.01 |
|
NF3 |
21/5/2024 |
Cloudy |
Mid-ebb |
Moderate |
B |
12 |
10:30:00 AM |
9.16 |
8.26 |
31.89 |
25.81 |
2.02 |
2.50 |
<0.1 |
<0.01 |
|
NF3 |
21/5/2024 |
Cloudy |
Mid-ebb |
Moderate |
B |
12 |
10:30:00 AM |
9.18 |
8.21 |
31.82 |
25.80 |
2.01 |
2.50 |
<0.1 |
<0.01 |
|
CE |
23/5/2024 |
Cloudy |
Mid-ebb |
Moderate |
S |
1 |
10:12:00 AM |
8.31 |
8.23 |
32.53 |
25.98 |
2.26 |
2.50 |
<0.1 |
<0.01 |
|
CE |
23/5/2024 |
Cloudy |
Mid-ebb |
Moderate |
S |
1 |
10:12:00 AM |
8.30 |
8.25 |
32.55 |
26.02 |
2.23 |
2.50 |
<0.1 |
<0.01 |
|
CE |
23/5/2024 |
Cloudy |
Mid-ebb |
Moderate |
M |
11 |
10:13:00 AM |
8.27 |
8.26 |
32.47 |
25.98 |
2.13 |
2.50 |
<0.1 |
<0.01 |
|
CE |
23/5/2024 |
Cloudy |
Mid-ebb |
Moderate |
M |
11 |
10:13:00 AM |
8.30 |
8.25 |
32.52 |
25.99 |
2.18 |
2.50 |
<0.1 |
<0.01 |
|
CE |
23/5/2024 |
Cloudy |
Mid-ebb |
Moderate |
B |
20 |
10:14:00 AM |
8.24 |
8.24 |
32.57 |
25.97 |
2.14 |
2.50 |
<0.1 |
<0.01 |
|
CE |
23/5/2024 |
Cloudy |
Mid-ebb |
Moderate |
B |
20 |
10:14:00 AM |
8.29 |
8.25 |
32.54 |
26.01 |
2.17 |
2.50 |
<0.1 |
<0.01 |
|
Location |
Date |
Weather |
Tide |
Sea Condition |
Water Level |
Depth (m) |
Time |
DO (mg/L) |
pH |
Sal (ppt) |
Temp ((¢XC) |
Turbidty (NTU) |
SS (mg/L) |
Iron (mg/L) |
Total Residual Chlorine (mg/L) |
|
CF |
23/5/2024 |
Cloudy |
Mid-ebb |
Moderate |
S |
1 |
1:19:00 PM |
8.87 |
8.31 |
32.23 |
26.02 |
1.92 |
2.50 |
<0.1 |
<0.01 |
|
CF |
23/5/2024 |
Cloudy |
Mid-ebb |
Moderate |
S |
1 |
1:19:00 PM |
8.82 |
8.32 |
32.15 |
26.07 |
1.97 |
2.50 |
<0.1 |
<0.01 |
|
CF |
23/5/2024 |
Cloudy |
Mid-ebb |
Moderate |
M |
10 |
1:20:00 PM |
8.87 |
8.31 |
32.15 |
26.04 |
2.00 |
2.50 |
<0.1 |
<0.01 |
|
CF |
23/5/2024 |
Cloudy |
Mid-ebb |
Moderate |
M |
10 |
1:20:00 PM |
8.85 |
8.34 |
32.19 |
26.03 |
1.94 |
2.50 |
<0.1 |
<0.01 |
|
CF |
23/5/2024 |
Cloudy |
Mid-ebb |
Moderate |
B |
18 |
1:21:00 PM |
8.85 |
8.32 |
32.20 |
26.00 |
1.93 |
2.50 |
<0.1 |
<0.01 |
|
CF |
23/5/2024 |
Cloudy |
Mid-ebb |
Moderate |
B |
18 |
1:21:00 PM |
8.88 |
8.35 |
32.15 |
26.06 |
1.98 |
2.50 |
<0.1 |
<0.01 |
|
WSR01 |
23/5/2024 |
Cloudy |
Mid-ebb |
Moderate |
S |
1 |
12:55:00 PM |
8.43 |
8.35 |
32.37 |
25.81 |
1.78 |
2.50 |
<0.1 |
<0.01 |
|
WSR01 |
23/5/2024 |
Cloudy |
Mid-ebb |
Moderate |
S |
1 |
12:55:00 PM |
8.47 |
8.37 |
32.33 |
25.78 |
1.77 |
2.50 |
<0.1 |
<0.01 |
|
WSR01 |
23/5/2024 |
Cloudy |
Mid-ebb |
Moderate |
M |
4 |
12:56:00 PM |
8.45 |
8.37 |
32.38 |
25.79 |
1.83 |
2.50 |
<0.1 |
<0.01 |
|
WSR01 |
23/5/2024 |
Cloudy |
Mid-ebb |
Moderate |
M |
4 |
12:56:00 PM |
8.41 |
8.38 |
32.33 |
25.82 |
1.82 |
2.50 |
<0.1 |
<0.01 |
|
WSR01 |
23/5/2024 |
Cloudy |
Mid-ebb |
Moderate |
B |
7 |
12:57:00 PM |
8.47 |
8.33 |
32.30 |
25.78 |
1.80 |
2.50 |
<0.1 |
<0.01 |
|
WSR01 |
23/5/2024 |
Cloudy |
Mid-ebb |
Moderate |
B |
7 |
12:57:00 PM |
8.47 |
8.33 |
32.39 |
25.82 |
1.82 |
2.50 |
<0.1 |
<0.01 |
|
WSR02 |
23/5/2024 |
Cloudy |
Mid-ebb |
Moderate |
S |
1 |
12:36:00 PM |
9.43 |
8.15 |
32.95 |
25.89 |
1.50 |
3.00 |
<0.1 |
<0.01 |
|
WSR02 |
23/5/2024 |
Cloudy |
Mid-ebb |
Moderate |
S |
1 |
12:36:00 PM |
9.41 |
8.15 |
32.94 |
25.93 |
1.48 |
2.50 |
<0.1 |
<0.01 |
|
WSR02 |
23/5/2024 |
Cloudy |
Mid-ebb |
Moderate |
M |
5 |
12:37:00 PM |
9.39 |
8.16 |
32.94 |
25.92 |
1.43 |
2.50 |
<0.1 |
<0.01 |
|
WSR02 |
23/5/2024 |
Cloudy |
Mid-ebb |
Moderate |
M |
5 |
12:37:00 PM |
9.46 |
8.17 |
32.97 |
25.88 |
1.51 |
3.00 |
<0.1 |
<0.01 |
|
WSR02 |
23/5/2024 |
Cloudy |
Mid-ebb |
Moderate |
B |
9 |
12:38:00 PM |
9.41 |
8.15 |
32.94 |
25.90 |
1.46 |
2.50 |
<0.1 |
<0.01 |
|
WSR02 |
23/5/2024 |
Cloudy |
Mid-ebb |
Moderate |
B |
9 |
12:38:00 PM |
9.44 |
8.18 |
32.92 |
25.94 |
1.43 |
2.50 |
<0.1 |
<0.01 |
|
WSR03 |
23/5/2024 |
Cloudy |
Mid-ebb |
Moderate |
S |
1 |
12:18:00 PM |
9.08 |
8.15 |
32.65 |
25.92 |
1.71 |
2.50 |
<0.1 |
<0.01 |
|
WSR03 |
23/5/2024 |
Cloudy |
Mid-ebb |
Moderate |
S |
1 |
12:18:00 PM |
9.08 |
8.11 |
32.65 |
25.90 |
1.64 |
3.00 |
<0.1 |
<0.01 |
|
WSR03 |
23/5/2024 |
Cloudy |
Mid-ebb |
Moderate |
M |
4 |
12:19:00 PM |
9.06 |
8.14 |
32.62 |
25.93 |
1.64 |
2.50 |
<0.1 |
<0.01 |
|
WSR03 |
23/5/2024 |
Cloudy |
Mid-ebb |
Moderate |
M |
4 |
12:19:00 PM |
9.02 |
8.10 |
32.69 |
25.92 |
1.72 |
2.50 |
<0.1 |
<0.01 |
|
WSR03 |
23/5/2024 |
Cloudy |
Mid-ebb |
Moderate |
B |
7 |
12:20:00 PM |
9.07 |
8.12 |
32.70 |
25.89 |
1.68 |
2.50 |
<0.1 |
<0.01 |
|
WSR03 |
23/5/2024 |
Cloudy |
Mid-ebb |
Moderate |
B |
7 |
12:20:00 PM |
9.08 |
8.11 |
32.69 |
25.93 |
1.68 |
2.50 |
<0.1 |
<0.01 |
|
WSR04 |
23/5/2024 |
Cloudy |
Mid-ebb |
Moderate |
S |
1 |
12:05:00 PM |
9.14 |
8.28 |
33.25 |
25.71 |
1.93 |
4.00 |
<0.1 |
<0.01 |
|
WSR04 |
23/5/2024 |
Cloudy |
Mid-ebb |
Moderate |
S |
1 |
12:05:00 PM |
9.11 |
8.31 |
33.29 |
25.68 |
1.93 |
2.50 |
<0.1 |
<0.01 |
|
WSR04 |
23/5/2024 |
Cloudy |
Mid-ebb |
Moderate |
M |
3 |
12:06:00 PM |
9.06 |
8.31 |
33.28 |
25.73 |
1.95 |
2.50 |
<0.1 |
<0.01 |
|
WSR04 |
23/5/2024 |
Cloudy |
Mid-ebb |
Moderate |
M |
3 |
12:06:00 PM |
9.12 |
8.33 |
33.25 |
25.73 |
1.90 |
2.50 |
<0.1 |
<0.01 |
|
WSR04 |
23/5/2024 |
Cloudy |
Mid-ebb |
Moderate |
B |
6 |
12:07:00 PM |
9.14 |
8.31 |
33.24 |
25.73 |
1.93 |
2.50 |
<0.1 |
<0.01 |
|
WSR04 |
23/5/2024 |
Cloudy |
Mid-ebb |
Moderate |
B |
6 |
12:07:00 PM |
9.13 |
8.29 |
33.31 |
25.68 |
1.90 |
2.50 |
<0.1 |
<0.01 |
|
Location |
Date |
Weather |
Tide |
Sea Condition |
Water Level |
Depth (m) |
Time |
DO (mg/L) |
pH |
Sal (ppt) |
Temp ((¢XC) |
Turbidty (NTU) |
SS (mg/L) |
Iron (mg/L) |
Total Residual Chlorine (mg/L) |
|
WSR16 |
23/5/2024 |
Cloudy |
Mid-ebb |
Moderate |
S |
1 |
10:35:00 AM |
9.08 |
8.24 |
32.95 |
25.81 |
1.58 |
3.00 |
<0.1 |
<0.01 |
|
WSR16 |
23/5/2024 |
Cloudy |
Mid-ebb |
Moderate |
S |
1 |
10:35:00 AM |
9.04 |
8.24 |
32.93 |
25.84 |
1.58 |
2.50 |
<0.1 |
<0.01 |
|
WSR16 |
23/5/2024 |
Cloudy |
Mid-ebb |
Moderate |
M |
9 |
10:36:00 AM |
9.05 |
8.24 |
32.98 |
25.81 |
1.56 |
2.50 |
<0.1 |
<0.01 |
|
WSR16 |
23/5/2024 |
Cloudy |
Mid-ebb |
Moderate |
M |
9 |
10:36:00 AM |
9.09 |
8.23 |
33.00 |
25.81 |
1.57 |
2.50 |
<0.1 |
<0.01 |
|
WSR16 |
23/5/2024 |
Cloudy |
Mid-ebb |
Moderate |
B |
16 |
10:37:00 AM |
9.12 |
8.21 |
32.95 |
25.77 |
1.55 |
3.00 |
<0.1 |
<0.01 |
|
WSR16 |
23/5/2024 |
Cloudy |
Mid-ebb |
Moderate |
B |
16 |
10:37:00 AM |
9.09 |
8.22 |
32.96 |
25.82 |
1.55 |
4.00 |
<0.1 |
<0.01 |
|
WSR33 |
23/5/2024 |
Cloudy |
Mid-ebb |
Moderate |
S |
1 |
11:48:00 AM |
8.96 |
8.32 |
31.98 |
25.71 |
1.87 |
3.00 |
<0.1 |
<0.01 |
|
WSR33 |
23/5/2024 |
Cloudy |
Mid-ebb |
Moderate |
S |
1 |
11:48:00 AM |
8.91 |
8.37 |
31.92 |
25.69 |
1.87 |
4.00 |
<0.1 |
<0.01 |
|
WSR33 |
23/5/2024 |
Cloudy |
Mid-ebb |
Moderate |
M |
4 |
11:49:00 AM |
8.91 |
8.35 |
31.97 |
25.72 |
1.78 |
2.50 |
<0.1 |
<0.01 |
|
WSR33 |
23/5/2024 |
Cloudy |
Mid-ebb |
Moderate |
M |
4 |
11:49:00 AM |
8.90 |
8.33 |
31.99 |
25.74 |
1.83 |
4.00 |
<0.1 |
<0.01 |
|
WSR33 |
23/5/2024 |
Cloudy |
Mid-ebb |
Moderate |
B |
6 |
11:50:00 AM |
8.88 |
8.37 |
31.95 |
25.69 |
1.83 |
2.50 |
<0.1 |
<0.01 |
|
WSR33 |
23/5/2024 |
Cloudy |
Mid-ebb |
Moderate |
B |
6 |
11:50:00 AM |
8.88 |
8.32 |
32.02 |
25.73 |
1.86 |
2.50 |
<0.1 |
<0.01 |
|
WSR36 |
23/5/2024 |
Cloudy |
Mid-ebb |
Moderate |
S |
1 |
11:34:00 AM |
8.95 |
8.37 |
32.99 |
25.93 |
1.68 |
2.50 |
<0.1 |
<0.01 |
|
WSR36 |
23/5/2024 |
Cloudy |
Mid-ebb |
Moderate |
S |
1 |
11:34:00 AM |
9.00 |
8.41 |
33.01 |
25.93 |
1.77 |
2.50 |
<0.1 |
<0.01 |
|
WSR36 |
23/5/2024 |
Cloudy |
Mid-ebb |
Moderate |
M |
3 |
11:35:00 AM |
8.99 |
8.41 |
32.95 |
25.90 |
1.75 |
2.50 |
<0.1 |
<0.01 |
|
WSR36 |
23/5/2024 |
Cloudy |
Mid-ebb |
Moderate |
M |
3 |
11:35:00 AM |
8.94 |
8.37 |
33.04 |
25.89 |
1.74 |
2.50 |
<0.1 |
<0.01 |
|
WSR36 |
23/5/2024 |
Cloudy |
Mid-ebb |
Moderate |
B |
6 |
11:35:00 AM |
8.94 |
8.39 |
32.93 |
25.90 |
1.76 |
2.50 |
<0.1 |
<0.01 |
|
WSR36 |
23/5/2024 |
Cloudy |
Mid-ebb |
Moderate |
B |
6 |
11:35:00 AM |
8.99 |
8.42 |
33.04 |
25.93 |
1.71 |
2.50 |
<0.1 |
<0.01 |
|
WSR37 |
23/5/2024 |
Cloudy |
Mid-ebb |
Moderate |
S |
1 |
11:27:00 AM |
9.11 |
8.37 |
33.01 |
25.91 |
1.53 |
4.00 |
<0.1 |
<0.01 |
|
WSR37 |
23/5/2024 |
Cloudy |
Mid-ebb |
Moderate |
S |
1 |
11:27:00 AM |
9.08 |
8.40 |
33.01 |
25.96 |
1.49 |
2.50 |
<0.1 |
<0.01 |
|
WSR37 |
23/5/2024 |
Cloudy |
Mid-ebb |
Moderate |
M |
4 |
11:28:00 AM |
9.13 |
8.41 |
33.01 |
25.95 |
1.52 |
4.00 |
<0.1 |
<0.01 |
|
WSR37 |
23/5/2024 |
Cloudy |
Mid-ebb |
Moderate |
M |
4 |
11:28:00 AM |
9.12 |
8.39 |
33.03 |
25.94 |
1.48 |
2.50 |
<0.1 |
<0.01 |
|
WSR37 |
23/5/2024 |
Cloudy |
Mid-ebb |
Moderate |
B |
7 |
11:29:00 AM |
9.08 |
8.38 |
33.01 |
25.96 |
1.54 |
2.50 |
<0.1 |
<0.01 |
|
WSR37 |
23/5/2024 |
Cloudy |
Mid-ebb |
Moderate |
B |
7 |
11:29:00 AM |
9.06 |
8.39 |
33.05 |
25.94 |
1.49 |
3.00 |
<0.1 |
<0.01 |
|
NF1 |
23/5/2024 |
Cloudy |
Mid-ebb |
Moderate |
S |
1 |
10:57:00 AM |
8.53 |
8.12 |
32.20 |
25.75 |
1.24 |
2.50 |
<0.1 |
<0.01 |
|
NF1 |
23/5/2024 |
Cloudy |
Mid-ebb |
Moderate |
S |
1 |
10:57:00 AM |
8.51 |
8.11 |
32.18 |
25.75 |
1.25 |
4.00 |
<0.1 |
<0.01 |
|
NF1 |
23/5/2024 |
Cloudy |
Mid-ebb |
Moderate |
M |
7 |
10:58:00 AM |
8.51 |
8.13 |
32.12 |
25.81 |
1.24 |
2.50 |
<0.1 |
<0.01 |
|
NF1 |
23/5/2024 |
Cloudy |
Mid-ebb |
Moderate |
M |
7 |
10:58:00 AM |
8.49 |
8.16 |
32.09 |
25.82 |
1.25 |
4.00 |
<0.1 |
<0.01 |
|
NF1 |
23/5/2024 |
Cloudy |
Mid-ebb |
Moderate |
B |
13 |
10:59:00 AM |
8.49 |
8.11 |
32.14 |
25.75 |
1.26 |
2.50 |
<0.1 |
<0.01 |
|
NF1 |
23/5/2024 |
Cloudy |
Mid-ebb |
Moderate |
B |
13 |
10:59:00 AM |
8.48 |
8.15 |
32.19 |
25.80 |
1.26 |
3.00 |
<0.1 |
<0.01 |
|
Location |
Date |
Weather |
Tide |
Sea Condition |
Water Level |
Depth (m) |
Time |
DO (mg/L) |
pH |
Sal (ppt) |
Temp ((¢XC) |
Turbidty (NTU) |
SS (mg/L) |
Iron (mg/L) |
Total Residual Chlorine (mg/L) |
|
NF2 |
23/5/2024 |
Cloudy |
Mid-ebb |
Moderate |
S |
1 |
11:11:00 AM |
8.18 |
8.32 |
32.66 |
25.80 |
1.56 |
4.00 |
<0.1 |
<0.01 |
|
NF2 |
23/5/2024 |
Cloudy |
Mid-ebb |
Moderate |
S |
1 |
11:11:00 AM |
8.14 |
8.32 |
32.72 |
25.84 |
1.50 |
2.50 |
<0.1 |
<0.01 |
|
NF2 |
23/5/2024 |
Cloudy |
Mid-ebb |
Moderate |
M |
5 |
11:12:00 AM |
8.17 |
8.28 |
32.68 |
25.81 |
1.56 |
2.50 |
<0.1 |
<0.01 |
|
NF2 |
23/5/2024 |
Cloudy |
Mid-ebb |
Moderate |
M |
5 |
11:12:00 AM |
8.11 |
8.32 |
32.68 |
25.82 |
1.51 |
2.50 |
<0.1 |
<0.01 |
|
NF2 |
23/5/2024 |
Cloudy |
Mid-ebb |
Moderate |
B |
10 |
11:13:00 AM |
8.12 |
8.28 |
32.76 |
25.85 |
1.51 |
2.50 |
<0.1 |
<0.01 |
|
NF2 |
23/5/2024 |
Cloudy |
Mid-ebb |
Moderate |
B |
10 |
11:13:00 AM |
8.14 |
8.32 |
32.71 |
25.80 |
1.58 |
2.50 |
<0.1 |
<0.01 |
|
NF3 |
23/5/2024 |
Cloudy |
Mid-ebb |
Moderate |
S |
1 |
11:19:00 AM |
7.92 |
8.35 |
32.09 |
25.85 |
1.53 |
5.00 |
<0.1 |
<0.01 |
|
NF3 |
23/5/2024 |
Cloudy |
Mid-ebb |
Moderate |
S |
1 |
11:19:00 AM |
7.88 |
8.34 |
32.07 |
25.81 |
1.52 |
3.00 |
<0.1 |
<0.01 |
|
NF3 |
23/5/2024 |
Cloudy |
Mid-ebb |
Moderate |
M |
6 |
11:20:00 AM |
7.90 |
8.33 |
32.17 |
25.83 |
1.50 |
2.50 |
<0.1 |
<0.01 |
|
NF3 |
23/5/2024 |
Cloudy |
Mid-ebb |
Moderate |
M |
6 |
11:20:00 AM |
7.87 |
8.31 |
32.09 |
25.88 |
1.51 |
2.50 |
<0.1 |
<0.01 |
|
NF3 |
23/5/2024 |
Cloudy |
Mid-ebb |
Moderate |
B |
11 |
11:21:00 AM |
7.95 |
8.31 |
32.12 |
25.81 |
1.57 |
2.50 |
<0.1 |
<0.01 |
|
NF3 |
23/5/2024 |
Cloudy |
Mid-ebb |
Moderate |
B |
11 |
11:21:00 AM |
7.91 |
8.33 |
32.12 |
25.87 |
1.52 |
2.50 |
<0.1 |
<0.01 |
|
CE |
25/5/2024 |
Cloudy |
Mid-flood |
Moderate |
S |
1 |
11:10:00 AM |
8.10 |
8.24 |
32.12 |
26.45 |
2.18 |
2.50 |
<0.1 |
<0.01 |
|
CE |
25/5/2024 |
Cloudy |
Mid-flood |
Moderate |
S |
1 |
11:10:00 AM |
8.20 |
8.20 |
32.02 |
26.46 |
2.15 |
2.50 |
<0.1 |
<0.01 |
|
CE |
25/5/2024 |
Cloudy |
Mid-flood |
Moderate |
M |
12 |
11:11:00 AM |
8.20 |
8.21 |
32.11 |
26.43 |
2.09 |
2.50 |
<0.1 |
<0.01 |
|
CE |
25/5/2024 |
Cloudy |
Mid-flood |
Moderate |
M |
12 |
11:11:00 AM |
8.16 |
8.19 |
32.09 |
26.42 |
2.13 |
2.50 |
<0.1 |
<0.01 |
|
CE |
25/5/2024 |
Cloudy |
Mid-flood |
Moderate |
B |
22 |
11:12:00 AM |
8.11 |
8.20 |
32.08 |
26.48 |
2.13 |
2.50 |
<0.1 |
<0.01 |
|
CE |
25/5/2024 |
Cloudy |
Mid-flood |
Moderate |
B |
22 |
11:12:00 AM |
8.15 |
8.19 |
32.11 |
26.49 |
2.22 |
3.00 |
<0.1 |
<0.01 |
|
CF |
25/5/2024 |
Cloudy |
Mid-flood |
Moderate |
S |
1 |
8:00:00 AM |
8.65 |
8.26 |
33.12 |
26.47 |
2.54 |
2.50 |
<0.1 |
<0.01 |
|
CF |
25/5/2024 |
Cloudy |
Mid-flood |
Moderate |
S |
1 |
8:00:00 AM |
8.66 |
8.26 |
33.10 |
26.54 |
2.59 |
3.00 |
<0.1 |
<0.01 |
|
CF |
25/5/2024 |
Cloudy |
Mid-flood |
Moderate |
M |
10 |
8:01:00 AM |
8.59 |
8.22 |
33.10 |
26.47 |
2.53 |
4.00 |
<0.1 |
<0.01 |
|
CF |
25/5/2024 |
Cloudy |
Mid-flood |
Moderate |
M |
10 |
8:01:00 AM |
8.58 |
8.23 |
33.11 |
26.52 |
2.44 |
2.50 |
<0.1 |
<0.01 |
|
CF |
25/5/2024 |
Cloudy |
Mid-flood |
Moderate |
B |
19 |
8:02:00 AM |
8.66 |
8.28 |
33.02 |
26.53 |
2.48 |
2.50 |
<0.1 |
<0.01 |
|
CF |
25/5/2024 |
Cloudy |
Mid-flood |
Moderate |
B |
19 |
8:02:00 AM |
8.55 |
8.27 |
33.06 |
26.47 |
2.41 |
2.50 |
<0.1 |
<0.01 |
|
WSR01 |
25/5/2024 |
Cloudy |
Mid-flood |
Moderate |
S |
1 |
8:24:00 AM |
8.79 |
8.30 |
33.61 |
26.27 |
1.31 |
2.50 |
<0.1 |
<0.01 |
|
WSR01 |
25/5/2024 |
Cloudy |
Mid-flood |
Moderate |
S |
1 |
8:24:00 AM |
8.78 |
8.26 |
33.62 |
26.19 |
1.30 |
2.50 |
<0.1 |
<0.01 |
|
WSR01 |
25/5/2024 |
Cloudy |
Mid-flood |
Moderate |
M |
4 |
8:25:00 AM |
8.72 |
8.29 |
33.60 |
26.24 |
1.32 |
4.00 |
<0.1 |
<0.01 |
|
WSR01 |
25/5/2024 |
Cloudy |
Mid-flood |
Moderate |
M |
4 |
8:25:00 AM |
8.81 |
8.30 |
33.55 |
26.26 |
1.26 |
3.00 |
<0.1 |
<0.01 |
|
WSR01 |
25/5/2024 |
Cloudy |
Mid-flood |
Moderate |
B |
8 |
8:26:00 AM |
8.83 |
8.27 |
33.59 |
26.25 |
1.31 |
2.50 |
<0.1 |
<0.01 |
|
WSR01 |
25/5/2024 |
Cloudy |
Mid-flood |
Moderate |
B |
8 |
8:26:00 AM |
8.75 |
8.26 |
33.60 |
26.24 |
1.32 |
2.50 |
<0.1 |
<0.01 |
|
Location |
Date |
Weather |
Tide |
Sea Condition |
Water Level |
Depth (m) |
Time |
DO (mg/L) |
pH |
Sal (ppt) |
Temp ((¢XC) |
Turbidty (NTU) |
SS (mg/L) |
Iron (mg/L) |
Total Residual Chlorine (mg/L) |
|
WSR02 |
25/5/2024 |
Cloudy |
Mid-flood |
Moderate |
S |
1 |
8:45:00 AM |
9.17 |
8.43 |
32.62 |
26.30 |
1.92 |
2.50 |
<0.1 |
<0.01 |
|
WSR02 |
25/5/2024 |
Cloudy |
Mid-flood |
Moderate |
S |
1 |
8:45:00 AM |
9.20 |
8.39 |
32.57 |
26.28 |
1.99 |
2.50 |
<0.1 |
<0.01 |
|
WSR02 |
25/5/2024 |
Cloudy |
Mid-flood |
Moderate |
M |
5 |
8:46:00 AM |
9.12 |
8.41 |
32.53 |
26.32 |
1.93 |
3.00 |
<0.1 |
<0.01 |
|
WSR02 |
25/5/2024 |
Cloudy |
Mid-flood |
Moderate |
M |
5 |
8:46:00 AM |
9.21 |
8.41 |
32.60 |
26.24 |
1.91 |
2.50 |
<0.1 |
<0.01 |
|
WSR02 |
25/5/2024 |
Cloudy |
Mid-flood |
Moderate |
B |
9 |
8:47:00 AM |
9.15 |
8.44 |
32.50 |
26.32 |
1.90 |
2.50 |
<0.1 |
<0.01 |
|
WSR02 |
25/5/2024 |
Cloudy |
Mid-flood |
Moderate |
B |
9 |
8:47:00 AM |
9.10 |
8.40 |
32.60 |
26.32 |
1.99 |
4.00 |
<0.1 |
<0.01 |
|
WSR03 |
25/5/2024 |
Cloudy |
Mid-flood |
Moderate |
S |
1 |
9:01:00 AM |
8.71 |
8.24 |
32.71 |
26.43 |
1.79 |
4.00 |
<0.1 |
<0.01 |
|
WSR03 |
25/5/2024 |
Cloudy |
Mid-flood |
Moderate |
S |
1 |
9:01:00 AM |
8.66 |
8.24 |
32.64 |
26.43 |
1.78 |
4.00 |
<0.1 |
<0.01 |
|
WSR03 |
25/5/2024 |
Cloudy |
Mid-flood |
Moderate |
M |
4 |
9:02:00 AM |
8.73 |
8.27 |
32.65 |
26.37 |
1.76 |
3.00 |
<0.1 |
<0.01 |
|
WSR03 |
25/5/2024 |
Cloudy |
Mid-flood |
Moderate |
M |
4 |
9:02:00 AM |
8.74 |
8.22 |
32.65 |
26.45 |
1.75 |
5.00 |
<0.1 |
<0.01 |
|
WSR03 |
25/5/2024 |
Cloudy |
Mid-flood |
Moderate |
B |
7 |
9:03:00 AM |
8.78 |
8.24 |
32.62 |
26.44 |
1.77 |
2.50 |
<0.1 |
<0.01 |
|
WSR03 |
25/5/2024 |
Cloudy |
Mid-flood |
Moderate |
B |
7 |
9:03:00 AM |
8.76 |
8.24 |
32.64 |
26.39 |
1.82 |
2.50 |
<0.1 |
<0.01 |
|
WSR04 |
25/5/2024 |
Cloudy |
Mid-flood |
Moderate |
S |
1 |
9:17:00 AM |
9.07 |
8.35 |
32.77 |
26.33 |
1.42 |
5.00 |
<0.1 |
<0.01 |
|
WSR04 |
25/5/2024 |
Cloudy |
Mid-flood |
Moderate |
S |
1 |
9:17:00 AM |
9.07 |
8.33 |
32.91 |
26.37 |
1.40 |
3.00 |
<0.1 |
<0.01 |
|
WSR04 |
25/5/2024 |
Cloudy |
Mid-flood |
Moderate |
M |
3 |
9:18:00 AM |
9.12 |
8.33 |
32.88 |
26.30 |
1.42 |
4.00 |
<0.1 |
<0.01 |
|
WSR04 |
25/5/2024 |
Cloudy |
Mid-flood |
Moderate |
M |
3 |
9:18:00 AM |
9.07 |
8.30 |
32.85 |
26.30 |
1.39 |
2.50 |
<0.1 |
<0.01 |
|
WSR04 |
25/5/2024 |
Cloudy |
Mid-flood |
Moderate |
B |
6 |
9:19:00 AM |
9.00 |
8.34 |
32.90 |
26.35 |
1.40 |
2.50 |
<0.1 |
<0.01 |
|
WSR04 |
25/5/2024 |
Cloudy |
Mid-flood |
Moderate |
B |
6 |
9:19:00 AM |
9.02 |
8.35 |
32.84 |
26.32 |
1.38 |
2.50 |
<0.1 |
<0.01 |
|
WSR16 |
25/5/2024 |
Cloudy |
Mid-flood |
Moderate |
S |
1 |
10:48:00 AM |
9.12 |
8.14 |
32.12 |
26.23 |
1.93 |
2.50 |
<0.1 |
<0.01 |
|
WSR16 |
25/5/2024 |
Cloudy |
Mid-flood |
Moderate |
S |
1 |
10:48:00 AM |
9.16 |
8.09 |
32.05 |
26.23 |
1.90 |
2.50 |
<0.1 |
<0.01 |
|
WSR16 |
25/5/2024 |
Cloudy |
Mid-flood |
Moderate |
M |
8 |
10:49:00 AM |
9.09 |
8.12 |
31.98 |
26.26 |
1.92 |
3.00 |
<0.1 |
<0.01 |
|
WSR16 |
25/5/2024 |
Cloudy |
Mid-flood |
Moderate |
M |
8 |
10:49:00 AM |
9.18 |
8.13 |
31.98 |
26.31 |
1.86 |
2.50 |
<0.1 |
<0.01 |
|
WSR16 |
25/5/2024 |
Cloudy |
Mid-flood |
Moderate |
B |
15 |
10:50:00 AM |
9.14 |
8.13 |
31.97 |
26.29 |
1.92 |
2.50 |
<0.1 |
<0.01 |
|
WSR16 |
25/5/2024 |
Cloudy |
Mid-flood |
Moderate |
B |
15 |
10:50:00 AM |
9.20 |
8.08 |
32.04 |
26.26 |
1.89 |
2.50 |
<0.1 |
<0.01 |
|
WSR33 |
25/5/2024 |
Cloudy |
Mid-flood |
Moderate |
S |
1 |
9:34:00 AM |
8.61 |
8.18 |
32.70 |
26.43 |
2.01 |
3.00 |
<0.1 |
<0.01 |
|
WSR33 |
25/5/2024 |
Cloudy |
Mid-flood |
Moderate |
S |
1 |
9:34:00 AM |
8.61 |
8.19 |
32.61 |
26.40 |
1.99 |
4.00 |
<0.1 |
<0.01 |
|
WSR33 |
25/5/2024 |
Cloudy |
Mid-flood |
Moderate |
M |
4 |
9:35:00 AM |
8.50 |
8.18 |
32.64 |
26.41 |
1.95 |
2.50 |
<0.1 |
<0.01 |
|
WSR33 |
25/5/2024 |
Cloudy |
Mid-flood |
Moderate |
M |
4 |
9:35:00 AM |
8.51 |
8.17 |
32.63 |
26.42 |
2.03 |
2.50 |
<0.1 |
<0.01 |
|
WSR33 |
25/5/2024 |
Cloudy |
Mid-flood |
Moderate |
B |
7 |
9:36:00 AM |
8.53 |
8.23 |
32.67 |
26.39 |
1.94 |
4.00 |
<0.1 |
<0.01 |
|
WSR33 |
25/5/2024 |
Cloudy |
Mid-flood |
Moderate |
B |
7 |
9:36:00 AM |
8.55 |
8.23 |
32.65 |
26.39 |
2.03 |
2.50 |
<0.1 |
<0.01 |
|
Location |
Date |
Weather |
Tide |
Sea Condition |
Water Level |
Depth (m) |
Time |
DO (mg/L) |
pH |
Sal (ppt) |
Temp ((¢XC) |
Turbidty (NTU) |
SS (mg/L) |
Iron (mg/L) |
Total Residual Chlorine (mg/L) |
|
WSR36 |
25/5/2024 |
Cloudy |
Mid-flood |
Moderate |
S |
1 |
9:50:00 AM |
9.23 |
8.27 |
33.33 |
26.36 |
1.68 |
2.50 |
<0.1 |
<0.01 |
|
WSR36 |
25/5/2024 |
Cloudy |
Mid-flood |
Moderate |
S |
1 |
9:50:00 AM |
9.21 |
8.25 |
33.24 |
26.31 |
1.65 |
3.00 |
<0.1 |
<0.01 |
|
WSR36 |
25/5/2024 |
Cloudy |
Mid-flood |
Moderate |
M |
3 |
9:51:00 AM |
9.18 |
8.24 |
33.36 |
26.37 |
1.67 |
2.50 |
<0.1 |
<0.01 |
|
WSR36 |
25/5/2024 |
Cloudy |
Mid-flood |
Moderate |
M |
3 |
9:51:00 AM |
9.28 |
8.25 |
33.23 |
26.34 |
1.70 |
2.50 |
<0.1 |
<0.01 |
|
WSR36 |
25/5/2024 |
Cloudy |
Mid-flood |
Moderate |
B |
6 |
9:51:00 AM |
9.20 |
8.29 |
33.22 |
26.39 |
1.63 |
3.00 |
<0.1 |
<0.01 |
|
WSR36 |
25/5/2024 |
Cloudy |
Mid-flood |
Moderate |
B |
6 |
9:51:00 AM |
9.25 |
8.24 |
33.30 |
26.32 |
1.67 |
2.50 |
<0.1 |
<0.01 |
|
WSR37 |
25/5/2024 |
Cloudy |
Mid-flood |
Moderate |
S |
1 |
10:07:00 AM |
8.48 |
8.16 |
32.34 |
26.36 |
1.23 |
4.00 |
<0.1 |
<0.01 |
|
WSR37 |
25/5/2024 |
Cloudy |
Mid-flood |
Moderate |
S |
1 |
10:07:00 AM |
8.48 |
8.15 |
32.28 |
26.42 |
1.30 |
3.00 |
<0.1 |
<0.01 |
|
WSR37 |
25/5/2024 |
Cloudy |
Mid-flood |
Moderate |
M |
4 |
10:08:00 AM |
8.46 |
8.18 |
32.42 |
26.39 |
1.30 |
2.50 |
<0.1 |
<0.01 |
|
WSR37 |
25/5/2024 |
Cloudy |
Mid-flood |
Moderate |
M |
4 |
10:08:00 AM |
8.51 |
8.17 |
32.27 |
26.37 |
1.27 |
3.00 |
<0.1 |
<0.01 |
|
WSR37 |
25/5/2024 |
Cloudy |
Mid-flood |
Moderate |
B |
7 |
10:09:00 AM |
8.45 |
8.20 |
32.40 |
26.34 |
1.28 |
2.50 |
<0.1 |
<0.01 |
|
WSR37 |
25/5/2024 |
Cloudy |
Mid-flood |
Moderate |
B |
7 |
10:09:00 AM |
8.45 |
8.19 |
32.43 |
26.41 |
1.24 |
4.00 |
<0.1 |
<0.01 |
|
NF1 |
25/5/2024 |
Cloudy |
Mid-flood |
Moderate |
S |
1 |
10:33:00 AM |
8.87 |
8.28 |
33.09 |
26.47 |
1.42 |
3.00 |
<0.1 |
<0.01 |
|
NF1 |
25/5/2024 |
Cloudy |
Mid-flood |
Moderate |
S |
1 |
10:33:00 AM |
8.89 |
8.25 |
32.99 |
26.47 |
1.40 |
2.50 |
<0.1 |
<0.01 |
|
NF1 |
25/5/2024 |
Cloudy |
Mid-flood |
Moderate |
M |
7 |
10:34:00 AM |
8.85 |
8.27 |
33.03 |
26.49 |
1.44 |
2.50 |
<0.1 |
<0.01 |
|
NF1 |
25/5/2024 |
Cloudy |
Mid-flood |
Moderate |
M |
7 |
10:34:00 AM |
8.91 |
8.30 |
33.07 |
26.45 |
1.48 |
2.50 |
<0.1 |
<0.01 |
|
NF1 |
25/5/2024 |
Cloudy |
Mid-flood |
Moderate |
B |
13 |
10:35:00 AM |
8.88 |
8.29 |
33.10 |
26.48 |
1.45 |
2.50 |
<0.1 |
<0.01 |
|
NF1 |
25/5/2024 |
Cloudy |
Mid-flood |
Moderate |
B |
13 |
10:35:00 AM |
8.79 |
8.28 |
33.10 |
26.48 |
1.45 |
2.50 |
<0.1 |
<0.01 |
|
NF2 |
25/5/2024 |
Cloudy |
Mid-flood |
Moderate |
S |
1 |
10:25:00 AM |
9.14 |
8.20 |
32.34 |
26.42 |
2.00 |
2.50 |
<0.1 |
<0.01 |
|
NF2 |
25/5/2024 |
Cloudy |
Mid-flood |
Moderate |
S |
1 |
10:25:00 AM |
9.09 |
8.24 |
32.31 |
26.44 |
2.05 |
2.50 |
<0.1 |
<0.01 |
|
NF2 |
25/5/2024 |
Cloudy |
Mid-flood |
Moderate |
M |
5 |
10:26:00 AM |
9.16 |
8.19 |
32.45 |
26.35 |
2.03 |
2.50 |
<0.1 |
<0.01 |
|
NF2 |
25/5/2024 |
Cloudy |
Mid-flood |
Moderate |
M |
5 |
10:26:00 AM |
9.13 |
8.25 |
32.42 |
26.38 |
2.03 |
2.50 |
<0.1 |
<0.01 |
|
NF2 |
25/5/2024 |
Cloudy |
Mid-flood |
Moderate |
B |
10 |
10:27:00 AM |
9.21 |
8.19 |
32.32 |
26.35 |
2.00 |
2.50 |
<0.1 |
<0.01 |
|
NF2 |
25/5/2024 |
Cloudy |
Mid-flood |
Moderate |
B |
10 |
10:27:00 AM |
9.14 |
8.24 |
32.35 |
26.37 |
1.97 |
2.50 |
<0.1 |
<0.01 |
|
NF3 |
25/5/2024 |
Cloudy |
Mid-flood |
Moderate |
S |
1 |
10:17:00 AM |
9.20 |
8.19 |
33.23 |
26.33 |
1.48 |
3.00 |
<0.1 |
<0.01 |
|
NF3 |
25/5/2024 |
Cloudy |
Mid-flood |
Moderate |
S |
1 |
10:17:00 AM |
9.17 |
8.19 |
33.30 |
26.37 |
1.45 |
2.50 |
<0.1 |
<0.01 |
|
NF3 |
25/5/2024 |
Cloudy |
Mid-flood |
Moderate |
M |
6 |
10:18:00 AM |
9.21 |
8.18 |
33.34 |
26.40 |
1.47 |
2.50 |
<0.1 |
<0.01 |
|
NF3 |
25/5/2024 |
Cloudy |
Mid-flood |
Moderate |
M |
6 |
10:18:00 AM |
9.12 |
8.20 |
33.34 |
26.32 |
1.44 |
2.50 |
<0.1 |
<0.01 |
|
NF3 |
25/5/2024 |
Cloudy |
Mid-flood |
Moderate |
B |
11 |
10:19:00 AM |
9.12 |
8.18 |
33.31 |
26.36 |
1.48 |
2.50 |
<0.1 |
<0.01 |
|
NF3 |
25/5/2024 |
Cloudy |
Mid-flood |
Moderate |
B |
11 |
10:19:00 AM |
9.12 |
8.22 |
33.24 |
26.33 |
1.49 |
2.50 |
<0.1 |
<0.01 |
|
Location |
Date |
Weather |
Tide |
Sea Condition |
Water Level |
Depth (m) |
Time |
DO (mg/L) |
pH |
Sal (ppt) |
Temp ((¢XC) |
Turbidty (NTU) |
SS (mg/L) |
Iron (mg/L) |
Total Residual Chlorine (mg/L) |
|
CE |
28/5/2024 |
Cloudy |
Mid-flood |
Moderate |
S |
1 |
11:20:00 AM |
9.28 |
8.26 |
32.01 |
26.53 |
1.76 |
2.50 |
<0.1 |
<0.01 |
|
CE |
28/5/2024 |
Cloudy |
Mid-flood |
Moderate |
S |
1 |
11:20:00 AM |
9.31 |
8.31 |
32.07 |
26.52 |
1.76 |
2.50 |
<0.1 |
<0.01 |
|
CE |
28/5/2024 |
Cloudy |
Mid-flood |
Moderate |
M |
11 |
11:21:00 AM |
9.31 |
8.26 |
32.02 |
26.53 |
1.83 |
2.50 |
<0.1 |
<0.01 |
|
CE |
28/5/2024 |
Cloudy |
Mid-flood |
Moderate |
M |
11 |
11:21:00 AM |
9.25 |
8.31 |
32.12 |
26.49 |
1.84 |
2.50 |
<0.1 |
<0.01 |
|
CE |
28/5/2024 |
Cloudy |
Mid-flood |
Moderate |
B |
21 |
11:22:00 AM |
9.30 |
8.29 |
32.07 |
26.54 |
1.80 |
2.50 |
<0.1 |
<0.01 |
|
CE |
28/5/2024 |
Cloudy |
Mid-flood |
Moderate |
B |
21 |
11:22:00 AM |
9.24 |
8.31 |
31.97 |
26.48 |
1.86 |
2.50 |
<0.1 |
<0.01 |
|
CF |
28/5/2024 |
Cloudy |
Mid-flood |
Moderate |
S |
1 |
8:00:00 AM |
8.36 |
8.34 |
32.12 |
26.52 |
2.33 |
2.50 |
<0.1 |
<0.01 |
|
CF |
28/5/2024 |
Cloudy |
Mid-flood |
Moderate |
S |
1 |
8:00:00 AM |
8.31 |
8.35 |
32.04 |
26.51 |
2.32 |
2.50 |
<0.1 |
<0.01 |
|
CF |
28/5/2024 |
Cloudy |
Mid-flood |
Moderate |
M |
11 |
8:01:00 AM |
8.33 |
8.29 |
32.02 |
26.56 |
2.36 |
4.00 |
<0.1 |
<0.01 |
|
CF |
28/5/2024 |
Cloudy |
Mid-flood |
Moderate |
M |
11 |
8:01:00 AM |
8.36 |
8.30 |
32.13 |
26.57 |
2.33 |
2.50 |
<0.1 |
<0.01 |
|
CF |
28/5/2024 |
Cloudy |
Mid-flood |
Moderate |
B |
20 |
8:02:00 AM |
8.31 |
8.31 |
32.14 |
26.56 |
2.38 |
4.00 |
<0.1 |
<0.01 |
|
CF |
28/5/2024 |
Cloudy |
Mid-flood |
Moderate |
B |
20 |
8:02:00 AM |
8.32 |
8.33 |
32.13 |
26.52 |
2.45 |
2.50 |
<0.1 |
<0.01 |
|
WSR01 |
28/5/2024 |
Cloudy |
Mid-flood |
Moderate |
S |
1 |
8:27:00 AM |
8.75 |
8.27 |
32.89 |
26.59 |
2.08 |
3.00 |
<0.1 |
<0.01 |
|
WSR01 |
28/5/2024 |
Cloudy |
Mid-flood |
Moderate |
S |
1 |
8:27:00 AM |
8.77 |
8.30 |
32.87 |
26.60 |
2.09 |
2.50 |
<0.1 |
<0.01 |
|
WSR01 |
28/5/2024 |
Cloudy |
Mid-flood |
Moderate |
M |
4 |
8:28:00 AM |
8.76 |
8.32 |
32.89 |
26.57 |
2.08 |
2.50 |
<0.1 |
<0.01 |
|
WSR01 |
28/5/2024 |
Cloudy |
Mid-flood |
Moderate |
M |
4 |
8:28:00 AM |
8.77 |
8.28 |
32.91 |
26.59 |
2.09 |
2.50 |
<0.1 |
<0.01 |
|
WSR01 |
28/5/2024 |
Cloudy |
Mid-flood |
Moderate |
B |
8 |
8:29:00 AM |
8.75 |
8.31 |
32.98 |
26.56 |
2.05 |
2.50 |
<0.1 |
<0.01 |
|
WSR01 |
28/5/2024 |
Cloudy |
Mid-flood |
Moderate |
B |
8 |
8:29:00 AM |
8.77 |
8.32 |
32.97 |
26.58 |
2.07 |
2.50 |
<0.1 |
<0.01 |
|
WSR02 |
28/5/2024 |
Cloudy |
Mid-flood |
Moderate |
S |
1 |
8:48:00 AM |
8.65 |
8.16 |
32.63 |
26.24 |
1.86 |
2.50 |
<0.1 |
<0.01 |
|
WSR02 |
28/5/2024 |
Cloudy |
Mid-flood |
Moderate |
S |
1 |
8:48:00 AM |
8.68 |
8.16 |
32.53 |
26.26 |
1.92 |
2.50 |
<0.1 |
<0.01 |
|
WSR02 |
28/5/2024 |
Cloudy |
Mid-flood |
Moderate |
M |
5 |
8:49:00 AM |
8.66 |
8.11 |
32.55 |
26.29 |
1.85 |
2.50 |
<0.1 |
<0.01 |
|
WSR02 |
28/5/2024 |
Cloudy |
Mid-flood |
Moderate |
M |
5 |
8:49:00 AM |
8.68 |
8.16 |
32.56 |
26.26 |
1.97 |
2.50 |
<0.1 |
<0.01 |
|
WSR02 |
28/5/2024 |
Cloudy |
Mid-flood |
Moderate |
B |
9 |
8:50:00 AM |
8.66 |
8.16 |
32.67 |
26.24 |
1.95 |
2.50 |
<0.1 |
<0.01 |
|
WSR02 |
28/5/2024 |
Cloudy |
Mid-flood |
Moderate |
B |
9 |
8:50:00 AM |
8.62 |
8.11 |
32.54 |
26.25 |
1.86 |
2.50 |
<0.1 |
<0.01 |
|
WSR03 |
28/5/2024 |
Cloudy |
Mid-flood |
Moderate |
S |
1 |
9:04:00 AM |
9.25 |
8.35 |
32.25 |
26.53 |
1.92 |
4.00 |
<0.1 |
<0.01 |
|
WSR03 |
28/5/2024 |
Cloudy |
Mid-flood |
Moderate |
S |
1 |
9:04:00 AM |
9.24 |
8.37 |
32.15 |
26.57 |
1.98 |
3.00 |
<0.1 |
<0.01 |
|
WSR03 |
28/5/2024 |
Cloudy |
Mid-flood |
Moderate |
M |
4 |
9:05:00 AM |
9.23 |
8.39 |
32.13 |
26.53 |
1.93 |
2.50 |
<0.1 |
<0.01 |
|
WSR03 |
28/5/2024 |
Cloudy |
Mid-flood |
Moderate |
M |
4 |
9:05:00 AM |
9.18 |
8.34 |
32.16 |
26.56 |
1.94 |
2.50 |
<0.1 |
<0.01 |
|
WSR03 |
28/5/2024 |
Cloudy |
Mid-flood |
Moderate |
B |
7 |
9:06:00 AM |
9.24 |
8.35 |
32.21 |
26.56 |
1.88 |
2.50 |
<0.1 |
<0.01 |
|
WSR03 |
28/5/2024 |
Cloudy |
Mid-flood |
Moderate |
B |
7 |
9:06:00 AM |
9.24 |
8.42 |
32.15 |
26.53 |
1.90 |
2.50 |
<0.1 |
<0.01 |
|
Location |
Date |
Weather |
Tide |
Sea Condition |
Water Level |
Depth (m) |
Time |
DO (mg/L) |
pH |
Sal (ppt) |
Temp ((¢XC) |
Turbidty (NTU) |
SS (mg/L) |
Iron (mg/L) |
Total Residual Chlorine (mg/L) |
|
WSR04 |
28/5/2024 |
Cloudy |
Mid-flood |
Moderate |
S |
1 |
9:20:00 AM |
8.65 |
8.17 |
32.06 |
26.49 |
1.86 |
2.50 |
<0.1 |
<0.01 |
|
WSR04 |
28/5/2024 |
Cloudy |
Mid-flood |
Moderate |
S |
1 |
9:20:00 AM |
8.69 |
8.18 |
32.15 |
26.45 |
1.89 |
2.50 |
<0.1 |
<0.01 |
|
WSR04 |
28/5/2024 |
Cloudy |
Mid-flood |
Moderate |
M |
4 |
9:21:00 AM |
8.65 |
8.16 |
32.13 |
26.49 |
1.85 |
2.50 |
<0.1 |
<0.01 |
|
WSR04 |
28/5/2024 |
Cloudy |
Mid-flood |
Moderate |
M |
4 |
9:21:00 AM |
8.66 |
8.24 |
32.18 |
26.51 |
1.90 |
2.50 |
<0.1 |
<0.01 |
|
WSR04 |
28/5/2024 |
Cloudy |
Mid-flood |
Moderate |
B |
6 |
9:22:00 AM |
8.69 |
8.16 |
32.13 |
26.48 |
1.94 |
3.00 |
<0.1 |
<0.01 |
|
WSR04 |
28/5/2024 |
Cloudy |
Mid-flood |
Moderate |
B |
6 |
9:22:00 AM |
8.63 |
8.22 |
32.09 |
26.49 |
1.83 |
2.50 |
<0.1 |
<0.01 |
|
WSR16 |
28/5/2024 |
Cloudy |
Mid-flood |
Moderate |
S |
1 |
10:56:00 AM |
9.32 |
8.27 |
32.74 |
26.40 |
2.09 |
2.50 |
<0.1 |
<0.01 |
|
WSR16 |
28/5/2024 |
Cloudy |
Mid-flood |
Moderate |
S |
1 |
10:56:00 AM |
9.34 |
8.26 |
32.74 |
26.38 |
2.09 |
2.50 |
<0.1 |
<0.01 |
|
WSR16 |
28/5/2024 |
Cloudy |
Mid-flood |
Moderate |
M |
8 |
10:57:00 AM |
9.33 |
8.23 |
32.77 |
26.40 |
2.11 |
2.50 |
<0.1 |
<0.01 |
|
WSR16 |
28/5/2024 |
Cloudy |
Mid-flood |
Moderate |
M |
8 |
10:57:00 AM |
9.32 |
8.25 |
32.79 |
26.38 |
2.10 |
2.50 |
<0.1 |
<0.01 |
|
WSR16 |
28/5/2024 |
Cloudy |
Mid-flood |
Moderate |
B |
14 |
10:58:00 AM |
9.34 |
8.26 |
32.84 |
26.37 |
2.09 |
3.00 |
<0.1 |
<0.01 |
|
WSR16 |
28/5/2024 |
Cloudy |
Mid-flood |
Moderate |
B |
14 |
10:58:00 AM |
9.38 |
8.22 |
32.73 |
26.40 |
2.10 |
2.50 |
<0.1 |
<0.01 |
|
WSR33 |
28/5/2024 |
Cloudy |
Mid-flood |
Moderate |
S |
1 |
9:38:00 AM |
9.42 |
8.23 |
32.24 |
26.51 |
1.97 |
2.50 |
<0.1 |
<0.01 |
|
WSR33 |
28/5/2024 |
Cloudy |
Mid-flood |
Moderate |
S |
1 |
9:38:00 AM |
9.36 |
8.24 |
32.20 |
26.51 |
1.93 |
3.00 |
<0.1 |
<0.01 |
|
WSR33 |
28/5/2024 |
Cloudy |
Mid-flood |
Moderate |
M |
4 |
9:39:00 AM |
9.37 |
8.21 |
32.22 |
26.55 |
1.94 |
2.50 |
<0.1 |
<0.01 |
|
WSR33 |
28/5/2024 |
Cloudy |
Mid-flood |
Moderate |
M |
4 |
9:39:00 AM |
9.39 |
8.24 |
32.13 |
26.53 |
1.87 |
4.00 |
<0.1 |
<0.01 |
|
WSR33 |
28/5/2024 |
Cloudy |
Mid-flood |
Moderate |
B |
6 |
9:40:00 AM |
9.38 |
8.21 |
32.26 |
26.52 |
1.97 |
3.00 |
<0.1 |
<0.01 |
|
WSR33 |
28/5/2024 |
Cloudy |
Mid-flood |
Moderate |
B |
6 |
9:40:00 AM |
9.41 |
8.23 |
32.15 |
26.55 |
1.92 |
2.50 |
<0.1 |
<0.01 |
|
WSR36 |
28/5/2024 |
Cloudy |
Mid-flood |
Moderate |
S |
1 |
9:55:00 AM |
8.41 |
8.19 |
31.91 |
26.51 |
2.04 |
6.00 |
<0.1 |
<0.01 |
|
WSR36 |
28/5/2024 |
Cloudy |
Mid-flood |
Moderate |
S |
1 |
9:55:00 AM |
8.43 |
8.18 |
31.91 |
26.53 |
2.10 |
5.00 |
<0.1 |
<0.01 |
|
WSR36 |
28/5/2024 |
Cloudy |
Mid-flood |
Moderate |
M |
3 |
9:56:00 AM |
8.47 |
8.19 |
31.87 |
26.51 |
2.07 |
3.00 |
<0.1 |
<0.01 |
|
WSR36 |
28/5/2024 |
Cloudy |
Mid-flood |
Moderate |
M |
3 |
9:56:00 AM |
8.41 |
8.11 |
31.95 |
26.52 |
2.07 |
2.50 |
<0.1 |
<0.01 |
|
WSR36 |
28/5/2024 |
Cloudy |
Mid-flood |
Moderate |
B |
6 |
9:56:00 AM |
8.47 |
8.16 |
31.84 |
26.53 |
2.08 |
4.00 |
<0.1 |
<0.01 |
|
WSR36 |
28/5/2024 |
Cloudy |
Mid-flood |
Moderate |
B |
6 |
9:56:00 AM |
8.41 |
8.18 |
31.87 |
26.56 |
2.10 |
2.50 |
<0.1 |
<0.01 |
|
WSR37 |
28/5/2024 |
Cloudy |
Mid-flood |
Moderate |
S |
1 |
10:13:00 AM |
9.58 |
8.23 |
32.32 |
26.35 |
1.29 |
2.50 |
<0.1 |
<0.01 |
|
WSR37 |
28/5/2024 |
Cloudy |
Mid-flood |
Moderate |
S |
1 |
10:13:00 AM |
9.56 |
8.26 |
32.40 |
26.36 |
1.29 |
4.00 |
<0.1 |
<0.01 |
|
WSR37 |
28/5/2024 |
Cloudy |
Mid-flood |
Moderate |
M |
4 |
10:14:00 AM |
9.61 |
8.18 |
32.43 |
26.37 |
1.28 |
2.50 |
<0.1 |
<0.01 |
|
WSR37 |
28/5/2024 |
Cloudy |
Mid-flood |
Moderate |
M |
4 |
10:14:00 AM |
9.58 |
8.24 |
32.44 |
26.37 |
1.21 |
2.50 |
<0.1 |
<0.01 |
|
WSR37 |
28/5/2024 |
Cloudy |
Mid-flood |
Moderate |
B |
7 |
10:15:00 AM |
9.59 |
8.26 |
32.30 |
26.41 |
1.25 |
2.50 |
<0.1 |
<0.01 |
|
WSR37 |
28/5/2024 |
Cloudy |
Mid-flood |
Moderate |
B |
7 |
10:15:00 AM |
9.56 |
8.21 |
32.29 |
26.38 |
1.30 |
4.00 |
<0.1 |
<0.01 |
|
Location |
Date |
Weather |
Tide |
Sea Condition |
Water Level |
Depth (m) |
Time |
DO (mg/L) |
pH |
Sal (ppt) |
Temp ((¢XC) |
Turbidty (NTU) |
SS (mg/L) |
Iron (mg/L) |
Total Residual Chlorine (mg/L) |
|
NF1 |
28/5/2024 |
Cloudy |
Mid-flood |
Moderate |
S |
1 |
10:40:00 AM |
8.95 |
8.13 |
31.75 |
26.42 |
2.14 |
2.50 |
<0.1 |
<0.01 |
|
NF1 |
28/5/2024 |
Cloudy |
Mid-flood |
Moderate |
S |
1 |
10:40:00 AM |
8.95 |
8.14 |
31.74 |
26.42 |
2.08 |
3.00 |
<0.1 |
<0.01 |
|
NF1 |
28/5/2024 |
Cloudy |
Mid-flood |
Moderate |
M |
7 |
10:41:00 AM |
8.88 |
8.16 |
31.75 |
26.42 |
2.08 |
2.50 |
<0.1 |
<0.01 |
|
NF1 |
28/5/2024 |
Cloudy |
Mid-flood |
Moderate |
M |
7 |
10:41:00 AM |
8.88 |
8.14 |
31.69 |
26.44 |
2.14 |
2.50 |
<0.1 |
<0.01 |
|
NF1 |
28/5/2024 |
Cloudy |
Mid-flood |
Moderate |
B |
12 |
10:42:00 AM |
8.91 |
8.18 |
31.74 |
26.42 |
2.06 |
2.50 |
<0.1 |
<0.01 |
|
NF1 |
28/5/2024 |
Cloudy |
Mid-flood |
Moderate |
B |
12 |
10:42:00 AM |
8.92 |
8.13 |
31.67 |
26.43 |
2.07 |
2.50 |
<0.1 |
<0.01 |
|
NF2 |
28/5/2024 |
Cloudy |
Mid-flood |
Moderate |
S |
1 |
10:30:00 AM |
9.17 |
8.15 |
32.84 |
26.28 |
1.31 |
2.50 |
<0.1 |
<0.01 |
|
NF2 |
28/5/2024 |
Cloudy |
Mid-flood |
Moderate |
S |
1 |
10:30:00 AM |
9.17 |
8.15 |
32.88 |
26.25 |
1.27 |
4.00 |
<0.1 |
<0.01 |
|
NF2 |
28/5/2024 |
Cloudy |
Mid-flood |
Moderate |
M |
5 |
10:31:00 AM |
9.17 |
8.11 |
32.90 |
26.26 |
1.31 |
2.50 |
<0.1 |
<0.01 |
|
NF2 |
28/5/2024 |
Cloudy |
Mid-flood |
Moderate |
M |
5 |
10:31:00 AM |
9.22 |
8.10 |
32.88 |
26.25 |
1.23 |
3.00 |
<0.1 |
<0.01 |
|
NF2 |
28/5/2024 |
Cloudy |
Mid-flood |
Moderate |
B |
9 |
10:32:00 AM |
9.20 |
8.13 |
32.97 |
26.24 |
1.34 |
3.00 |
<0.1 |
<0.01 |
|
NF2 |
28/5/2024 |
Cloudy |
Mid-flood |
Moderate |
B |
9 |
10:32:00 AM |
9.18 |
8.10 |
32.93 |
26.26 |
1.26 |
2.50 |
<0.1 |
<0.01 |
|
NF3 |
28/5/2024 |
Cloudy |
Mid-flood |
Moderate |
S |
1 |
10:22:00 AM |
8.80 |
8.22 |
33.05 |
26.58 |
2.10 |
2.50 |
<0.1 |
<0.01 |
|
NF3 |
28/5/2024 |
Cloudy |
Mid-flood |
Moderate |
S |
1 |
10:22:00 AM |
8.79 |
8.27 |
33.07 |
26.63 |
2.12 |
3.00 |
<0.1 |
<0.01 |
|
NF3 |
28/5/2024 |
Cloudy |
Mid-flood |
Moderate |
M |
6 |
10:23:00 AM |
8.75 |
8.29 |
32.99 |
26.63 |
2.11 |
2.50 |
<0.1 |
<0.01 |
|
NF3 |
28/5/2024 |
Cloudy |
Mid-flood |
Moderate |
M |
6 |
10:23:00 AM |
8.76 |
8.27 |
33.08 |
26.61 |
2.09 |
2.50 |
<0.1 |
<0.01 |
|
NF3 |
28/5/2024 |
Cloudy |
Mid-flood |
Moderate |
B |
11 |
10:24:00 AM |
8.74 |
8.29 |
33.11 |
26.63 |
2.08 |
2.50 |
<0.1 |
<0.01 |
|
NF3 |
28/5/2024 |
Cloudy |
Mid-flood |
Moderate |
B |
11 |
10:24:00 AM |
8.77 |
8.25 |
33.01 |
26.62 |
2.02 |
4.00 |
<0.1 |
<0.01 |
|
CE |
30/5/2024 |
Cloudy |
Mid-flood |
Moderate |
S |
1 |
12:58:00 PM |
8.51 |
8.27 |
31.93 |
26.19 |
1.97 |
3.00 |
<0.1 |
<0.01 |
|
CE |
30/5/2024 |
Cloudy |
Mid-flood |
Moderate |
S |
1 |
12:58:00 PM |
8.52 |
8.26 |
31.91 |
26.20 |
1.85 |
2.50 |
<0.1 |
<0.01 |
|
CE |
30/5/2024 |
Cloudy |
Mid-flood |
Moderate |
M |
12 |
12:59:00 PM |
8.52 |
8.23 |
31.90 |
26.22 |
1.91 |
2.50 |
<0.1 |
<0.01 |
|
CE |
30/5/2024 |
Cloudy |
Mid-flood |
Moderate |
M |
12 |
12:59:00 PM |
8.57 |
8.22 |
31.97 |
26.22 |
1.83 |
2.50 |
<0.1 |
<0.01 |
|
CE |
30/5/2024 |
Cloudy |
Mid-flood |
Moderate |
B |
23 |
1:00:00 PM |
8.59 |
8.24 |
31.95 |
26.18 |
1.83 |
3.00 |
<0.1 |
<0.01 |
|
CE |
30/5/2024 |
Cloudy |
Mid-flood |
Moderate |
B |
23 |
1:00:00 PM |
8.51 |
8.26 |
31.94 |
26.23 |
1.90 |
3.00 |
<0.1 |
<0.01 |
|
CF |
30/5/2024 |
Cloudy |
Mid-flood |
Moderate |
S |
1 |
9:46:00 AM |
8.28 |
8.20 |
32.60 |
26.39 |
2.33 |
2.50 |
<0.1 |
<0.01 |
|
CF |
30/5/2024 |
Cloudy |
Mid-flood |
Moderate |
S |
1 |
9:46:00 AM |
8.36 |
8.15 |
32.59 |
26.37 |
2.22 |
2.50 |
<0.1 |
<0.01 |
|
CF |
30/5/2024 |
Cloudy |
Mid-flood |
Moderate |
M |
10 |
9:47:00 AM |
8.29 |
8.15 |
32.60 |
26.37 |
2.24 |
2.50 |
<0.1 |
<0.01 |
|
CF |
30/5/2024 |
Cloudy |
Mid-flood |
Moderate |
M |
10 |
9:47:00 AM |
8.35 |
8.19 |
32.65 |
26.41 |
2.21 |
3.00 |
<0.1 |
<0.01 |
|
CF |
30/5/2024 |
Cloudy |
Mid-flood |
Moderate |
B |
20 |
9:48:00 AM |
8.35 |
8.14 |
32.63 |
26.40 |
2.21 |
4.00 |
<0.1 |
<0.01 |
|
CF |
30/5/2024 |
Cloudy |
Mid-flood |
Moderate |
B |
20 |
9:48:00 AM |
8.31 |
8.16 |
32.58 |
26.39 |
2.25 |
2.50 |
<0.1 |
<0.01 |
|
Location |
Date |
Weather |
Tide |
Sea Condition |
Water Level |
Depth (m) |
Time |
DO (mg/L) |
pH |
Sal (ppt) |
Temp ((¢XC) |
Turbidty (NTU) |
SS (mg/L) |
Iron (mg/L) |
Total Residual Chlorine (mg/L) |
|
WSR01 |
30/5/2024 |
Cloudy |
Mid-flood |
Moderate |
S |
1 |
10:12:00 AM |
9.32 |
8.18 |
33.37 |
25.93 |
1.46 |
4.00 |
<0.1 |
<0.01 |
|
WSR01 |
30/5/2024 |
Cloudy |
Mid-flood |
Moderate |
S |
1 |
10:12:00 AM |
9.33 |
8.18 |
33.40 |
25.95 |
1.32 |
2.50 |
<0.1 |
<0.01 |
|
WSR01 |
30/5/2024 |
Cloudy |
Mid-flood |
Moderate |
M |
5 |
10:13:00 AM |
9.30 |
8.20 |
33.37 |
25.94 |
1.35 |
2.50 |
<0.1 |
<0.01 |
|
WSR01 |
30/5/2024 |
Cloudy |
Mid-flood |
Moderate |
M |
5 |
10:13:00 AM |
9.27 |
8.18 |
33.35 |
25.99 |
1.36 |
3.00 |
<0.1 |
<0.01 |
|
WSR01 |
30/5/2024 |
Cloudy |
Mid-flood |
Moderate |
B |
9 |
10:14:00 AM |
9.29 |
8.22 |
33.34 |
25.99 |
1.36 |
2.50 |
<0.1 |
<0.01 |
|
WSR01 |
30/5/2024 |
Cloudy |
Mid-flood |
Moderate |
B |
9 |
10:14:00 AM |
9.25 |
8.21 |
33.33 |
25.98 |
1.37 |
3.00 |
<0.1 |
<0.01 |
|
WSR02 |
30/5/2024 |
Cloudy |
Mid-flood |
Moderate |
S |
1 |
10:33:00 AM |
8.83 |
8.14 |
32.60 |
26.12 |
1.45 |
3.00 |
<0.1 |
<0.01 |
|
WSR02 |
30/5/2024 |
Cloudy |
Mid-flood |
Moderate |
S |
1 |
10:33:00 AM |
8.87 |
8.11 |
32.54 |
26.17 |
1.43 |
5.00 |
<0.1 |
<0.01 |
|
WSR02 |
30/5/2024 |
Cloudy |
Mid-flood |
Moderate |
M |
5 |
10:34:00 AM |
8.91 |
8.15 |
32.56 |
26.11 |
1.46 |
2.50 |
<0.1 |
<0.01 |
|
WSR02 |
30/5/2024 |
Cloudy |
Mid-flood |
Moderate |
M |
5 |
10:34:00 AM |
8.87 |
8.16 |
32.56 |
26.16 |
1.47 |
2.50 |
<0.1 |
<0.01 |
|
WSR02 |
30/5/2024 |
Cloudy |
Mid-flood |
Moderate |
B |
8 |
10:35:00 AM |
8.88 |
8.13 |
32.56 |
26.17 |
1.49 |
3.00 |
<0.1 |
<0.01 |
|
WSR02 |
30/5/2024 |
Cloudy |
Mid-flood |
Moderate |
B |
8 |
10:35:00 AM |
8.83 |
8.14 |
32.53 |
26.17 |
1.54 |
3.00 |
<0.1 |
<0.01 |
|
WSR03 |
30/5/2024 |
Cloudy |
Mid-flood |
Moderate |
S |
1 |
10:49:00 AM |
9.47 |
8.29 |
32.48 |
26.26 |
1.63 |
3.00 |
<0.1 |
<0.01 |
|
WSR03 |
30/5/2024 |
Cloudy |
Mid-flood |
Moderate |
S |
1 |
10:49:00 AM |
9.38 |
8.27 |
32.51 |
26.24 |
1.67 |
6.00 |
<0.1 |
<0.01 |
|
WSR03 |
30/5/2024 |
Cloudy |
Mid-flood |
Moderate |
M |
4 |
10:50:00 AM |
9.45 |
8.25 |
32.52 |
26.21 |
1.66 |
3.00 |
<0.1 |
<0.01 |
|
WSR03 |
30/5/2024 |
Cloudy |
Mid-flood |
Moderate |
M |
4 |
10:50:00 AM |
9.43 |
8.31 |
32.47 |
26.24 |
1.65 |
2.50 |
<0.1 |
<0.01 |
|
WSR03 |
30/5/2024 |
Cloudy |
Mid-flood |
Moderate |
B |
7 |
10:51:00 AM |
9.45 |
8.27 |
32.47 |
26.27 |
1.67 |
8.00 |
<0.1 |
<0.01 |
|
WSR03 |
30/5/2024 |
Cloudy |
Mid-flood |
Moderate |
B |
7 |
10:51:00 AM |
9.44 |
8.31 |
32.53 |
26.27 |
1.61 |
6.00 |
<0.1 |
<0.01 |
|
WSR04 |
30/5/2024 |
Cloudy |
Mid-flood |
Moderate |
S |
1 |
11:05:00 AM |
9.12 |
8.14 |
32.60 |
25.96 |
2.07 |
2.50 |
<0.1 |
<0.01 |
|
WSR04 |
30/5/2024 |
Cloudy |
Mid-flood |
Moderate |
S |
1 |
11:05:00 AM |
9.17 |
8.18 |
32.63 |
25.99 |
2.05 |
2.50 |
<0.1 |
<0.01 |
|
WSR04 |
30/5/2024 |
Cloudy |
Mid-flood |
Moderate |
M |
4 |
11:06:00 AM |
9.12 |
8.13 |
32.65 |
25.98 |
2.03 |
3.00 |
<0.1 |
<0.01 |
|
WSR04 |
30/5/2024 |
Cloudy |
Mid-flood |
Moderate |
M |
4 |
11:06:00 AM |
9.13 |
8.13 |
32.61 |
25.95 |
2.05 |
2.50 |
<0.1 |
<0.01 |
|
WSR04 |
30/5/2024 |
Cloudy |
Mid-flood |
Moderate |
B |
6 |
11:07:00 AM |
9.21 |
8.16 |
32.64 |
25.98 |
2.03 |
2.50 |
<0.1 |
<0.01 |
|
WSR04 |
30/5/2024 |
Cloudy |
Mid-flood |
Moderate |
B |
6 |
11:07:00 AM |
9.20 |
8.18 |
32.65 |
26.01 |
2.03 |
4.00 |
<0.1 |
<0.01 |
|
WSR16 |
30/5/2024 |
Cloudy |
Mid-flood |
Moderate |
S |
1 |
12:35:00 PM |
9.04 |
8.20 |
32.18 |
26.18 |
1.66 |
3.00 |
<0.1 |
<0.01 |
|
WSR16 |
30/5/2024 |
Cloudy |
Mid-flood |
Moderate |
S |
1 |
12:35:00 PM |
9.04 |
8.21 |
32.19 |
26.16 |
1.67 |
6.00 |
<0.1 |
<0.01 |
|
WSR16 |
30/5/2024 |
Cloudy |
Mid-flood |
Moderate |
M |
8 |
12:36:00 PM |
9.04 |
8.23 |
32.20 |
26.18 |
1.68 |
5.00 |
<0.1 |
<0.01 |
|
WSR16 |
30/5/2024 |
Cloudy |
Mid-flood |
Moderate |
M |
8 |
12:36:00 PM |
9.10 |
8.24 |
32.21 |
26.18 |
1.66 |
5.00 |
<0.1 |
<0.01 |
|
WSR16 |
30/5/2024 |
Cloudy |
Mid-flood |
Moderate |
B |
15 |
12:37:00 PM |
9.05 |
8.23 |
32.19 |
26.16 |
1.62 |
6.00 |
<0.1 |
<0.01 |
|
WSR16 |
30/5/2024 |
Cloudy |
Mid-flood |
Moderate |
B |
15 |
12:37:00 PM |
9.08 |
8.23 |
32.22 |
26.18 |
1.62 |
4.00 |
<0.1 |
<0.01 |
|
Location |
Date |
Weather |
Tide |
Sea Condition |
Water Level |
Depth (m) |
Time |
DO (mg/L) |
pH |
Sal (ppt) |
Temp ((¢XC) |
Turbidty (NTU) |
SS (mg/L) |
Iron (mg/L) |
Total Residual Chlorine (mg/L) |
|
WSR33 |
30/5/2024 |
Cloudy |
Mid-flood |
Moderate |
S |
1 |
11:22:00 AM |
9.00 |
8.13 |
32.14 |
26.15 |
1.93 |
6.00 |
<0.1 |
<0.01 |
|
WSR33 |
30/5/2024 |
Cloudy |
Mid-flood |
Moderate |
S |
1 |
11:22:00 AM |
8.95 |
8.13 |
32.15 |
26.10 |
1.91 |
5.00 |
<0.1 |
<0.01 |
|
WSR33 |
30/5/2024 |
Cloudy |
Mid-flood |
Moderate |
M |
4 |
11:23:00 AM |
9.04 |
8.08 |
32.19 |
26.10 |
1.88 |
4.00 |
<0.1 |
<0.01 |
|
WSR33 |
30/5/2024 |
Cloudy |
Mid-flood |
Moderate |
M |
4 |
11:23:00 AM |
8.97 |
8.12 |
32.14 |
26.14 |
1.90 |
6.00 |
<0.1 |
<0.01 |
|
WSR33 |
30/5/2024 |
Cloudy |
Mid-flood |
Moderate |
B |
6 |
11:24:00 AM |
8.97 |
8.10 |
32.20 |
26.16 |
1.94 |
3.00 |
<0.1 |
<0.01 |
|
WSR33 |
30/5/2024 |
Cloudy |
Mid-flood |
Moderate |
B |
6 |
11:24:00 AM |
8.98 |
8.10 |
32.18 |
26.12 |
1.88 |
3.00 |
<0.1 |
<0.01 |
|
WSR36 |
30/5/2024 |
Cloudy |
Mid-flood |
Moderate |
S |
1 |
11:39:00 AM |
9.20 |
8.25 |
32.56 |
25.97 |
1.80 |
3.00 |
<0.1 |
<0.01 |
|
WSR36 |
30/5/2024 |
Cloudy |
Mid-flood |
Moderate |
S |
1 |
11:39:00 AM |
9.15 |
8.21 |
32.56 |
25.96 |
1.76 |
3.00 |
<0.1 |
<0.01 |
|
WSR36 |
30/5/2024 |
Cloudy |
Mid-flood |
Moderate |
M |
4 |
11:40:00 AM |
9.18 |
8.23 |
32.54 |
25.96 |
1.79 |
2.50 |
<0.1 |
<0.01 |
|
WSR36 |
30/5/2024 |
Cloudy |
Mid-flood |
Moderate |
M |
4 |
11:40:00 AM |
9.15 |
8.24 |
32.52 |
26.03 |
1.75 |
3.00 |
<0.1 |
<0.01 |
|
WSR36 |
30/5/2024 |
Cloudy |
Mid-flood |
Moderate |
B |
7 |
11:40:00 AM |
9.21 |
8.23 |
32.52 |
25.99 |
1.81 |
5.00 |
<0.1 |
<0.01 |
|
WSR36 |
30/5/2024 |
Cloudy |
Mid-flood |
Moderate |
B |
7 |
11:40:00 AM |
9.13 |
8.25 |
32.58 |
25.99 |
1.75 |
3.00 |
<0.1 |
<0.01 |
|
WSR37 |
30/5/2024 |
Cloudy |
Mid-flood |
Moderate |
S |
1 |
11:56:00 AM |
9.06 |
8.21 |
32.95 |
25.93 |
2.06 |
7.00 |
<0.1 |
<0.01 |
|
WSR37 |
30/5/2024 |
Cloudy |
Mid-flood |
Moderate |
S |
1 |
11:56:00 AM |
9.09 |
8.25 |
33.00 |
25.97 |
2.05 |
7.00 |
<0.1 |
<0.01 |
|
WSR37 |
30/5/2024 |
Cloudy |
Mid-flood |
Moderate |
M |
4 |
11:57:00 AM |
9.07 |
8.23 |
32.97 |
25.93 |
2.05 |
5.00 |
<0.1 |
<0.01 |
|
WSR37 |
30/5/2024 |
Cloudy |
Mid-flood |
Moderate |
M |
4 |
11:57:00 AM |
9.03 |
8.21 |
32.98 |
25.96 |
2.09 |
3.00 |
<0.1 |
<0.01 |
|
WSR37 |
30/5/2024 |
Cloudy |
Mid-flood |
Moderate |
B |
7 |
11:58:00 AM |
9.05 |
8.23 |
33.01 |
25.98 |
2.05 |
5.00 |
<0.1 |
<0.01 |
|
WSR37 |
30/5/2024 |
Cloudy |
Mid-flood |
Moderate |
B |
7 |
11:58:00 AM |
9.03 |
8.20 |
32.95 |
25.91 |
2.03 |
7.00 |
<0.1 |
<0.01 |
|
NF1 |
30/5/2024 |
Cloudy |
Mid-flood |
Moderate |
S |
1 |
12:20:00 PM |
8.65 |
8.37 |
33.07 |
25.96 |
1.49 |
3.00 |
<0.1 |
<0.01 |
|
NF1 |
30/5/2024 |
Cloudy |
Mid-flood |
Moderate |
S |
1 |
12:20:00 PM |
8.69 |
8.36 |
33.12 |
26.01 |
1.49 |
5.00 |
<0.1 |
<0.01 |
|
NF1 |
30/5/2024 |
Cloudy |
Mid-flood |
Moderate |
M |
7 |
12:21:00 PM |
8.61 |
8.35 |
33.08 |
26.03 |
1.48 |
5.00 |
<0.1 |
<0.01 |
|
NF1 |
30/5/2024 |
Cloudy |
Mid-flood |
Moderate |
M |
7 |
12:21:00 PM |
8.60 |
8.35 |
33.06 |
25.96 |
1.53 |
5.00 |
<0.1 |
<0.01 |
|
NF1 |
30/5/2024 |
Cloudy |
Mid-flood |
Moderate |
B |
12 |
12:22:00 PM |
8.62 |
8.32 |
33.12 |
25.97 |
1.49 |
4.00 |
<0.1 |
<0.01 |
|
NF1 |
30/5/2024 |
Cloudy |
Mid-flood |
Moderate |
B |
12 |
12:22:00 PM |
8.60 |
8.37 |
33.11 |
25.96 |
1.47 |
5.00 |
<0.1 |
<0.01 |
|
NF2 |
30/5/2024 |
Cloudy |
Mid-flood |
Moderate |
S |
1 |
12:12:00 PM |
9.41 |
8.37 |
33.01 |
26.25 |
1.47 |
5.00 |
<0.1 |
<0.01 |
|
NF2 |
30/5/2024 |
Cloudy |
Mid-flood |
Moderate |
S |
1 |
12:12:00 PM |
9.44 |
8.35 |
33.02 |
26.21 |
1.47 |
3.00 |
<0.1 |
<0.01 |
|
NF2 |
30/5/2024 |
Cloudy |
Mid-flood |
Moderate |
M |
5 |
12:13:00 PM |
9.36 |
8.37 |
33.05 |
26.26 |
1.46 |
6.00 |
<0.1 |
<0.01 |
|
NF2 |
30/5/2024 |
Cloudy |
Mid-flood |
Moderate |
M |
5 |
12:13:00 PM |
9.40 |
8.38 |
33.05 |
26.24 |
1.44 |
4.00 |
<0.1 |
<0.01 |
|
NF2 |
30/5/2024 |
Cloudy |
Mid-flood |
Moderate |
B |
10 |
12:14:00 PM |
9.38 |
8.38 |
33.02 |
26.21 |
1.45 |
2.50 |
<0.1 |
<0.01 |
|
NF2 |
30/5/2024 |
Cloudy |
Mid-flood |
Moderate |
B |
10 |
12:14:00 PM |
9.40 |
8.34 |
33.04 |
26.24 |
1.49 |
2.50 |
<0.1 |
<0.01 |
|
Location |
Date |
Weather |
Tide |
Sea Condition |
Water Level |
Depth (m) |
Time |
DO (mg/L) |
pH |
Sal (ppt) |
Temp ((¢XC) |
Turbidty (NTU) |
SS (mg/L) |
Iron (mg/L) |
Total Residual Chlorine (mg/L) |
|
NF3 |
30/5/2024 |
Cloudy |
Mid-flood |
Moderate |
S |
1 |
12:05:00 PM |
9.08 |
8.21 |
33.50 |
26.25 |
1.46 |
6.00 |
<0.1 |
<0.01 |
|
NF3 |
30/5/2024 |
Cloudy |
Mid-flood |
Moderate |
S |
1 |
12:05:00 PM |
9.07 |
8.22 |
33.53 |
26.24 |
1.52 |
5.00 |
<0.1 |
<0.01 |
|
NF3 |
30/5/2024 |
Cloudy |
Mid-flood |
Moderate |
M |
6 |
12:06:00 PM |
9.06 |
8.17 |
33.54 |
26.25 |
1.49 |
7.00 |
<0.1 |
<0.01 |
|
NF3 |
30/5/2024 |
Cloudy |
Mid-flood |
Moderate |
M |
6 |
12:06:00 PM |
9.02 |
8.22 |
33.55 |
26.26 |
1.50 |
4.00 |
<0.1 |
<0.01 |
|
NF3 |
30/5/2024 |
Cloudy |
Mid-flood |
Moderate |
B |
11 |
12:07:00 PM |
9.04 |
8.20 |
33.50 |
26.26 |
1.51 |
6.00 |
<0.1 |
<0.01 |
|
NF3 |
30/5/2024 |
Cloudy |
Mid-flood |
Moderate |
B |
11 |
12:07:00 PM |
9.07 |
8.20 |
33.49 |
26.22 |
1.46 |
4.00 |
<0.1 |
<0.01 |




Appendix H
Waste Flow Table

Appendix I
Ecology (Coral
& Fishery) Survey Report
Pre- Operation Phase Coral Monitoring Report
1
INTRODUCTION
1.1
Background
1.1.1
The Project, Design, Build and Operate First
Stage of Tseung Kwan O Desalination Plant (TKODP), is
a Designated Project under the Environmental Impact Assessment Ordinance (Cap.
499) (EIAO) and is currently governed by a Further Environmental Permit (EP No. FEP - 01/503/2015/B) for the construction, pre-operation and operation of the Project.
1.1.2
The Jardine
Engineering Corporation, Limited, China State Construction Engineering (Hong Kong) Limited and Acciona Agua, S.A. Trading As AJC Joint Venture (AJCJV) is contracted to carry out the Design,
Build and Operate First Stage of Tseung
Kwan O Desalination Plant (DPTKO) under Contract No. 13/WSD/17 (the Project).
1.1.3
Acuity Sustainability Consulting Limited (ASCL)
is commissioned by AJCJV to undertake the Environmental Team (ET) services as
required and/or implied, both explicitly and implicitly, in the Environmental
Permit (EP), Environmental Impact Assessment Report (EIA Report) (Register No.
AEIAR-192/2015) and Environmental Monitoring and Audit Manual (EM&A Manual)
for the Project; and to carry out the Environmental Monitoring and Audit
(EM&A) programme in fulfillment of the EIA
Report¡¦s EM&A requirements and Contract No. 13/WSD/17 Specification requirements.
1.1.4
The proposed
Desalination Plant at Tseung Kwan O (TKODP) will
produce potable water with an initial capacity of 135 million litres per day (MLD), expandable to an ultimate capacity of
270 MLD in the future to provide a secure and alternative fresh water resource
complying with the World Health Organization (WHO) standards. The plant will
adopt the Seawater Reverse Osmosis (SWRO) technology, which dominates the
market due to its reliability and progressive reduction in cost as the
technology advances.
1.1.5
A baseline coral
survey was conducted in 13 October 2023 to verify the validity of the
pervious EIA findings as well as to provide updated coral data for impact
monitoring during the construction and operational phases. Two indirect impact
sites and one control site were identified during the baseline coral survey for
impact monitoring.
2
Methodology
2.1 All tagged coral colonies in C2, C3 and C8 will be monitored monthly
till November 2024. The monitoring team will record the
following parameters (using the same methodology adopted during the
pre-construction phase survey): size, presence, survival, health conditions
(percentage of mortality) and percentage of sediment of each tagged coral
colonies. The general environmental conditions during the survey date will also
be monitored.
2.2 Photographic records of the tagged coral
colonies will be taken as far as possible maintaining the same aspect
and orientation as photographs taken for the pre-translocation
surveys. All the tags for marking
coral colonies will be removed / retrieved once the monitoring programme is completed.
2.3 The results of the pre-operation phase
monitoring surveys should be reviewed with reference to findings of the
baseline survey.
2.4 If, during the pre-operation phase
monitoring, observations of any die-off / abnormal conditions of the tagged corals
are made, the ET will inform the Contractor, Independent Environmental
Checker (IEC)/ Environmental Project Office (ENPO), Agriculture, Fisheries and Conservation Department (AFCD) and in liaison with AFCD investigate any measures needed.
2.5 Monitoring result will be reviewed and be
compared against the Action Level and Limit Level (AL/LL) as set out in Table 2-1. Actions specified
on Table 2-2 will be taken by ET,
IEC, SOR and Contractor shall there be exceedance of AL/LL
Table 2-1 Action and Limit Levels for Pre-operation Phase Coral Monitoring
|
Parameter |
Action Level
Definition |
Limit Level Definition |
|
Mortality |
If during
Impact Monitoring a 15% increase in the percentage of partial mortality on the corals occurs at
more than 20% of the tagged indirect impact site coral colonies that is not
recorded on the tagged corals
at the control site,
then the Action
Level is exceeded |
If during
Impact Monitoring a 25% increase in the percentage of partial mortality on the corals occurs at
more than 20% of the tagged indirect impact site coral colonies that is not
recorded on the tagged corals
at the control site,
then the Limit Level is exceeded |
Note: If the
defined Action Level or Limit Level for
coral monitoring is exceeded, the actions as set out in Table 5-4 will be
implemented.
Table 2-2 Event and Action Plan for Pre-operation Phase
Monitoring
|
Event |
Action |
|||
|
ET Leader |
IEC |
SOR |
Contractor |
|
|
Action Level Exceedance |
1.
Check monitoring data 2.
Inform the IEC, SOR and Contractor of the findings; 3.
Increase the monitoring to at least once a month
to confirm findings; 4.
Propose mitigation measures for consideration |
1.
Discuss monitoring with the ET and the
Contractor; 2.
Review proposals for additional monitoring and any
other measures submitted by the Contractor and advise the SOR accordingly. |
1.
Discuss with the
IEC additional monitoring requirements and any other
measures proposed by the ET; 2.
Make agreement on the
measures to be implemented. |
1.
Inform the SOR and confirm notification of the
non-compliance in writing; 2.
Discuss with the
ET and the IEC and propose measures to the IEC and the
SOR; 3.
Implement the
agreed measures. |
Remark: ** The ¡§SOR¡¨ is equivalent to the ¡§ER¡¨ as defined
in the EM&A Manual of the Project
3. Result
3.1
The pre-operation
phase monitoring for May 2024 were performed on 17th May 2024 for
both Indirect Impact Sites and Control
Site (Figure 1 and 2); and the weather conditions were summarized in Table 3.1.
Table
3.1 Weather Condition for the May
2024 Pre-operation Phase Monitoring
|
Date |
Condition |
Average Underwater Visibility |
|
17th May 2024 |
-
East force 5 to
6, -
Cloudy |
Less
than 0.5 to 1 m |
3.2 Ten (10) hard
coral colonies in C2, C3 and C8 were monitored at each site of Control and Indirect Impact sites as
suggested in the Operation Phase Monitoring Plan. The general health conditions (size,
mortality, bleaching and sediment) were recorded and summarized
in Table 3.2, Table 3.3 and Table 3.4 Photos
of each tagged coral colonies were taken during the monitoring activities and
shown in Appendix A (Photo Plate A, B and C)..
3.3 All tagged
coral colonies showed good health condition during the May 2024 Monitoring
survey. There was not increased
level of mortality, bleaching and sediment
in other tagged coral colonies when compared with
the baseline results.
Table 3.2 Sizes, Condition, Mortality, Bleaching and Sediment
of 10 Natural Coral Colonies
at Control Site C8 during May 2024 Coral Monitoring Survey
|
Tag # |
Species |
Size (cm) - Max. Diameter |
Condition |
Mortality (%) |
Bleaching (%) |
Sediment (%) |
|||
|
|
|
|
|
Baseline |
17-May |
Baseline |
17-May |
Baseline |
17-May |
|
1 |
Favites pentagona |
66 |
Good |
0 |
0 |
0 |
0 |
0 |
0 |
|
2 |
Porites lutea |
58 |
Good |
0 |
0 |
0 |
0 |
0 |
0 |
|
3 |
Plesiastrea versipora |
31 |
Good |
0 |
0 |
0 |
0 |
0 |
0 |
|
4 |
Platygyra carnosus |
30 |
Good |
0 |
0 |
0 |
0 |
0 |
0 |
|
5 |
Acropora solitaryensis |
32 |
Good |
0 |
0 |
0 |
0 |
0 |
0 |
|
6 |
Plesiastrea versipora |
27 |
Good |
0 |
0 |
0 |
0 |
0 |
0 |
|
7 |
Porites lutea |
39 |
Good |
0 |
0 |
0 |
0 |
0 |
0 |
|
8 |
Favites pentagona |
20 |
Good |
0 |
0 |
0 |
0 |
0 |
0 |
|
9 |
Platygyra carnosus |
26 |
Good |
0 |
0 |
0 |
0 |
0 |
0 |
|
10 |
Acropora solitaryensis |
28 |
Good |
0 |
0 |
0 |
0 |
0 |
0 |
Table 3.3 Sizes, Condition, Mortality, Bleaching and Sediment of 10 Natural
Coral Colonies at Indirect Impact Site C2 during May 2024 Coral
Monitoring Survey
|
Tag # |
Species |
Size (cm) - Max. Diameter |
Condition |
Mortality (%) |
Bleaching (%) |
Sediment (%) |
|||
|
|
|
|
|
Baseline |
17-May |
Baseline |
17-May |
Baseline |
17-May |
|
1 |
Porites lutea |
21 |
Good |
0 |
0 |
0 |
0 |
0 |
0 |
|
2 |
Favites abdita |
43 |
Good |
0 |
0 |
0 |
0 |
0 |
0 |
|
3 |
Duncanopsammia peltata |
45 |
Good |
0 |
0 |
0 |
0 |
0 |
0 |
|
4 |
Dipsastraea veroni |
20 |
Good |
0 |
0 |
0 |
0 |
0 |
0 |
|
5 |
Favites pentagona |
19 |
Good |
0 |
0 |
0 |
0 |
0 |
0 |
|
6 |
Plesiastrea versipora |
21 |
Good |
0 |
0 |
0 |
0 |
0 |
0 |
|
7 |
Dipsastraea rotumana |
21 |
Good |
0 |
0 |
0 |
0 |
0 |
0 |
|
8 |
Dipsastraea speciosa |
20 |
Good |
0 |
0 |
0 |
0 |
0 |
0 |
|
9 |
Porites lutea |
37 |
Good |
0 |
0 |
0 |
0 |
0 |
0 |
|
10 |
Porites lutea |
38 |
Good |
0 |
0 |
0 |
0 |
0 |
0 |
Table 3.4 Sizes, Condition, Mortality, Bleaching and Sediment of 10 Natural
Coral Colonies at Indirect Impact Site C3 during May 2024 Coral
Monitoring Survey
|
Tag # |
Species |
Size (cm) - Max. Diameter |
Condition |
Mortality (%) |
Bleaching (%) |
Sediment (%) |
|||
|
|
|
|
|
Baseline |
17-May |
Baseline |
17-May |
Baseline |
17-May |
|
11 |
Acropora solitaryensis |
37 |
Good |
0 |
0 |
0 |
0 |
0 |
0 |
|
12 |
Platygyra carnosa |
30 |
Good |
0 |
0 |
0 |
0 |
0 |
0 |
|
13 |
Favites pentagona |
33 |
Good |
0 |
0 |
0 |
0 |
0 |
0 |
|
14 |
Platygyra carnosa |
22 |
Good |
0 |
0 |
0 |
0 |
0 |
0 |
|
15 |
Dipsastraea veroni |
20 |
Fair |
0 |
0 |
0 |
0 |
0 |
0 |
|
16# |
Favites flexuosa |
20 |
Good |
0 |
0 |
0 |
0 |
0 |
0 |
|
17 |
Favites chinensis |
51 |
Good |
0 |
0 |
0 |
0 |
0 |
0 |
|
18 |
Plesiastrea versipora |
22 |
Good |
0 |
0 |
0 |
0 |
0 |
0 |
|
19 |
Duncanopsammia peltata |
29 |
Good |
0 |
0 |
0 |
0 |
0 |
0 |
|
20 |
Platygyra carnosus |
23 |
Good |
0 |
0 |
0 |
0 |
0 |
0 |
#newly
tagged coral colony
4. Discussion and Conclusion
4.1 The pre-operation phase
monitoring for May 2024 were carried out in the indirect impact
area (C2 and C3)
and control site (C8) on 17th May 2024. A total of 30 tagged coral colonies (10 at
control site and 20 and two indirect impact sites) were monitored. All
coral colonies were good in general.
4.2
No sediment,
bleaching or increased mortality in the general condition of all other tagged
coral colonies were observed during the monthly operation phase monitoring
period. No deterioration of the coral
community was observed in the ecological monitoring results when compared
with the baseline
ecological monitoring results.
There is no AL/LL exceedance during the monitoring period. Photos of each tagged corals colonies were taken and
shown in Appendix A (Photo Plates A, B and C).
Figure 1 Two Proposed Indirect Impact Sites (C2 and C3) during
Pre-operation Phase
![]()
Figure 2 Proposed
Control Site (C8) during Pre-operation Phase
![]()
APPENDIX A
TAGGED CORAL
PHOTO
Photo Plate A Tagged
Corals at Control Site C8
|
Tag # |
17th May 2024 |
|
#1 |
|
|
#2 |
|
|
#3 |
|
|
#4 |
|
|
#5 |
|
|
#6 |
|
|
|
|
|
#8 |
|
|
#9 |
|
|
#10 |
|
Photo
Plate B Tagged
Corals at Indirect
Impact Site C2
|
Tag # |
17th May 2024 |
|
#1 |
|
|
|
|
|
#3 |
|
|
#4 |
|
|
#5 |
|
|
#6 |
|
|
#7 |
|
|
#8 |
|
|
#9 |
|
|
#10 |
|
Photo Plate C Tagged
Corals at Indirect Impact Site C3
|
Tag # |
|
|
#11 |
|
|
#12 |
|
|
#13 |
|
|
#14 |
|
|
#15 |
|
|
#16 |
|
|
|
|
|
#18 |
|
|
|
|
|
#20 |
|
THE END
Appendix J
Site Inspection Proforma
































Appendix K
Complaint Log
Statistical Summary
of Environmental Complaints
|
Reporting Period |
Environmental Complaint Statistics |
||
|
Frequency |
Cumulative |
Complaint Nature |
|
|
1 - 31 May 2024 |
0 |
2 |
N/A |
Statistical
Summary of Environmental Summons
|
Reporting Period |
Environmental Summons
Statistics |
||
|
Frequency |
Cumulative |
Details |
|
|
1 - 31 May 2024 |
0 |
0 |
N/A |
Statistical
Summary of Environmental Prosecution
|
Reporting Period |
Environmental Prosecution Statistics |
||
|
Frequency |
Cumulative |
Details |
|
|
1 - 31 May 2024 |
0 |
0 |
N/A |
Appendix L
Exceedance Report (s)
Bi-Weekly Incident Report
on Action Level or Limit Level Non-Compliance
|
Date of exceedance |
Monitoring Station |
Tide |
Parameter |
Measurement Result (mg/L) |
Sampling depth |
Depth Average Result (mg/L) |
Action Level (mg/L) |
Limit Level (mg/L) |
Exceedance |
Marine construction activities with
contact with water (Y/N) |
Exceedance related
to Project (Y/N) |
Reasons of non-project related exceedance |
||||||||
|
95%- ile |
Control 120% |
99%- ile |
Control 130% |
(1) |
(2) |
(3) |
(4) |
(5) |
(6) |
(7) |
||||||||||
|
02/05/2024 |
NF2 |
Flood |
Suspended Solid (SS) |
-- |
-- |
3.17 |
5.00 |
3.10 |
6.00 |
3.36 |
Action Level |
N |
N |
|
ü |
ü |
ü |
ü |
ü |
ü |
|
07/05/2024 |
WSR4 |
Ebb |
Suspended Solid (SS) |
-- |
-- |
3.42 |
5.00 |
3.30 |
6.00 |
3.58 |
Action Level |
N |
N |
|
ü |
|
ü |
ü |
ü |
ü |
|
14/05/2024 |
WSR4 |
Ebb |
Suspended Solid (SS) |
-- |
-- |
4.17 |
5.00 |
3.60 |
6.00 |
3.90 |
Limit Level |
N |
N |
|
ü |
|
ü |
ü |
|
ü |
1)
Control
station value already
exceed either the Action or Limit Level.
2)
No silt plume or pollution
discharge from site area was observed.
3)
Rainfall
was recorded at Tseung Kwan O during the monitoring period, rainfall may lead to release of SS content
form the soil of the nearby lands (e.g., Country
Park, fill bank).
4)
No action and limit level exceedance observed
at WSR37 (Outfall
Shaft).
5)
Marine
construction activity was completed.
6)
No pre-operation activities related to the release of SS in the reporting period.
7)
Water quality mitigation measures were observed
maintained / implemented properly (double silt curtain).
Conclusion:
During water quality monitoring on 2 May
2024, 7 May 2024 and 14 May 2024, one (1) Action Level exceedances was recorded
during mid-flood tide. One (1) Action Level exceedances and one (1) Limit Level
exceedance were recorded during mid-ebb tide. Total two(2) Action Level and one
(1) Limit Level exceedances for SS of impact
water quality monitoring were recorded between 1 May to 15 May 2024.
The marine construction works were completed
on 1 September 2023. The commissioning activities were shown in the table below.
The sediment
plume on 30 May 2024 from the nearby
land (Country Park Area) and trespassers was reported in nearby
sea area on 10 and 13 May 2024. The desalination plant and the
outfall shaft work normally.
After investigation, all exceedances were considered non-project related.
Pre-operation Activities:
|
02 May 2024 |
07 May 2024 |
|
¡P
Production of desalinated water ¡P
Water Sampling and
analysis |
¡P
Production of desalinated water ¡P
Water Sampling and
analysis |
|
14 May 2024 |
|
|
¡P
Production of desalinated water ¡P
Actidaff backwashing ¡P
Water sampling and analysis |
Supporting Photo:
|
Date of exceedance |
Monitoring station(s) |
|||
|
02/05/2024 |
|
|
|
|
|
NF2 |
|
|
|
|
|
07/05/2024 |
|
|
|
|
|
WSR4 |
|
|
|
|
|
14/05/2024 |
|
|
|
|
|
WSR4 |
|
|
|
|
![]()
Bi-Weekly Incident Report
on Action Level or Limit Level Non-Compliance
|
Date of exceedance |
Monitoring Station |
Tide |
Parameter |
Measurement Result (mg/L) |
Sampling depth |
Depth Average Result (mg/L) |
Action Level (mg/L) |
Limit Level (mg/L) |
Exceedance |
Marine construction activities with
contact with water (Y/N) |
Exceedance related
to Project (Y/N) |
Reasons of non-project related exceedance |
||||||||
|
95%- ile |
Control 120% |
99%- ile |
Control 130% |
(1) |
(2) |
(3) |
(4) |
(5) |
(6) |
(7) |
||||||||||
|
16/05/2024 |
WSR2 |
Flood |
Suspended Solid
(SS) |
-- |
-- |
3.25 |
5.00 |
3.20 |
6.00 |
3.47 |
Action Level |
N |
N |
|
ü |
|
ü |
ü |
|
ü |
|
WSR16 |
-- |
-- |
3.50 |
Limit Level |
N |
N |
|
|
|
|
|
|
|
|||||||
|
18/05/2024 |
NF3 |
Ebb |
Suspended Solid (SS) |
-- |
-- |
3.17 |
5.00 |
3.10 |
6.00 |
3.36 |
Action Level |
N |
N |
|
ü |
|
ü |
ü |
|
ü |
|
23/05/2024 |
WSR33 |
Ebb |
Suspended Solid (SS) |
-- |
-- |
3.08 |
5.00 |
3.00 |
6.00 |
3.25 |
Action Level |
N |
N |
|
ü |
ü |
|
ü |
|
ü |
|
WSR37 |
-- |
-- |
3.08 |
Action Level |
N |
N |
|
ü |
ü |
|
ü |
|
ü |
|||||||
|
NF1 |
-- |
-- |
3.08 |
Action Level |
N |
N |
|
ü |
ü |
|
ü |
|
ü |
|||||||
|
25/05/2024 |
WSR3 |
Flood |
Suspended Solid (SS) |
-- |
-- |
3.50 |
5.00 |
3.40 |
6.00 |
3.68 |
Action Level |
N |
N |
|
ü |
ü |
ü |
ü |
|
ü |
|
30/05/2024 |
WSR3 |
Flood |
Suspended Solid
(SS) |
-- |
-- |
4.42 |
5.00 |
3.40 |
6.00 |
3.68 |
Limit Level |
N |
N |
|
ü |
ü |
|
ü |
ü |
ü |
|
WSR16 |
-- |
-- |
4.83 |
Limit Level |
N |
N |
|
ü |
ü |
|
ü |
ü |
ü |
|||||||
|
WSR33 |
-- |
-- |
4.50 |
Limit Level |
N |
N |
|
ü |
ü |
|
ü |
ü |
ü |
|||||||
|
WSR37 |
-- |
-- |
5.67 |
Limit Level |
N |
N |
|
ü |
ü |
|
ü |
ü |
ü |
|||||||
|
NF1 |
-- |
-- |
4.50 |
Limit Level |
N |
N |
|
ü |
ü |
|
ü |
ü |
ü |
|||||||
|
NF2 |
-- |
-- |
3.83 |
Limit Level |
N |
N |
|
ü |
ü |
|
ü |
ü |
ü |
|||||||
|
NF3 |
-- |
-- |
5.33 |
Limit Level |
N |
N |
|
ü |
ü |
|
ü |
ü |
ü |
|||||||
1)
Control
station value already
exceed either the Action or Limit Level.
2)
No silt plume or pollution
discharge from site area was observed.
3)
Rainfall
was recorded at Tseung Kwan O during the monitoring period,
rainfall may lead to release
of SS content from the soil of the nearby
lands (e.g., Country Park, fill bank).
4)
No action and limit level exceedance observed
at WSR37 (Outfall
Shaft).
5)
Marine
construction activity was completed.
6)
No pre-operation activities related to the release of SS in the reporting period.
7)
Water quality mitigation measures were observed
maintained / implemented properly (double silt curtain).
Conclusion:
During water quality monitoring on 16 May
2024, 18 May 2024, 23 May 2024, 25 May 2024 and 30 May 2024, two (2) Action
Level exceedances and eight (8) Limit Level exceedance were recorded during
mid-flood tide. Four (4) Action Level exceedances
were recorded during mid-ebb tide. Total fourteen (14) Action Level and eight
(8) Limit Level exceedances for SS of impact water quality monitoring were recorded between 16 May to 31 May 2024.
The marine construction works were completed
on 1 September 2023.
The incidents
of sediment plume were reported on
30 May 2024 from the nearby
lands (Country Park). The desalination plant and the outfall
shaft work normally. After
investigation, all exceedances were considered non-project related.
The commissioning activities were shown in the table below.
Pre-operation Activities:
|
16 May 2024 |
18 May 2024 |
|
¡P
Production of desalinated water ¡P
Actidaff backwashing ¡P
Water sampling and analysis |
¡P
Production of desalinated water ¡P
Actidaff backwashing ¡P
Water sampling and analysis |
|
23 May 2024 |
25 May 2024 |
|
¡P
Production of desalinated water ¡P
Actidaff backwashing |
¡P
Production of desalinated water ¡P
Actidaff backwashing |
|
30 May 2024 |
|
|
¡P
Production of desalinated water ¡P
Water sampling and analysis |
|
Supporting Photo:
|
Date of exceedance |
Monitoring station(s) |
|||
|
16/05/2024 |
|
|
|
|
|
WSR2 |
WSR16 |
|
|
|
|
18/05/2024 |
|
|
|
|
|
NF3 |
|
|
|
|
|
23/05/2024 |
|
|
|
|
|
WSR33 |
WSR37 |
NF1 |
|
|
|
Date of exceedance |
Monitoring station(s) |
|||
|
25/05/2024 |
|
|
|
|
|
WSR3 |
|
|
|
|
|
30/05/2024 |
|
|
|
|
|
WSR3 |
WSR16 |
WSR33 |
WSR37 |
|
|
|
|
|
|
|
|
NF1 |
NF2 |
NF3 |
|
|
|
|
|
|
|
23 May 2024 |
25 May 2024 |
30 May 2024 |