


CONTENTS
6. Summary of Monitoring Exceedance, Complaints, Notification of Summons and Prosecutions.34
Appendix A Master Programme
Appendix B Overview of Desalination Plant in Tseung Kwan O
Appendix C Summary of Implementation Status of
Environmental Mitigation
Appendix D Impact
Monitoring Schedule of the Reporting Month
Appendix E Event/Action Plan for Noise Exceedance
Appendix F Noise
Monitoring Equipment Calibration Certificate (Blank)
Appendix G Event/Action Plan for Water Quality Exceedance
Appendix H Waste Flow Table
Appendix I Site
Inspection Proforma
Appendix J Complaint Log
Appendix K Impact Monitoring Schedule of Next Reporting Month
Appendix L Water
Quality and Landfill Gas Monitoring Data
Appendix M HOKLAS Laboratory Ce rtificate
Appendix N Water Quality and Landfill Gas Equipment Calibration Certificate
Appendix O Exceedance Report(s)
INTRODUCTION
A1. The Project, Design, Build and Operate First Stage of Tseung Kwan O Desalination Plant (TKODP), is a Designated Project under the Environmental Impact Assessment Ordinance (Cap. 499) (EIAO) and is currently governed by a Further Environmental Permit (EP No. FEP-01/503/2015/A) for the construction and operation of the Contract.
A2. In accordance with the Environmental Monitoring and Audit (EM&A) Manual for the Contract, EM&A works for marine water quality, noise, waste management and ecology should be carried out by Environmental Team (ET), Acuity Sustainability Consulting Limited (ASCL), during the construction phase of the Contract.
A3. This is the 22nd Monthly EM&A Report, prepared by ASCL, for the Contract summarizing the monitoring results and audit findings of the EM&A programme at and around Tseung Kwan O Area 137 (TKO 137) during the reporting period from 1 December 2021 to 31 December 2021.
A4. The EM&A programme for this contract has covered environmental monitoring on construction noise level at selected NSRs and Contractor¡¦s environmental performance auditing in the aspects of construction dust, construction noise, water quality, waste management, Landscape and Visual and Ecology.
SUMMARY
OF MAIN WORKS UNDERTAKEN & KEY MITIGATION MEASURES IMPLEMENTED
A5. Key activities carried out in this reporting period for the Contract included the followings:
- Land Survey;
- Construction of ActiDAFF Roof Slab;
- Construction of Reverse Osmosis (RO) Building; water tank; Electrical Building roof and internal finishing works;
- Construction of Product Water Storage Tank (PWST) perimeter wall and Electrical Building¡¦s roof slab;
- Commence construction of manholes no. 8 and no. 9 adjacent to PWST;
- Construction of Post Treatment Building 1/F;
- Construction of first floor columns and walls of Administration Building;
- Construction of reinforced concrete (R.C) footing of Inspection Corridor;
- Internal finishing work in Main Electrical and Central Chiller Plant Building;
- Outfall Shaft ‐ dewatering; rock cutting and excavation works;
- Outfall Shaft - works inside the caisson to check and grout/welding water leaking spots;
- Outfall Shaft -welding works of working platform atop the caisson;
-
Outfall Shaft - material
lifting for rock coring and pumping clean seepage water
within silt curtain
area;
- Excavation & Lateral Support (ELS) erection and marine dredging commencement and disposal at Intake Shaft;
- Installation of brackets and welding works of the wailing at Intake Shaft;
- Pipe jacking at Combined Shaft for Intake & Outfall pipelines;
- Cable drawpit construction;
- Glass Reinforced Plastic (GRP) pipe lamination and laying;
- Construction of 1st floor structural wall of Chemical Building;
- Wan Po Road Sewage Rising Main Works -Temporary Traffic Arrangement (TTA), excavation and laying High-Density Polyethylene (HDPE) pipe;
- Construction of On-Site Chlorine Generation (OSCG) Building footing and roof floor;
- Construction of base slab of Pump house;
- Dismantling of tower crane TC03;
- Construction of carbon dioxide (CO2) tank footing
A6. The major environmental impacts brought by the above construction works include:
- Construction dust and noise generation from marine construction works, excavation works, ELS installation works, breaking of concrete surface and construction works; rock cutting works and pipe piling driving works
- Waste generation from the construction activities
- Impact on water quality from marine construction works and inland construction works
A7. The key environmental mitigation measures implemented for the Contract in this reporting period associated with the above construction works include:
- Dust suppression by regular wetting and water spraying for construction works
- Reduction of noise from equipment and machinery on-site and regular inspection to machinery and plants/vehicles on-site to ensure proper functioning
- Sorting and storage of general refuse and construction waste
- Deployment of temporary silt curtain in the area where marine construction works were conducted and deployment of water sedimentation tanks for treatment of wastewater at inland areas before discharge
SUMMARY OF
EXCEEDANCE & INVESTIGATION & FOLLOW-UP
A8. No noise monitoring was conducted during the reporting period since there are no Contract - related construction activities undertaken within a radius of 300m from the monitoring locations. No contract-related exceedance of the Action Level was recorded during the reporting period.
A9. The EM&A works for water quality were conducted during the reporting period in accordance with the EM&A Manual.
A10. Eighty-seven (87) of the general water quality monitoring results of suspended solids (SS) obtained had exceeded the Action Level. Sixty-one (61) of the general water quality monitoring results of SS obtained during the reporting period had exceeded the Limit Level.
A11. Details of the exceedance are presented in Appendix O.
A12.Investigation
on the reason of exceedance has been carried out, where the exceedances of SS on 02/12, 04/12,
09/12, 11/12, 14/12, 16/12, 18/12,
21/12, 23/12, 25/12,
28/12 and 30/12 were
concluded to be unrelated to the Contract as detailed in the Incident Reports
on Action Level or Limit Level Non-compliance along with supporting materials in Appendix O.
A13. It was concluded that all exceedances recorded in December were unrelated to the Contract.
A14.In this reporting period, 1 time of landfill gas monitoring was recorded at Wan Po Road (Ch1+360 -Ch1+513). No exceedance of action and limit levels for methane, oxygen and carbon dioxide was observed. Monitoring was conducted during excavations at 1m depth or more within the consultation zone and whenever workers entered the excavation on the day.
A15.Joint site inspections of the construction work by ET and IEC were carried out on 7, 15, 22 and 31 December 2021 to audit the mitigation measures implementation status. Observations were recorded in the site inspection checklists and provided to the contractors together with the appropriate follow-up actions where necessary.
COMPLAINT HANDLING AND PROSECUTION
A16.No Contract -related environmental complaint was received during
the reporting period.
A17.Neither notifications of summons nor prosecution was received for the Contract.
REPORTING CHANGE
A18.There was no change to be reported that may affect the on-going EM&A programme.
SUMMARY OF UPCOMING KEY ISSUES AND KEY MITIGATION MEASURES
A19.Key activities anticipated in the next reporting period for the Contract will include the followings:
- Land Survey;
- Construction of ActiDAFF parapet;
- Construction of Reverse Osmosis (RO) Building -staircases and internal finishing;
- Construction of Sludge tank and Post treatment building (PTB);
- Construction of On-Site Chlorine Generation (OSCG) Building and carbon dioxide (CO2) tank area;
- Internal finishing works at Product Water Storage Tank (PWST) and Electrical Building and Main Electrical and Central Chiller Plant Building (MECCP);
- Construction of manhole and Glass Reinforced Plastic (GRP) pipe installation;
- Commence construction of Manholes no.15 and no.16 adjacent to ActiDAFF and Reverse Osmosis Area (RO);
- Construction of first and second floor walls and columns of Administration Building;
- Construction of reinforced concrete (RC) support of Inspection Corridor;
- Construction of 1st floor structural wall of Chemical Building;
- Dewatering, predrill, rock cutting and excavations at Outfall Shaft;
- Excavation & Lateral Support (ELS) erection and commencement of marine dredging and disposal at Intake Shaft;
- Retrieval of DN 2500 Tunnel Boring Machine (TBM) underwater at Intake Shaft;
- Concrete blinding laying and backfill with aggregate at Intake Shaft;
- Pipe jacking works at Combined Shaft for Intake & Outfall pipelines;
- Construction of base slab of Pump house
A20.The major environmental impacts brought by the above construction works will include:
- Construction dust and noise generation from construction and ELS works, pipe piling driven works, rock cutting works, marine dredging and construction works
- Waste generation from construction activities
- Impact on water quality from marine construction works and inland construction works
A21. The key environmental mitigation measures for the Contract in the coming reporting period associated with the above construction works will include:
- Dust suppression by regular wetting and water spraying for construction works
- Reduction of noise from equipment and machinery on-site
- Sorting and storage of general refuse and construction waste
- Deployment of temporary silt curtain in the area where marine construction works were conducted and deployment of water sedimentation tanks for treatment of wastewater at inland areas before discharge
1.1.
BACKGROUND
The Acciona Agua, S.A. Trading, Jardine Engineering Corporation, Limited and China State Construction Engineering (Hong Kong) Limited As AJC Joint Venture (AJCJV) is contracted to carry out the Design, Build and Operate First Stage of Tseung Kwan O Desalination Plant (DPTKO) under Contract No. 13/WSD/17 (the Contract).
Acuity Sustainability Consulting Limited (ASCL) is commissioned by AJCJV to undertake the Environmental Team (ET) services as required and/or implied, both explicitly and implicitly, in the Environmental Permit (EP), Environmental Impact Assessment Report (EIA Report) (Register No. AEIAR-192/2015) and Environmental Monitoring and Audit Manual (EM&A Manual) for the Contract; and to carry out the Environmental Monitoring and Audit (EM&A) programme in fulfillment of the EIA Report¡¦s EM&A requirements and Contract No. 13/WSD/17 Specification requirements.
Pursuant to the Environmental Impact Assessment Ordinance (EIAO), the Director of Environmental Protection granted the Environmental Permit (No. EP-01/503/2015) and Variation of Environmental Permit (No. EP-01/503/2015/A) to Water Supplies Department (WSD); and granted the Further Environmental Permit (No. FEP-01/503/2015/A) to AJCJV for the Contract.
1.2. THE REPORTING SCOPE
This is the 22nd Monthly EM&A Report for the Contract which summarizes the key findings of the EM&A programme during the reporting period from 1 December to 31 December 2021.
1.3. CONTRACT ORGANIZATION
The Contract Organization structure for Construction Phase is presented in Figure 1.1.

Contact details of the key personnel are presented in Table 1.1 below:
|
Party |
Position |
Name |
Telephone no. |
|
Contract Proponent |
SE/CM2 |
Benny Lam |
2634-3573 |
|
Supervising
Officer (Binnies Hong
Kong Limited) |
Project Manager |
Christina Ko |
2608-7302 |
|
Chief Resident Engineer |
Roger Wu |
6343-1002 |
|
|
The Jardine Engineering Corporation, Limited, China State Construction Engineering (Hong Kong) Limited and Acciona Agua, S.A. Trading |
Project Manager |
Stephen Yeung |
2807-4665 |
|
Environmental Monitoring Manager |
Brian Kam |
9456-9541 |
|
|
Acuity Sustainability Consulting Limited |
Environmental Team Leader |
Jacky Leung |
2698-6833 |
|
ANewR Consulting Limited |
Independent Environmental Checker (IEC) |
Louis Kwan |
2618-2831 |
1.4. SUMMARY OF CONSTRUCTION WORKS
Details of the major construction activities undertaken in this reporting period are shown as below. The construction programme is presented in Appendix A.
Key activities carried out in this reporting period for the Contract included the followings:
- Land Survey;
- Construction of ActiDAFF Roof Slab;
- Construction of Reverse Osmosis (RO) Building; water tank; Electrical Building roof and internal finishing works;
- Construction of Product Water Storage Tank (PWST) perimeter wall and Electrical Building¡¦s roof slab;
- Commence construction of manholes no. 8 and no. 9 adjacent to PWST;
- Construction of Post Treatment Building 1/F;
- Construction of first floor columns and walls of Administration Building;
- Construction of reinforced concrete (R.C) footing of Inspection Corridor;
- Internal finishing work in Main Electrical and Central Chiller Plant Building;
- Outfall Shaft ‐ dewatering; rock cutting and excavation works;
- Outfall Shaft - works inside the caisson to check and grout/welding water leaking spots;
- Outfall Shaft -welding works of working platform atop the caisson;
- Outfall Shaft - material lifting for rock coring and pumping clean seepage water within silt curtain area;
- Excavation & Lateral Support (ELS) erection and marine dredging commencement and disposal at Intake Shaft;
- Installation of brackets and welding works of the wailing at Intake Shaft;
- Pipe jacking at Combined Shaft for Intake & Outfall pipelines;
- Cable drawpit construction;
- Glass Reinforced Plastic (GRP) pipe lamination and laying;
- Construction of 1st floor structural wall of Chemical Building;
- Wan Po Road Sewage Rising Main Works -Temporary Traffic Arrangement (TTA), excavation and laying High-Density Polyethylene (HDPE) pipe;
- Construction of On-Site Chlorine Generation (OSCG) Building footing and roof floor;
- Construction of base slab of Pump house;
- Dismantling of tower crane TC03;
- Construction of carbon dioxide (CO2) tank footing
A summary of the valid permits, licences, and/or notifications on environmental protection for this Contract is presented in Table 1.2.
|
Permit/ Licenses/ Notification |
Reference |
Validity Period |
Remarks |
|
Environmental Permit |
FEP -01/503/2015/A |
Throughout
the Contract |
|
|
Notification
of Construction Works under the Air Pollution Control (Construction Dust) Regulation (Form NA) |
Ref. No.: 451539 |
- |
|
|
Wastewater
Discharge Licence (Land
and Marine works) |
WT00035775-2020 |
24/07/2020 - 31/07/2025 |
|
|
Chemical Waste Producer Registration |
5213-839-A2987-01 |
Throughout the Contract |
|
|
Construction Noise Permit (24 hrs)
-CNP for general works, TBM at Combined Shaft
and marine works |
GW-RE1041-21 |
01/11/2021 - 30/04/2022 |
|
|
Billing
Account for Disposal of
Construction Waste |
7036276 |
Throughout
the Contract |
|
|
Vessel
CHITs for fill disposal |
7039300 |
*Application
for renewal was submitted on 14 December 2021. Application
in progress |
|
|
Dumping
at Sea Ordinance (DASO) Permit
to dump materials (Category M) at sea |
EP/MD/22-083 |
03/12/2021 - 02/01/2022 |
|
|
Dumping
at Sea Ordinance (DASO) Permit to dump materials (Category L) at sea |
EP/MD/22‐028 |
02/08/2021 - 01/02/2022 |
|
The status for all environmental aspects is presented in Table 1.3.
|
Parameters |
Status |
|
Water Quality |
|
|
Baseline Monitoring under EM&A Manual |
The baseline water quality monitoring
was conducted between 12 May 2020 to 6 Jun 2020 |
|
Impact Monitoring |
On-going |
|
Noise |
|
|
Baseline Monitoring |
The baseline noise monitoring result has been reported in Baseline
Monitoring Report and submitted to EPD under
EP Condition 3.4 |
|
Impact Monitoring |
On-going |
|
Waste Management |
|
|
Mitigation
Measures in Waste Monitoring Plan |
On-going |
|
Landfill Gas |
|
|
Regular Monitoring when Construction Works are within the 250m Consultation Zone |
In this reporting period, 1 time of landfill gas monitoring was recorded at Wan Po Road (Ch1+360
-Ch1+513). No exceedance of action
and limit levels for methane, oxygen and
carbon dioxide was observed. Monitoring was
conducted during excavations at 1m depth or more within the consultation zone
and whenever workers entered the excavation on the day. |
|
Environmental
Audit |
|
|
Site Inspection covering Measures of
Air Quality, Noise
Impact, Water Quality, Waste, Ecological
Quality, Fisheries, Landscape and Visual |
On-going |
Other than the EM&A work by ET, environmental briefings, trainings and regular environmental management meetings were conducted, in order to enhance environmental awareness and closely monitor the environmental performance of the contractors.
The EM&A programme has been implemented in accordance with the recommendations presented in the approved EIA Report and the EM&A Manual. A summary of implementation status of the environmental mitigation measures for the construction phase of the Contract during the reporting period is provided in Appendix C.
2.1. MONITORING REQUIREMENTS
To ensure no adverse noise impact, noise monitoring is recommended to be carried out within 300m radius from the nearby noise sensitive receivers (NSRs), during construction phase. The NSRs selected as monitoring station are (i) NSR4 -Creative Secondary School, (ii) NSR24 -PLK Laws Foundation College, and (iii) NSR31 -School of Continuing and Professional Studies -CUHK respectively.
In accordance with the EM&A Manual, baseline noise level at the noise monitoring stations were established as presented in the Baseline Monitoring Report. Impact noise monitoring will be conducted once per week in the form of 30-minutes measurements Leq, L10 and L90 levels recorded at each monitoring station between 0700 and 1900 on normal weekdays.
Referring to EM&A manual Section 4.1.2, the impact noise monitoring should be carried out at all the designated monitoring stations when there are contract-related construction activities undertaken within a radius of 300m from the monitoring stations.
No impact monitoring for noise impact was conducted in the reporting month due to the overly distant monitoring station from the works location, where they were farther than 1 km from the closest monitoring station NSR4 to the works location.
Impact noise monitoring will be conducted weekly in the reporting period between 0700-1900 on normal weekdays. Construction works would follow stipulations of the valid Construction Noise Permits if works had to be conducted during restricted hours or public holidays.
Construction noise level were measured in terms of the A-weighted equivalent continuous sound pressure level (LAeq). Leq 30min was used as the monitoring parameter for the time period between 0700 and 1900 on normal weekdays. Table 2.1 summarizes the monitoring parameters, frequency and duration of the impact noise monitoring.
|
Time |
Duration |
Interval |
Parameters |
|
Daytime: 0700-1900 |
Day time: 0700-1900 (during normal
weekdays) |
Continuously in Leq 5min/Leq 30min (average of 6 consecutive Leq 5min) |
Leq 30min L10 30min & L90 30min |
2.2. MONITORING LOCATIONS
The monitoring locations should normally be made at a point 1m from the exterior of the NSRs building façade and be at a position 1.2m above the ground. A correction of +3dB(A) should be made to the free-field measurements.
According to the environmental findings detailed in the EIA report and Baseline Monitoring Report, the designated locations for the construction noise monitoring are listed in Table 2.2 below.
|
NSR ID |
Noise Sensitive Receivers |
Monitoring Location |
Position |
|
NSR 4 |
Creative Secondary School |
Roof Floor |
1 m from facade |
|
NSR 24 |
PLK Laws Foundation College |
Pedestrian Road on Ground Floor |
Free-field |
|
NSR 31 |
School of Continuing and Professional Studies - CUHK |
Roof Floor |
1 m from facade |
Three noise monitoring locations for impact monitoring at the nearby sensitive receivers are shown in Figure 2.1-2.3.


2.3. IMPACT MONITORING METHODOLOGY
Integrated sound level meter shall be used for the noise monitoring. The meter shall be in compliance with the International Electrotechnical Commission Publications 651: 1979 (Type 1) and 804: 1985 (Type 1) specifications. Immediately prior to and following each noise measurement the accuracy of the sound level meter shall be checked using an acoustic calibrator generating a known sound pressure level at a known frequency. Measurements may be accepted as valid only if the calibration levels before and after the noise measurements agree to within 1.0 dB(A). Calibration certificates of the instruments used to be shown at Appendix F are intentionally left blank since no impact monitoring equipment was used in the reporting month.
Noise measurements shall not be made in the presence of fog, rain, wind with a steady speed exceeding 5 m/s or wind with gusts exceeding 10 m/s. The wind speed shall be checked with a portable wind speed meter capable of measuring the wind speed in m/s.
|
Equipment |
Brand and Model |
Detection Limit |
|
Sound Level Meter |
Nti XL2 |
30-130 dB(A) |
|
Sound Level Meter
Calibrator |
Rion NC-74 |
Nil |
|
Pocket Wind Meter
Anemometer |
Kestrel 1000 Wind
Meter |
Nil |
2.4. ACTION AND LIMIT LEVELS
The Action/Limit Levels are in line with the criteria of Practice Note for Professional Persons (ProPECC PN 2/93) ¡§Noise from Construction Activities -Non-statutory Controls¡¨ and Technical Memorandum on Environmental Impact Assessment Process issued by HKSAR Environmental Protection Department [¡§EPD¡¨] under the Environmental Impact Assessment Ordinance, Cap 499, S.16 are presented in Table 2.4.
|
Time Period |
Action |
Limit (dB(A)) |
|
0700-1900 on normal
weekdays |
When one documented complaint is received from any one of the noise sensitive receivers |
-
70 dB(A)
for school and -
65 dB(A) during
examination period |
Notes: Limits
specified in the GW-TM and IND-TM for construction and operation noise,
respectively.
If exceedances were found during noise monitoring, the actions in accordance with the Event and Action Plan shall be carried out according to Appendix E.
2.5. MONITORING RESULTS AND OBSERVATIONS
Referring to EM&A manual Section 4.1.2, the impact noise monitoring should be carried out when there are Contract-related construction activities undertaken within a radius of 300m from the monitoring stations. No monitoring station was located within a radius of 300m of the Contract site as shown in Figure 2.4, no impact monitoring for noise impact was conducted in the reporting period.

In accordance with the recommendations of the EIA, water quality EM&A is required during dredging for the submarine pipelines and, during operation phase. In addition, baseline water quality monitoring will be required prior to the commencement of marine construction activities. The following Section provides details of the water quality monitoring to be undertaken by the Environmental Team (ET) to verify the distance of sediment and brine plume dispersion and to identify whether the potential exists for any indirect impacts to occur to ecological sensitive receivers. The water quality monitoring programme will be carried out to allow any deteriorating water quality to be readily detected and timely action taken to rectify the situation. The status and locations of water quality sensitive receivers and the marine works location may change after issuing this Document. If required, the ET in consultation with IEC will propose updated monitoring locations and seek approval from EPD.
Water quality monitoring for the Contract can be divided into the following stages:
-
Dredging activities during construction phase;
-
Discharge of effluent from main disinfection during construction phase;
-
Operation phase -first year upon commissioning; and,
-
Continuous monitoring of effluent quality.
In addition, the marine works contractor is required to complete a silt curtain efficiency test for the combined use of floating silt curtain type and cage type silt curtain for dredging at seawater intake to confirm the silt curtain reduction efficiency assumptions of the assessment. The details of testing plan together with the silt curtain deployment plan shall be submitted by the ET to seek approval from the IEC and EPD.
With the onset of marine dredging activities in late April at Outfall Shaft Area, a silt curtain efficiency test has been conducted at the Outfall Shaft Area on 16th April 2021 at 6 monitoring intervals (08:00, 10:00, 12:00, 14:00, 16:00, 18:00). The baseline monitoring event has been conducted on 10th April 2021 at 5 monitoring locations. Testing protocols and methodologies had followed the guidelines as presented in the EM&A Manual Annex C. Detailed analysis of in-situ and laboratory data was presented in a separate report which has been submitted to EPD after approval by IEC on 31 May 2021. The overall Silt Removal Effectiveness at Outfall Shaft Area for the combined used of cage and floating type silt curtains was 95.28%.
3.1.1.
WATER QUALITY PARAMETERS
The parameters that have been selected for measurement in situ and in the laboratory are those that were either determined in the EIA to be those with the most potential to be affected by the construction works or are a standard check on water quality conditions. Parameters to be measured in the baseline monitoring are listed in Table 3.1.
|
Parameters |
Unit |
Abbreviation |
|
In-situ measurements |
||
|
Dissolved oxygen |
mg/L |
DO |
|
Temperature |
oC |
- |
|
pH |
- |
- |
|
Turbidity |
NTU |
- |
|
Salinity |
0/00 |
- |
|
Total Residual Chlorine NOTE1 |
mg/L |
TRC |
|
Laboratory
measurements |
||
|
Suspended Solids |
mg/L |
SS |
|
Iron-Soluble NOTE2 |
mg/L |
Fe |
|
Anti-scalant as Reactive Phosphorus
NOTE2 |
mg/L |
PO4 as P- |
NOTE 1: Monitoring of TRC will be conducted when cleaning and sterilization of the new freshwater main is carried out.
NOTE 2: The testing methods shall be submitted to EPD for approval prior to the commencement of monitoring programme
In addition to the water quality parameters, other relevant data will also be measured and recorded in Water Quality Monitoring Logs, including the location of the sampling stations, water depth, time, weather conditions, sea conditions, tidal stage, current direction and velocity, special phenomena and work activities undertaken around the monitoring and works area that may influence the monitoring results.
3.1.2.
MONITORING EQUIPMENT
For water quality monitoring, the following equipment will be used:
Dissolved Oxygen and Temperature Measuring Equipment - The instrument will be a portable, weatherproof dissolved oxygen measuring instrument complete with cable, sensor, comprehensive operation manuals, and will be operable from a DC power source. It will be capable of measuring: dissolved oxygen levels in the range of 0 - 20 mg/L and 0 - 200% saturation; and a temperature of 0- 45 degrees Celsius. It shall have a membrane electrode with automatic temperature compensation complete with a cable of not less than 35 m in length. Sufficient stocks of spare electrodes and cables shall be available for replacement where necessary (e.g. YSI model 59 DO meter, YSI 5739 probe, YSI 5795A submersible stirrer with reel and cable or an approved similar instrument).
Turbidity Measurement Equipment - The instrument will be a portable, weatherproof turbidity- measuring unit complete with cable, sensor and comprehensive operation manuals. The equipment will be operated from a DC power source, it will have a photoelectric sensor capable of measuring turbidity between 0 - 1000 NTU and will be complete with a cable with at least 35 m in length (for example Hach 2100P or an approved similar instrument).
Salinity Measurement Instrument - A portable salinometer capable of measuring salinity in the range of 0 - 40 ppt will be provided for measuring salinity of the water at each monitoring location.
Water Depth Gauge -A portable, battery-operated echo sounder (for example Seafarer 700 or a similar approved instrument) will be used for the determination of water depth at each designated monitoring station. This unit will preferably be affixed to the bottom of the work boat if the same vessel is to be used throughout the monitoring programme. The echo sounder should be suitably calibrated. The ET shall seek approval for their proposed equipment with the client prior to deployment.
Current Velocity and Direction -No specific equipment is recommended for measuring the current velocity and direction. The environmental contractor shall seek approval of their proposed equipment with the client prior to deployment.
Positioning Device -A Global Positioning System (GPS) shall be used during monitoring to allow accurate recording of the position of the monitoring vessel before taking measurements. The Differential GPS, or equivalent instrument, should be suitably calibrated at appropriate checkpoint (e.g. Quarry Bay Survey Nail) to verify that the monitoring station is at the correct position before the water quality monitoring commence.
Water Sampling Equipment - A water sampler, consisting of a PVC or glass cylinder of not less than two litres, which can be effectively sealed with cups at both ends, will be used (e.g. Kahlsico Water Sampler 13SWB203 or an approved similar instrument). The water sampler will have a positive latching system to keep it open and prevent premature closure until released by a messenger when the sampler is at the selected water depth.
Total Residual
Chlorine for Discharge
of Sterilization Water - Total
residual chlorine (TRC) shall be measured
in-situ using a handheld colorimeter
with its testing toolkits.
3.1.3.
SAMPLING / TESTING PROTOCOLS
All in situ monitoring instruments will be checked, calibrated and certified by a laboratory accredited under HOKLAS or any other international accreditation scheme before use, and subsequently re- calibrated at monthly intervals throughout the stages of the water quality monitoring. Responses of sensors and electrodes will be checked with certified standard solutions before each use.
On-site calibration of field equipment shall follow the ¡§Guide to On-Site Test Methods for the Analysis of Waters¡¨, BS 1427: 2009. Sufficient stocks of spare parts shall be maintained for replacements when necessary. Backup monitoring equipment shall also be made available so that monitoring can proceed uninterrupted even when equipment is under maintenance, calibration etc.
3.1.4.
LABORATORY MEASUREMENT AND ANALYSIS
All laboratory work shall be carried out in a HOKLAS accredited laboratory. Sufficient volume of each water sample shall be collected at the monitoring stations for carrying out the laboratory analyses. Using chain of custody forms, collected water samples will be transferred to an HOKLAS accredited laboratory for immediate processing. The determination work shall start within the next working day after collection of the water samples. The laboratory measurements shall be provided to the client within 5 working days of the sampling event. Analytical methodology and sample preservation of other parameters will be based on the latest edition of Standard Methods for the Examination of Waste and Wastewater published by APHA, AWWA and WPCF and methods by USEPA, or suitable method in accordance with requirements of HOKLAS or another internationally accredited scheme. The submitted information should include pre-treatment procedures, instrument use, Quality Assurance/Quality Control (QA/QC) details (such as blank, spike recovery, number of duplicate samples per-batch etc), detection limits and accuracy. The QA/QC details shall be in accordance with requirements of HOKLAS or another internationally accredited scheme.
Parameters for laboratory measurements, their standard methods and their detection limits are presented in Table 3.2.
|
Parameters |
Standard Methods |
Detection Limit |
Reporting Limit |
Precision |
|
Dissolved
oxygen (mg/L) |
Instrumental, CTD |
0.1 |
- |
+-25% |
|
Temperature (oC) |
Instrumental, CTD |
0.1 |
- |
+-25% |
|
pH |
Instrumental, CTD |
0.1 |
- |
+-25% |
|
Turbidity (NTU) |
Instrumental, CTD |
0.1 |
- |
+-25% |
|
Salinity (0/00) |
Instrumental, CTD |
0.1 |
- |
+-25% |
|
Suspended Solids (mg/L) |
APHA 17th Ed 2540D |
1.0 |
2.0 |
+-17% |
|
Total Residual Chlorine (mg/L) |
APHA 21st Ed 4500 -Cl G NOTE1 |
0.1NOTE1 |
0.2NOTE1 |
+-10% NOTE1 |
|
Iron-soluble |
USEPA 6010C NOTE 1 |
0.2NOTE1 |
0.2NOTE1 |
+-25%NOTE1 |
|
Anti-scalant as Reactive phosphorus |
APHA 4500P: B&F NOTE1 |
0.01NOTE1 |
0.01NOTE1 |
+-25%NOTE1 |
NOTE1: The testing methods, Quality Assurance/Quality Control (QA/QC) details, detection limits and accuracy shall be submitted to EPD for approval prior to the commencement of monitoring programme.
If exceedances were found during water monitoring, the actions in accordance with the Event and Action Plan shall be carried out according to Appendix G.
3.1.5.
MONITORING LOCATION
The water quality monitoring locations for baseline are in accordance with the EM&A Manual and detailed in Table 3.3 below. A schedule for water quality monitoring shall be prepared by the ET and approved by IEC and EPD prior to the commencement of the monitoring.
|
Station |
Easting |
Northing |
Description |
|
CE |
843550 |
815243 |
Upstream control station at ebb tide |
|
CF |
846843 |
810193 |
Upstream control station at flood tide |
|
WSR1 |
846864 |
812014 |
Ecological sensitive receiver at Tung Lung Chau |
|
WSR2 |
847645 |
812993 |
Fisheries sensitive receiver at Tung Lung Chau |
|
WSR3 |
848023 |
813262 |
Ecological sensitive receiver at Tung Lung Chau |
|
WSR4 |
847886 |
814154 |
Ecological sensitive receiver at Tai Miu Wan |
|
WSR16 |
845039 |
815287 |
Ecological sensitive receiver at Fat Tong Chau |
|
WSR33 |
847159 |
814488 |
Ecological sensitive receiver at Tai Miu Wan |
|
WSR36 |
846878 |
814081 |
Ecological sensitive receiver at Kwun Tsai |
|
WSR37 |
846655 |
813810 |
Ecological sensitive receiver at Tit Cham Chau |
|
NF1 |
846542 |
813614 |
Edge of mixing zone, ~ 200m west of outfall diffuser |
|
NF2 |
846942 |
813614 |
Edge of mixing zone, ~ 200m east of outfall diffuser |
|
F3 |
846742 |
813414 |
Edge of mixing zone, ~ 200m south of outfall diffuser |
WSR1 to WSR37 were identified in accordance with Annex 14 of the EIAO-TM as well as Clause 3.4.4.2 of the Environmental Impact Assessment Study Brief for Desalination Plant at Tseung Kwan O (No. ESB-266/2013). WSR1 to WSR3 are sited near the Tung Lung Chau Fish Culture Zone; WSR16 and WSR36 are sited near the coral assemblages along the coastlines of Fat Tong Chau and Kwun Tsai respectively; WSR 4 and WSR33 are sited near the Coastal Protection Area and coral assemblages in waters of Tai Miu Wan; WSR37 is sited near the fisheries resource including spawning and nursery grounds at the coastal water of Tit Cham Chau.

3.1.6.
SAMPLING FREQUENCY
During periods when there
are dredging works, impact monitoring should be undertaken at the monitoring stations as shown in Figure 3.1 and Table 3.3 three days per week during the construction
phase after the commencement of marine construction works and dredging
activities. Monitoring at each
station would be undertaken at both mid-ebb and mid-flood tides on the same day. The tidal range selected
for the baseline monitoring will be at least 0.5 m for both flood and ebb tides
as far as practicable. The interval between two sets of monitoring would not be
less than 36 hours. The monitoring
frequency would be increased in the case of exceedances of Action/Limit Levels if considered necessary by ET. Monitoring frequency
would be maintained as far as practicable.
The monitoring location/position, time, water depth, water temperature, salinity, weather conditions, sea conditions, tidal stage, special phenomena and work underway at the marine works site will be recorded.
3.1.7.
SAMPLING DEPTHS & REPLICATION
For baseline monitoring, each station will be sampled and measurements/ water samples will be taken at three depths, 1 m below the sea surface, mid-depth and 1 m above the seabed. For stations that are less than 3 m in depth, only the mid depth sample shall be taken. For stations that are less than 6 m in depth, only the surface and seabed sample shall be taken. For in situ measurements, duplicate readings shall be made at each water depth at each station. Duplicate water samples shall be collected at each water depth at each station. All observations and results were recorded in the data record sheets in Appendix L.
3.1.8.
ACTION AND LIMIT LEVELS
The Action and Limit Levels have been set based on the derivation criteria specified in the EM&A Manual, as shown in Table 3.4 below. Based on the baseline water quality monitoring data and the derivation criteria specified in Table 3.4, the Action/Limit Levels have been derived and are presented in Table 3.5.
3.2. MONITORING PROGRAMME
The ET of the Contract had conducted the baseline water monitoring between 12 May 2020 to 6 Jun 2020 at the thirteen designated monitoring stations and the six designated monitoring at waters near TKO in accordance with the EM&A Manual and Contract Specification respectively. The monitoring results was presented in Baseline Water Quality Monitoring Report separately.
The commencement of marine construction and dredging activities for the Contract have been conducted in March and April 2021 respectively.
|
Parameters |
Action |
Limit |
|||
|
Construction
Phase Impact Monitoring |
|||||
|
DO in mg/L |
Surface and Middle 5%-ile of baseline data for surface and middle layer Bottom 5%-ile of baseline data for bottom layers Tung Lung Chau Fish Culture
Zone 5.1 mgL-1 or level
at control station (whichever the
lower) |
Surface
and Middle 4 mg L-1 Bottom 2 mg L-1 Tung Lung Chau Fish Culture Zone 5.0 mgL-1 or level at control station (whichever the lower) |
|||
|
SS
in mg/L (Depth- averaged) |
≥ 95 %-ile
of baseline data or 20% exceedance
of value at any impact station
compared with corresponding data
from control station |
≥ 99 %-ile
of baseline data or 30% exceedance
of value at any impact station
compared with corresponding data
from control station |
|||
|
Turbidity
in NTU (Depth-averaged) |
≥ 95 %-ile
of baseline data or 20% exceedance
of value at any impact station
compared with corresponding data
from control station |
≥ 99 %-ile
of baseline data or 30% exceedance
of value at any impact station
compared with corresponding data
from control station |
|||
|
First-year
Operation Phase Monitoring |
|||||
|
DO
in mg/L |
Surface and Middle 5%-ile of baseline data for surface and middle layer Bottom 5%-ile of baseline data for bottom layers Tung Lung Chau Fish Culture
Zone 5.1
mgL-1 or level at control station (whichever the lower) |
Surface
and Middle 4 mg L-1 Bottom 2 mg L-1 Tung Lung Chau Fish Culture Zone 5.0
mgL-1 or level at control station (whichever the lower) |
|||
|
SS
in mg/L (Depth- averaged) |
≥ 95 %-ile
of baseline data or 20% exceedance
of value at any impact station
compared with corresponding data
from control station |
≥ 99 %-ile
of baseline data or 30% exceedance
of value at any impact station
compared with corresponding data
from control station |
|
|||
|
Turbidity
in NTU (Depth-averaged) |
≥ 95 %-ile
of baseline data or 20% exceedance
of value at any impact station
compared with corresponding data
from control station |
≥ 99 %-ile
of baseline data or 30% exceedance
of value at any impact station
compared with corresponding data
from control station |
|
|||
|
Salinity
in PSU (Depth-averaged) |
109%
of baseline level or 9% exceedance
of value at any impact station
compared with corresponding data
from control station |
110%
of baseline level or 10% exceedance
of value at any impact station
compared with corresponding data
from control station |
|
|||
|
Iron
in mg/L (Depth-averaged) |
0.3 mgL-1 |
0.3 mgL-1 |
|
|||
|
Parameters |
Action |
Limit |
|
|||
|
Construction
Phase Impact Monitoring |
|
|||||
|
DO in mg/L |
Surface and Middle |
Surface and Middle |
|
|||
|
|
7.30 mg L-1 |
4 mg L-1 |
|
|||
|
|
Bottom |
Bottom |
|
|||
|
|
7.31 mg L-1 |
2 mg L-1 |
|
|||
|
|
Tung Lung Chau Fish Culture Zone |
Tung Lung Chau Fish Culture Zone |
|
|||
|
|
5.1 mgL-1 or level at control
station |
5.0 mgL-1 or level
at control station |
|
|||
|
|
(whichever the lower) |
(whichever the lower) |
|
|||
|
SS in mg/L |
5.00 mg L-1 or 20% exceedance of |
6.00 mg L-1 or 30%
exceedance of |
|
|||
|
(Depth-averaged) |
value at any impact station |
value at any impact station |
|
|||
|
|
compared with corresponding data |
compared with corresponding data |
|
|||
|
|
from control
station |
from control
station |
|
|||
|
Turbidity in NTU |
2.41 NTU or 20% exceedance of |
2.84 NTU or 30% exceedance of |
|
|||
|
(Depth-averaged) |
value at any impact station |
value at any impact station |
|
|||
|
|
compared with corresponding data |
compared with corresponding data |
|
|||
|
|
from control
station |
from control
station |
|
|||
|
First-year
Operation Phase Monitoring iv |
|
|||||
|
DO
in mg/L |
Surface and Middle |
Surface and Middle |
|
|||
|
|
7.30 mg L-1 |
4 mg L-1 |
|
|||
|
|
Bottom |
Bottom |
|
|||
|
|
7.31 mg L-1 |
2 mg L-1 |
|
|||
|
|
Tung Lung Chau Fish Culture Zone |
Tung Lung Chau Fish Culture Zone |
|
|||
|
|
5.1 mgL-1 or level at control
station |
5.0 mgL-1 or level
at control station |
|
|||
|
|
(whichever the lower) |
(whichever the lower) |
|
|||
|
SS in mg/L |
5.00 mg L-1 or 20% exceedance of |
6.00 mg L-1 or 30%
exceedance of |
|
|||
|
(Depth-averaged) |
valueat any impact station |
value at any impact station |
|
|||
|
|
compared with corresponding data |
compared with corresponding data |
|
|||
|
|
from control
station |
from control
station |
|
|||
|
Turbidity in NTU (Depth-averaged) |
2.41 NTU or 20% exceedance of value at any impact
station compared with
corresponding data from control
station |
2.84 NTU or 30% exceedance of value at any impact
station compared with corresponding data from control
station |
|
||||
|
Salinity in PSU (Depth-averaged) |
34.28 PSU or 9% exceedance of value at any impact
station compared with corresponding data from control station |
34.60 PSU or 10% exceedance of value
at any impact
station compared with corresponding data from control station |
|||||
|
Iron
in mg/L (Depth-averaged) |
0.3 mgL-1 |
0.3 mgL-1 |
|||||
Notes:
i.
"Depth-averaged" is calculated by taking
the arithmetic means of reading
of all three depths.
ii.
For DO, non-compliance of the water
quality limits occurs when monitoring
result is lower than the limits.
iii.
For Turbidity, SS, iron and Salinity, non-compliance
of the water quality limits occurs when monitoring result is higher than the
limits.
iv.
For the Action and Limit Levels adopted
during First-year Operation
Phase Monitoring, further review would be made according to the EM&A Manual during Operation Phase.
3.3. MONITORING RESULTS
AND OBSERVATIONS
General water quality monitoring at the ten monitoring stations (CE, CF, WSR1, WSR2, WSR3, WSR4, WSR16, WSR33, WSR36 and WSR37) were conducted on 2, 4, 7, 9, 11, 14, 16, 18, 21, 23, 25, 28 and 30 December 2021.
Eighty-seven (87) of the general water quality monitoring results of suspended solids (SS) obtained had exceeded the Action Level. Sixty-one (61) of the general water quality monitoring results of SS obtained during the reporting period had exceeded the Limit Level.
Details of the exceedance are presented in Appendix O.
Investigation on the reason of exceedance has been carried out, where the exceedances of SS on 02/12, 04/12, 09/12, 11/12, 14/12, 16/12, 18/12, 21/12, 23/12, 25/12, 28/12 and 30/12 were
concluded to be unrelated
to the Contract as detailed
in the Incident Reports on Action Level or Limit Level Non-compliance along with supporting materials in Appendix O.
Monitoring results of 6 key parameters: Salinity, DO, turbidity, SS, pH and temperature in this reporting, are summarized in Table 3.6 and Table 3.7, and detailed results are presented in Appendix L.
|
Locations |
Parameters |
|||||||
|
Salinity (ppt) |
Dissolved Oxygen (mg/L) |
pH |
Turbidity (NTU) |
Suspended Solids (mg/L) |
Temp.(oC) |
|||
|
Surface & Middle |
Bottom |
|||||||
|
CE |
Avg. |
32.30 |
8.58 |
8.59 |
8.27 |
3.6 |
4.87 |
23.5 |
|
Min. |
30.60 |
7.89 |
7.90 |
8.05 |
2.7 |
2.50 |
22.1 |
|
|
Max. |
33.43 |
9.82 |
9.75 |
8.42 |
5.2 |
12.00 |
25.8 |
|
|
CF |
Avg. |
32.35 |
8.49 |
8.45 |
8.34 |
4.2 |
5.25 |
23.5 |
|
Min. |
30.83 |
7.80 |
7.79 |
8.08 |
3.1 |
2.50 |
21.7 |
|
|
Max. |
33.56 |
9.72 |
9.62 |
8.56 |
6.4 |
14.00 |
25.9 |
|
|
WSR1 |
Avg. |
32.37 |
8.69 |
8.64 |
8.25 |
2.7 |
5.88 |
23.5 |
|
Min. |
30.25 |
8.16 |
7.99 |
8.08 |
1.3 |
2.50 |
21.7 |
|
|
Max. |
33.78 |
9.16 |
9.15 |
8.47 |
4.1 |
13.00 |
25.5 |
|
|
WSR2 |
Avg. |
32.30 |
8.59 |
8.57 |
8.28 |
2.8 |
5.31 |
23.6 |
|
Min. |
30.40 |
8.01 |
8.00 |
8.11 |
1.4 |
2.50 |
22.3 |
|
|
Max. |
34.03 |
9.34 |
9.35 |
8.47 |
4.0 |
12.00 |
25.6 |
|
|
WSR3 |
Avg. |
32.36 |
8.66 |
8.65 |
8.31 |
2.7 |
6.51 |
23.5 |
|
Min. |
31.08 |
7.67 |
7.69 |
8.10 |
1.6 |
2.50 |
21.9 |
|
|
Max. |
33.27 |
9.39 |
9.41 |
8.52 |
4.6 |
23.00 |
25.8 |
|
|
WSR4 |
Avg. |
32.19 |
8.47 |
8.45 |
8.29 |
2.7 |
6.86 |
23.6 |
|
Min. |
30.98 |
7.72 |
7.69 |
8.06 |
1.6 |
2.50 |
22.1 |
|
|
Max. |
33.41 |
9.11 |
9.18 |
8.50 |
4.2 |
26.00 |
25.9 |
|
|
WSR16 |
Avg. |
32.22 |
8.75 |
8.75 |
8.29 |
2.9 |
6.42 |
23.6 |
|
Min. |
30.99 |
8.08 |
8.02 |
8.06 |
1.7 |
3.00 |
22.0 |
|
|
Max. |
33.82 |
9.52 |
9.53 |
8.45 |
4.3 |
26.00 |
25.6 |
|
|
WSR33 |
Avg. |
32.09 |
8.63 |
8.61 |
8.29 |
2.6 |
6.92 |
23.6 |
|
Min. |
30.50 |
8.02 |
8.01 |
8.09 |
1.8 |
3.00 |
22.0 |
|
|
Max. |
33.19 |
9.28 |
9.25 |
8.57 |
3.6 |
24.00 |
26.1 |
|
|
WSR36 |
Avg. |
32.44 |
8.61 |
8.58 |
8.29 |
2.9 |
7.03 |
23.6 |
|
Min. |
31.18 |
8.00 |
7.95 |
8.11 |
1.6 |
2.50 |
22.1 |
|
|
Max. |
33.75 |
9.17 |
9.11 |
8.56 |
4.4 |
24.00 |
26.2 |
|
|
WSR37 |
Avg. |
32.20 |
8.68 |
8.68 |
8.29 |
2.7 |
7.95 |
23.6 |
|
Min. |
31.19 |
7.85 |
7.93 |
8.10 |
1.7 |
3.00 |
21.9 |
|
|
Max. |
33.52 |
9.50 |
9.51 |
8.49 |
4.3 |
25.00 |
26.0 |
|
Notes:
i.
"Avg", ¡§Min¡¨ and ¡§Max¡¨ is the average,
minimum and maximum respectively of the data from measurements conducted under
mid- flood and mid-ebb tides at three
water depths, except that of DO where the data for ¡§Surface & Middle¡¨ and
¡§Bottom¡¨ are calculated separately.
ii.
Measurement data of Suspending Solids
would be rounding
to 2.5mg/L if the value was less than 2.5mg/L
to facilitate data analysing.
|
Locations |
Parameters |
|||||||
|
Salinity (ppt) |
Dissolved Oxygen
(mg/L) |
pH |
Turbidity (NTU) |
Suspended Solids (mg/L) |
Temp.(oC) |
|||
|
Surface & Middle |
Bottom |
|||||||
|
CE |
Avg. |
32.06 |
8.46 |
8.45 |
8.26 |
4.2 |
6.88 |
23.7 |
|
Min. |
30.49 |
7.67 |
7.78 |
8.05 |
3.1 |
2.50 |
21.7 |
|
|
Max. |
33.68 |
9.17 |
9.15 |
8.45 |
5.6 |
25.00 |
25.8 |
|
|
CF |
Avg. |
32.08 |
8.39 |
8.39 |
8.23 |
3.4 |
7.96 |
23.7 |
|
Min. |
30.48 |
7.80 |
7.66 |
7.89 |
2.3 |
2.50 |
21.7 |
|
|
Max. |
33.73 |
9.23 |
9.23 |
8.47 |
4.4 |
27.00 |
25.8 |
|
|
WSR1 |
Avg. |
31.80 |
8.64 |
8.63 |
8.26 |
2.6 |
8.23 |
23.8 |
|
Min. |
29.75 |
8.08 |
8.05 |
7.86 |
1.7 |
2.50 |
22.0 |
|
|
Max. |
33.32 |
9.24 |
9.18 |
8.44 |
3.7 |
29.00 |
26.2 |
|
|
WSR2 |
Avg. |
32.17 |
8.62 |
8.62 |
8.27 |
2.6 |
6.07 |
23.7 |
|
Min. |
30.53 |
7.43 |
7.78 |
8.01 |
1.6 |
2.50 |
21.8 |
|
|
Max. |
33.81 |
9.19 |
9.18 |
8.43 |
4.0 |
13.00 |
26.3 |
|
|
WSR3 |
Avg. |
32.10 |
8.61 |
8.60 |
8.25 |
2.8 |
7.53 |
23.7 |
|
Min. |
30.56 |
7.65 |
7.59 |
7.86 |
1.8 |
3.00 |
22.1 |
|
|
Max. |
33.28 |
9.20 |
9.06 |
8.44 |
4.0 |
25.00 |
26.1 |
|
|
WSR4 |
Avg. |
32.01 |
8.51 |
8.53 |
8.29 |
2.6 |
7.19 |
23.7 |
|
Min. |
30.19 |
7.50 |
7.37 |
8.03 |
1.8 |
3.00 |
21.9 |
|
|
Max. |
33.56 |
9.07 |
8.97 |
8.44 |
3.8 |
22.00 |
26.0 |
|
|
WSR16 |
Avg. |
32.09 |
8.61 |
8.60 |
8.28 |
2.8 |
6.63 |
23.7 |
|
Min. |
30.62 |
8.09 |
8.12 |
8.09 |
1.6 |
2.50 |
21.8 |
|
|
Max. |
33.68 |
9.18 |
9.18 |
8.47 |
4.1 |
29.00 |
26.0 |
|
|
WSR33 |
Avg. |
32.16 |
8.57 |
8.57 |
8.31 |
2.7 |
7.41 |
23.7 |
|
Min. |
30.52 |
8.02 |
8.00 |
8.10 |
1.7 |
3.00 |
21.8 |
|
|
Max. |
33.53 |
9.38 |
9.19 |
8.46 |
4.0 |
26.00 |
26.1 |
|
|
WSR36 |
Avg. |
32.00 |
8.53 |
8.55 |
8.31 |
2.7 |
8.85 |
23.8 |
|
Min. |
30.19 |
7.77 |
7.87 |
7.91 |
1.8 |
2.50 |
21.8 |
|
|
Max. |
33.14 |
9.19 |
9.49 |
8.48 |
3.7 |
28.00 |
26.1 |
|
|
WSR37 |
Avg. |
31.98 |
8.63 |
8.65 |
8.29 |
2.7 |
8.19 |
23.6 |
|
Min. |
30.79 |
7.59 |
7.54 |
8.04 |
1.8 |
2.50 |
22.0 |
|
|
Max. |
33.03 |
9.40 |
9.27 |
8.47 |
3.9 |
27.00 |
26.2 |
|
Notes:
i.
"Avg", ¡§Min¡¨ and ¡§Max¡¨ is the average,
minimum and maximum respectively of the data from measurements conducted under
mid- flood and mid-ebb tides at three
water depths, except that of DO where the data for ¡§Surface & Middle¡¨ and
¡§Bottom¡¨ are calculated separately.
ii.
Measurement data of Suspending Solids
would be rounding
to 2.5mg/L if the value was less than 2.5mg/L
to facilitate data analysing.
The waste generated from
this Contract includes inert construction and demolition (C&D) materials,
and non-inert C&D materials. Non- inert C&D
materials are made up of general refuse, vegetative wastes and recyclable wastes such as plastics and paper/cardboard packaging
waste. Steel materials generated from the Contract are also grouped into
non-inert C&D materials as the materials were not disposed of with other inert C&D materials. With reference to relevant handling
records and trip tickets of this Contract,
the quantities of different types of
waste generated in the reporting month are summarised
in Table 4.1. Details of cumulative
waste management data are presented as a waste flow table in Appendix
H.
|
Reporting Month |
Actual
Quantities of Inert C&D Materials Generated Monthly |
Actual
Quantities of C&D Wastes Generated Monthly |
|||||||||
|
Total Quantity Generated |
Hard Rock and Large Broken
Concrete |
Reused in the Contract |
Reused in other Projects |
Disposed as Public Fill |
Imported Fill |
Metals |
Paper / cardboard packaging |
Plastics (see Note) |
Chemical Waste |
Others, e.g.
general refuse |
|
|
(in
,000kg) |
(in
,000kg) |
(in
,000kg) |
(in
,000kg) |
(in
,000kg) |
(in
,000kg) |
(in
,000kg) |
(in
,000kg) |
(in
,000kg) |
(in
,000kg) |
(in
,000kg) |
|
|
December 2021* |
457.090 |
0.000 |
0.000 |
0.000 |
457.090 |
0.000 |
0.000 |
0.130 |
0.030 |
0.000 |
131.270 |
Notes: (1) Plastics
refer to plastic
bottles / containers, plastic sheets / foam from packaging material
* The
data may be updated in the
next reporting month after final confirmation by the
end of the month.
5.1. MONITORING REQUIREMENT
In accordance with Section 11 of the EM&A Manual, monitoring of landfill gas is required for construction works within the 250m Consultation Zone. Part of the desalination plant and the indicative area of natural slope mitigation works fall within the SENT Landfill Extension Consultation Zone; and part of the 1,200 mm diameter fresh water mains along Wan Po Road falls within the SENT Landfill and SENT Landfill Extension Consultation Zones, TKO Stage II/III Restored Landfill and TKO Stage I Restored Landfill Consultation Zones.
5.2. MONITORING LOCATION
Monitoring of oxygen, methane, carbon dioxide and barometric pressure would be performed for excavations at 1m depth or more within the consultation Zone.
During construction of works within the consultation zones, excavations of 1m depth or more was monitored:
- At the ground surface before excavation commences;
- Immediately before any worker enters the excavation;
- At the beginning of each working day for the entire period the excavation remains open; and
- Periodically through the working day whilst workers are in the excavation.
For excavations between 300mm and 1m deep, measurements should be carried out:
- Directly after the excavation has been completed; and
- Periodically whilst the excavation remains open.
5.3. MONITORING PROGRAMME
Since part of the desalination plant (Wan Po Road and MIC compound/Basketball Court) and the indicative area of natural slope mitigation works fall within the SENT Landfill Extension Consultation Zone in this contract (Figure 5.1), landfill gas monitoring would be required for Wan Po Road and MIC compound/Basketball Court (Figure 5.2) if excavations were conducted at more than 300mm deep. Although SENT Landfill Extension has commenced operation since November 2021, no excavation works were conducted at MIC compound/Basketball Court. Hence no landfill gas monitoring would be scheduled for MIC compound/Basketball Court at the current stage. In this reporting period, 1 time of landfill gas monitoring was recorded at Wan Po Road (Ch1+360 -Ch1+513). No exceedance of action and limit levels for methane, oxygen and carbon dioxide was observed. Monitoring was conducted during excavations at 1m depth or more within the consultation zone and whenever workers entered the excavation on the day.
5.4. MONITORING LOCATION
The
area required to be monitored for landfill gas in the reporting period is shown
in Figure 5.2.
Figure 5.1 Overview of the SENT Extension Consultation Zone and the Contract Site Area

5.5. MONITORING PARAMETERS
LFG monitoring was carried out to identify any migration between the landfill and the Contract and to ensure the safety of the construction, operation and maintenance personnel working on-site, visitors and any other person within the Contract area.
The following parameters were monitored:
-
Methane.
-
Oxygen.
-
Carbon Dioxide.
-
Barometric Pressure.
Action and Limit Level are provided in Table 5.1.
Table 5.1 Action and Limit Level for Landfill Gas Monitoring Equipment
|
Parameters |
Action Level |
Limit Level |
|
Oxygen (O2) |
<19% O2 |
<19% O2 |
|
Methane (CH4) |
>10% LEL |
>80% LEL |
|
Carbon Dioxide (CO2) |
>0.5% CO2 |
>1.5% CO2 |
5.6.
MONITORING EQUIPMENT
Landfill Gas monitoring was carried out using intrinsically-safe, portable multi-gas monitoring instruments. The gas monitoring equipment is:
•
Complying with the Landfill
Gas Hazard Assessment Guidance Note as intrinsically safe;
•
Capable of continuous barometric pressure and gas pressure measurements;
•
Normally
operated in diffusion mode unless required for spot sampling, when it should be capable
of operating by means of
an aspirator or pump;
•
Having low battery, fault
and over range indication incorporated;
•
Capable of storing monitoring data, and shall be capable
of being downloaded directly;
•
Measure in the following ranges:
|
methane |
0-100% LOWER EXPLOSION LIMIT (LEL) AND 0-100% V/V; |
|
oxygen |
0-25% V/V; |
|
carbon dioxide |
0-5% v/v; and |
|
barometric pressure |
mBar (absolute) |
•
alarm (both audibly and visually) in the event that the concentrations of the following
are exceeded:
|
methane |
>10% LEL; |
|
oxygen |
<19% |
|
carbon dioxide |
>0.5% by volume |
|
barometric pressure |
mBar (absolute) |
Figure 5.2 Location Map for Landfill Gas Monitoring at Wan Po Road
![]() |
5.7. MONITORING RESULTS
AND OBSERVATIONS
In this reporting period, 1 time of landfill gas monitoring was recorded at Wan Po Road (Ch1+360 -Ch1+513). No exceedance of action and limit levels for methane, oxygen and carbon dioxide was observed. Monitoring was conducted during excavations at 1m depth or more within the consultation zone and whenever workers entered the excavation on the day.
6.
SUMMARY OF MONITORING EXCEEDANCE, COMPLAINTS, NOTIFICATION OF SUMMONS AND PROSECUTIONS
The Environmental Complaint Handling
Procedure is shown in below Figure 6.1:

No noise monitoring was conducted during the reporting period since there are no Contract-related construction activities undertaken within a radius of 300m from the monitoring locations.
General water quality monitoring at the ten monitoring stations (CE, CF, WSR1, WSR2, WSR3, WSR4, WSR16, WSR33, WSR36 and WSR37) were conducted on 2, 4, 7, 9, 11, 14, 16, 18, 21, 23, 25, 28 and 30 December 2021.
Eighty-seven (87) of the general water quality monitoring results of suspended solids (SS) obtained had exceeded the Action Level. Sixty-one (61) of the general water quality monitoring results of SS obtained during the reporting period had exceeded the Limit Level.
Details of the exceedance are presented in Appendix O.
Investigation on the reason of exceedance has been carried out, where the exceedances of SS on 02/12, 04/12, 09/12, 11/12, 14/12, 16/12, 18/12, 21/12, 23/12, 25/12, 28/12 and 30/12 were concluded to be unrelated to the Contract as detailed in the Incident Reports on Action Level or Limit Level Non-compliance along with supporting materials in Appendix O.
In this reporting period, 1 time of landfill gas monitoring was recorded at Wan Po Road (Ch1+360 -Ch1+513). No exceedance of action and limit levels for methane, oxygen and carbon dioxide was observed. Monitoring was conducted during excavations at 1m depth or more within the consultation zone and whenever workers entered the excavation on the day.
No notification of summons
and prosecution was received in the reporting period. Statistics on complaints and regulatory compliance are summarized in Appendix
J.
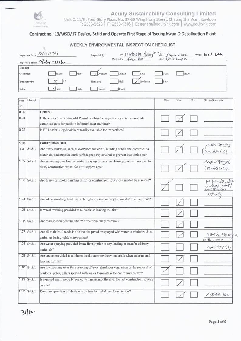
Site inspections were carried out on a weekly basis to monitor the implementation of proper environmental pollution control and mitigation measures under the Contract. In the reporting period, site inspections were carried out on 7, 15, 22 and 31 December 2021 at the site portions listed in Table 7.1 below.
|
Date |
Inspected Site
Portion |
Time |
|
07 December
2021 |
TKO
137 |
14:40 -17:00 |
|
15 December
2021 |
TKO
137 |
14:35-17:00 |
|
22 December
2021 |
TKO
137 |
14:35 -17:15 |
|
31 December
2021 |
TKO
137 |
09:00 -12:30 |
Joint site inspection with IEC were carried out 7, 15, 22 and 31 December 2021.
Environmental deficiencies were observed during weekly site inspection. Key observations during the site inspections and during the reporting period are summarized in Table 7.2.
|
Date |
Environmental
Observations |
Follow-up Status |
|
07 December
2021 |
Observation(s) and Recommendation(s) 1. Chemicals
were not placed on a drip tray and cap added at Central Chiller
Plant Building, metal
storage area, between
Reverse Osmosis/ActiDAFF Area and Administration Building. |
1. Removed
the chemical to proper storage
area as soon
as possible. |
|
15 December
2021 |
Observation(s) and Recommendation(s) 1. Chemicals
were not placed on a drip tray at metal storage area, near to the area
between Combined Shaft Area/ Seafront Area, near to VTEC Area. |
1. Chemicals removed to proper storage area. |
|
22 December
2021 |
Observation(s) and Recommendation(s) 1. No major
observations were recorded on the reporting day |
Nil. |
|
31 December
2021 |
Observation(s) and Recommendation(s) 1. No major
observations were recorded on the reporting day |
Nil. |
According to the EIA Study Report, Environmental Permit, contract documents and EM&A Manual, the mitigation measures detailed in the documents should be implemented as much as practical during the reporting period. An updated Implementation Status of Environmental Mitigation Measures (EMIS) is provided in Appendix C.
Site inspection proforma
of the reporting period is provided
in Appendix I.
Works to be undertaken in the next reporting month are:
- Land Survey;
- Construction of ActiDAFF parapet;
- Construction of Reverse Osmosis (RO) Building -staircases and internal finishing;
- Construction of Sludge tank and Post treatment building (PTB);
- Construction of On-Site Chlorine Generation (OSCG) Building and carbon dioxide (CO2) tank area;
- Internal finishing works at Product Water Storage Tank (PWST) and Electrical Building and Main Electrical and Central Chiller Plant Building (MECCP);
- Construction of manhole and Glass Reinforced Plastic (GRP) pipe installation;
- Commence construction of Manholes no.15 and no.16 adjacent to ActiDAFF and Reverse Osmosis Area (RO);
- Construction of first and second floor walls and columns of Administration Building;
- Construction of reinforced concrete (RC) support of Inspection Corridor;
- Construction of 1st floor structural wall of Chemical Building;
- Dewatering, predrill, rock cutting and excavations at Outfall Shaft;
- Excavation & Lateral Support (ELS) erection and commencement of marine dredging and disposal at Intake Shaft;
- Retrieval of DN 2500 Tunnel Boring Machine (TBM) underwater at Intake Shaft;
- Concrete blinding laying and backfill with aggregate at Intake Shaft;
- Pipe jacking works at Combined Shaft for Intake & Outfall pipelines;
- Construction of base slab of Pump house
The major environmental impacts brought by the above construction works will include:
- Construction dust and noise generation from construction and ELS works, pipe piling driving works, breaking of concrete and rock surface, excavation works and marine construction works
- Waste generation from construction activities
- Impact on water quality from marine construction works and inland construction works
The key environmental mitigation measures for the Project in the coming reporting period associated with the above construction works will include:
- Dust suppression by regular wetting and water spraying for construction works
- Reduction of noise from equipment and machinery on-site by regular checking of on-site plant/vehicle to ensure proper functioning
- Sorting and storage of general refuse and construction waste
- Deployment of temporary silt curtain in the area where marine construction works were conducted and deployment of water sedimentation tanks for treatment of wastewater at inland areas before discharge
Referring to EM&A Manual Section 4.1.2, the impact noise monitoring should be carried out at all the designated monitoring stations when there are project-related construction activities undertaken within a radius of 300m from the monitoring stations.
The impact noise monitoring schedule for the next reporting month to be shown at Appendix K is not included since no impact noise monitoring will be conducted in the next reporting month.
This is the 22nd Monthly EM&A Report for the Project which summarizes the key findings of the EM&A programme during the reporting period from 1 December to 31 December 2021, in accordance with the EM&A Manual and the requirement under FEP-01/503/2015/A.
No noise monitoring was conducted in the reporting period due to the over distant monitoring station from the works location, in which construction activities were not undertaken within a radius of 300m from the monitoring locations.
The EM&A works for water quality were conducted during the reporting period in accordance with the EM&A Manual.
Eighty-seven (87) of the general water quality monitoring results of suspended solids (SS) obtained had exceeded the Action Level. Sixty-one (61) of the general water quality monitoring results of SS obtained during the reporting period had exceeded the Limit Level.
Details of the exceedance are presented in Appendix O.
Investigation on the reason of exceedance has been carried out, where the exceedances of SS on 02/12, 04/12, 09/12, 11/12, 14/12, 16/12, 18/12, 21/12, 23/12, 25/12, 28/12 and 30/12 were
concluded to be unrelated
to the Contract as detailed
in the Incident Reports on Action Level or Limit Level Non-compliance along with supporting materials in Appendix O.
It was concluded that all exceedances recorded in December were unrelated to the project.
In this reporting period, 1 time of landfill gas monitoring was recorded at Wan Po Road (Ch1+360 -Ch1+513). No exceedance of action and limit levels for methane, oxygen and carbon dioxide was observed. Monitoring was conducted during excavations at 1m depth or more within the consultation zone and whenever workers entered the excavation on the day.
Weekly environmental site inspection was conducted during the reporting period. No major deficiency was observed during site inspection. The environmental performance of the project was therefore considered satisfactory.
According to the environmental site inspections performed in the reporting month, the Contractor is reminded to pay attention on maintaining proper materials storage, site hygiene and dust suppression mitigation measures.
No environmental complaint was received in the reporting period.
No notification of summons or prosecution was received since commencement of the Contract.
The ET will keep track on the construction works to confirm compliance of environmental requirements and the proper implementation of all necessary mitigation measures.
Appendix A
Master Programme




Appendix B
Overview of
Desalination Plant in Tseung Kwan O


Appendix C
Summary of
Implementation Status of Environmental Mitigation
|
EIA Reference |
Recommended Environmental Protection Measures/ Mitigation
Measures |
Objectives of the recommended measures & main concerns to address |
Implementation Agent |
Implementation Stage |
Implementation status |
Relevant Legislation & Guidelines |
||
|
D |
C |
O |
||||||
|
Air Quality |
|
|||||||
|
S4.8.1 |
Impervious dust screen or sheeting will be provided to enclose scaffolding from the ground floor level
of building for construction of superstructure of the new buildings. |
Land site/ During Construction |
Contractor(s) |
|
ü |
|
Implemented |
Air Pollution Control (Construction Dust) |
|
S4.8.1 |
Impervious
sheet will be provided for skip hoist
for material transport. |
Land site/ During Construction, particularly dry season |
Contractor(s) |
|
ü |
|
NA |
|
|
S4.8.1 |
The area where dusty work takes place should
be sprayed with water
or a dust suppression chemical immediately prior to, during
and immediately after dusty
activities as far as practicable. |
Land site/ During Construction |
Contractor(s) |
|
ü |
|
Implemented |
|
|
S4.8.1 |
All dusty materials should be sprayed with water
or a dust suppression
chemical immediately prior to any loading,
unloading or transfer operation. |
Land site/ During Construction |
Contractor(s) |
|
ü |
|
Implemented |
|
|
S4.8.1 |
Dropping heights for
excavated materials should be controlled to a practical
height to minimize the fugitive dust
arising from unloading. |
Land site/ During Construction |
Contractor(s) |
|
ü |
|
Implemented |
|
|
S4.8.1 |
During transportation by truck, materials should not be loaded to a level higher than the side and
tail boards, and should be dampened or covered before
transport. |
Land site/ During Construction |
Contractor(s) |
|
ü |
|
Implemented |
|
|
S4.8.1 |
Wheel washing device should
be provided at the exits
of the work sites. Immediately before leaving
a construction site, every vehicle
shall be washed to remove any dusty material
from its body
and wheels as far as practicable. |
Land site/ During Construction |
Contractor(s) |
|
ü |
|
Implemented |
|
|
S4.8.1 |
Road sections between vehicle-wash areas and vehicular entrance will be paved. |
Land site/ During Construction |
Contractor(s) |
|
ü |
|
Implemented |
|
|
EIA Reference |
Recommended Environmental Protection Measures/ Mitigation
Measures |
Objectives of the recommended measures & main concerns to address |
Implementation Agent |
Implementation Stage |
Implementation status |
Relevant Legislation & Guidelines |
||
|
D |
C |
O |
||||||
|
S4.8.1 |
Hoarding of not less than 2.4m
high from ground
level will be provided along
the length of the Project Site boundary. |
Land site/ During construction |
Contractor(s) |
ü |
ü |
|
N/A |
|
|
S4.8.1 |
Haul roads will be kept clear of dusty materials and will
be sprayed with water so as to maintain the entire road
surface wet at all times. |
Land site/ During construction |
Contractor(s) |
|
ü |
|
Implemented |
|
|
S4.8.1 |
Temporary stockpiles of dusty materials will be either covered
entirely by impervious sheets or sprayed
with water to maintain the entire surface wet all the
time. |
Land site/ During construction |
Contractor(s) |
|
ü |
|
Reminder issued. |
|
|
S4.8.1 |
Stockpiles of more than 20 bags of cement,
dry pulverised fuel
ash and dusty construction
materials will be covered entirely
by impervious sheeting sheltered on top and 3-sides. |
Land site/ During construction |
Contractor(s) |
|
ü |
|
N/A |
|
|
S4.8.1 |
All exposed areas
will be kept
wet always to minimise dust emission. |
Land site/ During construction |
Contractor(s) |
|
ü |
|
Implemented |
|
|
S4.8.1 |
Ultra-low-sulphur diesel (ULSD) will be used for all construction plant
on-site, as defined as diesel fuel containing
not more than 0.005% sulphur by weight) as stipulated in Environment, Transport
and Works Bureau Technical
Circular (ETWB-TC(W)) No 19/2005 on Environmental Management on Construction
Sites. |
Land site/ During construction/ During Operation |
Contractor(s) |
|
ü |
ü |
Implemented |
Environment, Transport and Works Bureau Technical Circular (ETWB-
TC(W)) No 19/2005 on Environmental
Management on Construction Sites |
|
S4.8.1 |
The engine of the construction equipment during idling will be switched off. |
Land site/ During construction |
Contractor(s) |
|
ü |
|
Implemented |
|
|
EIA Reference |
Recommended Environmental Protection Measures/ Mitigation
Measures |
Objectives of the recommended measures & main concerns to address |
Implementation Agent |
Implementation Stage |
Implementation status |
Relevant Legislation & Guidelines |
||
|
D |
C |
O |
||||||
|
S4.8.1 |
Concrete batching plant will be required on site. control
measures recommended in the Guidance Note on a Best Practicable Means for
Cement Works (Concrete Batching Plant) (BPM 3/2 (93)) will be implemented. The control measures recommended in the Guidance Note on a Best Practicable
Means for Cement Works (Concrete Batching Plant) (BPM
3/2 (93)) will
be implemented. |
Land site/ During construction |
Contractor(s) |
|
ü |
|
N/A |
|
|
S4.8.1 |
Regular maintenance of construction equipment deployed on-site will be
conducted to prevent
black smoke emission. |
Land site/ During construction |
Contractor(s) |
|
ü |
|
Implemented |
|
|
S4.10 |
To ensure proper
implementation of the
recommended dust mitigation measures and good construction site practices during
the construction phase, environmental
site audits on weekly basis is recommended throughout the construction period. |
Land site/ During construction |
Contractor(s)/ Environmental Team (ET) & Independent Environmental Checker (IEC) |
|
ü |
|
Implemented |
|
Note: D -Design stage C -Construction O -Operation
|
EIA Reference |
Recommended Environmental Protection Measures/ Mitigation Measures |
Objectives of the recommended measures & main concerns to address |
Implementation Agent |
Implementation Stage |
Implementation status |
Relevant Legislation & Guidelines |
||
|
D |
C |
O |
||||||
|
Noise |
||||||||
|
S5.7 |
Only well-maintained plant will be operated on-site and plant will be serviced regularly during the construction phase. |
All area/ During construction |
Contractor(s) |
|
ü |
|
Implemented |
A Practical Guide
for the Reduction of Noise from
Construction Works, |
|
S5.7 |
Silencers or
mufflers on construction equipment
will be utilised
and will be properly maintained during the construction phase. |
Noise control/ During construction |
Contractor(s) |
|
ü |
|
N/A |
A Practical Guide for the
Reduction of Noise from Construction Works, |
|
S5.7 |
Mobile plant, if any, will
be sited as far away
from NSRs as possible. |
Noise control/ During construction |
Contractor(s) |
|
ü |
|
N/A |
A Practical Guide for the Reduction of Noise from Construction Works, |
|
S5.7 |
Machines and plant (such
as trucks) that
may be in intermittent use will be shut down between work periods or will be throttled down to a minimum. |
Noise control/ During construction |
Contractor(s) |
|
ü |
|
Implemented |
A Practical Guide
for the Reduction of Noise from
Construction Works, |
|
S5.7 |
Plants known to emit noise strongly in one direction will, wherever possible, be
orientated so that
the noise is directed away from the nearby NSRs. |
Noise control/ During construction |
Contractor(s) |
|
ü |
|
N/A |
A Practical Guide for the Reduction of Noise from Construction Works, |
|
S5.7 |
Material stockpiles and other structures will be
effectively utilised, wherever practicable, in screening noise from on-site construction activities. |
Noise control/ During construction |
Contractor(s) |
|
ü |
|
N/A |
A Practical Guide for the Reduction of Noise from Construction Works, |
|
S5.7 |
Use of Quite Powered Mechanical Equipment (QPME). |
Noise control/ During construction |
Contractor(s) |
|
ü |
|
Implemented |
A Practical Guide for the Reduction of Noise from Construction Works, |
|
S5.7 |
Movable noise barriers of 3m in height with skid footing should be used and located within
a few metres of stationary plant and mobile plant such that the line of sight to the NSR is blocked by the barriers. The length
of the barrier should be at least five times
greater than its height. The noise barrier
material should have a superficial surface
density of at least 7 kg m-2 and have |
Noise control/ During construction |
Contractor(s) |
|
ü |
|
N/A |
A Practical Guide for the Reduction of Noise from
Construction Works, |
|
EIA Reference |
Recommended Environmental Protection Measures/ Mitigation Measures |
Objectives of the recommended measures & main concerns to address |
Implementation Agent |
Implementation Stage |
Implementation status |
Relevant Legislation & Guidelines |
||
|
D |
C |
O |
||||||
|
|
no o or gappeningss. |
|
|
|
|
|
|
|
|
S5.7 |
The noise insulating sheet should be deployed such that there would be no opening or gaps on the joints. |
Noise control/ During construction |
Contractor(s) |
|
ü |
|
N/A |
A Practical Guide
for the Reduction of Noise from
Construction Works, |
|
S5.7 |
Construction activities (e.g. excavation/shoring,
reinstatement (asphalt), and
pipe jacking) will
be planned and carried out
in sequence, such
that items of PME proposed for these activities will not be
operated simultaneously. |
Noise control/ During construction |
Contractor(s) |
ü |
ü |
|
Implemented |
A Practical Guide for the Reduction of Noise from
Construction Works |
|
S5.7 |
PMEs
will not be used at the works areas near
educational institutions with residual impact (ie
the ¡§influence area¡¨ within a radius
of 40m) during school hours in order
to reduce impact
to the educational institutions. |
Noise control / During construction |
Contractor(s) |
|
ü |
|
N/A |
A Practical Guide for the Reduction of Noise from Construction Works |
|
S5.7 |
Noise enclosures or acoustic sheds would be used to cover stationary PME such as generators. Portable/Movable noise enclosure made of material
with superficial surface density of at least 7 kg m-2 may be
used for screening the noise from
operation of the saw/groover, concrete. |
Noise control/ Pre- construction/ During
construction |
Contractor(s) |
ü |
ü |
|
N/A |
|
|
S5.9 |
Sawcutting pavement, breaking up of pavement, excavation /shoring, pipe laying, backfilling, reinstatement (concrete) and pipe jacking shall be scheduled outside the examination period. |
Noise control/ Pre- construction/ During
construction |
Contractor(s) |
ü |
ü |
|
N/A |
|
|
EIA Reference |
Recommended Environmental Protection Measures/ Mitigation Measures |
Objectives of the recommended measures & main concerns to address |
Implementation Agent |
Implementation Stage |
Implementation status |
Relevant Legislation & Guidelines |
||
|
D |
C |
O |
||||||
|
S5.9 |
In view the duration of noise exceedance at Creative
Secondary School, PLK Laws Foundation
College, TKO Kei Tak Primary School and School of Continuing and Professional
Studies-CUHK is limited to 8 weeks, the
construction work in the influence areas near the four schools shall be scheduled during long school holidays (eg
summer holiday, Easter holiday or Christmas holiday, etc) as far as practicable. Scheduling the construction work for the four schools. |
Noise control/ Pre- construction/ During
construction |
Contractor(s) |
ü |
ü |
|
N/A |
|
|
S5.10 |
A noise monitoring programme
shall be implemented for the construction phase. |
Designated
monitoring stations as defined
in EM&A Manual/During
construction phase |
Environmental Team (ET) |
|
ü |
|
N/A |
|
|
S5.10 |
The effectiveness of on-site control measures
could also be evaluated through the regular site
audits. |
All facilities/ During construction |
Contractor(s)/ Environmental Team (ET) & Independent Environmental Checker (IEC) |
|
ü |
|
Implemented |
- |
Note: D -Design stage C -Construction O -Operation
|
EIA Reference |
Recommended Environmental Protection Measures/ Mitigation Measures |
Objectives of the recommended measures
& main concerns to address |
Implementation Agent |
Implementation Stage |
Implementation status |
Relevant Legislation & Guidelines |
||
|
D |
C |
O |
||||||
|
Water Quality |
||||||||
|
S6.9 |
Dredged marine sediment will be disposed of in a gazetted marine disposal area in accordance with
marine dumping permit conditions of the Dumping at Sea Ordinance (DASO). |
Marine Dredging/ During construction |
Contractor(s) |
|
ü |
|
Implemented |
Dumping at Sea Ordinance
(DASO) |
|
S6.9 |
Disposal vessels will be fitted with tight
bottom seals in order to prevent leakage of
material during transport. |
Marine Dredging/ During construction |
Contractor(s) |
|
ü |
|
Implemented |
- |
|
S6.9 |
Barges will be filled to a level, which
ensures that material does not
spill over during transport to the disposal
site and that adequate freeboard is maintained to ensure that
the decks are not washed
by wave action. |
Marine Dredging/ During construction |
Contractor(s) |
|
ü |
|
Implemented |
- |
|
S6.9 |
After dredging, any excess materials will be
cleaned from decks and exposed
fittings before the vessel is moved from the dredging area. |
Marine Dredging/ During construction |
Contractor(s) |
|
ü |
|
Implemented |
- |
|
S6.9 |
All vessels should be well maintained and inspected before
use to limit any potential discharges to the marine environment. |
Marine Dredging/ During construction |
Contractor(s) |
|
ü |
|
Implemented |
- |
|
S6.9 |
All vessels must have a clean ballast system. |
Marine Dredging/ During construction |
Contractor(s) |
|
ü |
|
Implemented |
- |
|
S6.9 |
No discharge of
sewage/grey wastewater should be allowed. Waste water from potentially
contaminated area on
working vessels should be minimized and collected. These kinds of wastewater should be brought
back to port and discharged at appropriate collection and treatment system. |
Marine Dredging/ During construction |
Contractor(s) |
|
ü |
|
Implemented |
- |
|
S6.9 |
No soil waste is allowed to be disposed overboard. |
Marine Dredging/ During construction |
Contractor(s) |
|
ü |
|
N/A |
- |
|
EIA Reference |
Recommended Environmental Protection Measures/ Mitigation Measures |
Objectives of the recommended measures
& main concerns to address |
Implementation Agent |
Implementation Stage |
Implementation status |
Relevant Legislation & Guidelines |
||
|
D |
C |
O |
||||||
|
S6.9 |
Silt removal facilities such as silt traps or sedimentation facilities
will be provided to remove silt particles
from runoff to meet the
requirements of the TM standard under
the WPCO. The design of silt removal facilities will be based on the guidelines provided in ProPECC PN 1/94. All drainage facilities and
erosion and sediment control
structures will be inspected on a regular basis and maintained to confirm proper and efficient operation at all
times and particularly during rainstorms. Deposited silt and grit will be removed regularly. |
Land site & drainage/ During construction |
Contractor(s) |
|
ü |
|
Implemented, reminder issued. |
ProPECC PN 1/94 TM Standard under the WPCO |
|
S6.9 |
Earthworks to form the final surfaces will be followed up with surface protection and drainage works to prevent
erosion caused by rainstorms. |
Land site & drainage/ During construction |
Contractor(s) |
|
ü |
|
Implemented |
- |
|
S6.9 |
Appropriate surface drainage will be designed and provided where necessary. |
Land site & drainage/ During construction |
Contractor(s) |
|
ü |
|
Implemented |
- |
|
S6.9 |
The precautions to be taken at any time of
year when rainstorms are likely
together with the actions to be taken
when a rainstorm is imminent or forecasted and actions
to be taken during or after rainstorms are
summarised
in Appendix A2 of ProPECC PN 1/94. |
Land site & drainage/ During construction |
Contractor(s) |
ü |
ü |
|
Implemented |
ProPECC PN 1/94 |
|
S6.9 |
Oil interceptors will be provided in the
drainage system where necessary and regularly emptied to prevent the release of oil and grease into the storm
water drainage system after accidental spillages. |
Land site & drainage/ During construction |
Contractor(s) |
|
ü |
|
N/A |
- |
|
EIA Reference |
Recommended Environmental Protection Measures/ Mitigation Measures |
Objectives of the recommended measures
& main concerns to address |
Implementation Agent |
Implementation Stage |
Implementation status |
Relevant Legislation & Guidelines |
||
|
D |
C |
O |
||||||
|
S6.9 |
Temporary and permanent drainage pipes and culverts provided to facilitate runoff discharge, if any, will be adequately designed for the controlled release
of storm flows. |
Land site & drainage/ During construction |
Contractor(s) |
|
ü |
|
Implemented |
- |
|
S6.9 |
The temporary diverted drainage, if any, will
be reinstated to the original
condition when the construction work has finished or when the temporary diversion is no longer required. |
Land site & drainage/ During construction |
Contractor(s) |
|
ü |
|
N/A |
- |
|
S6.9 |
Appropriate numbers of portable toilets shall be provided by a licensed contractor to
serve the construction workers over the construction site to prevent
direct disposal of sewage into the water environment. |
Land site & drainage/ During construction |
Contractor(s) |
|
ü |
|
Implemented |
- |
|
S6.9 and S6.12 |
The sterilization water should be dechlorinated with total
residual chlorine (TRC) level below 1 mg/L
before discharge to public sewer. In situ testing of TRC should also be conducted for the discharge
of chlorinated water
for pipeline disinfection to ensure sufficient
dechlorination before discharge to public sewer. |
Sterilization of water mains
prior to commissioning |
Contractor(s) |
|
ü |
ü |
N/A |
Technical Memorandum for Effluents Discharged into Drainage and Sewerage Systems Inland and
Coastal Waters |
|
S6.9 |
The cleaning and flushing water should also be treated
and desilted to the relevant discharge requirement stipulated in TM-DSS before
discharging. |
Sterilization of water mains
prior to commissioning |
Contractor(s) |
|
ü |
ü |
N/A |
Technical Memorandum for Effluents Discharged into Drainage and Sewerage Systems Inland and
Coastal Waters |
|
EIA Reference |
Recommended Environmental Protection Measures/ Mitigation Measures |
Objectives of the recommended measures
& main concerns to address |
Implementation Agent |
Implementation Stage |
Implementation status |
Relevant Legislation & Guidelines |
||
|
D |
C |
O |
||||||
|
S6.9 |
Site drainage should be well maintained and good construction practices should be observed to ensure that
oil, fuels, solvents and other chemicals are managed, stored and handled properly and do not enter
the nearby water
streams. |
Land site & drainage/ During construction/ During operation |
Contractor(s) |
|
ü |
ü |
Implemented, reminder and observation issued.
Rectified after observation. |
- |
|
S6.12 |
Regular site inspections
will be carried out in order
to confirm that regulatory requirements are being met and
that contractors are implementing the standard site practice and
mitigation measures as proposed to reduce potential impacts to water
quality. |
During construction |
Contractor(s)/ Environmental Team
(ET) & Independent Environmental Checker (IEC) |
|
ü |
|
Implemented |
- |
Note: D -Design
stage C -Construction O -Operation
|
EIA Reference |
Recommended Environmental Protection Measures/ Mitigation Measures |
Objectives of the recommended measures & main concerns to address |
Implementation Agent |
Implementation Stage |
Implementation Status |
Relevant Legislation & Guidelines |
||
|
D |
C |
O |
||||||
|
Waste Management |
||||||||
|
S8.5 |
Nomination of approved personnel to be responsible for standard site practices, arrangements for collection and effective disposal to an
appropriate facility of all wastes generated at the site. |
Contract mobilisation/ During construction |
Contractor(s) |
|
ü |
|
Implemented |
- |
|
S8.5 |
Training of site personnel in proper waste management and chemical handling
procedures. Training will be provided to workers on the concepts of site cleanliness and appropriate waste management procedures, including waste reduction, reuse and recycling at the beginning of the construction works. |
Contract mobilisation/ During construction |
Contractor(s) |
|
ü |
|
Implemented |
- |
|
S8.5 |
Provision of sufficient waste disposal points and regular collection for disposal. |
All area/ During construction/ During operation |
Contractor(s) |
|
ü |
ü |
Implemented |
DEVB TC(W) No. 8/2010, Enhanced Specification for Site Cleanliness and Tidiness. |
|
S8.5 |
Appropriate measures to reduce windblown litter and dust transportation of waste by either
covering trucks or by transporting wastes
in enclosed containers. |
All area/ During construction |
Contractor(s) |
|
ü |
|
Implemented |
DEVB TC(W) No. 8/2010, Enhanced Specification for Site Cleanliness
and Tidiness. |
|
S8.5 |
A
waste management plan (WMP) as stated in the
¡§ETWB TC(W) No. 19/2005,
Environmental Management on
Construction Sites¡¨ for the
amount of waste generated, recycled and disposed of (including the disposal
sites) will be established and implemented during the construction
phase as part of the Environmental Management Plan (EMP). The Contractor
will be required to prepare the EMP and submits it to the
Architect/ Engineer under
the Contract for approval prior to implementation. |
All area/ During construction |
Contractor(s) |
|
ü |
|
Implemented |
ETWB TC(W) No. 19/2005, Environmental
Management on Construction Sites |
|
S8.5 |
Separation of chemical wastes for special handling and
appropriate treatment at the Chemical Waste Treatment Centre at Tsing Yi. |
All area/ During construction |
Contractor(s) |
|
ü |
|
Observation issued. Rectified after observation. |
Chapters 2 & 3 Code of Practice on the Packaging, Labelling & Storage of Chemical
Wastes published under the Waste Disposal Ordinance (Cap 354), Section 35 |
|
S8.5 |
Regular cleaning and maintenance programme for drainage systems, sumps and oil
interceptors. |
Land site/ During construction |
Contractor(s) |
|
ü |
|
Implemented,
Reminder Issued. |
Waste Disposal Ordinance (Cap 354) |
|
EIA Reference |
Recommended Environmental Protection Measures/ Mitigation Measures |
Objectives of the recommended measures & main concerns to address |
Implementation Agent |
Implementation Stage |
Implementation Status |
Relevant Legislation & Guidelines |
||
|
D |
C |
O |
||||||
|
S8.5 |
A recording system for the amount of wastes generated/ recycled and disposal sites. The trip- ticket system will be included as one of the contractual requirements and implemented by the contractor(s). |
Land site/ During construction |
Contractor(s) |
|
ü |
|
Implemented |
DEVB TC(W) No. 6/2010, Trip Ticket System
for Disposal of Construction & Demolition Materials |
|
S8.5 |
Segregation and storage of different types
of waste in different
containers, skips or stockpiles to enhance
reuse or recycling of material and
their proper disposal. |
Land site/ During construction/ During
operation |
Contractor(s) |
|
ü |
|
Implemented,
reminder issued. |
WBTC 32/92, The Use of
Tropical Hard Wood on Construction Site |
|
S8.5 |
Encourage collection of aluminium
cans and waste paper
by individual collectors during construction with
separate labelled bins
provided to segregate these wastes from
other general refuse
by the workforce. |
Land site/ During construction |
Contractor(s) |
|
ü |
|
Implemented |
ETWB TCW No. 33/2002, Management of Construction and Demolition Material Including Rock |
|
S8.5 |
Any unused chemicals
and those with remaining functional capacity will be recycled as far as possible. |
Land site/ During construction |
Contractor(s) |
|
ü |
|
N/A |
- |
|
S8.5 |
Use of reusable non-timber formwork to reduce the amount of C&D materials. |
All areas/ During construction |
Contractor(s) |
|
ü |
|
Implemented |
WBTC 32/92,
The Use of Tropical Hard Wood on Construction Site |
|
S8.5 |
Prior to disposal of construction waste, wood, steel
and other metals will be separated to the extent practical,
for re-use and/or recycling to reduce the quantity of waste
to be disposed of to landfill. |
All areas/ During construction |
Contractor(s) |
|
ü |
|
Implemented |
DEVB TC(W) No. 6/2010, Trip Ticket System for Disposal of Construction &
Demolition Materials |
|
S8.5 |
Proper storage and site practices to reduce
the potential for damage
or contamination of construction materials. |
All areas/ During construction |
Contractor(s) |
|
ü |
|
Implemented Observation and reminder issued. Rectified after observation. |
- |
|
S8.5 |
Plan and stock construction materials carefully to
reduce amount of waste generated and avoid unnecessary generation of waste. |
All areas/ During construction |
Contractor(s) |
|
ü |
|
Implemented |
- |
|
S8.5 |
A Sediment Quality Report (SQR) for sampling
and chemical testing
of the sediment will
be prepared and
submitted to the EPD for approval. The
approved detailed sampling and chemical testing will be
carried out prior to the
commencement of the dredging activities to confirm the sediment disposal method. |
Marine works/ During construction |
Contractor(s) |
|
ü |
|
N/A |
ETWB TC(W) No. 34/2002 and Dumping at Sea Ordinance (DASO) |
|
EIA Reference |
Recommended Environmental Protection Measures/ Mitigation Measures |
Objectives of the recommended measures & main concerns to address |
Implementation Agent |
Implementation Stage |
Implementation Status |
Relevant Legislation & Guidelines |
||
|
D |
C |
O |
||||||
|
S8.5 |
The management of dredged/ excavated sediment management requirement from ETWB
TC(W) No. 34/2002 will be incorporated in the Specification of the Contract Documents. |
Marine works/
During construction |
WSD/ Contractor(s) |
|
ü |
|
Implemented |
ETWB TC(W) No. 34/2002 and Dumping
at Sea Ordinance (DASO) |
|
S8.5 |
The contractor will
open a billing account with EPD in accordance with the Waste Disposal
(Charges for Disposal of
Construction Waste) Regulation for the payment of disposal charges. |
Contract mobilisation/ During construction |
Contractor(s) |
|
ü |
|
Implemented |
Cap 354N Waste Disposal (Charges for Disposal
of Construction Waste) Regulation |
|
S8.5 |
A trip-ticket system will be established in accordance with DEVB TC(W) No. 6/2010 to monitor the reuse of surplus
excavated materials off-site and disposal of
construction waste and general refuse at transfer facilities/ landfills, and to control fly-tipping. |
Contract mobilisation/ During construction |
Contractor(s) |
|
ü |
|
Implemented |
DEVB TC(W) No. 6/2010, Trip Ticket System for Disposal of Construction & Demolition Materials |
|
S8.5 |
The project proponent will also conduct regular inspection
of the waste management measures implemented on site as described in the
Waste Management Plan. |
All area/ During construction |
Contractor(s)/ Environmental Team
(ET) & Independent Environmental Checker (IEC) |
|
ü |
|
Implemented |
ETWB TC(W) No. 19/2005, Environmental
Management on Construction Sites |
|
S8.5 |
A recording system (similar to summary table
as shown in Annex 5 and Annex 6 of
Appendix G of ETWB TC(W)
No. 19/2005) for
the amount of waste generated,
recycled and disposed of (including the disposal sites) will be established during the construction phase. |
All area/ During construction |
Contractor(s) |
|
ü |
|
Implemented |
Annex 5 and Annex
6 of Appendix G of ETWB TC(W) No. 19/2005 |
|
S8.5 |
Inert C&D materials (public fill) will be reused
within the Project
as far as practicable. |
All area/ During construction |
Contractor(s) |
|
ü |
|
Implemented |
- |
|
S8.5 |
Public fill and
construction waste shall
be segregated and stored
in different containers or skips to facilitate reuse
or recycling of materials and
their proper disposal. |
All area/ During construction |
Contractor(s) |
|
ü |
|
Implemented |
- |
|
S8.5 |
Specific areas of the work site will be
designated for such segregation and
storage if immediate use is not practicable. |
All area/ During construction |
Contractor(s) |
|
ü |
|
Implemented |
- |
|
S8.5 |
To reduce the potential dust and water quality impacts of site formation works, C&D materials will be wetted as quickly as possible to the extent
practice after filling. |
All area/ During construction |
Contractor(s) |
|
ü |
|
Implemented |
Air Pollution Control (Construction Dust) Regulation (Cap 311R); |
|
EIA Reference |
Recommended Environmental Protection Measures/ Mitigation Measures |
Objectives of the recommended measures & main concerns to address |
Implementation Agent |
Implementation Stage |
Implementation Status |
Relevant Legislation & Guidelines |
||
|
D |
C |
O |
||||||
|
|
|
|
|
|
|
|
|
WPCO (Cap
358) |
|
S8.5 |
Open stockpiles of excavated/ fill materials or construction wastes on-site should be covered with tarpaulin or similar fabric. |
Land site/ During Construction, particularly dry season |
Contractor(s) |
|
ü |
|
Implemented, reminder issued. |
Air Pollution Control (Construction Dust) Regulation (Cap 311R) |
|
S8.5 |
Chemical waste container shall be suitable for
the substance they are holding, resistant to corrosion, maintained in a good condition, and securely closed. |
All area/ During construction/ During operation |
Contractor(s)/ WSD |
|
ü |
ü |
Implemented |
Waste Disposal (Chemical Waste) (General) Regulation; Code of Practice
on the Packaging, Handling and Storage of Chemical Wastes |
|
S8.5 |
Chemical waste container shall have a capacity of less than 450 L unless the specifications
have been approved by the EPD. |
All area/ During construction/ During
operation |
Contractor(s)/ WSD |
|
ü |
ü |
Implemented |
Waste Disposal (Chemical Waste) (General) Regulation; Code of Practice on the Packaging, Handling and Storage
of Chemical Wastes |
|
S8.5 |
A label in English and Chinese shall be displayed on the chemical container in accordance with instructions prescribed in Schedule 2 of the Regulations. |
All area/ During construction/ During operation |
Contractor(s)/ WSD |
|
ü |
ü |
Implemented |
Waste Disposal (Chemical Waste) (General) Regulation; Code of Practice
on the Packaging, Handling and Storage of Chemical Wastes |
|
S8.5 |
Storage areas for chemical waste shall be enclosed on at least
3 sides. |
All area/ During construction/ During operation |
Contractor(s)/ WSD |
|
ü |
ü |
Implemented |
Waste Disposal (Chemical Waste) (General) Regulation;
Code of Practice on the Packaging, Handling and Storage of Chemical Wastes |
|
S8.5 |
Storage areas for chemical waste shall have an impermeable floor and bunding, of
capacity to accommodate 110% of the
volume of the largest container or 20% by volume of the
chemical waste stored in that area,
whichever is the
greatest. |
All area/ During construction/ During operation |
Contractor(s)/ WSD |
|
ü |
ü |
Implemented |
Waste Disposal (Chemical Waste) (General) Regulation; Code of Practice
on the Packaging, Handling and Storage of Chemical Wastes |
|
S8.5 |
Storage areas for chemical waste shall have
adequate ventilation. |
All area/ During construction/ During operation |
Contractor(s)/ WSD |
|
ü |
ü |
Implemented |
Waste Disposal (Chemical Waste) (General) Regulation; Code of Practice on the
Packaging, Handling and Storage of |
|
EIA Reference |
Recommended Environmental Protection Measures/ Mitigation Measures |
Objectives of the recommended measures & main concerns to address |
Implementation Agent |
Implementation Stage |
Implementation Status |
Relevant Legislation & Guidelines |
||
|
D |
C |
O |
||||||
|
|
|
|
|
|
|
|
|
Chemical Wastes |
|
S8.5 |
Storage areas for chemical waste shall be covered to prevent
rainfall entering (water collected within the
bund must be tested and disposed of as chemical waste, if necessary). |
All area/ During construction/ During operation |
Contractor(s)/ WSD |
|
ü |
ü |
Implemented |
Waste Disposal (Chemical Waste) (General) Regulation; Code of Practice on the Packaging, Handling and Storage of Chemical Wastes |
|
S8.5 |
Storage areas for chemical waste shall be arranged so that incompatible materials are
appropriately separated. |
All area/ During construction/ During operation |
Contractor(s)/ WSD |
|
ü |
ü |
Implemented |
Waste Disposal (Chemical Waste)
(General) Regulation; Code of Practice on the Packaging, Handling and Storage of Chemical Wastes |
|
S8.5 |
General refuse will be stored in enclosed bins
or compaction units separately
from construction and chemical wastes. |
All area/ During construction/ During operation |
Contractor(s)/ WSD |
|
ü |
ü |
Implemented,
reminder issued. |
Waste Disposal (Chemical Waste) (General) Regulation; Code of Practice
on the Packaging, Handling and Storage of Chemical Wastes |
|
S8.5 |
Adequate number of waste containers will be provided to
avoid over-spillage of waste. |
All area/ During construction/ During operation |
Contractor(s)/ WSD |
|
ü |
ü |
Implemented |
DEVB TC(W) No. 8/2010 Enhanced Specification for Site Cleanliness and Tidiness. |
|
S8.5 |
A reputable waste
collector will be employed by the Contractor
to remove general refuse from the site, separately from construction and chemical wastes, on a daily basis
to minimise odour, pest and litter
impacts. |
All area/ During construction/ During operation |
Contractor(s)/ WSD |
|
ü |
ü |
Implemented |
- |
|
S8.5 |
Recycling bins will be provided at strategic locations within the Site to facilitate recovery
of recyclable materials (including aluminium
can, waste paper, glass bottles and plastic bottles) from the Site. Materials recovered will be sold for recycling. |
All area/ During construction/ During operation |
Contractor(s)/ WSD |
|
ü |
ü |
Implemented |
- |
|
S8.5 |
To avoid
any odour and litter impact,
accurate number of portable toilets will be provided for workers on-site. |
All area/ During construction |
Contractor(s) |
|
ü |
|
Implemented |
- |
|
S8.5 |
The burning
of refuse on construction sites
is prohibited by law. |
All area/ During construction |
Contractor(s) |
|
ü |
|
Implemented |
Air Pollution Control Ordinance (Cap 311) |
|
S8.7 |
To facilitate monitoring and control over the contractors¡¦ performance on waste management, a |
All facilities/ During construction |
ET/ IEC |
|
ü |
|
Implemented |
- |
|
EIA Reference |
Recommended Environmental Protection Measures/ Mitigation Measures |
Objectives of the recommended measures & main concerns to address |
Implementation Agent |
Implementation Stage |
Implementation Status |
Relevant Legislation & Guidelines |
||
|
D |
C |
O |
||||||
|
|
waste inspection
and audit programme will be implemented throughout the construction phase. |
|
|
|
|
|
|
|
Note: D -Design
stage C -Construction O -Operation
|
|
Recommended Environmental Protection Measures/ Mitigation Measures |
Objectives of the recommended measures & main concerns to address |
Implementation Agent |
Implementation Stage |
Implementation Status |
Relevant Legislation & Guidelines |
||
|
D |
C |
O |
||||||
|
|
Ecology |
|||||||
|
S9.7 |
For slope mitigation works within the Clear Water
Bay Country Park, to avoid
tree felling and damages to trees,
the exact locations of the flexible barrier
foundation plates, soil
nails and rock dowels can be adjusted
during detailed design, and a setback distance from existing trees is recommended to be maintained as far as practical. A
detailed specification describing the exact locations of the flexible barrier foundation plates, soil nails and rock dowels will be prepared
to illustrate how the setback distance from
existing trees would
be implemented for tree avoidance. |
Slope mitigation works area/ During detailed design/
During construction |
Contractor(s) |
ü |
ü |
|
Implemented |
- |
|
S9.7 |
Pruning of tree canopies along the alignment of the flexible barriers shall be limited to a minimum. |
Slope mitigation works area/ During construction |
Contractor(s) |
|
ü |
|
Implemented |
|
|
S9.7 |
The alignment of
flexible barriers shall be optimized to preserve
all species of conservation interest and minimize the impact to the existing vegetation as far
as practicable. All
individuals of Marsdenia lachnostoma within the slope mitigation areas shall
be retained in- situ, by positioning the alignment of flexible barrier
at a minimum 1.5m in a radius away from these individuals. |
Slope mitigation works area/ During detailed design/
During construction |
Contractor(s) |
ü |
ü |
|
Implemented |
- |
|
S9.7 and 9.10 |
At the detailed design stage prior to the commencement of the slope mitigation
works, a vegetation survey shall be
carried out at the slope mitigation
areas within the Clear Water Bay Country Park
to assess the condition and identify the location of each individual of Marsdenia lachnostoma and other flora
species of conservation interest that may
be directly affected by the construction works. |
Slope mitigation works area/ During detailed design/
During construction |
Contractor(s) |
ü |
ü |
|
Implemented |
- |
|
S9.7 |
Temporary fencing will
be installed to fence off the concerned
species either in groups of individually within the works
area and in the
close proximity to prevent
from being damaged and disturbed during
construction. A sign identifying the site shall be attached to the fence
and flagging tape
shall be attached to the individuals to visualize their locations. |
Slope
mitigation works area/ During
construction |
Contractor(s) |
|
ü |
|
Implemented |
- |
|
|
Recommended Environmental Protection Measures/ Mitigation Measures |
Objectives of the recommended measures & main concerns to address |
Implementation Agent |
Implementation Stage |
Implementation Status |
Relevant Legislation & Guidelines |
||
|
D |
C |
O |
||||||
|
S9.7 and S9.10 |
A specification for fencing and demarcating individuals of Marsdenai lachnostoma (or
other flora species
of conservation interest, if found) adjacent to the proposed
alignment of the flexible barriers will be prepared
to protect the species. |
Slope
mitigation works area/ During
construction |
Contractor(s) |
|
ü |
|
Implemented |
- |
|
S9.7 |
Induction training shall also be provided to all site
personnel in order
to brief them
on this flora
of conservation interest including the
locations and their importance. |
Slope
mitigation works area/ During
construction |
Contractor(s) |
|
ü |
|
Implemented |
- |
|
S9.7 |
The resident site supervisory staff will closely monitor the conditions of concerned individuals during construction of flexible barriers in the close
proximity. |
Slope
mitigation works area/ During
construction |
Contractor(s) |
|
ü |
|
Implemented |
- |
|
S9.7 |
Erect fences along the boundary of the works area before
the commencement of works to prevent
vehicle movements and encroachment of personnel onto
adjacent areas. |
All area/ During construction |
Contractor(s) |
|
ü |
|
Implemented |
- |
|
S9.7 |
Regularly check the work site
boundaries to ensure that they are not breached and that damage
does not occur
to surrounding areas. |
All area/ During construction |
Contractor(s)/ Environmental Team (ET) |
|
ü |
|
Implemented. |
- |
|
S9.7 |
Avoid any damage and disturbance, particularly those caused by filling and illegal dumping,
to the surrounding habitats through proper management of waste disposal. |
All area/ During construction |
Contractor(s) |
|
ü |
|
Implemented |
- |
|
S9.7 |
Reinstate temporarily affected areas, particularly the habitats of plantation and shrubland-grassland immediately
after completion of construction
works, through on-site tree/shrub planting. The tree/shrub species will be chosen
with reference to those in the surrounding area. |
All area/ During construction |
Contractor(s) |
|
ü |
|
N/A |
- |
|
S9.7 |
Affected habitats within the Clear Water Bay
Country Bay shall be reinstated by
hydro-seeding and planting of climbers and native shrub
seedlings where practical upon completion of the slope
mitigation works. |
All area/ During construction |
Contractor(s) |
|
ü |
|
N/A |
- |
Note: D -Design
stage C -Construction O -Operation
|
EIA Reference |
Recommended Environmental Protection Measures/ Mitigation Measures |
Objectives of the recommended measures
& main concerns to address |
Implementation Agent |
Implementation Stage |
Implementation Status |
Relevant Legislation & Guidelines |
||
|
D |
C |
O |
||||||
|
|
Landscape & Visual |
|||||||
|
S11.10 & 11.11 |
The construction area and area allowed for temporary
structures, such as the
contractor¡¦s office, will be minimized
to a practical minimum. (MM1) |
All area/ Detailed design/ During
construction/ During
operation |
WSD/ Contractor(s) |
ü |
ü |
ü |
Implemented |
- |
|
S11.10 & 11.11 |
At the detailed design stage, the design team
will seek to minimize the
landscape footprint of the Project and above ground facilities, while satisfying all other requirements. (MM2) |
All area/ Detailed design/ During construction/ During operation |
WSD/ Contractor(s) |
ü |
ü |
ü |
Implemented |
- |
|
S11.10 & 11.11 |
Design principles will be adopted to take into account the surrounding
area, particularly Clear Water Bay Country
Park behind and the nearby
waterfront, with due consideration given
to: - green
roofs where practical (ie without equipment on the roof); - roadside
planting; - aesthetic treatment of all structures; - vertical
greening; screen planting along
application site; and - landscape enhancement with amenity planting where practical including planting along
the edge (site boundary) fence with
native shrubs where
feasible, - to reduce their visual impact and blend them into the surrounding landscape. (MM3) |
All area/ Detailed design/ During construction/
During operation |
WSD/ Contractor(s) |
ü |
ü |
ü |
Implemented |
- |
|
S11.10 & 11.11 |
All trees within the Project
Site or the potential slope
mitigation works area will
be carefully protected during construction
according to DEVB
TCW No. 10/2013 -Tree
Preservation (MM4) |
All area/ Detailed design/ During construction/
During operation |
WSD/ Contractor(s) |
ü |
ü |
ü |
Implemented |
ETWB TCW No. 3/2006 - Tree Preservation. |
|
S11.10 & 11.11 |
No tree within
the Country Park will be felled. Trees
within the Site
unavoidably affected by the works will be transplanted where necessary and practical. For trees that need to be felled, compensatory planting will be provided
to the satisfaction of relevant Government departments. A
compensatory tree planting proposal including locations of tree compensation will be submitted to seek
relevant government department¡¦s approval, in accordance with DEVB TC(W)
No. 10/2013. (MM5) |
All area/ Detailed design/ During construction/
During operation |
WSD/ Contractor(s) |
ü |
ü |
ü |
Implemented |
DEVB TC(W) No. 10/2013 |
|
S11.10 & |
Any slope mitigation works necessary to address natural terrain |
All area/ Detailed |
WSD/ |
ü |
ü |
ü |
N/A |
|
|
EIA Reference |
Recommended Environmental Protection Measures/ Mitigation Measures |
Objectives of the recommended measures
& main concerns to address |
Implementation Agent |
Implementation Stage |
Implementation Status |
Relevant Legislation & Guidelines |
||
|
D |
C |
O |
||||||
|
11.11 |
hazards, will be minimized to minimize any potential environmental impact to
the Country Park e.g. soil nailing and rock stabilization will aim to
avoid existing trees e.g. should any
restoration of vegetation be necessary, the best planting matrix with
native species will be established, with
the aim of resembling the existing vegetation. (MM6) |
design/ During construction/
During operation |
Contractor(s) |
|
|
|
|
|
|
S11.10 & 11.11 |
Dredging works for the installation of intake structures and outfall diffusers should be minimized to avoid or reduce any potential environmental impacts to as low as reasonably practicable (ALARP). The intake and outfall structures (e.g. intake openings and diffuser heads) will be prefabricated and
transferred to site
for installation. (MM7) |
All area/ Detailed design/ During construction/
During operation |
WSD/ Contractor(s) |
ü |
ü |
ü |
Implemented |
|
|
S11.10 & 11.11 |
All night-time lighting will be reduced
to a practical minimum both
in terms of number of level and will be hooded and directional. (MM8) units and
lux level and will be hooded and
directional. (MM8) |
All area/ Detailed design/ During construction/ During operation |
WSD/ Contractor(s) |
ü |
ü |
ü |
Implemented |
- |
Note: D -Design
stage C -Construction O -Operation
|
EIA Reference |
Recommended Environmental Protection Measures/ Mitigation Measures |
Objectives of the recommended
measures & main concerns to address |
Implementation Agent |
Implementation Stage |
Implementation Status |
Relevant Legislation & Guidelines |
||
|
D |
C |
O |
||||||
|
|
Landfill Gas Hazard |
|||||||
|
S12.7 |
During all works, safety procedures should be implemented
to minimise the risks of fires and explosions, asphyxiation of workers and toxicity effects resulting from contact with contaminated soil and groundwater. |
All area/ Detailed design/ During construction/
During operation |
Contractor(s) |
ü |
ü |
ü |
Implemented |
- |
|
S12.7 |
During trenching and excavation as well as creation of confined spaces at near to
or below ground level,
precautions should be clearly laid
down and rigidly Gas detection equipment and appropriate
breathing apparatus should be available and used when entering confined spaces or trenches deeper than 1 metre. |
All area/ Detailed design/ During construction/
During operation |
Contractor(s) |
ü |
ü |
ü |
Implemented |
|
|
S12.7 |
The Contractor should make the workers
are aware of potential hazards of working in confined spaces (any chamber, manhole or culvert which is large enough to permit
access to personnel). Such work
in confined spaces
is controlled by the
Factories and Industrial Undertakings (Confined Spaces) Regulations of the Factories
and Industrial Undertakings
Ordinance. Following the Safety Guide to Working in Confined
Spaces ensures compliance with the above
regulations. |
All area/ Detailed design/ During construction/
During operation |
Contractor(s) |
ü |
ü |
ü |
Implemented |
|
|
S12.7 |
Safety officers,
specifically trained with regard to landfill gas and
leachate related hazards and the appropriate actions to take in adverse circumstances, should be present on the site
throughout the works, in particular,
when works are undertaken below
grade. |
All area/ Detailed design/ During construction/
During operation |
Contractor(s) |
ü |
ü |
ü |
Implemented |
|
|
S12.7 |
All personnel who work on site
and all visitors to the site should
be made aware of the possibility of
ignition of gas in the vicinity of the
works, the possible presence of contaminated water and the need to avoid |
All area/ Detailed design/ During construction/
During operation |
Contractor(s) |
ü |
ü |
ü |
Implemented |
|
|
EIA Reference |
Recommended Environmental Protection Measures/ Mitigation Measures |
Objectives of the recommended
measures & main concerns to address |
Implementation Agent |
Implementation Stage |
Implementation Status |
Relevant Legislation & Guidelines |
||
|
D |
C |
O |
||||||
|
|
physical contact
with it. |
|
|
|
|
|
|
|
|
S12.7 |
Monitoring for landfill gas should be undertaken
in all excavations, manholes, chambers (particularly during pipe jacking) and any confined spaces through the use of an intrinsically safe portable instrument, appropriately calibrated and capable
of measuring the concentrations of methane. carbon dioxide and oxygen. |
All area/ Detailed design/ During construction/
During operation |
Contractor(s) |
ü |
ü |
ü |
Implemented |
|
|
S12.7 |
Monitoring frequency and areas to be monitored should be specified prior to
commencement of groundwork,
either by the Safety
Officer, or by an appropriately qualified person. All
measurements should be
recorded and documented. |
All area/ Detailed design/ During construction/
During operation |
Contractor(s) |
ü |
ü |
ü |
Implemented |
|
|
S12.7 |
Proceed drilling with adequate care and precautions against the potential hazards
which may be encountered. |
All area/ Detailed design/ During construction/ During operation |
Contractor(s) |
ü |
ü |
ü |
Implemented |
|
|
S12.7 |
Prior to the commencement of the site works, the
drilling contractor should devise a
'method-of- working' statement covering all normal
and emergency procedures
(including but not limited
to number of operatives, experience and special skills of operatives, normal method of operations, emergency procedures, supervisors responsibilities, storage and use of safety equipment, safety procedures and signs, barriers and guarding). The site supervisor and all operatives must
be familiar with
this statement. |
All area/ During construction/ During operation |
Contractor(s) |
ü |
ü |
ü |
Implemented |
|
|
EIA Reference |
Recommended Environmental Protection Measures/ Mitigation Measures |
Objectives of the recommended
measures & main concerns to address |
Implementation Agent |
Implementation Stage |
Implementation Status |
Relevant Legislation & Guidelines |
||
|
D |
C |
O |
||||||
|
S12.7 |
Where below ground service entries are necessary to the Incoming Switchgear Room,
132 kV Substation and Chlorine
Store (I) and (II), the entry point
should be sealed to prevent gas
entry. In addition, any below grade cable trenches entering the Incoming Switchgear Room and 132 kV Substation can become
the pathway for landfill gas and hence grilled metal covers should
be used. |
All area/ Detailed design/ During construction/
During operation |
Contractor(s) |
ü |
ü |
ü |
N/A |
|
|
S12.7 |
It is recommended regular landfill gas monitoring should be
carried out at the Incoming
Switchgear Room, 132 kV Substation and Chlorine Store (I) and
(II). The monitoring frequency will be monthly for
the first year of operation. If the
monitoring results show no sign
of landfill gas migration, reduce the monitoring frequency to once every
six months. |
All area/ Detailed design/ During construction/
During operation |
Contractor(s) |
ü |
ü |
ü |
N/A |
|
|
S12.7 |
The manholes and utility pits within the Project
Site and along the fresh
water mains. Each manhole/ utility pit should be monitored with two measurements (at mid depth and base). Each measurement should be
monitored for a minimum of 10 minutes. A steady reading and peak reading should be recorded at
each manhole/ utility pit and for each measurement. The need for
venting the manhole/ utility
pit and further monitoring will be reviewed after the initial monitoring. |
All area/ Detailed design/ During construction/
During operation |
Contractor(s) |
ü |
ü |
ü |
Implemented |
|
|
S12.7 |
All construction,
operation and
maintenance personnel working on-site as well as visitors should
be made aware
of the hazards
of landfill gas and its possible presence on-site. This should be achieved through a combination of posting warning
signs in prominent places and also by access to detailed information on landfill gas hazards and the designs and procedural means by which
these hazards are |
All area/ Detailed design/ During construction/
During operation |
Contractor(s) |
ü |
ü |
ü |
Implemented |
|
|
EIA Reference |
Recommended Environmental Protection Measures/ Mitigation Measures |
Objectives of the recommended
measures & main concerns to address |
Implementation Agent |
Implementation Stage |
Implementation Status |
Relevant Legislation & Guidelines |
||
|
D |
C |
O |
||||||
|
|
being minimized on-site. |
|
|
|
|
|
|
|
Note: D -Design
stage C -Construction O -Operation
Appendix D
Impact Monitoring Schedule of the Reporting Month
|
Contract
No. 13/WSD/17 Design, Build and Operate
First Stage of Tseung Kwan O
Desalination Plant EM&A Water
Quality Monitoring Schedule |
||||||
|
Dec |
||||||
|
Sun |
Mon |
Tue |
Wed |
Thu |
Fri |
Sat |
|
|
|
|
1 |
2 |
3 |
4 |
|
|
|
|
|
Impact Water Quality monitoring for CE, CF,
WSR1, WSR2, WSR3,
WSR4, WSR16, WSR33,
WSR36, WSR37 Tidal Period: Ebb Tide: 07:58 - 13:00 Flood Tide: 13:00 - 20:00 Monitoring Time: Mid-ebb: 08:44 - 12:14 Mid-flood: 14:45 - 18:15 |
|
Impact Water Quality monitoring for CE, CF, WSR1, WSR2,
WSR3, WSR4, WSR16,
WSR33, WSR36, WSR37 Tidal Period: Ebb Tide: 10:05-14:09 Flood Tide: 14:09-20:49 Monitoring Time: Mid-ebb: 10:22-13:52 Mid-flood: 15:44 - 19:00&$# |
|
5 |
6 |
7 |
8 |
9 |
10 |
11 |
|
|
|
Impact Water Quality monitoring for CE, CF,
WSR1, WSR2, WSR3,
WSR4, WSR16, WSR33,
WSR36, WSR37 Tidal Period: Ebb Tide: 13:00-16:00 Flood Tide: 06:00-13:00 Monitoring Time: Mid-ebb: 12:45-16:15 Mid-flood: 08:00-11:15* |
|
Impact Water Quality monitoring for CE, CF,
WSR1, WSR2, WSR3,
WSR4, WSR16, WSR33,
WSR36, WSR37 Tidal Period: Ebb Tide: 14:00-17:00 Flood Tide: 07:32-14:00 Monitoring Time: Mid-ebb: 13:45-17:15 Mid-flood: 09:01-12:31 |
|
Impact Water Quality monitoring for CE, CF, WSR1, WSR2,
WSR3, WSR4, WSR16,
WSR33, WSR36, WSR37 Tidal Period: Ebb Tide: 17:00-20:00 Flood Tide: 09:19-17:00 Monitoring Time: Mid-ebb: 16:45-19:00&$ Mid-flood: 11:24-14:54 |
|
12 |
13 |
14 |
15 |
16 |
17 |
18 |
|
|
|
Impact Water Quality monitoring for CE, CF,
WSR1, WSR2, WSR3,
WSR4, WSR16, WSR33,
WSR36, WSR37 Tidal Period: Ebb Tide: 06:04-11:34 Flood Tide: 11:34-19:03 Monitoring Time: Mid-ebb: 08:00-11:17* Mid-flood: 13:33-17:03 |
|
Impact Water Quality monitoring for CE, CF,
WSR1, WSR2, WSR3,
WSR4, WSR16, WSR33,
WSR36, WSR37 Tidal Period: Ebb Tide: 08:23-12:33 Flood Tide: 12:33-19:53 Monitoring Time: Mid-ebb: 08:43-12:13 Mid-flood: 14:28-17:58 |
|
Impact Water Quality monitoring for CE, CF, WSR1, WSR2,
WSR3, WSR4, WSR16,
WSR33, WSR36, WSR37 Tidal Period: Ebb Tide: 10:00-13:11 Flood Tide: 13:11-20:35 Monitoring Time: Mid-ebb: 09:50-13:20 Mid-flood: 15:08-18:38 |
|
19 |
20 |
21 |
22 |
23 |
24 |
25 |
|
|
|
Impact Water Quality monitoring for CE, CF,
WSR1, WSR2, WSR3,
WSR4, WSR16, WSR33,
WSR36, WSR37 Tidal Period: Ebb Tide: 11:56-14:23 Flood Tide: 05:03-11:56 Monitoring Time: Mid-ebb: 11:24-14:54 Mid-flood:08:00-10:14*$# |
|
Impact Water Quality monitoring for CE, CF,
WSR1, WSR2, WSR3,
WSR4, WSR16, WSR33,
WSR36, WSR37 Tidal Period: Ebb Tide: 13:00-16:00 Flood Tide: 06:18-13:00 Monitoring Time: Mid-ebb: 12:45-16:15 Mid-flood: 08:00-11:24* |
|
Impact Water Quality monitoring for CE, CF, WSR1, WSR2,
WSR3, WSR4, WSR16,
WSR33, WSR36, WSR37 Tidal Period: Ebb Tide: 15:00-18:00 Flood Tide: 07:40-15:00 Monitoring Time: Mid-ebb: 14:45-18:15 Mid-flood: 09:35-13:05 |
|
26 |
27 |
28 |
29 |
30 |
31 |
|
|
|
|
Impact Water Quality monitoring for CE, CF,
WSR1, WSR2, WSR3,
WSR4, WSR16, WSR33,
WSR36, WSR37 Tidal Period: Ebb Tide: 17:19-22:36 Flood Tide: 10:00-17:19 Monitoring Time: Mid-ebb: 17:34-19:00&#$ Mid-flood:11:54-15:24 |
|
Impact Water Quality monitoring for CE, CF,
WSR1, WSR2, WSR3,
WSR4, WSR16, WSR33,
WSR36, WSR37 Tidal Period: Ebb Tide: 07:00-11:21 Flood Tide: 11:21-18:26 Monitoring Time: Mid-ebb: 08:00-10:55*$ Mid-flood:13:08-16:38 |
|
|
|
Remarks: Monitoring Parameters: Dissolved oxygen, Temperature, pH, Turbidity, Salinity, Suspended Solids Note: * - Due to safety
concern of vessel
transportation earlier than
0700, Water Quality
Monitoring would start
at 0800. $ - Since predicted tide is shorter
than 3.5 hours,
method of 90% tidal period
as monitoring time is adopted. & - Due to safety
concern for sampling event in night-time, method of 90% tidal period
as monitoring time
is approached and end at 1900. # - Prioritized routing: Mid-Ebb: CE¡÷WSR16¡÷WSR37¡÷WSR36¡÷WSR33¡÷Remaining stations and Mid-Flood: CF¡÷WSR1¡÷WSR2¡÷WSR3¡÷WSR4¡÷Remaining stations |
||||||
|
|
||||||
Appendix E
Event/Action Plan for Noise Exceedance
![]()
![]()
Appendix F
Noise Monitoring Equipment Calibration Certificate (BLANK)
(BLANK)
Appendix G
Event/Action Plan for Water Quality Exceedance
![]()



Appendix H Waste Flow Table


Appendix I
Site Inspection Proforma




































Appendix J
Complaint Log
Statistical Summary of Environmental Complaints
|
Reporting Period |
Environmental Complaint Statistics |
||
|
Frequency |
Cumulative |
Complaint Nature |
|
|
01 Dec 2021 - 31 Dec 2021 |
0 |
0 |
N/A |
Statistical Summary of Environmental Summons
|
Reporting Period |
Environmental Summons Statistics |
||
|
Frequency |
Cumulative |
Details |
|
|
01 Dec 2021 - 31 Dec 2021 |
0 |
0 |
N/A |
Statistical Summary of Environmental Prosecution
|
Reporting Period |
Environmental Prosecution Statistics |
||
|
Frequency |
Cumulative |
Details |
|
|
01 Dec 2021 - 31 Dec 2021 |
0 |
0 |
N/A |
Appendix K
Impact Monitoring Schedule of Next Reporting Month
|
Contract
No. 13/WSD/17 Design, Build and Operate
First Stage of Tseung Kwan O
Desalination Plant EM&A Water
Quality Monitoring Schedule |
||||||
|
Jan |
||||||
|
Sun |
Mon |
Tue |
Wed |
Thu |
Fri |
Sat |
|
|
|
|
|
|
|
1 |
|
|
|
|
|
|
|
Impact Water Quality monitoring for CE, CF, WSR1, WSR2,
WSR3, WSR4, WSR16,
WSR33, WSR36, WSR37 Tidal Period: Ebb Tide: 09:19-13:00 Flood Tide: 13:00-19:39 Monitoring Time: Mid-ebb: 09:24-12:54 Mid-flood: 14:34-18:04 |
|
2 |
3 |
4 |
5 |
6 |
7 |
8 |
|
|
|
Impact Water Quality monitoring for CE, CF,
WSR1, WSR2, WSR3,
WSR4, WSR16, WSR33,
WSR36, WSR37 Tidal Period: Ebb Tide: 11:55-15:07 Flood Tide: 04:43-11:55 Monitoring Time: Mid-ebb: 11:46-15:16 Mid-flood: 08:00-10:04*$# |
|
Impact Water Quality monitoring for CE, CF,
WSR1, WSR2, WSR3,
WSR4, WSR16, WSR33,
WSR36, WSR37 Tidal Period: Ebb Tide: 13:27-17:00 Flood Tide: 06:14-13:27 Monitoring Time: Mid-ebb: 13:28-16:58 Mid-flood: 08:05-11:35 |
|
Impact Water Quality monitoring for CE, CF, WSR1, WSR2,
WSR3, WSR4, WSR16,
WSR33, WSR36, WSR37 Tidal Period: Ebb Tide: 15:00-19:00 Flood Tide: 07:32-15:00 Monitoring Time: Mid-ebb: 15:15-18:45 Mid-flood: 09:31-13:01 |
|
9 |
10 |
11 |
12 |
13 |
14 |
15 |
|
|
|
Impact Water Quality monitoring for CE, CF,
WSR1, WSR2, WSR3,
WSR4, WSR16, WSR33,
WSR36, WSR37 Tidal Period: Ebb Tide: 09:14-17:38 Flood Tide: 17:38-23:00 Monitoring Time: Mid-ebb: 11:41-15:11 Mid-flood: 17:40-19:00&$# |
|
Impact Water Quality monitoring for CE, CF,
WSR1, WSR2, WSR3,
WSR4, WSR16, WSR33,
WSR36, WSR37 Tidal Period: Ebb Tide: 07:31-10:16 Flood Tide: 10:16-18:49 Monitoring Time: Mid-ebb: 08:00-10:38*$# Mid-flood: 12:47-16:17 |
|
Impact Water Quality monitoring for CE, CF, WSR1, WSR2,
WSR3, WSR4, WSR16,
WSR33, WSR36, WSR37 Tidal Period: Ebb Tide: 10:00-12:00 Flood Tide: 12:00-19:40 Monitoring Time: Mid-ebb: 09:15-12:45 Mid-flood: 14:05-17:35 |
|
16 |
17 |
18 |
19 |
20 |
21 |
22 |
|
|
|
Impact Water Quality monitoring for CE, CF,
WSR1, WSR2, WSR3,
WSR4, WSR16, WSR33,
WSR36, WSR37 Tidal Period: Ebb Tide: 11:06-14:00 Flood Tide: 04:18-11:06 Monitoring Time: Mid-ebb: 10:48-14:18 Mid-flood:08:00-10:45*$# |
|
Impact Water Quality monitoring for CE, CF,
WSR1, WSR2, WSR3,
WSR4, WSR16, WSR33,
WSR36, WSR37 Tidal Period: Ebb Tide: 12:02-15:24 Flood Tide: 05:19-12:02 Monitoring Time: Mid-ebb: 11:58-15:28 Mid-flood: 08:00-10:25*$# |
|
Impact Water Quality monitoring for CE, CF, WSR1, WSR2,
WSR3, WSR4, WSR16,
WSR33, WSR36, WSR37 Tidal Period: Ebb Tide: 13:13-17:05 Flood Tide: 06:21-13:13 Monitoring Time: Mid-ebb: 13:24-16:54 Mid-flood: 08:02-11:32 |
|
23 |
24 |
25 |
26 |
27 |
28 |
29 |
|
|
|
Impact Water Quality monitoring for CE, CF,
WSR1, WSR2, WSR3,
WSR4, WSR16, WSR33,
WSR36, WSR37 Tidal Period: Ebb Tide: 15:28-20:28 Flood Tide: 08:00-15:28 Monitoring Time: Mid-ebb: 15:43-19:00&$# Mid-flood:09:59-13:29 |
|
Impact Water Quality monitoring for CE, CF,
WSR1, WSR2, WSR3,
WSR4, WSR16, WSR33,
WSR36, WSR37 Tidal Period: Ebb Tide: 05:21-09:25 Flood Tide: 09:25-16:58 Monitoring Time: Mid-ebb:08:00-09:12*$# Mid-flood:11:26-14:56 |
|
Impact Water Quality monitoring for CE, CF, WSR1, WSR2,
WSR3, WSR4, WSR16,
WSR33, WSR36, WSR37 Tidal Period: Ebb Tide: 08:38-11:20 Flood Tide: 11:20-18:31 Monitoring Time: Mid-ebb: 08:14-11:44 Mid-flood: 13:10-16:40 |
|
30 |
31 |
|
||||
|
|
Impact Water Quality monitoring for CE, CF,
WSR1, WSR2, WSR3,
WSR4, WSR16, WSR33,
WSR36, WSR37 Tidal Period: Ebb Tide: 10:17-13:25 Flood Tide: 13:25-20:20 Monitoring Time: Mid-ebb: 10:06-13:36 Mid-flood: 15:07-18:37 |
|||||
|
Remarks: Monitoring Parameters: Dissolved oxygen, Temperature, pH, Turbidity, Salinity, Suspended Solids Note: * - Due to safety
concern of vessel
transportation earlier than
0700, Water Quality
Monitoring would start
at 0800. $ - Since predicted tide is shorter
than 3.5 hours,
method of 90% tidal period
as monitoring time is adopted. & - Due to safety
concern for sampling event in night-time, method of 90% tidal period
as monitoring time
is approached and end at 1900. # - Prioritized routing: Mid-Ebb: CE¡÷WSR16¡÷WSR37¡÷WSR36¡÷WSR33¡÷Remaining stations and Mid-Flood: CF¡÷WSR1¡÷WSR2¡÷WSR3¡÷WSR4¡÷Remaining stations |
||||||
Appendix L
Water Quality
and Landfill Gas Monitoring Data
|
Location |
Date (YYYYMMDD) |
Weather |
Sea Condition |
Tidal |
Water Level |
Depth (m) |
Time (hh:mm) |
DO (mg/L) |
pH |
Sal (ppt) |
Temp (¢XC) |
Turbidty (NTU) note 1 |
SS (mg/L) (Note 2) |
|
CE |
20211202 |
Sunny |
Moderate |
Mid-Flood |
Surface |
1.00 |
5:23:00 PM |
9.60 |
8.37 |
31.93 |
25.81 |
3.99 |
4.00 |
|
CE |
20211202 |
Sunny |
Moderate |
Mid-Flood |
Surface |
1.00 |
5:23:00 PM |
9.82 |
8.26 |
31.87 |
25.69 |
3.93 |
3.00 |
|
CE |
20211202 |
Sunny |
Moderate |
Mid-Flood |
Middle |
12.20 |
5:22:00 PM |
9.79 |
8.32 |
31.80 |
25.75 |
4.25 |
3.00 |
|
CE |
20211202 |
Sunny |
Moderate |
Mid-Flood |
Middle |
12.20 |
5:22:00 PM |
9.70 |
8.28 |
31.93 |
25.73 |
3.94 |
4.00 |
|
CE |
20211202 |
Sunny |
Moderate |
Mid-Flood |
Bottom |
23.40 |
5:21:00 PM |
9.75 |
8.23 |
31.90 |
25.68 |
4.48 |
4.00 |
|
CE |
20211202 |
Sunny |
Moderate |
Mid-Flood |
Bottom |
23.40 |
5:21:00 PM |
9.70 |
8.23 |
31.73 |
25.63 |
4.70 |
3.00 |
|
CE |
20211204 |
Sunny |
Moderate |
Mid-Flood |
Surface |
1.00 |
6:14:00 PM |
8.26 |
8.38 |
30.66 |
24.50 |
3.47 |
3.00 |
|
CE |
20211204 |
Sunny |
Moderate |
Mid-Flood |
Surface |
1.00 |
6:14:00 PM |
8.13 |
8.42 |
30.60 |
24.49 |
3.17 |
3.00 |
|
CE |
20211204 |
Sunny |
Moderate |
Mid-Flood |
Middle |
10.85 |
6:13:00 PM |
8.21 |
8.42 |
30.61 |
24.55 |
3.42 |
3.00 |
|
CE |
20211204 |
Sunny |
Moderate |
Mid-Flood |
Middle |
10.85 |
6:13:00 PM |
8.12 |
8.37 |
30.62 |
24.53 |
3.20 |
2.50 |
|
CE |
20211204 |
Sunny |
Moderate |
Mid-Flood |
Bottom |
20.70 |
6:12:00 PM |
8.31 |
8.34 |
30.68 |
24.59 |
3.79 |
4.00 |
|
CE |
20211204 |
Sunny |
Moderate |
Mid-Flood |
Bottom |
20.70 |
6:12:00 PM |
8.19 |
8.34 |
30.71 |
24.46 |
3.42 |
4.00 |
|
CE |
20211207 |
Sunny |
Moderate |
Mid-Flood |
Surface |
1.00 |
10:27:00 AM |
9.14 |
8.29 |
32.14 |
25.43 |
3.36 |
7.00 |
|
CE |
20211207 |
Sunny |
Moderate |
Mid-Flood |
Surface |
1.00 |
10:27:00 AM |
9.17 |
8.28 |
32.12 |
25.51 |
3.35 |
7.00 |
|
CE |
20211207 |
Sunny |
Moderate |
Mid-Flood |
Middle |
11.85 |
10:26:00 AM |
9.04 |
8.32 |
31.94 |
25.45 |
3.05 |
6.00 |
|
CE |
20211207 |
Sunny |
Moderate |
Mid-Flood |
Middle |
11.85 |
10:26:00 AM |
9.17 |
8.36 |
32.18 |
25.50 |
3.29 |
7.00 |
|
CE |
20211207 |
Sunny |
Moderate |
Mid-Flood |
Bottom |
22.70 |
10:25:00 AM |
9.20 |
8.34 |
31.92 |
25.41 |
3.66 |
6.00 |
|
CE |
20211207 |
Sunny |
Moderate |
Mid-Flood |
Bottom |
22.70 |
10:25:00 AM |
9.25 |
8.31 |
32.09 |
25.39 |
3.85 |
6.00 |
|
CE |
20211209 |
Sunny |
Moderate |
Mid-Flood |
Surface |
1.00 |
11:26:00 AM |
8.45 |
8.23 |
33.42 |
23.89 |
2.89 |
5.00 |
|
CE |
20211209 |
Sunny |
Moderate |
Mid-Flood |
Surface |
1.00 |
11:26:00 AM |
8.48 |
8.17 |
33.37 |
23.75 |
3.12 |
4.00 |
|
CE |
20211209 |
Sunny |
Moderate |
Mid-Flood |
Middle |
12.10 |
11:25:00 AM |
8.51 |
8.19 |
33.43 |
23.72 |
3.53 |
6.00 |
|
CE |
20211209 |
Sunny |
Moderate |
Mid-Flood |
Middle |
12.10 |
11:25:00 AM |
8.49 |
8.26 |
33.33 |
23.85 |
3.00 |
6.00 |
|
CE |
20211209 |
Sunny |
Moderate |
Mid-Flood |
Bottom |
23.20 |
11:24:00 AM |
8.37 |
8.25 |
33.30 |
23.73 |
3.71 |
6.00 |
|
CE |
20211209 |
Sunny |
Moderate |
Mid-Flood |
Bottom |
23.20 |
11:24:00 AM |
8.39 |
8.26 |
33.33 |
23.88 |
3.21 |
7.00 |
|
CE |
20211211 |
Sunny |
Moderate |
Mid-Flood |
Surface |
1.00 |
1:45:00 PM |
9.00 |
8.42 |
32.05 |
24.00 |
3.11 |
4.00 |
|
CE |
20211211 |
Sunny |
Moderate |
Mid-Flood |
Surface |
1.00 |
1:45:00 PM |
9.08 |
8.41 |
32.15 |
24.10 |
2.72 |
3.00 |
|
Location |
Date (YYYYMMDD) |
Weather |
Sea Condition |
Tidal |
Water Level |
Depth (m) |
Time (hh:mm) |
DO (mg/L) |
pH |
Sal (ppt) |
Temp (¢XC) |
Turbidty (NTU) note 1 |
SS (mg/L) (Note 2) |
|
CE |
20211211 |
Sunny |
Moderate |
Mid-Flood |
Middle |
11.80 |
1:44:00 PM |
9.10 |
8.36 |
31.92 |
24.16 |
3.17 |
3.00 |
|
CE |
20211211 |
Sunny |
Moderate |
Mid-Flood |
Middle |
11.80 |
1:44:00 PM |
9.18 |
8.35 |
32.05 |
24.02 |
2.88 |
4.00 |
|
CE |
20211211 |
Sunny |
Moderate |
Mid-Flood |
Bottom |
22.60 |
1:43:00 PM |
9.21 |
8.36 |
32.20 |
24.08 |
3.59 |
5.00 |
|
CE |
20211211 |
Sunny |
Moderate |
Mid-Flood |
Bottom |
22.60 |
1:43:00 PM |
9.06 |
8.35 |
32.03 |
24.09 |
3.01 |
5.00 |
|
CE |
20211214 |
Sunny |
Moderate |
Mid-Flood |
Surface |
1.00 |
4:07:00 PM |
8.74 |
8.10 |
32.15 |
23.38 |
3.65 |
2.50 |
|
CE |
20211214 |
Sunny |
Moderate |
Mid-Flood |
Surface |
1.00 |
4:07:00 PM |
8.51 |
8.12 |
32.03 |
23.29 |
3.21 |
2.50 |
|
CE |
20211214 |
Sunny |
Moderate |
Mid-Flood |
Middle |
10.00 |
4:06:00 PM |
8.66 |
8.05 |
32.12 |
23.27 |
2.92 |
3.00 |
|
CE |
20211214 |
Sunny |
Moderate |
Mid-Flood |
Middle |
10.00 |
4:06:00 PM |
8.79 |
8.06 |
32.37 |
23.34 |
3.05 |
4.00 |
|
CE |
20211214 |
Sunny |
Moderate |
Mid-Flood |
Bottom |
19.00 |
4:05:00 PM |
8.80 |
8.11 |
31.85 |
23.24 |
3.67 |
3.00 |
|
CE |
20211214 |
Sunny |
Moderate |
Mid-Flood |
Bottom |
19.00 |
4:05:00 PM |
8.79 |
8.07 |
32.26 |
23.30 |
3.58 |
4.00 |
|
CE |
20211216 |
Cloudy |
Moderate |
Mid-Flood |
Surface |
1.00 |
5:00:00 PM |
8.67 |
8.36 |
32.95 |
23.71 |
3.96 |
4.00 |
|
CE |
20211216 |
Cloudy |
Moderate |
Mid-Flood |
Surface |
1.00 |
5:00:00 PM |
8.73 |
8.33 |
33.06 |
23.65 |
3.82 |
4.00 |
|
CE |
20211216 |
Cloudy |
Moderate |
Mid-Flood |
Middle |
10.45 |
4:59:00 PM |
8.74 |
8.34 |
33.06 |
23.67 |
3.13 |
7.00 |
|
CE |
20211216 |
Cloudy |
Moderate |
Mid-Flood |
Middle |
10.45 |
4:59:00 PM |
8.61 |
8.34 |
33.02 |
23.72 |
3.51 |
6.00 |
|
CE |
20211216 |
Cloudy |
Moderate |
Mid-Flood |
Bottom |
19.90 |
4:58:00 PM |
8.76 |
8.35 |
32.93 |
23.67 |
3.80 |
5.00 |
|
CE |
20211216 |
Cloudy |
Moderate |
Mid-Flood |
Bottom |
19.90 |
4:58:00 PM |
8.74 |
8.35 |
33.01 |
23.73 |
3.92 |
4.00 |
|
CE |
20211218 |
Cloudy |
Moderate |
Mid-Flood |
Surface |
1.00 |
5:42:00 PM |
8.19 |
8.25 |
32.74 |
23.51 |
2.97 |
3.00 |
|
CE |
20211218 |
Cloudy |
Moderate |
Mid-Flood |
Surface |
1.00 |
5:42:00 PM |
8.13 |
8.27 |
32.68 |
23.50 |
3.18 |
2.50 |
|
CE |
20211218 |
Cloudy |
Moderate |
Mid-Flood |
Middle |
10.90 |
5:41:00 PM |
8.19 |
8.26 |
32.76 |
23.44 |
2.75 |
7.00 |
|
CE |
20211218 |
Cloudy |
Moderate |
Mid-Flood |
Middle |
10.90 |
5:41:00 PM |
8.13 |
8.21 |
32.75 |
23.42 |
2.66 |
6.00 |
|
CE |
20211218 |
Cloudy |
Moderate |
Mid-Flood |
Bottom |
20.80 |
5:40:00 PM |
8.15 |
8.29 |
32.74 |
23.49 |
2.92 |
8.00 |
|
CE |
20211218 |
Cloudy |
Moderate |
Mid-Flood |
Bottom |
20.80 |
5:40:00 PM |
7.98 |
8.20 |
32.65 |
23.50 |
3.20 |
5.00 |
|
CE |
20211221 |
Cloudy |
Moderate |
Mid-Flood |
Surface |
1.00 |
10:30:00 AM |
7.89 |
8.27 |
32.35 |
22.58 |
4.16 |
5.00 |
|
CE |
20211221 |
Cloudy |
Moderate |
Mid-Flood |
Surface |
1.00 |
10:30:00 AM |
7.93 |
8.30 |
32.22 |
22.57 |
3.90 |
4.00 |
|
CE |
20211221 |
Cloudy |
Moderate |
Mid-Flood |
Middle |
10.15 |
10:29:00 AM |
7.90 |
8.33 |
32.28 |
22.47 |
3.12 |
5.00 |
|
CE |
20211221 |
Cloudy |
Moderate |
Mid-Flood |
Middle |
10.15 |
10:29:00 AM |
7.89 |
8.30 |
32.38 |
22.61 |
2.97 |
4.00 |
|
CE |
20211221 |
Cloudy |
Moderate |
Mid-Flood |
Bottom |
19.30 |
10:28:00 AM |
7.91 |
8.28 |
32.23 |
22.47 |
3.67 |
9.00 |
|
Location |
Date (YYYYMMDD) |
Weather |
Sea Condition |
Tidal |
Water Level |
Depth (m) |
Time (hh:mm) |
DO (mg/L) |
pH |
Sal (ppt) |
Temp (¢XC) |
Turbidty (NTU) note 1 |
SS (mg/L) (Note 2) |
|
CE |
20211221 |
Cloudy |
Moderate |
Mid-Flood |
Bottom |
19.30 |
10:28:00 AM |
7.90 |
8.32 |
32.21 |
22.50 |
3.16 |
12.00 |
|
CE |
20211223 |
Cloudy |
Moderate |
Mid-Flood |
Surface |
1.00 |
10:33:00 AM |
8.04 |
8.28 |
32.98 |
22.22 |
3.42 |
3.00 |
|
CE |
20211223 |
Cloudy |
Moderate |
Mid-Flood |
Surface |
1.00 |
10:33:00 AM |
8.23 |
8.25 |
32.86 |
22.21 |
3.72 |
3.00 |
|
CE |
20211223 |
Cloudy |
Moderate |
Mid-Flood |
Middle |
11.75 |
10:32:00 AM |
7.98 |
8.23 |
32.90 |
22.31 |
3.50 |
6.00 |
|
CE |
20211223 |
Cloudy |
Moderate |
Mid-Flood |
Middle |
11.75 |
10:32:00 AM |
8.10 |
8.27 |
32.98 |
22.24 |
3.72 |
5.00 |
|
CE |
20211223 |
Cloudy |
Moderate |
Mid-Flood |
Bottom |
22.50 |
10:31:00 AM |
8.20 |
8.30 |
32.98 |
22.13 |
4.19 |
6.00 |
|
CE |
20211223 |
Cloudy |
Moderate |
Mid-Flood |
Bottom |
22.50 |
10:31:00 AM |
8.06 |
8.30 |
32.90 |
22.31 |
4.25 |
6.00 |
|
CE |
20211225 |
Sunny |
Moderate |
Mid-Flood |
Surface |
1.00 |
12:05:00 PM |
8.23 |
8.15 |
32.49 |
22.17 |
4.16 |
3.00 |
|
CE |
20211225 |
Sunny |
Moderate |
Mid-Flood |
Surface |
1.00 |
12:05:00 PM |
8.29 |
8.17 |
32.44 |
22.33 |
4.89 |
4.00 |
|
CE |
20211225 |
Sunny |
Moderate |
Mid-Flood |
Middle |
12.00 |
12:04:00 PM |
8.30 |
8.17 |
32.43 |
22.26 |
3.60 |
3.00 |
|
CE |
20211225 |
Sunny |
Moderate |
Mid-Flood |
Middle |
12.00 |
12:04:00 PM |
8.23 |
8.13 |
32.49 |
22.25 |
3.34 |
3.00 |
|
CE |
20211225 |
Sunny |
Moderate |
Mid-Flood |
Bottom |
23.00 |
12:03:00 PM |
8.22 |
8.19 |
32.56 |
22.33 |
3.40 |
4.00 |
|
CE |
20211225 |
Sunny |
Moderate |
Mid-Flood |
Bottom |
23.00 |
12:03:00 PM |
8.27 |
8.20 |
32.42 |
22.19 |
3.14 |
5.00 |
|
CE |
20211228 |
Cloudy |
Moderate |
Mid-Flood |
Surface |
1.00 |
2:20:00 PM |
8.72 |
8.15 |
31.40 |
22.25 |
3.74 |
5.00 |
|
CE |
20211228 |
Cloudy |
Moderate |
Mid-Flood |
Surface |
1.00 |
2:20:00 PM |
8.69 |
8.17 |
31.33 |
22.37 |
3.55 |
5.00 |
|
CE |
20211228 |
Cloudy |
Moderate |
Mid-Flood |
Middle |
10.55 |
2:19:00 PM |
8.53 |
8.19 |
31.37 |
22.25 |
3.96 |
4.00 |
|
CE |
20211228 |
Cloudy |
Moderate |
Mid-Flood |
Middle |
10.55 |
2:19:00 PM |
8.64 |
8.18 |
31.41 |
22.41 |
4.04 |
5.00 |
|
CE |
20211228 |
Cloudy |
Moderate |
Mid-Flood |
Bottom |
20.10 |
2:18:00 PM |
8.67 |
8.20 |
31.33 |
22.38 |
3.56 |
3.00 |
|
CE |
20211228 |
Cloudy |
Moderate |
Mid-Flood |
Bottom |
20.10 |
2:18:00 PM |
8.65 |
8.14 |
31.40 |
22.40 |
3.88 |
3.00 |
|
CE |
20211230 |
Sunny |
Moderate |
Mid-Flood |
Surface |
1.00 |
4:46:00 PM |
8.38 |
8.41 |
32.96 |
22.24 |
5.17 |
6.00 |
|
CE |
20211230 |
Sunny |
Moderate |
Mid-Flood |
Surface |
1.00 |
4:46:00 PM |
8.59 |
8.38 |
33.05 |
22.19 |
4.89 |
8.00 |
|
CE |
20211230 |
Sunny |
Moderate |
Mid-Flood |
Middle |
11.45 |
4:45:00 PM |
8.59 |
8.34 |
32.93 |
22.26 |
4.90 |
8.00 |
|
CE |
20211230 |
Sunny |
Moderate |
Mid-Flood |
Middle |
11.45 |
4:45:00 PM |
8.57 |
8.42 |
32.99 |
22.25 |
4.82 |
8.00 |
|
CE |
20211230 |
Sunny |
Moderate |
Mid-Flood |
Bottom |
21.90 |
4:44:00 PM |
8.53 |
8.39 |
33.03 |
22.22 |
4.33 |
9.00 |
|
CE |
20211230 |
Sunny |
Moderate |
Mid-Flood |
Bottom |
21.90 |
4:44:00 PM |
8.36 |
8.33 |
33.00 |
22.31 |
4.23 |
8.00 |
|
CF |
20211202 |
Sunny |
Moderate |
Mid-Flood |
Surface |
1.00 |
2:51:00 PM |
9.72 |
8.32 |
32.25 |
25.48 |
4.83 |
3.00 |
|
CF |
20211202 |
Sunny |
Moderate |
Mid-Flood |
Surface |
1.00 |
2:51:00 PM |
9.56 |
8.36 |
32.29 |
25.50 |
4.99 |
3.00 |
|
Location |
Date (YYYYMMDD) |
Weather |
Sea Condition |
Tidal |
Water Level |
Depth (m) |
Time (hh:mm) |
DO (mg/L) |
pH |
Sal (ppt) |
Temp (¢XC) |
Turbidty (NTU) note 1 |
SS (mg/L) (Note 2) |
|
CF |
20211202 |
Sunny |
Moderate |
Mid-Flood |
Middle |
10.60 |
2:50:00 PM |
9.64 |
8.35 |
32.31 |
25.55 |
5.12 |
4.00 |
|
CF |
20211202 |
Sunny |
Moderate |
Mid-Flood |
Middle |
10.60 |
2:50:00 PM |
9.62 |
8.44 |
32.32 |
25.67 |
5.03 |
3.00 |
|
CF |
20211202 |
Sunny |
Moderate |
Mid-Flood |
Bottom |
20.20 |
2:49:00 PM |
9.62 |
8.39 |
32.20 |
25.62 |
5.47 |
3.00 |
|
CF |
20211202 |
Sunny |
Moderate |
Mid-Flood |
Bottom |
20.20 |
2:49:00 PM |
9.54 |
8.38 |
32.30 |
25.59 |
4.88 |
3.00 |
|
CF |
20211204 |
Sunny |
Moderate |
Mid-Flood |
Surface |
1.00 |
3:46:00 PM |
8.56 |
8.28 |
30.90 |
24.76 |
3.44 |
3.00 |
|
CF |
20211204 |
Sunny |
Moderate |
Mid-Flood |
Surface |
1.00 |
3:46:00 PM |
8.59 |
8.36 |
30.94 |
24.77 |
3.55 |
3.00 |
|
CF |
20211204 |
Sunny |
Moderate |
Mid-Flood |
Middle |
10.85 |
3:45:00 PM |
8.66 |
8.39 |
30.90 |
24.71 |
3.10 |
4.00 |
|
CF |
20211204 |
Sunny |
Moderate |
Mid-Flood |
Middle |
10.85 |
3:45:00 PM |
8.65 |
8.30 |
30.91 |
24.72 |
3.64 |
4.00 |
|
CF |
20211204 |
Sunny |
Moderate |
Mid-Flood |
Bottom |
20.70 |
3:44:00 PM |
8.51 |
8.35 |
30.83 |
24.67 |
4.02 |
6.00 |
|
CF |
20211204 |
Sunny |
Moderate |
Mid-Flood |
Bottom |
20.70 |
3:44:00 PM |
8.74 |
8.36 |
30.83 |
24.80 |
3.65 |
5.00 |
|
CF |
20211207 |
Sunny |
Moderate |
Mid-Flood |
Surface |
1.00 |
8:02:00 AM |
8.69 |
8.32 |
32.11 |
25.88 |
4.15 |
8.00 |
|
CF |
20211207 |
Sunny |
Moderate |
Mid-Flood |
Surface |
1.00 |
8:02:00 AM |
8.80 |
8.34 |
32.24 |
25.85 |
4.37 |
7.00 |
|
CF |
20211207 |
Sunny |
Moderate |
Mid-Flood |
Middle |
9.55 |
8:01:00 AM |
8.68 |
8.35 |
32.33 |
25.80 |
3.82 |
8.00 |
|
CF |
20211207 |
Sunny |
Moderate |
Mid-Flood |
Middle |
9.55 |
8:01:00 AM |
8.74 |
8.30 |
32.02 |
25.81 |
4.44 |
7.00 |
|
CF |
20211207 |
Sunny |
Moderate |
Mid-Flood |
Bottom |
18.10 |
8:00:00 AM |
8.62 |
8.32 |
32.30 |
25.87 |
3.99 |
8.00 |
|
CF |
20211207 |
Sunny |
Moderate |
Mid-Flood |
Bottom |
18.10 |
8:00:00 AM |
8.80 |
8.34 |
32.21 |
25.75 |
4.08 |
8.00 |
|
CF |
20211209 |
Sunny |
Moderate |
Mid-Flood |
Surface |
1.00 |
9:03:00 AM |
8.68 |
8.27 |
33.46 |
23.68 |
4.31 |
3.00 |
|
CF |
20211209 |
Sunny |
Moderate |
Mid-Flood |
Surface |
1.00 |
9:03:00 AM |
8.85 |
8.30 |
33.53 |
23.62 |
4.19 |
5.00 |
|
CF |
20211209 |
Sunny |
Moderate |
Mid-Flood |
Middle |
9.70 |
9:02:00 AM |
8.81 |
8.38 |
33.50 |
23.80 |
4.02 |
6.00 |
|
CF |
20211209 |
Sunny |
Moderate |
Mid-Flood |
Middle |
9.70 |
9:02:00 AM |
8.68 |
8.32 |
33.45 |
23.75 |
4.32 |
7.00 |
|
CF |
20211209 |
Sunny |
Moderate |
Mid-Flood |
Bottom |
18.40 |
9:01:00 AM |
8.81 |
8.32 |
33.56 |
23.69 |
3.55 |
3.00 |
|
CF |
20211209 |
Sunny |
Moderate |
Mid-Flood |
Bottom |
18.40 |
9:01:00 AM |
8.68 |
8.36 |
33.49 |
23.69 |
3.33 |
5.00 |
|
CF |
20211211 |
Sunny |
Moderate |
Mid-Flood |
Surface |
1.00 |
11:26:00 AM |
8.40 |
8.43 |
32.16 |
23.99 |
3.89 |
4.00 |
|
CF |
20211211 |
Sunny |
Moderate |
Mid-Flood |
Surface |
1.00 |
11:26:00 AM |
8.45 |
8.39 |
32.03 |
23.95 |
4.11 |
3.00 |
|
CF |
20211211 |
Sunny |
Moderate |
Mid-Flood |
Middle |
10.20 |
11:25:00 AM |
8.28 |
8.46 |
31.99 |
23.93 |
4.09 |
5.00 |
|
CF |
20211211 |
Sunny |
Moderate |
Mid-Flood |
Middle |
10.20 |
11:25:00 AM |
8.44 |
8.39 |
31.99 |
24.02 |
4.06 |
5.00 |
|
CF |
20211211 |
Sunny |
Moderate |
Mid-Flood |
Bottom |
19.40 |
11:24:00 AM |
8.28 |
8.35 |
32.07 |
23.91 |
3.69 |
4.00 |
|
Location |
Date (YYYYMMDD) |
Weather |
Sea Condition |
Tidal |
Water Level |
Depth (m) |
Time (hh:mm) |
DO (mg/L) |
pH |
Sal (ppt) |
Temp (¢XC) |
Turbidty (NTU) note 1 |
SS (mg/L) (Note 2) |
|
CF |
20211211 |
Sunny |
Moderate |
Mid-Flood |
Bottom |
19.40 |
11:24:00 AM |
8.28 |
8.35 |
31.91 |
24.05 |
3.91 |
3.00 |
|
CF |
20211214 |
Sunny |
Moderate |
Mid-Flood |
Surface |
1.00 |
1:39:00 PM |
8.29 |
8.21 |
32.45 |
23.30 |
3.34 |
8.00 |
|
CF |
20211214 |
Sunny |
Moderate |
Mid-Flood |
Surface |
1.00 |
1:39:00 PM |
8.38 |
8.20 |
32.15 |
23.35 |
3.82 |
10.00 |
|
CF |
20211214 |
Sunny |
Moderate |
Mid-Flood |
Middle |
10.45 |
1:38:00 PM |
8.22 |
8.27 |
31.90 |
23.26 |
3.61 |
8.00 |
|
CF |
20211214 |
Sunny |
Moderate |
Mid-Flood |
Middle |
10.45 |
1:38:00 PM |
8.42 |
8.22 |
32.37 |
23.28 |
3.66 |
6.00 |
|
CF |
20211214 |
Sunny |
Moderate |
Mid-Flood |
Bottom |
19.90 |
1:37:00 PM |
8.30 |
8.24 |
32.19 |
23.25 |
4.05 |
7.00 |
|
CF |
20211214 |
Sunny |
Moderate |
Mid-Flood |
Bottom |
19.90 |
1:37:00 PM |
8.23 |
8.22 |
32.23 |
23.30 |
3.73 |
7.00 |
|
CF |
20211216 |
Cloudy |
Moderate |
Mid-Flood |
Surface |
1.00 |
2:30:00 PM |
8.21 |
8.36 |
32.73 |
23.70 |
4.84 |
3.00 |
|
CF |
20211216 |
Cloudy |
Moderate |
Mid-Flood |
Surface |
1.00 |
2:30:00 PM |
8.18 |
8.39 |
32.75 |
23.63 |
4.77 |
3.00 |
|
CF |
20211216 |
Cloudy |
Moderate |
Mid-Flood |
Middle |
10.50 |
2:29:00 PM |
8.18 |
8.40 |
32.62 |
23.63 |
4.59 |
3.00 |
|
CF |
20211216 |
Cloudy |
Moderate |
Mid-Flood |
Middle |
10.50 |
2:29:00 PM |
8.34 |
8.36 |
32.61 |
23.60 |
4.01 |
2.50 |
|
CF |
20211216 |
Cloudy |
Moderate |
Mid-Flood |
Bottom |
20.00 |
2:28:00 PM |
8.38 |
8.36 |
32.62 |
23.67 |
3.86 |
11.00 |
|
CF |
20211216 |
Cloudy |
Moderate |
Mid-Flood |
Bottom |
20.00 |
2:28:00 PM |
8.27 |
8.39 |
32.65 |
23.67 |
3.79 |
14.00 |
|
CF |
20211218 |
Cloudy |
Moderate |
Mid-Flood |
Surface |
1.00 |
3:10:00 PM |
8.59 |
8.41 |
32.84 |
23.78 |
3.82 |
3.00 |
|
CF |
20211218 |
Cloudy |
Moderate |
Mid-Flood |
Surface |
1.00 |
3:10:00 PM |
8.42 |
8.45 |
32.83 |
23.75 |
3.99 |
3.00 |
|
CF |
20211218 |
Cloudy |
Moderate |
Mid-Flood |
Middle |
9.65 |
3:09:00 PM |
8.53 |
8.45 |
32.83 |
23.81 |
3.71 |
3.00 |
|
CF |
20211218 |
Cloudy |
Moderate |
Mid-Flood |
Middle |
9.65 |
3:09:00 PM |
8.53 |
8.42 |
32.81 |
23.77 |
4.11 |
3.00 |
|
CF |
20211218 |
Cloudy |
Moderate |
Mid-Flood |
Bottom |
18.30 |
3:08:00 PM |
8.44 |
8.38 |
32.80 |
23.82 |
3.53 |
7.00 |
|
CF |
20211218 |
Cloudy |
Moderate |
Mid-Flood |
Bottom |
18.30 |
3:08:00 PM |
8.36 |
8.42 |
32.86 |
23.81 |
3.09 |
9.00 |
|
CF |
20211221 |
Cloudy |
Moderate |
Mid-Flood |
Surface |
1.00 |
8:02:00 AM |
7.82 |
8.38 |
31.45 |
22.65 |
3.20 |
5.00 |
|
CF |
20211221 |
Cloudy |
Moderate |
Mid-Flood |
Surface |
1.00 |
8:02:00 AM |
7.80 |
8.32 |
31.50 |
22.62 |
3.67 |
5.00 |
|
CF |
20211221 |
Cloudy |
Moderate |
Mid-Flood |
Middle |
10.05 |
8:01:00 AM |
7.82 |
8.31 |
31.51 |
22.70 |
3.55 |
5.00 |
|
CF |
20211221 |
Cloudy |
Moderate |
Mid-Flood |
Middle |
10.05 |
8:01:00 AM |
7.86 |
8.34 |
31.63 |
22.55 |
3.89 |
4.00 |
|
CF |
20211221 |
Cloudy |
Moderate |
Mid-Flood |
Bottom |
19.10 |
8:00:00 AM |
7.84 |
8.33 |
31.52 |
22.62 |
4.06 |
6.00 |
|
CF |
20211221 |
Cloudy |
Moderate |
Mid-Flood |
Bottom |
19.10 |
8:00:00 AM |
7.79 |
8.37 |
31.44 |
22.59 |
3.96 |
5.00 |
|
CF |
20211223 |
Cloudy |
Moderate |
Mid-Flood |
Surface |
1.00 |
8:02:00 AM |
8.22 |
8.30 |
32.88 |
21.79 |
3.83 |
5.00 |
|
CF |
20211223 |
Cloudy |
Moderate |
Mid-Flood |
Surface |
1.00 |
8:02:00 AM |
8.07 |
8.31 |
32.83 |
21.89 |
4.09 |
7.00 |
|
Location |
Date (YYYYMMDD) |
Weather |
Sea Condition |
Tidal |
Water Level |
Depth (m) |
Time (hh:mm) |
DO (mg/L) |
pH |
Sal (ppt) |
Temp (¢XC) |
Turbidty (NTU) note 1 |
SS (mg/L) (Note 2) |
|
CF |
20211223 |
Cloudy |
Moderate |
Mid-Flood |
Middle |
10.40 |
8:01:00 AM |
8.18 |
8.29 |
32.90 |
21.69 |
4.32 |
8.00 |
|
CF |
20211223 |
Cloudy |
Moderate |
Mid-Flood |
Middle |
10.40 |
8:01:00 AM |
8.16 |
8.32 |
32.95 |
21.70 |
4.34 |
5.00 |
|
CF |
20211223 |
Cloudy |
Moderate |
Mid-Flood |
Bottom |
19.80 |
8:00:00 AM |
8.09 |
8.23 |
32.92 |
21.78 |
4.06 |
6.00 |
|
CF |
20211223 |
Cloudy |
Moderate |
Mid-Flood |
Bottom |
19.80 |
8:00:00 AM |
8.20 |
8.27 |
32.85 |
21.70 |
3.55 |
9.00 |
|
CF |
20211225 |
Sunny |
Moderate |
Mid-Flood |
Surface |
1.00 |
9:37:00 AM |
8.22 |
8.38 |
32.53 |
22.04 |
4.68 |
3.00 |
|
CF |
20211225 |
Sunny |
Moderate |
Mid-Flood |
Surface |
1.00 |
9:37:00 AM |
8.21 |
8.31 |
32.58 |
22.01 |
5.24 |
4.00 |
|
CF |
20211225 |
Sunny |
Moderate |
Mid-Flood |
Middle |
10.10 |
9:36:00 AM |
8.15 |
8.37 |
32.65 |
21.99 |
4.89 |
3.00 |
|
CF |
20211225 |
Sunny |
Moderate |
Mid-Flood |
Middle |
10.10 |
9:36:00 AM |
8.21 |
8.31 |
32.49 |
21.96 |
5.18 |
3.00 |
|
CF |
20211225 |
Sunny |
Moderate |
Mid-Flood |
Bottom |
19.20 |
9:35:00 AM |
8.19 |
8.37 |
32.51 |
21.96 |
4.25 |
3.00 |
|
CF |
20211225 |
Sunny |
Moderate |
Mid-Flood |
Bottom |
19.20 |
9:35:00 AM |
8.15 |
8.31 |
32.51 |
21.93 |
4.44 |
4.00 |
|
CF |
20211228 |
Cloudy |
Moderate |
Mid-Flood |
Surface |
1.00 |
11:56:00 AM |
8.32 |
8.11 |
32.25 |
22.38 |
4.28 |
4.00 |
|
CF |
20211228 |
Cloudy |
Moderate |
Mid-Flood |
Surface |
1.00 |
11:56:00 AM |
8.37 |
8.11 |
32.26 |
22.37 |
4.90 |
2.50 |
|
CF |
20211228 |
Cloudy |
Moderate |
Mid-Flood |
Middle |
10.30 |
11:55:00 AM |
8.44 |
8.08 |
32.29 |
22.43 |
4.11 |
2.50 |
|
CF |
20211228 |
Cloudy |
Moderate |
Mid-Flood |
Middle |
10.30 |
11:55:00 AM |
8.49 |
8.10 |
32.30 |
22.43 |
4.44 |
3.00 |
|
CF |
20211228 |
Cloudy |
Moderate |
Mid-Flood |
Bottom |
19.60 |
11:54:00 AM |
8.41 |
8.12 |
32.31 |
22.38 |
4.51 |
6.00 |
|
CF |
20211228 |
Cloudy |
Moderate |
Mid-Flood |
Bottom |
19.60 |
11:54:00 AM |
8.40 |
8.12 |
32.23 |
22.36 |
4.46 |
6.00 |
|
CF |
20211230 |
Sunny |
Moderate |
Mid-Flood |
Surface |
1.00 |
2:18:00 PM |
8.63 |
8.56 |
32.68 |
22.22 |
5.54 |
9.00 |
|
CF |
20211230 |
Sunny |
Moderate |
Mid-Flood |
Surface |
1.00 |
2:18:00 PM |
8.58 |
8.55 |
32.73 |
22.24 |
5.53 |
8.00 |
|
CF |
20211230 |
Sunny |
Moderate |
Mid-Flood |
Middle |
10.55 |
2:17:00 PM |
8.37 |
8.51 |
32.82 |
22.27 |
5.29 |
5.00 |
|
CF |
20211230 |
Sunny |
Moderate |
Mid-Flood |
Middle |
10.55 |
2:17:00 PM |
8.48 |
8.56 |
32.79 |
22.21 |
5.65 |
6.00 |
|
CF |
20211230 |
Sunny |
Moderate |
Mid-Flood |
Bottom |
20.10 |
2:16:00 PM |
8.38 |
8.54 |
32.78 |
22.24 |
6.06 |
6.00 |
|
CF |
20211230 |
Sunny |
Moderate |
Mid-Flood |
Bottom |
20.10 |
2:16:00 PM |
8.40 |
8.56 |
32.76 |
22.25 |
6.35 |
8.00 |
|
WSR01 |
20211202 |
Sunny |
Moderate |
Mid-Flood |
Surface |
1.00 |
3:14:00 PM |
9.16 |
8.21 |
31.87 |
25.28 |
2.41 |
3.00 |
|
WSR01 |
20211202 |
Sunny |
Moderate |
Mid-Flood |
Surface |
1.00 |
3:14:00 PM |
9.09 |
8.17 |
31.76 |
25.34 |
2.86 |
3.00 |
|
WSR01 |
20211202 |
Sunny |
Moderate |
Mid-Flood |
Middle |
4.40 |
3:13:00 PM |
9.18 |
8.18 |
31.80 |
25.45 |
2.77 |
6.00 |
|
WSR01 |
20211202 |
Sunny |
Moderate |
Mid-Flood |
Middle |
4.40 |
3:13:00 PM |
9.07 |
8.30 |
31.90 |
25.39 |
2.98 |
5.00 |
|
WSR01 |
20211202 |
Sunny |
Moderate |
Mid-Flood |
Bottom |
7.80 |
3:12:00 PM |
9.15 |
8.14 |
31.99 |
25.35 |
2.34 |
4.00 |
|
Location |
Date (YYYYMMDD) |
Weather |
Sea Condition |
Tidal |
Water Level |
Depth (m) |
Time (hh:mm) |
DO (mg/L) |
pH |
Sal (ppt) |
Temp (¢XC) |
Turbidty (NTU) note 1 |
SS (mg/L) (Note 2) |
|
WSR01 |
20211202 |
Sunny |
Moderate |
Mid-Flood |
Bottom |
7.80 |
3:12:00 PM |
8.96 |
8.32 |
31.89 |
25.44 |
2.67 |
4.00 |
|
WSR01 |
20211204 |
Sunny |
Moderate |
Mid-Flood |
Surface |
1.00 |
4:08:00 PM |
8.51 |
8.38 |
30.25 |
24.88 |
2.06 |
3.00 |
|
WSR01 |
20211204 |
Sunny |
Moderate |
Mid-Flood |
Surface |
1.00 |
4:08:00 PM |
8.55 |
8.38 |
30.30 |
24.94 |
1.79 |
3.00 |
|
WSR01 |
20211204 |
Sunny |
Moderate |
Mid-Flood |
Middle |
4.15 |
4:07:00 PM |
8.62 |
8.39 |
30.33 |
24.92 |
1.84 |
5.00 |
|
WSR01 |
20211204 |
Sunny |
Moderate |
Mid-Flood |
Middle |
4.15 |
4:07:00 PM |
8.54 |
8.31 |
30.33 |
24.87 |
2.07 |
6.00 |
|
WSR01 |
20211204 |
Sunny |
Moderate |
Mid-Flood |
Bottom |
7.30 |
4:06:00 PM |
8.59 |
8.32 |
30.36 |
24.78 |
1.33 |
4.00 |
|
WSR01 |
20211204 |
Sunny |
Moderate |
Mid-Flood |
Bottom |
7.30 |
4:06:00 PM |
8.57 |
8.39 |
30.25 |
24.80 |
1.50 |
5.00 |
|
WSR01 |
20211207 |
Sunny |
Moderate |
Mid-Flood |
Surface |
1.00 |
8:21:00 AM |
8.76 |
8.47 |
31.54 |
25.13 |
2.18 |
8.00 |
|
WSR01 |
20211207 |
Sunny |
Moderate |
Mid-Flood |
Surface |
1.00 |
8:21:00 AM |
8.61 |
8.43 |
31.79 |
25.37 |
2.50 |
8.00 |
|
WSR01 |
20211207 |
Sunny |
Moderate |
Mid-Flood |
Middle |
4.25 |
8:20:00 AM |
8.71 |
8.38 |
31.76 |
25.25 |
1.81 |
7.00 |
|
WSR01 |
20211207 |
Sunny |
Moderate |
Mid-Flood |
Middle |
4.25 |
8:20:00 AM |
8.56 |
8.41 |
31.74 |
25.39 |
2.11 |
7.00 |
|
WSR01 |
20211207 |
Sunny |
Moderate |
Mid-Flood |
Bottom |
7.50 |
8:19:00 AM |
8.63 |
8.41 |
31.60 |
25.37 |
2.17 |
6.00 |
|
WSR01 |
20211207 |
Sunny |
Moderate |
Mid-Flood |
Bottom |
7.50 |
8:19:00 AM |
8.72 |
8.39 |
31.76 |
25.40 |
1.89 |
9.00 |
|
WSR01 |
20211209 |
Sunny |
Moderate |
Mid-Flood |
Surface |
1.00 |
9:24:00 AM |
8.44 |
8.25 |
33.32 |
23.63 |
2.17 |
5.00 |
|
WSR01 |
20211209 |
Sunny |
Moderate |
Mid-Flood |
Surface |
1.00 |
9:24:00 AM |
8.42 |
8.21 |
33.37 |
23.73 |
1.84 |
5.00 |
|
WSR01 |
20211209 |
Sunny |
Moderate |
Mid-Flood |
Middle |
4.70 |
9:23:00 AM |
8.37 |
8.25 |
33.38 |
23.70 |
2.13 |
5.00 |
|
WSR01 |
20211209 |
Sunny |
Moderate |
Mid-Flood |
Middle |
4.70 |
9:23:00 AM |
8.45 |
8.16 |
33.43 |
23.75 |
2.46 |
6.00 |
|
WSR01 |
20211209 |
Sunny |
Moderate |
Mid-Flood |
Bottom |
8.40 |
9:22:00 AM |
8.34 |
8.18 |
33.29 |
23.70 |
1.74 |
5.00 |
|
WSR01 |
20211209 |
Sunny |
Moderate |
Mid-Flood |
Bottom |
8.40 |
9:22:00 AM |
8.40 |
8.15 |
33.34 |
23.74 |
1.89 |
5.00 |
|
WSR01 |
20211211 |
Sunny |
Moderate |
Mid-Flood |
Surface |
1.00 |
11:48:00 AM |
8.31 |
8.13 |
32.47 |
23.86 |
3.13 |
4.00 |
|
WSR01 |
20211211 |
Sunny |
Moderate |
Mid-Flood |
Surface |
1.00 |
11:48:00 AM |
8.50 |
8.17 |
32.47 |
24.04 |
3.48 |
4.00 |
|
WSR01 |
20211211 |
Sunny |
Moderate |
Mid-Flood |
Middle |
4.40 |
11:47:00 AM |
8.35 |
8.19 |
32.37 |
24.02 |
3.15 |
11.00 |
|
WSR01 |
20211211 |
Sunny |
Moderate |
Mid-Flood |
Middle |
4.40 |
11:47:00 AM |
8.41 |
8.17 |
32.51 |
23.87 |
2.63 |
12.00 |
|
WSR01 |
20211211 |
Sunny |
Moderate |
Mid-Flood |
Bottom |
7.80 |
11:46:00 AM |
8.51 |
8.18 |
32.46 |
23.90 |
2.41 |
4.00 |
|
WSR01 |
20211211 |
Sunny |
Moderate |
Mid-Flood |
Bottom |
7.80 |
11:46:00 AM |
8.30 |
8.22 |
32.36 |
23.99 |
2.23 |
4.00 |
|
WSR01 |
20211214 |
Sunny |
Moderate |
Mid-Flood |
Surface |
1.00 |
2:02:00 PM |
9.01 |
8.26 |
32.40 |
23.32 |
3.00 |
4.00 |
|
WSR01 |
20211214 |
Sunny |
Moderate |
Mid-Flood |
Surface |
1.00 |
2:02:00 PM |
8.94 |
8.25 |
32.77 |
23.34 |
2.94 |
3.00 |
|
Location |
Date (YYYYMMDD) |
Weather |
Sea Condition |
Tidal |
Water Level |
Depth (m) |
Time (hh:mm) |
DO (mg/L) |
pH |
Sal (ppt) |
Temp (¢XC) |
Turbidty (NTU) note 1 |
SS (mg/L) (Note 2) |
|
WSR01 |
20211214 |
Sunny |
Moderate |
Mid-Flood |
Middle |
4.40 |
2:01:00 PM |
8.77 |
8.30 |
32.76 |
23.38 |
2.12 |
6.00 |
|
WSR01 |
20211214 |
Sunny |
Moderate |
Mid-Flood |
Middle |
4.40 |
2:01:00 PM |
9.00 |
8.25 |
32.59 |
23.35 |
2.17 |
5.00 |
|
WSR01 |
20211214 |
Sunny |
Moderate |
Mid-Flood |
Bottom |
7.80 |
2:00:00 PM |
8.76 |
8.26 |
32.40 |
23.39 |
2.89 |
3.00 |
|
WSR01 |
20211214 |
Sunny |
Moderate |
Mid-Flood |
Bottom |
7.80 |
2:00:00 PM |
8.71 |
8.31 |
33.01 |
23.23 |
2.77 |
4.00 |
|
WSR01 |
20211216 |
Cloudy |
Moderate |
Mid-Flood |
Surface |
1.00 |
2:52:00 PM |
8.76 |
8.15 |
33.78 |
23.81 |
3.68 |
13.00 |
|
WSR01 |
20211216 |
Cloudy |
Moderate |
Mid-Flood |
Surface |
1.00 |
2:52:00 PM |
8.60 |
8.18 |
33.76 |
23.72 |
3.12 |
12.00 |
|
WSR01 |
20211216 |
Cloudy |
Moderate |
Mid-Flood |
Middle |
4.30 |
2:51:00 PM |
8.62 |
8.16 |
33.73 |
23.81 |
3.57 |
4.00 |
|
WSR01 |
20211216 |
Cloudy |
Moderate |
Mid-Flood |
Middle |
4.30 |
2:51:00 PM |
8.64 |
8.18 |
33.67 |
23.80 |
3.08 |
4.00 |
|
WSR01 |
20211216 |
Cloudy |
Moderate |
Mid-Flood |
Bottom |
7.60 |
2:50:00 PM |
8.68 |
8.19 |
33.75 |
23.77 |
2.77 |
13.00 |
|
WSR01 |
20211216 |
Cloudy |
Moderate |
Mid-Flood |
Bottom |
7.60 |
2:50:00 PM |
8.72 |
8.18 |
33.70 |
23.73 |
2.94 |
13.00 |
|
WSR01 |
20211218 |
Cloudy |
Moderate |
Mid-Flood |
Surface |
1.00 |
3:33:00 PM |
8.82 |
8.21 |
32.14 |
23.97 |
3.41 |
3.00 |
|
WSR01 |
20211218 |
Cloudy |
Moderate |
Mid-Flood |
Surface |
1.00 |
3:33:00 PM |
8.91 |
8.22 |
32.01 |
23.95 |
3.00 |
3.00 |
|
WSR01 |
20211218 |
Cloudy |
Moderate |
Mid-Flood |
Middle |
4.65 |
3:32:00 PM |
8.78 |
8.16 |
32.10 |
23.94 |
3.18 |
4.00 |
|
WSR01 |
20211218 |
Cloudy |
Moderate |
Mid-Flood |
Middle |
4.65 |
3:32:00 PM |
8.74 |
8.22 |
32.06 |
23.90 |
2.98 |
6.00 |
|
WSR01 |
20211218 |
Cloudy |
Moderate |
Mid-Flood |
Bottom |
8.30 |
3:31:00 PM |
8.83 |
8.16 |
32.14 |
23.93 |
2.42 |
4.00 |
|
WSR01 |
20211218 |
Cloudy |
Moderate |
Mid-Flood |
Bottom |
8.30 |
3:31:00 PM |
8.97 |
8.26 |
32.10 |
23.99 |
2.65 |
4.00 |
|
WSR01 |
20211221 |
Cloudy |
Moderate |
Mid-Flood |
Surface |
1.00 |
8:24:00 AM |
8.38 |
8.26 |
31.75 |
22.65 |
3.09 |
10.00 |
|
WSR01 |
20211221 |
Cloudy |
Moderate |
Mid-Flood |
Surface |
1.00 |
8:24:00 AM |
8.35 |
8.18 |
31.81 |
22.66 |
2.66 |
13.00 |
|
WSR01 |
20211221 |
Cloudy |
Moderate |
Mid-Flood |
Middle |
4.35 |
8:23:00 AM |
8.38 |
8.23 |
31.63 |
22.57 |
2.53 |
5.00 |
|
WSR01 |
20211221 |
Cloudy |
Moderate |
Mid-Flood |
Middle |
4.35 |
8:23:00 AM |
8.35 |
8.18 |
31.79 |
22.58 |
2.48 |
4.00 |
|
WSR01 |
20211221 |
Cloudy |
Moderate |
Mid-Flood |
Bottom |
7.70 |
8:22:00 AM |
8.42 |
8.25 |
31.62 |
22.73 |
2.72 |
4.00 |
|
WSR01 |
20211221 |
Cloudy |
Moderate |
Mid-Flood |
Bottom |
7.70 |
8:22:00 AM |
8.40 |
8.22 |
31.79 |
22.72 |
2.48 |
4.00 |
|
WSR01 |
20211223 |
Cloudy |
Moderate |
Mid-Flood |
Surface |
1.00 |
8:24:00 AM |
8.16 |
8.31 |
32.93 |
21.86 |
2.61 |
10.00 |
|
WSR01 |
20211223 |
Cloudy |
Moderate |
Mid-Flood |
Surface |
1.00 |
8:24:00 AM |
8.21 |
8.32 |
32.97 |
21.75 |
3.05 |
11.00 |
|
WSR01 |
20211223 |
Cloudy |
Moderate |
Mid-Flood |
Middle |
4.45 |
8:23:00 AM |
8.06 |
8.24 |
32.94 |
21.72 |
2.30 |
9.00 |
|
WSR01 |
20211223 |
Cloudy |
Moderate |
Mid-Flood |
Middle |
4.45 |
8:23:00 AM |
8.12 |
8.25 |
32.93 |
21.73 |
2.74 |
9.00 |
|
WSR01 |
20211223 |
Cloudy |
Moderate |
Mid-Flood |
Bottom |
7.90 |
8:22:00 AM |
8.05 |
8.28 |
32.89 |
21.68 |
2.91 |
8.00 |
|
Location |
Date (YYYYMMDD) |
Weather |
Sea Condition |
Tidal |
Water Level |
Depth (m) |
Time (hh:mm) |
DO (mg/L) |
pH |
Sal (ppt) |
Temp (¢XC) |
Turbidty (NTU) note 1 |
SS (mg/L) (Note 2) |
|
WSR01 |
20211223 |
Cloudy |
Moderate |
Mid-Flood |
Bottom |
7.90 |
8:22:00 AM |
7.99 |
8.26 |
32.84 |
21.74 |
2.59 |
6.00 |
|
WSR01 |
20211225 |
Sunny |
Moderate |
Mid-Flood |
Surface |
1.00 |
10:00:00 AM |
9.00 |
8.36 |
32.38 |
22.02 |
2.72 |
4.00 |
|
WSR01 |
20211225 |
Sunny |
Moderate |
Mid-Flood |
Surface |
1.00 |
10:00:00 AM |
8.87 |
8.35 |
32.42 |
22.04 |
2.69 |
3.00 |
|
WSR01 |
20211225 |
Sunny |
Moderate |
Mid-Flood |
Middle |
4.55 |
9:59:00 AM |
8.95 |
8.35 |
32.38 |
22.13 |
2.63 |
6.00 |
|
WSR01 |
20211225 |
Sunny |
Moderate |
Mid-Flood |
Middle |
4.55 |
9:59:00 AM |
8.89 |
8.35 |
32.36 |
22.15 |
2.28 |
4.00 |
|
WSR01 |
20211225 |
Sunny |
Moderate |
Mid-Flood |
Bottom |
8.10 |
9:58:00 AM |
8.92 |
8.34 |
32.50 |
22.03 |
2.59 |
4.00 |
|
WSR01 |
20211225 |
Sunny |
Moderate |
Mid-Flood |
Bottom |
8.10 |
9:58:00 AM |
8.91 |
8.28 |
32.46 |
22.15 |
2.24 |
6.00 |
|
WSR01 |
20211228 |
Cloudy |
Moderate |
Mid-Flood |
Surface |
1.00 |
12:17:00 PM |
8.78 |
8.14 |
32.38 |
22.08 |
3.12 |
3.00 |
|
WSR01 |
20211228 |
Cloudy |
Moderate |
Mid-Flood |
Surface |
1.00 |
12:17:00 PM |
8.82 |
8.13 |
32.42 |
21.95 |
3.17 |
2.50 |
|
WSR01 |
20211228 |
Cloudy |
Moderate |
Mid-Flood |
Middle |
4.35 |
12:16:00 PM |
8.60 |
8.09 |
32.44 |
22.00 |
3.74 |
3.00 |
|
WSR01 |
20211228 |
Cloudy |
Moderate |
Mid-Flood |
Middle |
4.35 |
12:16:00 PM |
8.61 |
8.13 |
32.37 |
21.94 |
3.13 |
4.00 |
|
WSR01 |
20211228 |
Cloudy |
Moderate |
Mid-Flood |
Bottom |
7.70 |
12:15:00 PM |
8.69 |
8.08 |
32.42 |
22.02 |
3.33 |
2.50 |
|
WSR01 |
20211228 |
Cloudy |
Moderate |
Mid-Flood |
Bottom |
7.70 |
12:15:00 PM |
8.73 |
8.12 |
32.45 |
21.97 |
3.28 |
3.00 |
|
WSR01 |
20211230 |
Sunny |
Moderate |
Mid-Flood |
Surface |
1.00 |
2:40:00 PM |
8.90 |
8.33 |
33.13 |
22.39 |
3.67 |
7.00 |
|
WSR01 |
20211230 |
Sunny |
Moderate |
Mid-Flood |
Surface |
1.00 |
2:40:00 PM |
9.05 |
8.30 |
33.11 |
22.32 |
3.49 |
7.00 |
|
WSR01 |
20211230 |
Sunny |
Moderate |
Mid-Flood |
Middle |
4.45 |
2:39:00 PM |
8.82 |
8.27 |
33.24 |
22.34 |
4.12 |
8.00 |
|
WSR01 |
20211230 |
Sunny |
Moderate |
Mid-Flood |
Middle |
4.45 |
2:39:00 PM |
8.89 |
8.27 |
33.22 |
22.40 |
4.04 |
9.00 |
|
WSR01 |
20211230 |
Sunny |
Moderate |
Mid-Flood |
Bottom |
7.90 |
2:38:00 PM |
9.00 |
8.30 |
33.14 |
22.43 |
3.90 |
9.00 |
|
WSR01 |
20211230 |
Sunny |
Moderate |
Mid-Flood |
Bottom |
7.90 |
2:38:00 PM |
8.79 |
8.27 |
33.22 |
22.40 |
4.12 |
7.00 |
|
WSR02 |
20211202 |
Sunny |
Moderate |
Mid-Flood |
Surface |
1.00 |
3:31:00 PM |
9.17 |
8.20 |
31.65 |
25.35 |
3.39 |
3.00 |
|
WSR02 |
20211202 |
Sunny |
Moderate |
Mid-Flood |
Surface |
1.00 |
3:31:00 PM |
9.34 |
8.22 |
31.88 |
25.52 |
3.33 |
4.00 |
|
WSR02 |
20211202 |
Sunny |
Moderate |
Mid-Flood |
Middle |
4.95 |
3:30:00 PM |
9.32 |
8.29 |
31.68 |
25.52 |
3.47 |
6.00 |
|
WSR02 |
20211202 |
Sunny |
Moderate |
Mid-Flood |
Middle |
4.95 |
3:30:00 PM |
9.31 |
8.27 |
31.88 |
25.35 |
3.05 |
4.00 |
|
WSR02 |
20211202 |
Sunny |
Moderate |
Mid-Flood |
Bottom |
8.90 |
3:29:00 PM |
9.34 |
8.25 |
31.78 |
25.49 |
2.87 |
6.00 |
|
WSR02 |
20211202 |
Sunny |
Moderate |
Mid-Flood |
Bottom |
8.90 |
3:29:00 PM |
9.35 |
8.14 |
31.70 |
25.48 |
3.26 |
6.00 |
|
WSR02 |
20211204 |
Sunny |
Moderate |
Mid-Flood |
Surface |
1.00 |
4:24:00 PM |
9.07 |
8.15 |
30.50 |
25.09 |
2.06 |
4.00 |
|
WSR02 |
20211204 |
Sunny |
Moderate |
Mid-Flood |
Surface |
1.00 |
4:24:00 PM |
8.97 |
8.24 |
30.49 |
25.19 |
1.74 |
3.00 |
|
Location |
Date (YYYYMMDD) |
Weather |
Sea Condition |
Tidal |
Water Level |
Depth (m) |
Time (hh:mm) |
DO (mg/L) |
pH |
Sal (ppt) |
Temp (¢XC) |
Turbidty (NTU) note 1 |
SS (mg/L) (Note 2) |
|
WSR02 |
20211204 |
Sunny |
Moderate |
Mid-Flood |
Middle |
4.55 |
4:23:00 PM |
8.97 |
8.17 |
30.49 |
25.18 |
1.43 |
2.50 |
|
WSR02 |
20211204 |
Sunny |
Moderate |
Mid-Flood |
Middle |
4.55 |
4:23:00 PM |
9.03 |
8.16 |
30.49 |
25.04 |
1.40 |
2.50 |
|
WSR02 |
20211204 |
Sunny |
Moderate |
Mid-Flood |
Bottom |
8.10 |
4:22:00 PM |
9.03 |
8.19 |
30.40 |
25.05 |
1.97 |
4.00 |
|
WSR02 |
20211204 |
Sunny |
Moderate |
Mid-Flood |
Bottom |
8.10 |
4:22:00 PM |
8.96 |
8.26 |
30.48 |
25.02 |
2.01 |
6.00 |
|
WSR02 |
20211207 |
Sunny |
Moderate |
Mid-Flood |
Surface |
1.00 |
8:38:00 AM |
8.53 |
8.21 |
32.23 |
25.52 |
2.45 |
5.00 |
|
WSR02 |
20211207 |
Sunny |
Moderate |
Mid-Flood |
Surface |
1.00 |
8:38:00 AM |
8.53 |
8.16 |
32.12 |
25.45 |
2.83 |
6.00 |
|
WSR02 |
20211207 |
Sunny |
Moderate |
Mid-Flood |
Middle |
4.55 |
8:37:00 AM |
8.53 |
8.25 |
32.16 |
25.50 |
2.29 |
5.00 |
|
WSR02 |
20211207 |
Sunny |
Moderate |
Mid-Flood |
Middle |
4.55 |
8:37:00 AM |
8.48 |
8.24 |
31.91 |
25.43 |
1.91 |
6.00 |
|
WSR02 |
20211207 |
Sunny |
Moderate |
Mid-Flood |
Bottom |
8.10 |
8:36:00 AM |
8.44 |
8.17 |
32.06 |
25.53 |
1.96 |
7.00 |
|
WSR02 |
20211207 |
Sunny |
Moderate |
Mid-Flood |
Bottom |
8.10 |
8:36:00 AM |
8.53 |
8.23 |
32.10 |
25.58 |
1.95 |
8.00 |
|
WSR02 |
20211209 |
Sunny |
Moderate |
Mid-Flood |
Surface |
1.00 |
9:42:00 AM |
9.21 |
8.25 |
33.94 |
23.90 |
2.39 |
5.00 |
|
WSR02 |
20211209 |
Sunny |
Moderate |
Mid-Flood |
Surface |
1.00 |
9:42:00 AM |
9.19 |
8.26 |
33.98 |
23.83 |
2.85 |
5.00 |
|
WSR02 |
20211209 |
Sunny |
Moderate |
Mid-Flood |
Middle |
4.55 |
9:41:00 AM |
9.13 |
8.28 |
33.90 |
23.81 |
2.31 |
4.00 |
|
WSR02 |
20211209 |
Sunny |
Moderate |
Mid-Flood |
Middle |
4.55 |
9:41:00 AM |
9.25 |
8.28 |
34.03 |
23.90 |
2.62 |
5.00 |
|
WSR02 |
20211209 |
Sunny |
Moderate |
Mid-Flood |
Bottom |
8.10 |
9:40:00 AM |
9.24 |
8.16 |
33.96 |
23.88 |
2.50 |
4.00 |
|
WSR02 |
20211209 |
Sunny |
Moderate |
Mid-Flood |
Bottom |
8.10 |
9:40:00 AM |
9.17 |
8.24 |
33.88 |
23.92 |
2.23 |
4.00 |
|
WSR02 |
20211211 |
Sunny |
Moderate |
Mid-Flood |
Surface |
1.00 |
12:04:00 PM |
8.80 |
8.41 |
32.09 |
23.87 |
3.31 |
5.00 |
|
WSR02 |
20211211 |
Sunny |
Moderate |
Mid-Flood |
Surface |
1.00 |
12:04:00 PM |
8.76 |
8.42 |
32.17 |
23.70 |
3.54 |
4.00 |
|
WSR02 |
20211211 |
Sunny |
Moderate |
Mid-Flood |
Middle |
4.70 |
12:03:00 PM |
8.74 |
8.36 |
31.97 |
23.83 |
2.81 |
5.00 |
|
WSR02 |
20211211 |
Sunny |
Moderate |
Mid-Flood |
Middle |
4.70 |
12:03:00 PM |
8.85 |
8.40 |
32.06 |
23.85 |
2.73 |
5.00 |
|
WSR02 |
20211211 |
Sunny |
Moderate |
Mid-Flood |
Bottom |
8.40 |
12:02:00 PM |
8.81 |
8.35 |
32.07 |
23.74 |
2.98 |
4.00 |
|
WSR02 |
20211211 |
Sunny |
Moderate |
Mid-Flood |
Bottom |
8.40 |
12:02:00 PM |
8.78 |
8.40 |
31.87 |
23.70 |
2.68 |
6.00 |
|
WSR02 |
20211214 |
Sunny |
Moderate |
Mid-Flood |
Surface |
1.00 |
2:20:00 PM |
8.88 |
8.33 |
32.57 |
23.26 |
3.34 |
3.00 |
|
WSR02 |
20211214 |
Sunny |
Moderate |
Mid-Flood |
Surface |
1.00 |
2:20:00 PM |
8.96 |
8.32 |
32.16 |
23.26 |
3.50 |
4.00 |
|
WSR02 |
20211214 |
Sunny |
Moderate |
Mid-Flood |
Middle |
4.55 |
2:19:00 PM |
8.73 |
8.25 |
32.67 |
23.28 |
2.91 |
4.00 |
|
WSR02 |
20211214 |
Sunny |
Moderate |
Mid-Flood |
Middle |
4.55 |
2:19:00 PM |
8.90 |
8.29 |
32.14 |
23.31 |
3.29 |
3.00 |
|
WSR02 |
20211214 |
Sunny |
Moderate |
Mid-Flood |
Bottom |
8.10 |
2:18:00 PM |
8.81 |
8.32 |
32.34 |
23.34 |
2.33 |
7.00 |
|
Location |
Date (YYYYMMDD) |
Weather |
Sea Condition |
Tidal |
Water Level |
Depth (m) |
Time (hh:mm) |
DO (mg/L) |
pH |
Sal (ppt) |
Temp (¢XC) |
Turbidty (NTU) note 1 |
SS (mg/L) (Note 2) |
|
WSR02 |
20211214 |
Sunny |
Moderate |
Mid-Flood |
Bottom |
8.10 |
2:18:00 PM |
8.76 |
8.27 |
32.07 |
23.27 |
2.49 |
9.00 |
|
WSR02 |
20211216 |
Cloudy |
Moderate |
Mid-Flood |
Surface |
1.00 |
3:10:00 PM |
8.10 |
8.11 |
33.64 |
23.59 |
2.96 |
5.00 |
|
WSR02 |
20211216 |
Cloudy |
Moderate |
Mid-Flood |
Surface |
1.00 |
3:10:00 PM |
8.22 |
8.12 |
33.66 |
23.64 |
2.87 |
3.00 |
|
WSR02 |
20211216 |
Cloudy |
Moderate |
Mid-Flood |
Middle |
4.80 |
3:09:00 PM |
8.12 |
8.12 |
33.77 |
23.68 |
2.29 |
2.50 |
|
WSR02 |
20211216 |
Cloudy |
Moderate |
Mid-Flood |
Middle |
4.80 |
3:09:00 PM |
8.08 |
8.13 |
33.74 |
23.59 |
2.11 |
2.50 |
|
WSR02 |
20211216 |
Cloudy |
Moderate |
Mid-Flood |
Bottom |
8.60 |
3:08:00 PM |
8.00 |
8.13 |
33.63 |
23.63 |
2.33 |
3.00 |
|
WSR02 |
20211216 |
Cloudy |
Moderate |
Mid-Flood |
Bottom |
8.60 |
3:08:00 PM |
8.01 |
8.11 |
33.65 |
23.66 |
2.43 |
5.00 |
|
WSR02 |
20211218 |
Cloudy |
Moderate |
Mid-Flood |
Surface |
1.00 |
3:50:00 PM |
8.16 |
8.26 |
33.17 |
23.95 |
2.99 |
3.00 |
|
WSR02 |
20211218 |
Cloudy |
Moderate |
Mid-Flood |
Surface |
1.00 |
3:50:00 PM |
8.13 |
8.31 |
33.24 |
23.97 |
3.22 |
2.50 |
|
WSR02 |
20211218 |
Cloudy |
Moderate |
Mid-Flood |
Middle |
4.65 |
3:49:00 PM |
8.10 |
8.25 |
33.15 |
23.97 |
2.68 |
4.00 |
|
WSR02 |
20211218 |
Cloudy |
Moderate |
Mid-Flood |
Middle |
4.65 |
3:49:00 PM |
8.16 |
8.31 |
33.25 |
23.95 |
2.35 |
4.00 |
|
WSR02 |
20211218 |
Cloudy |
Moderate |
Mid-Flood |
Bottom |
8.30 |
3:48:00 PM |
8.12 |
8.31 |
33.26 |
23.92 |
2.48 |
5.00 |
|
WSR02 |
20211218 |
Cloudy |
Moderate |
Mid-Flood |
Bottom |
8.30 |
3:48:00 PM |
8.06 |
8.31 |
33.17 |
23.89 |
2.63 |
8.00 |
|
WSR02 |
20211221 |
Cloudy |
Moderate |
Mid-Flood |
Surface |
1.00 |
8:41:00 AM |
8.01 |
8.38 |
31.23 |
22.74 |
3.01 |
6.00 |
|
WSR02 |
20211221 |
Cloudy |
Moderate |
Mid-Flood |
Surface |
1.00 |
8:41:00 AM |
8.06 |
8.36 |
31.20 |
22.80 |
2.98 |
4.00 |
|
WSR02 |
20211221 |
Cloudy |
Moderate |
Mid-Flood |
Middle |
4.80 |
8:40:00 AM |
8.01 |
8.36 |
31.28 |
22.72 |
2.80 |
4.00 |
|
WSR02 |
20211221 |
Cloudy |
Moderate |
Mid-Flood |
Middle |
4.80 |
8:40:00 AM |
8.03 |
8.32 |
31.34 |
22.86 |
3.32 |
4.00 |
|
WSR02 |
20211221 |
Cloudy |
Moderate |
Mid-Flood |
Bottom |
8.60 |
8:39:00 AM |
8.01 |
8.33 |
31.38 |
22.72 |
2.47 |
7.00 |
|
WSR02 |
20211221 |
Cloudy |
Moderate |
Mid-Flood |
Bottom |
8.60 |
8:39:00 AM |
8.03 |
8.30 |
31.28 |
22.83 |
2.38 |
8.00 |
|
WSR02 |
20211223 |
Cloudy |
Moderate |
Mid-Flood |
Surface |
1.00 |
8:42:00 AM |
8.22 |
8.24 |
32.91 |
22.27 |
2.58 |
8.00 |
|
WSR02 |
20211223 |
Cloudy |
Moderate |
Mid-Flood |
Surface |
1.00 |
8:42:00 AM |
8.11 |
8.31 |
32.86 |
22.25 |
3.04 |
8.00 |
|
WSR02 |
20211223 |
Cloudy |
Moderate |
Mid-Flood |
Middle |
4.70 |
8:41:00 AM |
8.13 |
8.28 |
32.83 |
22.41 |
2.36 |
5.00 |
|
WSR02 |
20211223 |
Cloudy |
Moderate |
Mid-Flood |
Middle |
4.70 |
8:41:00 AM |
8.02 |
8.32 |
32.91 |
22.43 |
2.07 |
4.00 |
|
WSR02 |
20211223 |
Cloudy |
Moderate |
Mid-Flood |
Bottom |
8.40 |
8:40:00 AM |
8.05 |
8.29 |
32.85 |
22.41 |
2.58 |
3.00 |
|
WSR02 |
20211223 |
Cloudy |
Moderate |
Mid-Flood |
Bottom |
8.40 |
8:40:00 AM |
8.01 |
8.30 |
32.90 |
22.41 |
2.48 |
3.00 |
|
WSR02 |
20211225 |
Sunny |
Moderate |
Mid-Flood |
Surface |
1.00 |
10:18:00 AM |
8.09 |
8.30 |
31.89 |
22.44 |
3.70 |
5.00 |
|
WSR02 |
20211225 |
Sunny |
Moderate |
Mid-Flood |
Surface |
1.00 |
10:18:00 AM |
8.08 |
8.24 |
31.94 |
22.39 |
3.61 |
4.00 |
|
Location |
Date (YYYYMMDD) |
Weather |
Sea Condition |
Tidal |
Water Level |
Depth (m) |
Time (hh:mm) |
DO (mg/L) |
pH |
Sal (ppt) |
Temp (¢XC) |
Turbidty (NTU) note 1 |
SS (mg/L) (Note 2) |
|
WSR02 |
20211225 |
Sunny |
Moderate |
Mid-Flood |
Middle |
4.75 |
10:17:00 AM |
8.12 |
8.33 |
31.85 |
22.39 |
3.09 |
2.50 |
|
WSR02 |
20211225 |
Sunny |
Moderate |
Mid-Flood |
Middle |
4.75 |
10:17:00 AM |
8.23 |
8.31 |
31.78 |
22.41 |
2.96 |
3.00 |
|
WSR02 |
20211225 |
Sunny |
Moderate |
Mid-Flood |
Bottom |
8.50 |
10:16:00 AM |
8.14 |
8.31 |
31.97 |
22.32 |
2.86 |
3.00 |
|
WSR02 |
20211225 |
Sunny |
Moderate |
Mid-Flood |
Bottom |
8.50 |
10:16:00 AM |
8.25 |
8.27 |
31.85 |
22.37 |
3.28 |
4.00 |
|
WSR02 |
20211228 |
Cloudy |
Moderate |
Mid-Flood |
Surface |
1.00 |
12:34:00 PM |
8.71 |
8.25 |
32.10 |
22.39 |
3.05 |
3.00 |
|
WSR02 |
20211228 |
Cloudy |
Moderate |
Mid-Flood |
Surface |
1.00 |
12:34:00 PM |
8.82 |
8.23 |
32.12 |
22.45 |
3.14 |
4.00 |
|
WSR02 |
20211228 |
Cloudy |
Moderate |
Mid-Flood |
Middle |
4.55 |
12:33:00 PM |
8.77 |
8.25 |
32.08 |
22.38 |
2.65 |
11.00 |
|
WSR02 |
20211228 |
Cloudy |
Moderate |
Mid-Flood |
Middle |
4.55 |
12:33:00 PM |
8.85 |
8.25 |
32.19 |
22.34 |
3.08 |
11.00 |
|
WSR02 |
20211228 |
Cloudy |
Moderate |
Mid-Flood |
Bottom |
8.10 |
12:32:00 PM |
8.93 |
8.25 |
32.09 |
22.31 |
2.39 |
12.00 |
|
WSR02 |
20211228 |
Cloudy |
Moderate |
Mid-Flood |
Bottom |
8.10 |
12:32:00 PM |
8.64 |
8.27 |
32.16 |
22.43 |
2.35 |
12.00 |
|
WSR02 |
20211230 |
Sunny |
Moderate |
Mid-Flood |
Surface |
1.00 |
2:57:00 PM |
8.57 |
8.46 |
32.15 |
22.37 |
3.65 |
9.00 |
|
WSR02 |
20211230 |
Sunny |
Moderate |
Mid-Flood |
Surface |
1.00 |
2:57:00 PM |
8.62 |
8.44 |
32.26 |
22.37 |
3.72 |
11.00 |
|
WSR02 |
20211230 |
Sunny |
Moderate |
Mid-Flood |
Middle |
4.70 |
2:56:00 PM |
8.57 |
8.47 |
32.20 |
22.29 |
3.11 |
10.00 |
|
WSR02 |
20211230 |
Sunny |
Moderate |
Mid-Flood |
Middle |
4.70 |
2:56:00 PM |
8.76 |
8.39 |
32.24 |
22.36 |
3.27 |
8.00 |
|
WSR02 |
20211230 |
Sunny |
Moderate |
Mid-Flood |
Bottom |
8.40 |
2:55:00 PM |
8.78 |
8.47 |
32.24 |
22.29 |
3.88 |
7.00 |
|
WSR02 |
20211230 |
Sunny |
Moderate |
Mid-Flood |
Bottom |
8.40 |
2:55:00 PM |
8.69 |
8.43 |
32.11 |
22.28 |
3.95 |
9.00 |
|
WSR03 |
20211202 |
Sunny |
Moderate |
Mid-Flood |
Surface |
1.00 |
3:43:00 PM |
8.81 |
8.33 |
32.52 |
25.44 |
3.66 |
6.00 |
|
WSR03 |
20211202 |
Sunny |
Moderate |
Mid-Flood |
Surface |
1.00 |
3:43:00 PM |
8.63 |
8.49 |
32.62 |
25.45 |
3.96 |
4.00 |
|
WSR03 |
20211202 |
Sunny |
Moderate |
Mid-Flood |
Middle |
3.75 |
3:42:00 PM |
8.82 |
8.40 |
32.66 |
25.39 |
3.35 |
5.00 |
|
WSR03 |
20211202 |
Sunny |
Moderate |
Mid-Flood |
Middle |
3.75 |
3:42:00 PM |
8.75 |
8.37 |
32.44 |
25.34 |
3.82 |
5.00 |
|
WSR03 |
20211202 |
Sunny |
Moderate |
Mid-Flood |
Bottom |
6.50 |
3:41:00 PM |
8.62 |
8.46 |
32.59 |
25.38 |
3.63 |
5.00 |
|
WSR03 |
20211202 |
Sunny |
Moderate |
Mid-Flood |
Bottom |
6.50 |
3:41:00 PM |
8.64 |
8.52 |
32.43 |
25.52 |
3.09 |
6.00 |
|
WSR03 |
20211204 |
Sunny |
Moderate |
Mid-Flood |
Surface |
1.00 |
4:36:00 PM |
9.01 |
8.23 |
31.17 |
24.68 |
2.46 |
6.00 |
|
WSR03 |
20211204 |
Sunny |
Moderate |
Mid-Flood |
Surface |
1.00 |
4:36:00 PM |
8.96 |
8.22 |
31.18 |
24.64 |
2.93 |
4.00 |
|
WSR03 |
20211204 |
Sunny |
Moderate |
Mid-Flood |
Middle |
3.95 |
4:35:00 PM |
8.98 |
8.24 |
31.14 |
24.58 |
2.07 |
4.00 |
|
WSR03 |
20211204 |
Sunny |
Moderate |
Mid-Flood |
Middle |
3.95 |
4:35:00 PM |
8.89 |
8.23 |
31.20 |
24.57 |
1.97 |
6.00 |
|
WSR03 |
20211204 |
Sunny |
Moderate |
Mid-Flood |
Bottom |
6.90 |
4:34:00 PM |
8.87 |
8.22 |
31.16 |
24.61 |
2.45 |
7.00 |
|
Location |
Date (YYYYMMDD) |
Weather |
Sea Condition |
Tidal |
Water Level |
Depth (m) |
Time (hh:mm) |
DO (mg/L) |
pH |
Sal (ppt) |
Temp (¢XC) |
Turbidty (NTU) note 1 |
SS (mg/L) (Note 2) |
|
WSR03 |
20211204 |
Sunny |
Moderate |
Mid-Flood |
Bottom |
6.90 |
4:34:00 PM |
8.87 |
8.26 |
31.11 |
24.70 |
2.16 |
5.00 |
|
WSR03 |
20211207 |
Sunny |
Moderate |
Mid-Flood |
Surface |
1.00 |
8:50:00 AM |
8.50 |
8.27 |
31.27 |
25.65 |
3.15 |
7.00 |
|
WSR03 |
20211207 |
Sunny |
Moderate |
Mid-Flood |
Surface |
1.00 |
8:50:00 AM |
8.47 |
8.31 |
31.22 |
25.60 |
2.99 |
8.00 |
|
WSR03 |
20211207 |
Sunny |
Moderate |
Mid-Flood |
Middle |
3.85 |
8:49:00 AM |
8.47 |
8.27 |
31.26 |
25.56 |
3.26 |
8.00 |
|
WSR03 |
20211207 |
Sunny |
Moderate |
Mid-Flood |
Middle |
3.85 |
8:49:00 AM |
8.53 |
8.28 |
31.08 |
25.57 |
3.25 |
5.00 |
|
WSR03 |
20211207 |
Sunny |
Moderate |
Mid-Flood |
Bottom |
6.70 |
8:48:00 AM |
8.63 |
8.26 |
31.15 |
25.75 |
2.98 |
5.00 |
|
WSR03 |
20211207 |
Sunny |
Moderate |
Mid-Flood |
Bottom |
6.70 |
8:48:00 AM |
8.58 |
8.27 |
31.31 |
25.50 |
2.56 |
7.00 |
|
WSR03 |
20211209 |
Sunny |
Moderate |
Mid-Flood |
Surface |
1.00 |
9:53:00 AM |
9.38 |
8.15 |
32.87 |
23.61 |
2.48 |
5.00 |
|
WSR03 |
20211209 |
Sunny |
Moderate |
Mid-Flood |
Surface |
1.00 |
9:53:00 AM |
9.39 |
8.22 |
32.87 |
23.78 |
2.52 |
8.00 |
|
WSR03 |
20211209 |
Sunny |
Moderate |
Mid-Flood |
Middle |
3.80 |
9:52:00 AM |
9.49 |
8.25 |
32.77 |
23.72 |
1.64 |
5.00 |
|
WSR03 |
20211209 |
Sunny |
Moderate |
Mid-Flood |
Middle |
3.80 |
9:52:00 AM |
9.38 |
8.26 |
32.84 |
23.69 |
1.75 |
4.00 |
|
WSR03 |
20211209 |
Sunny |
Moderate |
Mid-Flood |
Bottom |
6.60 |
9:51:00 AM |
9.30 |
8.18 |
32.93 |
23.81 |
1.89 |
4.00 |
|
WSR03 |
20211209 |
Sunny |
Moderate |
Mid-Flood |
Bottom |
6.60 |
9:51:00 AM |
9.41 |
8.20 |
32.78 |
23.64 |
2.01 |
5.00 |
|
WSR03 |
20211211 |
Sunny |
Moderate |
Mid-Flood |
Surface |
1.00 |
12:16:00 PM |
8.47 |
8.19 |
31.27 |
23.75 |
2.90 |
5.00 |
|
WSR03 |
20211211 |
Sunny |
Moderate |
Mid-Flood |
Surface |
1.00 |
12:16:00 PM |
8.36 |
8.25 |
31.43 |
23.66 |
2.71 |
5.00 |
|
WSR03 |
20211211 |
Sunny |
Moderate |
Mid-Flood |
Middle |
4.15 |
12:15:00 PM |
8.47 |
8.18 |
31.49 |
23.66 |
2.58 |
5.00 |
|
WSR03 |
20211211 |
Sunny |
Moderate |
Mid-Flood |
Middle |
4.15 |
12:15:00 PM |
8.43 |
8.16 |
31.56 |
23.75 |
2.91 |
4.00 |
|
WSR03 |
20211211 |
Sunny |
Moderate |
Mid-Flood |
Bottom |
7.30 |
12:14:00 PM |
8.39 |
8.19 |
31.30 |
23.67 |
2.56 |
5.00 |
|
WSR03 |
20211211 |
Sunny |
Moderate |
Mid-Flood |
Bottom |
7.30 |
12:14:00 PM |
8.33 |
8.24 |
31.46 |
23.67 |
2.24 |
6.00 |
|
WSR03 |
20211214 |
Sunny |
Moderate |
Mid-Flood |
Surface |
1.00 |
2:32:00 PM |
9.09 |
8.16 |
32.94 |
23.32 |
2.53 |
5.00 |
|
WSR03 |
20211214 |
Sunny |
Moderate |
Mid-Flood |
Surface |
1.00 |
2:32:00 PM |
9.10 |
8.14 |
32.84 |
23.30 |
2.47 |
3.00 |
|
WSR03 |
20211214 |
Sunny |
Moderate |
Mid-Flood |
Middle |
4.05 |
2:31:00 PM |
9.10 |
8.14 |
33.11 |
23.37 |
1.83 |
4.00 |
|
WSR03 |
20211214 |
Sunny |
Moderate |
Mid-Flood |
Middle |
4.05 |
2:31:00 PM |
9.25 |
8.13 |
33.10 |
23.23 |
1.93 |
6.00 |
|
WSR03 |
20211214 |
Sunny |
Moderate |
Mid-Flood |
Bottom |
7.10 |
2:30:00 PM |
9.11 |
8.10 |
32.63 |
23.26 |
1.64 |
8.00 |
|
WSR03 |
20211214 |
Sunny |
Moderate |
Mid-Flood |
Bottom |
7.10 |
2:30:00 PM |
9.23 |
8.19 |
33.27 |
23.34 |
1.59 |
6.00 |
|
WSR03 |
20211216 |
Cloudy |
Moderate |
Mid-Flood |
Surface |
1.00 |
3:23:00 PM |
8.32 |
8.29 |
33.04 |
23.54 |
2.41 |
14.00 |
|
WSR03 |
20211216 |
Cloudy |
Moderate |
Mid-Flood |
Surface |
1.00 |
3:23:00 PM |
8.50 |
8.29 |
33.12 |
23.55 |
2.55 |
10.00 |
|
Location |
Date (YYYYMMDD) |
Weather |
Sea Condition |
Tidal |
Water Level |
Depth (m) |
Time (hh:mm) |
DO (mg/L) |
pH |
Sal (ppt) |
Temp (¢XC) |
Turbidty (NTU) note 1 |
SS (mg/L) (Note 2) |
|
WSR03 |
20211216 |
Cloudy |
Moderate |
Mid-Flood |
Middle |
3.95 |
3:22:00 PM |
8.51 |
8.30 |
33.16 |
23.61 |
2.26 |
5.00 |
|
WSR03 |
20211216 |
Cloudy |
Moderate |
Mid-Flood |
Middle |
3.95 |
3:22:00 PM |
8.33 |
8.30 |
33.11 |
23.54 |
2.64 |
4.00 |
|
WSR03 |
20211216 |
Cloudy |
Moderate |
Mid-Flood |
Bottom |
6.90 |
3:21:00 PM |
8.53 |
8.28 |
33.12 |
23.64 |
2.34 |
10.00 |
|
WSR03 |
20211216 |
Cloudy |
Moderate |
Mid-Flood |
Bottom |
6.90 |
3:21:00 PM |
8.43 |
8.28 |
33.22 |
23.55 |
2.30 |
11.00 |
|
WSR03 |
20211218 |
Cloudy |
Moderate |
Mid-Flood |
Surface |
1.00 |
4:02:00 PM |
9.02 |
8.38 |
33.04 |
23.85 |
2.77 |
6.00 |
|
WSR03 |
20211218 |
Cloudy |
Moderate |
Mid-Flood |
Surface |
1.00 |
4:02:00 PM |
9.02 |
8.44 |
33.06 |
23.85 |
2.88 |
8.00 |
|
WSR03 |
20211218 |
Cloudy |
Moderate |
Mid-Flood |
Middle |
3.85 |
4:01:00 PM |
8.84 |
8.42 |
33.03 |
23.80 |
2.12 |
5.00 |
|
WSR03 |
20211218 |
Cloudy |
Moderate |
Mid-Flood |
Middle |
3.85 |
4:01:00 PM |
8.95 |
8.38 |
32.99 |
23.81 |
2.40 |
3.00 |
|
WSR03 |
20211218 |
Cloudy |
Moderate |
Mid-Flood |
Bottom |
6.70 |
4:00:00 PM |
8.97 |
8.44 |
33.04 |
23.89 |
2.11 |
2.50 |
|
WSR03 |
20211218 |
Cloudy |
Moderate |
Mid-Flood |
Bottom |
6.70 |
4:00:00 PM |
9.04 |
8.39 |
32.93 |
23.84 |
1.97 |
3.00 |
|
WSR03 |
20211221 |
Cloudy |
Moderate |
Mid-Flood |
Surface |
1.00 |
8:52:00 AM |
7.67 |
8.40 |
31.79 |
22.66 |
3.03 |
7.00 |
|
WSR03 |
20211221 |
Cloudy |
Moderate |
Mid-Flood |
Surface |
1.00 |
8:52:00 AM |
7.74 |
8.37 |
31.85 |
22.58 |
2.65 |
8.00 |
|
WSR03 |
20211221 |
Cloudy |
Moderate |
Mid-Flood |
Middle |
3.90 |
8:51:00 AM |
7.70 |
8.42 |
31.83 |
22.58 |
2.89 |
8.00 |
|
WSR03 |
20211221 |
Cloudy |
Moderate |
Mid-Flood |
Middle |
3.90 |
8:51:00 AM |
7.72 |
8.40 |
31.79 |
22.60 |
2.55 |
6.00 |
|
WSR03 |
20211221 |
Cloudy |
Moderate |
Mid-Flood |
Bottom |
6.80 |
8:50:00 AM |
7.72 |
8.35 |
31.89 |
22.64 |
2.22 |
4.00 |
|
WSR03 |
20211221 |
Cloudy |
Moderate |
Mid-Flood |
Bottom |
6.80 |
8:50:00 AM |
7.69 |
8.40 |
31.73 |
22.64 |
2.25 |
5.00 |
|
WSR03 |
20211223 |
Cloudy |
Moderate |
Mid-Flood |
Surface |
1.00 |
8:54:00 AM |
7.98 |
8.31 |
32.88 |
21.94 |
2.35 |
5.00 |
|
WSR03 |
20211223 |
Cloudy |
Moderate |
Mid-Flood |
Surface |
1.00 |
8:54:00 AM |
8.23 |
8.23 |
32.98 |
22.02 |
2.15 |
3.00 |
|
WSR03 |
20211223 |
Cloudy |
Moderate |
Mid-Flood |
Middle |
4.00 |
8:53:00 AM |
8.11 |
8.25 |
32.86 |
21.98 |
2.84 |
5.00 |
|
WSR03 |
20211223 |
Cloudy |
Moderate |
Mid-Flood |
Middle |
4.00 |
8:53:00 AM |
7.98 |
8.24 |
32.87 |
22.02 |
3.01 |
6.00 |
|
WSR03 |
20211223 |
Cloudy |
Moderate |
Mid-Flood |
Bottom |
7.00 |
8:52:00 AM |
8.11 |
8.23 |
32.93 |
21.92 |
2.60 |
4.00 |
|
WSR03 |
20211223 |
Cloudy |
Moderate |
Mid-Flood |
Bottom |
7.00 |
8:52:00 AM |
8.13 |
8.31 |
32.87 |
21.95 |
2.76 |
3.00 |
|
WSR03 |
20211225 |
Sunny |
Moderate |
Mid-Flood |
Surface |
1.00 |
10:30:00 AM |
9.16 |
8.41 |
32.14 |
22.45 |
2.33 |
2.50 |
|
WSR03 |
20211225 |
Sunny |
Moderate |
Mid-Flood |
Surface |
1.00 |
10:30:00 AM |
9.10 |
8.45 |
32.00 |
22.47 |
2.11 |
3.00 |
|
WSR03 |
20211225 |
Sunny |
Moderate |
Mid-Flood |
Middle |
4.10 |
10:29:00 AM |
9.14 |
8.42 |
32.05 |
22.48 |
2.04 |
3.00 |
|
WSR03 |
20211225 |
Sunny |
Moderate |
Mid-Flood |
Middle |
4.10 |
10:29:00 AM |
9.16 |
8.50 |
32.21 |
22.39 |
1.77 |
3.00 |
|
WSR03 |
20211225 |
Sunny |
Moderate |
Mid-Flood |
Bottom |
7.20 |
10:28:00 AM |
9.16 |
8.45 |
32.01 |
22.54 |
1.94 |
3.00 |
|
Location |
Date (YYYYMMDD) |
Weather |
Sea Condition |
Tidal |
Water Level |
Depth (m) |
Time (hh:mm) |
DO (mg/L) |
pH |
Sal (ppt) |
Temp (¢XC) |
Turbidty (NTU) note 1 |
SS (mg/L) (Note 2) |
|
WSR03 |
20211225 |
Sunny |
Moderate |
Mid-Flood |
Bottom |
7.20 |
10:28:00 AM |
9.22 |
8.50 |
32.05 |
22.42 |
2.16 |
3.00 |
|
WSR03 |
20211228 |
Cloudy |
Moderate |
Mid-Flood |
Surface |
1.00 |
12:46:00 PM |
8.90 |
8.30 |
32.39 |
22.03 |
3.53 |
23.00 |
|
WSR03 |
20211228 |
Cloudy |
Moderate |
Mid-Flood |
Surface |
1.00 |
12:46:00 PM |
8.79 |
8.31 |
32.40 |
22.03 |
4.23 |
22.00 |
|
WSR03 |
20211228 |
Cloudy |
Moderate |
Mid-Flood |
Middle |
4.05 |
12:45:00 PM |
8.68 |
8.32 |
32.33 |
22.12 |
3.36 |
21.00 |
|
WSR03 |
20211228 |
Cloudy |
Moderate |
Mid-Flood |
Middle |
4.05 |
12:45:00 PM |
8.93 |
8.35 |
32.39 |
22.11 |
3.91 |
23.00 |
|
WSR03 |
20211228 |
Cloudy |
Moderate |
Mid-Flood |
Bottom |
7.10 |
12:44:00 PM |
8.72 |
8.32 |
32.42 |
22.04 |
3.39 |
2.50 |
|
WSR03 |
20211228 |
Cloudy |
Moderate |
Mid-Flood |
Bottom |
7.10 |
12:44:00 PM |
8.65 |
8.33 |
32.36 |
22.18 |
3.52 |
3.00 |
|
WSR03 |
20211230 |
Sunny |
Moderate |
Mid-Flood |
Surface |
1.00 |
3:09:00 PM |
8.30 |
8.39 |
33.25 |
22.23 |
3.62 |
6.00 |
|
WSR03 |
20211230 |
Sunny |
Moderate |
Mid-Flood |
Surface |
1.00 |
3:09:00 PM |
8.27 |
8.47 |
33.24 |
22.32 |
3.07 |
6.00 |
|
WSR03 |
20211230 |
Sunny |
Moderate |
Mid-Flood |
Middle |
4.10 |
3:08:00 PM |
8.18 |
8.44 |
33.19 |
22.28 |
3.93 |
12.00 |
|
WSR03 |
20211230 |
Sunny |
Moderate |
Mid-Flood |
Middle |
4.10 |
3:08:00 PM |
8.28 |
8.42 |
33.15 |
22.26 |
4.58 |
13.00 |
|
WSR03 |
20211230 |
Sunny |
Moderate |
Mid-Flood |
Bottom |
7.20 |
3:07:00 PM |
8.21 |
8.40 |
33.25 |
22.21 |
4.01 |
9.00 |
|
WSR03 |
20211230 |
Sunny |
Moderate |
Mid-Flood |
Bottom |
7.20 |
3:07:00 PM |
8.41 |
8.39 |
33.22 |
22.32 |
3.95 |
8.00 |
|
WSR04 |
20211202 |
Sunny |
Moderate |
Mid-Flood |
Surface |
1.00 |
3:56:00 PM |
8.94 |
8.49 |
32.08 |
25.46 |
3.46 |
4.00 |
|
WSR04 |
20211202 |
Sunny |
Moderate |
Mid-Flood |
Surface |
1.00 |
3:56:00 PM |
8.95 |
8.42 |
32.05 |
25.55 |
3.51 |
4.00 |
|
WSR04 |
20211202 |
Sunny |
Moderate |
Mid-Flood |
Middle |
3.75 |
3:55:00 PM |
8.81 |
8.48 |
32.27 |
25.56 |
3.37 |
6.00 |
|
WSR04 |
20211202 |
Sunny |
Moderate |
Mid-Flood |
Middle |
3.75 |
3:55:00 PM |
8.98 |
8.39 |
32.16 |
25.58 |
2.93 |
6.00 |
|
WSR04 |
20211202 |
Sunny |
Moderate |
Mid-Flood |
Bottom |
6.50 |
3:54:00 PM |
8.98 |
8.50 |
32.17 |
25.59 |
2.31 |
9.00 |
|
WSR04 |
20211202 |
Sunny |
Moderate |
Mid-Flood |
Bottom |
6.50 |
3:54:00 PM |
8.84 |
8.36 |
32.07 |
25.50 |
2.76 |
8.00 |
|
WSR04 |
20211204 |
Sunny |
Moderate |
Mid-Flood |
Surface |
1.00 |
4:49:00 PM |
8.18 |
8.20 |
31.12 |
25.19 |
2.57 |
4.00 |
|
WSR04 |
20211204 |
Sunny |
Moderate |
Mid-Flood |
Surface |
1.00 |
4:49:00 PM |
8.25 |
8.17 |
31.11 |
25.21 |
2.27 |
4.00 |
|
WSR04 |
20211204 |
Sunny |
Moderate |
Mid-Flood |
Middle |
3.45 |
4:48:00 PM |
8.33 |
8.19 |
31.07 |
25.22 |
2.44 |
4.00 |
|
WSR04 |
20211204 |
Sunny |
Moderate |
Mid-Flood |
Middle |
3.45 |
4:48:00 PM |
8.20 |
8.16 |
31.10 |
25.34 |
2.07 |
5.00 |
|
WSR04 |
20211204 |
Sunny |
Moderate |
Mid-Flood |
Bottom |
5.90 |
4:47:00 PM |
8.26 |
8.15 |
30.98 |
25.35 |
1.81 |
5.00 |
|
WSR04 |
20211204 |
Sunny |
Moderate |
Mid-Flood |
Bottom |
5.90 |
4:47:00 PM |
8.33 |
8.13 |
31.03 |
25.23 |
2.16 |
4.00 |
|
WSR04 |
20211207 |
Sunny |
Moderate |
Mid-Flood |
Surface |
1.00 |
9:02:00 AM |
8.70 |
8.23 |
31.70 |
25.77 |
2.56 |
6.00 |
|
WSR04 |
20211207 |
Sunny |
Moderate |
Mid-Flood |
Surface |
1.00 |
9:02:00 AM |
8.91 |
8.26 |
31.51 |
25.67 |
2.60 |
6.00 |
|
Location |
Date (YYYYMMDD) |
Weather |
Sea Condition |
Tidal |
Water Level |
Depth (m) |
Time (hh:mm) |
DO (mg/L) |
pH |
Sal (ppt) |
Temp (¢XC) |
Turbidty (NTU) note 1 |
SS (mg/L) (Note 2) |
|
WSR04 |
20211207 |
Sunny |
Moderate |
Mid-Flood |
Middle |
3.80 |
9:01:00 AM |
8.78 |
8.27 |
31.54 |
25.80 |
2.50 |
4.00 |
|
WSR04 |
20211207 |
Sunny |
Moderate |
Mid-Flood |
Middle |
3.80 |
9:01:00 AM |
8.76 |
8.29 |
31.53 |
25.87 |
2.96 |
5.00 |
|
WSR04 |
20211207 |
Sunny |
Moderate |
Mid-Flood |
Bottom |
6.60 |
9:00:00 AM |
8.70 |
8.28 |
31.38 |
25.69 |
2.12 |
5.00 |
|
WSR04 |
20211207 |
Sunny |
Moderate |
Mid-Flood |
Bottom |
6.60 |
9:00:00 AM |
8.70 |
8.27 |
31.65 |
25.92 |
2.03 |
3.00 |
|
WSR04 |
20211209 |
Sunny |
Moderate |
Mid-Flood |
Surface |
1.00 |
10:05:00 AM |
9.11 |
8.19 |
33.28 |
23.52 |
2.44 |
5.00 |
|
WSR04 |
20211209 |
Sunny |
Moderate |
Mid-Flood |
Surface |
1.00 |
10:05:00 AM |
9.09 |
8.10 |
33.29 |
23.67 |
2.78 |
4.00 |
|
WSR04 |
20211209 |
Sunny |
Moderate |
Mid-Flood |
Middle |
3.75 |
10:04:00 AM |
9.14 |
8.13 |
33.33 |
23.56 |
2.29 |
7.00 |
|
WSR04 |
20211209 |
Sunny |
Moderate |
Mid-Flood |
Middle |
3.75 |
10:04:00 AM |
9.05 |
8.14 |
33.32 |
23.50 |
2.12 |
5.00 |
|
WSR04 |
20211209 |
Sunny |
Moderate |
Mid-Flood |
Bottom |
6.50 |
10:03:00 AM |
9.04 |
8.17 |
33.33 |
23.55 |
2.05 |
4.00 |
|
WSR04 |
20211209 |
Sunny |
Moderate |
Mid-Flood |
Bottom |
6.50 |
10:03:00 AM |
9.18 |
8.15 |
33.41 |
23.60 |
1.89 |
7.00 |
|
WSR04 |
20211211 |
Sunny |
Moderate |
Mid-Flood |
Surface |
1.00 |
12:27:00 PM |
8.76 |
8.29 |
31.80 |
23.75 |
3.02 |
7.00 |
|
WSR04 |
20211211 |
Sunny |
Moderate |
Mid-Flood |
Surface |
1.00 |
12:27:00 PM |
8.74 |
8.28 |
31.77 |
23.81 |
3.16 |
6.00 |
|
WSR04 |
20211211 |
Sunny |
Moderate |
Mid-Flood |
Middle |
3.70 |
12:26:00 PM |
8.80 |
8.33 |
31.72 |
23.81 |
2.82 |
7.00 |
|
WSR04 |
20211211 |
Sunny |
Moderate |
Mid-Flood |
Middle |
3.70 |
12:26:00 PM |
8.62 |
8.38 |
31.90 |
23.67 |
2.95 |
5.00 |
|
WSR04 |
20211211 |
Sunny |
Moderate |
Mid-Flood |
Bottom |
6.40 |
12:25:00 PM |
8.73 |
8.36 |
31.71 |
23.77 |
2.25 |
4.00 |
|
WSR04 |
20211211 |
Sunny |
Moderate |
Mid-Flood |
Bottom |
6.40 |
12:25:00 PM |
8.68 |
8.31 |
31.59 |
23.84 |
2.66 |
5.00 |
|
WSR04 |
20211214 |
Sunny |
Moderate |
Mid-Flood |
Surface |
1.00 |
2:43:00 PM |
7.99 |
8.16 |
32.34 |
23.35 |
2.28 |
6.00 |
|
WSR04 |
20211214 |
Sunny |
Moderate |
Mid-Flood |
Surface |
1.00 |
2:43:00 PM |
8.05 |
8.23 |
32.19 |
23.30 |
2.50 |
7.00 |
|
WSR04 |
20211214 |
Sunny |
Moderate |
Mid-Flood |
Middle |
3.65 |
2:42:00 PM |
8.22 |
8.19 |
32.27 |
23.36 |
2.50 |
7.00 |
|
WSR04 |
20211214 |
Sunny |
Moderate |
Mid-Flood |
Middle |
3.65 |
2:42:00 PM |
8.30 |
8.18 |
32.25 |
23.24 |
2.26 |
7.00 |
|
WSR04 |
20211214 |
Sunny |
Moderate |
Mid-Flood |
Bottom |
6.30 |
2:41:00 PM |
8.09 |
8.21 |
32.14 |
23.32 |
1.71 |
4.00 |
|
WSR04 |
20211214 |
Sunny |
Moderate |
Mid-Flood |
Bottom |
6.30 |
2:41:00 PM |
8.00 |
8.21 |
32.37 |
23.25 |
1.62 |
4.00 |
|
WSR04 |
20211216 |
Cloudy |
Moderate |
Mid-Flood |
Surface |
1.00 |
3:35:00 PM |
8.24 |
8.34 |
32.70 |
23.85 |
2.63 |
11.00 |
|
WSR04 |
20211216 |
Cloudy |
Moderate |
Mid-Flood |
Surface |
1.00 |
3:35:00 PM |
8.06 |
8.31 |
32.75 |
23.81 |
2.67 |
9.00 |
|
WSR04 |
20211216 |
Cloudy |
Moderate |
Mid-Flood |
Middle |
3.85 |
3:34:00 PM |
8.12 |
8.31 |
32.59 |
23.86 |
3.04 |
7.00 |
|
WSR04 |
20211216 |
Cloudy |
Moderate |
Mid-Flood |
Middle |
3.85 |
3:34:00 PM |
8.24 |
8.34 |
32.56 |
23.84 |
2.60 |
6.00 |
|
WSR04 |
20211216 |
Cloudy |
Moderate |
Mid-Flood |
Bottom |
6.70 |
3:33:00 PM |
8.11 |
8.34 |
32.69 |
23.85 |
2.17 |
5.00 |
|
Location |
Date (YYYYMMDD) |
Weather |
Sea Condition |
Tidal |
Water Level |
Depth (m) |
Time (hh:mm) |
DO (mg/L) |
pH |
Sal (ppt) |
Temp (¢XC) |
Turbidty (NTU) note 1 |
SS (mg/L) (Note 2) |
|
WSR04 |
20211216 |
Cloudy |
Moderate |
Mid-Flood |
Bottom |
6.70 |
3:33:00 PM |
8.24 |
8.32 |
32.69 |
23.84 |
2.18 |
6.00 |
|
WSR04 |
20211218 |
Cloudy |
Moderate |
Mid-Flood |
Surface |
1.00 |
4:15:00 PM |
8.79 |
8.36 |
32.83 |
23.46 |
3.07 |
5.00 |
|
WSR04 |
20211218 |
Cloudy |
Moderate |
Mid-Flood |
Surface |
1.00 |
4:15:00 PM |
8.94 |
8.43 |
32.77 |
23.49 |
3.05 |
6.00 |
|
WSR04 |
20211218 |
Cloudy |
Moderate |
Mid-Flood |
Middle |
3.85 |
4:14:00 PM |
8.79 |
8.45 |
32.84 |
23.48 |
2.34 |
4.00 |
|
WSR04 |
20211218 |
Cloudy |
Moderate |
Mid-Flood |
Middle |
3.85 |
4:14:00 PM |
8.91 |
8.40 |
32.82 |
23.46 |
2.66 |
3.00 |
|
WSR04 |
20211218 |
Cloudy |
Moderate |
Mid-Flood |
Bottom |
6.70 |
4:13:00 PM |
8.75 |
8.46 |
32.72 |
23.49 |
2.61 |
3.00 |
|
WSR04 |
20211218 |
Cloudy |
Moderate |
Mid-Flood |
Bottom |
6.70 |
4:13:00 PM |
8.73 |
8.38 |
32.83 |
23.44 |
2.18 |
2.50 |
|
WSR04 |
20211221 |
Cloudy |
Moderate |
Mid-Flood |
Surface |
1.00 |
9:04:00 AM |
7.72 |
8.41 |
31.56 |
22.97 |
2.70 |
7.00 |
|
WSR04 |
20211221 |
Cloudy |
Moderate |
Mid-Flood |
Surface |
1.00 |
9:04:00 AM |
7.73 |
8.35 |
31.62 |
22.89 |
2.88 |
7.00 |
|
WSR04 |
20211221 |
Cloudy |
Moderate |
Mid-Flood |
Middle |
3.70 |
9:03:00 AM |
7.68 |
8.38 |
31.54 |
22.94 |
2.38 |
5.00 |
|
WSR04 |
20211221 |
Cloudy |
Moderate |
Mid-Flood |
Middle |
3.70 |
9:03:00 AM |
7.66 |
8.33 |
31.65 |
23.03 |
2.74 |
7.00 |
|
WSR04 |
20211221 |
Cloudy |
Moderate |
Mid-Flood |
Bottom |
6.40 |
9:02:00 AM |
7.69 |
8.38 |
31.67 |
22.94 |
1.85 |
12.00 |
|
WSR04 |
20211221 |
Cloudy |
Moderate |
Mid-Flood |
Bottom |
6.40 |
9:02:00 AM |
7.72 |
8.39 |
31.55 |
23.03 |
1.91 |
16.00 |
|
WSR04 |
20211223 |
Cloudy |
Moderate |
Mid-Flood |
Surface |
1.00 |
9:07:00 AM |
8.00 |
8.26 |
32.90 |
22.36 |
3.03 |
4.00 |
|
WSR04 |
20211223 |
Cloudy |
Moderate |
Mid-Flood |
Surface |
1.00 |
9:07:00 AM |
8.02 |
8.24 |
32.89 |
22.36 |
2.66 |
6.00 |
|
WSR04 |
20211223 |
Cloudy |
Moderate |
Mid-Flood |
Middle |
3.80 |
9:06:00 AM |
8.21 |
8.29 |
32.84 |
22.29 |
2.33 |
5.00 |
|
WSR04 |
20211223 |
Cloudy |
Moderate |
Mid-Flood |
Middle |
3.80 |
9:06:00 AM |
8.10 |
8.24 |
32.98 |
22.18 |
2.58 |
4.00 |
|
WSR04 |
20211223 |
Cloudy |
Moderate |
Mid-Flood |
Bottom |
6.60 |
9:05:00 AM |
8.00 |
8.25 |
32.90 |
22.20 |
2.36 |
7.00 |
|
WSR04 |
20211223 |
Cloudy |
Moderate |
Mid-Flood |
Bottom |
6.60 |
9:05:00 AM |
7.99 |
8.32 |
32.83 |
22.24 |
2.24 |
7.00 |
|
WSR04 |
20211225 |
Sunny |
Moderate |
Mid-Flood |
Surface |
1.00 |
10:42:00 AM |
8.96 |
8.37 |
31.86 |
22.15 |
2.78 |
3.00 |
|
WSR04 |
20211225 |
Sunny |
Moderate |
Mid-Flood |
Surface |
1.00 |
10:42:00 AM |
8.97 |
8.32 |
31.86 |
22.18 |
2.33 |
4.00 |
|
WSR04 |
20211225 |
Sunny |
Moderate |
Mid-Flood |
Middle |
3.50 |
10:41:00 AM |
8.92 |
8.32 |
31.81 |
22.11 |
2.16 |
6.00 |
|
WSR04 |
20211225 |
Sunny |
Moderate |
Mid-Flood |
Middle |
3.50 |
10:41:00 AM |
8.91 |
8.31 |
31.99 |
22.08 |
2.00 |
4.00 |
|
WSR04 |
20211225 |
Sunny |
Moderate |
Mid-Flood |
Bottom |
6.00 |
10:40:00 AM |
8.99 |
8.34 |
31.89 |
22.11 |
2.10 |
5.00 |
|
WSR04 |
20211225 |
Sunny |
Moderate |
Mid-Flood |
Bottom |
6.00 |
10:40:00 AM |
9.02 |
8.33 |
31.79 |
22.07 |
2.26 |
4.00 |
|
WSR04 |
20211228 |
Cloudy |
Moderate |
Mid-Flood |
Surface |
1.00 |
12:59:00 PM |
8.03 |
8.10 |
31.45 |
22.60 |
3.56 |
26.00 |
|
WSR04 |
20211228 |
Cloudy |
Moderate |
Mid-Flood |
Surface |
1.00 |
12:59:00 PM |
8.03 |
8.06 |
31.46 |
22.72 |
4.11 |
26.00 |
|
Location |
Date (YYYYMMDD) |
Weather |
Sea Condition |
Tidal |
Water Level |
Depth (m) |
Time (hh:mm) |
DO (mg/L) |
pH |
Sal (ppt) |
Temp (¢XC) |
Turbidty (NTU) note 1 |
SS (mg/L) (Note 2) |
|
WSR04 |
20211228 |
Cloudy |
Moderate |
Mid-Flood |
Middle |
3.40 |
12:58:00 PM |
8.03 |
8.12 |
31.50 |
22.69 |
3.78 |
12.00 |
|
WSR04 |
20211228 |
Cloudy |
Moderate |
Mid-Flood |
Middle |
3.40 |
12:58:00 PM |
8.02 |
8.08 |
31.50 |
22.68 |
3.74 |
12.00 |
|
WSR04 |
20211228 |
Cloudy |
Moderate |
Mid-Flood |
Bottom |
5.80 |
12:57:00 PM |
7.87 |
8.06 |
31.46 |
22.68 |
3.06 |
2.50 |
|
WSR04 |
20211228 |
Cloudy |
Moderate |
Mid-Flood |
Bottom |
5.80 |
12:57:00 PM |
7.96 |
8.07 |
31.45 |
22.61 |
3.28 |
23.00 |
|
WSR04 |
20211230 |
Sunny |
Moderate |
Mid-Flood |
Surface |
1.00 |
3:22:00 PM |
8.55 |
8.41 |
33.17 |
22.33 |
3.65 |
8.00 |
|
WSR04 |
20211230 |
Sunny |
Moderate |
Mid-Flood |
Surface |
1.00 |
3:22:00 PM |
8.46 |
8.42 |
33.02 |
22.27 |
4.23 |
8.00 |
|
WSR04 |
20211230 |
Sunny |
Moderate |
Mid-Flood |
Middle |
3.90 |
3:21:00 PM |
8.61 |
8.38 |
33.02 |
22.28 |
3.37 |
14.00 |
|
WSR04 |
20211230 |
Sunny |
Moderate |
Mid-Flood |
Middle |
3.90 |
3:21:00 PM |
8.51 |
8.43 |
33.16 |
22.32 |
3.85 |
14.00 |
|
WSR04 |
20211230 |
Sunny |
Moderate |
Mid-Flood |
Bottom |
6.80 |
3:20:00 PM |
8.52 |
8.46 |
33.05 |
22.28 |
3.83 |
8.00 |
|
WSR04 |
20211230 |
Sunny |
Moderate |
Mid-Flood |
Bottom |
6.80 |
3:20:00 PM |
8.49 |
8.38 |
33.14 |
22.36 |
3.20 |
8.00 |
|
WSR16 |
20211202 |
Sunny |
Moderate |
Mid-Flood |
Surface |
1.00 |
4:59:00 PM |
8.77 |
8.45 |
32.22 |
25.57 |
4.30 |
5.00 |
|
WSR16 |
20211202 |
Sunny |
Moderate |
Mid-Flood |
Surface |
1.00 |
4:59:00 PM |
8.63 |
8.42 |
32.19 |
25.61 |
4.15 |
6.00 |
|
WSR16 |
20211202 |
Sunny |
Moderate |
Mid-Flood |
Middle |
8.45 |
4:58:00 PM |
8.63 |
8.40 |
32.24 |
25.64 |
3.75 |
6.00 |
|
WSR16 |
20211202 |
Sunny |
Moderate |
Mid-Flood |
Middle |
8.45 |
4:58:00 PM |
8.64 |
8.45 |
32.32 |
25.50 |
4.25 |
6.00 |
|
WSR16 |
20211202 |
Sunny |
Moderate |
Mid-Flood |
Bottom |
15.90 |
4:57:00 PM |
8.85 |
8.31 |
32.14 |
25.54 |
3.88 |
7.00 |
|
WSR16 |
20211202 |
Sunny |
Moderate |
Mid-Flood |
Bottom |
15.90 |
4:57:00 PM |
8.63 |
8.31 |
32.20 |
25.54 |
3.67 |
9.00 |
|
WSR16 |
20211204 |
Sunny |
Moderate |
Mid-Flood |
Surface |
1.00 |
5:52:00 PM |
8.87 |
8.26 |
30.99 |
24.87 |
2.59 |
4.00 |
|
WSR16 |
20211204 |
Sunny |
Moderate |
Mid-Flood |
Surface |
1.00 |
5:52:00 PM |
8.87 |
8.33 |
31.01 |
24.91 |
2.52 |
4.00 |
|
WSR16 |
20211204 |
Sunny |
Moderate |
Mid-Flood |
Middle |
7.70 |
5:51:00 PM |
8.93 |
8.25 |
31.02 |
24.88 |
2.57 |
5.00 |
|
WSR16 |
20211204 |
Sunny |
Moderate |
Mid-Flood |
Middle |
7.70 |
5:51:00 PM |
8.82 |
8.28 |
31.09 |
24.85 |
2.38 |
4.00 |
|
WSR16 |
20211204 |
Sunny |
Moderate |
Mid-Flood |
Bottom |
14.40 |
5:50:00 PM |
8.97 |
8.33 |
31.07 |
24.83 |
2.35 |
4.00 |
|
WSR16 |
20211204 |
Sunny |
Moderate |
Mid-Flood |
Bottom |
14.40 |
5:50:00 PM |
8.98 |
8.26 |
30.99 |
24.80 |
2.65 |
6.00 |
|
WSR16 |
20211207 |
Sunny |
Moderate |
Mid-Flood |
Surface |
1.00 |
10:04:00 AM |
9.19 |
8.42 |
31.31 |
25.42 |
2.76 |
5.00 |
|
WSR16 |
20211207 |
Sunny |
Moderate |
Mid-Flood |
Surface |
1.00 |
10:04:00 AM |
9.34 |
8.37 |
31.30 |
25.35 |
2.40 |
6.00 |
|
WSR16 |
20211207 |
Sunny |
Moderate |
Mid-Flood |
Middle |
7.90 |
10:03:00 AM |
9.18 |
8.37 |
31.13 |
25.42 |
2.25 |
5.00 |
|
WSR16 |
20211207 |
Sunny |
Moderate |
Mid-Flood |
Middle |
7.90 |
10:03:00 AM |
9.22 |
8.35 |
31.19 |
25.56 |
2.11 |
6.00 |
|
WSR16 |
20211207 |
Sunny |
Moderate |
Mid-Flood |
Bottom |
14.80 |
10:02:00 AM |
9.30 |
8.36 |
31.05 |
25.31 |
1.91 |
6.00 |
|
Location |
Date (YYYYMMDD) |
Weather |
Sea Condition |
Tidal |
Water Level |
Depth (m) |
Time (hh:mm) |
DO (mg/L) |
pH |
Sal (ppt) |
Temp (¢XC) |
Turbidty (NTU) note 1 |
SS (mg/L) (Note 2) |
|
WSR16 |
20211207 |
Sunny |
Moderate |
Mid-Flood |
Bottom |
14.80 |
10:02:00 AM |
9.24 |
8.35 |
31.14 |
25.39 |
2.18 |
5.00 |
|
WSR16 |
20211209 |
Sunny |
Moderate |
Mid-Flood |
Surface |
1.00 |
11:03:00 AM |
9.52 |
8.28 |
33.82 |
24.05 |
3.59 |
6.00 |
|
WSR16 |
20211209 |
Sunny |
Moderate |
Mid-Flood |
Surface |
1.00 |
11:03:00 AM |
9.40 |
8.33 |
33.72 |
24.18 |
3.56 |
7.00 |
|
WSR16 |
20211209 |
Sunny |
Moderate |
Mid-Flood |
Middle |
8.15 |
11:02:00 AM |
9.45 |
8.31 |
33.78 |
24.03 |
2.99 |
8.00 |
|
WSR16 |
20211209 |
Sunny |
Moderate |
Mid-Flood |
Middle |
8.15 |
11:02:00 AM |
9.40 |
8.31 |
33.69 |
24.08 |
2.71 |
8.00 |
|
WSR16 |
20211209 |
Sunny |
Moderate |
Mid-Flood |
Bottom |
15.30 |
11:01:00 AM |
9.53 |
8.26 |
33.69 |
24.07 |
2.49 |
5.00 |
|
WSR16 |
20211209 |
Sunny |
Moderate |
Mid-Flood |
Bottom |
15.30 |
11:01:00 AM |
9.47 |
8.31 |
33.68 |
24.10 |
2.63 |
8.00 |
|
WSR16 |
20211211 |
Sunny |
Moderate |
Mid-Flood |
Surface |
1.00 |
1:24:00 PM |
8.95 |
8.21 |
31.88 |
23.80 |
2.57 |
5.00 |
|
WSR16 |
20211211 |
Sunny |
Moderate |
Mid-Flood |
Surface |
1.00 |
1:24:00 PM |
8.92 |
8.25 |
31.97 |
23.81 |
3.05 |
4.00 |
|
WSR16 |
20211211 |
Sunny |
Moderate |
Mid-Flood |
Middle |
7.70 |
1:23:00 PM |
9.00 |
8.26 |
31.91 |
23.87 |
2.95 |
5.00 |
|
WSR16 |
20211211 |
Sunny |
Moderate |
Mid-Flood |
Middle |
7.70 |
1:23:00 PM |
9.06 |
8.31 |
32.20 |
23.90 |
2.87 |
7.00 |
|
WSR16 |
20211211 |
Sunny |
Moderate |
Mid-Flood |
Bottom |
14.40 |
1:22:00 PM |
9.07 |
8.27 |
32.03 |
23.78 |
2.32 |
10.00 |
|
WSR16 |
20211211 |
Sunny |
Moderate |
Mid-Flood |
Bottom |
14.40 |
1:22:00 PM |
9.04 |
8.25 |
32.00 |
23.75 |
2.56 |
11.00 |
|
WSR16 |
20211214 |
Sunny |
Moderate |
Mid-Flood |
Surface |
1.00 |
3:45:00 PM |
8.89 |
8.15 |
32.35 |
23.25 |
2.65 |
7.00 |
|
WSR16 |
20211214 |
Sunny |
Moderate |
Mid-Flood |
Surface |
1.00 |
3:45:00 PM |
8.86 |
8.10 |
31.90 |
23.31 |
3.06 |
6.00 |
|
WSR16 |
20211214 |
Sunny |
Moderate |
Mid-Flood |
Middle |
7.60 |
3:44:00 PM |
8.81 |
8.13 |
32.26 |
23.29 |
2.50 |
6.00 |
|
WSR16 |
20211214 |
Sunny |
Moderate |
Mid-Flood |
Middle |
7.60 |
3:44:00 PM |
8.91 |
8.06 |
32.44 |
23.30 |
2.47 |
4.00 |
|
WSR16 |
20211214 |
Sunny |
Moderate |
Mid-Flood |
Bottom |
14.20 |
3:43:00 PM |
8.65 |
8.07 |
32.40 |
23.38 |
2.40 |
6.00 |
|
WSR16 |
20211214 |
Sunny |
Moderate |
Mid-Flood |
Bottom |
14.20 |
3:43:00 PM |
8.67 |
8.12 |
32.33 |
23.25 |
2.18 |
6.00 |
|
WSR16 |
20211216 |
Cloudy |
Moderate |
Mid-Flood |
Surface |
1.00 |
4:37:00 PM |
8.58 |
8.11 |
33.08 |
23.67 |
3.00 |
6.00 |
|
WSR16 |
20211216 |
Cloudy |
Moderate |
Mid-Flood |
Surface |
1.00 |
4:37:00 PM |
8.47 |
8.15 |
33.07 |
23.68 |
2.86 |
5.00 |
|
WSR16 |
20211216 |
Cloudy |
Moderate |
Mid-Flood |
Middle |
8.10 |
4:36:00 PM |
8.49 |
8.14 |
32.99 |
23.70 |
3.43 |
10.00 |
|
WSR16 |
20211216 |
Cloudy |
Moderate |
Mid-Flood |
Middle |
8.10 |
4:36:00 PM |
8.38 |
8.11 |
33.01 |
23.65 |
3.40 |
10.00 |
|
WSR16 |
20211216 |
Cloudy |
Moderate |
Mid-Flood |
Bottom |
15.20 |
4:35:00 PM |
8.51 |
8.10 |
32.93 |
23.63 |
3.70 |
4.00 |
|
WSR16 |
20211216 |
Cloudy |
Moderate |
Mid-Flood |
Bottom |
15.20 |
4:35:00 PM |
8.52 |
8.14 |
32.89 |
23.69 |
3.17 |
5.00 |
|
WSR16 |
20211218 |
Cloudy |
Moderate |
Mid-Flood |
Surface |
1.00 |
5:19:00 PM |
8.11 |
8.42 |
32.43 |
23.97 |
2.29 |
3.00 |
|
WSR16 |
20211218 |
Cloudy |
Moderate |
Mid-Flood |
Surface |
1.00 |
5:19:00 PM |
8.08 |
8.35 |
32.34 |
23.95 |
2.70 |
3.00 |
|
Location |
Date (YYYYMMDD) |
Weather |
Sea Condition |
Tidal |
Water Level |
Depth (m) |
Time (hh:mm) |
DO (mg/L) |
pH |
Sal (ppt) |
Temp (¢XC) |
Turbidty (NTU) note 1 |
SS (mg/L) (Note 2) |
|
WSR16 |
20211218 |
Cloudy |
Moderate |
Mid-Flood |
Middle |
8.30 |
5:18:00 PM |
8.17 |
8.42 |
32.36 |
23.93 |
2.00 |
3.00 |
|
WSR16 |
20211218 |
Cloudy |
Moderate |
Mid-Flood |
Middle |
8.30 |
5:18:00 PM |
8.17 |
8.37 |
32.42 |
23.94 |
2.32 |
3.00 |
|
WSR16 |
20211218 |
Cloudy |
Moderate |
Mid-Flood |
Bottom |
15.60 |
5:17:00 PM |
8.06 |
8.40 |
32.43 |
23.97 |
2.28 |
5.00 |
|
WSR16 |
20211218 |
Cloudy |
Moderate |
Mid-Flood |
Bottom |
15.60 |
5:17:00 PM |
8.02 |
8.40 |
32.39 |
23.96 |
1.93 |
4.00 |
|
WSR16 |
20211221 |
Cloudy |
Moderate |
Mid-Flood |
Surface |
1.00 |
10:07:00 AM |
8.30 |
8.16 |
31.78 |
23.00 |
3.34 |
6.00 |
|
WSR16 |
20211221 |
Cloudy |
Moderate |
Mid-Flood |
Surface |
1.00 |
10:07:00 AM |
8.31 |
8.21 |
31.75 |
23.03 |
2.93 |
6.00 |
|
WSR16 |
20211221 |
Cloudy |
Moderate |
Mid-Flood |
Middle |
7.75 |
10:06:00 AM |
8.34 |
8.19 |
31.66 |
22.99 |
2.96 |
5.00 |
|
WSR16 |
20211221 |
Cloudy |
Moderate |
Mid-Flood |
Middle |
7.75 |
10:06:00 AM |
8.28 |
8.17 |
31.72 |
22.92 |
2.91 |
7.00 |
|
WSR16 |
20211221 |
Cloudy |
Moderate |
Mid-Flood |
Bottom |
14.50 |
10:05:00 AM |
8.29 |
8.14 |
31.72 |
22.94 |
2.55 |
3.00 |
|
WSR16 |
20211221 |
Cloudy |
Moderate |
Mid-Flood |
Bottom |
14.50 |
10:05:00 AM |
8.32 |
8.15 |
31.75 |
22.91 |
2.76 |
4.00 |
|
WSR16 |
20211223 |
Cloudy |
Moderate |
Mid-Flood |
Surface |
1.00 |
10:11:00 AM |
8.11 |
8.30 |
32.86 |
22.12 |
2.75 |
6.00 |
|
WSR16 |
20211223 |
Cloudy |
Moderate |
Mid-Flood |
Surface |
1.00 |
10:11:00 AM |
8.24 |
8.32 |
32.96 |
22.10 |
3.15 |
6.00 |
|
WSR16 |
20211223 |
Cloudy |
Moderate |
Mid-Flood |
Middle |
7.90 |
10:10:00 AM |
8.04 |
8.24 |
32.91 |
22.05 |
3.17 |
5.00 |
|
WSR16 |
20211223 |
Cloudy |
Moderate |
Mid-Flood |
Middle |
7.90 |
10:10:00 AM |
8.06 |
8.30 |
32.83 |
21.96 |
2.82 |
4.00 |
|
WSR16 |
20211223 |
Cloudy |
Moderate |
Mid-Flood |
Bottom |
14.80 |
10:09:00 AM |
8.02 |
8.29 |
32.94 |
22.06 |
2.62 |
6.00 |
|
WSR16 |
20211223 |
Cloudy |
Moderate |
Mid-Flood |
Bottom |
14.80 |
10:09:00 AM |
8.11 |
8.23 |
32.88 |
21.97 |
3.12 |
4.00 |
|
WSR16 |
20211225 |
Sunny |
Moderate |
Mid-Flood |
Surface |
1.00 |
11:43:00 AM |
9.08 |
8.38 |
31.93 |
22.32 |
2.79 |
4.00 |
|
WSR16 |
20211225 |
Sunny |
Moderate |
Mid-Flood |
Surface |
1.00 |
11:43:00 AM |
9.12 |
8.40 |
31.94 |
22.46 |
2.33 |
4.00 |
|
WSR16 |
20211225 |
Sunny |
Moderate |
Mid-Flood |
Middle |
8.15 |
11:42:00 AM |
9.06 |
8.34 |
32.07 |
22.46 |
2.39 |
3.00 |
|
WSR16 |
20211225 |
Sunny |
Moderate |
Mid-Flood |
Middle |
8.15 |
11:42:00 AM |
9.06 |
8.41 |
31.94 |
22.45 |
2.32 |
3.00 |
|
WSR16 |
20211225 |
Sunny |
Moderate |
Mid-Flood |
Bottom |
15.30 |
11:41:00 AM |
9.10 |
8.40 |
31.84 |
22.38 |
1.67 |
3.00 |
|
WSR16 |
20211225 |
Sunny |
Moderate |
Mid-Flood |
Bottom |
15.30 |
11:41:00 AM |
9.09 |
8.36 |
32.00 |
22.32 |
1.77 |
4.00 |
|
WSR16 |
20211228 |
Cloudy |
Moderate |
Mid-Flood |
Surface |
1.00 |
1:59:00 PM |
8.18 |
8.34 |
32.12 |
22.11 |
3.33 |
26.00 |
|
WSR16 |
20211228 |
Cloudy |
Moderate |
Mid-Flood |
Surface |
1.00 |
1:59:00 PM |
8.27 |
8.40 |
32.15 |
22.06 |
3.80 |
22.00 |
|
WSR16 |
20211228 |
Cloudy |
Moderate |
Mid-Flood |
Middle |
8.55 |
1:58:00 PM |
8.28 |
8.36 |
32.04 |
22.14 |
3.68 |
20.00 |
|
WSR16 |
20211228 |
Cloudy |
Moderate |
Mid-Flood |
Middle |
8.55 |
1:58:00 PM |
8.35 |
8.36 |
32.05 |
22.00 |
3.62 |
12.00 |
|
WSR16 |
20211228 |
Cloudy |
Moderate |
Mid-Flood |
Bottom |
16.10 |
1:57:00 PM |
8.34 |
8.40 |
32.13 |
21.99 |
3.31 |
3.00 |
|
Location |
Date (YYYYMMDD) |
Weather |
Sea Condition |
Tidal |
Water Level |
Depth (m) |
Time (hh:mm) |
DO (mg/L) |
pH |
Sal (ppt) |
Temp (¢XC) |
Turbidty (NTU) note 1 |
SS (mg/L) (Note 2) |
|
WSR16 |
20211228 |
Cloudy |
Moderate |
Mid-Flood |
Bottom |
16.10 |
1:57:00 PM |
8.23 |
8.38 |
32.05 |
22.00 |
3.06 |
3.00 |
|
WSR16 |
20211230 |
Sunny |
Moderate |
Mid-Flood |
Surface |
1.00 |
4:24:00 PM |
9.27 |
8.31 |
32.41 |
22.39 |
4.20 |
8.00 |
|
WSR16 |
20211230 |
Sunny |
Moderate |
Mid-Flood |
Surface |
1.00 |
4:24:00 PM |
9.25 |
8.36 |
32.41 |
22.37 |
4.26 |
8.00 |
|
WSR16 |
20211230 |
Sunny |
Moderate |
Mid-Flood |
Middle |
7.65 |
4:23:00 PM |
9.11 |
8.34 |
32.40 |
22.30 |
3.62 |
9.00 |
|
WSR16 |
20211230 |
Sunny |
Moderate |
Mid-Flood |
Middle |
7.65 |
4:23:00 PM |
9.11 |
8.32 |
32.40 |
22.34 |
3.60 |
7.00 |
|
WSR16 |
20211230 |
Sunny |
Moderate |
Mid-Flood |
Bottom |
14.30 |
4:22:00 PM |
9.26 |
8.34 |
32.41 |
22.41 |
3.81 |
10.00 |
|
WSR16 |
20211230 |
Sunny |
Moderate |
Mid-Flood |
Bottom |
14.30 |
4:22:00 PM |
9.34 |
8.31 |
32.42 |
22.31 |
3.29 |
11.00 |
|
WSR33 |
20211202 |
Sunny |
Moderate |
Mid-Flood |
Surface |
1.00 |
4:09:00 PM |
8.89 |
8.44 |
31.61 |
25.99 |
3.09 |
4.00 |
|
WSR33 |
20211202 |
Sunny |
Moderate |
Mid-Flood |
Surface |
1.00 |
4:09:00 PM |
8.91 |
8.40 |
31.73 |
26.11 |
3.06 |
5.00 |
|
WSR33 |
20211202 |
Sunny |
Moderate |
Mid-Flood |
Middle |
3.60 |
4:08:00 PM |
8.89 |
8.50 |
31.77 |
26.05 |
2.70 |
5.00 |
|
WSR33 |
20211202 |
Sunny |
Moderate |
Mid-Flood |
Middle |
3.60 |
4:08:00 PM |
8.75 |
8.50 |
31.73 |
25.97 |
3.12 |
5.00 |
|
WSR33 |
20211202 |
Sunny |
Moderate |
Mid-Flood |
Bottom |
6.20 |
4:07:00 PM |
8.86 |
8.45 |
31.61 |
26.06 |
2.25 |
7.00 |
|
WSR33 |
20211202 |
Sunny |
Moderate |
Mid-Flood |
Bottom |
6.20 |
4:07:00 PM |
8.93 |
8.57 |
31.63 |
26.00 |
2.25 |
8.00 |
|
WSR33 |
20211204 |
Sunny |
Moderate |
Mid-Flood |
Surface |
1.00 |
5:03:00 PM |
8.77 |
8.26 |
30.54 |
24.64 |
3.57 |
4.00 |
|
WSR33 |
20211204 |
Sunny |
Moderate |
Mid-Flood |
Surface |
1.00 |
5:03:00 PM |
8.65 |
8.33 |
30.62 |
24.46 |
3.57 |
3.00 |
|
WSR33 |
20211204 |
Sunny |
Moderate |
Mid-Flood |
Middle |
3.60 |
5:02:00 PM |
8.66 |
8.33 |
30.59 |
24.68 |
3.25 |
4.00 |
|
WSR33 |
20211204 |
Sunny |
Moderate |
Mid-Flood |
Middle |
3.60 |
5:02:00 PM |
8.67 |
8.34 |
30.50 |
24.56 |
3.31 |
3.00 |
|
WSR33 |
20211204 |
Sunny |
Moderate |
Mid-Flood |
Bottom |
6.20 |
5:01:00 PM |
8.75 |
8.33 |
30.52 |
24.54 |
2.96 |
5.00 |
|
WSR33 |
20211204 |
Sunny |
Moderate |
Mid-Flood |
Bottom |
6.20 |
5:01:00 PM |
8.64 |
8.31 |
30.53 |
24.52 |
2.83 |
3.00 |
|
WSR33 |
20211207 |
Sunny |
Moderate |
Mid-Flood |
Surface |
1.00 |
9:17:00 AM |
8.68 |
8.29 |
32.11 |
26.08 |
2.68 |
6.00 |
|
WSR33 |
20211207 |
Sunny |
Moderate |
Mid-Flood |
Surface |
1.00 |
9:17:00 AM |
8.82 |
8.31 |
32.07 |
25.80 |
3.04 |
4.00 |
|
WSR33 |
20211207 |
Sunny |
Moderate |
Mid-Flood |
Middle |
3.80 |
9:16:00 AM |
8.68 |
8.35 |
31.82 |
25.99 |
2.18 |
5.00 |
|
WSR33 |
20211207 |
Sunny |
Moderate |
Mid-Flood |
Middle |
3.80 |
9:16:00 AM |
8.77 |
8.31 |
32.02 |
25.82 |
2.39 |
5.00 |
|
WSR33 |
20211207 |
Sunny |
Moderate |
Mid-Flood |
Bottom |
6.60 |
9:15:00 AM |
8.77 |
8.30 |
32.02 |
26.04 |
2.35 |
6.00 |
|
WSR33 |
20211207 |
Sunny |
Moderate |
Mid-Flood |
Bottom |
6.60 |
9:15:00 AM |
8.70 |
8.30 |
32.10 |
25.83 |
2.42 |
8.00 |
|
WSR33 |
20211209 |
Sunny |
Moderate |
Mid-Flood |
Surface |
1.00 |
10:18:00 AM |
8.44 |
8.16 |
33.19 |
23.91 |
2.69 |
8.00 |
|
WSR33 |
20211209 |
Sunny |
Moderate |
Mid-Flood |
Surface |
1.00 |
10:18:00 AM |
8.36 |
8.18 |
33.07 |
23.72 |
2.65 |
10.00 |
|
Location |
Date (YYYYMMDD) |
Weather |
Sea Condition |
Tidal |
Water Level |
Depth (m) |
Time (hh:mm) |
DO (mg/L) |
pH |
Sal (ppt) |
Temp (¢XC) |
Turbidty (NTU) note 1 |
SS (mg/L) (Note 2) |
|
WSR33 |
20211209 |
Sunny |
Moderate |
Mid-Flood |
Middle |
3.60 |
10:17:00 AM |
8.51 |
8.21 |
33.12 |
23.79 |
2.86 |
6.00 |
|
WSR33 |
20211209 |
Sunny |
Moderate |
Mid-Flood |
Middle |
3.60 |
10:17:00 AM |
8.41 |
8.20 |
33.06 |
23.72 |
2.47 |
6.00 |
|
WSR33 |
20211209 |
Sunny |
Moderate |
Mid-Flood |
Bottom |
6.20 |
10:16:00 AM |
8.48 |
8.19 |
33.09 |
23.75 |
2.57 |
7.00 |
|
WSR33 |
20211209 |
Sunny |
Moderate |
Mid-Flood |
Bottom |
6.20 |
10:16:00 AM |
8.51 |
8.16 |
33.17 |
23.85 |
2.18 |
9.00 |
|
WSR33 |
20211211 |
Sunny |
Moderate |
Mid-Flood |
Surface |
1.00 |
12:39:00 PM |
8.89 |
8.25 |
31.93 |
24.23 |
2.02 |
23.00 |
|
WSR33 |
20211211 |
Sunny |
Moderate |
Mid-Flood |
Surface |
1.00 |
12:39:00 PM |
9.01 |
8.34 |
31.94 |
24.17 |
2.28 |
24.00 |
|
WSR33 |
20211211 |
Sunny |
Moderate |
Mid-Flood |
Middle |
3.75 |
12:38:00 PM |
8.88 |
8.23 |
31.87 |
24.21 |
2.16 |
13.00 |
|
WSR33 |
20211211 |
Sunny |
Moderate |
Mid-Flood |
Middle |
3.75 |
12:38:00 PM |
8.95 |
8.24 |
31.70 |
24.33 |
2.17 |
15.00 |
|
WSR33 |
20211211 |
Sunny |
Moderate |
Mid-Flood |
Bottom |
6.50 |
12:37:00 PM |
9.02 |
8.31 |
31.74 |
24.20 |
2.12 |
5.00 |
|
WSR33 |
20211211 |
Sunny |
Moderate |
Mid-Flood |
Bottom |
6.50 |
12:37:00 PM |
8.87 |
8.29 |
31.81 |
24.32 |
1.90 |
4.00 |
|
WSR33 |
20211214 |
Sunny |
Moderate |
Mid-Flood |
Surface |
1.00 |
2:57:00 PM |
8.91 |
8.28 |
32.24 |
23.30 |
2.63 |
4.00 |
|
WSR33 |
20211214 |
Sunny |
Moderate |
Mid-Flood |
Surface |
1.00 |
2:57:00 PM |
9.05 |
8.26 |
31.95 |
23.38 |
3.01 |
5.00 |
|
WSR33 |
20211214 |
Sunny |
Moderate |
Mid-Flood |
Middle |
3.85 |
2:56:00 PM |
9.01 |
8.33 |
32.38 |
23.24 |
2.48 |
5.00 |
|
WSR33 |
20211214 |
Sunny |
Moderate |
Mid-Flood |
Middle |
3.85 |
2:56:00 PM |
9.01 |
8.36 |
32.09 |
23.36 |
2.25 |
5.00 |
|
WSR33 |
20211214 |
Sunny |
Moderate |
Mid-Flood |
Bottom |
6.70 |
2:55:00 PM |
8.89 |
8.34 |
31.84 |
23.37 |
2.68 |
5.00 |
|
WSR33 |
20211214 |
Sunny |
Moderate |
Mid-Flood |
Bottom |
6.70 |
2:55:00 PM |
8.78 |
8.32 |
32.12 |
23.29 |
2.53 |
4.00 |
|
WSR33 |
20211216 |
Cloudy |
Moderate |
Mid-Flood |
Surface |
1.00 |
3:48:00 PM |
8.66 |
8.28 |
32.69 |
23.73 |
2.46 |
14.00 |
|
WSR33 |
20211216 |
Cloudy |
Moderate |
Mid-Flood |
Surface |
1.00 |
3:48:00 PM |
8.67 |
8.29 |
32.69 |
23.74 |
2.74 |
12.00 |
|
WSR33 |
20211216 |
Cloudy |
Moderate |
Mid-Flood |
Middle |
3.50 |
3:47:00 PM |
8.59 |
8.31 |
32.61 |
23.79 |
2.73 |
14.00 |
|
WSR33 |
20211216 |
Cloudy |
Moderate |
Mid-Flood |
Middle |
3.50 |
3:47:00 PM |
8.69 |
8.29 |
32.64 |
23.82 |
2.51 |
11.00 |
|
WSR33 |
20211216 |
Cloudy |
Moderate |
Mid-Flood |
Bottom |
6.00 |
3:46:00 PM |
8.71 |
8.29 |
32.66 |
23.79 |
2.01 |
4.00 |
|
WSR33 |
20211216 |
Cloudy |
Moderate |
Mid-Flood |
Bottom |
6.00 |
3:46:00 PM |
8.63 |
8.29 |
32.53 |
23.83 |
2.40 |
4.00 |
|
WSR33 |
20211218 |
Cloudy |
Moderate |
Mid-Flood |
Surface |
1.00 |
4:29:00 PM |
8.02 |
8.32 |
32.50 |
23.93 |
2.44 |
4.00 |
|
WSR33 |
20211218 |
Cloudy |
Moderate |
Mid-Flood |
Surface |
1.00 |
4:29:00 PM |
8.10 |
8.38 |
32.40 |
23.87 |
2.43 |
4.00 |
|
WSR33 |
20211218 |
Cloudy |
Moderate |
Mid-Flood |
Middle |
3.55 |
4:28:00 PM |
7.99 |
8.39 |
32.39 |
23.87 |
2.40 |
6.00 |
|
WSR33 |
20211218 |
Cloudy |
Moderate |
Mid-Flood |
Middle |
3.55 |
4:28:00 PM |
8.04 |
8.38 |
32.53 |
23.93 |
2.63 |
7.00 |
|
WSR33 |
20211218 |
Cloudy |
Moderate |
Mid-Flood |
Bottom |
6.10 |
4:27:00 PM |
8.08 |
8.40 |
32.40 |
23.90 |
2.55 |
10.00 |
|
Location |
Date (YYYYMMDD) |
Weather |
Sea Condition |
Tidal |
Water Level |
Depth (m) |
Time (hh:mm) |
DO (mg/L) |
pH |
Sal (ppt) |
Temp (¢XC) |
Turbidty (NTU) note 1 |
SS (mg/L) (Note 2) |
|
WSR33 |
20211218 |
Cloudy |
Moderate |
Mid-Flood |
Bottom |
6.10 |
4:27:00 PM |
8.01 |
8.39 |
32.47 |
23.93 |
2.62 |
7.00 |
|
WSR33 |
20211221 |
Cloudy |
Moderate |
Mid-Flood |
Surface |
1.00 |
9:18:00 AM |
8.37 |
8.22 |
31.73 |
22.68 |
2.88 |
6.00 |
|
WSR33 |
20211221 |
Cloudy |
Moderate |
Mid-Flood |
Surface |
1.00 |
9:18:00 AM |
8.31 |
8.24 |
31.70 |
22.63 |
2.52 |
4.00 |
|
WSR33 |
20211221 |
Cloudy |
Moderate |
Mid-Flood |
Middle |
3.80 |
9:17:00 AM |
8.37 |
8.26 |
31.75 |
22.58 |
2.84 |
13.00 |
|
WSR33 |
20211221 |
Cloudy |
Moderate |
Mid-Flood |
Middle |
3.80 |
9:17:00 AM |
8.37 |
8.29 |
31.57 |
22.70 |
2.48 |
11.00 |
|
WSR33 |
20211221 |
Cloudy |
Moderate |
Mid-Flood |
Bottom |
6.60 |
9:16:00 AM |
8.33 |
8.27 |
31.64 |
22.70 |
2.51 |
5.00 |
|
WSR33 |
20211221 |
Cloudy |
Moderate |
Mid-Flood |
Bottom |
6.60 |
9:16:00 AM |
8.30 |
8.24 |
31.62 |
22.57 |
2.24 |
4.00 |
|
WSR33 |
20211223 |
Cloudy |
Moderate |
Mid-Flood |
Surface |
1.00 |
9:21:00 AM |
8.02 |
8.30 |
32.95 |
22.43 |
3.11 |
6.00 |
|
WSR33 |
20211223 |
Cloudy |
Moderate |
Mid-Flood |
Surface |
1.00 |
9:21:00 AM |
8.21 |
8.28 |
32.93 |
22.21 |
3.21 |
6.00 |
|
WSR33 |
20211223 |
Cloudy |
Moderate |
Mid-Flood |
Middle |
3.55 |
9:20:00 AM |
8.21 |
8.31 |
32.99 |
22.43 |
2.89 |
8.00 |
|
WSR33 |
20211223 |
Cloudy |
Moderate |
Mid-Flood |
Middle |
3.55 |
9:20:00 AM |
8.04 |
8.30 |
32.88 |
22.33 |
2.76 |
6.00 |
|
WSR33 |
20211223 |
Cloudy |
Moderate |
Mid-Flood |
Bottom |
6.10 |
9:19:00 AM |
8.09 |
8.30 |
32.88 |
22.25 |
2.61 |
6.00 |
|
WSR33 |
20211223 |
Cloudy |
Moderate |
Mid-Flood |
Bottom |
6.10 |
9:19:00 AM |
8.03 |
8.23 |
32.94 |
22.38 |
2.60 |
6.00 |
|
WSR33 |
20211225 |
Sunny |
Moderate |
Mid-Flood |
Surface |
1.00 |
10:55:00 AM |
8.25 |
8.23 |
32.44 |
22.11 |
3.03 |
3.00 |
|
WSR33 |
20211225 |
Sunny |
Moderate |
Mid-Flood |
Surface |
1.00 |
10:55:00 AM |
8.39 |
8.21 |
32.32 |
22.19 |
2.84 |
4.00 |
|
WSR33 |
20211225 |
Sunny |
Moderate |
Mid-Flood |
Middle |
3.60 |
10:54:00 AM |
8.29 |
8.25 |
32.48 |
22.18 |
2.48 |
3.00 |
|
WSR33 |
20211225 |
Sunny |
Moderate |
Mid-Flood |
Middle |
3.60 |
10:54:00 AM |
8.39 |
8.28 |
32.36 |
22.21 |
2.86 |
4.00 |
|
WSR33 |
20211225 |
Sunny |
Moderate |
Mid-Flood |
Bottom |
6.20 |
10:53:00 AM |
8.29 |
8.20 |
32.47 |
22.15 |
2.10 |
4.00 |
|
WSR33 |
20211225 |
Sunny |
Moderate |
Mid-Flood |
Bottom |
6.20 |
10:53:00 AM |
8.29 |
8.21 |
32.55 |
22.20 |
2.10 |
3.00 |
|
WSR33 |
20211228 |
Cloudy |
Moderate |
Mid-Flood |
Surface |
1.00 |
1:13:00 PM |
8.67 |
8.10 |
31.67 |
22.04 |
2.91 |
3.00 |
|
WSR33 |
20211228 |
Cloudy |
Moderate |
Mid-Flood |
Surface |
1.00 |
1:13:00 PM |
8.95 |
8.15 |
31.60 |
22.04 |
2.68 |
4.00 |
|
WSR33 |
20211228 |
Cloudy |
Moderate |
Mid-Flood |
Middle |
3.80 |
1:12:00 PM |
8.80 |
8.09 |
31.61 |
21.96 |
2.73 |
4.00 |
|
WSR33 |
20211228 |
Cloudy |
Moderate |
Mid-Flood |
Middle |
3.80 |
1:12:00 PM |
8.71 |
8.14 |
31.66 |
22.06 |
2.40 |
9.00 |
|
WSR33 |
20211228 |
Cloudy |
Moderate |
Mid-Flood |
Bottom |
6.60 |
1:11:00 PM |
8.70 |
8.15 |
31.62 |
22.06 |
1.94 |
5.00 |
|
WSR33 |
20211228 |
Cloudy |
Moderate |
Mid-Flood |
Bottom |
6.60 |
1:11:00 PM |
8.83 |
8.11 |
31.61 |
22.11 |
1.82 |
5.00 |
|
WSR33 |
20211230 |
Sunny |
Moderate |
Mid-Flood |
Surface |
1.00 |
3:36:00 PM |
9.22 |
8.33 |
32.17 |
22.19 |
3.42 |
9.00 |
|
WSR33 |
20211230 |
Sunny |
Moderate |
Mid-Flood |
Surface |
1.00 |
3:36:00 PM |
9.28 |
8.31 |
32.15 |
22.26 |
3.35 |
10.00 |
|
Location |
Date (YYYYMMDD) |
Weather |
Sea Condition |
Tidal |
Water Level |
Depth (m) |
Time (hh:mm) |
DO (mg/L) |
pH |
Sal (ppt) |
Temp (¢XC) |
Turbidty (NTU) note 1 |
SS (mg/L) (Note 2) |
|
WSR33 |
20211230 |
Sunny |
Moderate |
Mid-Flood |
Middle |
3.65 |
3:35:00 PM |
9.35 |
8.36 |
32.09 |
22.15 |
3.08 |
12.00 |
|
WSR33 |
20211230 |
Sunny |
Moderate |
Mid-Flood |
Middle |
3.65 |
3:35:00 PM |
9.31 |
8.37 |
32.10 |
22.17 |
2.88 |
14.00 |
|
WSR33 |
20211230 |
Sunny |
Moderate |
Mid-Flood |
Bottom |
6.30 |
3:34:00 PM |
9.17 |
8.32 |
32.05 |
22.22 |
3.05 |
9.00 |
|
WSR33 |
20211230 |
Sunny |
Moderate |
Mid-Flood |
Bottom |
6.30 |
3:34:00 PM |
9.25 |
8.29 |
32.06 |
22.27 |
2.74 |
9.00 |
|
WSR36 |
20211202 |
Sunny |
Moderate |
Mid-Flood |
Surface |
1.00 |
4:22:00 PM |
9.08 |
8.46 |
32.80 |
26.04 |
2.21 |
4.00 |
|
WSR36 |
20211202 |
Sunny |
Moderate |
Mid-Flood |
Surface |
1.00 |
4:22:00 PM |
8.87 |
8.40 |
32.73 |
26.07 |
2.28 |
3.00 |
|
WSR36 |
20211202 |
Sunny |
Moderate |
Mid-Flood |
Middle |
3.75 |
4:22:00 PM |
9.04 |
8.45 |
32.78 |
26.07 |
2.47 |
5.00 |
|
WSR36 |
20211202 |
Sunny |
Moderate |
Mid-Flood |
Middle |
3.75 |
4:22:00 PM |
8.86 |
8.43 |
32.73 |
26.18 |
2.20 |
5.00 |
|
WSR36 |
20211202 |
Sunny |
Moderate |
Mid-Flood |
Bottom |
6.50 |
4:21:00 PM |
8.90 |
8.51 |
32.72 |
26.20 |
1.73 |
3.00 |
|
WSR36 |
20211202 |
Sunny |
Moderate |
Mid-Flood |
Bottom |
6.50 |
4:21:00 PM |
9.05 |
8.56 |
32.84 |
26.17 |
1.90 |
5.00 |
|
WSR36 |
20211204 |
Sunny |
Moderate |
Mid-Flood |
Surface |
1.00 |
5:15:00 PM |
8.64 |
8.26 |
31.29 |
24.45 |
2.83 |
5.00 |
|
WSR36 |
20211204 |
Sunny |
Moderate |
Mid-Flood |
Surface |
1.00 |
5:15:00 PM |
8.59 |
8.23 |
31.36 |
24.37 |
2.36 |
4.00 |
|
WSR36 |
20211204 |
Sunny |
Moderate |
Mid-Flood |
Middle |
3.60 |
5:15:00 PM |
8.69 |
8.23 |
31.35 |
24.49 |
1.98 |
6.00 |
|
WSR36 |
20211204 |
Sunny |
Moderate |
Mid-Flood |
Middle |
3.60 |
5:15:00 PM |
8.51 |
8.25 |
31.27 |
24.45 |
1.81 |
5.00 |
|
WSR36 |
20211204 |
Sunny |
Moderate |
Mid-Flood |
Bottom |
6.20 |
5:14:00 PM |
8.59 |
8.30 |
31.36 |
24.43 |
1.79 |
5.00 |
|
WSR36 |
20211204 |
Sunny |
Moderate |
Mid-Flood |
Bottom |
6.20 |
5:14:00 PM |
8.61 |
8.25 |
31.25 |
24.42 |
1.59 |
5.00 |
|
WSR36 |
20211207 |
Sunny |
Moderate |
Mid-Flood |
Surface |
1.00 |
9:29:00 AM |
8.80 |
8.39 |
31.18 |
25.60 |
2.99 |
7.00 |
|
WSR36 |
20211207 |
Sunny |
Moderate |
Mid-Flood |
Surface |
1.00 |
9:29:00 AM |
8.88 |
8.38 |
31.26 |
25.69 |
3.06 |
6.00 |
|
WSR36 |
20211207 |
Sunny |
Moderate |
Mid-Flood |
Middle |
3.50 |
9:29:00 AM |
8.80 |
8.41 |
31.23 |
25.77 |
2.92 |
7.00 |
|
WSR36 |
20211207 |
Sunny |
Moderate |
Mid-Flood |
Middle |
3.50 |
9:29:00 AM |
8.90 |
8.35 |
31.40 |
25.87 |
2.73 |
7.00 |
|
WSR36 |
20211207 |
Sunny |
Moderate |
Mid-Flood |
Bottom |
6.00 |
9:28:00 AM |
8.85 |
8.42 |
31.51 |
25.61 |
2.56 |
9.00 |
|
WSR36 |
20211207 |
Sunny |
Moderate |
Mid-Flood |
Bottom |
6.00 |
9:28:00 AM |
8.73 |
8.39 |
31.52 |
25.86 |
2.84 |
7.00 |
|
WSR36 |
20211209 |
Sunny |
Moderate |
Mid-Flood |
Surface |
1.00 |
10:29:00 AM |
8.64 |
8.20 |
33.73 |
23.71 |
2.68 |
5.00 |
|
WSR36 |
20211209 |
Sunny |
Moderate |
Mid-Flood |
Surface |
1.00 |
10:29:00 AM |
8.57 |
8.25 |
33.71 |
23.74 |
2.84 |
6.00 |
|
WSR36 |
20211209 |
Sunny |
Moderate |
Mid-Flood |
Middle |
3.40 |
10:29:00 AM |
8.48 |
8.30 |
33.64 |
23.61 |
2.68 |
6.00 |
|
WSR36 |
20211209 |
Sunny |
Moderate |
Mid-Flood |
Middle |
3.40 |
10:29:00 AM |
8.64 |
8.19 |
33.70 |
23.71 |
2.75 |
7.00 |
|
WSR36 |
20211209 |
Sunny |
Moderate |
Mid-Flood |
Bottom |
5.80 |
10:28:00 AM |
8.60 |
8.29 |
33.65 |
23.59 |
2.11 |
6.00 |
|
Location |
Date (YYYYMMDD) |
Weather |
Sea Condition |
Tidal |
Water Level |
Depth (m) |
Time (hh:mm) |
DO (mg/L) |
pH |
Sal (ppt) |
Temp (¢XC) |
Turbidty (NTU) note 1 |
SS (mg/L) (Note 2) |
|
WSR36 |
20211209 |
Sunny |
Moderate |
Mid-Flood |
Bottom |
5.80 |
10:28:00 AM |
8.60 |
8.21 |
33.75 |
23.69 |
2.04 |
5.00 |
|
WSR36 |
20211211 |
Sunny |
Moderate |
Mid-Flood |
Surface |
1.00 |
12:50:00 PM |
8.46 |
8.25 |
32.23 |
23.95 |
3.49 |
8.00 |
|
WSR36 |
20211211 |
Sunny |
Moderate |
Mid-Flood |
Surface |
1.00 |
12:50:00 PM |
8.46 |
8.21 |
32.34 |
24.04 |
3.35 |
8.00 |
|
WSR36 |
20211211 |
Sunny |
Moderate |
Mid-Flood |
Middle |
3.40 |
12:50:00 PM |
8.40 |
8.15 |
32.44 |
23.95 |
3.18 |
12.00 |
|
WSR36 |
20211211 |
Sunny |
Moderate |
Mid-Flood |
Middle |
3.40 |
12:50:00 PM |
8.53 |
8.15 |
32.34 |
24.06 |
3.19 |
12.00 |
|
WSR36 |
20211211 |
Sunny |
Moderate |
Mid-Flood |
Bottom |
5.80 |
12:49:00 PM |
8.41 |
8.26 |
32.19 |
24.02 |
3.24 |
24.00 |
|
WSR36 |
20211211 |
Sunny |
Moderate |
Mid-Flood |
Bottom |
5.80 |
12:49:00 PM |
8.45 |
8.26 |
32.27 |
24.08 |
3.65 |
23.00 |
|
WSR36 |
20211214 |
Sunny |
Moderate |
Mid-Flood |
Surface |
1.00 |
3:09:00 PM |
9.17 |
8.23 |
32.07 |
23.26 |
2.72 |
5.00 |
|
WSR36 |
20211214 |
Sunny |
Moderate |
Mid-Flood |
Surface |
1.00 |
3:09:00 PM |
9.00 |
8.20 |
32.50 |
23.24 |
2.80 |
7.00 |
|
WSR36 |
20211214 |
Sunny |
Moderate |
Mid-Flood |
Middle |
3.25 |
3:09:00 PM |
8.86 |
8.24 |
32.59 |
23.34 |
2.79 |
4.00 |
|
WSR36 |
20211214 |
Sunny |
Moderate |
Mid-Flood |
Middle |
3.25 |
3:09:00 PM |
9.15 |
8.19 |
32.45 |
23.40 |
2.43 |
3.00 |
|
WSR36 |
20211214 |
Sunny |
Moderate |
Mid-Flood |
Bottom |
5.50 |
3:08:00 PM |
9.11 |
8.23 |
32.06 |
23.29 |
2.49 |
4.00 |
|
WSR36 |
20211214 |
Sunny |
Moderate |
Mid-Flood |
Bottom |
5.50 |
3:08:00 PM |
8.85 |
8.23 |
32.11 |
23.24 |
2.64 |
4.00 |
|
WSR36 |
20211216 |
Cloudy |
Moderate |
Mid-Flood |
Surface |
1.00 |
4:01:00 PM |
8.11 |
8.29 |
33.08 |
23.71 |
3.27 |
10.00 |
|
WSR36 |
20211216 |
Cloudy |
Moderate |
Mid-Flood |
Surface |
1.00 |
4:01:00 PM |
8.10 |
8.34 |
33.05 |
23.69 |
3.30 |
14.00 |
|
WSR36 |
20211216 |
Cloudy |
Moderate |
Mid-Flood |
Middle |
3.50 |
4:01:00 PM |
8.15 |
8.32 |
33.03 |
23.77 |
3.72 |
14.00 |
|
WSR36 |
20211216 |
Cloudy |
Moderate |
Mid-Flood |
Middle |
3.50 |
4:01:00 PM |
8.14 |
8.30 |
33.10 |
23.70 |
3.21 |
12.00 |
|
WSR36 |
20211216 |
Cloudy |
Moderate |
Mid-Flood |
Bottom |
6.00 |
4:00:00 PM |
8.29 |
8.30 |
33.03 |
23.70 |
3.62 |
4.00 |
|
WSR36 |
20211216 |
Cloudy |
Moderate |
Mid-Flood |
Bottom |
6.00 |
4:00:00 PM |
8.30 |
8.29 |
33.10 |
23.74 |
3.40 |
6.00 |
|
WSR36 |
20211218 |
Cloudy |
Moderate |
Mid-Flood |
Surface |
1.00 |
4:42:00 PM |
9.02 |
8.45 |
33.20 |
23.57 |
3.54 |
6.00 |
|
WSR36 |
20211218 |
Cloudy |
Moderate |
Mid-Flood |
Surface |
1.00 |
4:42:00 PM |
8.80 |
8.45 |
33.16 |
23.65 |
3.71 |
8.00 |
|
WSR36 |
20211218 |
Cloudy |
Moderate |
Mid-Flood |
Middle |
3.20 |
4:42:00 PM |
8.89 |
8.42 |
33.15 |
23.62 |
3.43 |
5.00 |
|
WSR36 |
20211218 |
Cloudy |
Moderate |
Mid-Flood |
Middle |
3.20 |
4:42:00 PM |
8.79 |
8.38 |
33.22 |
23.57 |
3.29 |
7.00 |
|
WSR36 |
20211218 |
Cloudy |
Moderate |
Mid-Flood |
Bottom |
5.40 |
4:41:00 PM |
8.85 |
8.47 |
33.17 |
23.65 |
3.47 |
7.00 |
|
WSR36 |
20211218 |
Cloudy |
Moderate |
Mid-Flood |
Bottom |
5.40 |
4:41:00 PM |
8.94 |
8.38 |
33.19 |
23.62 |
2.91 |
5.00 |
|
WSR36 |
20211221 |
Cloudy |
Moderate |
Mid-Flood |
Surface |
1.00 |
9:30:00 AM |
8.66 |
8.30 |
31.89 |
23.08 |
2.79 |
15.00 |
|
WSR36 |
20211221 |
Cloudy |
Moderate |
Mid-Flood |
Surface |
1.00 |
9:30:00 AM |
8.72 |
8.31 |
31.96 |
23.07 |
2.41 |
18.00 |
|
Location |
Date (YYYYMMDD) |
Weather |
Sea Condition |
Tidal |
Water Level |
Depth (m) |
Time (hh:mm) |
DO (mg/L) |
pH |
Sal (ppt) |
Temp (¢XC) |
Turbidty (NTU) note 1 |
SS (mg/L) (Note 2) |
|
WSR36 |
20211221 |
Cloudy |
Moderate |
Mid-Flood |
Middle |
3.20 |
9:30:00 AM |
8.69 |
8.26 |
31.96 |
22.96 |
2.30 |
6.00 |
|
WSR36 |
20211221 |
Cloudy |
Moderate |
Mid-Flood |
Middle |
3.20 |
9:30:00 AM |
8.69 |
8.31 |
32.03 |
22.94 |
2.12 |
5.00 |
|
WSR36 |
20211221 |
Cloudy |
Moderate |
Mid-Flood |
Bottom |
5.40 |
9:29:00 AM |
8.66 |
8.24 |
32.01 |
23.08 |
2.52 |
6.00 |
|
WSR36 |
20211221 |
Cloudy |
Moderate |
Mid-Flood |
Bottom |
5.40 |
9:29:00 AM |
8.66 |
8.32 |
31.99 |
22.98 |
2.12 |
4.00 |
|
WSR36 |
20211223 |
Cloudy |
Moderate |
Mid-Flood |
Surface |
1.00 |
9:34:00 AM |
8.14 |
8.25 |
32.92 |
22.41 |
3.11 |
6.00 |
|
WSR36 |
20211223 |
Cloudy |
Moderate |
Mid-Flood |
Surface |
1.00 |
9:34:00 AM |
8.00 |
8.31 |
32.84 |
22.33 |
3.48 |
6.00 |
|
WSR36 |
20211223 |
Cloudy |
Moderate |
Mid-Flood |
Middle |
3.75 |
9:34:00 AM |
8.10 |
8.24 |
32.89 |
22.34 |
3.22 |
6.00 |
|
WSR36 |
20211223 |
Cloudy |
Moderate |
Mid-Flood |
Middle |
3.75 |
9:34:00 AM |
8.12 |
8.27 |
32.83 |
22.30 |
2.72 |
5.00 |
|
WSR36 |
20211223 |
Cloudy |
Moderate |
Mid-Flood |
Bottom |
6.50 |
9:33:00 AM |
7.99 |
8.27 |
32.93 |
22.41 |
2.47 |
5.00 |
|
WSR36 |
20211223 |
Cloudy |
Moderate |
Mid-Flood |
Bottom |
6.50 |
9:33:00 AM |
8.18 |
8.26 |
32.89 |
22.40 |
2.41 |
7.00 |
|
WSR36 |
20211225 |
Sunny |
Moderate |
Mid-Flood |
Surface |
1.00 |
11:08:00 AM |
8.33 |
8.31 |
32.66 |
22.28 |
2.84 |
2.50 |
|
WSR36 |
20211225 |
Sunny |
Moderate |
Mid-Flood |
Surface |
1.00 |
11:08:00 AM |
8.34 |
8.28 |
32.61 |
22.14 |
2.83 |
2.50 |
|
WSR36 |
20211225 |
Sunny |
Moderate |
Mid-Flood |
Middle |
3.70 |
11:08:00 AM |
8.31 |
8.37 |
32.80 |
22.16 |
2.97 |
6.00 |
|
WSR36 |
20211225 |
Sunny |
Moderate |
Mid-Flood |
Middle |
3.70 |
11:08:00 AM |
8.20 |
8.29 |
32.77 |
22.23 |
2.57 |
7.00 |
|
WSR36 |
20211225 |
Sunny |
Moderate |
Mid-Flood |
Bottom |
6.40 |
11:07:00 AM |
8.34 |
8.28 |
32.82 |
22.23 |
2.45 |
9.00 |
|
WSR36 |
20211225 |
Sunny |
Moderate |
Mid-Flood |
Bottom |
6.40 |
11:07:00 AM |
8.33 |
8.35 |
32.67 |
22.28 |
2.63 |
10.00 |
|
WSR36 |
20211228 |
Cloudy |
Moderate |
Mid-Flood |
Surface |
1.00 |
1:25:00 PM |
8.22 |
8.18 |
32.08 |
22.35 |
3.08 |
8.00 |
|
WSR36 |
20211228 |
Cloudy |
Moderate |
Mid-Flood |
Surface |
1.00 |
1:25:00 PM |
8.02 |
8.11 |
31.99 |
22.28 |
3.45 |
4.00 |
|
WSR36 |
20211228 |
Cloudy |
Moderate |
Mid-Flood |
Middle |
3.70 |
1:25:00 PM |
7.97 |
8.16 |
32.08 |
22.38 |
2.76 |
3.00 |
|
WSR36 |
20211228 |
Cloudy |
Moderate |
Mid-Flood |
Middle |
3.70 |
1:25:00 PM |
8.07 |
8.16 |
31.97 |
22.32 |
3.19 |
3.00 |
|
WSR36 |
20211228 |
Cloudy |
Moderate |
Mid-Flood |
Bottom |
6.40 |
1:24:00 PM |
7.95 |
8.17 |
32.08 |
22.28 |
2.73 |
3.00 |
|
WSR36 |
20211228 |
Cloudy |
Moderate |
Mid-Flood |
Bottom |
6.40 |
1:24:00 PM |
7.95 |
8.18 |
32.07 |
22.22 |
3.13 |
3.00 |
|
WSR36 |
20211230 |
Sunny |
Moderate |
Mid-Flood |
Surface |
1.00 |
3:49:00 PM |
9.09 |
8.24 |
32.16 |
22.13 |
3.99 |
9.00 |
|
WSR36 |
20211230 |
Sunny |
Moderate |
Mid-Flood |
Surface |
1.00 |
3:49:00 PM |
9.03 |
8.25 |
32.14 |
22.16 |
4.39 |
11.00 |
|
WSR36 |
20211230 |
Sunny |
Moderate |
Mid-Flood |
Middle |
3.80 |
3:49:00 PM |
8.86 |
8.26 |
32.09 |
22.15 |
3.57 |
10.00 |
|
WSR36 |
20211230 |
Sunny |
Moderate |
Mid-Flood |
Middle |
3.80 |
3:49:00 PM |
9.05 |
8.24 |
32.20 |
22.11 |
3.77 |
8.00 |
|
WSR36 |
20211230 |
Sunny |
Moderate |
Mid-Flood |
Bottom |
6.60 |
3:48:00 PM |
8.90 |
8.27 |
32.18 |
22.13 |
3.54 |
8.00 |
|
Location |
Date (YYYYMMDD) |
Weather |
Sea Condition |
Tidal |
Water Level |
Depth (m) |
Time (hh:mm) |
DO (mg/L) |
pH |
Sal (ppt) |
Temp (¢XC) |
Turbidty (NTU) note 1 |
SS (mg/L) (Note 2) |
|
WSR36 |
20211230 |
Sunny |
Moderate |
Mid-Flood |
Bottom |
6.60 |
3:48:00 PM |
9.09 |
8.29 |
32.12 |
22.23 |
3.47 |
7.00 |
|
WSR37 |
20211202 |
Sunny |
Moderate |
Mid-Flood |
Surface |
1.00 |
4:37:00 PM |
9.50 |
8.18 |
31.86 |
25.58 |
2.48 |
5.00 |
|
WSR37 |
20211202 |
Sunny |
Moderate |
Mid-Flood |
Surface |
1.00 |
4:37:00 PM |
9.42 |
8.15 |
31.67 |
25.54 |
2.66 |
4.00 |
|
WSR37 |
20211202 |
Sunny |
Moderate |
Mid-Flood |
Middle |
3.80 |
4:36:00 PM |
9.56 |
8.27 |
31.74 |
25.44 |
2.46 |
3.00 |
|
WSR37 |
20211202 |
Sunny |
Moderate |
Mid-Flood |
Middle |
3.80 |
4:36:00 PM |
9.34 |
8.22 |
31.69 |
25.41 |
2.13 |
4.00 |
|
WSR37 |
20211202 |
Sunny |
Moderate |
Mid-Flood |
Bottom |
6.60 |
4:35:00 PM |
9.51 |
8.33 |
31.79 |
25.48 |
2.42 |
5.00 |
|
WSR37 |
20211202 |
Sunny |
Moderate |
Mid-Flood |
Bottom |
6.60 |
4:35:00 PM |
9.48 |
8.25 |
31.85 |
25.42 |
2.13 |
5.00 |
|
WSR37 |
20211204 |
Sunny |
Moderate |
Mid-Flood |
Surface |
1.00 |
5:30:00 PM |
8.55 |
8.32 |
31.27 |
25.16 |
2.27 |
8.00 |
|
WSR37 |
20211204 |
Sunny |
Moderate |
Mid-Flood |
Surface |
1.00 |
5:30:00 PM |
8.56 |
8.28 |
31.19 |
25.23 |
2.21 |
7.00 |
|
WSR37 |
20211204 |
Sunny |
Moderate |
Mid-Flood |
Middle |
3.80 |
5:29:00 PM |
8.63 |
8.29 |
31.32 |
25.11 |
2.25 |
6.00 |
|
WSR37 |
20211204 |
Sunny |
Moderate |
Mid-Flood |
Middle |
3.80 |
5:29:00 PM |
8.49 |
8.30 |
31.33 |
25.25 |
1.88 |
7.00 |
|
WSR37 |
20211204 |
Sunny |
Moderate |
Mid-Flood |
Bottom |
6.60 |
5:28:00 PM |
8.47 |
8.29 |
31.29 |
25.24 |
1.68 |
10.00 |
|
WSR37 |
20211204 |
Sunny |
Moderate |
Mid-Flood |
Bottom |
6.60 |
5:28:00 PM |
8.55 |
8.29 |
31.29 |
25.13 |
1.93 |
12.00 |
|
WSR37 |
20211207 |
Sunny |
Moderate |
Mid-Flood |
Surface |
1.00 |
9:43:00 AM |
8.53 |
8.26 |
31.34 |
25.85 |
2.90 |
8.00 |
|
WSR37 |
20211207 |
Sunny |
Moderate |
Mid-Flood |
Surface |
1.00 |
9:43:00 AM |
8.53 |
8.33 |
31.54 |
25.82 |
2.87 |
9.00 |
|
WSR37 |
20211207 |
Sunny |
Moderate |
Mid-Flood |
Middle |
4.40 |
9:42:00 AM |
8.49 |
8.34 |
31.39 |
25.91 |
2.61 |
8.00 |
|
WSR37 |
20211207 |
Sunny |
Moderate |
Mid-Flood |
Middle |
4.40 |
9:42:00 AM |
8.57 |
8.27 |
31.46 |
25.87 |
2.36 |
10.00 |
|
WSR37 |
20211207 |
Sunny |
Moderate |
Mid-Flood |
Bottom |
7.80 |
9:41:00 AM |
8.51 |
8.29 |
31.56 |
26.01 |
2.53 |
6.00 |
|
WSR37 |
20211207 |
Sunny |
Moderate |
Mid-Flood |
Bottom |
7.80 |
9:41:00 AM |
8.57 |
8.31 |
31.51 |
25.97 |
2.47 |
6.00 |
|
WSR37 |
20211209 |
Sunny |
Moderate |
Mid-Flood |
Surface |
1.00 |
10:42:00 AM |
9.12 |
8.16 |
33.13 |
24.36 |
2.56 |
7.00 |
|
WSR37 |
20211209 |
Sunny |
Moderate |
Mid-Flood |
Surface |
1.00 |
10:42:00 AM |
9.00 |
8.18 |
33.14 |
24.28 |
2.41 |
5.00 |
|
WSR37 |
20211209 |
Sunny |
Moderate |
Mid-Flood |
Middle |
4.20 |
10:41:00 AM |
9.05 |
8.10 |
33.15 |
24.39 |
1.82 |
6.00 |
|
WSR37 |
20211209 |
Sunny |
Moderate |
Mid-Flood |
Middle |
4.20 |
10:41:00 AM |
9.11 |
8.14 |
33.17 |
24.25 |
1.79 |
8.00 |
|
WSR37 |
20211209 |
Sunny |
Moderate |
Mid-Flood |
Bottom |
7.40 |
10:40:00 AM |
9.07 |
8.12 |
33.18 |
24.36 |
2.02 |
6.00 |
|
WSR37 |
20211209 |
Sunny |
Moderate |
Mid-Flood |
Bottom |
7.40 |
10:40:00 AM |
9.06 |
8.14 |
33.06 |
24.40 |
2.30 |
5.00 |
|
WSR37 |
20211211 |
Sunny |
Moderate |
Mid-Flood |
Surface |
1.00 |
1:03:00 PM |
9.11 |
8.29 |
32.13 |
24.23 |
3.42 |
23.00 |
|
WSR37 |
20211211 |
Sunny |
Moderate |
Mid-Flood |
Surface |
1.00 |
1:03:00 PM |
9.05 |
8.38 |
32.10 |
24.24 |
3.45 |
21.00 |
|
Location |
Date (YYYYMMDD) |
Weather |
Sea Condition |
Tidal |
Water Level |
Depth (m) |
Time (hh:mm) |
DO (mg/L) |
pH |
Sal (ppt) |
Temp (¢XC) |
Turbidty (NTU) note 1 |
SS (mg/L) (Note 2) |
|
WSR37 |
20211211 |
Sunny |
Moderate |
Mid-Flood |
Middle |
4.45 |
1:02:00 PM |
9.08 |
8.35 |
32.22 |
24.27 |
3.32 |
25.00 |
|
WSR37 |
20211211 |
Sunny |
Moderate |
Mid-Flood |
Middle |
4.45 |
1:02:00 PM |
9.15 |
8.29 |
31.96 |
24.26 |
3.36 |
22.00 |
|
WSR37 |
20211211 |
Sunny |
Moderate |
Mid-Flood |
Bottom |
7.90 |
1:01:00 PM |
9.20 |
8.30 |
32.00 |
24.19 |
3.08 |
10.00 |
|
WSR37 |
20211211 |
Sunny |
Moderate |
Mid-Flood |
Bottom |
7.90 |
1:01:00 PM |
9.06 |
8.30 |
32.13 |
24.30 |
3.15 |
9.00 |
|
WSR37 |
20211214 |
Sunny |
Moderate |
Mid-Flood |
Surface |
1.00 |
3:24:00 PM |
9.31 |
8.19 |
32.83 |
23.26 |
2.59 |
4.00 |
|
WSR37 |
20211214 |
Sunny |
Moderate |
Mid-Flood |
Surface |
1.00 |
3:24:00 PM |
9.07 |
8.20 |
32.34 |
23.36 |
2.66 |
3.00 |
|
WSR37 |
20211214 |
Sunny |
Moderate |
Mid-Flood |
Middle |
4.20 |
3:23:00 PM |
9.23 |
8.18 |
32.38 |
23.30 |
2.27 |
5.00 |
|
WSR37 |
20211214 |
Sunny |
Moderate |
Mid-Flood |
Middle |
4.20 |
3:23:00 PM |
9.09 |
8.26 |
32.51 |
23.23 |
2.17 |
3.00 |
|
WSR37 |
20211214 |
Sunny |
Moderate |
Mid-Flood |
Bottom |
7.40 |
3:22:00 PM |
9.11 |
8.18 |
32.63 |
23.23 |
1.91 |
3.00 |
|
WSR37 |
20211214 |
Sunny |
Moderate |
Mid-Flood |
Bottom |
7.40 |
3:22:00 PM |
8.99 |
8.22 |
32.46 |
23.36 |
1.70 |
4.00 |
|
WSR37 |
20211216 |
Cloudy |
Moderate |
Mid-Flood |
Surface |
1.00 |
4:16:00 PM |
8.60 |
8.40 |
33.52 |
23.75 |
3.74 |
22.00 |
|
WSR37 |
20211216 |
Cloudy |
Moderate |
Mid-Flood |
Surface |
1.00 |
4:16:00 PM |
8.50 |
8.40 |
33.37 |
23.76 |
3.74 |
22.00 |
|
WSR37 |
20211216 |
Cloudy |
Moderate |
Mid-Flood |
Middle |
3.95 |
4:15:00 PM |
8.67 |
8.40 |
33.45 |
23.78 |
3.34 |
5.00 |
|
WSR37 |
20211216 |
Cloudy |
Moderate |
Mid-Flood |
Middle |
3.95 |
4:15:00 PM |
8.65 |
8.39 |
33.34 |
23.72 |
3.56 |
6.00 |
|
WSR37 |
20211216 |
Cloudy |
Moderate |
Mid-Flood |
Bottom |
6.90 |
4:14:00 PM |
8.71 |
8.42 |
33.52 |
23.78 |
2.74 |
9.00 |
|
WSR37 |
20211216 |
Cloudy |
Moderate |
Mid-Flood |
Bottom |
6.90 |
4:14:00 PM |
8.50 |
8.39 |
33.47 |
23.77 |
2.66 |
8.00 |
|
WSR37 |
20211218 |
Cloudy |
Moderate |
Mid-Flood |
Surface |
1.00 |
4:57:00 PM |
7.90 |
8.40 |
32.15 |
23.45 |
3.15 |
9.00 |
|
WSR37 |
20211218 |
Cloudy |
Moderate |
Mid-Flood |
Surface |
1.00 |
4:57:00 PM |
7.85 |
8.44 |
32.07 |
23.44 |
2.76 |
9.00 |
|
WSR37 |
20211218 |
Cloudy |
Moderate |
Mid-Flood |
Middle |
3.80 |
4:56:00 PM |
7.83 |
8.47 |
32.03 |
23.41 |
2.55 |
5.00 |
|
WSR37 |
20211218 |
Cloudy |
Moderate |
Mid-Flood |
Middle |
3.80 |
4:56:00 PM |
7.88 |
8.49 |
32.03 |
23.46 |
2.87 |
4.00 |
|
WSR37 |
20211218 |
Cloudy |
Moderate |
Mid-Flood |
Bottom |
6.60 |
4:55:00 PM |
7.99 |
8.42 |
32.02 |
23.37 |
2.32 |
6.00 |
|
WSR37 |
20211218 |
Cloudy |
Moderate |
Mid-Flood |
Bottom |
6.60 |
4:55:00 PM |
7.93 |
8.46 |
32.03 |
23.45 |
2.42 |
8.00 |
|
WSR37 |
20211221 |
Cloudy |
Moderate |
Mid-Flood |
Surface |
1.00 |
9:44:00 AM |
8.50 |
8.34 |
31.37 |
22.86 |
2.87 |
8.00 |
|
WSR37 |
20211221 |
Cloudy |
Moderate |
Mid-Flood |
Surface |
1.00 |
9:44:00 AM |
8.45 |
8.30 |
31.31 |
22.83 |
2.90 |
8.00 |
|
WSR37 |
20211221 |
Cloudy |
Moderate |
Mid-Flood |
Middle |
3.95 |
9:43:00 AM |
8.46 |
8.29 |
31.45 |
22.96 |
2.61 |
17.00 |
|
WSR37 |
20211221 |
Cloudy |
Moderate |
Mid-Flood |
Middle |
3.95 |
9:43:00 AM |
8.48 |
8.28 |
31.34 |
22.86 |
2.76 |
19.00 |
|
WSR37 |
20211221 |
Cloudy |
Moderate |
Mid-Flood |
Bottom |
6.90 |
9:42:00 AM |
8.50 |
8.33 |
31.28 |
22.95 |
1.98 |
7.00 |
|
Location |
Date (YYYYMMDD) |
Weather |
Sea Condition |
Tidal |
Water Level |
Depth (m) |
Time (hh:mm) |
DO (mg/L) |
pH |
Sal (ppt) |
Temp (¢XC) |
Turbidty (NTU) note 1 |
SS (mg/L) (Note 2) |
|
WSR37 |
20211221 |
Cloudy |
Moderate |
Mid-Flood |
Bottom |
6.90 |
9:42:00 AM |
8.47 |
8.32 |
31.44 |
22.99 |
2.36 |
8.00 |
|
WSR37 |
20211223 |
Cloudy |
Moderate |
Mid-Flood |
Surface |
1.00 |
9:49:00 AM |
8.01 |
8.32 |
32.90 |
22.07 |
3.32 |
7.00 |
|
WSR37 |
20211223 |
Cloudy |
Moderate |
Mid-Flood |
Surface |
1.00 |
9:49:00 AM |
8.12 |
8.30 |
32.92 |
21.86 |
2.79 |
7.00 |
|
WSR37 |
20211223 |
Cloudy |
Moderate |
Mid-Flood |
Middle |
3.90 |
9:48:00 AM |
7.99 |
8.30 |
32.91 |
21.96 |
3.15 |
5.00 |
|
WSR37 |
20211223 |
Cloudy |
Moderate |
Mid-Flood |
Middle |
3.90 |
9:48:00 AM |
7.97 |
8.32 |
32.99 |
22.07 |
2.92 |
6.00 |
|
WSR37 |
20211223 |
Cloudy |
Moderate |
Mid-Flood |
Bottom |
6.80 |
9:47:00 AM |
7.97 |
8.24 |
32.96 |
21.87 |
2.09 |
6.00 |
|
WSR37 |
20211223 |
Cloudy |
Moderate |
Mid-Flood |
Bottom |
6.80 |
9:47:00 AM |
8.00 |
8.30 |
32.90 |
22.07 |
2.06 |
7.00 |
|
WSR37 |
20211225 |
Sunny |
Moderate |
Mid-Flood |
Surface |
1.00 |
11:22:00 AM |
8.08 |
8.23 |
32.50 |
22.23 |
2.46 |
3.00 |
|
WSR37 |
20211225 |
Sunny |
Moderate |
Mid-Flood |
Surface |
1.00 |
11:22:00 AM |
8.07 |
8.18 |
32.52 |
22.24 |
2.43 |
4.00 |
|
WSR37 |
20211225 |
Sunny |
Moderate |
Mid-Flood |
Middle |
4.15 |
11:21:00 AM |
8.15 |
8.24 |
32.48 |
22.36 |
2.13 |
5.00 |
|
WSR37 |
20211225 |
Sunny |
Moderate |
Mid-Flood |
Middle |
4.15 |
11:21:00 AM |
8.05 |
8.20 |
32.54 |
22.25 |
1.85 |
6.00 |
|
WSR37 |
20211225 |
Sunny |
Moderate |
Mid-Flood |
Bottom |
7.30 |
11:20:00 AM |
8.15 |
8.19 |
32.54 |
22.23 |
3.06 |
13.00 |
|
WSR37 |
20211225 |
Sunny |
Moderate |
Mid-Flood |
Bottom |
7.30 |
11:20:00 AM |
8.06 |
8.22 |
32.48 |
22.34 |
3.45 |
11.00 |
|
WSR37 |
20211228 |
Cloudy |
Moderate |
Mid-Flood |
Surface |
1.00 |
1:38:00 PM |
8.87 |
8.35 |
31.27 |
22.30 |
3.09 |
4.00 |
|
WSR37 |
20211228 |
Cloudy |
Moderate |
Mid-Flood |
Surface |
1.00 |
1:38:00 PM |
8.75 |
8.37 |
31.25 |
22.44 |
2.68 |
3.00 |
|
WSR37 |
20211228 |
Cloudy |
Moderate |
Mid-Flood |
Middle |
4.05 |
1:37:00 PM |
8.85 |
8.35 |
31.20 |
22.42 |
2.74 |
3.00 |
|
WSR37 |
20211228 |
Cloudy |
Moderate |
Mid-Flood |
Middle |
4.05 |
1:37:00 PM |
8.59 |
8.39 |
31.24 |
22.39 |
2.86 |
3.00 |
|
WSR37 |
20211228 |
Cloudy |
Moderate |
Mid-Flood |
Bottom |
7.10 |
1:36:00 PM |
8.81 |
8.34 |
31.31 |
22.40 |
2.13 |
3.00 |
|
WSR37 |
20211228 |
Cloudy |
Moderate |
Mid-Flood |
Bottom |
7.10 |
1:36:00 PM |
8.90 |
8.35 |
31.33 |
22.45 |
1.98 |
3.00 |
|
WSR37 |
20211230 |
Sunny |
Moderate |
Mid-Flood |
Surface |
1.00 |
4:03:00 PM |
9.13 |
8.21 |
32.77 |
22.19 |
4.28 |
11.00 |
|
WSR37 |
20211230 |
Sunny |
Moderate |
Mid-Flood |
Surface |
1.00 |
4:03:00 PM |
9.01 |
8.28 |
32.80 |
22.16 |
3.64 |
11.00 |
|
WSR37 |
20211230 |
Sunny |
Moderate |
Mid-Flood |
Middle |
3.90 |
4:02:00 PM |
8.96 |
8.27 |
32.78 |
22.13 |
4.10 |
7.00 |
|
WSR37 |
20211230 |
Sunny |
Moderate |
Mid-Flood |
Middle |
3.90 |
4:02:00 PM |
9.03 |
8.29 |
32.86 |
22.09 |
3.48 |
7.00 |
|
WSR37 |
20211230 |
Sunny |
Moderate |
Mid-Flood |
Bottom |
6.80 |
4:01:00 PM |
9.00 |
8.27 |
32.85 |
22.12 |
3.72 |
8.00 |
|
WSR37 |
20211230 |
Sunny |
Moderate |
Mid-Flood |
Bottom |
6.80 |
4:01:00 PM |
9.18 |
8.24 |
32.82 |
22.16 |
3.55 |
5.00 |
Note 1: Measurements of turbidity would be rounding to 0.1 NTU for proven accuracy as per the equipment specs during utilization of data.
Note 2: Measurement data of Suspending Solids would be rounding to 2.5mg/L if the value was less than 2.5mg/L to facilitate data analysing
|
Location |
Date (YYYYMMDD) |
Weather |
Sea Condition |
Tidal |
Water Level |
Depth (m) |
Time (hh:mm) |
DO (mg/L) |
pH |
Sal (ppt) |
Temp (¢XC) |
Turbidty (NTU) note 1 |
SS (mg/L) (Note 2) |
|
CE |
20211202 |
Sunny |
Moderate |
Mid-Ebb |
Surface |
1.00 |
8:46:00 AM |
9.13 |
8.20 |
32.63 |
25.64 |
4.69 |
5.00 |
|
CE |
20211202 |
Sunny |
Moderate |
Mid-Ebb |
Surface |
1.00 |
8:46:00 AM |
8.97 |
8.19 |
32.60 |
25.55 |
4.81 |
5.00 |
|
CE |
20211202 |
Sunny |
Moderate |
Mid-Ebb |
Middle |
10.40 |
8:45:00 AM |
9.07 |
8.20 |
32.49 |
25.46 |
4.52 |
7.00 |
|
CE |
20211202 |
Sunny |
Moderate |
Mid-Ebb |
Middle |
10.40 |
8:45:00 AM |
9.06 |
8.09 |
32.53 |
25.61 |
4.52 |
6.00 |
|
CE |
20211202 |
Sunny |
Moderate |
Mid-Ebb |
Bottom |
19.80 |
8:44:00 AM |
9.13 |
8.12 |
32.56 |
25.53 |
4.41 |
10.00 |
|
CE |
20211202 |
Sunny |
Moderate |
Mid-Ebb |
Bottom |
19.80 |
8:44:00 AM |
9.15 |
8.15 |
32.54 |
25.58 |
4.37 |
9.00 |
|
CE |
20211204 |
Sunny |
Moderate |
Mid-Ebb |
Surface |
1.00 |
10:24:00 AM |
8.96 |
8.14 |
30.55 |
25.08 |
3.15 |
3.00 |
|
CE |
20211204 |
Sunny |
Moderate |
Mid-Ebb |
Surface |
1.00 |
10:24:00 AM |
8.92 |
8.18 |
30.58 |
25.22 |
3.28 |
2.50 |
|
CE |
20211204 |
Sunny |
Moderate |
Mid-Ebb |
Middle |
11.90 |
10:23:00 AM |
9.01 |
8.14 |
30.56 |
25.10 |
3.12 |
3.00 |
|
CE |
20211204 |
Sunny |
Moderate |
Mid-Ebb |
Middle |
11.90 |
10:23:00 AM |
8.97 |
8.14 |
30.49 |
25.19 |
3.62 |
3.00 |
|
CE |
20211204 |
Sunny |
Moderate |
Mid-Ebb |
Bottom |
22.80 |
10:22:00 AM |
9.00 |
8.19 |
30.52 |
25.22 |
3.74 |
4.00 |
|
CE |
20211204 |
Sunny |
Moderate |
Mid-Ebb |
Bottom |
22.80 |
10:22:00 AM |
9.05 |
8.12 |
30.59 |
25.24 |
3.35 |
5.00 |
|
CE |
20211207 |
Sunny |
Moderate |
Mid-Ebb |
Surface |
1.00 |
12:47:00 PM |
8.34 |
8.12 |
31.14 |
25.76 |
3.96 |
25.00 |
|
CE |
20211207 |
Sunny |
Moderate |
Mid-Ebb |
Surface |
1.00 |
12:47:00 PM |
8.43 |
8.08 |
31.16 |
25.67 |
4.15 |
25.00 |
|
CE |
20211207 |
Sunny |
Moderate |
Mid-Ebb |
Middle |
11.90 |
12:46:00 PM |
8.46 |
8.15 |
31.35 |
25.72 |
4.18 |
24.00 |
|
CE |
20211207 |
Sunny |
Moderate |
Mid-Ebb |
Middle |
11.90 |
12:46:00 PM |
8.29 |
8.11 |
31.32 |
25.83 |
4.07 |
25.00 |
|
CE |
20211207 |
Sunny |
Moderate |
Mid-Ebb |
Bottom |
22.80 |
12:45:00 PM |
8.32 |
8.05 |
31.23 |
25.65 |
4.55 |
21.00 |
|
CE |
20211207 |
Sunny |
Moderate |
Mid-Ebb |
Bottom |
22.80 |
12:45:00 PM |
8.39 |
8.08 |
31.33 |
25.74 |
3.81 |
25.00 |
|
CE |
20211209 |
Sunny |
Moderate |
Mid-Ebb |
Surface |
1.00 |
1:47:00 PM |
8.44 |
8.28 |
33.44 |
23.95 |
4.54 |
2.50 |
|
CE |
20211209 |
Sunny |
Moderate |
Mid-Ebb |
Surface |
1.00 |
1:47:00 PM |
8.35 |
8.34 |
33.48 |
23.97 |
4.71 |
3.00 |
|
CE |
20211209 |
Sunny |
Moderate |
Mid-Ebb |
Middle |
10.30 |
1:46:00 PM |
8.51 |
8.26 |
33.38 |
23.98 |
3.37 |
24.00 |
|
CE |
20211209 |
Sunny |
Moderate |
Mid-Ebb |
Middle |
10.30 |
1:46:00 PM |
8.36 |
8.25 |
33.48 |
23.95 |
3.26 |
25.00 |
|
CE |
20211209 |
Sunny |
Moderate |
Mid-Ebb |
Bottom |
19.60 |
1:45:00 PM |
8.49 |
8.30 |
33.42 |
23.91 |
3.81 |
5.00 |
|
CE |
20211209 |
Sunny |
Moderate |
Mid-Ebb |
Bottom |
19.60 |
1:45:00 PM |
8.52 |
8.33 |
33.30 |
23.87 |
3.94 |
3.00 |
|
CE |
20211211 |
Sunny |
Moderate |
Mid-Ebb |
Surface |
1.00 |
4:47:00 PM |
8.48 |
8.19 |
31.35 |
24.80 |
5.50 |
6.00 |
|
CE |
20211211 |
Sunny |
Moderate |
Mid-Ebb |
Surface |
1.00 |
4:47:00 PM |
8.46 |
8.26 |
31.46 |
24.77 |
4.99 |
5.00 |
|
CE |
20211211 |
Sunny |
Moderate |
Mid-Ebb |
Middle |
11.30 |
4:46:00 PM |
8.44 |
8.19 |
31.43 |
24.78 |
4.64 |
6.00 |
|
Location |
Date (YYYYMMDD) |
Weather |
Sea Condition |
Tidal |
Water Level |
Depth (m) |
Time (hh:mm) |
DO (mg/L) |
pH |
Sal (ppt) |
Temp (¢XC) |
Turbidty (NTU) note 1 |
SS (mg/L) (Note 2) |
|
CE |
20211211 |
Sunny |
Moderate |
Mid-Ebb |
Middle |
11.30 |
4:46:00 PM |
8.45 |
8.22 |
31.47 |
24.69 |
5.17 |
4.00 |
|
CE |
20211211 |
Sunny |
Moderate |
Mid-Ebb |
Bottom |
21.60 |
4:45:00 PM |
8.42 |
8.25 |
31.34 |
24.83 |
4.25 |
5.00 |
|
CE |
20211211 |
Sunny |
Moderate |
Mid-Ebb |
Bottom |
21.60 |
4:45:00 PM |
8.28 |
8.16 |
31.40 |
24.88 |
4.05 |
6.00 |
|
CE |
20211214 |
Sunny |
Moderate |
Mid-Ebb |
Surface |
1.00 |
8:05:00 AM |
8.36 |
8.39 |
32.47 |
23.26 |
3.70 |
4.00 |
|
CE |
20211214 |
Sunny |
Moderate |
Mid-Ebb |
Surface |
1.00 |
8:05:00 AM |
8.47 |
8.27 |
32.53 |
23.25 |
3.49 |
6.00 |
|
CE |
20211214 |
Sunny |
Moderate |
Mid-Ebb |
Middle |
10.35 |
8:04:00 AM |
8.44 |
8.25 |
32.59 |
23.19 |
3.29 |
5.00 |
|
CE |
20211214 |
Sunny |
Moderate |
Mid-Ebb |
Middle |
10.35 |
8:04:00 AM |
8.32 |
8.37 |
32.50 |
23.23 |
3.46 |
4.00 |
|
CE |
20211214 |
Sunny |
Moderate |
Mid-Ebb |
Bottom |
19.70 |
8:03:00 AM |
8.37 |
8.41 |
32.53 |
23.27 |
3.87 |
3.00 |
|
CE |
20211214 |
Sunny |
Moderate |
Mid-Ebb |
Bottom |
19.70 |
8:03:00 AM |
8.50 |
8.28 |
32.61 |
23.18 |
3.68 |
3.00 |
|
CE |
20211216 |
Cloudy |
Moderate |
Mid-Ebb |
Surface |
1.00 |
8:47:00 AM |
8.31 |
8.21 |
30.72 |
23.60 |
4.67 |
2.50 |
|
CE |
20211216 |
Cloudy |
Moderate |
Mid-Ebb |
Surface |
1.00 |
8:47:00 AM |
8.31 |
8.21 |
30.74 |
23.60 |
4.37 |
2.50 |
|
CE |
20211216 |
Cloudy |
Moderate |
Mid-Ebb |
Middle |
10.85 |
8:46:00 AM |
8.19 |
8.18 |
30.66 |
23.74 |
4.48 |
6.00 |
|
CE |
20211216 |
Cloudy |
Moderate |
Mid-Ebb |
Middle |
10.85 |
8:46:00 AM |
8.28 |
8.17 |
30.70 |
23.68 |
4.96 |
7.00 |
|
CE |
20211216 |
Cloudy |
Moderate |
Mid-Ebb |
Bottom |
20.70 |
8:45:00 AM |
8.21 |
8.19 |
30.73 |
23.69 |
4.73 |
2.50 |
|
CE |
20211216 |
Cloudy |
Moderate |
Mid-Ebb |
Bottom |
20.70 |
8:45:00 AM |
8.26 |
8.18 |
30.76 |
23.68 |
4.28 |
3.00 |
|
CE |
20211218 |
Cloudy |
Moderate |
Mid-Ebb |
Surface |
1.00 |
9:52:00 AM |
7.67 |
8.31 |
32.63 |
23.13 |
3.64 |
5.00 |
|
CE |
20211218 |
Cloudy |
Moderate |
Mid-Ebb |
Surface |
1.00 |
9:52:00 AM |
7.94 |
8.30 |
32.62 |
23.05 |
4.00 |
3.00 |
|
CE |
20211218 |
Cloudy |
Moderate |
Mid-Ebb |
Middle |
10.35 |
9:51:00 AM |
8.01 |
8.32 |
32.74 |
23.10 |
3.61 |
3.00 |
|
CE |
20211218 |
Cloudy |
Moderate |
Mid-Ebb |
Middle |
10.35 |
9:51:00 AM |
7.61 |
8.26 |
32.73 |
23.11 |
3.75 |
4.00 |
|
CE |
20211218 |
Cloudy |
Moderate |
Mid-Ebb |
Bottom |
19.70 |
9:50:00 AM |
7.87 |
8.31 |
32.71 |
23.11 |
3.43 |
3.00 |
|
CE |
20211218 |
Cloudy |
Moderate |
Mid-Ebb |
Bottom |
19.70 |
9:50:00 AM |
7.79 |
8.31 |
32.86 |
23.04 |
3.43 |
3.00 |
|
CE |
20211221 |
Cloudy |
Moderate |
Mid-Ebb |
Surface |
1.00 |
11:26:00 AM |
7.79 |
8.44 |
31.11 |
23.14 |
3.72 |
3.00 |
|
CE |
20211221 |
Cloudy |
Moderate |
Mid-Ebb |
Surface |
1.00 |
11:26:00 AM |
7.86 |
8.45 |
30.99 |
23.16 |
4.07 |
4.00 |
|
CE |
20211221 |
Cloudy |
Moderate |
Mid-Ebb |
Middle |
10.45 |
11:25:00 AM |
7.83 |
8.45 |
30.99 |
23.10 |
4.06 |
5.00 |
|
CE |
20211221 |
Cloudy |
Moderate |
Mid-Ebb |
Middle |
10.45 |
11:25:00 AM |
7.74 |
8.44 |
30.98 |
23.18 |
4.09 |
5.00 |
|
CE |
20211221 |
Cloudy |
Moderate |
Mid-Ebb |
Bottom |
19.90 |
11:24:00 AM |
7.81 |
8.42 |
30.96 |
23.20 |
3.96 |
7.00 |
|
CE |
20211221 |
Cloudy |
Moderate |
Mid-Ebb |
Bottom |
19.90 |
11:24:00 AM |
7.78 |
8.44 |
31.00 |
23.09 |
3.43 |
5.00 |
|
Location |
Date (YYYYMMDD) |
Weather |
Sea Condition |
Tidal |
Water Level |
Depth (m) |
Time (hh:mm) |
DO (mg/L) |
pH |
Sal (ppt) |
Temp (¢XC) |
Turbidty (NTU) note 1 |
SS (mg/L) (Note 2) |
|
CE |
20211223 |
Cloudy |
Moderate |
Mid-Ebb |
Surface |
1.00 |
12:47:00 PM |
8.72 |
8.23 |
33.56 |
22.57 |
3.81 |
7.00 |
|
CE |
20211223 |
Cloudy |
Moderate |
Mid-Ebb |
Surface |
1.00 |
12:47:00 PM |
8.89 |
8.22 |
33.68 |
22.67 |
3.62 |
6.00 |
|
CE |
20211223 |
Cloudy |
Moderate |
Mid-Ebb |
Middle |
10.55 |
12:46:00 PM |
8.56 |
8.26 |
33.67 |
22.58 |
3.45 |
8.00 |
|
CE |
20211223 |
Cloudy |
Moderate |
Mid-Ebb |
Middle |
10.55 |
12:46:00 PM |
8.67 |
8.27 |
33.66 |
22.47 |
3.60 |
9.00 |
|
CE |
20211223 |
Cloudy |
Moderate |
Mid-Ebb |
Bottom |
20.10 |
12:45:00 PM |
8.87 |
8.27 |
33.61 |
22.49 |
4.29 |
9.00 |
|
CE |
20211223 |
Cloudy |
Moderate |
Mid-Ebb |
Bottom |
20.10 |
12:45:00 PM |
8.78 |
8.26 |
33.68 |
22.56 |
4.35 |
7.00 |
|
CE |
20211225 |
Sunny |
Moderate |
Mid-Ebb |
Surface |
1.00 |
2:47:00 PM |
9.17 |
8.17 |
31.58 |
22.84 |
3.67 |
4.00 |
|
CE |
20211225 |
Sunny |
Moderate |
Mid-Ebb |
Surface |
1.00 |
2:47:00 PM |
9.06 |
8.21 |
31.49 |
22.94 |
3.10 |
5.00 |
|
CE |
20211225 |
Sunny |
Moderate |
Mid-Ebb |
Middle |
11.00 |
2:46:00 PM |
9.05 |
8.23 |
31.53 |
22.90 |
5.17 |
4.00 |
|
CE |
20211225 |
Sunny |
Moderate |
Mid-Ebb |
Middle |
11.00 |
2:46:00 PM |
9.05 |
8.20 |
31.61 |
22.93 |
5.57 |
3.00 |
|
CE |
20211225 |
Sunny |
Moderate |
Mid-Ebb |
Bottom |
21.00 |
2:45:00 PM |
8.98 |
8.24 |
31.49 |
22.77 |
4.30 |
4.00 |
|
CE |
20211225 |
Sunny |
Moderate |
Mid-Ebb |
Bottom |
21.00 |
2:45:00 PM |
9.01 |
8.19 |
31.61 |
22.89 |
3.96 |
3.00 |
|
CE |
20211228 |
Cloudy |
Moderate |
Mid-Ebb |
Surface |
1.00 |
5:36:00 PM |
8.23 |
8.33 |
33.02 |
21.74 |
4.26 |
2.50 |
|
CE |
20211228 |
Cloudy |
Moderate |
Mid-Ebb |
Surface |
1.00 |
5:36:00 PM |
8.36 |
8.33 |
32.99 |
21.79 |
4.78 |
3.00 |
|
CE |
20211228 |
Cloudy |
Moderate |
Mid-Ebb |
Middle |
10.00 |
5:35:00 PM |
8.17 |
8.31 |
33.00 |
21.80 |
4.21 |
4.00 |
|
CE |
20211228 |
Cloudy |
Moderate |
Mid-Ebb |
Middle |
10.00 |
5:35:00 PM |
8.26 |
8.36 |
33.09 |
21.74 |
4.50 |
5.00 |
|
CE |
20211228 |
Cloudy |
Moderate |
Mid-Ebb |
Bottom |
19.00 |
5:34:00 PM |
8.35 |
8.34 |
32.95 |
21.84 |
4.09 |
4.00 |
|
CE |
20211228 |
Cloudy |
Moderate |
Mid-Ebb |
Bottom |
19.00 |
5:34:00 PM |
8.29 |
8.30 |
32.97 |
21.74 |
4.77 |
3.00 |
|
CE |
20211230 |
Sunny |
Moderate |
Mid-Ebb |
Surface |
1.00 |
9:33:00 AM |
8.06 |
8.31 |
32.43 |
22.20 |
5.22 |
8.00 |
|
CE |
20211230 |
Sunny |
Moderate |
Mid-Ebb |
Surface |
1.00 |
9:33:00 AM |
8.24 |
8.39 |
32.48 |
22.18 |
5.58 |
7.00 |
|
CE |
20211230 |
Sunny |
Moderate |
Mid-Ebb |
Middle |
10.75 |
9:32:00 AM |
8.31 |
8.37 |
32.40 |
22.17 |
4.83 |
6.00 |
|
CE |
20211230 |
Sunny |
Moderate |
Mid-Ebb |
Middle |
10.75 |
9:32:00 AM |
8.35 |
8.31 |
32.35 |
22.11 |
4.79 |
8.00 |
|
CE |
20211230 |
Sunny |
Moderate |
Mid-Ebb |
Bottom |
20.50 |
9:31:00 AM |
8.03 |
8.39 |
32.40 |
22.17 |
5.35 |
7.00 |
|
CE |
20211230 |
Sunny |
Moderate |
Mid-Ebb |
Bottom |
20.50 |
9:31:00 AM |
8.14 |
8.39 |
32.31 |
22.08 |
5.35 |
10.00 |
|
CF |
20211202 |
Sunny |
Moderate |
Mid-Ebb |
Surface |
1.00 |
11:11:00 AM |
8.11 |
8.08 |
31.54 |
25.64 |
3.55 |
5.00 |
|
CF |
20211202 |
Sunny |
Moderate |
Mid-Ebb |
Surface |
1.00 |
11:11:00 AM |
7.98 |
8.02 |
31.72 |
25.44 |
3.31 |
6.00 |
|
CF |
20211202 |
Sunny |
Moderate |
Mid-Ebb |
Middle |
9.70 |
11:10:00 AM |
8.03 |
8.07 |
31.61 |
25.58 |
2.79 |
6.00 |
|
Location |
Date (YYYYMMDD) |
Weather |
Sea Condition |
Tidal |
Water Level |
Depth (m) |
Time (hh:mm) |
DO (mg/L) |
pH |
Sal (ppt) |
Temp (¢XC) |
Turbidty (NTU) note 1 |
SS (mg/L) (Note 2) |
|
CF |
20211202 |
Sunny |
Moderate |
Mid-Ebb |
Middle |
9.70 |
11:10:00 AM |
8.09 |
8.10 |
31.71 |
25.50 |
3.12 |
5.00 |
|
CF |
20211202 |
Sunny |
Moderate |
Mid-Ebb |
Bottom |
18.40 |
11:09:00 AM |
8.15 |
8.03 |
31.70 |
25.54 |
2.88 |
8.00 |
|
CF |
20211202 |
Sunny |
Moderate |
Mid-Ebb |
Bottom |
18.40 |
11:09:00 AM |
8.01 |
8.10 |
31.56 |
25.52 |
2.56 |
6.00 |
|
CF |
20211204 |
Sunny |
Moderate |
Mid-Ebb |
Surface |
1.00 |
12:57:00 PM |
8.54 |
8.14 |
30.48 |
24.67 |
2.94 |
4.00 |
|
CF |
20211204 |
Sunny |
Moderate |
Mid-Ebb |
Surface |
1.00 |
12:57:00 PM |
8.70 |
8.18 |
31.54 |
24.74 |
3.08 |
5.00 |
|
CF |
20211204 |
Sunny |
Moderate |
Mid-Ebb |
Middle |
10.15 |
12:56:00 PM |
8.72 |
8.16 |
31.52 |
24.64 |
3.12 |
4.00 |
|
CF |
20211204 |
Sunny |
Moderate |
Mid-Ebb |
Middle |
10.15 |
12:56:00 PM |
8.74 |
8.17 |
31.45 |
24.83 |
3.20 |
5.00 |
|
CF |
20211204 |
Sunny |
Moderate |
Mid-Ebb |
Bottom |
19.30 |
12:55:00 PM |
8.73 |
8.20 |
31.44 |
24.86 |
3.50 |
3.00 |
|
CF |
20211204 |
Sunny |
Moderate |
Mid-Ebb |
Bottom |
19.30 |
12:55:00 PM |
8.15 |
7.89 |
30.48 |
24.70 |
3.66 |
4.00 |
|
CF |
20211207 |
Sunny |
Moderate |
Mid-Ebb |
Surface |
1.00 |
3:10:00 PM |
8.69 |
8.11 |
31.19 |
25.71 |
4.03 |
27.00 |
|
CF |
20211207 |
Sunny |
Moderate |
Mid-Ebb |
Surface |
1.00 |
3:10:00 PM |
8.77 |
8.09 |
31.25 |
25.57 |
3.84 |
27.00 |
|
CF |
20211207 |
Sunny |
Moderate |
Mid-Ebb |
Middle |
10.15 |
3:09:00 PM |
8.83 |
8.15 |
31.06 |
25.74 |
3.49 |
18.00 |
|
CF |
20211207 |
Sunny |
Moderate |
Mid-Ebb |
Middle |
10.15 |
3:09:00 PM |
8.80 |
8.17 |
31.02 |
25.77 |
3.35 |
19.00 |
|
CF |
20211207 |
Sunny |
Moderate |
Mid-Ebb |
Bottom |
19.30 |
3:08:00 PM |
8.59 |
8.15 |
31.16 |
25.60 |
3.57 |
22.00 |
|
CF |
20211207 |
Sunny |
Moderate |
Mid-Ebb |
Bottom |
19.30 |
3:08:00 PM |
8.68 |
8.04 |
31.19 |
25.71 |
3.83 |
24.00 |
|
CF |
20211209 |
Sunny |
Moderate |
Mid-Ebb |
Surface |
1.00 |
4:11:00 PM |
9.09 |
8.23 |
33.47 |
24.56 |
3.19 |
24.00 |
|
CF |
20211209 |
Sunny |
Moderate |
Mid-Ebb |
Surface |
1.00 |
4:11:00 PM |
9.23 |
8.25 |
33.29 |
24.56 |
3.08 |
26.00 |
|
CF |
20211209 |
Sunny |
Moderate |
Mid-Ebb |
Middle |
10.45 |
4:10:00 PM |
9.05 |
8.23 |
33.47 |
24.52 |
3.77 |
11.00 |
|
CF |
20211209 |
Sunny |
Moderate |
Mid-Ebb |
Middle |
10.45 |
4:10:00 PM |
9.13 |
8.23 |
33.47 |
24.52 |
3.34 |
13.00 |
|
CF |
20211209 |
Sunny |
Moderate |
Mid-Ebb |
Bottom |
19.90 |
4:09:00 PM |
9.23 |
8.33 |
33.30 |
24.51 |
3.60 |
25.00 |
|
CF |
20211209 |
Sunny |
Moderate |
Mid-Ebb |
Bottom |
19.90 |
4:09:00 PM |
9.13 |
8.23 |
33.37 |
24.52 |
4.01 |
25.00 |
|
CF |
20211211 |
Sunny |
Moderate |
Mid-Ebb |
Surface |
1.00 |
7:03:00 PM |
8.31 |
8.25 |
30.91 |
24.67 |
3.70 |
6.00 |
|
CF |
20211211 |
Sunny |
Moderate |
Mid-Ebb |
Surface |
1.00 |
7:03:00 PM |
8.36 |
8.25 |
30.95 |
24.56 |
3.67 |
5.00 |
|
CF |
20211211 |
Sunny |
Moderate |
Mid-Ebb |
Middle |
10.45 |
7:02:00 PM |
8.45 |
8.21 |
30.99 |
24.54 |
4.10 |
4.00 |
|
CF |
20211211 |
Sunny |
Moderate |
Mid-Ebb |
Middle |
10.45 |
7:02:00 PM |
8.38 |
8.16 |
30.94 |
24.60 |
3.98 |
4.00 |
|
CF |
20211211 |
Sunny |
Moderate |
Mid-Ebb |
Bottom |
19.90 |
7:01:00 PM |
8.52 |
8.21 |
30.77 |
24.63 |
4.33 |
3.00 |
|
CF |
20211211 |
Sunny |
Moderate |
Mid-Ebb |
Bottom |
19.90 |
7:01:00 PM |
8.55 |
8.22 |
30.83 |
24.68 |
4.19 |
5.00 |
|
Location |
Date (YYYYMMDD) |
Weather |
Sea Condition |
Tidal |
Water Level |
Depth (m) |
Time (hh:mm) |
DO (mg/L) |
pH |
Sal (ppt) |
Temp (¢XC) |
Turbidty (NTU) note 1 |
SS (mg/L) (Note 2) |
|
CF |
20211214 |
Sunny |
Moderate |
Mid-Ebb |
Surface |
1.00 |
10:23:00 AM |
8.57 |
8.23 |
32.92 |
23.71 |
2.90 |
4.00 |
|
CF |
20211214 |
Sunny |
Moderate |
Mid-Ebb |
Surface |
1.00 |
10:23:00 AM |
8.40 |
8.26 |
33.18 |
23.65 |
3.18 |
6.00 |
|
CF |
20211214 |
Sunny |
Moderate |
Mid-Ebb |
Middle |
10.65 |
10:22:00 AM |
8.57 |
8.34 |
33.13 |
23.72 |
2.34 |
4.00 |
|
CF |
20211214 |
Sunny |
Moderate |
Mid-Ebb |
Middle |
10.65 |
10:22:00 AM |
8.38 |
8.31 |
33.08 |
23.76 |
2.61 |
3.00 |
|
CF |
20211214 |
Sunny |
Moderate |
Mid-Ebb |
Bottom |
20.30 |
10:21:00 AM |
8.37 |
8.29 |
32.94 |
23.66 |
2.84 |
4.00 |
|
CF |
20211214 |
Sunny |
Moderate |
Mid-Ebb |
Bottom |
20.30 |
10:21:00 AM |
8.34 |
8.36 |
33.03 |
23.74 |
2.90 |
4.00 |
|
CF |
20211216 |
Cloudy |
Moderate |
Mid-Ebb |
Surface |
1.00 |
11:18:00 AM |
8.19 |
8.29 |
30.64 |
23.73 |
3.88 |
4.00 |
|
CF |
20211216 |
Cloudy |
Moderate |
Mid-Ebb |
Surface |
1.00 |
11:18:00 AM |
8.05 |
8.34 |
30.71 |
23.87 |
3.49 |
5.00 |
|
CF |
20211216 |
Cloudy |
Moderate |
Mid-Ebb |
Middle |
10.05 |
11:17:00 AM |
8.16 |
8.36 |
30.72 |
23.70 |
3.56 |
3.00 |
|
CF |
20211216 |
Cloudy |
Moderate |
Mid-Ebb |
Middle |
10.05 |
11:17:00 AM |
8.17 |
8.36 |
30.59 |
23.72 |
3.52 |
2.50 |
|
CF |
20211216 |
Cloudy |
Moderate |
Mid-Ebb |
Bottom |
19.10 |
11:16:00 AM |
8.09 |
8.30 |
30.68 |
23.71 |
3.36 |
2.50 |
|
CF |
20211216 |
Cloudy |
Moderate |
Mid-Ebb |
Bottom |
19.10 |
11:16:00 AM |
8.20 |
8.31 |
30.56 |
23.71 |
3.17 |
3.00 |
|
CF |
20211218 |
Cloudy |
Moderate |
Mid-Ebb |
Surface |
1.00 |
12:22:00 PM |
8.12 |
8.12 |
32.66 |
23.59 |
2.85 |
3.00 |
|
CF |
20211218 |
Cloudy |
Moderate |
Mid-Ebb |
Surface |
1.00 |
12:22:00 PM |
7.91 |
8.17 |
32.62 |
23.61 |
2.60 |
5.00 |
|
CF |
20211218 |
Cloudy |
Moderate |
Mid-Ebb |
Middle |
10.15 |
12:21:00 PM |
7.94 |
8.17 |
32.83 |
23.57 |
2.65 |
3.00 |
|
CF |
20211218 |
Cloudy |
Moderate |
Mid-Ebb |
Middle |
10.15 |
12:21:00 PM |
8.23 |
8.18 |
32.57 |
23.59 |
2.83 |
3.00 |
|
CF |
20211218 |
Cloudy |
Moderate |
Mid-Ebb |
Bottom |
19.30 |
12:20:00 PM |
7.98 |
8.13 |
32.62 |
23.57 |
3.08 |
5.00 |
|
CF |
20211218 |
Cloudy |
Moderate |
Mid-Ebb |
Bottom |
19.30 |
12:20:00 PM |
8.25 |
8.19 |
32.59 |
23.56 |
2.88 |
4.00 |
|
CF |
20211221 |
Cloudy |
Moderate |
Mid-Ebb |
Surface |
1.00 |
1:54:00 PM |
8.15 |
8.30 |
31.97 |
22.97 |
3.69 |
5.00 |
|
CF |
20211221 |
Cloudy |
Moderate |
Mid-Ebb |
Surface |
1.00 |
1:54:00 PM |
8.22 |
8.33 |
31.81 |
23.03 |
3.72 |
4.00 |
|
CF |
20211221 |
Cloudy |
Moderate |
Mid-Ebb |
Middle |
10.10 |
1:53:00 PM |
8.24 |
8.34 |
31.90 |
23.01 |
3.69 |
3.00 |
|
CF |
20211221 |
Cloudy |
Moderate |
Mid-Ebb |
Middle |
10.10 |
1:53:00 PM |
8.17 |
8.34 |
31.98 |
23.01 |
3.13 |
5.00 |
|
CF |
20211221 |
Cloudy |
Moderate |
Mid-Ebb |
Bottom |
19.20 |
1:52:00 PM |
8.25 |
8.27 |
31.86 |
22.97 |
3.26 |
3.00 |
|
CF |
20211221 |
Cloudy |
Moderate |
Mid-Ebb |
Bottom |
19.20 |
1:52:00 PM |
8.31 |
8.28 |
32.00 |
22.97 |
3.17 |
4.00 |
|
CF |
20211223 |
Cloudy |
Moderate |
Mid-Ebb |
Surface |
1.00 |
3:10:00 PM |
7.80 |
8.23 |
33.73 |
22.13 |
2.87 |
6.00 |
|
CF |
20211223 |
Cloudy |
Moderate |
Mid-Ebb |
Surface |
1.00 |
3:10:00 PM |
7.91 |
8.23 |
33.65 |
22.06 |
2.93 |
7.00 |
|
CF |
20211223 |
Cloudy |
Moderate |
Mid-Ebb |
Middle |
10.35 |
3:09:00 PM |
7.93 |
8.20 |
33.72 |
22.11 |
3.44 |
6.00 |
|
Location |
Date (YYYYMMDD) |
Weather |
Sea Condition |
Tidal |
Water Level |
Depth (m) |
Time (hh:mm) |
DO (mg/L) |
pH |
Sal (ppt) |
Temp (¢XC) |
Turbidty (NTU) note 1 |
SS (mg/L) (Note 2) |
|
CF |
20211223 |
Cloudy |
Moderate |
Mid-Ebb |
Middle |
10.35 |
3:09:00 PM |
7.92 |
8.22 |
33.61 |
22.11 |
3.13 |
6.00 |
|
CF |
20211223 |
Cloudy |
Moderate |
Mid-Ebb |
Bottom |
19.70 |
3:08:00 PM |
7.90 |
8.21 |
33.73 |
22.10 |
3.74 |
5.00 |
|
CF |
20211223 |
Cloudy |
Moderate |
Mid-Ebb |
Bottom |
19.70 |
3:08:00 PM |
7.66 |
8.22 |
33.70 |
21.96 |
3.37 |
6.00 |
|
CF |
20211225 |
Sunny |
Moderate |
Mid-Ebb |
Surface |
1.00 |
5:17:00 PM |
8.49 |
8.22 |
32.21 |
22.77 |
3.45 |
14.00 |
|
CF |
20211225 |
Sunny |
Moderate |
Mid-Ebb |
Surface |
1.00 |
5:17:00 PM |
8.61 |
8.24 |
32.18 |
22.72 |
3.68 |
13.00 |
|
CF |
20211225 |
Sunny |
Moderate |
Mid-Ebb |
Middle |
10.60 |
5:16:00 PM |
8.63 |
8.26 |
32.17 |
22.70 |
3.22 |
12.00 |
|
CF |
20211225 |
Sunny |
Moderate |
Mid-Ebb |
Middle |
10.60 |
5:16:00 PM |
8.46 |
8.27 |
32.16 |
22.76 |
3.19 |
13.00 |
|
CF |
20211225 |
Sunny |
Moderate |
Mid-Ebb |
Bottom |
20.20 |
5:15:00 PM |
8.55 |
8.24 |
32.24 |
22.83 |
3.56 |
4.00 |
|
CF |
20211225 |
Sunny |
Moderate |
Mid-Ebb |
Bottom |
20.20 |
5:15:00 PM |
8.51 |
8.28 |
32.21 |
22.83 |
2.99 |
4.00 |
|
CF |
20211228 |
Cloudy |
Moderate |
Mid-Ebb |
Surface |
1.00 |
8:00:00 PM |
8.39 |
8.43 |
32.45 |
21.72 |
3.51 |
10.00 |
|
CF |
20211228 |
Cloudy |
Moderate |
Mid-Ebb |
Surface |
1.00 |
8:00:00 PM |
8.32 |
8.47 |
32.45 |
21.76 |
3.97 |
10.00 |
|
CF |
20211228 |
Cloudy |
Moderate |
Mid-Ebb |
Middle |
9.95 |
7:59:00 PM |
8.27 |
8.40 |
32.53 |
21.80 |
4.00 |
4.00 |
|
CF |
20211228 |
Cloudy |
Moderate |
Mid-Ebb |
Middle |
9.95 |
7:59:00 PM |
8.47 |
8.40 |
32.46 |
21.74 |
3.48 |
4.00 |
|
CF |
20211228 |
Cloudy |
Moderate |
Mid-Ebb |
Bottom |
18.90 |
7:58:00 PM |
8.35 |
8.41 |
32.45 |
21.73 |
3.39 |
4.00 |
|
CF |
20211228 |
Cloudy |
Moderate |
Mid-Ebb |
Bottom |
18.90 |
7:58:00 PM |
8.36 |
8.39 |
32.52 |
21.86 |
3.71 |
4.00 |
|
CF |
20211230 |
Sunny |
Moderate |
Mid-Ebb |
Surface |
1.00 |
11:58:00 AM |
8.60 |
8.30 |
32.30 |
22.19 |
4.21 |
8.00 |
|
CF |
20211230 |
Sunny |
Moderate |
Mid-Ebb |
Surface |
1.00 |
11:58:00 AM |
8.55 |
8.24 |
32.33 |
22.20 |
4.40 |
8.00 |
|
CF |
20211230 |
Sunny |
Moderate |
Mid-Ebb |
Middle |
9.70 |
11:57:00 AM |
8.70 |
8.24 |
32.18 |
22.35 |
4.01 |
8.00 |
|
CF |
20211230 |
Sunny |
Moderate |
Mid-Ebb |
Middle |
9.70 |
11:57:00 AM |
8.71 |
8.33 |
32.19 |
22.32 |
4.24 |
6.00 |
|
CF |
20211230 |
Sunny |
Moderate |
Mid-Ebb |
Bottom |
18.40 |
11:56:00 AM |
8.60 |
8.28 |
32.26 |
22.31 |
4.20 |
8.00 |
|
CF |
20211230 |
Sunny |
Moderate |
Mid-Ebb |
Bottom |
18.40 |
11:56:00 AM |
8.63 |
8.30 |
32.13 |
22.36 |
4.16 |
10.00 |
|
WSR01 |
20211202 |
Sunny |
Moderate |
Mid-Ebb |
Surface |
1.00 |
10:49:00 AM |
8.95 |
8.31 |
31.81 |
26.19 |
2.89 |
5.00 |
|
WSR01 |
20211202 |
Sunny |
Moderate |
Mid-Ebb |
Surface |
1.00 |
10:49:00 AM |
8.91 |
8.38 |
31.93 |
26.24 |
3.33 |
5.00 |
|
WSR01 |
20211202 |
Sunny |
Moderate |
Mid-Ebb |
Middle |
4.65 |
10:48:00 AM |
8.92 |
8.29 |
31.81 |
26.17 |
3.42 |
5.00 |
|
WSR01 |
20211202 |
Sunny |
Moderate |
Mid-Ebb |
Middle |
4.65 |
10:48:00 AM |
8.96 |
8.36 |
31.86 |
26.18 |
3.36 |
4.00 |
|
WSR01 |
20211202 |
Sunny |
Moderate |
Mid-Ebb |
Bottom |
8.30 |
10:47:00 AM |
8.91 |
8.36 |
31.85 |
26.09 |
3.06 |
5.00 |
|
WSR01 |
20211202 |
Sunny |
Moderate |
Mid-Ebb |
Bottom |
8.30 |
10:47:00 AM |
8.94 |
8.35 |
31.82 |
26.11 |
3.09 |
5.00 |
|
Location |
Date (YYYYMMDD) |
Weather |
Sea Condition |
Tidal |
Water Level |
Depth (m) |
Time (hh:mm) |
DO (mg/L) |
pH |
Sal (ppt) |
Temp (¢XC) |
Turbidty (NTU) note 1 |
SS (mg/L) (Note 2) |
|
WSR01 |
20211204 |
Sunny |
Moderate |
Mid-Ebb |
Surface |
1.00 |
12:33:00 PM |
8.42 |
7.86 |
29.75 |
24.59 |
1.89 |
3.00 |
|
WSR01 |
20211204 |
Sunny |
Moderate |
Mid-Ebb |
Surface |
1.00 |
12:33:00 PM |
8.93 |
8.19 |
30.72 |
24.58 |
1.94 |
3.00 |
|
WSR01 |
20211204 |
Sunny |
Moderate |
Mid-Ebb |
Middle |
4.60 |
12:32:00 PM |
8.96 |
8.18 |
30.79 |
24.59 |
1.99 |
5.00 |
|
WSR01 |
20211204 |
Sunny |
Moderate |
Mid-Ebb |
Middle |
4.60 |
12:32:00 PM |
8.90 |
8.19 |
30.71 |
24.56 |
2.24 |
5.00 |
|
WSR01 |
20211204 |
Sunny |
Moderate |
Mid-Ebb |
Bottom |
8.20 |
12:31:00 PM |
8.78 |
8.19 |
30.79 |
24.51 |
1.89 |
10.00 |
|
WSR01 |
20211204 |
Sunny |
Moderate |
Mid-Ebb |
Bottom |
8.20 |
12:31:00 PM |
8.30 |
8.16 |
29.75 |
24.61 |
1.69 |
9.00 |
|
WSR01 |
20211207 |
Sunny |
Moderate |
Mid-Ebb |
Surface |
1.00 |
2:47:00 PM |
9.10 |
8.14 |
30.89 |
25.81 |
2.52 |
17.00 |
|
WSR01 |
20211207 |
Sunny |
Moderate |
Mid-Ebb |
Surface |
1.00 |
2:47:00 PM |
9.24 |
8.15 |
30.81 |
25.85 |
2.50 |
15.00 |
|
WSR01 |
20211207 |
Sunny |
Moderate |
Mid-Ebb |
Middle |
4.50 |
2:46:00 PM |
9.24 |
8.08 |
30.66 |
26.00 |
2.47 |
27.00 |
|
WSR01 |
20211207 |
Sunny |
Moderate |
Mid-Ebb |
Middle |
4.50 |
2:46:00 PM |
9.17 |
8.06 |
30.89 |
25.80 |
2.61 |
29.00 |
|
WSR01 |
20211207 |
Sunny |
Moderate |
Mid-Ebb |
Bottom |
8.00 |
2:45:00 PM |
9.18 |
8.12 |
30.88 |
25.95 |
2.27 |
6.00 |
|
WSR01 |
20211207 |
Sunny |
Moderate |
Mid-Ebb |
Bottom |
8.00 |
2:45:00 PM |
9.18 |
8.16 |
30.89 |
25.93 |
2.08 |
6.00 |
|
WSR01 |
20211209 |
Sunny |
Moderate |
Mid-Ebb |
Surface |
1.00 |
3:50:00 PM |
8.66 |
8.20 |
32.90 |
24.35 |
3.16 |
27.00 |
|
WSR01 |
20211209 |
Sunny |
Moderate |
Mid-Ebb |
Surface |
1.00 |
3:50:00 PM |
8.72 |
8.13 |
33.03 |
24.44 |
2.78 |
28.00 |
|
WSR01 |
20211209 |
Sunny |
Moderate |
Mid-Ebb |
Middle |
4.50 |
3:49:00 PM |
8.68 |
8.19 |
32.80 |
24.31 |
2.45 |
25.00 |
|
WSR01 |
20211209 |
Sunny |
Moderate |
Mid-Ebb |
Middle |
4.50 |
3:49:00 PM |
8.77 |
8.18 |
32.93 |
24.45 |
2.91 |
25.00 |
|
WSR01 |
20211209 |
Sunny |
Moderate |
Mid-Ebb |
Bottom |
8.00 |
3:48:00 PM |
8.58 |
8.12 |
32.82 |
24.30 |
2.45 |
22.00 |
|
WSR01 |
20211209 |
Sunny |
Moderate |
Mid-Ebb |
Bottom |
8.00 |
3:48:00 PM |
8.74 |
8.17 |
32.82 |
24.42 |
2.21 |
19.00 |
|
WSR01 |
20211211 |
Sunny |
Moderate |
Mid-Ebb |
Surface |
1.00 |
6:44:00 PM |
8.99 |
8.40 |
30.93 |
24.69 |
2.64 |
4.00 |
|
WSR01 |
20211211 |
Sunny |
Moderate |
Mid-Ebb |
Surface |
1.00 |
6:44:00 PM |
8.95 |
8.43 |
31.01 |
24.75 |
2.74 |
3.00 |
|
WSR01 |
20211211 |
Sunny |
Moderate |
Mid-Ebb |
Middle |
4.55 |
6:43:00 PM |
8.99 |
8.40 |
30.82 |
24.66 |
2.73 |
5.00 |
|
WSR01 |
20211211 |
Sunny |
Moderate |
Mid-Ebb |
Middle |
4.55 |
6:43:00 PM |
8.95 |
8.37 |
30.99 |
24.75 |
2.34 |
4.00 |
|
WSR01 |
20211211 |
Sunny |
Moderate |
Mid-Ebb |
Bottom |
8.10 |
6:42:00 PM |
8.93 |
8.34 |
30.86 |
24.62 |
2.44 |
5.00 |
|
WSR01 |
20211211 |
Sunny |
Moderate |
Mid-Ebb |
Bottom |
8.10 |
6:42:00 PM |
9.12 |
8.38 |
30.92 |
24.73 |
2.51 |
5.00 |
|
WSR01 |
20211214 |
Sunny |
Moderate |
Mid-Ebb |
Surface |
1.00 |
10:00:00 AM |
8.57 |
8.20 |
33.32 |
23.66 |
2.78 |
5.00 |
|
WSR01 |
20211214 |
Sunny |
Moderate |
Mid-Ebb |
Surface |
1.00 |
10:00:00 AM |
8.73 |
8.33 |
33.14 |
23.58 |
2.79 |
5.00 |
|
WSR01 |
20211214 |
Sunny |
Moderate |
Mid-Ebb |
Middle |
4.25 |
9:59:00 AM |
8.61 |
8.21 |
33.29 |
23.69 |
2.19 |
5.00 |
|
Location |
Date (YYYYMMDD) |
Weather |
Sea Condition |
Tidal |
Water Level |
Depth (m) |
Time (hh:mm) |
DO (mg/L) |
pH |
Sal (ppt) |
Temp (¢XC) |
Turbidty (NTU) note 1 |
SS (mg/L) (Note 2) |
|
WSR01 |
20211214 |
Sunny |
Moderate |
Mid-Ebb |
Middle |
4.25 |
9:59:00 AM |
8.74 |
8.34 |
33.04 |
23.63 |
2.09 |
4.00 |
|
WSR01 |
20211214 |
Sunny |
Moderate |
Mid-Ebb |
Bottom |
7.50 |
9:58:00 AM |
8.84 |
8.24 |
33.13 |
23.56 |
1.94 |
3.00 |
|
WSR01 |
20211214 |
Sunny |
Moderate |
Mid-Ebb |
Bottom |
7.50 |
9:58:00 AM |
8.70 |
8.22 |
33.12 |
23.70 |
1.86 |
3.00 |
|
WSR01 |
20211216 |
Cloudy |
Moderate |
Mid-Ebb |
Surface |
1.00 |
10:54:00 AM |
8.77 |
8.34 |
31.14 |
23.66 |
2.85 |
3.00 |
|
WSR01 |
20211216 |
Cloudy |
Moderate |
Mid-Ebb |
Surface |
1.00 |
10:54:00 AM |
8.87 |
8.33 |
31.15 |
23.73 |
2.46 |
3.00 |
|
WSR01 |
20211216 |
Cloudy |
Moderate |
Mid-Ebb |
Middle |
4.30 |
10:53:00 AM |
8.81 |
8.30 |
31.19 |
23.70 |
2.22 |
2.50 |
|
WSR01 |
20211216 |
Cloudy |
Moderate |
Mid-Ebb |
Middle |
4.30 |
10:53:00 AM |
8.88 |
8.29 |
31.15 |
23.73 |
2.54 |
3.00 |
|
WSR01 |
20211216 |
Cloudy |
Moderate |
Mid-Ebb |
Bottom |
7.60 |
10:52:00 AM |
8.75 |
8.32 |
31.17 |
23.81 |
2.09 |
3.00 |
|
WSR01 |
20211216 |
Cloudy |
Moderate |
Mid-Ebb |
Bottom |
7.60 |
10:52:00 AM |
8.74 |
8.32 |
31.14 |
23.80 |
2.21 |
3.00 |
|
WSR01 |
20211218 |
Cloudy |
Moderate |
Mid-Ebb |
Surface |
1.00 |
11:59:00 AM |
8.92 |
8.42 |
31.93 |
23.23 |
2.60 |
4.00 |
|
WSR01 |
20211218 |
Cloudy |
Moderate |
Mid-Ebb |
Surface |
1.00 |
11:59:00 AM |
8.63 |
8.38 |
31.91 |
23.24 |
3.08 |
5.00 |
|
WSR01 |
20211218 |
Cloudy |
Moderate |
Mid-Ebb |
Middle |
4.50 |
11:58:00 AM |
8.50 |
8.42 |
31.89 |
23.22 |
3.05 |
5.00 |
|
WSR01 |
20211218 |
Cloudy |
Moderate |
Mid-Ebb |
Middle |
4.50 |
11:58:00 AM |
8.74 |
8.38 |
31.81 |
23.35 |
2.95 |
4.00 |
|
WSR01 |
20211218 |
Cloudy |
Moderate |
Mid-Ebb |
Bottom |
8.00 |
11:57:00 AM |
8.70 |
8.44 |
31.78 |
23.26 |
2.70 |
3.00 |
|
WSR01 |
20211218 |
Cloudy |
Moderate |
Mid-Ebb |
Bottom |
8.00 |
11:57:00 AM |
8.85 |
8.37 |
32.03 |
23.26 |
2.85 |
2.50 |
|
WSR01 |
20211221 |
Cloudy |
Moderate |
Mid-Ebb |
Surface |
1.00 |
1:32:00 PM |
8.18 |
8.29 |
31.99 |
23.32 |
3.27 |
7.00 |
|
WSR01 |
20211221 |
Cloudy |
Moderate |
Mid-Ebb |
Surface |
1.00 |
1:32:00 PM |
8.25 |
8.29 |
31.93 |
23.32 |
3.69 |
7.00 |
|
WSR01 |
20211221 |
Cloudy |
Moderate |
Mid-Ebb |
Middle |
4.15 |
1:31:00 PM |
8.09 |
8.27 |
31.83 |
23.42 |
3.23 |
5.00 |
|
WSR01 |
20211221 |
Cloudy |
Moderate |
Mid-Ebb |
Middle |
4.15 |
1:31:00 PM |
8.09 |
8.29 |
31.98 |
23.42 |
3.41 |
5.00 |
|
WSR01 |
20211221 |
Cloudy |
Moderate |
Mid-Ebb |
Bottom |
7.30 |
1:30:00 PM |
8.12 |
8.34 |
31.93 |
23.43 |
3.04 |
4.00 |
|
WSR01 |
20211221 |
Cloudy |
Moderate |
Mid-Ebb |
Bottom |
7.30 |
1:30:00 PM |
8.10 |
8.34 |
31.92 |
23.42 |
2.87 |
4.00 |
|
WSR01 |
20211223 |
Cloudy |
Moderate |
Mid-Ebb |
Surface |
1.00 |
2:47:00 PM |
8.08 |
8.23 |
32.94 |
22.49 |
2.60 |
8.00 |
|
WSR01 |
20211223 |
Cloudy |
Moderate |
Mid-Ebb |
Surface |
1.00 |
2:47:00 PM |
8.11 |
8.19 |
32.83 |
22.36 |
2.37 |
7.00 |
|
WSR01 |
20211223 |
Cloudy |
Moderate |
Mid-Ebb |
Middle |
4.15 |
2:46:00 PM |
8.01 |
8.23 |
32.81 |
22.44 |
2.21 |
5.00 |
|
WSR01 |
20211223 |
Cloudy |
Moderate |
Mid-Ebb |
Middle |
4.15 |
2:46:00 PM |
7.89 |
8.23 |
32.97 |
22.34 |
2.59 |
7.00 |
|
WSR01 |
20211223 |
Cloudy |
Moderate |
Mid-Ebb |
Bottom |
7.30 |
2:45:00 PM |
8.05 |
8.20 |
32.96 |
22.42 |
1.97 |
8.00 |
|
WSR01 |
20211223 |
Cloudy |
Moderate |
Mid-Ebb |
Bottom |
7.30 |
2:45:00 PM |
8.05 |
8.19 |
32.95 |
22.52 |
2.14 |
6.00 |
|
Location |
Date (YYYYMMDD) |
Weather |
Sea Condition |
Tidal |
Water Level |
Depth (m) |
Time (hh:mm) |
DO (mg/L) |
pH |
Sal (ppt) |
Temp (¢XC) |
Turbidty (NTU) note 1 |
SS (mg/L) (Note 2) |
|
WSR01 |
20211225 |
Sunny |
Moderate |
Mid-Ebb |
Surface |
1.00 |
4:54:00 PM |
8.21 |
8.21 |
31.17 |
22.50 |
3.12 |
10.00 |
|
WSR01 |
20211225 |
Sunny |
Moderate |
Mid-Ebb |
Surface |
1.00 |
4:54:00 PM |
8.08 |
8.20 |
31.05 |
22.64 |
3.09 |
11.00 |
|
WSR01 |
20211225 |
Sunny |
Moderate |
Mid-Ebb |
Middle |
4.35 |
4:53:00 PM |
8.24 |
8.17 |
31.08 |
22.60 |
3.03 |
11.00 |
|
WSR01 |
20211225 |
Sunny |
Moderate |
Mid-Ebb |
Middle |
4.35 |
4:53:00 PM |
8.14 |
8.15 |
31.12 |
22.51 |
2.58 |
11.00 |
|
WSR01 |
20211225 |
Sunny |
Moderate |
Mid-Ebb |
Bottom |
7.70 |
4:52:00 PM |
8.13 |
8.14 |
31.14 |
22.68 |
2.99 |
21.00 |
|
WSR01 |
20211225 |
Sunny |
Moderate |
Mid-Ebb |
Bottom |
7.70 |
4:52:00 PM |
8.14 |
8.16 |
31.09 |
22.57 |
2.66 |
21.00 |
|
WSR01 |
20211228 |
Cloudy |
Moderate |
Mid-Ebb |
Surface |
1.00 |
7:37:00 PM |
8.25 |
8.37 |
32.40 |
22.02 |
3.26 |
5.00 |
|
WSR01 |
20211228 |
Cloudy |
Moderate |
Mid-Ebb |
Surface |
1.00 |
7:37:00 PM |
8.27 |
8.28 |
32.44 |
22.04 |
2.85 |
4.00 |
|
WSR01 |
20211228 |
Cloudy |
Moderate |
Mid-Ebb |
Middle |
4.30 |
7:36:00 PM |
8.15 |
8.36 |
32.48 |
22.14 |
2.64 |
4.00 |
|
WSR01 |
20211228 |
Cloudy |
Moderate |
Mid-Ebb |
Middle |
4.30 |
7:36:00 PM |
8.28 |
8.32 |
32.39 |
22.12 |
2.27 |
4.00 |
|
WSR01 |
20211228 |
Cloudy |
Moderate |
Mid-Ebb |
Bottom |
7.60 |
7:35:00 PM |
8.22 |
8.33 |
32.49 |
22.09 |
2.61 |
3.00 |
|
WSR01 |
20211228 |
Cloudy |
Moderate |
Mid-Ebb |
Bottom |
7.60 |
7:35:00 PM |
8.24 |
8.33 |
32.42 |
22.06 |
2.80 |
4.00 |
|
WSR01 |
20211230 |
Sunny |
Moderate |
Mid-Ebb |
Surface |
1.00 |
11:36:00 AM |
8.96 |
8.31 |
31.91 |
22.10 |
3.20 |
7.00 |
|
WSR01 |
20211230 |
Sunny |
Moderate |
Mid-Ebb |
Surface |
1.00 |
11:36:00 AM |
8.92 |
8.30 |
31.93 |
22.21 |
2.86 |
10.00 |
|
WSR01 |
20211230 |
Sunny |
Moderate |
Mid-Ebb |
Middle |
4.15 |
11:35:00 AM |
9.13 |
8.24 |
31.95 |
22.12 |
2.88 |
12.00 |
|
WSR01 |
20211230 |
Sunny |
Moderate |
Mid-Ebb |
Middle |
4.15 |
11:35:00 AM |
8.99 |
8.27 |
31.96 |
22.23 |
2.74 |
14.00 |
|
WSR01 |
20211230 |
Sunny |
Moderate |
Mid-Ebb |
Bottom |
7.30 |
11:34:00 AM |
9.14 |
8.26 |
31.99 |
22.17 |
2.64 |
8.00 |
|
WSR01 |
20211230 |
Sunny |
Moderate |
Mid-Ebb |
Bottom |
7.30 |
11:34:00 AM |
9.06 |
8.31 |
31.96 |
22.23 |
2.81 |
7.00 |
|
WSR02 |
20211202 |
Sunny |
Moderate |
Mid-Ebb |
Surface |
1.00 |
10:31:00 AM |
9.11 |
8.22 |
32.47 |
26.10 |
3.45 |
7.00 |
|
WSR02 |
20211202 |
Sunny |
Moderate |
Mid-Ebb |
Surface |
1.00 |
10:31:00 AM |
8.95 |
8.23 |
32.38 |
26.11 |
3.46 |
7.00 |
|
WSR02 |
20211202 |
Sunny |
Moderate |
Mid-Ebb |
Middle |
4.55 |
10:30:00 AM |
9.07 |
8.24 |
32.33 |
26.26 |
3.10 |
6.00 |
|
WSR02 |
20211202 |
Sunny |
Moderate |
Mid-Ebb |
Middle |
4.55 |
10:30:00 AM |
9.00 |
8.15 |
32.29 |
26.29 |
3.00 |
8.00 |
|
WSR02 |
20211202 |
Sunny |
Moderate |
Mid-Ebb |
Bottom |
8.10 |
10:29:00 AM |
9.05 |
8.23 |
32.41 |
26.09 |
2.91 |
8.00 |
|
WSR02 |
20211202 |
Sunny |
Moderate |
Mid-Ebb |
Bottom |
8.10 |
10:29:00 AM |
9.18 |
8.15 |
32.32 |
26.17 |
2.67 |
8.00 |
|
WSR02 |
20211204 |
Sunny |
Moderate |
Mid-Ebb |
Surface |
1.00 |
12:16:00 PM |
7.43 |
8.25 |
30.53 |
25.03 |
2.09 |
4.00 |
|
WSR02 |
20211204 |
Sunny |
Moderate |
Mid-Ebb |
Surface |
1.00 |
12:16:00 PM |
8.63 |
8.28 |
31.56 |
25.03 |
2.09 |
4.00 |
|
WSR02 |
20211204 |
Sunny |
Moderate |
Mid-Ebb |
Middle |
4.70 |
12:15:00 PM |
8.67 |
8.26 |
31.49 |
24.86 |
2.14 |
4.00 |
|
Location |
Date (YYYYMMDD) |
Weather |
Sea Condition |
Tidal |
Water Level |
Depth (m) |
Time (hh:mm) |
DO (mg/L) |
pH |
Sal (ppt) |
Temp (¢XC) |
Turbidty (NTU) note 1 |
SS (mg/L) (Note 2) |
|
WSR02 |
20211204 |
Sunny |
Moderate |
Mid-Ebb |
Middle |
4.70 |
12:15:00 PM |
8.55 |
8.25 |
31.53 |
24.95 |
2.38 |
3.00 |
|
WSR02 |
20211204 |
Sunny |
Moderate |
Mid-Ebb |
Bottom |
8.40 |
12:14:00 PM |
8.54 |
8.24 |
31.49 |
25.12 |
2.07 |
8.00 |
|
WSR02 |
20211204 |
Sunny |
Moderate |
Mid-Ebb |
Bottom |
8.40 |
12:14:00 PM |
8.09 |
8.01 |
30.53 |
24.93 |
1.78 |
9.00 |
|
WSR02 |
20211207 |
Sunny |
Moderate |
Mid-Ebb |
Surface |
1.00 |
2:29:00 PM |
8.77 |
8.21 |
31.08 |
25.64 |
3.95 |
8.00 |
|
WSR02 |
20211207 |
Sunny |
Moderate |
Mid-Ebb |
Surface |
1.00 |
2:29:00 PM |
8.79 |
8.32 |
31.08 |
25.60 |
3.74 |
6.00 |
|
WSR02 |
20211207 |
Sunny |
Moderate |
Mid-Ebb |
Middle |
4.95 |
2:28:00 PM |
8.72 |
8.18 |
30.97 |
25.66 |
2.62 |
8.00 |
|
WSR02 |
20211207 |
Sunny |
Moderate |
Mid-Ebb |
Middle |
4.95 |
2:28:00 PM |
8.86 |
8.23 |
30.96 |
25.54 |
2.84 |
6.00 |
|
WSR02 |
20211207 |
Sunny |
Moderate |
Mid-Ebb |
Bottom |
8.90 |
2:27:00 PM |
8.76 |
8.32 |
30.97 |
25.72 |
3.02 |
11.00 |
|
WSR02 |
20211207 |
Sunny |
Moderate |
Mid-Ebb |
Bottom |
8.90 |
2:27:00 PM |
8.73 |
8.25 |
31.11 |
25.62 |
2.99 |
11.00 |
|
WSR02 |
20211209 |
Sunny |
Moderate |
Mid-Ebb |
Surface |
1.00 |
3:33:00 PM |
8.56 |
8.22 |
33.54 |
24.40 |
2.22 |
3.00 |
|
WSR02 |
20211209 |
Sunny |
Moderate |
Mid-Ebb |
Surface |
1.00 |
3:33:00 PM |
8.67 |
8.22 |
33.38 |
24.38 |
1.96 |
4.00 |
|
WSR02 |
20211209 |
Sunny |
Moderate |
Mid-Ebb |
Middle |
4.60 |
3:32:00 PM |
8.54 |
8.15 |
33.36 |
24.43 |
1.62 |
3.00 |
|
WSR02 |
20211209 |
Sunny |
Moderate |
Mid-Ebb |
Middle |
4.60 |
3:32:00 PM |
8.53 |
8.23 |
33.42 |
24.31 |
1.85 |
3.00 |
|
WSR02 |
20211209 |
Sunny |
Moderate |
Mid-Ebb |
Bottom |
8.20 |
3:31:00 PM |
8.54 |
8.23 |
33.44 |
24.29 |
2.02 |
5.00 |
|
WSR02 |
20211209 |
Sunny |
Moderate |
Mid-Ebb |
Bottom |
8.20 |
3:31:00 PM |
8.57 |
8.18 |
33.32 |
24.32 |
1.97 |
6.00 |
|
WSR02 |
20211211 |
Sunny |
Moderate |
Mid-Ebb |
Surface |
1.00 |
6:29:00 PM |
8.40 |
8.35 |
31.10 |
25.13 |
2.90 |
6.00 |
|
WSR02 |
20211211 |
Sunny |
Moderate |
Mid-Ebb |
Surface |
1.00 |
6:29:00 PM |
8.59 |
8.40 |
31.12 |
25.17 |
2.87 |
6.00 |
|
WSR02 |
20211211 |
Sunny |
Moderate |
Mid-Ebb |
Middle |
4.60 |
6:28:00 PM |
8.59 |
8.38 |
31.24 |
25.05 |
3.25 |
5.00 |
|
WSR02 |
20211211 |
Sunny |
Moderate |
Mid-Ebb |
Middle |
4.60 |
6:28:00 PM |
8.44 |
8.43 |
31.27 |
25.02 |
3.26 |
7.00 |
|
WSR02 |
20211211 |
Sunny |
Moderate |
Mid-Ebb |
Bottom |
8.20 |
6:27:00 PM |
8.47 |
8.36 |
31.20 |
25.16 |
2.76 |
5.00 |
|
WSR02 |
20211211 |
Sunny |
Moderate |
Mid-Ebb |
Bottom |
8.20 |
6:27:00 PM |
8.52 |
8.38 |
31.06 |
25.13 |
2.53 |
6.00 |
|
WSR02 |
20211214 |
Sunny |
Moderate |
Mid-Ebb |
Surface |
1.00 |
9:41:00 AM |
8.50 |
8.34 |
32.53 |
23.49 |
2.62 |
4.00 |
|
WSR02 |
20211214 |
Sunny |
Moderate |
Mid-Ebb |
Surface |
1.00 |
9:41:00 AM |
8.78 |
8.32 |
32.65 |
23.43 |
2.70 |
5.00 |
|
WSR02 |
20211214 |
Sunny |
Moderate |
Mid-Ebb |
Middle |
4.65 |
9:40:00 AM |
8.79 |
8.37 |
32.81 |
23.46 |
2.14 |
3.00 |
|
WSR02 |
20211214 |
Sunny |
Moderate |
Mid-Ebb |
Middle |
4.65 |
9:40:00 AM |
8.37 |
8.25 |
32.66 |
23.43 |
2.36 |
5.00 |
|
WSR02 |
20211214 |
Sunny |
Moderate |
Mid-Ebb |
Bottom |
8.30 |
9:39:00 AM |
8.63 |
8.32 |
32.67 |
23.48 |
1.82 |
6.00 |
|
WSR02 |
20211214 |
Sunny |
Moderate |
Mid-Ebb |
Bottom |
8.30 |
9:39:00 AM |
8.61 |
8.33 |
32.65 |
23.51 |
1.76 |
5.00 |
|
Location |
Date (YYYYMMDD) |
Weather |
Sea Condition |
Tidal |
Water Level |
Depth (m) |
Time (hh:mm) |
DO (mg/L) |
pH |
Sal (ppt) |
Temp (¢XC) |
Turbidty (NTU) note 1 |
SS (mg/L) (Note 2) |
|
WSR02 |
20211216 |
Cloudy |
Moderate |
Mid-Ebb |
Surface |
1.00 |
10:37:00 AM |
9.03 |
8.35 |
31.69 |
23.80 |
2.84 |
2.50 |
|
WSR02 |
20211216 |
Cloudy |
Moderate |
Mid-Ebb |
Surface |
1.00 |
10:37:00 AM |
9.03 |
8.30 |
31.58 |
23.86 |
3.08 |
3.00 |
|
WSR02 |
20211216 |
Cloudy |
Moderate |
Mid-Ebb |
Middle |
4.50 |
10:36:00 AM |
9.01 |
8.35 |
31.60 |
23.84 |
3.11 |
4.00 |
|
WSR02 |
20211216 |
Cloudy |
Moderate |
Mid-Ebb |
Middle |
4.50 |
10:36:00 AM |
9.08 |
8.35 |
31.65 |
23.88 |
2.88 |
5.00 |
|
WSR02 |
20211216 |
Cloudy |
Moderate |
Mid-Ebb |
Bottom |
8.00 |
10:35:00 AM |
9.14 |
8.30 |
31.70 |
23.75 |
2.95 |
3.00 |
|
WSR02 |
20211216 |
Cloudy |
Moderate |
Mid-Ebb |
Bottom |
8.00 |
10:35:00 AM |
9.14 |
8.32 |
31.68 |
23.81 |
2.64 |
5.00 |
|
WSR02 |
20211218 |
Cloudy |
Moderate |
Mid-Ebb |
Surface |
1.00 |
11:41:00 AM |
8.52 |
8.24 |
32.75 |
23.44 |
2.80 |
5.00 |
|
WSR02 |
20211218 |
Cloudy |
Moderate |
Mid-Ebb |
Surface |
1.00 |
11:41:00 AM |
9.02 |
8.18 |
32.76 |
23.44 |
2.47 |
4.00 |
|
WSR02 |
20211218 |
Cloudy |
Moderate |
Mid-Ebb |
Middle |
4.70 |
11:40:00 AM |
8.87 |
8.24 |
32.57 |
23.32 |
2.61 |
6.00 |
|
WSR02 |
20211218 |
Cloudy |
Moderate |
Mid-Ebb |
Middle |
4.70 |
11:40:00 AM |
8.64 |
8.25 |
32.78 |
23.46 |
2.41 |
7.00 |
|
WSR02 |
20211218 |
Cloudy |
Moderate |
Mid-Ebb |
Bottom |
8.40 |
11:39:00 AM |
9.02 |
8.18 |
32.69 |
23.39 |
2.73 |
7.00 |
|
WSR02 |
20211218 |
Cloudy |
Moderate |
Mid-Ebb |
Bottom |
8.40 |
11:39:00 AM |
8.58 |
8.25 |
32.68 |
23.38 |
2.65 |
11.00 |
|
WSR02 |
20211221 |
Cloudy |
Moderate |
Mid-Ebb |
Surface |
1.00 |
1:15:00 PM |
8.65 |
8.34 |
31.96 |
23.22 |
2.42 |
4.00 |
|
WSR02 |
20211221 |
Cloudy |
Moderate |
Mid-Ebb |
Surface |
1.00 |
1:15:00 PM |
8.63 |
8.35 |
31.80 |
23.25 |
2.81 |
5.00 |
|
WSR02 |
20211221 |
Cloudy |
Moderate |
Mid-Ebb |
Middle |
4.85 |
1:14:00 PM |
8.55 |
8.31 |
31.78 |
23.26 |
2.13 |
7.00 |
|
WSR02 |
20211221 |
Cloudy |
Moderate |
Mid-Ebb |
Middle |
4.85 |
1:14:00 PM |
8.70 |
8.30 |
31.88 |
23.26 |
2.35 |
6.00 |
|
WSR02 |
20211221 |
Cloudy |
Moderate |
Mid-Ebb |
Bottom |
8.70 |
1:13:00 PM |
8.60 |
8.35 |
31.85 |
23.27 |
2.12 |
8.00 |
|
WSR02 |
20211221 |
Cloudy |
Moderate |
Mid-Ebb |
Bottom |
8.70 |
1:13:00 PM |
8.67 |
8.30 |
31.85 |
23.22 |
1.92 |
8.00 |
|
WSR02 |
20211223 |
Cloudy |
Moderate |
Mid-Ebb |
Surface |
1.00 |
2:30:00 PM |
8.00 |
8.34 |
33.81 |
21.75 |
2.35 |
6.00 |
|
WSR02 |
20211223 |
Cloudy |
Moderate |
Mid-Ebb |
Surface |
1.00 |
2:30:00 PM |
7.92 |
8.33 |
33.72 |
21.86 |
2.59 |
7.00 |
|
WSR02 |
20211223 |
Cloudy |
Moderate |
Mid-Ebb |
Middle |
4.65 |
2:29:00 PM |
7.66 |
8.31 |
33.69 |
21.82 |
2.33 |
3.00 |
|
WSR02 |
20211223 |
Cloudy |
Moderate |
Mid-Ebb |
Middle |
4.65 |
2:29:00 PM |
8.00 |
8.28 |
33.68 |
21.81 |
2.59 |
5.00 |
|
WSR02 |
20211223 |
Cloudy |
Moderate |
Mid-Ebb |
Bottom |
8.30 |
2:28:00 PM |
7.91 |
8.34 |
33.78 |
21.91 |
2.38 |
5.00 |
|
WSR02 |
20211223 |
Cloudy |
Moderate |
Mid-Ebb |
Bottom |
8.30 |
2:28:00 PM |
7.78 |
8.33 |
33.78 |
21.81 |
2.40 |
5.00 |
|
WSR02 |
20211225 |
Sunny |
Moderate |
Mid-Ebb |
Surface |
1.00 |
4:37:00 PM |
8.40 |
8.19 |
31.89 |
22.57 |
3.20 |
3.00 |
|
WSR02 |
20211225 |
Sunny |
Moderate |
Mid-Ebb |
Surface |
1.00 |
4:37:00 PM |
8.28 |
8.14 |
31.81 |
22.58 |
3.11 |
3.00 |
|
WSR02 |
20211225 |
Sunny |
Moderate |
Mid-Ebb |
Middle |
4.85 |
4:36:00 PM |
8.25 |
8.14 |
31.92 |
22.53 |
2.59 |
5.00 |
|
Location |
Date (YYYYMMDD) |
Weather |
Sea Condition |
Tidal |
Water Level |
Depth (m) |
Time (hh:mm) |
DO (mg/L) |
pH |
Sal (ppt) |
Temp (¢XC) |
Turbidty (NTU) note 1 |
SS (mg/L) (Note 2) |
|
WSR02 |
20211225 |
Sunny |
Moderate |
Mid-Ebb |
Middle |
4.85 |
4:36:00 PM |
8.43 |
8.19 |
31.85 |
22.41 |
2.46 |
4.00 |
|
WSR02 |
20211225 |
Sunny |
Moderate |
Mid-Ebb |
Bottom |
8.70 |
4:35:00 PM |
8.25 |
8.16 |
31.84 |
22.51 |
2.74 |
3.00 |
|
WSR02 |
20211225 |
Sunny |
Moderate |
Mid-Ebb |
Bottom |
8.70 |
4:35:00 PM |
8.32 |
8.15 |
31.87 |
22.59 |
2.78 |
4.00 |
|
WSR02 |
20211228 |
Cloudy |
Moderate |
Mid-Ebb |
Surface |
1.00 |
7:20:00 PM |
8.65 |
8.21 |
32.40 |
21.81 |
3.19 |
5.00 |
|
WSR02 |
20211228 |
Cloudy |
Moderate |
Mid-Ebb |
Surface |
1.00 |
7:20:00 PM |
8.70 |
8.23 |
32.50 |
21.90 |
3.55 |
5.00 |
|
WSR02 |
20211228 |
Cloudy |
Moderate |
Mid-Ebb |
Middle |
4.95 |
7:19:00 PM |
8.66 |
8.18 |
32.41 |
21.80 |
3.26 |
13.00 |
|
WSR02 |
20211228 |
Cloudy |
Moderate |
Mid-Ebb |
Middle |
4.95 |
7:19:00 PM |
8.60 |
8.16 |
32.37 |
21.88 |
3.01 |
13.00 |
|
WSR02 |
20211228 |
Cloudy |
Moderate |
Mid-Ebb |
Bottom |
8.90 |
7:18:00 PM |
8.67 |
8.15 |
32.46 |
21.86 |
2.65 |
13.00 |
|
WSR02 |
20211228 |
Cloudy |
Moderate |
Mid-Ebb |
Bottom |
8.90 |
7:18:00 PM |
8.60 |
8.20 |
32.48 |
21.82 |
2.95 |
13.00 |
|
WSR02 |
20211230 |
Sunny |
Moderate |
Mid-Ebb |
Surface |
1.00 |
11:19:00 AM |
9.00 |
8.36 |
32.20 |
22.12 |
2.91 |
6.00 |
|
WSR02 |
20211230 |
Sunny |
Moderate |
Mid-Ebb |
Surface |
1.00 |
11:19:00 AM |
9.19 |
8.31 |
32.14 |
22.17 |
2.62 |
7.00 |
|
WSR02 |
20211230 |
Sunny |
Moderate |
Mid-Ebb |
Middle |
4.65 |
11:18:00 AM |
8.94 |
8.37 |
31.94 |
22.11 |
2.88 |
7.00 |
|
WSR02 |
20211230 |
Sunny |
Moderate |
Mid-Ebb |
Middle |
4.65 |
11:18:00 AM |
8.97 |
8.39 |
32.04 |
22.17 |
3.04 |
9.00 |
|
WSR02 |
20211230 |
Sunny |
Moderate |
Mid-Ebb |
Bottom |
8.30 |
11:17:00 AM |
8.87 |
8.39 |
32.18 |
21.97 |
2.84 |
8.00 |
|
WSR02 |
20211230 |
Sunny |
Moderate |
Mid-Ebb |
Bottom |
8.30 |
11:17:00 AM |
8.93 |
8.33 |
32.07 |
22.16 |
2.44 |
8.00 |
|
WSR03 |
20211202 |
Sunny |
Moderate |
Mid-Ebb |
Surface |
1.00 |
10:17:00 AM |
8.28 |
8.36 |
32.53 |
25.62 |
4.02 |
6.00 |
|
WSR03 |
20211202 |
Sunny |
Moderate |
Mid-Ebb |
Surface |
1.00 |
10:17:00 AM |
8.29 |
8.25 |
32.54 |
25.55 |
3.92 |
5.00 |
|
WSR03 |
20211202 |
Sunny |
Moderate |
Mid-Ebb |
Middle |
3.90 |
10:16:00 AM |
8.27 |
8.29 |
32.70 |
25.58 |
3.79 |
7.00 |
|
WSR03 |
20211202 |
Sunny |
Moderate |
Mid-Ebb |
Middle |
3.90 |
10:16:00 AM |
8.34 |
8.34 |
32.71 |
25.49 |
3.81 |
9.00 |
|
WSR03 |
20211202 |
Sunny |
Moderate |
Mid-Ebb |
Bottom |
6.80 |
10:15:00 AM |
8.35 |
8.24 |
32.63 |
25.64 |
3.22 |
24.00 |
|
WSR03 |
20211202 |
Sunny |
Moderate |
Mid-Ebb |
Bottom |
6.80 |
10:15:00 AM |
8.23 |
8.27 |
32.65 |
25.50 |
2.91 |
25.00 |
|
WSR03 |
20211204 |
Sunny |
Moderate |
Mid-Ebb |
Surface |
1.00 |
12:00:00 PM |
8.75 |
8.10 |
30.64 |
25.21 |
2.65 |
6.00 |
|
WSR03 |
20211204 |
Sunny |
Moderate |
Mid-Ebb |
Surface |
1.00 |
12:00:00 PM |
8.97 |
8.14 |
31.67 |
25.03 |
3.15 |
6.00 |
|
WSR03 |
20211204 |
Sunny |
Moderate |
Mid-Ebb |
Middle |
4.05 |
11:59:00 AM |
9.10 |
8.14 |
31.64 |
25.25 |
2.81 |
6.00 |
|
WSR03 |
20211204 |
Sunny |
Moderate |
Mid-Ebb |
Middle |
4.05 |
11:59:00 AM |
9.06 |
8.16 |
31.58 |
25.08 |
2.50 |
4.00 |
|
WSR03 |
20211204 |
Sunny |
Moderate |
Mid-Ebb |
Bottom |
7.10 |
11:58:00 AM |
9.06 |
8.18 |
31.68 |
25.17 |
2.59 |
4.00 |
|
WSR03 |
20211204 |
Sunny |
Moderate |
Mid-Ebb |
Bottom |
7.10 |
11:58:00 AM |
8.97 |
7.86 |
30.64 |
25.13 |
2.30 |
5.00 |
|
Location |
Date (YYYYMMDD) |
Weather |
Sea Condition |
Tidal |
Water Level |
Depth (m) |
Time (hh:mm) |
DO (mg/L) |
pH |
Sal (ppt) |
Temp (¢XC) |
Turbidty (NTU) note 1 |
SS (mg/L) (Note 2) |
|
WSR03 |
20211207 |
Sunny |
Moderate |
Mid-Ebb |
Surface |
1.00 |
2:15:00 PM |
8.88 |
8.20 |
30.58 |
26.10 |
3.51 |
9.00 |
|
WSR03 |
20211207 |
Sunny |
Moderate |
Mid-Ebb |
Surface |
1.00 |
2:15:00 PM |
8.93 |
8.15 |
30.58 |
26.00 |
3.48 |
9.00 |
|
WSR03 |
20211207 |
Sunny |
Moderate |
Mid-Ebb |
Middle |
4.05 |
2:14:00 PM |
8.90 |
8.20 |
30.56 |
25.94 |
3.33 |
7.00 |
|
WSR03 |
20211207 |
Sunny |
Moderate |
Mid-Ebb |
Middle |
4.05 |
2:14:00 PM |
8.98 |
8.14 |
30.66 |
25.91 |
3.18 |
10.00 |
|
WSR03 |
20211207 |
Sunny |
Moderate |
Mid-Ebb |
Bottom |
7.10 |
2:13:00 PM |
8.84 |
8.18 |
30.76 |
26.09 |
3.15 |
6.00 |
|
WSR03 |
20211207 |
Sunny |
Moderate |
Mid-Ebb |
Bottom |
7.10 |
2:13:00 PM |
9.00 |
8.18 |
30.69 |
26.13 |
3.57 |
7.00 |
|
WSR03 |
20211209 |
Sunny |
Moderate |
Mid-Ebb |
Surface |
1.00 |
3:19:00 PM |
8.88 |
8.37 |
32.71 |
24.19 |
2.95 |
5.00 |
|
WSR03 |
20211209 |
Sunny |
Moderate |
Mid-Ebb |
Surface |
1.00 |
3:19:00 PM |
8.89 |
8.31 |
32.71 |
24.19 |
3.14 |
6.00 |
|
WSR03 |
20211209 |
Sunny |
Moderate |
Mid-Ebb |
Middle |
3.95 |
3:18:00 PM |
8.86 |
8.42 |
32.68 |
24.20 |
2.83 |
4.00 |
|
WSR03 |
20211209 |
Sunny |
Moderate |
Mid-Ebb |
Middle |
3.95 |
3:18:00 PM |
8.93 |
8.42 |
32.73 |
24.14 |
2.71 |
5.00 |
|
WSR03 |
20211209 |
Sunny |
Moderate |
Mid-Ebb |
Bottom |
6.90 |
3:17:00 PM |
8.92 |
8.38 |
32.70 |
24.11 |
2.21 |
5.00 |
|
WSR03 |
20211209 |
Sunny |
Moderate |
Mid-Ebb |
Bottom |
6.90 |
3:17:00 PM |
8.91 |
8.40 |
32.83 |
24.11 |
2.13 |
5.00 |
|
WSR03 |
20211211 |
Sunny |
Moderate |
Mid-Ebb |
Surface |
1.00 |
6:16:00 PM |
8.25 |
8.26 |
31.75 |
24.95 |
2.95 |
5.00 |
|
WSR03 |
20211211 |
Sunny |
Moderate |
Mid-Ebb |
Surface |
1.00 |
6:16:00 PM |
8.27 |
8.32 |
31.83 |
24.94 |
2.82 |
5.00 |
|
WSR03 |
20211211 |
Sunny |
Moderate |
Mid-Ebb |
Middle |
3.80 |
6:15:00 PM |
8.08 |
8.29 |
31.70 |
24.94 |
2.40 |
6.00 |
|
WSR03 |
20211211 |
Sunny |
Moderate |
Mid-Ebb |
Middle |
3.80 |
6:15:00 PM |
8.22 |
8.31 |
31.67 |
25.03 |
2.31 |
7.00 |
|
WSR03 |
20211211 |
Sunny |
Moderate |
Mid-Ebb |
Bottom |
6.60 |
6:14:00 PM |
8.07 |
8.31 |
31.66 |
24.96 |
2.19 |
5.00 |
|
WSR03 |
20211211 |
Sunny |
Moderate |
Mid-Ebb |
Bottom |
6.60 |
6:14:00 PM |
8.30 |
8.23 |
31.79 |
24.88 |
2.47 |
7.00 |
|
WSR03 |
20211214 |
Sunny |
Moderate |
Mid-Ebb |
Surface |
1.00 |
9:27:00 AM |
9.20 |
8.14 |
33.09 |
23.35 |
2.27 |
5.00 |
|
WSR03 |
20211214 |
Sunny |
Moderate |
Mid-Ebb |
Surface |
1.00 |
9:27:00 AM |
8.86 |
8.16 |
33.21 |
23.32 |
2.27 |
4.00 |
|
WSR03 |
20211214 |
Sunny |
Moderate |
Mid-Ebb |
Middle |
4.20 |
9:26:00 AM |
9.04 |
8.13 |
33.20 |
23.44 |
2.04 |
5.00 |
|
WSR03 |
20211214 |
Sunny |
Moderate |
Mid-Ebb |
Middle |
4.20 |
9:26:00 AM |
8.83 |
8.16 |
32.96 |
23.27 |
2.16 |
5.00 |
|
WSR03 |
20211214 |
Sunny |
Moderate |
Mid-Ebb |
Bottom |
7.40 |
9:25:00 AM |
8.86 |
8.13 |
33.28 |
23.40 |
2.14 |
5.00 |
|
WSR03 |
20211214 |
Sunny |
Moderate |
Mid-Ebb |
Bottom |
7.40 |
9:25:00 AM |
8.90 |
8.25 |
33.10 |
23.29 |
2.33 |
3.00 |
|
WSR03 |
20211216 |
Cloudy |
Moderate |
Mid-Ebb |
Surface |
1.00 |
10:22:00 AM |
8.87 |
8.39 |
30.76 |
23.63 |
4.03 |
3.00 |
|
WSR03 |
20211216 |
Cloudy |
Moderate |
Mid-Ebb |
Surface |
1.00 |
10:22:00 AM |
8.87 |
8.41 |
30.83 |
23.64 |
3.49 |
3.00 |
|
WSR03 |
20211216 |
Cloudy |
Moderate |
Mid-Ebb |
Middle |
4.00 |
10:21:00 AM |
8.92 |
8.38 |
30.86 |
23.76 |
3.56 |
7.00 |
|
Location |
Date (YYYYMMDD) |
Weather |
Sea Condition |
Tidal |
Water Level |
Depth (m) |
Time (hh:mm) |
DO (mg/L) |
pH |
Sal (ppt) |
Temp (¢XC) |
Turbidty (NTU) note 1 |
SS (mg/L) (Note 2) |
|
WSR03 |
20211216 |
Cloudy |
Moderate |
Mid-Ebb |
Middle |
4.00 |
10:21:00 AM |
8.89 |
8.37 |
30.74 |
23.59 |
3.36 |
8.00 |
|
WSR03 |
20211216 |
Cloudy |
Moderate |
Mid-Ebb |
Bottom |
7.00 |
10:20:00 AM |
8.78 |
8.38 |
30.82 |
23.57 |
3.24 |
3.00 |
|
WSR03 |
20211216 |
Cloudy |
Moderate |
Mid-Ebb |
Bottom |
7.00 |
10:20:00 AM |
8.79 |
8.34 |
30.73 |
23.70 |
3.01 |
4.00 |
|
WSR03 |
20211218 |
Cloudy |
Moderate |
Mid-Ebb |
Surface |
1.00 |
11:26:00 AM |
8.60 |
8.24 |
32.55 |
23.68 |
2.80 |
5.00 |
|
WSR03 |
20211218 |
Cloudy |
Moderate |
Mid-Ebb |
Surface |
1.00 |
11:26:00 AM |
8.47 |
8.28 |
32.53 |
23.75 |
2.49 |
4.00 |
|
WSR03 |
20211218 |
Cloudy |
Moderate |
Mid-Ebb |
Middle |
3.80 |
11:25:00 AM |
8.71 |
8.25 |
32.33 |
23.66 |
2.58 |
6.00 |
|
WSR03 |
20211218 |
Cloudy |
Moderate |
Mid-Ebb |
Middle |
3.80 |
11:25:00 AM |
8.54 |
8.26 |
32.47 |
23.77 |
2.96 |
8.00 |
|
WSR03 |
20211218 |
Cloudy |
Moderate |
Mid-Ebb |
Bottom |
6.60 |
11:24:00 AM |
8.61 |
8.22 |
32.48 |
23.66 |
2.36 |
6.00 |
|
WSR03 |
20211218 |
Cloudy |
Moderate |
Mid-Ebb |
Bottom |
6.60 |
11:24:00 AM |
8.79 |
8.26 |
32.35 |
23.79 |
2.60 |
8.00 |
|
WSR03 |
20211221 |
Cloudy |
Moderate |
Mid-Ebb |
Surface |
1.00 |
1:00:00 PM |
7.65 |
8.17 |
31.99 |
22.85 |
2.99 |
6.00 |
|
WSR03 |
20211221 |
Cloudy |
Moderate |
Mid-Ebb |
Surface |
1.00 |
1:00:00 PM |
7.65 |
8.23 |
31.98 |
22.82 |
2.94 |
5.00 |
|
WSR03 |
20211221 |
Cloudy |
Moderate |
Mid-Ebb |
Middle |
3.90 |
12:59:00 PM |
7.65 |
8.21 |
32.00 |
22.83 |
2.94 |
7.00 |
|
WSR03 |
20211221 |
Cloudy |
Moderate |
Mid-Ebb |
Middle |
3.90 |
12:59:00 PM |
7.64 |
8.23 |
31.92 |
22.78 |
2.66 |
7.00 |
|
WSR03 |
20211221 |
Cloudy |
Moderate |
Mid-Ebb |
Bottom |
6.80 |
12:58:00 PM |
7.64 |
8.18 |
31.91 |
22.85 |
2.37 |
7.00 |
|
WSR03 |
20211221 |
Cloudy |
Moderate |
Mid-Ebb |
Bottom |
6.80 |
12:58:00 PM |
7.59 |
8.21 |
31.90 |
22.85 |
2.72 |
8.00 |
|
WSR03 |
20211223 |
Cloudy |
Moderate |
Mid-Ebb |
Surface |
1.00 |
2:17:00 PM |
8.63 |
8.24 |
33.15 |
22.28 |
3.04 |
5.00 |
|
WSR03 |
20211223 |
Cloudy |
Moderate |
Mid-Ebb |
Surface |
1.00 |
2:17:00 PM |
8.60 |
8.17 |
33.12 |
22.42 |
2.71 |
7.00 |
|
WSR03 |
20211223 |
Cloudy |
Moderate |
Mid-Ebb |
Middle |
3.90 |
2:16:00 PM |
8.49 |
8.21 |
33.11 |
22.45 |
2.67 |
6.00 |
|
WSR03 |
20211223 |
Cloudy |
Moderate |
Mid-Ebb |
Middle |
3.90 |
2:16:00 PM |
8.45 |
8.24 |
33.21 |
22.43 |
2.70 |
6.00 |
|
WSR03 |
20211223 |
Cloudy |
Moderate |
Mid-Ebb |
Bottom |
6.80 |
2:15:00 PM |
8.47 |
8.20 |
33.22 |
22.49 |
2.51 |
5.00 |
|
WSR03 |
20211223 |
Cloudy |
Moderate |
Mid-Ebb |
Bottom |
6.80 |
2:15:00 PM |
8.76 |
8.17 |
33.19 |
22.46 |
2.36 |
4.00 |
|
WSR03 |
20211225 |
Sunny |
Moderate |
Mid-Ebb |
Surface |
1.00 |
4:21:00 PM |
8.70 |
8.14 |
31.82 |
22.35 |
2.81 |
4.00 |
|
WSR03 |
20211225 |
Sunny |
Moderate |
Mid-Ebb |
Surface |
1.00 |
4:21:00 PM |
8.74 |
8.17 |
31.87 |
22.38 |
2.59 |
5.00 |
|
WSR03 |
20211225 |
Sunny |
Moderate |
Mid-Ebb |
Middle |
3.75 |
4:20:00 PM |
8.74 |
8.14 |
31.81 |
22.34 |
2.52 |
5.00 |
|
WSR03 |
20211225 |
Sunny |
Moderate |
Mid-Ebb |
Middle |
3.75 |
4:20:00 PM |
8.86 |
8.13 |
31.86 |
22.36 |
2.18 |
4.00 |
|
WSR03 |
20211225 |
Sunny |
Moderate |
Mid-Ebb |
Bottom |
6.50 |
4:19:00 PM |
8.75 |
8.16 |
31.84 |
22.45 |
2.12 |
6.00 |
|
WSR03 |
20211225 |
Sunny |
Moderate |
Mid-Ebb |
Bottom |
6.50 |
4:19:00 PM |
8.70 |
8.17 |
31.83 |
22.30 |
1.78 |
6.00 |
|
Location |
Date (YYYYMMDD) |
Weather |
Sea Condition |
Tidal |
Water Level |
Depth (m) |
Time (hh:mm) |
DO (mg/L) |
pH |
Sal (ppt) |
Temp (¢XC) |
Turbidty (NTU) note 1 |
SS (mg/L) (Note 2) |
|
WSR03 |
20211228 |
Cloudy |
Moderate |
Mid-Ebb |
Surface |
1.00 |
7:06:00 PM |
8.59 |
8.40 |
32.81 |
22.15 |
3.63 |
22.00 |
|
WSR03 |
20211228 |
Cloudy |
Moderate |
Mid-Ebb |
Surface |
1.00 |
7:06:00 PM |
8.46 |
8.43 |
32.87 |
22.26 |
3.31 |
23.00 |
|
WSR03 |
20211228 |
Cloudy |
Moderate |
Mid-Ebb |
Middle |
3.95 |
7:05:00 PM |
8.53 |
8.38 |
32.88 |
22.26 |
3.19 |
15.00 |
|
WSR03 |
20211228 |
Cloudy |
Moderate |
Mid-Ebb |
Middle |
3.95 |
7:05:00 PM |
8.44 |
8.43 |
32.83 |
22.14 |
3.01 |
15.00 |
|
WSR03 |
20211228 |
Cloudy |
Moderate |
Mid-Ebb |
Bottom |
6.90 |
7:04:00 PM |
8.42 |
8.42 |
32.90 |
22.14 |
3.34 |
14.00 |
|
WSR03 |
20211228 |
Cloudy |
Moderate |
Mid-Ebb |
Bottom |
6.90 |
7:04:00 PM |
8.45 |
8.44 |
32.88 |
22.26 |
3.38 |
14.00 |
|
WSR03 |
20211230 |
Sunny |
Moderate |
Mid-Ebb |
Surface |
1.00 |
11:05:00 AM |
8.86 |
8.28 |
32.11 |
22.21 |
2.71 |
8.00 |
|
WSR03 |
20211230 |
Sunny |
Moderate |
Mid-Ebb |
Surface |
1.00 |
11:05:00 AM |
8.83 |
8.26 |
32.22 |
22.23 |
2.38 |
9.00 |
|
WSR03 |
20211230 |
Sunny |
Moderate |
Mid-Ebb |
Middle |
4.00 |
11:04:00 AM |
8.86 |
8.26 |
32.07 |
22.28 |
2.36 |
17.00 |
|
WSR03 |
20211230 |
Sunny |
Moderate |
Mid-Ebb |
Middle |
4.00 |
11:04:00 AM |
8.64 |
8.32 |
32.08 |
22.26 |
2.65 |
18.00 |
|
WSR03 |
20211230 |
Sunny |
Moderate |
Mid-Ebb |
Bottom |
7.00 |
11:03:00 AM |
8.77 |
8.33 |
32.03 |
22.25 |
2.79 |
9.00 |
|
WSR03 |
20211230 |
Sunny |
Moderate |
Mid-Ebb |
Bottom |
7.00 |
11:03:00 AM |
8.73 |
8.24 |
32.26 |
22.22 |
2.49 |
8.00 |
|
WSR04 |
20211202 |
Sunny |
Moderate |
Mid-Ebb |
Surface |
1.00 |
10:06:00 AM |
8.18 |
8.23 |
31.90 |
25.80 |
2.74 |
5.00 |
|
WSR04 |
20211202 |
Sunny |
Moderate |
Mid-Ebb |
Surface |
1.00 |
10:06:00 AM |
8.29 |
8.24 |
31.78 |
25.95 |
3.26 |
5.00 |
|
WSR04 |
20211202 |
Sunny |
Moderate |
Mid-Ebb |
Middle |
3.55 |
10:05:00 AM |
8.28 |
8.25 |
31.89 |
25.97 |
2.58 |
7.00 |
|
WSR04 |
20211202 |
Sunny |
Moderate |
Mid-Ebb |
Middle |
3.55 |
10:05:00 AM |
8.41 |
8.33 |
31.79 |
25.90 |
3.08 |
6.00 |
|
WSR04 |
20211202 |
Sunny |
Moderate |
Mid-Ebb |
Bottom |
6.10 |
10:04:00 AM |
8.30 |
8.26 |
31.85 |
25.88 |
2.56 |
5.00 |
|
WSR04 |
20211202 |
Sunny |
Moderate |
Mid-Ebb |
Bottom |
6.10 |
10:04:00 AM |
8.38 |
8.28 |
31.93 |
25.87 |
2.40 |
4.00 |
|
WSR04 |
20211204 |
Sunny |
Moderate |
Mid-Ebb |
Surface |
1.00 |
11:47:00 AM |
7.50 |
8.03 |
30.19 |
24.97 |
2.54 |
5.00 |
|
WSR04 |
20211204 |
Sunny |
Moderate |
Mid-Ebb |
Surface |
1.00 |
11:47:00 AM |
8.14 |
8.26 |
31.22 |
24.97 |
2.32 |
7.00 |
|
WSR04 |
20211204 |
Sunny |
Moderate |
Mid-Ebb |
Middle |
3.40 |
11:46:00 AM |
8.16 |
8.27 |
31.25 |
25.00 |
2.42 |
4.00 |
|
WSR04 |
20211204 |
Sunny |
Moderate |
Mid-Ebb |
Middle |
3.40 |
11:46:00 AM |
8.16 |
8.26 |
31.21 |
25.13 |
2.74 |
4.00 |
|
WSR04 |
20211204 |
Sunny |
Moderate |
Mid-Ebb |
Bottom |
5.80 |
11:45:00 AM |
8.29 |
8.28 |
31.22 |
24.94 |
2.54 |
5.00 |
|
WSR04 |
20211204 |
Sunny |
Moderate |
Mid-Ebb |
Bottom |
5.80 |
11:45:00 AM |
7.37 |
8.20 |
30.19 |
25.03 |
2.16 |
4.00 |
|
WSR04 |
20211207 |
Sunny |
Moderate |
Mid-Ebb |
Surface |
1.00 |
2:04:00 PM |
8.53 |
8.21 |
30.79 |
25.54 |
3.14 |
9.00 |
|
WSR04 |
20211207 |
Sunny |
Moderate |
Mid-Ebb |
Surface |
1.00 |
2:04:00 PM |
8.49 |
8.26 |
30.97 |
25.41 |
3.41 |
11.00 |
|
WSR04 |
20211207 |
Sunny |
Moderate |
Mid-Ebb |
Middle |
3.70 |
2:03:00 PM |
8.49 |
8.29 |
30.98 |
25.38 |
3.08 |
9.00 |
|
Location |
Date (YYYYMMDD) |
Weather |
Sea Condition |
Tidal |
Water Level |
Depth (m) |
Time (hh:mm) |
DO (mg/L) |
pH |
Sal (ppt) |
Temp (¢XC) |
Turbidty (NTU) note 1 |
SS (mg/L) (Note 2) |
|
WSR04 |
20211207 |
Sunny |
Moderate |
Mid-Ebb |
Middle |
3.70 |
2:03:00 PM |
8.47 |
8.30 |
30.98 |
25.48 |
3.41 |
7.00 |
|
WSR04 |
20211207 |
Sunny |
Moderate |
Mid-Ebb |
Bottom |
6.40 |
2:02:00 PM |
8.51 |
8.30 |
30.96 |
25.45 |
2.86 |
11.00 |
|
WSR04 |
20211207 |
Sunny |
Moderate |
Mid-Ebb |
Bottom |
6.40 |
2:02:00 PM |
8.54 |
8.16 |
30.97 |
25.48 |
3.10 |
13.00 |
|
WSR04 |
20211209 |
Sunny |
Moderate |
Mid-Ebb |
Surface |
1.00 |
3:08:00 PM |
8.70 |
8.17 |
33.32 |
24.34 |
2.63 |
4.00 |
|
WSR04 |
20211209 |
Sunny |
Moderate |
Mid-Ebb |
Surface |
1.00 |
3:08:00 PM |
8.89 |
8.17 |
33.56 |
24.54 |
2.38 |
4.00 |
|
WSR04 |
20211209 |
Sunny |
Moderate |
Mid-Ebb |
Middle |
3.90 |
3:07:00 PM |
8.90 |
8.19 |
33.35 |
24.42 |
2.75 |
4.00 |
|
WSR04 |
20211209 |
Sunny |
Moderate |
Mid-Ebb |
Middle |
3.90 |
3:07:00 PM |
8.84 |
8.17 |
33.52 |
24.39 |
2.79 |
4.00 |
|
WSR04 |
20211209 |
Sunny |
Moderate |
Mid-Ebb |
Bottom |
6.80 |
3:06:00 PM |
8.78 |
8.10 |
33.40 |
24.40 |
2.15 |
6.00 |
|
WSR04 |
20211209 |
Sunny |
Moderate |
Mid-Ebb |
Bottom |
6.80 |
3:06:00 PM |
8.88 |
8.21 |
33.39 |
24.48 |
2.37 |
6.00 |
|
WSR04 |
20211211 |
Sunny |
Moderate |
Mid-Ebb |
Surface |
1.00 |
6:04:00 PM |
8.27 |
8.26 |
31.79 |
25.36 |
2.21 |
10.00 |
|
WSR04 |
20211211 |
Sunny |
Moderate |
Mid-Ebb |
Surface |
1.00 |
6:04:00 PM |
8.27 |
8.29 |
31.80 |
25.29 |
2.30 |
12.00 |
|
WSR04 |
20211211 |
Sunny |
Moderate |
Mid-Ebb |
Middle |
3.55 |
6:03:00 PM |
8.25 |
8.29 |
31.65 |
25.26 |
1.91 |
6.00 |
|
WSR04 |
20211211 |
Sunny |
Moderate |
Mid-Ebb |
Middle |
3.55 |
6:03:00 PM |
8.05 |
8.21 |
31.68 |
25.37 |
2.14 |
5.00 |
|
WSR04 |
20211211 |
Sunny |
Moderate |
Mid-Ebb |
Bottom |
6.10 |
6:02:00 PM |
8.14 |
8.28 |
31.86 |
25.19 |
1.82 |
5.00 |
|
WSR04 |
20211211 |
Sunny |
Moderate |
Mid-Ebb |
Bottom |
6.10 |
6:02:00 PM |
8.09 |
8.31 |
31.77 |
25.27 |
1.91 |
7.00 |
|
WSR04 |
20211214 |
Sunny |
Moderate |
Mid-Ebb |
Surface |
1.00 |
9:16:00 AM |
8.91 |
8.22 |
32.68 |
23.19 |
2.50 |
6.00 |
|
WSR04 |
20211214 |
Sunny |
Moderate |
Mid-Ebb |
Surface |
1.00 |
9:16:00 AM |
8.87 |
8.20 |
32.89 |
23.02 |
2.69 |
8.00 |
|
WSR04 |
20211214 |
Sunny |
Moderate |
Mid-Ebb |
Middle |
3.65 |
9:15:00 AM |
9.00 |
8.23 |
32.78 |
23.16 |
2.64 |
5.00 |
|
WSR04 |
20211214 |
Sunny |
Moderate |
Mid-Ebb |
Middle |
3.65 |
9:15:00 AM |
8.96 |
8.29 |
32.66 |
23.07 |
2.29 |
4.00 |
|
WSR04 |
20211214 |
Sunny |
Moderate |
Mid-Ebb |
Bottom |
6.30 |
9:14:00 AM |
8.90 |
8.24 |
32.70 |
23.19 |
2.33 |
4.00 |
|
WSR04 |
20211214 |
Sunny |
Moderate |
Mid-Ebb |
Bottom |
6.30 |
9:14:00 AM |
8.87 |
8.21 |
32.85 |
23.05 |
2.09 |
6.00 |
|
WSR04 |
20211216 |
Cloudy |
Moderate |
Mid-Ebb |
Surface |
1.00 |
10:10:00 AM |
8.75 |
8.40 |
31.86 |
23.60 |
2.98 |
5.00 |
|
WSR04 |
20211216 |
Cloudy |
Moderate |
Mid-Ebb |
Surface |
1.00 |
10:10:00 AM |
8.76 |
8.42 |
31.86 |
23.70 |
2.65 |
7.00 |
|
WSR04 |
20211216 |
Cloudy |
Moderate |
Mid-Ebb |
Middle |
3.60 |
10:09:00 AM |
8.89 |
8.42 |
31.80 |
23.73 |
2.88 |
6.00 |
|
WSR04 |
20211216 |
Cloudy |
Moderate |
Mid-Ebb |
Middle |
3.60 |
10:09:00 AM |
8.88 |
8.42 |
31.86 |
23.72 |
2.89 |
6.00 |
|
WSR04 |
20211216 |
Cloudy |
Moderate |
Mid-Ebb |
Bottom |
6.20 |
10:08:00 AM |
8.79 |
8.44 |
31.85 |
23.68 |
2.99 |
5.00 |
|
WSR04 |
20211216 |
Cloudy |
Moderate |
Mid-Ebb |
Bottom |
6.20 |
10:08:00 AM |
8.77 |
8.41 |
31.85 |
23.69 |
2.51 |
6.00 |
|
Location |
Date (YYYYMMDD) |
Weather |
Sea Condition |
Tidal |
Water Level |
Depth (m) |
Time (hh:mm) |
DO (mg/L) |
pH |
Sal (ppt) |
Temp (¢XC) |
Turbidty (NTU) note 1 |
SS (mg/L) (Note 2) |
|
WSR04 |
20211218 |
Cloudy |
Moderate |
Mid-Ebb |
Surface |
1.00 |
11:13:00 AM |
8.06 |
8.30 |
32.47 |
23.21 |
2.89 |
3.00 |
|
WSR04 |
20211218 |
Cloudy |
Moderate |
Mid-Ebb |
Surface |
1.00 |
11:13:00 AM |
7.99 |
8.27 |
32.56 |
23.16 |
2.91 |
3.00 |
|
WSR04 |
20211218 |
Cloudy |
Moderate |
Mid-Ebb |
Middle |
3.90 |
11:12:00 AM |
8.17 |
8.27 |
32.47 |
23.17 |
2.84 |
8.00 |
|
WSR04 |
20211218 |
Cloudy |
Moderate |
Mid-Ebb |
Middle |
3.90 |
11:12:00 AM |
8.10 |
8.28 |
32.45 |
23.25 |
2.88 |
10.00 |
|
WSR04 |
20211218 |
Cloudy |
Moderate |
Mid-Ebb |
Bottom |
6.80 |
11:11:00 AM |
8.21 |
8.31 |
32.42 |
23.15 |
2.91 |
4.00 |
|
WSR04 |
20211218 |
Cloudy |
Moderate |
Mid-Ebb |
Bottom |
6.80 |
11:11:00 AM |
7.99 |
8.29 |
32.50 |
23.29 |
2.48 |
4.00 |
|
WSR04 |
20211221 |
Cloudy |
Moderate |
Mid-Ebb |
Surface |
1.00 |
12:48:00 PM |
8.64 |
8.32 |
30.80 |
23.15 |
2.93 |
5.00 |
|
WSR04 |
20211221 |
Cloudy |
Moderate |
Mid-Ebb |
Surface |
1.00 |
12:48:00 PM |
8.70 |
8.28 |
30.94 |
23.16 |
2.56 |
7.00 |
|
WSR04 |
20211221 |
Cloudy |
Moderate |
Mid-Ebb |
Middle |
3.65 |
12:47:00 PM |
8.57 |
8.27 |
30.83 |
23.18 |
2.12 |
7.00 |
|
WSR04 |
20211221 |
Cloudy |
Moderate |
Mid-Ebb |
Middle |
3.65 |
12:47:00 PM |
8.54 |
8.34 |
30.80 |
23.16 |
2.23 |
6.00 |
|
WSR04 |
20211221 |
Cloudy |
Moderate |
Mid-Ebb |
Bottom |
6.30 |
12:46:00 PM |
8.65 |
8.33 |
30.77 |
23.10 |
1.87 |
7.00 |
|
WSR04 |
20211221 |
Cloudy |
Moderate |
Mid-Ebb |
Bottom |
6.30 |
12:46:00 PM |
8.65 |
8.30 |
30.83 |
23.16 |
1.99 |
8.00 |
|
WSR04 |
20211223 |
Cloudy |
Moderate |
Mid-Ebb |
Surface |
1.00 |
2:07:00 PM |
8.37 |
8.32 |
32.82 |
22.28 |
2.41 |
5.00 |
|
WSR04 |
20211223 |
Cloudy |
Moderate |
Mid-Ebb |
Surface |
1.00 |
2:07:00 PM |
8.36 |
8.31 |
32.69 |
22.39 |
2.19 |
6.00 |
|
WSR04 |
20211223 |
Cloudy |
Moderate |
Mid-Ebb |
Middle |
3.45 |
2:06:00 PM |
8.65 |
8.30 |
32.76 |
22.26 |
2.55 |
4.00 |
|
WSR04 |
20211223 |
Cloudy |
Moderate |
Mid-Ebb |
Middle |
3.45 |
2:06:00 PM |
8.56 |
8.27 |
32.80 |
22.32 |
2.62 |
6.00 |
|
WSR04 |
20211223 |
Cloudy |
Moderate |
Mid-Ebb |
Bottom |
5.90 |
2:05:00 PM |
8.49 |
8.31 |
32.74 |
22.19 |
2.43 |
5.00 |
|
WSR04 |
20211223 |
Cloudy |
Moderate |
Mid-Ebb |
Bottom |
5.90 |
2:05:00 PM |
8.58 |
8.30 |
32.77 |
22.19 |
2.30 |
6.00 |
|
WSR04 |
20211225 |
Sunny |
Moderate |
Mid-Ebb |
Surface |
1.00 |
4:09:00 PM |
8.97 |
8.26 |
32.19 |
22.78 |
2.96 |
9.00 |
|
WSR04 |
20211225 |
Sunny |
Moderate |
Mid-Ebb |
Surface |
1.00 |
4:09:00 PM |
9.07 |
8.30 |
32.12 |
22.75 |
2.51 |
10.00 |
|
WSR04 |
20211225 |
Sunny |
Moderate |
Mid-Ebb |
Middle |
3.90 |
4:08:00 PM |
9.12 |
8.28 |
32.08 |
22.84 |
2.34 |
6.00 |
|
WSR04 |
20211225 |
Sunny |
Moderate |
Mid-Ebb |
Middle |
3.90 |
4:08:00 PM |
8.95 |
8.33 |
32.06 |
22.86 |
2.18 |
5.00 |
|
WSR04 |
20211225 |
Sunny |
Moderate |
Mid-Ebb |
Bottom |
6.80 |
4:07:00 PM |
8.94 |
8.26 |
32.13 |
22.88 |
2.18 |
8.00 |
|
WSR04 |
20211225 |
Sunny |
Moderate |
Mid-Ebb |
Bottom |
6.80 |
4:07:00 PM |
8.97 |
8.33 |
32.12 |
22.90 |
2.44 |
9.00 |
|
WSR04 |
20211228 |
Cloudy |
Moderate |
Mid-Ebb |
Surface |
1.00 |
6:54:00 PM |
8.61 |
8.37 |
32.87 |
21.93 |
3.20 |
14.00 |
|
WSR04 |
20211228 |
Cloudy |
Moderate |
Mid-Ebb |
Surface |
1.00 |
6:54:00 PM |
8.54 |
8.39 |
32.77 |
21.98 |
3.78 |
14.00 |
|
WSR04 |
20211228 |
Cloudy |
Moderate |
Mid-Ebb |
Middle |
3.45 |
6:53:00 PM |
8.52 |
8.39 |
32.92 |
22.02 |
2.90 |
22.00 |
|
Location |
Date (YYYYMMDD) |
Weather |
Sea Condition |
Tidal |
Water Level |
Depth (m) |
Time (hh:mm) |
DO (mg/L) |
pH |
Sal (ppt) |
Temp (¢XC) |
Turbidty (NTU) note 1 |
SS (mg/L) (Note 2) |
|
WSR04 |
20211228 |
Cloudy |
Moderate |
Mid-Ebb |
Middle |
3.45 |
6:53:00 PM |
8.46 |
8.40 |
32.77 |
21.96 |
3.28 |
21.00 |
|
WSR04 |
20211228 |
Cloudy |
Moderate |
Mid-Ebb |
Bottom |
5.90 |
6:52:00 PM |
8.55 |
8.41 |
32.88 |
21.96 |
3.30 |
15.00 |
|
WSR04 |
20211228 |
Cloudy |
Moderate |
Mid-Ebb |
Bottom |
5.90 |
6:52:00 PM |
8.56 |
8.38 |
32.79 |
21.88 |
2.93 |
15.00 |
|
WSR04 |
20211230 |
Sunny |
Moderate |
Mid-Ebb |
Surface |
1.00 |
10:54:00 AM |
8.64 |
8.34 |
31.50 |
22.32 |
3.31 |
8.00 |
|
WSR04 |
20211230 |
Sunny |
Moderate |
Mid-Ebb |
Surface |
1.00 |
10:54:00 AM |
8.76 |
8.36 |
31.65 |
22.12 |
2.81 |
10.00 |
|
WSR04 |
20211230 |
Sunny |
Moderate |
Mid-Ebb |
Middle |
3.35 |
10:53:00 AM |
8.75 |
8.36 |
31.52 |
22.11 |
2.65 |
8.00 |
|
WSR04 |
20211230 |
Sunny |
Moderate |
Mid-Ebb |
Middle |
3.35 |
10:53:00 AM |
8.49 |
8.35 |
31.77 |
22.27 |
2.80 |
7.00 |
|
WSR04 |
20211230 |
Sunny |
Moderate |
Mid-Ebb |
Bottom |
5.70 |
10:52:00 AM |
8.73 |
8.27 |
31.54 |
22.30 |
2.52 |
6.00 |
|
WSR04 |
20211230 |
Sunny |
Moderate |
Mid-Ebb |
Bottom |
5.70 |
10:52:00 AM |
8.72 |
8.27 |
31.62 |
22.10 |
2.91 |
8.00 |
|
WSR16 |
20211202 |
Sunny |
Moderate |
Mid-Ebb |
Surface |
1.00 |
9:07:00 AM |
9.00 |
8.28 |
32.63 |
25.55 |
3.31 |
7.00 |
|
WSR16 |
20211202 |
Sunny |
Moderate |
Mid-Ebb |
Surface |
1.00 |
9:07:00 AM |
8.89 |
8.22 |
32.61 |
25.54 |
2.85 |
5.00 |
|
WSR16 |
20211202 |
Sunny |
Moderate |
Mid-Ebb |
Middle |
7.60 |
9:06:00 AM |
8.89 |
8.30 |
32.54 |
25.65 |
2.92 |
7.00 |
|
WSR16 |
20211202 |
Sunny |
Moderate |
Mid-Ebb |
Middle |
7.60 |
9:06:00 AM |
8.81 |
8.20 |
32.61 |
25.47 |
3.36 |
6.00 |
|
WSR16 |
20211202 |
Sunny |
Moderate |
Mid-Ebb |
Bottom |
14.20 |
9:05:00 AM |
9.02 |
8.27 |
32.47 |
25.46 |
2.57 |
4.00 |
|
WSR16 |
20211202 |
Sunny |
Moderate |
Mid-Ebb |
Bottom |
14.20 |
9:05:00 AM |
8.93 |
8.20 |
32.63 |
25.58 |
2.29 |
5.00 |
|
WSR16 |
20211204 |
Sunny |
Moderate |
Mid-Ebb |
Surface |
1.00 |
10:44:00 AM |
9.11 |
8.18 |
31.65 |
24.96 |
2.81 |
5.00 |
|
WSR16 |
20211204 |
Sunny |
Moderate |
Mid-Ebb |
Surface |
1.00 |
10:44:00 AM |
9.18 |
8.18 |
31.57 |
25.03 |
2.90 |
4.00 |
|
WSR16 |
20211204 |
Sunny |
Moderate |
Mid-Ebb |
Middle |
8.15 |
10:43:00 AM |
9.10 |
8.17 |
31.66 |
25.10 |
2.58 |
3.00 |
|
WSR16 |
20211204 |
Sunny |
Moderate |
Mid-Ebb |
Middle |
8.15 |
10:43:00 AM |
9.16 |
8.23 |
31.58 |
25.04 |
2.75 |
4.00 |
|
WSR16 |
20211204 |
Sunny |
Moderate |
Mid-Ebb |
Bottom |
15.30 |
10:42:00 AM |
9.04 |
8.21 |
31.62 |
25.18 |
1.95 |
3.00 |
|
WSR16 |
20211204 |
Sunny |
Moderate |
Mid-Ebb |
Bottom |
15.30 |
10:42:00 AM |
9.03 |
8.18 |
31.59 |
25.06 |
1.73 |
3.00 |
|
WSR16 |
20211207 |
Sunny |
Moderate |
Mid-Ebb |
Surface |
1.00 |
1:08:00 PM |
9.00 |
8.15 |
30.84 |
25.79 |
3.84 |
9.00 |
|
WSR16 |
20211207 |
Sunny |
Moderate |
Mid-Ebb |
Surface |
1.00 |
1:08:00 PM |
9.13 |
8.26 |
30.62 |
25.84 |
3.93 |
9.00 |
|
WSR16 |
20211207 |
Sunny |
Moderate |
Mid-Ebb |
Middle |
7.60 |
1:07:00 PM |
8.94 |
8.19 |
30.77 |
25.81 |
3.28 |
7.00 |
|
WSR16 |
20211207 |
Sunny |
Moderate |
Mid-Ebb |
Middle |
7.60 |
1:07:00 PM |
9.02 |
8.18 |
30.72 |
25.81 |
3.23 |
6.00 |
|
WSR16 |
20211207 |
Sunny |
Moderate |
Mid-Ebb |
Bottom |
14.20 |
1:06:00 PM |
9.18 |
8.16 |
30.76 |
25.98 |
3.08 |
4.00 |
|
WSR16 |
20211207 |
Sunny |
Moderate |
Mid-Ebb |
Bottom |
14.20 |
1:06:00 PM |
9.08 |
8.20 |
30.76 |
25.77 |
3.43 |
5.00 |
|
Location |
Date (YYYYMMDD) |
Weather |
Sea Condition |
Tidal |
Water Level |
Depth (m) |
Time (hh:mm) |
DO (mg/L) |
pH |
Sal (ppt) |
Temp (¢XC) |
Turbidty (NTU) note 1 |
SS (mg/L) (Note 2) |
|
WSR16 |
20211209 |
Sunny |
Moderate |
Mid-Ebb |
Surface |
1.00 |
2:09:00 PM |
8.87 |
8.40 |
33.48 |
24.13 |
2.89 |
6.00 |
|
WSR16 |
20211209 |
Sunny |
Moderate |
Mid-Ebb |
Surface |
1.00 |
2:09:00 PM |
8.98 |
8.41 |
33.66 |
24.15 |
3.13 |
5.00 |
|
WSR16 |
20211209 |
Sunny |
Moderate |
Mid-Ebb |
Middle |
7.60 |
2:08:00 PM |
8.97 |
8.39 |
33.68 |
24.10 |
3.08 |
5.00 |
|
WSR16 |
20211209 |
Sunny |
Moderate |
Mid-Ebb |
Middle |
7.60 |
2:08:00 PM |
8.88 |
8.40 |
33.49 |
24.23 |
3.15 |
7.00 |
|
WSR16 |
20211209 |
Sunny |
Moderate |
Mid-Ebb |
Bottom |
14.20 |
2:07:00 PM |
8.89 |
8.36 |
33.47 |
24.08 |
2.28 |
5.00 |
|
WSR16 |
20211209 |
Sunny |
Moderate |
Mid-Ebb |
Bottom |
14.20 |
2:07:00 PM |
8.76 |
8.40 |
33.46 |
24.27 |
2.27 |
3.00 |
|
WSR16 |
20211211 |
Sunny |
Moderate |
Mid-Ebb |
Surface |
1.00 |
5:08:00 PM |
8.44 |
8.21 |
31.87 |
25.02 |
2.63 |
7.00 |
|
WSR16 |
20211211 |
Sunny |
Moderate |
Mid-Ebb |
Surface |
1.00 |
5:08:00 PM |
8.40 |
8.18 |
31.86 |
25.04 |
2.20 |
6.00 |
|
WSR16 |
20211211 |
Sunny |
Moderate |
Mid-Ebb |
Middle |
7.90 |
5:07:00 PM |
8.45 |
8.26 |
31.73 |
24.98 |
1.96 |
8.00 |
|
WSR16 |
20211211 |
Sunny |
Moderate |
Mid-Ebb |
Middle |
7.90 |
5:07:00 PM |
8.40 |
8.27 |
31.80 |
25.13 |
2.08 |
8.00 |
|
WSR16 |
20211211 |
Sunny |
Moderate |
Mid-Ebb |
Bottom |
14.80 |
5:06:00 PM |
8.33 |
8.24 |
31.89 |
25.06 |
1.69 |
15.00 |
|
WSR16 |
20211211 |
Sunny |
Moderate |
Mid-Ebb |
Bottom |
14.80 |
5:06:00 PM |
8.28 |
8.18 |
31.72 |
25.07 |
1.92 |
14.00 |
|
WSR16 |
20211214 |
Sunny |
Moderate |
Mid-Ebb |
Surface |
1.00 |
8:25:00 AM |
8.47 |
8.41 |
33.23 |
23.85 |
2.30 |
5.00 |
|
WSR16 |
20211214 |
Sunny |
Moderate |
Mid-Ebb |
Surface |
1.00 |
8:25:00 AM |
8.45 |
8.40 |
33.24 |
23.75 |
2.23 |
5.00 |
|
WSR16 |
20211214 |
Sunny |
Moderate |
Mid-Ebb |
Middle |
8.45 |
8:24:00 AM |
8.59 |
8.31 |
33.14 |
23.78 |
1.94 |
7.00 |
|
WSR16 |
20211214 |
Sunny |
Moderate |
Mid-Ebb |
Middle |
8.45 |
8:24:00 AM |
8.56 |
8.32 |
33.32 |
23.81 |
1.99 |
6.00 |
|
WSR16 |
20211214 |
Sunny |
Moderate |
Mid-Ebb |
Bottom |
15.90 |
8:23:00 AM |
8.39 |
8.37 |
33.04 |
23.86 |
2.38 |
5.00 |
|
WSR16 |
20211214 |
Sunny |
Moderate |
Mid-Ebb |
Bottom |
15.90 |
8:23:00 AM |
8.53 |
8.46 |
33.02 |
23.76 |
2.15 |
3.00 |
|
WSR16 |
20211216 |
Cloudy |
Moderate |
Mid-Ebb |
Surface |
1.00 |
9:09:00 AM |
8.21 |
8.12 |
31.04 |
23.74 |
2.81 |
3.00 |
|
WSR16 |
20211216 |
Cloudy |
Moderate |
Mid-Ebb |
Surface |
1.00 |
9:09:00 AM |
8.30 |
8.09 |
31.04 |
23.72 |
2.64 |
3.00 |
|
WSR16 |
20211216 |
Cloudy |
Moderate |
Mid-Ebb |
Middle |
7.75 |
9:08:00 AM |
8.26 |
8.14 |
31.10 |
23.74 |
2.99 |
5.00 |
|
WSR16 |
20211216 |
Cloudy |
Moderate |
Mid-Ebb |
Middle |
7.75 |
9:08:00 AM |
8.18 |
8.16 |
31.18 |
23.71 |
2.55 |
3.00 |
|
WSR16 |
20211216 |
Cloudy |
Moderate |
Mid-Ebb |
Bottom |
14.50 |
9:07:00 AM |
8.33 |
8.09 |
31.16 |
23.76 |
2.67 |
4.00 |
|
WSR16 |
20211216 |
Cloudy |
Moderate |
Mid-Ebb |
Bottom |
14.50 |
9:07:00 AM |
8.27 |
8.14 |
31.07 |
23.87 |
2.32 |
3.00 |
|
WSR16 |
20211218 |
Cloudy |
Moderate |
Mid-Ebb |
Surface |
1.00 |
10:13:00 AM |
8.48 |
8.26 |
32.36 |
23.48 |
3.04 |
7.00 |
|
WSR16 |
20211218 |
Cloudy |
Moderate |
Mid-Ebb |
Surface |
1.00 |
10:13:00 AM |
8.59 |
8.24 |
32.32 |
23.48 |
2.97 |
8.00 |
|
WSR16 |
20211218 |
Cloudy |
Moderate |
Mid-Ebb |
Middle |
8.25 |
10:12:00 AM |
8.32 |
8.25 |
32.22 |
23.61 |
2.73 |
5.00 |
|
Location |
Date (YYYYMMDD) |
Weather |
Sea Condition |
Tidal |
Water Level |
Depth (m) |
Time (hh:mm) |
DO (mg/L) |
pH |
Sal (ppt) |
Temp (¢XC) |
Turbidty (NTU) note 1 |
SS (mg/L) (Note 2) |
|
WSR16 |
20211218 |
Cloudy |
Moderate |
Mid-Ebb |
Middle |
8.25 |
10:12:00 AM |
8.20 |
8.28 |
32.34 |
23.48 |
3.15 |
4.00 |
|
WSR16 |
20211218 |
Cloudy |
Moderate |
Mid-Ebb |
Bottom |
15.50 |
10:11:00 AM |
8.46 |
8.30 |
32.15 |
23.49 |
2.71 |
2.50 |
|
WSR16 |
20211218 |
Cloudy |
Moderate |
Mid-Ebb |
Bottom |
15.50 |
10:11:00 AM |
8.32 |
8.31 |
32.40 |
23.56 |
2.34 |
2.50 |
|
WSR16 |
20211221 |
Cloudy |
Moderate |
Mid-Ebb |
Surface |
1.00 |
11:47:00 AM |
8.29 |
8.21 |
30.83 |
22.99 |
2.99 |
7.00 |
|
WSR16 |
20211221 |
Cloudy |
Moderate |
Mid-Ebb |
Surface |
1.00 |
11:47:00 AM |
8.41 |
8.26 |
30.88 |
22.96 |
3.34 |
7.00 |
|
WSR16 |
20211221 |
Cloudy |
Moderate |
Mid-Ebb |
Middle |
7.95 |
11:46:00 AM |
8.38 |
8.22 |
30.98 |
22.94 |
3.19 |
6.00 |
|
WSR16 |
20211221 |
Cloudy |
Moderate |
Mid-Ebb |
Middle |
7.95 |
11:46:00 AM |
8.32 |
8.24 |
30.81 |
22.94 |
3.28 |
5.00 |
|
WSR16 |
20211221 |
Cloudy |
Moderate |
Mid-Ebb |
Bottom |
14.90 |
11:45:00 AM |
8.29 |
8.24 |
30.89 |
23.04 |
2.83 |
5.00 |
|
WSR16 |
20211221 |
Cloudy |
Moderate |
Mid-Ebb |
Bottom |
14.90 |
11:45:00 AM |
8.32 |
8.20 |
30.83 |
22.97 |
3.14 |
3.00 |
|
WSR16 |
20211223 |
Cloudy |
Moderate |
Mid-Ebb |
Surface |
1.00 |
1:08:00 PM |
8.58 |
8.41 |
32.91 |
21.97 |
2.77 |
5.00 |
|
WSR16 |
20211223 |
Cloudy |
Moderate |
Mid-Ebb |
Surface |
1.00 |
1:08:00 PM |
8.46 |
8.39 |
32.95 |
21.84 |
3.11 |
7.00 |
|
WSR16 |
20211223 |
Cloudy |
Moderate |
Mid-Ebb |
Middle |
7.90 |
1:07:00 PM |
8.52 |
8.38 |
32.96 |
21.89 |
2.49 |
7.00 |
|
WSR16 |
20211223 |
Cloudy |
Moderate |
Mid-Ebb |
Middle |
7.90 |
1:07:00 PM |
8.66 |
8.35 |
32.98 |
22.04 |
2.16 |
7.00 |
|
WSR16 |
20211223 |
Cloudy |
Moderate |
Mid-Ebb |
Bottom |
14.80 |
1:06:00 PM |
8.66 |
8.38 |
32.95 |
22.01 |
2.47 |
8.00 |
|
WSR16 |
20211223 |
Cloudy |
Moderate |
Mid-Ebb |
Bottom |
14.80 |
1:06:00 PM |
8.66 |
8.35 |
32.92 |
22.01 |
2.17 |
6.00 |
|
WSR16 |
20211225 |
Sunny |
Moderate |
Mid-Ebb |
Surface |
1.00 |
3:09:00 PM |
8.51 |
8.22 |
31.47 |
22.00 |
2.69 |
7.00 |
|
WSR16 |
20211225 |
Sunny |
Moderate |
Mid-Ebb |
Surface |
1.00 |
3:09:00 PM |
8.68 |
8.26 |
31.41 |
22.14 |
2.39 |
9.00 |
|
WSR16 |
20211225 |
Sunny |
Moderate |
Mid-Ebb |
Middle |
7.85 |
3:08:00 PM |
8.65 |
8.22 |
31.41 |
22.01 |
2.29 |
12.00 |
|
WSR16 |
20211225 |
Sunny |
Moderate |
Mid-Ebb |
Middle |
7.85 |
3:08:00 PM |
8.58 |
8.27 |
31.40 |
22.17 |
2.22 |
8.00 |
|
WSR16 |
20211225 |
Sunny |
Moderate |
Mid-Ebb |
Bottom |
14.70 |
3:07:00 PM |
8.53 |
8.24 |
31.47 |
22.01 |
1.57 |
3.00 |
|
WSR16 |
20211225 |
Sunny |
Moderate |
Mid-Ebb |
Bottom |
14.70 |
3:07:00 PM |
8.57 |
8.20 |
31.54 |
22.20 |
1.67 |
3.00 |
|
WSR16 |
20211228 |
Cloudy |
Moderate |
Mid-Ebb |
Surface |
1.00 |
5:55:00 PM |
8.09 |
8.41 |
32.98 |
22.34 |
2.95 |
15.00 |
|
WSR16 |
20211228 |
Cloudy |
Moderate |
Mid-Ebb |
Surface |
1.00 |
5:55:00 PM |
8.09 |
8.45 |
33.14 |
22.41 |
2.91 |
15.00 |
|
WSR16 |
20211228 |
Cloudy |
Moderate |
Mid-Ebb |
Middle |
8.00 |
5:54:00 PM |
8.05 |
8.41 |
33.04 |
22.43 |
2.72 |
29.00 |
|
WSR16 |
20211228 |
Cloudy |
Moderate |
Mid-Ebb |
Middle |
8.00 |
5:54:00 PM |
8.21 |
8.47 |
33.09 |
22.36 |
2.69 |
29.00 |
|
WSR16 |
20211228 |
Cloudy |
Moderate |
Mid-Ebb |
Bottom |
15.00 |
5:53:00 PM |
8.12 |
8.47 |
33.14 |
22.46 |
2.64 |
2.50 |
|
WSR16 |
20211228 |
Cloudy |
Moderate |
Mid-Ebb |
Bottom |
15.00 |
5:53:00 PM |
8.24 |
8.47 |
32.96 |
22.48 |
2.94 |
4.00 |
|
Location |
Date (YYYYMMDD) |
Weather |
Sea Condition |
Tidal |
Water Level |
Depth (m) |
Time (hh:mm) |
DO (mg/L) |
pH |
Sal (ppt) |
Temp (¢XC) |
Turbidty (NTU) note 1 |
SS (mg/L) (Note 2) |
|
WSR16 |
20211230 |
Sunny |
Moderate |
Mid-Ebb |
Surface |
1.00 |
9:56:00 AM |
8.50 |
8.28 |
32.07 |
22.17 |
3.79 |
7.00 |
|
WSR16 |
20211230 |
Sunny |
Moderate |
Mid-Ebb |
Surface |
1.00 |
9:56:00 AM |
8.62 |
8.29 |
31.99 |
22.25 |
3.94 |
9.00 |
|
WSR16 |
20211230 |
Sunny |
Moderate |
Mid-Ebb |
Middle |
7.75 |
9:55:00 AM |
8.59 |
8.30 |
32.03 |
22.29 |
4.10 |
7.00 |
|
WSR16 |
20211230 |
Sunny |
Moderate |
Mid-Ebb |
Middle |
7.75 |
9:55:00 AM |
8.49 |
8.25 |
31.97 |
22.28 |
3.55 |
8.00 |
|
WSR16 |
20211230 |
Sunny |
Moderate |
Mid-Ebb |
Bottom |
14.50 |
9:54:00 AM |
8.67 |
8.31 |
32.07 |
22.25 |
3.92 |
5.00 |
|
WSR16 |
20211230 |
Sunny |
Moderate |
Mid-Ebb |
Bottom |
14.50 |
9:54:00 AM |
8.60 |
8.27 |
32.19 |
22.18 |
4.09 |
6.00 |
|
WSR33 |
20211202 |
Sunny |
Moderate |
Mid-Ebb |
Surface |
1.00 |
9:53:00 AM |
8.63 |
8.33 |
32.21 |
25.79 |
3.42 |
5.00 |
|
WSR33 |
20211202 |
Sunny |
Moderate |
Mid-Ebb |
Surface |
1.00 |
9:53:00 AM |
8.77 |
8.33 |
32.18 |
25.82 |
2.99 |
4.00 |
|
WSR33 |
20211202 |
Sunny |
Moderate |
Mid-Ebb |
Middle |
3.50 |
9:52:00 AM |
8.59 |
8.42 |
32.26 |
25.97 |
2.68 |
4.00 |
|
WSR33 |
20211202 |
Sunny |
Moderate |
Mid-Ebb |
Middle |
3.50 |
9:52:00 AM |
8.55 |
8.31 |
32.36 |
25.79 |
3.16 |
4.00 |
|
WSR33 |
20211202 |
Sunny |
Moderate |
Mid-Ebb |
Bottom |
6.00 |
9:51:00 AM |
8.60 |
8.38 |
32.32 |
25.92 |
2.59 |
4.00 |
|
WSR33 |
20211202 |
Sunny |
Moderate |
Mid-Ebb |
Bottom |
6.00 |
9:51:00 AM |
8.57 |
8.42 |
32.36 |
25.85 |
2.58 |
3.00 |
|
WSR33 |
20211204 |
Sunny |
Moderate |
Mid-Ebb |
Surface |
1.00 |
11:33:00 AM |
8.15 |
8.19 |
30.71 |
25.13 |
2.81 |
7.00 |
|
WSR33 |
20211204 |
Sunny |
Moderate |
Mid-Ebb |
Surface |
1.00 |
11:33:00 AM |
8.85 |
8.42 |
31.67 |
25.19 |
2.80 |
6.00 |
|
WSR33 |
20211204 |
Sunny |
Moderate |
Mid-Ebb |
Middle |
3.60 |
11:32:00 AM |
8.87 |
8.45 |
31.71 |
25.00 |
2.58 |
5.00 |
|
WSR33 |
20211204 |
Sunny |
Moderate |
Mid-Ebb |
Middle |
3.60 |
11:32:00 AM |
8.81 |
8.39 |
31.74 |
25.07 |
2.27 |
5.00 |
|
WSR33 |
20211204 |
Sunny |
Moderate |
Mid-Ebb |
Bottom |
6.20 |
11:31:00 AM |
8.76 |
8.41 |
31.69 |
25.04 |
1.77 |
7.00 |
|
WSR33 |
20211204 |
Sunny |
Moderate |
Mid-Ebb |
Bottom |
6.20 |
11:31:00 AM |
8.70 |
8.41 |
30.71 |
25.19 |
2.08 |
9.00 |
|
WSR33 |
20211207 |
Sunny |
Moderate |
Mid-Ebb |
Surface |
1.00 |
1:51:00 PM |
8.45 |
8.28 |
30.60 |
26.11 |
3.21 |
7.00 |
|
WSR33 |
20211207 |
Sunny |
Moderate |
Mid-Ebb |
Surface |
1.00 |
1:51:00 PM |
8.23 |
8.16 |
30.52 |
25.93 |
2.96 |
7.00 |
|
WSR33 |
20211207 |
Sunny |
Moderate |
Mid-Ebb |
Middle |
3.70 |
1:50:00 PM |
8.31 |
8.22 |
30.57 |
26.06 |
3.04 |
11.00 |
|
WSR33 |
20211207 |
Sunny |
Moderate |
Mid-Ebb |
Middle |
3.70 |
1:50:00 PM |
8.43 |
8.27 |
30.66 |
26.06 |
3.01 |
9.00 |
|
WSR33 |
20211207 |
Sunny |
Moderate |
Mid-Ebb |
Bottom |
6.40 |
1:49:00 PM |
8.33 |
8.27 |
30.55 |
26.07 |
2.27 |
11.00 |
|
WSR33 |
20211207 |
Sunny |
Moderate |
Mid-Ebb |
Bottom |
6.40 |
1:49:00 PM |
8.44 |
8.15 |
30.53 |
26.12 |
2.47 |
13.00 |
|
WSR33 |
20211209 |
Sunny |
Moderate |
Mid-Ebb |
Surface |
1.00 |
2:55:00 PM |
9.38 |
8.36 |
33.24 |
23.93 |
2.75 |
26.00 |
|
WSR33 |
20211209 |
Sunny |
Moderate |
Mid-Ebb |
Surface |
1.00 |
2:55:00 PM |
9.37 |
8.31 |
32.98 |
23.92 |
2.95 |
25.00 |
|
WSR33 |
20211209 |
Sunny |
Moderate |
Mid-Ebb |
Middle |
3.60 |
2:54:00 PM |
9.22 |
8.38 |
33.13 |
23.96 |
2.91 |
16.00 |
|
Location |
Date (YYYYMMDD) |
Weather |
Sea Condition |
Tidal |
Water Level |
Depth (m) |
Time (hh:mm) |
DO (mg/L) |
pH |
Sal (ppt) |
Temp (¢XC) |
Turbidty (NTU) note 1 |
SS (mg/L) (Note 2) |
|
WSR33 |
20211209 |
Sunny |
Moderate |
Mid-Ebb |
Middle |
3.60 |
2:54:00 PM |
9.24 |
8.32 |
33.08 |
24.06 |
2.62 |
19.00 |
|
WSR33 |
20211209 |
Sunny |
Moderate |
Mid-Ebb |
Bottom |
6.20 |
2:53:00 PM |
9.19 |
8.38 |
33.17 |
23.95 |
2.14 |
3.00 |
|
WSR33 |
20211209 |
Sunny |
Moderate |
Mid-Ebb |
Bottom |
6.20 |
2:53:00 PM |
9.15 |
8.40 |
33.16 |
23.94 |
2.12 |
4.00 |
|
WSR33 |
20211211 |
Sunny |
Moderate |
Mid-Ebb |
Surface |
1.00 |
5:50:00 PM |
8.57 |
8.15 |
31.85 |
25.28 |
2.74 |
17.00 |
|
WSR33 |
20211211 |
Sunny |
Moderate |
Mid-Ebb |
Surface |
1.00 |
5:50:00 PM |
8.52 |
8.12 |
31.98 |
25.27 |
2.65 |
13.00 |
|
WSR33 |
20211211 |
Sunny |
Moderate |
Mid-Ebb |
Middle |
3.85 |
5:49:00 PM |
8.74 |
8.17 |
31.98 |
25.29 |
2.82 |
10.00 |
|
WSR33 |
20211211 |
Sunny |
Moderate |
Mid-Ebb |
Middle |
3.85 |
5:49:00 PM |
8.73 |
8.10 |
31.90 |
25.32 |
2.36 |
13.00 |
|
WSR33 |
20211211 |
Sunny |
Moderate |
Mid-Ebb |
Bottom |
6.70 |
5:48:00 PM |
8.53 |
8.14 |
31.97 |
25.38 |
2.14 |
15.00 |
|
WSR33 |
20211211 |
Sunny |
Moderate |
Mid-Ebb |
Bottom |
6.70 |
5:48:00 PM |
8.49 |
8.10 |
31.78 |
25.36 |
2.40 |
14.00 |
|
WSR33 |
20211214 |
Sunny |
Moderate |
Mid-Ebb |
Surface |
1.00 |
9:05:00 AM |
8.77 |
8.43 |
32.65 |
23.56 |
2.58 |
6.00 |
|
WSR33 |
20211214 |
Sunny |
Moderate |
Mid-Ebb |
Surface |
1.00 |
9:05:00 AM |
8.76 |
8.30 |
32.66 |
23.51 |
2.71 |
7.00 |
|
WSR33 |
20211214 |
Sunny |
Moderate |
Mid-Ebb |
Middle |
3.70 |
9:04:00 AM |
8.55 |
8.41 |
32.43 |
23.60 |
2.57 |
3.00 |
|
WSR33 |
20211214 |
Sunny |
Moderate |
Mid-Ebb |
Middle |
3.70 |
9:04:00 AM |
8.89 |
8.30 |
32.50 |
23.54 |
2.36 |
3.00 |
|
WSR33 |
20211214 |
Sunny |
Moderate |
Mid-Ebb |
Bottom |
6.40 |
9:03:00 AM |
8.74 |
8.32 |
32.39 |
23.43 |
2.45 |
3.00 |
|
WSR33 |
20211214 |
Sunny |
Moderate |
Mid-Ebb |
Bottom |
6.40 |
9:03:00 AM |
8.87 |
8.36 |
32.56 |
23.59 |
2.34 |
4.00 |
|
WSR33 |
20211216 |
Cloudy |
Moderate |
Mid-Ebb |
Surface |
1.00 |
9:56:00 AM |
8.02 |
8.16 |
31.87 |
23.63 |
3.56 |
3.00 |
|
WSR33 |
20211216 |
Cloudy |
Moderate |
Mid-Ebb |
Surface |
1.00 |
9:56:00 AM |
8.06 |
8.15 |
31.69 |
23.66 |
3.75 |
3.00 |
|
WSR33 |
20211216 |
Cloudy |
Moderate |
Mid-Ebb |
Middle |
3.60 |
9:55:00 AM |
8.03 |
8.16 |
31.68 |
23.51 |
3.02 |
5.00 |
|
WSR33 |
20211216 |
Cloudy |
Moderate |
Mid-Ebb |
Middle |
3.60 |
9:55:00 AM |
8.14 |
8.11 |
31.70 |
23.49 |
2.89 |
4.00 |
|
WSR33 |
20211216 |
Cloudy |
Moderate |
Mid-Ebb |
Bottom |
6.20 |
9:54:00 AM |
8.00 |
8.18 |
31.68 |
23.63 |
2.68 |
4.00 |
|
WSR33 |
20211216 |
Cloudy |
Moderate |
Mid-Ebb |
Bottom |
6.20 |
9:54:00 AM |
8.04 |
8.17 |
31.67 |
23.49 |
2.86 |
3.00 |
|
WSR33 |
20211218 |
Cloudy |
Moderate |
Mid-Ebb |
Surface |
1.00 |
10:59:00 AM |
8.30 |
8.31 |
32.70 |
23.03 |
2.60 |
4.00 |
|
WSR33 |
20211218 |
Cloudy |
Moderate |
Mid-Ebb |
Surface |
1.00 |
10:59:00 AM |
8.45 |
8.34 |
32.76 |
23.15 |
2.87 |
4.00 |
|
WSR33 |
20211218 |
Cloudy |
Moderate |
Mid-Ebb |
Middle |
3.85 |
10:58:00 AM |
8.46 |
8.33 |
32.76 |
22.99 |
2.39 |
4.00 |
|
WSR33 |
20211218 |
Cloudy |
Moderate |
Mid-Ebb |
Middle |
3.85 |
10:58:00 AM |
8.17 |
8.33 |
32.95 |
23.11 |
2.75 |
4.00 |
|
WSR33 |
20211218 |
Cloudy |
Moderate |
Mid-Ebb |
Bottom |
6.70 |
10:57:00 AM |
8.66 |
8.32 |
32.76 |
23.00 |
2.39 |
10.00 |
|
WSR33 |
20211218 |
Cloudy |
Moderate |
Mid-Ebb |
Bottom |
6.70 |
10:57:00 AM |
8.18 |
8.30 |
32.92 |
23.10 |
2.24 |
11.00 |
|
Location |
Date (YYYYMMDD) |
Weather |
Sea Condition |
Tidal |
Water Level |
Depth (m) |
Time (hh:mm) |
DO (mg/L) |
pH |
Sal (ppt) |
Temp (¢XC) |
Turbidty (NTU) note 1 |
SS (mg/L) (Note 2) |
|
WSR33 |
20211221 |
Cloudy |
Moderate |
Mid-Ebb |
Surface |
1.00 |
12:34:00 PM |
8.53 |
8.34 |
30.94 |
23.10 |
3.29 |
6.00 |
|
WSR33 |
20211221 |
Cloudy |
Moderate |
Mid-Ebb |
Surface |
1.00 |
12:34:00 PM |
8.71 |
8.38 |
30.93 |
23.01 |
2.91 |
5.00 |
|
WSR33 |
20211221 |
Cloudy |
Moderate |
Mid-Ebb |
Middle |
3.80 |
12:33:00 PM |
8.67 |
8.38 |
30.85 |
23.10 |
2.87 |
9.00 |
|
WSR33 |
20211221 |
Cloudy |
Moderate |
Mid-Ebb |
Middle |
3.80 |
12:33:00 PM |
8.64 |
8.38 |
30.88 |
23.09 |
2.92 |
8.00 |
|
WSR33 |
20211221 |
Cloudy |
Moderate |
Mid-Ebb |
Bottom |
6.60 |
12:32:00 PM |
8.58 |
8.34 |
30.89 |
23.07 |
2.26 |
6.00 |
|
WSR33 |
20211221 |
Cloudy |
Moderate |
Mid-Ebb |
Bottom |
6.60 |
12:32:00 PM |
8.67 |
8.38 |
30.92 |
23.07 |
2.59 |
6.00 |
|
WSR33 |
20211223 |
Cloudy |
Moderate |
Mid-Ebb |
Surface |
1.00 |
1:53:00 PM |
8.28 |
8.37 |
33.52 |
22.23 |
2.84 |
9.00 |
|
WSR33 |
20211223 |
Cloudy |
Moderate |
Mid-Ebb |
Surface |
1.00 |
1:53:00 PM |
8.44 |
8.35 |
33.47 |
21.96 |
2.38 |
8.00 |
|
WSR33 |
20211223 |
Cloudy |
Moderate |
Mid-Ebb |
Middle |
3.60 |
1:52:00 PM |
8.30 |
8.34 |
33.43 |
22.03 |
2.04 |
9.00 |
|
WSR33 |
20211223 |
Cloudy |
Moderate |
Mid-Ebb |
Middle |
3.60 |
1:52:00 PM |
8.10 |
8.39 |
33.53 |
21.97 |
2.28 |
7.00 |
|
WSR33 |
20211223 |
Cloudy |
Moderate |
Mid-Ebb |
Bottom |
6.20 |
1:51:00 PM |
8.26 |
8.35 |
33.51 |
21.96 |
2.89 |
9.00 |
|
WSR33 |
20211223 |
Cloudy |
Moderate |
Mid-Ebb |
Bottom |
6.20 |
1:51:00 PM |
8.38 |
8.34 |
33.47 |
22.08 |
2.44 |
10.00 |
|
WSR33 |
20211225 |
Sunny |
Moderate |
Mid-Ebb |
Surface |
1.00 |
3:55:00 PM |
8.98 |
8.40 |
32.16 |
22.13 |
2.09 |
7.00 |
|
WSR33 |
20211225 |
Sunny |
Moderate |
Mid-Ebb |
Surface |
1.00 |
3:55:00 PM |
9.02 |
8.44 |
32.33 |
22.06 |
2.05 |
8.00 |
|
WSR33 |
20211225 |
Sunny |
Moderate |
Mid-Ebb |
Middle |
3.50 |
3:54:00 PM |
9.07 |
8.43 |
32.20 |
22.19 |
1.68 |
4.00 |
|
WSR33 |
20211225 |
Sunny |
Moderate |
Mid-Ebb |
Middle |
3.50 |
3:54:00 PM |
9.04 |
8.46 |
32.27 |
22.10 |
1.92 |
3.00 |
|
WSR33 |
20211225 |
Sunny |
Moderate |
Mid-Ebb |
Bottom |
6.00 |
3:53:00 PM |
8.99 |
8.41 |
32.21 |
22.15 |
1.96 |
5.00 |
|
WSR33 |
20211225 |
Sunny |
Moderate |
Mid-Ebb |
Bottom |
6.00 |
3:53:00 PM |
9.02 |
8.46 |
32.31 |
22.06 |
1.96 |
8.00 |
|
WSR33 |
20211228 |
Cloudy |
Moderate |
Mid-Ebb |
Surface |
1.00 |
6:41:00 PM |
8.21 |
8.27 |
32.47 |
21.85 |
3.72 |
3.00 |
|
WSR33 |
20211228 |
Cloudy |
Moderate |
Mid-Ebb |
Surface |
1.00 |
6:41:00 PM |
8.24 |
8.29 |
32.49 |
21.96 |
3.37 |
5.00 |
|
WSR33 |
20211228 |
Cloudy |
Moderate |
Mid-Ebb |
Middle |
3.50 |
6:40:00 PM |
8.22 |
8.32 |
32.43 |
21.87 |
3.92 |
4.00 |
|
WSR33 |
20211228 |
Cloudy |
Moderate |
Mid-Ebb |
Middle |
3.50 |
6:40:00 PM |
8.09 |
8.24 |
32.47 |
21.83 |
3.98 |
7.00 |
|
WSR33 |
20211228 |
Cloudy |
Moderate |
Mid-Ebb |
Bottom |
6.00 |
6:39:00 PM |
8.27 |
8.31 |
32.38 |
21.80 |
4.01 |
7.00 |
|
WSR33 |
20211228 |
Cloudy |
Moderate |
Mid-Ebb |
Bottom |
6.00 |
6:39:00 PM |
8.21 |
8.31 |
32.51 |
21.79 |
4.01 |
5.00 |
|
WSR33 |
20211230 |
Sunny |
Moderate |
Mid-Ebb |
Surface |
1.00 |
10:42:00 AM |
8.66 |
8.35 |
32.49 |
22.17 |
3.19 |
7.00 |
|
WSR33 |
20211230 |
Sunny |
Moderate |
Mid-Ebb |
Surface |
1.00 |
10:42:00 AM |
8.57 |
8.38 |
32.67 |
22.31 |
2.85 |
7.00 |
|
WSR33 |
20211230 |
Sunny |
Moderate |
Mid-Ebb |
Middle |
3.60 |
10:41:00 AM |
8.63 |
8.38 |
32.73 |
22.31 |
2.74 |
5.00 |
|
Location |
Date (YYYYMMDD) |
Weather |
Sea Condition |
Tidal |
Water Level |
Depth (m) |
Time (hh:mm) |
DO (mg/L) |
pH |
Sal (ppt) |
Temp (¢XC) |
Turbidty (NTU) note 1 |
SS (mg/L) (Note 2) |
|
WSR33 |
20211230 |
Sunny |
Moderate |
Mid-Ebb |
Middle |
3.60 |
10:41:00 AM |
8.41 |
8.34 |
32.57 |
22.14 |
2.83 |
6.00 |
|
WSR33 |
20211230 |
Sunny |
Moderate |
Mid-Ebb |
Bottom |
6.20 |
10:40:00 AM |
8.71 |
8.38 |
32.64 |
22.37 |
2.91 |
6.00 |
|
WSR33 |
20211230 |
Sunny |
Moderate |
Mid-Ebb |
Bottom |
6.20 |
10:40:00 AM |
8.52 |
8.33 |
32.62 |
22.33 |
2.49 |
8.00 |
|
WSR36 |
20211202 |
Sunny |
Moderate |
Mid-Ebb |
Surface |
1.00 |
9:39:00 AM |
9.11 |
8.31 |
32.67 |
26.05 |
3.08 |
3.00 |
|
WSR36 |
20211202 |
Sunny |
Moderate |
Mid-Ebb |
Surface |
1.00 |
9:39:00 AM |
9.01 |
8.43 |
32.67 |
25.94 |
2.90 |
2.50 |
|
WSR36 |
20211202 |
Sunny |
Moderate |
Mid-Ebb |
Middle |
3.85 |
9:39:00 AM |
9.18 |
8.37 |
32.71 |
25.97 |
2.68 |
4.00 |
|
WSR36 |
20211202 |
Sunny |
Moderate |
Mid-Ebb |
Middle |
3.85 |
9:39:00 AM |
9.09 |
8.36 |
32.79 |
25.98 |
2.98 |
4.00 |
|
WSR36 |
20211202 |
Sunny |
Moderate |
Mid-Ebb |
Bottom |
6.70 |
9:38:00 AM |
9.00 |
8.35 |
32.86 |
26.07 |
2.25 |
3.00 |
|
WSR36 |
20211202 |
Sunny |
Moderate |
Mid-Ebb |
Bottom |
6.70 |
9:38:00 AM |
9.07 |
8.40 |
32.75 |
25.96 |
2.13 |
5.00 |
|
WSR36 |
20211204 |
Sunny |
Moderate |
Mid-Ebb |
Surface |
1.00 |
11:19:00 AM |
8.65 |
8.16 |
30.19 |
24.97 |
2.86 |
8.00 |
|
WSR36 |
20211204 |
Sunny |
Moderate |
Mid-Ebb |
Surface |
1.00 |
11:19:00 AM |
9.19 |
8.24 |
31.24 |
24.85 |
2.40 |
9.00 |
|
WSR36 |
20211204 |
Sunny |
Moderate |
Mid-Ebb |
Middle |
3.55 |
11:19:00 AM |
9.17 |
8.23 |
31.25 |
24.84 |
2.78 |
5.00 |
|
WSR36 |
20211204 |
Sunny |
Moderate |
Mid-Ebb |
Middle |
3.55 |
11:19:00 AM |
9.12 |
8.17 |
31.22 |
24.89 |
2.39 |
4.00 |
|
WSR36 |
20211204 |
Sunny |
Moderate |
Mid-Ebb |
Bottom |
6.10 |
11:18:00 AM |
9.21 |
8.19 |
31.14 |
24.92 |
2.51 |
5.00 |
|
WSR36 |
20211204 |
Sunny |
Moderate |
Mid-Ebb |
Bottom |
6.10 |
11:18:00 AM |
8.49 |
7.91 |
30.19 |
24.90 |
2.45 |
5.00 |
|
WSR36 |
20211207 |
Sunny |
Moderate |
Mid-Ebb |
Surface |
1.00 |
1:38:00 PM |
8.36 |
8.36 |
30.61 |
25.89 |
3.06 |
8.00 |
|
WSR36 |
20211207 |
Sunny |
Moderate |
Mid-Ebb |
Surface |
1.00 |
1:38:00 PM |
8.50 |
8.35 |
30.50 |
25.94 |
3.20 |
9.00 |
|
WSR36 |
20211207 |
Sunny |
Moderate |
Mid-Ebb |
Middle |
3.70 |
1:38:00 PM |
8.35 |
8.36 |
30.59 |
26.00 |
3.08 |
12.00 |
|
WSR36 |
20211207 |
Sunny |
Moderate |
Mid-Ebb |
Middle |
3.70 |
1:38:00 PM |
8.45 |
8.39 |
30.73 |
25.94 |
3.49 |
15.00 |
|
WSR36 |
20211207 |
Sunny |
Moderate |
Mid-Ebb |
Bottom |
6.40 |
1:37:00 PM |
8.60 |
8.39 |
30.49 |
25.79 |
2.59 |
27.00 |
|
WSR36 |
20211207 |
Sunny |
Moderate |
Mid-Ebb |
Bottom |
6.40 |
1:37:00 PM |
8.45 |
8.38 |
30.54 |
25.79 |
3.04 |
26.00 |
|
WSR36 |
20211209 |
Sunny |
Moderate |
Mid-Ebb |
Surface |
1.00 |
2:43:00 PM |
8.83 |
8.46 |
32.66 |
24.57 |
2.99 |
26.00 |
|
WSR36 |
20211209 |
Sunny |
Moderate |
Mid-Ebb |
Surface |
1.00 |
2:43:00 PM |
9.01 |
8.35 |
32.61 |
24.43 |
2.59 |
25.00 |
|
WSR36 |
20211209 |
Sunny |
Moderate |
Mid-Ebb |
Middle |
3.05 |
2:43:00 PM |
8.98 |
8.43 |
32.80 |
24.46 |
2.27 |
25.00 |
|
WSR36 |
20211209 |
Sunny |
Moderate |
Mid-Ebb |
Middle |
3.05 |
2:43:00 PM |
8.92 |
8.40 |
32.56 |
24.45 |
2.53 |
26.00 |
|
WSR36 |
20211209 |
Sunny |
Moderate |
Mid-Ebb |
Bottom |
5.10 |
2:42:00 PM |
8.95 |
8.42 |
32.55 |
24.54 |
2.14 |
10.00 |
|
WSR36 |
20211209 |
Sunny |
Moderate |
Mid-Ebb |
Bottom |
5.10 |
2:42:00 PM |
8.84 |
8.42 |
32.80 |
24.41 |
1.87 |
14.00 |
|
Location |
Date (YYYYMMDD) |
Weather |
Sea Condition |
Tidal |
Water Level |
Depth (m) |
Time (hh:mm) |
DO (mg/L) |
pH |
Sal (ppt) |
Temp (¢XC) |
Turbidty (NTU) note 1 |
SS (mg/L) (Note 2) |
|
WSR36 |
20211211 |
Sunny |
Moderate |
Mid-Ebb |
Surface |
1.00 |
5:37:00 PM |
8.51 |
8.12 |
32.01 |
24.98 |
3.43 |
16.00 |
|
WSR36 |
20211211 |
Sunny |
Moderate |
Mid-Ebb |
Surface |
1.00 |
5:37:00 PM |
8.36 |
8.11 |
31.80 |
25.07 |
3.64 |
13.00 |
|
WSR36 |
20211211 |
Sunny |
Moderate |
Mid-Ebb |
Middle |
3.30 |
5:37:00 PM |
8.49 |
8.16 |
31.82 |
25.04 |
3.74 |
26.00 |
|
WSR36 |
20211211 |
Sunny |
Moderate |
Mid-Ebb |
Middle |
3.30 |
5:37:00 PM |
8.42 |
8.14 |
31.84 |
24.90 |
3.55 |
28.00 |
|
WSR36 |
20211211 |
Sunny |
Moderate |
Mid-Ebb |
Bottom |
5.60 |
5:36:00 PM |
8.41 |
8.14 |
31.91 |
25.02 |
3.48 |
23.00 |
|
WSR36 |
20211211 |
Sunny |
Moderate |
Mid-Ebb |
Bottom |
5.60 |
5:36:00 PM |
8.35 |
8.17 |
31.84 |
24.88 |
2.98 |
26.00 |
|
WSR36 |
20211214 |
Sunny |
Moderate |
Mid-Ebb |
Surface |
1.00 |
8:55:00 AM |
9.16 |
8.27 |
32.37 |
23.32 |
2.86 |
6.00 |
|
WSR36 |
20211214 |
Sunny |
Moderate |
Mid-Ebb |
Surface |
1.00 |
8:55:00 AM |
9.11 |
8.26 |
32.37 |
23.47 |
2.82 |
6.00 |
|
WSR36 |
20211214 |
Sunny |
Moderate |
Mid-Ebb |
Middle |
3.30 |
8:55:00 AM |
9.49 |
8.25 |
32.55 |
23.47 |
2.41 |
8.00 |
|
WSR36 |
20211214 |
Sunny |
Moderate |
Mid-Ebb |
Middle |
3.30 |
8:55:00 AM |
9.33 |
8.26 |
32.55 |
23.41 |
2.20 |
6.00 |
|
WSR36 |
20211214 |
Sunny |
Moderate |
Mid-Ebb |
Bottom |
5.60 |
8:54:00 AM |
9.17 |
8.34 |
32.48 |
23.32 |
2.08 |
4.00 |
|
WSR36 |
20211214 |
Sunny |
Moderate |
Mid-Ebb |
Bottom |
5.60 |
8:54:00 AM |
9.49 |
8.19 |
32.29 |
23.35 |
1.76 |
4.00 |
|
WSR36 |
20211216 |
Cloudy |
Moderate |
Mid-Ebb |
Surface |
1.00 |
9:42:00 AM |
8.22 |
8.26 |
30.82 |
23.71 |
3.23 |
2.50 |
|
WSR36 |
20211216 |
Cloudy |
Moderate |
Mid-Ebb |
Surface |
1.00 |
9:42:00 AM |
8.17 |
8.28 |
30.86 |
23.85 |
3.37 |
3.00 |
|
WSR36 |
20211216 |
Cloudy |
Moderate |
Mid-Ebb |
Middle |
3.80 |
9:42:00 AM |
8.30 |
8.28 |
30.85 |
23.83 |
3.02 |
5.00 |
|
WSR36 |
20211216 |
Cloudy |
Moderate |
Mid-Ebb |
Middle |
3.80 |
9:42:00 AM |
8.13 |
8.30 |
30.82 |
23.87 |
2.67 |
4.00 |
|
WSR36 |
20211216 |
Cloudy |
Moderate |
Mid-Ebb |
Bottom |
6.60 |
9:41:00 AM |
8.29 |
8.25 |
30.82 |
23.85 |
2.82 |
5.00 |
|
WSR36 |
20211216 |
Cloudy |
Moderate |
Mid-Ebb |
Bottom |
6.60 |
9:41:00 AM |
8.26 |
8.28 |
30.93 |
23.76 |
2.65 |
6.00 |
|
WSR36 |
20211218 |
Cloudy |
Moderate |
Mid-Ebb |
Surface |
1.00 |
10:44:00 AM |
8.39 |
8.38 |
33.11 |
23.73 |
2.22 |
4.00 |
|
WSR36 |
20211218 |
Cloudy |
Moderate |
Mid-Ebb |
Surface |
1.00 |
10:44:00 AM |
8.21 |
8.37 |
33.03 |
23.86 |
2.30 |
4.00 |
|
WSR36 |
20211218 |
Cloudy |
Moderate |
Mid-Ebb |
Middle |
3.60 |
10:44:00 AM |
8.26 |
8.36 |
33.00 |
23.87 |
2.56 |
3.00 |
|
WSR36 |
20211218 |
Cloudy |
Moderate |
Mid-Ebb |
Middle |
3.60 |
10:44:00 AM |
8.39 |
8.43 |
33.11 |
23.71 |
2.30 |
3.00 |
|
WSR36 |
20211218 |
Cloudy |
Moderate |
Mid-Ebb |
Bottom |
6.20 |
10:43:00 AM |
8.34 |
8.43 |
33.14 |
23.78 |
2.16 |
4.00 |
|
WSR36 |
20211218 |
Cloudy |
Moderate |
Mid-Ebb |
Bottom |
6.20 |
10:43:00 AM |
8.51 |
8.40 |
32.95 |
23.80 |
2.33 |
4.00 |
|
WSR36 |
20211221 |
Cloudy |
Moderate |
Mid-Ebb |
Surface |
1.00 |
12:20:00 PM |
8.34 |
8.47 |
31.66 |
23.35 |
3.12 |
6.00 |
|
WSR36 |
20211221 |
Cloudy |
Moderate |
Mid-Ebb |
Surface |
1.00 |
12:20:00 PM |
8.38 |
8.47 |
31.56 |
23.43 |
3.05 |
5.00 |
|
WSR36 |
20211221 |
Cloudy |
Moderate |
Mid-Ebb |
Middle |
3.30 |
12:20:00 PM |
8.40 |
8.46 |
31.61 |
23.34 |
2.79 |
4.00 |
|
Location |
Date (YYYYMMDD) |
Weather |
Sea Condition |
Tidal |
Water Level |
Depth (m) |
Time (hh:mm) |
DO (mg/L) |
pH |
Sal (ppt) |
Temp (¢XC) |
Turbidty (NTU) note 1 |
SS (mg/L) (Note 2) |
|
WSR36 |
20211221 |
Cloudy |
Moderate |
Mid-Ebb |
Middle |
3.30 |
12:20:00 PM |
8.30 |
8.48 |
31.60 |
23.39 |
3.05 |
5.00 |
|
WSR36 |
20211221 |
Cloudy |
Moderate |
Mid-Ebb |
Bottom |
5.60 |
12:19:00 PM |
8.34 |
8.48 |
31.50 |
23.38 |
2.32 |
5.00 |
|
WSR36 |
20211221 |
Cloudy |
Moderate |
Mid-Ebb |
Bottom |
5.60 |
12:19:00 PM |
8.33 |
8.41 |
31.63 |
23.34 |
2.59 |
4.00 |
|
WSR36 |
20211223 |
Cloudy |
Moderate |
Mid-Ebb |
Surface |
1.00 |
1:39:00 PM |
7.77 |
8.35 |
32.79 |
21.80 |
3.22 |
7.00 |
|
WSR36 |
20211223 |
Cloudy |
Moderate |
Mid-Ebb |
Surface |
1.00 |
1:39:00 PM |
8.00 |
8.31 |
32.84 |
22.03 |
2.75 |
7.00 |
|
WSR36 |
20211223 |
Cloudy |
Moderate |
Mid-Ebb |
Middle |
3.85 |
1:39:00 PM |
7.62 |
8.38 |
32.77 |
22.06 |
2.69 |
9.00 |
|
WSR36 |
20211223 |
Cloudy |
Moderate |
Mid-Ebb |
Middle |
3.85 |
1:39:00 PM |
7.95 |
8.34 |
32.88 |
21.86 |
2.77 |
12.00 |
|
WSR36 |
20211223 |
Cloudy |
Moderate |
Mid-Ebb |
Bottom |
6.70 |
1:38:00 PM |
7.97 |
8.33 |
32.80 |
21.92 |
3.00 |
6.00 |
|
WSR36 |
20211223 |
Cloudy |
Moderate |
Mid-Ebb |
Bottom |
6.70 |
1:38:00 PM |
7.87 |
8.33 |
32.79 |
21.92 |
2.90 |
7.00 |
|
WSR36 |
20211225 |
Sunny |
Moderate |
Mid-Ebb |
Surface |
1.00 |
3:43:00 PM |
8.19 |
8.28 |
31.74 |
22.90 |
2.26 |
7.00 |
|
WSR36 |
20211225 |
Sunny |
Moderate |
Mid-Ebb |
Surface |
1.00 |
3:43:00 PM |
8.08 |
8.24 |
31.69 |
22.86 |
2.25 |
8.00 |
|
WSR36 |
20211225 |
Sunny |
Moderate |
Mid-Ebb |
Middle |
3.10 |
3:43:00 PM |
8.18 |
8.24 |
31.65 |
22.88 |
2.39 |
7.00 |
|
WSR36 |
20211225 |
Sunny |
Moderate |
Mid-Ebb |
Middle |
3.10 |
3:43:00 PM |
8.07 |
8.22 |
31.73 |
22.82 |
2.19 |
9.00 |
|
WSR36 |
20211225 |
Sunny |
Moderate |
Mid-Ebb |
Bottom |
5.20 |
3:42:00 PM |
8.08 |
8.27 |
31.61 |
22.88 |
1.87 |
8.00 |
|
WSR36 |
20211225 |
Sunny |
Moderate |
Mid-Ebb |
Bottom |
5.20 |
3:42:00 PM |
8.04 |
8.26 |
31.62 |
22.83 |
2.05 |
6.00 |
|
WSR36 |
20211228 |
Cloudy |
Moderate |
Mid-Ebb |
Surface |
1.00 |
6:28:00 PM |
8.95 |
8.29 |
32.46 |
21.92 |
2.85 |
4.00 |
|
WSR36 |
20211228 |
Cloudy |
Moderate |
Mid-Ebb |
Surface |
1.00 |
6:28:00 PM |
9.02 |
8.32 |
32.58 |
21.96 |
2.74 |
4.00 |
|
WSR36 |
20211228 |
Cloudy |
Moderate |
Mid-Ebb |
Middle |
3.85 |
6:28:00 PM |
9.05 |
8.34 |
32.60 |
21.99 |
3.34 |
8.00 |
|
WSR36 |
20211228 |
Cloudy |
Moderate |
Mid-Ebb |
Middle |
3.85 |
6:28:00 PM |
9.10 |
8.34 |
32.56 |
21.92 |
3.33 |
8.00 |
|
WSR36 |
20211228 |
Cloudy |
Moderate |
Mid-Ebb |
Bottom |
6.70 |
6:27:00 PM |
9.01 |
8.29 |
32.47 |
21.92 |
2.64 |
5.00 |
|
WSR36 |
20211228 |
Cloudy |
Moderate |
Mid-Ebb |
Bottom |
6.70 |
6:27:00 PM |
8.94 |
8.31 |
32.55 |
21.97 |
2.30 |
4.00 |
|
WSR36 |
20211230 |
Sunny |
Moderate |
Mid-Ebb |
Surface |
1.00 |
10:29:00 AM |
8.23 |
8.35 |
32.18 |
21.93 |
2.95 |
8.00 |
|
WSR36 |
20211230 |
Sunny |
Moderate |
Mid-Ebb |
Surface |
1.00 |
10:29:00 AM |
8.06 |
8.32 |
32.35 |
21.86 |
2.56 |
7.00 |
|
WSR36 |
20211230 |
Sunny |
Moderate |
Mid-Ebb |
Middle |
3.60 |
10:29:00 AM |
8.03 |
8.34 |
32.38 |
22.06 |
2.49 |
6.00 |
|
WSR36 |
20211230 |
Sunny |
Moderate |
Mid-Ebb |
Middle |
3.60 |
10:29:00 AM |
8.10 |
8.33 |
32.38 |
21.89 |
2.08 |
6.00 |
|
WSR36 |
20211230 |
Sunny |
Moderate |
Mid-Ebb |
Bottom |
6.20 |
10:28:00 AM |
8.05 |
8.37 |
32.18 |
22.05 |
2.47 |
6.00 |
|
WSR36 |
20211230 |
Sunny |
Moderate |
Mid-Ebb |
Bottom |
6.20 |
10:28:00 AM |
8.29 |
8.30 |
32.17 |
21.93 |
2.11 |
8.00 |
|
Location |
Date (YYYYMMDD) |
Weather |
Sea Condition |
Tidal |
Water Level |
Depth (m) |
Time (hh:mm) |
DO (mg/L) |
pH |
Sal (ppt) |
Temp (¢XC) |
Turbidty (NTU) note 1 |
SS (mg/L) (Note 2) |
|
WSR37 |
20211202 |
Sunny |
Moderate |
Mid-Ebb |
Surface |
1.00 |
9:26:00 AM |
8.64 |
8.30 |
32.73 |
26.18 |
3.64 |
4.00 |
|
WSR37 |
20211202 |
Sunny |
Moderate |
Mid-Ebb |
Surface |
1.00 |
9:26:00 AM |
8.64 |
8.41 |
32.69 |
26.11 |
3.80 |
4.00 |
|
WSR37 |
20211202 |
Sunny |
Moderate |
Mid-Ebb |
Middle |
3.95 |
9:25:00 AM |
8.77 |
8.44 |
32.65 |
26.04 |
3.45 |
5.00 |
|
WSR37 |
20211202 |
Sunny |
Moderate |
Mid-Ebb |
Middle |
3.95 |
9:25:00 AM |
8.63 |
8.41 |
32.70 |
26.00 |
3.55 |
5.00 |
|
WSR37 |
20211202 |
Sunny |
Moderate |
Mid-Ebb |
Bottom |
6.90 |
9:24:00 AM |
8.60 |
8.31 |
32.57 |
25.99 |
3.15 |
5.00 |
|
WSR37 |
20211202 |
Sunny |
Moderate |
Mid-Ebb |
Bottom |
6.90 |
9:24:00 AM |
8.69 |
8.43 |
32.68 |
26.11 |
3.18 |
6.00 |
|
WSR37 |
20211204 |
Sunny |
Moderate |
Mid-Ebb |
Surface |
1.00 |
11:04:00 AM |
8.54 |
8.41 |
30.80 |
25.11 |
2.70 |
5.00 |
|
WSR37 |
20211204 |
Sunny |
Moderate |
Mid-Ebb |
Surface |
1.00 |
11:04:00 AM |
8.59 |
8.42 |
30.87 |
24.92 |
2.53 |
6.00 |
|
WSR37 |
20211204 |
Sunny |
Moderate |
Mid-Ebb |
Middle |
3.85 |
11:03:00 AM |
8.47 |
8.40 |
30.79 |
25.16 |
2.33 |
7.00 |
|
WSR37 |
20211204 |
Sunny |
Moderate |
Mid-Ebb |
Middle |
3.85 |
11:03:00 AM |
8.50 |
8.38 |
30.86 |
25.14 |
2.50 |
8.00 |
|
WSR37 |
20211204 |
Sunny |
Moderate |
Mid-Ebb |
Bottom |
6.70 |
11:02:00 AM |
8.50 |
8.42 |
30.88 |
25.11 |
2.18 |
4.00 |
|
WSR37 |
20211204 |
Sunny |
Moderate |
Mid-Ebb |
Bottom |
6.70 |
11:02:00 AM |
8.48 |
8.35 |
30.80 |
24.93 |
2.38 |
4.00 |
|
WSR37 |
20211207 |
Sunny |
Moderate |
Mid-Ebb |
Surface |
1.00 |
1:26:00 PM |
9.24 |
8.10 |
31.09 |
25.34 |
2.33 |
8.00 |
|
WSR37 |
20211207 |
Sunny |
Moderate |
Mid-Ebb |
Surface |
1.00 |
1:26:00 PM |
9.38 |
8.15 |
30.87 |
25.43 |
2.73 |
10.00 |
|
WSR37 |
20211207 |
Sunny |
Moderate |
Mid-Ebb |
Middle |
4.45 |
1:25:00 PM |
9.29 |
8.13 |
30.99 |
25.41 |
2.37 |
27.00 |
|
WSR37 |
20211207 |
Sunny |
Moderate |
Mid-Ebb |
Middle |
4.45 |
1:25:00 PM |
9.26 |
8.14 |
30.87 |
25.42 |
1.99 |
26.00 |
|
WSR37 |
20211207 |
Sunny |
Moderate |
Mid-Ebb |
Bottom |
7.90 |
1:24:00 PM |
9.25 |
8.10 |
30.88 |
25.34 |
2.25 |
27.00 |
|
WSR37 |
20211207 |
Sunny |
Moderate |
Mid-Ebb |
Bottom |
7.90 |
1:24:00 PM |
9.21 |
8.21 |
31.10 |
25.26 |
2.01 |
23.00 |
|
WSR37 |
20211209 |
Sunny |
Moderate |
Mid-Ebb |
Surface |
1.00 |
2:30:00 PM |
8.55 |
8.46 |
33.03 |
24.01 |
3.11 |
24.00 |
|
WSR37 |
20211209 |
Sunny |
Moderate |
Mid-Ebb |
Surface |
1.00 |
2:30:00 PM |
8.67 |
8.47 |
32.78 |
24.03 |
2.67 |
25.00 |
|
WSR37 |
20211209 |
Sunny |
Moderate |
Mid-Ebb |
Middle |
4.45 |
2:29:00 PM |
8.53 |
8.41 |
32.93 |
24.03 |
2.49 |
4.00 |
|
WSR37 |
20211209 |
Sunny |
Moderate |
Mid-Ebb |
Middle |
4.45 |
2:29:00 PM |
8.54 |
8.37 |
32.95 |
23.98 |
2.79 |
4.00 |
|
WSR37 |
20211209 |
Sunny |
Moderate |
Mid-Ebb |
Bottom |
7.90 |
2:28:00 PM |
8.64 |
8.42 |
32.79 |
23.99 |
2.21 |
12.00 |
|
WSR37 |
20211209 |
Sunny |
Moderate |
Mid-Ebb |
Bottom |
7.90 |
2:28:00 PM |
8.62 |
8.43 |
32.93 |
24.07 |
2.41 |
15.00 |
|
WSR37 |
20211211 |
Sunny |
Moderate |
Mid-Ebb |
Surface |
1.00 |
5:26:00 PM |
8.75 |
8.32 |
31.22 |
24.73 |
1.99 |
18.00 |
|
WSR37 |
20211211 |
Sunny |
Moderate |
Mid-Ebb |
Surface |
1.00 |
5:26:00 PM |
8.56 |
8.29 |
31.25 |
24.75 |
2.31 |
15.00 |
|
WSR37 |
20211211 |
Sunny |
Moderate |
Mid-Ebb |
Middle |
4.35 |
5:25:00 PM |
8.61 |
8.34 |
31.38 |
24.80 |
1.95 |
17.00 |
|
Location |
Date (YYYYMMDD) |
Weather |
Sea Condition |
Tidal |
Water Level |
Depth (m) |
Time (hh:mm) |
DO (mg/L) |
pH |
Sal (ppt) |
Temp (¢XC) |
Turbidty (NTU) note 1 |
SS (mg/L) (Note 2) |
|
WSR37 |
20211211 |
Sunny |
Moderate |
Mid-Ebb |
Middle |
4.35 |
5:25:00 PM |
8.72 |
8.33 |
31.30 |
24.66 |
2.28 |
15.00 |
|
WSR37 |
20211211 |
Sunny |
Moderate |
Mid-Ebb |
Bottom |
7.70 |
5:24:00 PM |
8.55 |
8.27 |
31.18 |
24.81 |
1.91 |
3.00 |
|
WSR37 |
20211211 |
Sunny |
Moderate |
Mid-Ebb |
Bottom |
7.70 |
5:24:00 PM |
8.72 |
8.25 |
31.27 |
24.79 |
1.83 |
2.50 |
|
WSR37 |
20211214 |
Sunny |
Moderate |
Mid-Ebb |
Surface |
1.00 |
8:43:00 AM |
9.40 |
8.18 |
32.92 |
23.45 |
3.01 |
6.00 |
|
WSR37 |
20211214 |
Sunny |
Moderate |
Mid-Ebb |
Surface |
1.00 |
8:43:00 AM |
9.21 |
8.14 |
32.71 |
23.48 |
2.56 |
8.00 |
|
WSR37 |
20211214 |
Sunny |
Moderate |
Mid-Ebb |
Middle |
4.35 |
8:42:00 AM |
9.14 |
8.04 |
32.93 |
23.36 |
2.48 |
6.00 |
|
WSR37 |
20211214 |
Sunny |
Moderate |
Mid-Ebb |
Middle |
4.35 |
8:42:00 AM |
9.15 |
8.10 |
32.76 |
23.49 |
2.85 |
5.00 |
|
WSR37 |
20211214 |
Sunny |
Moderate |
Mid-Ebb |
Bottom |
7.70 |
8:41:00 AM |
9.27 |
8.05 |
32.80 |
23.52 |
2.23 |
7.00 |
|
WSR37 |
20211214 |
Sunny |
Moderate |
Mid-Ebb |
Bottom |
7.70 |
8:41:00 AM |
9.23 |
8.15 |
32.81 |
23.41 |
2.25 |
6.00 |
|
WSR37 |
20211216 |
Cloudy |
Moderate |
Mid-Ebb |
Surface |
1.00 |
9:30:00 AM |
8.90 |
8.30 |
31.27 |
23.76 |
2.95 |
7.00 |
|
WSR37 |
20211216 |
Cloudy |
Moderate |
Mid-Ebb |
Surface |
1.00 |
9:30:00 AM |
8.88 |
8.29 |
31.24 |
23.75 |
3.51 |
6.00 |
|
WSR37 |
20211216 |
Cloudy |
Moderate |
Mid-Ebb |
Middle |
4.45 |
9:29:00 AM |
8.91 |
8.26 |
31.26 |
23.66 |
2.89 |
5.00 |
|
WSR37 |
20211216 |
Cloudy |
Moderate |
Mid-Ebb |
Middle |
4.45 |
9:29:00 AM |
9.04 |
8.27 |
31.25 |
23.81 |
2.52 |
3.00 |
|
WSR37 |
20211216 |
Cloudy |
Moderate |
Mid-Ebb |
Bottom |
7.90 |
9:28:00 AM |
9.05 |
8.29 |
31.43 |
23.72 |
2.37 |
3.00 |
|
WSR37 |
20211216 |
Cloudy |
Moderate |
Mid-Ebb |
Bottom |
7.90 |
9:28:00 AM |
9.01 |
8.27 |
31.36 |
23.65 |
2.84 |
2.50 |
|
WSR37 |
20211218 |
Cloudy |
Moderate |
Mid-Ebb |
Surface |
1.00 |
10:32:00 AM |
8.42 |
8.33 |
32.48 |
23.02 |
2.62 |
8.00 |
|
WSR37 |
20211218 |
Cloudy |
Moderate |
Mid-Ebb |
Surface |
1.00 |
10:32:00 AM |
8.80 |
8.34 |
32.33 |
23.02 |
2.65 |
6.00 |
|
WSR37 |
20211218 |
Cloudy |
Moderate |
Mid-Ebb |
Middle |
4.15 |
10:31:00 AM |
8.77 |
8.32 |
32.58 |
23.01 |
2.21 |
8.00 |
|
WSR37 |
20211218 |
Cloudy |
Moderate |
Mid-Ebb |
Middle |
4.15 |
10:31:00 AM |
8.63 |
8.31 |
32.52 |
23.04 |
2.33 |
7.00 |
|
WSR37 |
20211218 |
Cloudy |
Moderate |
Mid-Ebb |
Bottom |
7.30 |
10:30:00 AM |
8.45 |
8.32 |
32.40 |
23.08 |
2.47 |
3.00 |
|
WSR37 |
20211218 |
Cloudy |
Moderate |
Mid-Ebb |
Bottom |
7.30 |
10:30:00 AM |
8.75 |
8.32 |
32.56 |
23.06 |
2.08 |
4.00 |
|
WSR37 |
20211221 |
Cloudy |
Moderate |
Mid-Ebb |
Surface |
1.00 |
12:07:00 PM |
7.72 |
8.31 |
31.36 |
22.77 |
2.97 |
6.00 |
|
WSR37 |
20211221 |
Cloudy |
Moderate |
Mid-Ebb |
Surface |
1.00 |
12:07:00 PM |
7.59 |
8.35 |
31.45 |
22.76 |
3.14 |
5.00 |
|
WSR37 |
20211221 |
Cloudy |
Moderate |
Mid-Ebb |
Middle |
4.35 |
12:06:00 PM |
7.59 |
8.37 |
31.42 |
22.82 |
2.84 |
7.00 |
|
WSR37 |
20211221 |
Cloudy |
Moderate |
Mid-Ebb |
Middle |
4.35 |
12:06:00 PM |
7.66 |
8.33 |
31.36 |
22.81 |
3.18 |
8.00 |
|
Location |
Date (YYYYMMDD) |
Weather |
Sea Condition |
Tidal |
Water Level |
Depth (m) |
Time (hh:mm) |
DO (mg/L) |
pH |
Sal (ppt) |
Temp (¢XC) |
Turbidty (NTU) note 1 |
SS (mg/L) (Note 2) |
|
WSR37 |
20211221 |
Cloudy |
Moderate |
Mid-Ebb |
Bottom |
7.70 |
12:05:00 PM |
7.67 |
8.38 |
31.33 |
22.82 |
2.86 |
10.00 |
|
WSR37 |
20211221 |
Cloudy |
Moderate |
Mid-Ebb |
Bottom |
7.70 |
12:05:00 PM |
7.54 |
8.38 |
31.39 |
22.86 |
2.61 |
11.00 |
|
WSR37 |
20211223 |
Cloudy |
Moderate |
Mid-Ebb |
Surface |
1.00 |
1:26:00 PM |
8.54 |
8.32 |
32.79 |
22.24 |
3.23 |
15.00 |
|
WSR37 |
20211223 |
Cloudy |
Moderate |
Mid-Ebb |
Surface |
1.00 |
1:26:00 PM |
8.57 |
8.32 |
32.70 |
22.42 |
2.97 |
13.00 |
|
WSR37 |
20211223 |
Cloudy |
Moderate |
Mid-Ebb |
Middle |
4.45 |
1:25:00 PM |
8.78 |
8.26 |
32.66 |
22.31 |
2.95 |
4.00 |
|
WSR37 |
20211223 |
Cloudy |
Moderate |
Mid-Ebb |
Middle |
4.45 |
1:25:00 PM |
8.54 |
8.32 |
32.69 |
22.49 |
2.65 |
4.00 |
|
WSR37 |
20211223 |
Cloudy |
Moderate |
Mid-Ebb |
Bottom |
7.90 |
1:24:00 PM |
8.75 |
8.28 |
32.68 |
22.31 |
2.71 |
4.00 |
|
WSR37 |
20211223 |
Cloudy |
Moderate |
Mid-Ebb |
Bottom |
7.90 |
1:24:00 PM |
8.79 |
8.29 |
32.77 |
22.48 |
2.41 |
4.00 |
|
WSR37 |
20211225 |
Sunny |
Moderate |
Mid-Ebb |
Surface |
1.00 |
3:30:00 PM |
8.12 |
8.16 |
31.98 |
22.45 |
2.41 |
6.00 |
|
WSR37 |
20211225 |
Sunny |
Moderate |
Mid-Ebb |
Surface |
1.00 |
3:30:00 PM |
8.16 |
8.15 |
32.01 |
22.56 |
2.38 |
4.00 |
|
WSR37 |
20211225 |
Sunny |
Moderate |
Mid-Ebb |
Middle |
4.00 |
3:29:00 PM |
8.12 |
8.20 |
32.09 |
22.59 |
2.48 |
4.00 |
|
WSR37 |
20211225 |
Sunny |
Moderate |
Mid-Ebb |
Middle |
4.00 |
3:29:00 PM |
8.20 |
8.18 |
31.98 |
22.64 |
2.30 |
4.00 |
|
WSR37 |
20211225 |
Sunny |
Moderate |
Mid-Ebb |
Bottom |
7.00 |
3:28:00 PM |
8.30 |
8.15 |
32.09 |
22.42 |
2.61 |
9.00 |
|
WSR37 |
20211225 |
Sunny |
Moderate |
Mid-Ebb |
Bottom |
7.00 |
3:28:00 PM |
8.24 |
8.22 |
31.94 |
22.52 |
2.80 |
8.00 |
|
WSR37 |
20211228 |
Cloudy |
Moderate |
Mid-Ebb |
Surface |
1.00 |
6:16:00 PM |
8.47 |
8.26 |
32.02 |
22.10 |
3.29 |
4.00 |
|
WSR37 |
20211228 |
Cloudy |
Moderate |
Mid-Ebb |
Surface |
1.00 |
6:16:00 PM |
8.53 |
8.24 |
31.94 |
22.24 |
3.85 |
7.00 |
|
WSR37 |
20211228 |
Cloudy |
Moderate |
Mid-Ebb |
Middle |
3.85 |
6:15:00 PM |
8.48 |
8.18 |
31.93 |
22.23 |
3.39 |
3.00 |
|
WSR37 |
20211228 |
Cloudy |
Moderate |
Mid-Ebb |
Middle |
3.85 |
6:15:00 PM |
8.61 |
8.21 |
31.98 |
22.24 |
3.80 |
4.00 |
|
WSR37 |
20211228 |
Cloudy |
Moderate |
Mid-Ebb |
Bottom |
6.70 |
6:14:00 PM |
8.46 |
8.17 |
31.93 |
22.08 |
3.12 |
4.00 |
|
WSR37 |
20211228 |
Cloudy |
Moderate |
Mid-Ebb |
Bottom |
6.70 |
6:14:00 PM |
8.64 |
8.25 |
31.88 |
22.07 |
2.87 |
5.00 |
|
WSR37 |
20211230 |
Sunny |
Moderate |
Mid-Ebb |
Surface |
1.00 |
10:16:00 AM |
8.83 |
8.35 |
32.49 |
22.07 |
2.86 |
9.00 |
|
WSR37 |
20211230 |
Sunny |
Moderate |
Mid-Ebb |
Surface |
1.00 |
10:16:00 AM |
8.67 |
8.35 |
32.36 |
21.98 |
3.23 |
7.00 |
|
WSR37 |
20211230 |
Sunny |
Moderate |
Mid-Ebb |
Middle |
4.35 |
10:15:00 AM |
8.86 |
8.33 |
32.43 |
22.11 |
2.97 |
7.00 |
|
WSR37 |
20211230 |
Sunny |
Moderate |
Mid-Ebb |
Middle |
4.35 |
10:15:00 AM |
8.81 |
8.30 |
32.57 |
22.12 |
3.08 |
7.00 |
|
WSR37 |
20211230 |
Sunny |
Moderate |
Mid-Ebb |
Bottom |
7.70 |
10:14:00 AM |
8.73 |
8.31 |
32.59 |
22.00 |
2.65 |
9.00 |
|
WSR37 |
20211230 |
Sunny |
Moderate |
Mid-Ebb |
Bottom |
7.70 |
10:14:00 AM |
8.81 |
8.31 |
32.41 |
22.13 |
2.33 |
8.00 |
Note
1: Measurements of turbidity would be rounding to 0.1 NTU for proven accuracy
as per the equipment specs during utilization of data.
Note 2: Measurement data of Suspending Solids would be rounding to 2.5mg/L if the value was less than 2.5mg/L to facilitate data analysing

Appendix M
HOKLAS Laboratory Certificate

Appendix N
Water Quality and
Landfill Gas Equipment Calibration Certificate
|
Equipment |
Model |
Serial Number |
Calibration Date |
Calibration Expiry Date* |
|
Multi-Functional Meter |
Horiba U-53 |
PPHNOMXY |
24/11/2021 |
24/12/2021 |
|
Multi-Functional Meter |
Horiba U-53 |
NEKVM2XU |
15/12/2021 |
15/01/2022 |
Remarks*: All in
situ monitoring instruments will be checked, calibrated and certified by
laboratory accredited under HOKLAS or any other international accreditation scheme before use, and
subsequently re-calibrated at monthly intervals throughout the stages of water
quality monitoring, as per requirements in the
EM&A Manual Clause 5.1.3.









Appendix O Exceedance Report(s)
Incident Report
on Action Level
or Limit Level Non-Compliance
|
Project |
Design, Build
and Operate First Stage of Tseung Kwan O Desalination Plant |
|||
|
Date |
02 December 2021 (Lab result received on 09 December 2021) |
|||
|
Time |
14:45 - 18:15 (Mid-Flood) and 08:44 - 12:14 (Mid-Ebb) |
|||
|
Mid-Flood |
||||
|
Monitoring Location |
WSR3, WSR4, WSR16, WSR33
|
|||
|
Parameter |
Suspended Solid (SS) |
|||
|
Action & Limit Levels |
Action Level |
Limit Level |
||
|
> 5.0 mg/L |
> 6.0 mg/L |
|||
|
Measurement Level |
Impact Station(s)
of Exceedance |
Control Stations |
Impact Station(s)
without Exceedance |
|
|
5.2 mg/L (WSR 3) 6.2 mg/L (WSR 4) 6.5 mg/L
(WSR16) 5.7 mg/L
(WSR 33) |
3.2 mg/L
(CF) 3.5 mg/L
(CE) |
4.2 mg/L (WSR1) 4.8 mg/L (WSR 2) 4.2
mg/L (WSR
36) 4.3
mg/L (WSR
37) |
||
|
Possible reason for Action or Limit
Level Non-compliance |
Outfall Shaft Area: marine construction activities, namely
1) 1st derrick
barge supported works
inside the caisson to check and grout water leaking spots
(0800 -2200 hrs) Intake Shaft Area: marine construction
activities, namely 1) 1st derrick barge assisted housekeeping and prepared for sediment dredging (0800 -2000 hrs); 2) 2nd derrick barge material transfer to 1st derrick
barge (0800 -2000 hrs); 3) Hopper barge idled (0800 -0800 hrs) Marine construction activities with contact
with water: 1) N/A Marine vessels on 02 December 2021: -
Derrick barge
x 2, tug boat x 1,
anchor boat x 1, hopper barge x 1 (Intake Shaft) -
Derrick barge x 1 (Outfall Shaft) Dominating sea current direction was found to be from
Southeast to Northwest at waters to the west side of Tit Cham Chau; and
from Northeast to Southwest at waters to the
east side of Tit Cham Chau. Stations WSR3, WSR4 and WSR16 were
located distant from
the construction site
and the possibility of being affected by marine construction activities was considered |
|||
|
|
limited. SS exceedance was however observed at WSR3 (5.2
mg/L), WSR4 (6.2
mg/L) and WSR16 (6.5
mg/L). The SS level at an upstream station, WSR33 (5.7 mg/L), was higher
than that of WSR36 (4.2 mg/L) and WSR37 (4.3 mg/L), where
marine construction
activities were conducted at WSR36 and WSR37 on 02 December 2021. No SS exceedances were observed at WSR36
and WSR37. In view of the inverse relation between distance to marine works
and SS level,
the SS exceedance is concluded not project relevant. According to the
field observation by sampling team during sampling event, no silt plume
was observed in the Project site on
02 December 2021. Conditions of the
protective silt curtain at the inland water outfall was satisfactory on 02 December 2021. |
|||
|
Mid-Ebb |
||||
|
Monitoring Location |
WSR3
|
|||
|
Parameter |
Suspended Solid (SS) |
|||
|
Action & Limit Levels |
Action Level |
Limit Level |
||
|
> 8.4 mg/L |
> 9.1 mg/L |
|||
|
Measurement Level |
Impact Station(s)
of Exceedance |
Control Stations |
Impact Station(s)
without Exceedance |
|
|
12.7
mg/L (WSR3) |
7.0 mg/L
(CE) 6.0 mg/L
(CF) |
4.8 mg/L (WSR1) 7.3 mg/L (WSR2) 5.3 mg/L (WSR4) 5.7 mg/L (WSR16) 4.0 mg/L (WSR33) 3.6 mg/L (WSR36) 4.8 mg/L (WSR37) |
||
|
Possible reason for Action or Limit
Level Non-compliance |
Outfall Shaft Area: marine construction activities, namely
1) 1st derrick
barge supported works
inside the caisson to check and grout water leaking spots
(0800 -2200 hrs) Intake
Shaft Area: marine construction activities, namely 1) 1st derrick barge
assisted housekeeping and prepared
for sediment dredging (0800 -2000 hrs); 2) 2nd derrick barge
material transfer to 1st derrick barge (0800 -2000 hrs); 3) Hopper barge idled (0800
-0800 hrs) |
|||
|
|
Marine construction activities with contact with water: 1) N/A Marine
vessels on 02 December 2021: -
Derrick barge
x 2, tug boat x 1,
anchor boat x 1, hopper barge x 1 (Intake Shaft) -
Derrick barge x 1 (Outfall Shaft) Dominating sea current direction was found to be from
Northwest to Southeast at waters to the west side of Tit Cham Chau; and
from West to East at waters to the east side of Tit Cham Chau. Station WSR3 was located distant from the construction site
and the possibility of being affected by marine construction
activities was considered limited. SS exceedance was however noted at WSR3 (12.7 mg/L). No SS exceedances were
observed at WSR36 (3.6 mg/L)
and WSR37 (4.8 mg/L), where
marine construction activities were conducted. In
view of the inverse relation between distance to marine works and SS level,
the SS exceedance is concluded not project relevant. According to the
field observation by sampling team during sampling event, no silt plume
was observed in the Project site on
02 December 2021. Conditions of the protective silt curtain at the inland
water outfall was satisfactory on 02 December 2021. |
|
Remarks |
Current direction during
mid-flood sampling on 02 December 2021
|
|
|
Current direction during mid-ebb sampling on 02 December 2021:
(Sourced from http://current.hydro.gov.hk/en/map.html) Supporting Photo
1 (Sea Conditions at WSR3)
|



|
|
Supporting Photo
8 (Sea Conditions at Outfall Shaft
Area)
|
|
|
Prepared by |
Charlene Lai |
|
|
Date |
28 December 2021 |
|
Incident Report
on Action Level
or Limit Level Non-Compliance
|
Project |
Design, Build
and Operate First Stage of Tseung Kwan O Desalination Plant |
|||
|
Date |
04 December 2021 (Lab result received on 10 December 2021) |
|||
|
Time |
15:44 - 19:00 (Mid-Flood) and 10:22-13:52 (Mid-Ebb) |
|||
|
Mid-Flood |
||||
|
Monitoring Location |
WSR3,
WSR37
|
|||
|
Parameter |
Suspended Solid (SS) |
|||
|
Action & Limit Levels |
Action Level |
Limit Level |
||
|
> 5.0 mg/L |
> 6.0 mg/L |
|||
|
Measurement Level |
Impact Station(s)
of Exceedance |
Control Stations |
Impact Station(s)
without Exceedance |
|
|
5.3 mg/L (WSR 3) 8.3 mg/L
(WSR 37) |
4.2 mg/L
(CF) 3.3 mg/L
(CE) |
4.3 mg/L (WSR1) 3.7 mg/L (WSR 2) 4.3 mg/L (WSR 4) 4.5 mg/L
(WSR16) 3.7 mg/L
(WSR 33) 5.0 mg/L
(WSR 36) |
||
|
Possible reason for Action or Limit
Level Non-compliance |
Outfall Shaft Area: marine construction activities, namely
1) 1st derrick
barge supported works
inside the caisson to check and grout water leaking spots
(0800 -2200 hrs) Intake Shaft Area: marine construction
activities, namely 1) 1st derrick barge dredged marine deposit (MD) (tarpaulin sheeting below the moving grab
and double silt curtain in place)
(0800 -1530 hrs); 2) 1st
derrick barge transhipped MD to hopper barge by grab (1530 -2000 hrs); 3) Hopper barge incepted MD
from derrick barge (1530 -2000 hrs) Marine construction activities with contact
with water: 1) 1st derrick barge dredged marine
deposit (MD) (tarpaulin sheeting below the moving grab and double silt
curtain in place) (0800 -1530 hrs) Marine
vessels on 04 December
2021: -
Derrick barge x 1, anchor
boat x 1, hopper barge x 1 (Intake Shaft) -
Derrick barge x 1 (Outfall Shaft) |
|||
|
|
Dominating sea current direction was found to be from
Southeast to Northwest at waters to the west side of Tit Cham Chau; and
from Northeast to Southwest at waters to the
east side of Tit Cham Chau. Station WSR3
was located distant
from the construction site and the
possibility of being
affected by marine construction activities was considered limited. SS
exceedance was however observed at
WSR3 (5.3 mg/L). No marine construction activities with contact with
water was observed at WSR37. However, SS exceedance was
observed at WSR37
(8.3 mg/L). No SS exceedance was observed at WSR36 (5.0 mg/L), where
dredging activities were conducted.
In view of the inverse relation between distance to marine works
and SS level, the SS exceedance
is concluded not project relevant. According to the
field observation by sampling team during sampling event, no silt plume
was observed in the Project site on
04 December 2021. Conditions of the protective silt
curtain at the inland water outfall was satisfactory on 04 December 2021. |
|||
|
Mid-Ebb |
||||
|
Monitoring Location |
WSR1, WSR2, WSR3, WSR33, WSR36 and WSR37
|
|||
|
Parameter |
Suspended Solid (SS) |
|||
|
Action & Limit Levels |
Action Level |
Limit Level |
||
|
> 5.0 mg/L |
> 6.0 mg/L |
|||
|
Measurement Level |
Impact Station(s)
of Exceedance |
Control Stations |
Impact Station(s)
without Exceedance |
|
|
5.8 mg/L (WSR1) 5.3 mg/L (WSR2) 5.2 mg/L (WSR3) 6.5 mg/L (WSR33) 6.0 mg/L (WSR36) 5.7 mg/L (WSR37) |
3.4 mg/L
(CE) 4.2 mg/L (CF) |
4.8 mg/L (WSR4) 3.7
mg/L (WSR16) |
||
|
Possible reason for Action or Limit
Level Non-compliance |
Outfall Shaft Area: marine construction activities, namely
1) 1st derrick
barge supported works
inside the caisson
to check and grout water leaking spots
(0800 -2200 hrs) Intake
Shaft Area: marine
construction activities, namely
1) 1st derrick barge dredged
marine deposit (MD) (tarpaulin sheeting below the
moving grab and
double silt curtain |
|||
|
|
in
place) (0800 -1530 hrs); 2) 1st derrick barge transhipped
MD to hopper barge by grab (1530 -2000 hrs); 3) Hopper barge incepted MD
from derrick barge (1530 -2000 hrs) Marine construction activities with contact
with water: 1) 1st derrick barge dredged marine
deposit (MD) (tarpaulin sheeting below the moving grab and double silt
curtain in place) (0800 -1530 hrs) Marine
vessels on 04 December
2021: -
Derrick barge x 1, anchor
boat x 1, hopper barge x 1 (Intake Shaft) -
Derrick barge x 1 (Outfall Shaft) Dominating sea current direction was
found to be from Northwest to Southeast at waters to the west side of Tit Cham Chau; and
from West to East at waters to the east side of Tit Cham Chau. Stations WSR1,
WSR2 and WSR3 were located distant from the construction site and the possibility
of being affected by marine construction activities was considered limited. SS exceedance was
however noted at WSR1 (5.8
mg/L), WSR2 (5.3
mg/L) and WSR3 (5.2 mg/L). Although dredging
works were scheduled at WSR36 (Intake Shaft)
on 04 December 2021, the SS level
at WSR36 (6.0
mg/L) was similar
with that of impact station which
locates distant from
the construction site
(WSR1). No marine
construction activities
with contact with water was scheduled at WSR37 but SS exceedance was observed (5.7 mg/L). WSR33 was located
further away from marine construction activities
but the SS level at WSR33 (6.5 mg/L) was higher than WSR36 and WSR37, where marine construction activities
were conducted. In view of the inverse relation between distance to marine works and SS level, the SS
exceedance is concluded not project relevant. According to the field observation by sampling
team during sampling event, no silt plume was observed
in the Project site on 04 December 2021. Conditions of the protective silt curtain at the inland
water outfall was satisfactory on 04 December 2021. |
|
Remarks |
Current direction during
mid-flood sampling on 04 December 2021
Current direction during mid-ebb
sampling on 04 December 2021:
(Sourced from http://current.hydro.gov.hk/en/map.html) |





Incident Report
on Action Level
or Limit Level Non-Compliance
|
Project |
Design, Build
and Operate First Stage of Tseung Kwan O Desalination Plant |
|||
|
Date |
09 December 2021 (Lab result received on 15 December 2021) |
|||
|
Time |
09:01 - 12:31 (Mid-Flood) and 13:45 - 17:15 (Mid-Ebb) |
|||
|
Mid-Flood |
||||
|
Monitoring Location |
WSR16, WSR33, WSR36, WSR37
|
|||
|
Parameter |
Suspended Solid (SS) |
|||
|
Action & Limit Levels |
Action Level |
Limit Level |
||
|
> 5.8 mg/L |
> 6.3 mg/L |
|||
|
Measurement Level |
Impact Station(s)
of Exceedance |
Control Stations |
Impact Station(s)
without Exceedance |
|
|
7.0 mg/L
(WSR16) 7.7 mg/L
(WSR 33) 5.8 mg/L
(WSR 36) 6.2 mg/L
(WSR 37) |
4.8 mg/L
(CF) 5.7 mg/L
(CE) |
5.2 mg/L (WSR1) 4.5 mg/L (WSR 2) 5.2
mg/L (WSR
3) 5.3
mg/L (WSR
4) |
||
|
Possible reason for Action or Limit
Level Non-compliance |
Outfall Shaft Area: marine construction activities, namely
1) 1st derrick
barge supported works
inside the caisson
to plug leaking spots by welding and grout (0800
-2200 hrs) Intake Shaft Area: marine construction
activities, namely 1) 1st derrick barge dredged marine deposit (MD) (tarpaulin sheeting below the moving grab
and double silt curtain in place)
(0800 -2100 hrs); 2) Hopper
barge under inspection and repair (1000 -1200 hrs); 3) Hopper
barge idled (1200 hrs onward) Marine construction activities with contact
with water: 1) 1st derrick barge dredged marine
deposit (MD) (tarpaulin sheeting below the moving grab and double silt
curtain in place) (0800 -2100 hrs) Marine
vessels on 09 December
2021: -
Derrick barge x 1, anchor
boat x 1, hopper barge x 1 (Intake Shaft) -
Derrick barge x 1 (Outfall Shaft) Dominating sea current direction was found to be from
Southeast to Northwest at waters to the west side of Tit Cham Chau;
and from Northeast to Southwest at waters to the east
side of Tit Cham Chau. |
|||
|
|
Station WSR16 was
located distant from the construction site and the possibility of being
affected by marine
construction activities was considered limited. SS exceedance was however observed at WSR16 (7.0
mg/L). No marine construction activities with contact with water
was conducted at WSR37 on 09 December 2021. SS exceedance was however
observed at WSR37 (6.2 mg/L). Although marine dredging was scheduled at WSR36 on 09 December 2021,
the SS level
at WSR36 (5.8
mg/L) was lower
than station that located further from the
construction site (WSR16). The SS level at an upstream station, WSR33 (7.7 mg/L), was higher than that of WSR36 (5.8
mg/L) and WSR37 (6.2 mg/L),
where marine construction activities were conducted at WSR36 and WSR37 on 09 December 2021. In view
of the inverse relation between distance to marine works
and SS level, the SS exceedance is concluded not project relevant. According to the
field observation by sampling team during sampling event, no silt plume
was observed in the Project site on
09 December 2021. Conditions of the protective silt
curtain at the inland water outfall was satisfactory on 09 December 2021. |
|||
|
Mid-Ebb |
||||
|
Monitoring Location |
WSR1, WSR33,
WSR36, WSR37
|
|||
|
Parameter |
Suspended Solid (SS) |
|||
|
Action & Limit Levels |
Action Level |
Limit Level |
||
|
> 12.5 mg/L |
> 13.5 mg/L |
|||
|
Measurement Level |
Impact Station(s)
of Exceedance |
Control Stations |
Impact Station(s)
without Exceedance |
|
|
24.3 mg/L
(WSR1) 15.5 mg/L (WSR33) 21.0 mg/L (WSR36) 14.0 mg/L (WSR37) |
10.4 mg/L (CE) 20.7 mg/L (CF) |
4.0 mg/L (WSR2) 5.0 mg/L (WSR3) 4.7 mg/L (WSR4) 5.2 mg/L
(WSR16) |
||
|
Possible reason for Action or Limit
Level Non-compliance |
Outfall Shaft Area: marine construction activities, namely
1) 1st derrick
barge supported works
inside the caisson
to plug leaking spots by welding and grout (0800
-2200 hrs) Intake Shaft Area: marine construction
activities, namely 1) 1st derrick barge dredged marine deposit (MD) (tarpaulin sheeting below the moving grab
and double silt curtain in place)
(0800 -2100 hrs); 2) Hopper barge
under inspection and repair (1000
¡V 1200
hrs); 3) Hopper barge idled (1200 hrs onward) |
|||
|
|
Marine
construction activities with contact with water: 1) 1st derrick barge dredged marine deposit (MD) (tarpaulin sheeting
below the moving grab and double silt curtain in place) (0800 -2100 hrs) Marine
vessels on 09 December
2021: -
Derrick barge x 1, anchor
boat x 1, hopper barge x 1 (Intake Shaft) -
Derrick barge x 1 (Outfall Shaft) Dominating sea current direction was
found to be from Northwest to Southeast at waters to the west side of Tit Cham Chau; and
from West to East at waters to the east side of Tit Cham Chau. Station WSR1 was located distant from the construction site and the possibility of being affected by marine construction
activities was considered limited. SS exceedance was however noted at WSR1 (24.3 mg/L). No marine construction activities
with contact with water was
conducted at WSR37. SS exceedance was however at WSR37 (14.0 mg/L). WSR1 was located further away
from marine construction activities but the SS level at WSR1 was higher than WSR36 (21.0 mg/L) and
WSR37, where marine construction activities were conducted.
A downstream station, WSR33, had a lower SS
level (15.5 mg/L) than WSR36, where dredging activities were conducted
and station located further from
the construction site (WSR1). A high SS background level was observed during mid-ebb tide on 09
December 2021 at CE (10.4 mg/L) and CF (20.7
mg/L). In view of the inverse relation between distance to marine
works and SS level, the SS
exceedance is concluded not project relevant and may be resulted from other natural factors. According to the
field observation by sampling team during sampling event, no silt plume
was observed in the Project site on
09 December 2021. Conditions of the protective silt curtain at the inland
water outfall was satisfactory on 09 December 2021. |
|
Remarks |
Current direction during
mid-flood sampling on 09 December 2021
|
|
|
Current direction during mid-ebb sampling on 09 December 2021:
(Sourced from http://current.hydro.gov.hk/en/map.html) Supporting Photo
1 (Sea Conditions at WSR1) |




Incident Report
on Action Level
or Limit Level Non-Compliance
|
Project |
Design, Build
and Operate First Stage of Tseung Kwan O Desalination Plant |
|||
|
Date |
11 December 2021 (Lab result received on 17 December 2021) |
|||
|
Time |
11:24 - 14:54 (Mid-Flood) and 16:45 - 19:00 (Mid-Ebb) |
|||
|
Mid-Flood |
||||
|
Monitoring Location |
WSR1,
WSR4, WSR16, WSR33,
WSR36, WSR37
|
|||
|
Parameter |
Suspended Solid (SS) |
|||
|
Action & Limit Levels |
Action Level |
Limit Level |
||
|
> 5.0 mg/L |
> 6.0 mg/L |
|||
|
Measurement Level |
Impact Station(s)
of Exceedance |
Control Stations |
Impact Station(s)
without Exceedance |
|
|
6.5 mg/L (WSR1) 5.7 mg/L (WSR 4) 7.0 mg/L
(WSR16) 14.0 mg/L (WSR 33) 14.5 mg/L (WSR 36) 18.3 mg/L (WSR 37) |
4.0 mg/L
(CF) 4.0 mg/L
(CE) |
4.8 mg/L (WSR 2) 5.0 mg/L (WSR 3) |
||
|
Possible reason for Action or Limit
Level Non-compliance |
Outfall Shaft Area: marine construction activities, namely
1) 1st derrick
barge supported works
inside the caisson to plug leaking
spots by welding
and grout (0800
-2200 hrs) Intake Shaft Area: marine construction
activities, namely 1) derrick barge transhipped marine sediment (MD) to hopper barge by
grab (tarpaulin sheeting below the moving grab
and double silt curtain in place) (0800 -1530 hrs); 2) derrick barge commenced to dredge on non-MD (tarpaulin sheeting below the moving grab and double
silt curtain in place) (1530 -2000 hrs); 3) Hopper barge incepted MD from derrick
barge (0800 -1530 hrs); 4) Hopper barge set off from TKODP and being towed
to East Sha Chau for MD dumping
(1530 -2000 hrs); 5) Hopper
barge being towed back to TKODP (2000 -0100 hrs) Marine construction activities with contact
with water: 1) derrick barge commenced to
dredge on non-MD
(tarpaulin sheeting below
the moving grab and double
silt curtain in place) (1530
-2000 hrs) |
|||
|
|
Marine vessels on 11 December 2021: -
Derrick barge
x 1, tug boat x 1, hopper barge x 1 (Intake Shaft) -
Derrick barge x 1 (Outfall Shaft) Dominating sea current direction was found to be from
Southeast to Northwest at waters to the west side of Tit Cham Chau; and
from Northeast to Southwest at waters to the
east side of Tit Cham Chau. Stations WSR1,
WSR4 and WSR16
were located distant from the construction site and the
possibility of being
affected by marine construction
activities was considered limited. SS exceedance was however observed at WSR1 (6.5
mg/L), WSR4 (5.7
mg/L) and WSR16 (7.0
mg/L). No marine construction activity with contact with water was conducted at WSR37. SS exceedances were
however observed at WSR37 (18.3 mg/L). Although
dredging works were scheduled at WSR36 (Intake Shaft) on 11 December 2021, the SS level at WSR36 (14.5 mg/L)
was lower than WSR37, where WSR37 was located
immediately downstream during
mid-flood tide. According to the work
schedule provided by the Main
Contractor, dredging activities were conducted at the Intake
Shaft between 15:30
and 20:00. As been advised
by our water
sampling team, water
monitoring at WSR36 during mid-flood tide was conducted between 12:49
to 12:50. Hence no dredging
activities were conducted at WSR36 during water sampling in mid- flood tide. WSR33 was located upstream
during mid-flood tide but the SS level at WSR33 (14.0
mg/L) was similar to that at WSR36, where
marine construction activities were conducted. The observed SS exceedance maybe
caused by other natural factors. According to the field observation by sampling
team during sampling event, no silt plume was observed
in the Project site on 11 December 2021. Conditions of the protective silt curtain at the inland
water outfall was satisfactory on 11 December 2021. |
|||
|
Mid-Ebb |
||||
|
Monitoring Location |
WSR4, WSR16, WSR33,
WSR36, WSR37
|
|||
|
Parameter |
Suspended Solid (SS) |
|||
|
Action & Limit Levels |
Action Level |
Limit Level |
||
|
> 6.4 mg/L |
> 6.9 mg/L |
|||
|
Measurement Level |
Impact Station(s)
of Exceedance |
Control Stations |
Impact Station(s)
without Exceedance |
|
|
|
7.5 mg/L (WSR4) 9.7 mg/L
(WSR16) 13.7 mg/L (WSR33) 22.0 mg/L (WSR36) 11.8 mg/L (WSR37) |
5.3 mg/L
(CE) 4.5 mg/L
(CF) |
4.3 mg/L (WSR1) 5.8 mg/L (WSR2) 5.8
mg/L (WSR3) |
|
Possible reason for Action or Limit
Level Non-compliance |
Outfall Shaft Area: marine construction activities, namely
1) 1st derrick
barge supported works
inside the caisson to plug leaking
spots by welding
and grout (0800
-2200 hrs) Intake
Shaft Area: marine construction activities, namely 1) derrick barge transhipped marine
sediment (MD) to hopper barge by grab (tarpaulin sheeting below the moving grab and double silt curtain in place)
(0800 -1530 hrs); 2) derrick
barge commenced to dredge
on non-MD (tarpaulin sheeting below the moving grab and double
silt curtain in place) (1530 -2000 hrs); 3) Hopper barge incepted MD from derrick
barge (0800 -1530 hrs); 4) Hopper barge set off from TKODP and being towed
to East Sha Chau for MD dumping
(1530 -2000 hrs); 5) Hopper
barge being towed back to TKODP (2000 -0100 hrs) Marine construction activities with contact
with water: 1) derrick barge commenced to
dredge on non-MD
(tarpaulin sheeting below
the moving grab
and double silt curtain in place) (1530
-2000 hrs) Marine
vessels on 11 December 2021: -
Derrick barge
x 1, tug boat x 1, hopper barge x 1 (Intake Shaft) -
Derrick barge x 1 (Outfall Shaft) Dominating sea current direction was
found to be from Northwest to Southeast at waters to the west side of Tit Cham Chau; and
from West to East at waters to the east side of Tit Cham Chau. Station WSR4 and WSR16 were located distant
from the construction site and the possibility
of being affected by marine construction activities was considered limited. SS exceedance was
however observed at WSR4 (7.5 mg/L) and WSR16 (9.7
mg/L). No marine construction activity with
contact with water was conducted at WSR37. SS exceedances were however observed at WSR37 (11.8 mg/L).
According to the daily dredging
rate provided by the Main Contractor, the daily dredging rate at Intake Shaft on 11 December 2021 was 20m3/day.
Comparing with the daily dredging rate at Intake Shaft during the same tide (mid-ebb) on 14 December 2021 (72m3/day),
the SS level at WSR36 on 14 December 2021 was relatively lower (5.7 mg/L)
than that on 11 December 2021 (22.0 mg/L)
during mid-ebb tide.
Since the Main Contractor confirmed that tarpaulin sheeting was placed below the moving grab and
intact double silt curtain was
in-place, the SS exceedance at WSR36 maybe
caused by other
natural factors. The
SS level at WSR33 (13.7 mg/L) was similar to that at WSR37 (11.8
mg/L), which no marine construction activities with contact with water was conducted at WSR37. According to the
field observation by sampling team during sampling event, no silt plume
was observed in the Project site on
11 December 2021. Conditions of the protective silt curtain at the inland
water outfall was satisfactory on 11 December 2021. |
||
|
Remarks |
Current direction during
mid-flood sampling on 11 December 2021
Current direction during mid-ebb
sampling on 11 December 2021:
(Sourced from http://current.hydro.gov.hk/en/map.html) |





|
|
Supporting Photo 11 (Daily Dredging Rate
at Intake Shaft on 11/12/2021)
Supporting Photo 12 (Water Sampling
Time Frame at Intake Shaft on 11/12/2021 during
Mid-Flood Tide)
Supporting Photo 13 (Water
Sampling SS Data
on 14 December 2021
|
|
|
Prepared by |
Charlene Lai |
|
|
Date |
12 January 2022 |
|
Incident Report
on Action Level
or Limit Level Non-Compliance
|
Project |
Design, Build
and Operate First Stage of Tseung Kwan O Desalination Plant |
|||
|
Date |
14 December 2021 (Lab result received on 20 December 2021) |
|||
|
Time |
13:33-17:03 (Mid-Flood) and 08:00-11:17 (Mid-Ebb) |
|||
|
Mid-ebb |
||||
|
Monitoring Location |
WSR4,
WSR16, WSR36, WSR37
|
|||
|
Parameter |
Suspended Solid (SS) |
|||
|
Action & Limit Levels |
Action Level |
Limit Level |
||
|
> 5.0 mg/L |
> 6.0 mg/L |
|||
|
Measurement Level |
Impact Station(s)
of Exceedance |
Control Stations |
Impact Station(s)
without Exceedance |
|
|
5.5 mg/L (WSR4) 5.2 mg/L (WSR16) 5.7 mg/L (WSR36) 6.3 mg/L (WSR37) |
4.2 mg/L
(CF) 4.2 mg/L
(CE) |
4.2 mg/L (WSR1) 4.7 mg/L (WSR2) 4.5 mg/L (WSR3) 4.3 mg/L
(WSR33) |
||
|
Possible reason for Action or Limit
Level Non-compliance |
Outfall
Shaft Area: marine construction activities, namely 1) derrick barge supported works
inside the caisson to plug leaking
spots by welding
and grout (0800
-2200 hrs) Intake Shaft Area: marine construction
activities, namely 1) derrick barge dredged
marine deposit (MD) (tarpaulin sheeting below the moving grab and
double silt curtain in place)
(0800 -1800 hrs); 2) Hopper barge idled Marine construction activities with contact
with water: derrick barge dredged marine deposit
(MD) (tarpaulin sheeting below the moving
grab and double
silt curtain in place) (0800
-1800 hrs) Marine
vessels on 14 December
2021: -
Derrick barge x 1, hopper barge x 1 (Intake Shaft) -
Derrick barge x 1 (Outfall Shaft) Dominating sea current direction was found to be from
Northwest to Southeast at waters to the west side of Tit Cham Chau; and from West to East at waters to the east side of Tit
Cham Chau. |
|||
|
|
Stations WSR4 and
WSR16 were located distant from the construction site and the possibility of being affected by marine
construction activities was considered limited. SS exceedances were however observed at WSR4 (5.5 mg/L) and
WSR16 (5.2 mg/L). No marine
construction activities with contact with water was scheduled at WSR37 on 14 December 2021 but SS exceedance was
observed (6.3 mg/L). Although dredging activity was scheduled at Intake Shaft
(WSR36), the SS level at WSR36 (5.7 mg/L) was
similar to that at WSR4 and WSR16, which WSR4 and WSR16 located
distant from marine construction
works. In view of the inverse relation between distance to marine works
and SS level, the SS exceedance is concluded not project relevant. According to the
field observation by sampling team during sampling event, no silt plume
was observed in the Project site on
14 December 2021. Conditions of the protective silt
curtain at the inland water outfall was satisfactory on 14 December 2021 |
|
Remarks |
Current direction during mid-ebb sampling on 14 December 2021:
(Sourced from http://current.hydro.gov.hk/en/map.html) |



|
|
Supporting Photo
7 (Sea Conditions at Outfall Shaft
Area) |
|
|
Prepared by |
Charlene Lai |
|
|
Date |
04 January 2022 |
|
Incident Report
on Action Level
or Limit Level Non-Compliance
|
Project |
Design, Build
and Operate First Stage of Tseung Kwan O Desalination Plant |
|||
|
Date |
16 December 2021 (Lab result received on 22 December 2021) |
|||
|
Time |
14:28-17:58 (Mid-Flood) and 08:43-12:13 (Mid-Ebb) |
|||
|
Mid-flood |
||||
|
Monitoring Location |
WSR1, WSR3, WSR33, WSR36, WSR37
|
|||
|
Parameter |
Suspended Solid (SS) |
|||
|
Action & Limit Levels |
Action Level |
Limit Level |
||
|
> 8.2 mg/L |
> 8.8 mg/L |
|||
|
Measurement Level |
Impact Station(s)
of Exceedance |
Control Stations |
Impact Station(s)
without Exceedance |
|
|
9.8 mg/L (WSR1) 9.0 mg/L (WSR3) 9.8 mg/L
(WSR33) 10.0 mg/L (WSR36) 12.0 mg/L (WSR37) |
6.8 mg/L
(CF) 5.0 mg/L
(CE) |
4.0 mg/L (WSR2) 7.3 mg/L (WSR4) 6.7
mg/L (WSR16) |
||
|
Possible reason for Action or Limit
Level Non-compliance |
Outfall
Shaft Area: marine construction activities, namely 1) derrick barge supported welding
work for protective railing repair and
modification, and pumping clean seepage water
within silt curtain area (0800 -1800 hrs) Intake Shaft Area: marine construction activities, namely 1) derrick
barge for housekeeping &
cleaning up of temporary platform and wailing structure inside the shaft (double silt curtain in place). No
dredging work.(0800 -2000 hrs); 2) loaded hopper barge being towed to South Cheung
Chau for sediment disposal (0800 -1900 hrs) Marine construction activities with contact
with water: 1) derrick barge supported welding work for protective railing repair and
modification, and pumping clean seepage water
within silt curtain area (0800 -1800 hrs) Marine
vessels on 18 December
2021: -
Derrick barge
x 1; hopper barge x 1;
tug boat x 1 (Intake
Shaft) -
Derrick barge x 1 (Outfall Shaft) |
|||
|
|
Dominating sea current direction was found to be from
Southeast to Northwest at waters to the west side of Tit Cham Chau; and
from Northeast to Southwest at waters to the
east side of Tit Cham Chau. Stations WSR1 and WSR3 were located distant
from the construction site and the possibility
of being affected by marine construction activities was considered limited. SS exceedances were however observed at
WSR1 (9.8 mg/L) and WSR3 (9.0 mg/L). WSR33
was located upstream during mid-flood tide but the SS level at WSR33 (9.8 mg/L) was at the same level to station
WSR1 (9.8 mg/L), which WSR1 was located further
away from the construction site.
No marine construction works with contact
with water was conducted
at WSR36 during mid-flood tide on 16 December 2021. SS exceedance was however observed at WSR36
(10.0 mg/L). Multiple layers of intact
silt curtains were
installed at WSR36 and the conditions of the silt curtains were good during
water sampling. It was noted
that pumping of the clean
seepage of marine
water within the silt
curtain was conducted on 16 December 2021. As advised by Main contractor, two separate pumping
systems were constructed for respectively the unpolluted
water ingress through the edge of the caisson and surface water/ washings from the rock drilling/ chain cutting
work. For unpolluted marine water ingress, it will be piped to an isolated metal skip where appropriate-sized
submersible pumps sink in to pump
out the ¡¥clean¡¦ water into an abandoned tremie pipe out of the caisson. The discharge point shall be enclosed by a silt curtain setup.
Since the seepage
marine water was unpolluted, the seepage water can
be discharged to water bodies without a water discharge license. For surface water/washings, it will be
directly pumped at the local low
point all the way up to the water treatment facilities/water sedimentation
tank in place on the derrick barge
aside. The expected silty water will be treated by water treatment facilities/water sedimentation tank
before being piped
to discharge within
silt curtain area. According to the field observation by sampling
team during sampling event, no silt plume was observed
in the Project site on 16 December 2021. Conditions of the
protective silt curtain at the inland water outfall was satisfactory on 16 December 2021. |
|
Remarks |
Current direction during mid-flood sampling on 16 December 2021:
|




Incident Report
on Action Level
or Limit Level Non-Compliance
|
Project |
Design, Build
and Operate First Stage of Tseung Kwan O Desalination Plant |
|||
|
Date |
18 December 2021 (Lab result received on 23 December 2021) |
|||
|
Time |
15:08-18:38 (Mid-Flood) and 09:50-13:20 (Mid-Ebb) |
|||
|
Mid-Flood |
||||
|
Monitoring Location |
WSR33, WSR36, WSR37
|
|||
|
Parameter |
Suspended Solid (SS) |
|||
|
Action & Limit Levels |
Action Level |
Limit Level |
||
|
> 5.6 mg/L |
> 6.1 mg/L |
|||
|
Measurement Level |
Impact Station(s)
of Exceedance |
Control Stations |
Impact Station(s)
without Exceedance |
|
|
6.3 mg/L (WSR33) 6.3 mg/L (WSR36) 6.8 mg/L (WSR37) |
4.7 mg/L
(CF) 5.3 mg/L
(CE) |
4.0 mg/L (WSR1) 4.4 mg/L (WSR2) 4.6 mg/L (WSR3) 3.9 mg/L (WSR4) 3.5
mg/L (WSR16) |
||
|
Possible reason for Action or Limit
Level Non-compliance |
Outfall Shaft Area:
marine construction activities, namely 1) derrick
barge supported pump
piping work and welding work inside the caisson (0800
-2200 hrs) Intake Shaft Area:
marine construction activities, namely 1) derrick
barge for general
housekeeping and welding of wailing (double silt curtain in place)
(0800 -1800 hrs) Marine
construction activities with contact with water: N/A Marine vessels on 18 December 2021: -
Derrick barge x 1 (Intake Shaft) -
Derrick barge x 1 (Outfall Shaft) Dominating sea current direction was found to be from
Southeast to Northwest at waters to the west side of Tit Cham Chau; and
from Northeast to Southwest at waters to the
east side of Tit Cham Chau. |
|||
|
|
No marine
construction activities with
contact with water
was conducted at WSR36 and WSR37
during mid-flood tide on 18 December 2021. SS exceedances were however observed at WSR36 (6.3 mg/L) and WSR37
(6.8 mg/L). WSR33 was located upstream during
mid-flood tide but the SS level at WSR33 (6.3 mg/L) was at the same level to WSR36. Hence the SS exceedance observed
on 18 December during mid-flood tide maybe resulted from other natural factors. According to the
field observation by sampling team during sampling event, no silt plume
was observed in the Project site on
18 December 2021. Conditions of the protective silt
curtain at the inland water outfall was satisfactory on 18 December
2021 |
|||
|
Mid-Ebb |
||||
|
Monitoring Location |
WSR2, WSR3, WSR4,
WSR33, WSR37
|
|||
|
Parameter |
Suspended Solid (SS) |
|||
|
Action & Limit Levels |
Action Level |
Limit Level |
||
|
> 5.0 mg/L |
> 6.0 mg/L |
|||
|
Measurement Level |
Impact Station(s)
of Exceedance |
Control Stations |
Impact Station(s)
without Exceedance |
|
|
6.7 mg/L (WSR2) 6.2 mg/L (WSR3) 5.3 mg/L (WSR4) 6.2 mg/L (WSR33) 6.0 mg/L (WSR37) |
3.5 mg/L
(CE) 3.8 mg/L (CF) |
3.9 mg/L (WSR1) 4.8 mg/L (WSR16) 3.7 mg/L (WSR36) |
||
|
Possible reason for Action or Limit
Level Non-compliance |
Outfall Shaft Area:
marine construction activities, namely 1) derrick
barge supported pump
piping work and welding work inside the caisson (0800
-2200 hrs) Intake Shaft Area:
marine construction activities, namely 1) derrick
barge for general
housekeeping and welding of wailing (double silt curtain in place)
(0800 -1800 hrs) Marine
construction activities with contact with water: N/A Marine vessels on 18 December 2021: -
Derrick barge x 1 (Intake Shaft) -
Derrick barge x 1 (Outfall Shaft) |
|||
|
|
Dominating sea current direction was found to be from Northwest to Southeast at waters to the west side of Tit Cham Chau; and
from West to East at waters to the east side of Tit Cham Chau. Stations WSR2,
WSR3 and WSR4 was located distant from the construction site and the possibility
of being affected by marine construction activities was considered limited. SS exceedances were however
noted at WSR2 (6.7 mg/L), WSR3 (6.2 mg/L) and
WSR4 (5.3 mg/L). No marine construction activities with contact with water
was conducted at WSR37. SS exceedance was
however observed at WSR37 (6.0
mg/L). The SS level at WSR33 (6.2 mg/L) was at
same level or lower than stations that located further away from the construction site (WSR3 and WSR2). No SS
exceedance was recorded at WSR36
(3.7 mg/L), where marine construction works were conducted. In view of the inverse relation between
distance to marine works and SS level, the SS exceedance is
concluded not project relevant. According to the
field observation by sampling team during sampling event, no silt plume
was observed in the Project site on
18 December 2021. Conditions of the protective silt curtain at the inland
water outfall was satisfactory on 18 December 2021. |
|
Remarks |
Current direction during
mid-flood sampling on 18 December 2021
|
|
|
Current direction during mid-ebb sampling on 21 December 2021:
(Sourced from http://current.hydro.gov.hk/en/map.html) Supporting Photo
1 (Sea Conditions at WSR2) |




|
|
Supporting Photo 10 (Sea Conditions at Outfall Shaft Area)
|
|
|
Prepared by |
Charlene Lai |
|
|
Date |
19 January 2021 |
|
Incident Report
on Action Level
or Limit Level Non-Compliance
|
Project |
Design, Build
and Operate First Stage of Tseung Kwan O Desalination Plant |
|||
|
Date |
21 December 2021 (Lab result received on 28 December 2021) |
|||
|
Time |
08:00-10:14 (Mid-Flood) and 11:24-14:54 (Mid-Ebb) |
|||
|
Mid-Flood |
||||
|
Monitoring Location |
WSR1, WSR3, WSR4, WSR33, WSR36,
WSR37
|
|||
|
Parameter |
Suspended Solid (SS) |
|||
|
Action & Limit Levels |
Action Level |
Limit Level |
||
|
> 6.0 mg/L |
> 6.5 mg/L |
|||
|
Measurement Level |
Impact Station(s)
of Exceedance |
Control Stations |
Impact Station(s)
without Exceedance |
|
|
6.7 mg/L (WSR1) 6.3 mg/L (WSR 3) 9.0 mg/L (WSR 4) 7.2 mg/L
(WSR 33) 9.0 mg/L
(WSR 36) 11.2 mg/L (WSR
37) |
5.0 mg/L
(CF) 6.5 mg/L
(CE) |
5.5 mg/L (WSR 2) 5.2 mg/L
(WSR16) |
||
|
Possible reason for Action or Limit
Level Non-compliance |
Outfall
Shaft Area: marine construction activities, namely 1) derrick barge supported the welding
work of working platform atop the
caisson (0800 -2200 hrs) Intake Shaft Area: marine construction
activities, namely 1) derrick barge for general housekeeping and welding of wailing (tarpaulin sheeting below
the moving grab and double silt curtain in place) (0800 -1800 hrs) Marine construction activities with
contact with water: 1) N/A Marine vessels on 21 December 2021: -
Derrick barge x 1 (Intake Shaft) -
Derrick barge x 1 (Outfall Shaft) Dominating sea current direction was found to be from
Southeast to Northwest at waters to the west side of Tit Cham Chau; and
from Northeast to Southwest at waters to the
east side of Tit Cham Chau. Stations WSR1,
WSR3 and WSR16
were located distant from the construction site and the
possibility of being
affected by marine
construction activities was considered |
|||
|
|
limited. SS exceedance was however observed at WSR1 (6.7
mg/L), WSR3 (6.3
mg/L) and WSR4 (9.0 mg/L).
No marine construction activities with contact with water was conducted at WSR36 and WSR37. SS
exceedances were however observed at WSR36
(9.0 mg/L) and WSR37 (11.2 mg/L). The SS level at WSR33 (7.2 mg/L) was
observed lower than a station that
located further away from the construction site (WSR4). An accumulative 10mm rainfall was
recorded on 21 December 2021.
The rainfall may lead to the release of SS content from the
soil of the nearby lands (e.g. country park, fill bank). In view of the inverse relation between distance to
marine works and SS level, the SS exceedance is concluded not
project relevant and maybe caused
by other natural factors. According to the
field observation by sampling team during sampling event, no silt plume
was observed in the Project site on
21 December 2021. Conditions of the
protective silt curtain at the inland water outfall was satisfactory on 21 December 2021. |
|||
|
Mid-Ebb |
||||
|
Monitoring Location |
WSR2, WSR3, WSR4,
WSR33, WSR37
|
|||
|
Parameter |
Suspended Solid (SS) |
|||
|
Action & Limit Levels |
Action Level |
Limit Level |
||
|
> 5.8 mg/L |
> 6.3 mg/L |
|||
|
Measurement Level |
Impact Station(s)
of Exceedance |
Control Stations |
Impact Station(s)
without Exceedance |
|
|
6.3 mg/L (WSR2) 6.7 mg/L (WSR3) 6.7 mg/L (WSR4) 6.7 mg/L (WSR33) 7.8 mg/L (WSR37) |
4.8 mg/L
(CE) 4.0 mg/L
(CF) |
5.3 mg/L (WSR1) 5.5 mg/L (WSR16) 4.8 mg/L (WSR36) |
||
|
Possible reason for Action or Limit
Level Non-compliance |
Outfall Shaft Area: marine construction
activities, namely 1) derrick barge supported the welding work of working platform atop the caisson
(0800 -2200 hrs) Intake
Shaft Area: marine construction activities, namely 1) derrick barge for
general housekeeping and welding of
wailing (tarpaulin sheeting below the moving grab and double silt curtain
in place) (0800 -1800 hrs) Marine
construction activities with
contact with water:
1) N/A |
|||
|
|
Marine vessels on 21 December 2021: -
Derrick barge x 1 (Intake Shaft) -
Derrick barge x 1 (Outfall Shaft) Dominating sea current direction was
found to be from Northwest to Southeast at waters to the west side of Tit Cham Chau; and
from West to East at waters to the east side of Tit Cham Chau. Stations WSR2,
WSR3 and WSR4 was located distant from the construction site and the possibility
of being affected by marine construction activities was considered limited. SS exceedances were however
noted at WSR2 (6.3 mg/L), WSR3 (6.7 mg/L) and
WSR4 (6.7 mg/L). No marine construction activities with contact with water
was conducted at WSR36 and WSR37.
SS exceedance was however observed at WSR37
(7.8 mg/L). The SS level
at WSR33 (6.7
mg/L) was at same level
to stations that
located further away from
the construction site (WSR3 and WSR4). An accumulative 10mm rainfall was recorded on 21 December
2021. The rainfall may lead to the release of SS content from the soil of the nearby lands (e.g. country park,
fill bank). In view of the inverse
relation between distance to marine works and SS level, the SS exceedance is concluded not project relevant and maybe caused by other natural factors. According to the field observation by sampling
team during sampling event, no silt plume was observed
in the Project site on 21 December 2021. Conditions of the protective silt curtain at the inland
water outfall was satisfactory on 21 December 2021. |
|
Remarks |
Current direction during
mid-flood sampling on 21 December 2021
|
|
|
Current direction during mid-ebb sampling on 21 December 2021:
(Sourced from http://current.hydro.gov.hk/en/map.html) Supporting Photo
1 (Sea Conditions at WSR1) |





|
|
Supporting Photo 12 (Accumulative Rainfall recorded on 21/12/2021)
|
|
|
Prepared by |
Charlene Lai |
|
|
Date |
04 January 2021 |
|
Incident Report
on Action Level
or Limit Level Non-Compliance
|
Project |
Design, Build
and Operate First Stage of Tseung Kwan O Desalination Plant |
|||
|
Date |
23 December 2021 (Lab result received on 30 December 2021) |
|||
|
Time |
08:00-11:24 (Mid-Flood) and 12:45-16:15 (Mid-Ebb) |
|||
|
Mid-flood |
||||
|
Monitoring Location |
WSR1
|
|||
|
Parameter |
Suspended Solid (SS) |
|||
|
Action & Limit Levels |
Action Level |
Limit Level |
||
|
> 8.0 mg/L |
> 8.7 mg/L |
|||
|
Measurement Level |
Impact Station(s)
of Exceedance |
Control Stations |
Impact Station(s)
without Exceedance |
|
|
8.8 mg/L (WSR1) |
6.7 mg/L
(CF) 4.8 mg/L
(CE) |
5.2 mg/L (WSR2) 4.3 mg/L (WSR3) 5.5 mg/L (WSR4) 5.2 mg/L (WSR16) 6.3 mg/L (WSR33) 5.8 mg/L (WSR36) 6.3 mg/L (WSR37) |
||
|
Possible reason for Action or Limit
Level Non-compliance |
Outfall
Shaft Area: marine construction activities, namely 1) derrick barge supported drilling rig mobilization and preparation work
inside the caisson (0800 -2200 hrs); 2)
tug boat for material transport from CEDD pier to
outfall shaft (0800
-1800 hrs) Intake
Shaft Area: marine construction activities, namely 1) derrick barge for
general housekeeping and welding
of wailing (tarpaulin sheeting below the moving grab and double
silt curtain in place) (0800 -1800 hrs) Marine construction activities with
contact with water: N/A Marine vessels on 23 December 2021: -
Derrick barge x 1 (Intake Shaft) -
Derrick barge x 1,
tug boat x 1 (Outfall
Shaft) Dominating sea current direction was found to be from
Southeast to Northwest at waters to the west side of Tit Cham Chau; and from Northeast to Southwest at waters to the |
|||
|
|
east
side of Tit Cham Chau. Stations WSR1 was located distant from the
construction site and the possibility of being affected by marine construction activities was considered limited. SS exceedance was however observed at WSR1 (8.8 mg/L). No SS exceedances
was observed at WSR36 (5.8 mg/L)
and WSR37 (6.3 mg/L), where marine construction activities were conducted. In view of the inverse
relation between distance to marine works and SS level, the SS exceedance is concluded not project relevant. According to the
field observation by sampling team during sampling event, no silt plume
was observed in the Project site on
23 December 2021. Conditions of the protective silt
curtain at the inland water outfall was satisfactory on 23 December 2021 |
|
Remarks |
Current direction during mid-flood sampling on 23 December 2021:
(Sourced from http://current.hydro.gov.hk/en/map.html) |


Incident Report
on Action Level
or Limit Level Non-Compliance
|
Project |
Design, Build
and Operate First Stage of Tseung Kwan O Desalination Plant |
|||
|
Date |
25 December 2021 (Lab result
received on 03 January 2022) |
|||
|
Time |
09:35-13:05 (Mid-Flood) and 14:45-18:15 (Mid-Ebb) |
|||
|
Mid-Flood |
||||
|
Monitoring Location |
WSR36, WSR37
|
|||
|
Parameter |
Suspended Solid (SS) |
|||
|
Action & Limit Levels |
Action Level |
Limit Level |
||
|
> 5.0 mg/L |
> 6.0 mg/L |
|||
|
Measurement Level |
Impact Station(s)
of Exceedance |
Control Stations |
Impact Station(s)
without Exceedance |
|
|
6.2 mg/L
(WSR 36) 7.0 mg/L
(WSR 37) |
3.3 mg/L
(CF) 3.7 mg/L
(CE) |
4.5 mg/L (WSR1) 3.6 mg/L (WSR 2) 2.9 mg/L (WSR 3) 4.3 mg/L (WSR 4) 3.5 mg/L
(WSR16) 3.5 mg/L
(WSR 33) |
||
|
Possible reason for Action or Limit
Level Non-compliance |
Outfall
Shaft Area: marine construction activities, namely 1) derrick barge supported material lifting for rock
coring and pumping clean seepage water
within silt curtain area (0800
-2200 hrs); 2) drill rig for rock coring
inside the caisson
(no contact with
outside water body)
(0800 -1800 hrs) Intake Shaft Area: marine construction
activities, namely 1) derrick barge for diver¡¦s work to install brackets and welding of wailing inside the
shaft (double silt curtain in place) (0800
-1800 hrs) Marine construction activities with contact
with water: 1) derrick barge supported material lifting for rock coring
and pumping clean
seepage water within
silt curtain area
(0800 -2200 hrs); 2) derrick barge for diver¡¦s
work to install brackets and welding of wailing inside
the shaft (double
silt curtain in place)
(0800 -1800 hrs) Marine
vessels on 25 December
2021: -
Derrick barge x 1 (Intake Shaft) -
Derrick barge x 1; drill rig x 1 inside
the caisson (Outfall Shaft) |
|||
|
|
Dominating sea current direction was found to be from
Southeast to Northwest at waters to the west side of Tit Cham Chau; and
from Northeast to Southwest at waters to the
east side of Tit Cham Chau. Although marine activities with contact with
water was conducted at both Intake and Outfall
Shaft on 25 December 2021, it would be expected that diver¡¦s activities would generate limited SS. As according to the work schedule provided by the Main Contractor, divers
activities were conducted within the shaft
with multiple layers of silt curtains in-place. The conditions of
the silt curtains were good during water sampling and no silt plume was observed near to the Intake Shaft. It
was noted that pumping of the clean
seepage of marine
water within the silt curtain
was conducted on 25 December 2021. As advised by Main contractor, two separate pumping
systems were constructed for respectively the unpolluted water
ingress through the
edge of the caisson and
surface water/ washings from the rock
drilling/ chain cutting work. For unpolluted marine water ingress, it will be piped to an
isolated metal skip where appropriate-sized submersible pumps sink in to pump out the ¡¥clean¡¦
water into an abandoned tremie pipe out of the caisson. The discharge point shall be enclosed by a silt curtain setup.
Since the seepage marine water was unpolluted, the seepage water can be
discharged to water bodies without
a water discharge license. For
surface water/washings, it will be
directly pumped at the local low
point all the way up to the water treatment facilities/water sedimentation tank in place on the
derrick barge aside. The expected silty water will be treated by water treatment facilities/water sedimentation
tank before being piped to discharge within silt curtain area. According to the
field observation by sampling team during sampling event, no silt plume
was observed in the Project site on
25 December 2021. Conditions of the protective silt
curtain at the inland water outfall was satisfactory on 25 December 2021. |
|||
|
Mid-Ebb |
||||
|
Monitoring Location |
WSR1, WSR4, WSR16,
WSR33, WSR36, WSR37
|
|||
|
Parameter |
Suspended Solid (SS) |
|||
|
Action & Limit Levels |
Action Level |
Limit Level |
||
|
> 5.0 mg/L |
> 6.0 mg/L |
|||
|
Measurement Level |
Impact Station(s)
of Exceedance |
Control Stations |
Impact Station(s)
without Exceedance |
|
|
|
14.2 mg/L
(WSR1) 7.8 mg/L (WSR4) 7.0 mg/L (WSR16) 5.8 mg/L (WSR33) 7.5 mg/L (WSR36) 5.8 mg/L (WSR37) |
3.8 mg/L
(CE) 10.0 mg/L (CF) |
3.7 mg/L (WSR2) 5.0 mg/L (WSR3) |
|
Possible reason for Action or Limit
Level Non-compliance |
Outfall Shaft Area: marine construction
activities, namely 1) derrick barge supported material lifting for
rock coring and
pumping clean seepage water within silt
curtain area (0800 -2200 hrs); 2) drill rig for rock coring
inside the caisson
(no contact with
outside water body)
(0800 -1800 hrs) Intake Shaft Area: marine construction
activities, namely 1) derrick barge for diver¡¦s work to install brackets and welding of wailing inside the
shaft (double silt curtain in place) (0800
-1800 hrs) Marine construction activities with contact
with water: 1) derrick barge supported material lifting for rock coring
and pumping clean
seepage water within
silt curtain area
(0800 -2200 hrs); 2) derrick barge for diver¡¦s
work to install brackets and welding of wailing inside
the shaft (double
silt curtain in place)
(0800 -1800 hrs) Marine
vessels on 25 December 2021: -
Derrick barge x 1 (Intake Shaft) -
Derrick barge x 1; drill rig x 1 inside
the caisson (Outfall Shaft) Dominating sea current direction was
found to be from Northwest to Southeast at waters to the west side of Tit Cham Chau; and
from West to East at waters to the east side of Tit Cham Chau. Stations WSR1, WSR4
and WSR16 were
located distant from
the construction site
and the possibility of being affected by marine construction
activities was considered limited. SS exceedances were however observed at WSR1 (14.2
mg/L), WSR4 (7.8 mg/L) and
WSR16 (7.0 mg/L).
WSR33 was located
downstream to stations with marine construction activities. The SS level
at WSR33 (5.8 mg/L) was however lower than or equivalent to that at WSR36
(7.5 mg/L) and WSR37 (5.8 m/L), where
marine construction
activities were conducted. Although marine activities with contact with water was conducted at both Intake and
Outfall Shaft on 25 December 2021, it would
be expected that diver¡¦s activities would generate limited SS. As
according to the work schedule
provided by the Main Contractor, divers activities were conducted within the shaft with multiple layers of silt
curtains in-place. The conditions of the silt curtains were good during water sampling and no silt plume was observed
near to the Intake Shaft. It was
noted that pumping of the clean seepage of marine water within the silt curtain was conducted on 25 December
2021. As advised by Main contractor, two separate pumping
systems were constructed for respectively the unpolluted water
ingress through the edge of the caisson and surface water/ washings
from the rock drilling/ chain
cutting work. For unpolluted marine water ingress, it will be piped to an isolated metal skip where
appropriate-sized submersible pumps
sink in to pump out the ¡¥clean¡¦ water into an abandoned tremie
pipe out of the caisson. The discharge point
shall be enclosed by a
silt curtain setup. Since the seepage marine water was unpolluted, the seepage water can be discharged to water bodies
without a water
discharge license. For
surface water/washings, it will be directly pumped at the local low
point all the way up to the water
treatment facilities/water sedimentation tank in place on the derrick barge aside. The expected silty water will be
treated by water treatment
facilities/water sedimentation tank
before being piped to discharge within silt curtain area. |
||
|
|
According to the field
observation by sampling team during sampling event, no silt
plume was observed in the Project site on
25 December 2021. Conditions of the protective silt curtain at the inland
water outfall was satisfactory on 25 December 2021. |
|
Remarks |
Current direction during
mid-flood sampling on 25 December 2021
Current direction during mid-ebb
sampling on 25 December 2021:
(Sourced from
http://current.hydro.gov.hk/en/map.html) |





|
|
Supporting Photo 11 (Supporting
Information from EPD Website about Water
Discharge)
(Sourced from https://www.epd.gov.hk/epd/english/greenconstruction/faq/faq.html) |
|
|
Prepared by |
Charlene Lai |
|
|
Date |
12 January 2022 |
|
Incident Report
on Action Level
or Limit Level Non-Compliance
|
Project |
Design, Build
and Operate First Stage of Tseung Kwan O Desalination Plant |
|||
|
Date |
28 December 2021 (Lab result
received on 04 January 2022) |
|||
|
Time |
11:54-15:24 (Mid-Flood) and 17:34-19:00 (Mid-Ebb) |
|||
|
Mid-Flood |
||||
|
Monitoring Location |
WSR2, WSR3, WSR4, WS16
|
|||
|
Parameter |
Suspended Solid (SS) |
|||
|
Action & Limit Levels |
Action Level |
Limit Level |
||
|
> 5.0 mg/L |
> 6.0 mg/L |
|||
|
Measurement Level |
Impact Station(s)
of Exceedance |
Control Stations |
Impact Station(s)
without Exceedance |
|
|
8.8 mg/L (WSR 2) 15.8 mg/L (WSR
3) 16.9 mg/L (WSR
4) 14.3 mg/L (WSR16) |
4.0 mg/L
(CF) 4.2 mg/L
(CE) |
3.0 mg/L (WSR1) 5.0 mg/L
(WSR 33) 4.0 mg/L
(WSR 36) 3.2 mg/L
(WSR 37) |
||
|
Possible reason for Action or Limit
Level Non-compliance |
Outfall Shaft Area: marine construction
activities, namely 1) derrick barge supported material lifting for
rock coring and
pumping clean seepage water within silt
curtain area (0800 -2200 hrs); 2) drill rig for rock coring
inside the caisson
(no contact with
outside water body) (0800 -1800 hrs); 3) tug boat to help material
transportation (0800 -1800 hrs) Intake Shaft Area: marine construction
activities, namely 1) derrick barge for fitting in wailing and welding inside the shaft (double silt curtain in place)
(0800 -1900 hrs) Marine construction activities with contact
with water: 1) derrick barge supported material lifting for rock coring
and pumping clean
seepage water within
silt curtain area
(0800 -2200 hrs) Marine
vessels on 28 December
2021: -
Derrick barge x 1 (Intake Shaft) -
Derrick barge x 1;
tug boat x 1; drill rig x 1 inside the caisson (Outfall Shaft) |
|||
|
|
Dominating sea current direction was found to be from
Southeast to Northwest at waters to the west side of Tit Cham Chau; and
from Northeast to Southwest at waters to the
east side of Tit Cham Chau. Stations WSR2,
WSR3, WSR4 and WSR16 were located distant from the construction site
and the possibility of being affected by marine construction activities was considered limited. SS exceedance was however observed at WSR2 (8.8
mg/L), WSR3 (15.8 mg/L), WSR4 (16.9 mg/L) and
WSR16 (14.3 mg/L). No SS exceedance was observed
at WSR36 (4.0 mg/L) and WSR37 (3.2 mg/L), where marine construction activities were conducted. In view of
the inverse relation between distance to marine works and SS level, the SS exceedance is concluded
not project relevant. According to the
field observation by sampling team during sampling event, no silt plume
was observed in the Project site on
28 December 2021. Conditions of the protective silt
curtain at the inland water outfall was satisfactory on 28 December 2021. |
|||
|
Mid-Ebb |
||||
|
Monitoring Location |
WSR2, WSR3, WSR4,
WSR16, WSR33, WSR36
|
|||
|
Parameter |
Suspended Solid (SS) |
|||
|
Action & Limit Levels |
Action Level |
Limit Level |
||
|
> 5.0 mg/L |
> 6.0 mg/L |
|||
|
Measurement Level |
Impact Station(s)
of Exceedance |
Control Stations |
Impact Station(s)
without Exceedance |
|
|
10.3 mg/L
(WSR2) 17.2 mg/L
(WSR3) 16.8 mg/L
(WSR4) 15.8 mg/L (WSR16) 5.2 mg/L (WSR33) 5.5 mg/L (WSR36) |
3.6 mg/L
(CE) 6.0 mg/L (CF) |
4.0 mg/L (WSR1) 4.5
mg/L (WSR37) |
||
|
Possible reason for Action or Limit
Level Non-compliance |
Outfall
Shaft Area: marine construction activities, namely 1) derrick barge supported material lifting for rock
coring and pumping clean seepage water
within silt curtain area (0800
-2200 hrs); 2) drill rig for rock coring
inside the caisson
(no contact with
outside water body) (0800 -1800 hrs); 3) tug boat to help material
transportation (0800 -1800 hrs) |
|||
|
|
Intake Shaft Area: marine construction
activities, namely 1) derrick barge for fitting in wailing and welding inside the shaft (double silt curtain in place)
(0800 -1900 hrs) Marine construction activities with contact
with water: 1) derrick barge supported material lifting for rock coring
and pumping clean
seepage water within
silt curtain area
(0800 -2200 hrs) Marine
vessels on 28 December 2021: -
Derrick barge x 1 (Intake Shaft) -
Derrick barge
x 1; tug boat x 1; drill rig x 1 inside the
caisson (Outfall Shaft) Dominating sea current direction was
found to be from Northwest to Southeast at waters to the west side of Tit Cham Chau; and
from West to East at waters to the east side of Tit Cham Chau. Stations WSR2,
WSR3, WSR4 and WSR16 were located distant from the construction site
and the possibility of being affected by marine construction activities was considered limited. SS exceedances were
however observed at WSR2 (10.3 mg/L), WSR3 (17.2
mg/L), WSR4 (16.8
mg/L) and WSR16
(15.8 mg/L). No marine construction activity with contact with
water was conducted at Intake Shaft on 28 December
2021. SS exceedance was however observed at WSR36 during mid-ebb tide (5.5 mg/L). No SS exceedance was
observed at WSR37 (4.5 mg/L), where marine
construction activities were conducted. The SS level at both WSR33
(5.2 mg/L) and WSR36 was lower than that of the background stations (CF, 6.0
mg/L) and stations that located further
away from the construction site
(WSR2, WSR3, WSR4
and WSR16). In view
of the inverse relation between distance to marine works and SS level, the SS exceedance is concluded not project relevant. According to the
field observation by sampling team during sampling event, no silt plume
was observed in the Project site on
28 December 2021. Conditions of the protective silt curtain at the inland
water outfall was satisfactory on 28 December 2021. |
|
Remarks |
Current direction during
mid-flood sampling on 28 December 2021
|
|
|
Current direction during mid-ebb sampling on 28 December 2021:
(Sourced from http://current.hydro.gov.hk/en/map.html) Supporting Photo
1 (Sea Conditions at WSR2) |




|
|
Supporting Photo 10 (Sea Conditions at Outfall Shaft Area) |
|
|
Prepared by |
Charlene Lai |
|
|
Date |
12 January 2022 |
|
Incident Report
on Action Level
or Limit Level Non-Compliance
|
Project |
Design, Build
and Operate First Stage of Tseung Kwan O Desalination Plant |
|||
|
Date |
30 December 2021 (Lab result
received on 06 January 2022) |
|||
|
Time |
13:08-16:38 (Mid-Flood) and 08:00-10:55 (Mid-Ebb) |
|||
|
Mid-Flood |
||||
|
Monitoring Location |
WSR2, WSR3, WSR4, WS16, WSR33,
WSR36
|
|||
|
Parameter |
Suspended Solid (SS) |
|||
|
Action & Limit Levels |
Action Level |
Limit Level |
||
|
> 8.4 mg/L |
> 9.1 mg/L |
|||
|
Measurement Level |
Impact Station(s)
of Exceedance |
Control Stations |
Impact Station(s)
without Exceedance |
|
|
9.0 mg/L (WSR 2) 9.0 mg/L (WSR 3) 10.0 mg/L (WSR
4) 8.8 mg/L
(WSR16) 10.5 mg/L (WSR
33) 8.8 mg/L
(WSR 36) |
7.0 mg/L
(CF) 7.8 mg/L
(CE) |
7.8 mg/L (WSR1) 8.2 mg/L
(WSR 37) |
||
|
Possible reason for Action or Limit
Level Non-compliance |
Outfall Shaft Area: marine construction
activities, namely 1) Derrick barge supported material lifting for
rock coring and
pumping clean seepage water within silt
curtain area (0800 -2200 hrs); 2) Coring the bed rock inside
the caisson (no contact with outside water body)
(0800 -1900 hrs) Intake Shaft
Area: marine construction activities, namely 1) derrick barge
for modification of wailing and welding inside
the shaft (double silt curtain in place) (0800 -1800 hrs) Marine construction activities with contact
with water: 1) Derrick barge supported material lifting for rock coring
and pumping clean
seepage water within
silt curtain area
(0800 -2200 hrs) Marine
vessels on 30 December
2021: -
Derrick barge x 1 (Intake Shaft) -
Derrick barge
x 1; rock corer x 1 inside
the caisson (Outfall Shaft) |
|||
1/28/2022
|
|
Dominating sea current direction was found to be from
Southeast to Northwest at waters to the west side of Tit Cham Chau; and
from Northeast to Southwest at waters to the
east side of Tit Cham Chau. Stations WSR2,
WSR3, WSR4 and WSR16 were located distant from the construction site
and the possibility of being affected by marine construction activities was considered limited. SS exceedances were
however observed at WSR2 (9.0 mg/L), WSR3 (9.0 mg/L), WSR4
(10.0 mg/L) and WSR16 (8.8 mg/L). No marine construction activities with contact with water was conducted at WSR36 on
30 December 2021. SS exceedance was
however observed at WSR36 (8.8 mg/L). No SS exceedance was observed at WSR37 (8.2 mg/L), where
marine construction activities were conducted. WSR33 was located upstream during mid-flood tide on 30
December 2021. The SS level at
WSR33 (10.5 mg/L) was however higher than that of WSR36, where marine construction activities were conducted at WSR36. In view of the
inverse relation between distance to
marine works and SS level, the SS exceedance is concluded not project
relevant. According to the
field observation by sampling team during sampling event, no silt plume
was observed in the Project site on
30 December 2021. Conditions of the protective silt
curtain at the inland water outfall was satisfactory on 30 December 2021. |
|||
|
Mid-Ebb |
||||
|
Monitoring Location |
WSR1, WSR3
|
|||
|
Parameter |
Suspended Solid (SS) |
|||
|
Action & Limit Levels |
Action Level |
Limit Level |
||
|
> 9.2 mg/L |
> 10.0 mg/L |
|||
|
Measurement Level |
Impact Station(s)
of Exceedance |
Control Stations |
Impact Station(s)
without Exceedance |
|
|
9.7 mg/L (WSR1) 11.5
mg/L (WSR3) |
7.7 mg/L
(CE) 8.0 mg/L (CF) |
7.5 mg/L (WSR2) 7.8 mg/L (WSR4) 7.0 mg/L (WSR16) 6.5 mg/L (WSR33) 6.8 mg/L (WSR36) 7.8 mg/L (WSR37) |
||
|
Possible reason for Action or Limit
Level Non-compliance |
Outfall
Shaft Area: marine construction activities, namely 1) Derrick barge supported material lifting for rock
coring and pumping clean seepage water
within silt curtain area (0800 -2200 hrs); 2) Coring the bed rock inside
the caisson (no contact with outside water body)
(0800 -1900 hrs) Intake Shaft
Area: marine construction activities, namely 1) derrick barge
for modification of wailing and welding inside
the shaft (double silt curtain in place) (0800 -1800 hrs) Marine construction activities with contact
with water: 1) Derrick barge supported material lifting for rock coring
and pumping clean
seepage water within
silt curtain area
(0800 -2200 hrs) Marine
vessels on 30 December
2021: -
Derrick barge x 1 (Intake Shaft) -
Derrick barge
x 1; rock corer x 1 inside
the caisson (Outfall Shaft) Dominating sea current direction was
found to be from Northwest to Southeast at waters to the west side of Tit Cham Chau; and
from West to East at waters to the east side of Tit Cham Chau. Stations WSR1 and
WSR3 was located distant from the construction site and the possibility of being affected by marine
construction activities was considered limited. SS exceedances were however observed at WSR1 (9.7 mg/L) and
WSR3 (11.5 mg/L). No SS exceedances were observed at WSR36 (6.8
mg/L) and WSR37
(7.8 mg/L), where
marine construction activities were conducted. In view of the inverse
relation between distance to marine
works and SS level, the SS exceedance is concluded not project relevant. According to the field
observation by sampling team during sampling event, no silt
plume was observed in the Project site on
30 December 2021. Conditions of the protective silt curtain at the inland
water outfall was satisfactory on 30 December 2021. |
|
Remarks |
Current direction during
mid-flood sampling on 30 December 2021
|
|
|
Current direction during mid-ebb sampling on 30 December 2021:
(Sourced from http://current.hydro.gov.hk/en/map.html) Supporting Photo
1 (Sea Conditions at WSR1) |




